30坪(20坪~40坪)の貸事務所(御茶ノ水・神田 西側)(20~40坪)
30坪の貸事務所を掲載しています。30坪前後の貸事務所を探す方に参考になるように20坪から40坪の範囲でオフィス物件を抽出しています。このページでは中でも千代田区にある御茶ノ水・神田 西側エリアのオフィスビルに限定して掲載しています。20坪~40坪とは、約10名~20名程度で利用する広さのオフィスになります。平米で換算すると約60㎡から130㎡程度の広さです。是非、オフィス移転のご参考にしてください。
30坪(20坪~40坪)の貸事務所(御茶ノ水・神田 西側)
物件番号:083594
更新日:2026/1/29
千代田区神田錦町3-14
【竣工】2025/12
【階建て】地上8F
|
【最寄駅】
|
【耐震】 |
新耐震 |
| 【基準階】 |
45.03坪 |
【エントランス】 |
オートロック |
| 【駐車場】 |
無し |
【エレベーター】 |
1基 |
BIASTA JIMBOCHOは東京都千代田区神田錦町3-14に位置する、2025年12月に竣工の地上8階建てのオフィスビルです。RC造で建てられており、新耐震基準に適合しているので安全性の高い建物です。交通…

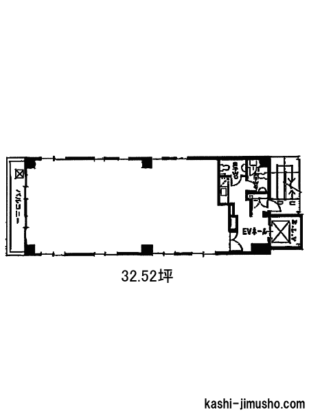
| 図面 |
階数 |
面積 |
賃料(共益費込) (坪単価) |
保証金/敷金 |
礼金 |
入居可能日 |
|
|
3階 |
G 38.38坪 (126.88m2) |
1,189,780 (31,000) |
2,379,560 (2ヶ月) |
無 |
即日 |
|
物件番号:082952
更新日:2026/1/19
千代田区神田須田町1-34-3
【竣工】2024/10
【階建て】地上9F
|
【最寄駅】
|
【耐震】 |
新耐震 |
| 【基準階】 |
38.77坪 |
【エントランス】 |
全日開放(24h) |
| 【駐車場】 |
無し |
【エレベーター】 |
1基 |
D2SMは東京都千代田区神田須田町に位置する、2024年10月竣工予定の新築オフィスビルです。銀座線「神田駅」から徒歩わずか1分という駅近の好立地に加え、JR山手線・中央線・京浜東北線「神田駅」…

| 図面 |
階数 |
面積 |
賃料(共益費込) (坪単価) |
保証金/敷金 |
礼金 |
入居可能日 |
|
|
2階 |
G 38.77坪 (128.16m2) |
|
10ヶ月 |
無 |
相談 |
|
|
4階 |
G 38.77坪 (128.16m2) |
|
10ヶ月 |
無 |
相談 |
|
|
5階 |
G 38.77坪 (128.17m2) |
|
10ヶ月 |
無 |
相談 |
|
|
6階 |
G 38.77坪 (128.16m2) |
|
10ヶ月 |
無 |
相談 |
|
物件番号:082558
更新日:2026/2/9
千代田区神田須田町2-19-11
【竣工】2024/7
【階建て】地上12F
|
【最寄駅】
|
【耐震】 |
新耐震 |
| 【基準階】 |
30.06坪 |
【エントランス】 |
オートロック |
| 【駐車場】 |
無し |
【エレベーター】 |
1基 |
秋葉原駅から徒歩5分、2024年竣工の賃貸オフィスビルです。ACN秋葉原SQUAREは、東京都千代田区神田須田町2に位置する美築オフィスビルで、2024年7月に竣工したばかりの最新の設備とデザインが特…

| 図面 |
階数 |
面積 |
賃料(共益費込) (坪単価) |
保証金/敷金 |
礼金 |
入居可能日 |
|
|
9階 |
G 30.06坪 (99.40m2) |
|
8ヶ月 |
無 |
即日 |
|
物件番号:079628
更新日:2026/2/2
千代田区内神田1-9-8
【竣工】2024/1
【階建て】地上9F
|
【最寄駅】
|
【耐震】 |
新耐震 |
| 【基準階】 |
32.81坪 |
【エントランス】 |
オートロック |
| 【駐車場】 |
無し |
【エレベーター】 |
1基 |
2024年1月竣工、神田駅徒歩4分の貸事務所です。2024年1月に新しく竣工されたKURAMACHI BLDGは、東京都千代田区内神田1-9-8に位置します。JR神田駅からのアクセスは徒歩4分、東京メトロ丸ノ内線淡…

| 図面 |
階数 |
面積 |
賃料(共益費込) (坪単価) |
保証金/敷金 |
礼金 |
入居可能日 |
|
|
3階 |
G 32.81坪 (108.48m2) |
885,870 (27,000) |
5,315,220 (6ヶ月) |
無 |
即日 |
|
|
4階 |
G 32.81坪 (108.48m2) |
885,870 (27,000) |
5,315,220 (6ヶ月) |
無 |
即日 |
|
物件番号:074378
更新日:2026/2/2
千代田区内神田2-4-2
【竣工】2020/10
【階建て】地上11F
|
【最寄駅】
|
【耐震】 |
新耐震 |
| 【基準階】 |
38.37坪 |
【エントランス】 |
全日開放(制限有) |
| 【駐車場】 |
無し |
【エレベーター】 |
1基 |
一広グローバルビルは、東京都千代田区内神田2丁目4-2に位置する、スタイリッシュで機能的な賃貸オフィスビルです。2020年に竣工したこの建物は、新耐震基準を満たしており、安全性が高く、安心…

| 図面 |
階数 |
面積 |
賃料(共益費込) (坪単価) |
保証金/敷金 |
礼金 |
入居可能日 |
|
|
2階 |
G 37.18坪 (122.90m2) |
762,190 (20,500) |
4,573,140 (6ヶ月) |
無 |
相談 |
|
物件番号:070563
更新日:2026/2/5
千代田区神田鍛冶町3-7
【竣工】2019/1
【階建て】地上10F 、地下1F
|
【最寄駅】
|
【耐震】 |
新耐震 |
| 【基準階】 |
27.07坪 |
【エントランス】 |
オートロック |
| 【駐車場】 |
無し |
【エレベーター】 |
1基 |
神田カドウチビルは東京都千代田区神田鍛冶町に位置する、2019年1月に竣工した新耐震基準に対応したオフィスビルです。JR山手線・中央線・京浜東北線の「神田駅」から徒歩3分という駅近の好立地…

| 図面 |
階数 |
面積 |
賃料(共益費込) (坪単価) |
保証金/敷金 |
礼金 |
入居可能日 |
|
|
8階 |
G 27.07坪 (89.49m2) |
676,750 (25,000) |
4,060,500 (6ヶ月) |
無 |
即日 |
|
物件番号:053532
更新日:2026/2/10
千代田区内神田1-15-7
【竣工】2008/2
【階建て】地上12F
|
【最寄駅】
|
【耐震】 |
新耐震 |
| 【基準階】 |
31.89坪 |
【エントランス】 |
全日開放(24h) |
| 【駐車場】 |
有り |
【エレベーター】 |
1基 |
いちご大手町ノースは、千代田区内神田1-15-7に位置する使い勝手の良い貸事務所です。最寄駅は、都営新宿線の小川町駅と東京メトロ丸ノ内線の淡路町駅で、いずれも徒歩5~6分圏内でアクセス可能…

| 図面 |
階数 |
面積 |
賃料(共益費込) (坪単価) |
保証金/敷金 |
礼金 |
入居可能日 |
|
|
NEW5階 |
N 31.89坪 (105.45m2) |
924,810 (29,000) |
(未公開) |
無 |
相談 |
|
物件番号:003240
更新日:2026/1/27
千代田区神田多町2-7-3
【竣工】1998/10
【階建て】地上8F
|
【最寄駅】
|
【耐震】 |
新耐震 |
| 【基準階】 |
23.50坪 |
【エントランス】 |
平日・土開放 |
| 【駐車場】 |
有り |
【エレベーター】 |
1基 |
三好ビルは、東京都千代田区神田多町に位置するオフィスビルで、JR山手線・中央線・銀座線の神田駅から徒歩3分という非常に便利な立地にあります。さらに、丸ノ内線の淡路町駅と都営新宿線の小川…

| 図面 |
階数 |
面積 |
賃料(共益費込) (坪単価) |
保証金/敷金 |
礼金 |
入居可能日 |
|
|
2階 |
G 23.50坪 (77.69m2) |
329,000 (14,000) |
2,200,000 (93,617) |
無 |
即日 |
|
|
4階 |
G 23.50坪 (77.69m2) |
329,000 (14,000) |
2,200,000 (93,617) |
無 |
相談 |
|
物件番号:003449
更新日:2026/2/6
千代田区神田須田町1-5-1
【竣工】1997/8
【階建て】地上9F 、地下1F
|
【最寄駅】
|
【耐震】 |
新耐震 |
| 【基準階】 |
30.77坪 |
【エントランス】 |
|
| 【駐車場】 |
無し |
【エレベーター】 |
1基 |
東京都千代田区神田須田町1-5-1に位置する「東洋須田町ビル」は、多方面からのアクセスに優れた利便性抜群のオフィスビルです。最寄りの銀座線「神田駅」から徒歩2分をはじめ、丸ノ内線「淡路町…

| 図面 |
階数 |
面積 |
賃料(共益費込) (坪単価) |
保証金/敷金 |
礼金 |
入居可能日 |
|
|
4階 |
G 30.77坪 (101.72m2) |
|
10ヶ月 |
無 |
2026/5 上旬 |
|
物件番号:003055
更新日:2026/2/10
千代田区内神田2-4-1
【竣工】1996/8
【階建て】地上8F 、地下2F
|
【最寄駅】
|
【耐震】 |
新耐震 |
| 【基準階】 |
|
【エントランス】 |
|
| 【駐車場】 |
無し |
【エレベーター】 |
1基 |
神田メディカルビルは、東京都千代田区内神田2丁目に位置する、地上8階・地下2階建てのオフィスビルです。1996年3月に竣工し、構造は鉄筋コンクリート造(RC造)となっており、新耐震基準に適合…

| 図面 |
階数 |
面積 |
賃料(共益費込) (坪単価) |
保証金/敷金 |
礼金 |
入居可能日 |
|
|
1階 |
G 26.03坪 (86.05m2) |
720,000 (27,660) |
7,200,000 (10ヶ月) |
1.0ヶ月 |
即日 |
|
物件番号:003149
更新日:2026/1/15
千代田区内神田2-7-10
【竣工】1994/5
【階建て】地上9F
|
【最寄駅】
|
【耐震】 |
新耐震 |
| 【基準階】 |
33.00坪 |
【エントランス】 |
平日・土開放 |
| 【駐車場】 |
無し |
【エレベーター】 |
1基 |
神田駅から徒歩3分の好立地にある神田松楠ビルは、落ち着いた印象のグレーの外観が特徴の貸事務所です。この物件は、東京都千代田区内神田2-7-10に位置しており、JR山手線、中央線、京浜東北線の…

| 図面 |
階数 |
面積 |
賃料(共益費込) (坪単価) |
保証金/敷金 |
礼金 |
入居可能日 |
|
|
3階 |
G 37.07坪 (122.56m2) |
685,795 (18,500) |
6,672,600 (12ヶ月) |
無 |
即日 |
|
物件番号:061006
更新日:2026/2/2
千代田区内神田3-22-9
【竣工】1994/3
【階建て】地上5F 、地下1F
|
【最寄駅】
|
【耐震】 |
新耐震 |
| 【基準階】 |
31.70坪 |
【エントランス】 |
全日開放(24h) |
| 【駐車場】 |
無し |
【エレベーター】 |
1基 |
新八光ビルは、東京都千代田区内神田3丁目に位置するオフィスビルで、JR神田駅から徒歩1分という抜群の立地にあります。山手線・中央線・京浜東北線の3路線に加え、東京メトロ銀座線も利用可能で…

| 図面 |
階数 |
面積 |
賃料(共益費込) (坪単価) |
保証金/敷金 |
礼金 |
入居可能日 |
|
|
3階 |
G 38.30坪 (126.61m2) |
804,300 (21,000) |
6,128,000 (8ヶ月) |
2.0ヶ月 |
即日 |
|
|
4階 |
G 31.70坪 (104.79m2) |
665,700 (21,000) |
5,072,000 (8ヶ月) |
2.0ヶ月 |
即日 |
|
物件番号:003520
更新日:2026/2/2
千代田区神田須田町1-3-1
【竣工】1993/5
【階建て】地上10F 、地下1F
|
【最寄駅】
|
【耐震】 |
新耐震 |
| 【基準階】 |
30.89坪 |
【エントランス】 |
平日のみ開放 |
| 【駐車場】 |
無し |
【エレベーター】 |
1基 |
須田町ビルは、東京都千代田区神田須田町1-3-1に位置する、優れた立地条件を誇る貸事務所物件です。靖国通りに面した角地に建つこのビルは、視認性が高く、アクセスの良さが特徴です。交通の便は…

| 図面 |
階数 |
面積 |
賃料(共益費込) (坪単価) |
保証金/敷金 |
礼金 |
入居可能日 |
|
|
2階 |
G 30.89坪 (102.12m2) |
803,140 (26,000) |
4,262,820 (6ヶ月) |
無 |
即日 |
|
|
4階 |
G 32.65坪 (107.93m2) |
587,700 (18,000) |
4,897,500 (10ヶ月) |
無 |
2026/6/19 |
|
|
7階 |
G 32.65坪 (107.93m2) |
848,900 (26,000) |
4,505,700 (6ヶ月) |
無 |
即日 |
|
物件番号:003391
更新日:2026/2/6
千代田区神田須田町1-5
【竣工】1992/10(改修:2023)
【階建て】地上10F 、地下1F
|
【最寄駅】
|
【耐震】 |
新耐震 |
| 【基準階】 |
25.54坪 |
【エントランス】 |
全日開放(24h) |
| 【駐車場】 |
- |
【エレベーター】 |
1基 |
翔和須田町ビルは、東京都千代田区神田須田町1丁目に立地する賃貸オフィスビルです。交通アクセスが非常に便利なエリアに位置しています。東京メトロ銀座線の神田駅からは徒歩わずか2分、さらに…

| 図面 |
階数 |
面積 |
賃料(共益費込) (坪単価) |
保証金/敷金 |
礼金 |
入居可能日 |
|
|
10階 |
G 24.75坪 (81.85m2) |
495,000 (20,000) |
2,524,500 (6ヶ月) |
無 |
即日 |
|
物件番号:002163
更新日:2026/1/16
千代田区神田錦町3-15
【竣工】1992/10
【階建て】地上7F 、地下1F
|
【最寄駅】
|
【耐震】 |
新耐震 |
| 【基準階】 |
85.73坪 |
【エントランス】 |
平日・土開放 |
| 【駐車場】 |
無し |
【エレベーター】 |
1基 |
複数路線が利用可能で交通アクセス抜群です。高級感漂うエントランスが来訪者をお迎えします。ワンフロア・ワンテナントで使い勝手良好です。

| 図面 |
階数 |
面積 |
賃料(共益費込) (坪単価) |
保証金/敷金 |
礼金 |
入居可能日 |
|
|
7階 |
N 24.30坪 (80.33m2) |
|
12ヶ月 |
無 |
2026/3 |
|
物件番号:003327
更新日:2026/2/6
千代田区神田須田町1-32
【竣工】1991/7(改修:2019)
【階建て】地上5F 、地下1F
|
【最寄駅】
|
【耐震】 |
新耐震 |
| 【基準階】 |
37.17坪 |
【エントランス】 |
全日開放(制限有) |
| 【駐車場】 |
有り |
【エレベーター】 |
1基 |
クレス不動産神田ビルは、千代田区神田須田町1-32に位置する、アクセス性と快適性を兼ね備えた賃貸オフィスビルです。この物件の最大の魅力は、複数の主要路線へのアクセスの良さにあります。東…

| 図面 |
階数 |
面積 |
賃料(共益費込) (坪単価) |
保証金/敷金 |
礼金 |
入居可能日 |
|
|
4階 |
G 37.17坪 (122.38m2) |
929,250 (25,000) |
3,717,000 (4ヶ月) |
無 |
2026/9/1 |
|
物件番号:003463
更新日:2026/2/5
千代田区神田須田町1-4-8
【竣工】1991/4
【階建て】地上9F 、地下1F
|
【最寄駅】
|
【耐震】 |
新耐震 |
| 【基準階】 |
37.37坪 |
【エントランス】 |
全日開放(制限有) |
| 【駐車場】 |
無し |
【エレベーター】 |
1基 |
NCO神田須田町ビルは、東京都千代田区神田須田町1丁目に位置する駅近オフィスビルです。交通アクセスに優れ、東京メトロ丸ノ内線「淡路町駅」、都営新宿線「小川町駅」から徒歩1分という利便性の…

| 図面 |
階数 |
面積 |
賃料(共益費込) (坪単価) |
保証金/敷金 |
礼金 |
入居可能日 |
|
|
2階 |
G 37.68坪 (124.56m2) |
|
12ヶ月 |
無 |
即日 |
|
物件番号:002254
更新日:2026/2/4
千代田区神田錦町3-1
【竣工】1991/1(改修:2006)
【階建て】地上8F 、地下1F
|
【最寄駅】
|
【耐震】 |
旧耐震+補強済 or 基準OK |
| 【基準階】 |
160.82坪 |
【エントランス】 |
平日・土開放 |
| 【駐車場】 |
有り |
【エレベーター】 |
2基 |
オームビルは、東京都千代田区神田錦町3丁目に位置し、千代田通りに面した視認性の高い角地に建つオフィスビルです。最寄り駅の東京メトロ東西線「竹橋駅」からは徒歩3分、都営三田線・新宿線、…

| 図面 |
階数 |
面積 |
賃料(共益費込) (坪単価) |
保証金/敷金 |
礼金 |
入居可能日 |
|
|
2階 |
N 38.78坪 (128.20m2) |
|
12ヶ月 |
無 |
2026/4/1 |
|
|
3階 |
N 38.78坪 (128.20m2) |
|
12ヶ月 |
無 |
2026/3/1 |
|
物件番号:002618
更新日:2026/1/29
千代田区神田駿河台2-3-16
【竣工】1990/12
【階建て】地上7F
|
【最寄駅】
|
【耐震】 |
新耐震 |
| 【基準階】 |
34.00坪 |
【エントランス】 |
全日開放(制限有) |
| 【駐車場】 |
無し |
【エレベーター】 |
1基 |
駿河台スカイビルは、千代田区神田駿河台2丁目に位置する賃貸オフィスビルです。御茶ノ水エリアの中心に立地し、最寄りのJR中央線・総武線の御茶ノ水駅から徒歩5分圏内、東京メトロ丸ノ内線の御…

| 図面 |
階数 |
面積 |
賃料(共益費込) (坪単価) |
保証金/敷金 |
礼金 |
入居可能日 |
|
|
3階 |
G 34.00坪 (112.40m2) |
649,400 (19,100) |
5,000,000 (147,059) |
無 |
即日 |
|
物件番号:003175
更新日:2026/1/19
千代田区神田司町2-10-4
【竣工】1990/10(改修:2025)
【階建て】地上10F
|
【最寄駅】
|
【耐震】 |
新耐震 |
| 【基準階】 |
26.98坪 |
【エントランス】 |
平日のみ開放 |
| 【駐車場】 |
有り |
【エレベーター】 |
1基 |
NOVEL WORK Kandaは、東京都千代田区神田司町2-10-4に位置する賃貸オフィスビルです。交通アクセスが非常に便利で、丸ノ内線淡路町駅および都営新宿線小川町駅から徒歩2分、JR中央線、山手線、京…

| 図面 |
階数 |
面積 |
賃料(共益費込) (坪単価) |
保証金/敷金 |
礼金 |
入居可能日 |
|
|
6階 |
G 26.98坪 (89.19m2) |
809,400 (30,000) |
無 |
無 |
2026/3/1 |
|
物件番号:002256
更新日:2026/2/6
千代田区神田錦町2-7-6
【竣工】1990/9(改修:2002)
【階建て】地上6F
|
【最寄駅】
|
【耐震】 |
新耐震 |
| 【基準階】 |
39.91坪 |
【エントランス】 |
平日のみ開放 |
| 【駐車場】 |
無し |
【エレベーター】 |
1基 |
竹橋・大手町駅利用可、千代田区神田錦町の賃貸オフィスビルです。南部ビルは、東京都千代田区神田錦町2に位置する利便性の良さが魅力の物件です。最寄りの東京メトロ東西線の竹橋駅から徒歩5分…

| 図面 |
階数 |
面積 |
賃料(共益費込) (坪単価) |
保証金/敷金 |
礼金 |
入居可能日 |
|
|
6階 |
G 27.83坪 (92.00m2) |
|
(未公開) |
無 |
2026/4 |
|
物件番号:003374
更新日:2026/2/6
千代田区神田須田町2-1-1
【竣工】1990/7(改修:2023)
【階建て】地上8F 、地下1F
|
【最寄駅】
|
【耐震】 |
新耐震 |
| 【基準階】 |
39.98坪 |
【エントランス】 |
平日・土開放 |
| 【駐車場】 |
無し |
【エレベーター】 |
2基 |
MA SQUARE AKIHABARAは、千代田区神田須田町2丁目に位置する、視認性の高い角地に立つ貸事務所ビルです。靖国通り沿いに面し、東京メトロ銀座線「神田駅」から徒歩3分、都営新宿線「岩本町駅」か…

| 図面 |
階数 |
面積 |
賃料(共益費込) (坪単価) |
保証金/敷金 |
礼金 |
入居可能日 |
|
|
3階 |
G 39.98坪 (132.19m2) |
959,520 (24,000) |
5,757,120 (6ヶ月) |
無 |
2026/3/13 |
|
|
7階 |
G 39.98坪 (132.19m2) |
959,520 (24,000) |
5,757,120 (6ヶ月) |
無 |
2026/7/1 |
|
物件番号:037700
更新日:2026/1/20
千代田区神田小川町2-3-13
【竣工】1990/2
【階建て】地上8F
|
【最寄駅】
|
【耐震】 |
新耐震 |
| 【基準階】 |
96.63坪 |
【エントランス】 |
平日のみ開放 |
| 【駐車場】 |
有り |
【エレベーター】 |
1基 |
M&Cビルは、新御茶ノ水駅から徒歩1分という駅近の立地にある貸事務所で、東京都千代田区神田小川町2-3-13に位置しています。この物件は、東京メトロ千代田線の新御茶ノ水駅からのアクセスが非常…

| 図面 |
階数 |
面積 |
賃料(共益費込) (坪単価) |
保証金/敷金 |
礼金 |
入居可能日 |
|
|
4階 |
N 34.42坪 (113.78m2) |
653,980 (19,000) |
2,667,550 (5ヶ月) |
無 |
2026/7/1 |
|
物件番号:003359
更新日:2026/1/30
千代田区神田須田町1-4-6
【竣工】1989/4(改修:2024)
【階建て】地上7F 、地下1F
|
【最寄駅】
|
【耐震】 |
新耐震 |
| 【基準階】 |
22.00坪 |
【エントランス】 |
|
| 【駐車場】 |
無し |
【エレベーター】 |
1基 |
最寄り駅から徒歩2分、駅近好立地の賃貸オフィスビルです。TRUST VALUE神田須田町ビルは、東京都千代田区神田須田町1-4-6に位置し、交通アクセスに優れたオフィスビルです。東京メトロ丸ノ内線淡…

| 図面 |
階数 |
面積 |
賃料(共益費込) (坪単価) |
保証金/敷金 |
礼金 |
入居可能日 |
|
|
4階 |
G 23.24坪 (76.85m2) |
697,200 (30,000) |
無 |
無 |
相談 |
|
|
5階 |
G 23.24坪 (76.85m2) |
697,200 (30,000) |
無 |
無 |
2026/4 予定 |
|
|
6-7階 |
G 35.69坪 (118.01m2) |
1,070,700 (30,000) |
無 |
無 |
即日 |
|
物件番号:003099
更新日:2026/2/9
千代田区内神田2-15-15
【竣工】1987/12
【階建て】地上6F
|
【最寄駅】
|
【耐震】 |
新耐震 |
| 【基準階】 |
84.00坪 |
【エントランス】 |
|
| 【駐車場】 |
無し |
【エレベーター】 |
1基 |
東京都千代田区内神田2丁目という、ビジネスの利便性と機動力が求められる企業にとって理想的な立地に位置する「竹橋ビル」は、複数路線が利用できる優れたアクセス環境と、実用性に優れたオフィ…

| 図面 |
階数 |
面積 |
賃料(共益費込) (坪単価) |
保証金/敷金 |
礼金 |
入居可能日 |
|
|
4階 |
G 27.46坪 (90.78m2) |
411,900 (15,000) |
2,141,880 (6ヶ月) |
無 |
即日 |
|
物件番号:002180
更新日:2026/1/26
千代田区神田錦町2-5-1
【竣工】1987/7
【階建て】地上7F
|
【最寄駅】
|
【耐震】 |
新耐震 |
| 【基準階】 |
41.44坪 |
【エントランス】 |
|
| 【駐車場】 |
無し |
【エレベーター】 |
1基 |
大晃ビルは、東京都千代田区神田錦町に位置するオフィスビルです。最寄り駅は東西線の竹橋駅、千代田線の新御茶ノ水駅、都営新宿線の小川町駅で、いずれも徒歩5分圏内というアクセスの良さが魅力…

| 図面 |
階数 |
面積 |
賃料(共益費込) (坪単価) |
保証金/敷金 |
礼金 |
入居可能日 |
|
|
5階 |
G 23.34坪 (77.17m2) |
315,000 (13,496) |
2,650,000 (10ヶ月) |
無 |
即日 |
|
物件番号:012394
更新日:2026/2/9
千代田区神田須田町1-7
【竣工】1987/4(改修:2022)
【階建て】地上10F
|
【最寄駅】
|
【耐震】 |
新耐震 |
| 【基準階】 |
56.90坪 |
【エントランス】 |
平日・土開放 |
| 【駐車場】 |
有り |
【エレベーター】 |
1基 |
神田ミハマビルは、東京都千代田区神田須田町1-7に位置する地上10階建てのオフィスビルです。1987年4月に竣工し、SRC造で建てられています。また、新耐震基準に適合しており、安全性にも優れてい…

| 図面 |
階数 |
面積 |
賃料(共益費込) (坪単価) |
保証金/敷金 |
礼金 |
入居可能日 |
|
|
3階 |
G 34.60坪 (114.38m2) |
588,200 (17,000) |
3,875,200 (8ヶ月) |
無 |
2026/3/9 |
|
物件番号:003361
更新日:2026/2/3
千代田区神田須田町1-32
【竣工】1987/1
【階建て】地上6F 、地下1F
|
【最寄駅】
|
【耐震】 |
新耐震 |
| 【基準階】 |
46.09坪 |
【エントランス】 |
平日・土開放 |
| 【駐車場】 |
無し |
【エレベーター】 |
1基 |
東京都千代田区神田須田町にある「NSビル」は、JR山手線・中央線・京浜東北線の神田駅から徒歩3分、さらに都営新宿線の小川町駅や東京メトロ丸ノ内線の淡路町駅も徒歩4分圏内と、複数路線を利用…

| 図面 |
階数 |
面積 |
賃料(共益費込) (坪単価) |
保証金/敷金 |
礼金 |
入居可能日 |
|
|
1階 |
G 27.96坪 (92.43m2) |
503,280 (18,000) |
4,473,600 (10ヶ月) |
無 |
即日 |
|
物件番号:003356
更新日:2026/2/6
千代田区神田須田町1-17
【竣工】1986/12(改修:2018)
【階建て】地上6F 、地下1F
|
【最寄駅】
|
【耐震】 |
新耐震 |
| 【基準階】 |
27.00坪 |
【エントランス】 |
全日開放(制限有) |
| 【駐車場】 |
無し |
【エレベーター】 |
1基 |
淡路町駅近くの好立地!JRも徒歩圏で便利なエリアです。閑静な環境で業務に集中できます。24時間使用可能、新耐震基準の賃貸事務所です。

| 図面 |
階数 |
面積 |
賃料(共益費込) (坪単価) |
保証金/敷金 |
礼金 |
入居可能日 |
|
|
5-6階 |
G 38.02坪 (125.71m2) |
800,000 (21,042) |
4,800,000 (6ヶ月) |
1.0ヶ月 |
即日 |
|
物件番号:040538
更新日:2026/1/26
千代田区神田小川町3-1
【竣工】1986/8
【階建て】地上5F
|
【最寄駅】
|
【耐震】 |
新耐震 |
| 【基準階】 |
|
【エントランス】 |
|
| 【駐車場】 |
無し |
【エレベーター】 |
1基 |
東京都千代田区神田小川町3丁目に位置する「神田第八KMビル」は、7路線が徒歩圏内という高い交通利便性を備える賃貸オフィス物件です。新御茶ノ水、神保町、小川町、淡路町、竹橋、御茶ノ水と複…

| 図面 |
階数 |
面積 |
賃料(共益費込) (坪単価) |
保証金/敷金 |
礼金 |
入居可能日 |
|
|
3階 |
G 21.18坪 (70.02m2) |
242,000 (11,425) |
1,440,000 (67,989) |
1.0ヶ月 |
相談 |
|
※取引態様:媒介
※フロア図面と現況が異なる場合は現況を優先いたします。
※貸室内部の写真・貸室からの景色に関しては、現在の募集フロアと異なる場合がございます。
※取引態様:媒介
その他、御茶ノ水・神田 西側エリアの貸事務所をお探しの方はこちらをクリック

30坪の貸事務所、賃貸オフィス
30坪(20坪~40坪)の千代田区貸事務所
30坪(20坪~40坪)の中央区貸事務所
30坪(20坪~40坪)の港区貸事務所
30坪(20坪~40坪)の新宿区貸事務所
30坪(20坪~40坪)の渋谷区貸事務所
30坪(20坪~40坪)の台東区貸事務所
30坪(20坪~40坪)の品川区貸事務所
30坪(20坪~40坪)の豊島区貸事務所
30坪(20坪~40坪)の文京区貸事務所
30坪(20坪~40坪)の目黒区貸事務所
東京都内の30坪(20坪~40坪)の貸事務所
御茶ノ水・神田西側エリアの駅検索
御茶ノ水・神田西側の近隣エリア