30坪(20坪~40坪)の貸事務所(神田 東側・秋葉原 南側)(20~40坪)
30坪の貸事務所を掲載しています。30坪前後の貸事務所を探す方に参考になるように20坪から40坪の範囲でオフィス物件を抽出しています。このページでは中でも千代田区にある神田 東側・秋葉原 南側エリアのオフィスビルに限定して掲載しています。20坪~40坪とは、約10名~20名程度で利用する広さのオフィスになります。平米で換算すると約60㎡から130㎡程度の広さです。是非、オフィス移転のご参考にしてください。
30坪(20坪~40坪)の貸事務所(神田 東側・秋葉原 南側)
物件番号:004796
更新日:2026/5/12
千代田区神田富山町8
【竣工】2024/3
【階建て】地上10F
|
【最寄駅】
|
【耐震】 |
新耐震 |
| 【基準階】 |
37.63坪 |
【エントランス】 |
平日のみ開放 |
| 【駐車場】 |
無し |
【エレベーター】 |
1基 |
東京都千代田区神田富山町に誕生した「アツミビル」は、2024年4月に竣工したオフィスビルで、快適なワークプレイスを提供しています。鉄筋コンクリート造(RC造)、地上10階建ての堅牢な構造で、…

| 図面 |
階数 |
面積 |
賃料(共益費込) (坪単価) |
保証金/敷金 |
礼金 |
入居可能日 |
|
|
3階 |
G 37.63坪 (124.41m2) |
827,860 (22,000) |
6ヶ月 |
無 |
即日 |
|
物件番号:083050
更新日:2026/4/24
千代田区鍛冶町1-7-15
【竣工】2024/3
【階建て】地上3F
|
【最寄駅】
|
【耐震】 |
新耐震 |
| 【基準階】 |
20.67坪 |
【エントランス】 |
|
| 【駐車場】 |
無し |
【エレベーター】 |
無 |
東京都千代田区鍛冶町に誕生した「AVANTIA神田」は、2024年3月に竣工したばかりのオフィスビルです。JR山手線・中央線・京浜東北線「神田駅」から徒歩2分という抜群のアクセスを誇り、ビジネスの…

| 図面 |
階数 |
面積 |
賃料(共益費込) (坪単価) |
保証金/敷金 |
礼金 |
入居可能日 |
|
|
1階 |
G 20.67坪 (68.34m2) |
1,200,000 (58,055) |
6ヶ月 |
無 |
2026/7 上旬 |
|
物件番号:077976
更新日:2026/4/17
千代田区神田岩本町4-7
【竣工】2021/6
【階建て】地上12F
|
【最寄駅】
|
【耐震】 |
新耐震 |
| 【基準階】 |
24.99坪 |
【エントランス】 |
オートロック |
| 【駐車場】 |
無し |
【エレベーター】 |
1基 |
「+SHIFT KANDA」は、東京都千代田区神田岩本町に位置するスタイリッシュで機能的なオフィスビルです。最寄り駅の都営新宿線・岩本町駅からは徒歩3分、JR神田駅(山手線・中央線・京浜東北線)や…

| 図面 |
階数 |
面積 |
賃料(共益費込) (坪単価) |
保証金/敷金 |
礼金 |
入居可能日 |
|
|
11階 |
G 24.99坪 (82.63m2) |
824,670 (33,000) |
無 |
無 |
2026/10/1 |
|
物件番号:073881
更新日:2026/5/15
千代田区岩本町3-8-11
【竣工】2020/3
【階建て】地上8F
|
【最寄駅】
|
【耐震】 |
新耐震 |
| 【基準階】 |
21.37坪 |
【エントランス】 |
オートロック |
| 【駐車場】 |
無し |
【エレベーター】 |
1基 |
東京都千代田区岩本町に位置する「VORT秋葉原V」は、秋葉原エリア・岩本町エリアで高品質なセットアップオフィスを探している企業様におすすめの賃貸オフィスビルです。周辺に複数の駅があり、ビ…

| 図面 |
階数 |
面積 |
賃料(共益費込) (坪単価) |
保証金/敷金 |
礼金 |
入居可能日 |
|
|
2階 |
G 21.37坪 (70.65m2) |
|
6ヶ月 |
1.0ヶ月 |
2026/8/1 |
|
|
6階 |
G 21.37坪 (70.65m2) |
|
6ヶ月 |
1.0ヶ月 |
即日 |
|
物件番号:058643
更新日:2026/5/1
千代田区神田東松下町29-6
【竣工】2010/2
【階建て】地上9F
|
【最寄駅】
|
【耐震】 |
新耐震 |
| 【基準階】 |
25.24坪 |
【エントランス】 |
オートロック |
| 【駐車場】 |
無し |
【エレベーター】 |
1基 |
JR・地下鉄も利用可能な便利な立地!天井ボードが抜いてあるお洒落な室内!OAフロア、男女別トイレなど設備充実!

| 図面 |
階数 |
面積 |
賃料(共益費込) (坪単価) |
保証金/敷金 |
礼金 |
入居可能日 |
|
|
4階 |
G 25.24坪 (83.47m2) |
504,800 (20,000) |
6ヶ月 |
無 |
2026/6 下旬 |
|
物件番号:051854
更新日:2026/5/15
千代田区鍛冶町1-3-1
【竣工】2007/3
【階建て】地上9F 、地下1F
|
【最寄駅】
|
【耐震】 |
新耐震 |
| 【基準階】 |
25.62坪 |
【エントランス】 |
オートロック |
| 【駐車場】 |
無し |
【エレベーター】 |
1基 |
VORT神田は、東京都千代田区鍛冶町1丁目に位置するオフィスビルで、神田駅から徒歩2分という抜群の立地が魅力です。JR山手線・中央線・京浜東北線、東京メトロ銀座線が乗り入れる神田駅が最寄り…

| 図面 |
階数 |
面積 |
賃料(共益費込) (坪単価) |
保証金/敷金 |
礼金 |
入居可能日 |
|
|
3階 |
G 25.62坪 (84.69m2) |
|
5ヶ月 |
1.0ヶ月 |
2026/8/20 |
|
|
6階 |
G 25.62坪 (84.71m2) |
|
5ヶ月 |
1.0ヶ月 |
2026/9/27 |
|
物件番号:004386
更新日:2026/5/12
千代田区東神田2-10-9
【竣工】2002/5(改修:2018)
【階建て】地上8F
|
【最寄駅】
|
【耐震】 |
新耐震 |
| 【基準階】 |
38.20坪 |
【エントランス】 |
平日のみ開放 |
| 【駐車場】 |
無し |
【エレベーター】 |
1基 |
千代田区東神田2-10-9にある、ポータル秋葉原です。徒歩4分圏内でJR総武線(快速)の馬喰町駅、徒歩5分圏内でJR総武線の浅草橋駅、徒歩7分圏内で都営新宿線の岩本町駅、徒歩9分圏内で都営浅草…

| 図面 |
階数 |
面積 |
賃料(共益費込) (坪単価) |
保証金/敷金 |
礼金 |
入居可能日 |
|
|
5階 |
G 38.20坪 (126.31m2) |
|
(未公開) |
無 |
2026/7 上旬 |
|
物件番号:004838
更新日:2026/4/24
千代田区神田紺屋町15
【竣工】1993/4(改修:2022)
【階建て】地上10F 、地下1F
|
【最寄駅】
|
【耐震】 |
新耐震 |
| 【基準階】 |
116.73坪 |
【エントランス】 |
平日・土開放 |
| 【駐車場】 |
有り |
【エレベーター】 |
2基 |
グランファースト神田紺屋町は、千代田区神田紺屋町15にある物件です。徒歩4分圏内でJR山手線・JR中央線・JR京浜東北線・東京メトロ銀座線の神田駅、徒歩5分圏内で東京メトロ日比谷線の小伝馬町…

| 図面 |
階数 |
面積 |
賃料(共益費込) (坪単価) |
保証金/敷金 |
礼金 |
入居可能日 |
|
|
1階 |
G 23.27坪 (76.92m2) |
|
(未公開) |
無 |
2026/6 上旬 |
|
物件番号:005038
更新日:2026/5/12
千代田区神田美倉町12-1
【竣工】1993/3(改修:2019)
【階建て】地上7F 、地下1F
|
【最寄駅】
|
【耐震】 |
新耐震 |
| 【基準階】 |
39.36坪 |
【エントランス】 |
|
| 【駐車場】 |
有り |
【エレベーター】 |
1基 |
MH-KIYABLDGは、千代田区神田美倉町に位置する貸事務所で、複数の主要路線が利用できる利便性の高いロケーションが魅力です。最寄り駅はJR山手線、中央線、京浜東北線および東京メトロ銀座線の神…

| 図面 |
階数 |
面積 |
賃料(共益費込) (坪単価) |
保証金/敷金 |
礼金 |
入居可能日 |
|
|
3階 |
G 39.36坪 (130.12m2) |
984,000 (25,000) |
6ヶ月 |
1.0ヶ月 |
即日 |
|
物件番号:004900
更新日:2026/5/7
千代田区鍛冶町2-7-15
【竣工】1992/8
【階建て】地上9F
|
【最寄駅】
|
【耐震】 |
新耐震 |
| 【基準階】 |
39.82坪 |
【エントランス】 |
|
| 【駐車場】 |
無し |
【エレベーター】 |
1基 |
神田駅東口から徒歩1分の好立地に位置するAD神田東口ビルは、モダンでエレガントなデザインが特徴の貸事務所です。住所は東京都千代田区鍛冶町2-7-15。JR山手線・中央線・京浜東北線、東京メトロ…

| 図面 |
階数 |
面積 |
賃料(共益費込) (坪単価) |
保証金/敷金 |
礼金 |
入居可能日 |
|
|
6階 |
G 39.82坪 (131.64m2) |
|
(未公開) |
無 |
2026/9/14 |
|
|
7階 |
G 39.82坪 (131.64m2) |
|
(未公開) |
無 |
2026/9/14 |
|
物件番号:004278
更新日:2026/4/27
千代田区東神田2-10-16
【竣工】1992/6
【階建て】地上9F
|
【最寄駅】
|
【耐震】 |
新耐震 |
| 【基準階】 |
29.46坪 |
【エントランス】 |
全日開放(制限有) |
| 【駐車場】 |
無し |
【エレベーター】 |
1基 |
馬喰町駅から徒歩5分の賃貸オフィスビルです。For Life Office東神田ビルは、東京都千代田区東神田2-10-16に位置するオフィスビルで、1992年6月に竣工しました。地上9階建てのRC造(鉄筋コンクリ…

| 図面 |
階数 |
面積 |
賃料(共益費込) (坪単価) |
保証金/敷金 |
礼金 |
入居可能日 |
|
|
8階 |
G 29.46坪 (97.41m2) |
765,960 (26,000) |
無 |
無 |
2026/8 上旬 |
|
物件番号:004260
更新日:2026/5/14
千代田区東神田2-8-4
【竣工】1992/2
【階建て】地上8F
|
【最寄駅】
|
【耐震】 |
新耐震 |
| 【基準階】 |
22.60坪 |
【エントランス】 |
オートロック |
| 【駐車場】 |
無し |
【エレベーター】 |
1基 |
浅草橋駅や馬喰町駅などが使え便利な立地です。シンプルな形状でレイアウトのしやすい貸室です。常時オートロックのためセキュリティは安心です。

| 図面 |
階数 |
面積 |
賃料(共益費込) (坪単価) |
保証金/敷金 |
礼金 |
入居可能日 |
|
|
NEW3階 |
G 22.60坪 (74.72m2) |
316,400 (14,000) |
6ヶ月 |
無 |
2026/8/1 |
|
物件番号:004654
更新日:2026/4/17
千代田区岩本町2-7-2
【竣工】1991/5(改修:2025)
【階建て】地上8F 、地下1F
|
【最寄駅】
|
【耐震】 |
新耐震 |
| 【基準階】 |
18.65坪 |
【エントランス】 |
全日開放(24h) |
| 【駐車場】 |
無し |
【エレベーター】 |
1基 |
神田駅から徒歩圏内、JR・地下鉄ともに多数路線利用可能!落ち着いた趣のあるエントランスへ2025年12月大規模リニューアル!内装付きのセットアップオフィス、充実した設備で快適なオフィス環境!

| 図面 |
階数 |
面積 |
賃料(共益費込) (坪単価) |
保証金/敷金 |
礼金 |
入居可能日 |
|
|
7-8階 |
G 24.01坪 (79.37m2) |
648,270 (27,000) |
無 |
無 |
即日 |
|
物件番号:004506
更新日:2026/5/15
千代田区岩本町3-9-4
【竣工】1990/5
【階建て】地上7F 、地下1F
|
【最寄駅】
|
【耐震】 |
新耐震 |
| 【基準階】 |
27.66坪 |
【エントランス】 |
全日開放(24h) |
| 【駐車場】 |
無し |
【エレベーター】 |
1基 |
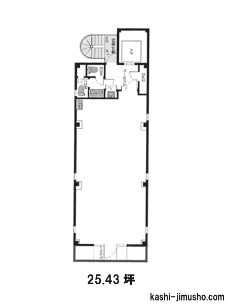
東京都千代田区岩本町3丁目に位置するSHIMADA秋葉原ビルは、落ち着いた環境と利便性を両立したオフィス物件です。大通りから少し入った場所に建つため、周囲は比較的静かでありながら、道路幅が…

| 図面 |
階数 |
面積 |
賃料(共益費込) (坪単価) |
保証金/敷金 |
礼金 |
入居可能日 |
|
|
2階 |
G 25.43坪 (84.07m2) |
|
(未公開) |
無 |
即日 |
|
物件番号:004643
更新日:2026/5/1
千代田区岩本町1-7-6
【竣工】1990/5
【階建て】地上6F
|
【最寄駅】
|
【耐震】 |
新耐震 |
| 【基準階】 |
27.85坪 |
【エントランス】 |
|
| 【駐車場】 |
無し |
【エレベーター】 |
1基 |
千代田区岩本町に位置する「KITEN岩本町」です。東京メトロ日比谷線「小伝馬町駅」から徒歩3分という至便な立地に加え、JR総武線快速「馬喰町駅」や都営新宿線「馬喰横山駅」「岩本町駅」、さら…

| 図面 |
階数 |
面積 |
賃料(共益費込) (坪単価) |
保証金/敷金 |
礼金 |
入居可能日 |
|
|
2階 |
G 27.85坪 (92.07m2) |
724,100 (26,000) |
無 |
無 |
2026/6 予定 |
|
|
4階 |
G 27.85坪 (92.07m2) |
724,100 (26,000) |
無 |
無 |
2026/6 予定 |
|
物件番号:004406
更新日:2026/4/15
千代田区岩本町1-4-3
【竣工】1990/3
【階建て】地上9F 、地下1F
|
【最寄駅】
|
【耐震】 |
新耐震 |
| 【基準階】 |
32.52坪 |
【エントランス】 |
平日のみ開放 |
| 【駐車場】 |
無し |
【エレベーター】 |
1基 |
複数路線が利用可能で交通アクセス良好です。グレーを基調としたシックな印象の外観です。ワンフロア・ワンテナントなので使い勝手の良い貸室です。

| 図面 |
階数 |
面積 |
賃料(共益費込) (坪単価) |
保証金/敷金 |
礼金 |
入居可能日 |
|
|
9階 |
G 21.96坪 (72.60m2) |
400,000 (18,215) |
6ヶ月 |
無 |
即日 |
|
物件番号:004530
更新日:2026/4/17
千代田区岩本町3-1-9
【竣工】1989/10
【階建て】地上9F 、地下1F
|
【最寄駅】
|
【耐震】 |
新耐震 |
| 【基準階】 |
31.78坪 |
【エントランス】 |
平日・土開放 |
| 【駐車場】 |
無し |
【エレベーター】 |
1基 |
NOVEL WARK Iwamotochoは、千代田区岩本町3-1-9に位置する利便性と快適性を兼ね備えた貸事務所です。都営新宿線「岩本町」駅より徒歩2分圏内にあり、神田平成通りに面した視認性の高い立地が魅力…

| 図面 |
階数 |
面積 |
賃料(共益費込) (坪単価) |
保証金/敷金 |
礼金 |
入居可能日 |
|
|
7階 |
G 31.78坪 (105.06m2) |
746,830 (23,500) |
4ヶ月 |
無 |
2026/7 下旬 |
|
|
8階 |
G 31.78坪 (105.06m2) |
746,830 (23,500) |
4ヶ月 |
無 |
2026/7 予定 |
|
物件番号:004717
更新日:2026/4/17
千代田区神田岩本町1
【竣工】1989/9(改修:2026)
【階建て】地上9F
|
【最寄駅】
|
【耐震】 |
新耐震 |
| 【基準階】 |
27.76坪 |
【エントランス】 |
平日のみ開放 |
| 【駐車場】 |
無し |
【エレベーター】 |
1基 |
秋葉原の駅近で、新しい働き方を叶えるオフィスをお探しなら「Biz Feel AKIHABARA」がおすすめです。複数路線が利用可能な優れたアクセス環境に加え、2026年1月にエントランスや共用部のリニュー…

| 図面 |
階数 |
面積 |
賃料(共益費込) (坪単価) |
保証金/敷金 |
礼金 |
入居可能日 |
|
|
2階 |
G 28.61坪 (94.58m2) |
1,000,000 (34,953) |
無 |
無 |
2026/5 予定 |
|
|
3階 |
G 28.61坪 (94.58m2) |
1,000,000 (34,953) |
無 |
無 |
2026/5 予定 |
|
|
4階 |
G 28.61坪 (94.58m2) |
1,000,000 (34,953) |
無 |
無 |
即日 |
|
|
6階 |
G 28.61坪 (94.58m2) |
1,000,000 (34,953) |
無 |
無 |
2026/6 下旬 |
|
物件番号:004733
更新日:2026/4/17
千代田区神田岩本町4-9
【竣工】1989/6(改修:2020)
【階建て】地上10F
|
【最寄駅】
|
【耐震】 |
新耐震 |
| 【基準階】 |
33.44坪 |
【エントランス】 |
全日開放(24h) |
| 【駐車場】 |
無し |
【エレベーター】 |
1基 |
トゥルム神田は、千代田区神田岩本町に位置する賃貸オフィスビルです。最寄りの都営新宿線・岩本町駅からは徒歩3分圏内と非常に近く、さらにJR山手線・中央線・京浜東北線および東京メトロ銀座線…

| 図面 |
階数 |
面積 |
賃料(共益費込) (坪単価) |
保証金/敷金 |
礼金 |
入居可能日 |
|
|
5階 |
G 33.44坪 (110.55m2) |
668,800 (20,000) |
5ヶ月 |
無 |
2026/8 中旬 |
|
物件番号:004504
更新日:2026/4/17
千代田区岩本町1-3-2
【竣工】1988/10
【階建て】地上9F
|
【最寄駅】
|
【耐震】 |
新耐震 |
| 【基準階】 |
40.00坪 |
【エントランス】 |
全日開放(24h) |
| 【駐車場】 |
無し |
【エレベーター】 |
2基 |
日伸ビルは、東京都千代田区岩本町1丁目に位置する1988年竣工の賃貸オフィスビルです。最大の魅力は、神田金物通りに面した視認性の高い立地と、複数の路線を利用できる抜群の交通アクセスにあり…

| 図面 |
階数 |
面積 |
賃料(共益費込) (坪単価) |
保証金/敷金 |
礼金 |
入居可能日 |
|
|
3階 |
G 40.00坪 (132.23m2) |
640,000 (16,000) |
8ヶ月 |
無 |
即日 |
|
物件番号:004469
更新日:2026/5/15
千代田区岩本町1-3-1
【竣工】1988/8
【階建て】地上10F
|
【最寄駅】
|
【耐震】 |
新耐震 |
| 【基準階】 |
33.08坪 |
【エントランス】 |
全日開放(制限有) |
| 【駐車場】 |
無し |
【エレベーター】 |
1基 |
ニュー中野ビルは、千代田区岩本町1-3-1にある物件です。徒歩5分圏内でJR総武線(快速)の新日本橋駅、東京メトロ日比谷線の小伝馬町駅、都営新宿線の岩本町駅、徒歩7分圏内でJR山手線・JR中央線・…

| 図面 |
階数 |
面積 |
賃料(共益費込) (坪単価) |
保証金/敷金 |
礼金 |
入居可能日 |
|
|
7階 |
G 33.07坪 (109.32m2) |
496,050 (15,000) |
10ヶ月 |
無 |
相談 |
|
物件番号:047710
更新日:2026/5/15
千代田区神田東松下町31-1
【竣工】1988/8(改修:2024)
【階建て】地上7F 、地下1F
|
【最寄駅】
|
【耐震】 |
新耐震 |
| 【基準階】 |
37.98坪 |
【エントランス】 |
平日のみ開放 |
| 【駐車場】 |
無し |
【エレベーター】 |
1基 |
U biz 神田千桜は、東京都千代田区神田東松下町31-1に位置し、交通アクセスの良さで魅力的な神田エリアにあります。1988年8月に竣工し、2005年に改修された地上7階、地下1階の鉄筋コンクリート造…

| 図面 |
階数 |
面積 |
賃料(共益費込) (坪単価) |
保証金/敷金 |
礼金 |
入居可能日 |
|
|
4階 |
G 38.03坪 (125.72m2) |
1,026,810 (27,000) |
6ヶ月 |
無 |
2026/7 入居前倒し可 |
|
物件番号:004955
更新日:2026/5/8
千代田区鍛冶町1-10-8
【竣工】1987/2
【階建て】地上8F
|
【最寄駅】
|
【耐震】 |
新耐震 |
| 【基準階】 |
27.40坪 |
【エントランス】 |
全日開放(制限有) |
| 【駐車場】 |
無し |
【エレベーター】 |
1基 |
石川第2LKビルは、神田エリアと新日本橋エリアを自在に行き来できる利便性の高さが大きな魅力のオフィスビルです。最寄りの新日本橋駅からは徒歩3分、神田駅へも徒歩5分という距離にあり、JR山手…

| 図面 |
階数 |
面積 |
賃料(共益費込) (坪単価) |
保証金/敷金 |
礼金 |
入居可能日 |
|
|
2階 |
G 27.40坪 (90.58m2) |
465,800 (17,000) |
8ヶ月 |
1.0ヶ月 |
2026/9 |
|
物件番号:004644
更新日:2026/4/24
千代田区岩本町3-5-2
【竣工】1985/5(改修:2019)
【階建て】地上9F
|
【最寄駅】
|
【耐震】 |
新耐震 |
| 【基準階】 |
47.94坪 |
【エントランス】 |
平日のみ開放 |
| 【駐車場】 |
無し |
【エレベーター】 |
1基 |
合人社東京秋葉原ビルは、千代田区岩本町に位置する賃貸オフィスビルで、靖国通りの角地立地が魅力的です。1985年竣工ながら新耐震基準を満たしており、安全性は確保されています。最寄り駅は都…

| 図面 |
階数 |
面積 |
賃料(共益費込) (坪単価) |
保証金/敷金 |
礼金 |
入居可能日 |
|
|
9階 |
G 27.76坪 (91.78m2) |
638,480 (23,000) |
6ヶ月 |
無 |
即日 |
|
物件番号:004334
更新日:2026/5/7
千代田区東神田1-15-2
【竣工】1984/12
【階建て】地上5F 、地下1F
|
【最寄駅】
|
【耐震】 |
新耐震 |
| 【基準階】 |
21.12坪 |
【エントランス】 |
全日開放(制限有) |
| 【駐車場】 |
無し |
【エレベーター】 |
1基 |
東京都千代田区東神田に位置する「倉内ビル」は、1984年12月に竣工した地上5階・地下1階建てのオフィスビルです。JR総武線快速「馬喰町駅」から徒歩1分という駅近の好立地で、通勤や来客時にも大…

| 図面 |
階数 |
面積 |
賃料(共益費込) (坪単価) |
保証金/敷金 |
礼金 |
入居可能日 |
|
|
1-2階 |
G 38.59坪 (127.57m2) |
482,375 (12,500) |
8ヶ月 |
無 |
相談 |
|
物件番号:004892
更新日:2026/5/15
千代田区神田北乗物町12
【竣工】1978/3(改修:1999)
【階建て】地上7F 、地下1F
|
【最寄駅】
|
【耐震】 |
旧耐震 |
| 【基準階】 |
31.02坪 |
【エントランス】 |
平日・土開放 |
| 【駐車場】 |
無し |
【エレベーター】 |
1基 |
大竹ビルは、東京都千代田区神田北乗物町に位置するオフィスビルで、アクセスの利便性が非常に高い点が魅力です。最寄り駅であるJR山手線、中央線、京浜東北線の神田駅からは徒歩3分と非常に近く…

| 図面 |
階数 |
面積 |
賃料(共益費込) (坪単価) |
保証金/敷金 |
礼金 |
入居可能日 |
|
|
3階 |
G 31.02坪 (102.55m2) |
480,810 (15,500) |
10ヶ月 |
無 |
相談 |
|
|
5階 |
G 31.02坪 (102.55m2) |
480,810 (15,500) |
10ヶ月 |
無 |
即日 |
|
物件番号:004825
更新日:2026/5/13
千代田区神田富山町22
【竣工】1975/12(改修:2019)
【階建て】地上9F
|
【最寄駅】
|
【耐震】 |
旧耐震 |
| 【基準階】 |
39.80坪 |
【エントランス】 |
全日開放(制限有) |
| 【駐車場】 |
無し |
【エレベーター】 |
1基 |
オフィス22ビルは、東京都千代田区神田富山町22に位置する地上9階建てのオフィスビルです。1975年12月に竣工した建物で、構造は耐震性に優れた鉄骨鉄筋コンクリート造(SRC造)で建てられていま…

| 図面 |
階数 |
面積 |
賃料(共益費込) (坪単価) |
保証金/敷金 |
礼金 |
入居可能日 |
|
|
NEW6階 |
G 39.80坪 (131.57m2) |
710,000 (17,839) |
6ヶ月 |
無 |
2026/8 上旬 |
|
物件番号:004859
更新日:2026/4/17
千代田区神田紺屋町20-1
【竣工】1973/1(改修:2008)
【階建て】地上7F
|
【最寄駅】
|
【耐震】 |
旧耐震 |
| 【基準階】 |
48.38坪 |
【エントランス】 |
平日のみ開放 |
| 【駐車場】 |
有り |
【エレベーター】 |
1基 |
複数路線が利用可能で交通アクセス良好な貸事務所です!角地の為、採光性が期待できます!トイレは室外で男女別になっています!

| 図面 |
階数 |
面積 |
賃料(共益費込) (坪単価) |
保証金/敷金 |
礼金 |
入居可能日 |
|
|
4階 |
G 23.97坪 (79.23m2) |
266,000 (11,097) |
6ヶ月 |
1.0ヶ月 |
即日 |
|
物件番号:004722
更新日:2026/5/7
千代田区神田岩本町1
【竣工】1966/1(改修:2016)
【階建て】地上9F 、地下1F
|
【最寄駅】
|
【耐震】 |
旧耐震+補強済 or 基準OK |
| 【基準階】 |
28.60坪 |
【エントランス】 |
平日・土開放 |
| 【駐車場】 |
無し |
【エレベーター】 |
1基 |
山上ビルは、東京都千代田区神田岩本町に位置する、アクセスの良さと快適な設備環境が魅力のオフィスビルです。都営新宿線「岩本町駅」から徒歩1分という非常に便利な立地に加え、日比谷線「秋葉…

| 図面 |
階数 |
面積 |
賃料(共益費込) (坪単価) |
保証金/敷金 |
礼金 |
入居可能日 |
|
|
8階 |
G 28.60坪 (94.55m2) |
486,200 (17,000) |
8ヶ月 |
無 |
2026/8/1 |
|
物件番号:069914
更新日:2026/5/1
千代田区鍛冶町1-6-17
【竣工】1963/12
【階建て】地上7F 、地下2F
|
【最寄駅】
|
【耐震】 |
旧耐震 |
| 【基準階】 |
66.42坪 |
【エントランス】 |
平日・土開放 |
| 【駐車場】 |
無し |
【エレベーター】 |
1基 |
合同ビルは、東京都千代田区鍛冶町1丁目に位置し、JR山手線・中央線・京浜東北線および東京メトロ銀座線の「神田駅」から徒歩2分という非常に便利な立地にあります。さらに、JR総武線快速の「新…

| 図面 |
階数 |
面積 |
賃料(共益費込) (坪単価) |
保証金/敷金 |
礼金 |
入居可能日 |
|
|
7階 |
G 34.60坪 (114.38m2) |
588,200 (17,000) |
6ヶ月 |
無 |
即日 |
|
非公開物件の賃料目安アイコン
8,000 円未満
8,000 円以上~1.0 万円未満
1.0 万以上~1.2 万円未満
1.2 万以上~1.4 万円未満
1.4 万以上~1.6 万円未満
1.6 万以上~2.0 万円未満
2.0 万以上~2.5 万円未満
2.5 万以上~3.0 万円未満
3.0 万円以上
未定
※取引態様:媒介
※フロア図面と現況が異なる場合は現況を優先いたします。
※貸室内部の写真・貸室からの景色に関しては、現在の募集フロアと異なる場合がございます。
※取引態様:媒介
その他、神田 東側・秋葉原 南側エリアの貸事務所をお探しの方はこちらをクリック

30坪の貸事務所、賃貸オフィス
30坪(20坪~40坪)の千代田区貸事務所
30坪(20坪~40坪)の中央区貸事務所
30坪(20坪~40坪)の港区貸事務所
30坪(20坪~40坪)の新宿区貸事務所
30坪(20坪~40坪)の渋谷区貸事務所
30坪(20坪~40坪)の台東区貸事務所
30坪(20坪~40坪)の品川区貸事務所
30坪(20坪~40坪)の豊島区貸事務所
30坪(20坪~40坪)の文京区貸事務所
30坪(20坪~40坪)の目黒区貸事務所
東京都内の30坪(20坪~40坪)の貸事務所
神田 東側・秋葉原 南側の関連貸事務所特集