新宿区の貸事務所、賃貸オフィス|30坪(20~40坪)
30坪の貸事務所を掲載しています。30坪前後の貸事務所を探す方に参考になるように20坪から40坪の範囲でオフィス物件を抽出しています。このページでは中でも新宿区のオフィスビルに限定して掲載しています。20坪~40坪とは、約10名~20名程度で利用する広さのオフィスになります。平米で換算すると約60㎡から130㎡程度の広さです。是非、オフィス移転のご参考にしてください。
貸事務所30坪|新宿区一覧
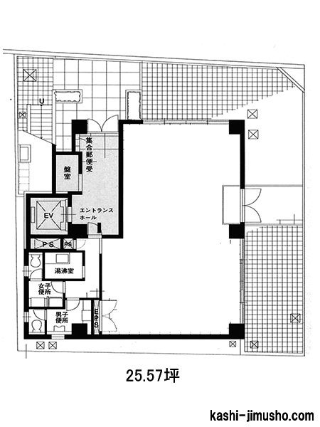
物件番号:081480
更新日:2026/2/24
新宿区荒木町23-4
【竣工】2023/8
【階建て】地上4F
|
【最寄駅】
|
【耐震】 |
新耐震 |
| 【基準階】 |
|
【エントランス】 |
|
| 【駐車場】 |
無し |
【エレベーター】 |
2基 |
Jビル四谷荒木町は、東京都新宿区荒木町23-4に所在する2023年8月竣工の新築オフィスビルです。都営新宿線「曙橋」駅から徒歩2分、東京メトロ丸ノ内線「四谷三丁目」駅から徒歩7分と、2路線が利用…

| 図面 |
階数 |
面積 |
賃料(共益費込) (坪単価) |
保証金/敷金 |
礼金 |
入居可能日 |
|
|
4階 |
N 29.00坪 (95.87m2) |
|
6ヶ月 |
無 |
相談 |
|
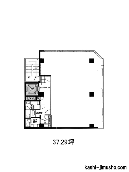
物件番号:080463
更新日:2026/2/5
新宿区四谷4-30-23
【竣工】2023/7
【階建て】地上11F
|
【最寄駅】
|
【耐震】 |
新耐震 |
| 【基準階】 |
56.52坪 |
【エントランス】 |
平日のみ開放 |
| 【駐車場】 |
有り |
【エレベーター】 |
1基 |
クロスシー新宿御苑前ビルは、2023年に竣工したバリューの高い賃貸オフィスビルです。新宿区四谷4丁目30番23号に位置し、東京メトロ丸ノ内線の新宿御苑前駅から徒歩わずか4分の好立地。さらに徒…

| 図面 |
階数 |
面積 |
賃料(共益費込) (坪単価) |
保証金/敷金 |
礼金 |
入居可能日 |
|
|
10階 |
G 37.05坪 (122.48m2) |
|
(未公開) |
無 |
即日 |
|
物件番号:080400
更新日:2026/3/5
新宿区高田馬場2-8-2
【竣工】2023/1
【階建て】地上12F 、地下1F
|
【最寄駅】
|
【耐震】 |
新耐震 |
| 【基準階】 |
33.42坪 |
【エントランス】 |
全日開放(24h) |
| 【駐車場】 |
無し |
【エレベーター】 |
1基 |
コレタス高田馬場は、東京都新宿区高田馬場2丁目8番2号に位置する、ガラス張りの外観が美しくスタイリッシュな賃貸オフィスビルです。周辺環境は非常に利便性が高く、徒歩4分圏内には東京メトロ…

| 図面 |
階数 |
面積 |
賃料(共益費込) (坪単価) |
保証金/敷金 |
礼金 |
入居可能日 |
|
|
4階 |
G 27.58坪 (91.19m2) |
680,000 (24,656) |
8ヶ月 |
1.0ヶ月 |
2026/6/1 |
|
|
7階 |
G 25.76坪 (85.17m2) |
630,000 (24,457) |
8ヶ月 |
1.0ヶ月 |
即日 |
|
|
9階 |
G 33.42坪 (110.47m2) |
800,000 (23,938) |
8ヶ月 |
1.0ヶ月 |
即日 |
|
物件番号:079647
更新日:2026/2/17
新宿区四谷1-3-33
【竣工】2022/10
【階建て】地上6F 、地下1F
|
【最寄駅】
|
【耐震】 |
新耐震 |
| 【基準階】 |
20.26坪 |
【エントランス】 |
全日開放(24h) |
| 【駐車場】 |
無し |
【エレベーター】 |
1基 |
白色を基調とした清潔感のある貸事務所です!高級感漂うエントランスが、来訪者をお迎えします!2022年竣工の新耐震基準を満たした賃貸オフィスです!

| 図面 |
階数 |
面積 |
賃料(共益費込) (坪単価) |
保証金/敷金 |
礼金 |
入居可能日 |
|
|
6階 |
G 20.26坪 (67.00m2) |
620,000 (30,602) |
無 |
無 |
相談 |
|
物件番号:072087
更新日:2026/2/18
新宿区新宿2-8-15
【竣工】2019/9
【階建て】地上12F
|
【最寄駅】
|
【耐震】 |
新耐震 |
| 【基準階】 |
46.06坪 |
【エントランス】 |
オートロック |
| 【駐車場】 |
無し |
【エレベーター】 |
1基 |
パークフロント新宿は、東京都新宿区新宿2丁目に位置するモダンなオフィスビルで、住所は「東京都新宿区新宿2-8-15」です。2019年9月に竣工したこのビルは、新耐震基準を満たした堅牢な構造(RC…

| 図面 |
階数 |
面積 |
賃料(共益費込) (坪単価) |
保証金/敷金 |
礼金 |
入居可能日 |
|
|
2階 |
G 27.45坪 (90.74m2) |
576,450 (21,000) |
6ヶ月 |
無 |
即日 |
|
物件番号:071307
更新日:2026/2/6
新宿区西新宿3-1-2
【竣工】2019/6
【階建て】地上10F 、地下1F
|
【最寄駅】
|
【耐震】 |
新耐震 |
| 【基準階】 |
22.06坪 |
【エントランス】 |
全日開放(24h) |
| 【駐車場】 |
無し |
【エレベーター】 |
1基 |
SKI西新宿は、新宿の西側エリアに位置する視認性の高い賃貸オフィスビルです。この物件は新宿区西新宿3-1-2に立地し、甲州街道に面した角地という好立地が魅力的です。最寄駅は、徒歩4分の都営大…

| 図面 |
階数 |
面積 |
賃料(共益費込) (坪単価) |
保証金/敷金 |
礼金 |
入居可能日 |
|
|
7階 |
G 22.06坪 (72.94m2) |
|
8ヶ月 |
1.0ヶ月 |
即日 |
|
物件番号:069141
更新日:2026/2/13
新宿区四谷2-11-15
【竣工】2018/3
【階建て】地上8F
|
【最寄駅】
|
【耐震】 |
新耐震 |
| 【基準階】 |
28.15坪 |
【エントランス】 |
全日開放(24h) |
| 【駐車場】 |
無し |
【エレベーター】 |
1基 |
四谷三丁目駅から徒歩4分!四ツ谷駅も徒歩圏内です!大通り沿いに面しているので視認性に優れています!ワンフロア・ワンテナントなので使い勝手良好です!

| 図面 |
階数 |
面積 |
賃料(共益費込) (坪単価) |
保証金/敷金 |
礼金 |
入居可能日 |
|
|
6階 |
G 28.15坪 (93.05m2) |
700,000 (24,866) |
4ヶ月 |
1.0ヶ月 |
相談 |
|
物件番号:058337
更新日:2026/2/9
新宿区新宿1-8-4
【竣工】2011/2
【階建て】地上9F 、地下1F
|
【最寄駅】
|
【耐震】 |
新耐震 |
| 【基準階】 |
60.00坪 |
【エントランス】 |
平日・土開放 |
| 【駐車場】 |
有り |
【エレベーター】 |
1基 |
近鉄新宿御苑ビルは、新宿区新宿1丁目に位置する賃貸オフィスビルで、2011年に竣工した新耐震基準を満たす安心の建物です。構造は鉄骨造・地上9階建て(地下1階)となっており、基準階は約60坪の…

| 図面 |
階数 |
面積 |
賃料(共益費込) (坪単価) |
保証金/敷金 |
礼金 |
入居可能日 |
|
|
1階 |
G 24.34坪 (80.46m2) |
|
12ヶ月 |
無 |
即日 |
|
|
3階 |
G 33.00坪 (109.09m2) |
|
12ヶ月 |
無 |
即日 |
|
物件番号:051228
更新日:2026/3/6
新宿区百人町1-11-19
【竣工】2008/3
【階建て】地上7F
|
【最寄駅】
|
【耐震】 |
新耐震 |
| 【基準階】 |
|
【エントランス】 |
|
| 【駐車場】 |
無し |
【エレベーター】 |
1基 |
新大久保駅徒歩1分の好立地!フットワーク抜群!大久保通りに面しており、大変便利な環境!2008年竣工、綺麗な建物!

| 図面 |
階数 |
面積 |
賃料(共益費込) (坪単価) |
保証金/敷金 |
礼金 |
入居可能日 |
|
|
2階 |
G 36.72坪 (121.39m2) |
600,000 (16,340) |
6ヶ月 |
1.0ヶ月 |
即日 |
|
物件番号:068498
更新日:2026/2/27
新宿区神楽坂3-5
【竣工】2008/3
【階建て】地上7F 、地下1F
|
【最寄駅】
|
【耐震】 |
新耐震 |
| 【基準階】 |
31.16坪 |
【エントランス】 |
全日開放(24h) |
| 【駐車場】 |
無し |
【エレベーター】 |
1基 |
飯田橋駅をはじめ複数路線が利用できる便利な立地!ランチには困らない周辺環境!ワンフロア・ワンテナントで使い勝手の良い貸室!

| 図面 |
階数 |
面積 |
賃料(共益費込) (坪単価) |
保証金/敷金 |
礼金 |
入居可能日 |
|
|
4階 |
G 31.16坪 (103.01m2) |
555,000 (17,812) |
6ヶ月 |
2.0ヶ月 |
相談 |
|
物件番号:083599
更新日:2026/3/2
新宿区西新宿7-19-17
【竣工】2001
【階建て】地上8F
|
【最寄駅】
|
【耐震】 |
新耐震 |
| 【基準階】 |
|
【エントランス】 |
オートロック |
| 【駐車場】 |
- |
【エレベーター】 |
未調査 |
入口がオートロックになっているので防犯対策も万全です!新耐震基準で耐震性もあります!ターミナル駅を利用できるのでアクセス性抜群です!

| 図面 |
階数 |
面積 |
賃料(共益費込) (坪単価) |
保証金/敷金 |
礼金 |
入居可能日 |
|
|
6-7階 |
G 21.34坪 (70.55m2) |
543,210 (25,455) |
1ヶ月 |
1.0ヶ月 |
即日 |
|
物件番号:033807
更新日:2026/2/16
新宿区四谷三栄町3-6-3
【竣工】1999/10
【階建て】地上4F
|
【最寄駅】
|
【耐震】 |
新耐震 |
| 【基準階】 |
23.23坪 |
【エントランス】 |
全日開放(24h) |
| 【駐車場】 |
無し |
【エレベーター】 |
1基 |
梅沢ビルは、東京都新宿区四谷三栄町に位置する、地上4階建てのオフィスビルです。1999年10月に竣工し、鉄骨造(S造)によって建築されており、新耐震基準に適合した設計がなされています。これ…

| 図面 |
階数 |
面積 |
賃料(共益費込) (坪単価) |
保証金/敷金 |
礼金 |
入居可能日 |
|
|
4階 |
G 23.23坪 (76.79m2) |
336,835 (14,500) |
6ヶ月 |
1.0ヶ月 |
即日 |
|
物件番号:034914
更新日:2026/2/5
新宿区高田馬場1-34-1
【竣工】1997/9
【階建て】地上7F 、地下1F
|
【最寄駅】
|
【耐震】 |
新耐震 |
| 【基準階】 |
32.07坪 |
【エントランス】 |
|
| 【駐車場】 |
無し |
【エレベーター】 |
1基 |
JR山手線・東西線の高田馬場駅から徒歩1分の好立地です。つつじ通りに面した角地で視認性にも優れています。ワンフロア・ワンテナント、男女別トイレ完備の貸室です。

| 図面 |
階数 |
面積 |
賃料(共益費込) (坪単価) |
保証金/敷金 |
礼金 |
入居可能日 |
|
|
3階 |
G 32.07坪 (106.00m2) |
529,155 (16,500) |
5ヶ月 |
無 |
2026/4/1 |
|
物件番号:034448
更新日:2026/2/19
新宿区天神町8
【竣工】1996/1
【階建て】地上9F 、地下1F
|
【最寄駅】
|
【耐震】 |
新耐震 |
| 【基準階】 |
30.64坪 |
【エントランス】 |
オートロック |
| 【駐車場】 |
有り |
【エレベーター】 |
1基 |
神楽坂Uビルは、東京都新宿区天神町に位置するオフィスビルです。1996年1月に竣工したSRC(鉄骨鉄筋コンクリート)造の地上9階・地下1階建てで、新耐震基準をクリアした堅牢な設計となっています…

| 図面 |
階数 |
面積 |
賃料(共益費込) (坪単価) |
保証金/敷金 |
礼金 |
入居可能日 |
|
|
7階 |
G 23.46坪 (77.55m2) |
351,900 (15,000) |
5ヶ月 |
無 |
即日 |
|
物件番号:037241
更新日:2026/2/16
新宿区四谷4-3-29
【竣工】1995/11
【階建て】地上9F
|
【最寄駅】
|
【耐震】 |
新耐震 |
| 【基準階】 |
27.79坪 |
【エントランス】 |
全日開放(24h) |
| 【駐車場】 |
無し |
【エレベーター】 |
1基 |
伸治ビルは、東京都新宿区四谷4-3-29に位置する地上9階建てのオフィスビルです。1995年11月に竣工し、新耐震基準に適合した安全性の高い建物です。構造はS造(鉄骨造)を採用しており、強度と耐…

| 図面 |
階数 |
面積 |
賃料(共益費込) (坪単価) |
保証金/敷金 |
礼金 |
入居可能日 |
|
|
9階 |
G 27.79坪 (91.87m2) |
389,060 (14,000) |
6ヶ月 |
1.0ヶ月 |
即日 |
|
物件番号:032329
更新日:2026/2/16
新宿区西新宿7-15-1
【竣工】1995/7
【階建て】地上8F
|
【最寄駅】
|
【耐震】 |
新耐震 |
| 【基準階】 |
43.52坪 |
【エントランス】 |
オートロック |
| 【駐車場】 |
無し |
【エレベーター】 |
1基 |
アパライトビルは、新宿区西新宿7-15-1に位置する賃貸オフィスビルです。最寄駅は都営大江戸線「新宿西口駅」で、徒歩わずか2分という利便性の高い立地にあります。さらに、徒歩3分で西武新宿線…

| 図面 |
階数 |
面積 |
賃料(共益費込) (坪単価) |
保証金/敷金 |
礼金 |
入居可能日 |
|
|
3階 |
G 20.92坪 (69.16m2) |
481,160 (23,000) |
10ヶ月 |
無 |
2026/3/1 |
|
物件番号:032845
更新日:2026/3/2
新宿区新宿6-27-45
【竣工】1995/4(改修:2015)
【階建て】地上9F
|
【最寄駅】
|
【耐震】 |
新耐震 |
| 【基準階】 |
27.33坪 |
【エントランス】 |
平日のみ開放 |
| 【駐車場】 |
有り |
【エレベーター】 |
1基 |
東新宿駅から徒歩1分の駅近賃貸オフィスビルです。東京都新宿区新宿6に位置するTHE KINDAI 20 SHINJUKUは、東京メトロ副都心線と都営大江戸線の東新宿駅から徒歩1分という理想的な立地にあります…

| 図面 |
階数 |
面積 |
賃料(共益費込) (坪単価) |
保証金/敷金 |
礼金 |
入居可能日 |
|
|
4階 |
G 27.33坪 (90.34m2) |
560,265 (20,500) |
12ヶ月 |
1.0ヶ月 |
2026/5 中旬 |
|
物件番号:032295
更新日:2026/3/4
新宿区西新宿6-5-1
【竣工】1995/1
【階建て】地上44F 、地下4F
|
【最寄駅】
|
【耐震】 |
新耐震 |
| 【基準階】 |
784.00坪 |
【エントランス】 |
全日開放(制限有) |
| 【駐車場】 |
有り |
【エレベーター】 |
32基 |
新宿アイランドタワーは、新宿区西新宿6-5-1に所在する超高層オフィスビルです。東京メトロ丸ノ内線の西新宿駅に直結しており、雨の日でも濡れずにアクセスできる抜群の立地が大きな魅力です。ま…

| 図面 |
階数 |
面積 |
賃料(共益費込) (坪単価) |
保証金/敷金 |
礼金 |
入居可能日 |
|
|
NEW6階 |
N 38.25坪 (126.46m2) |
|
(未公開) |
(未公開) |
2026/11 |
|
物件番号:032382
更新日:2026/2/9
新宿区西新宿6-21-1
【竣工】1994/10
【階建て】地上30F 、地下4F
|
【最寄駅】
|
【耐震】 |
新耐震 |
| 【基準階】 |
140.00坪 |
【エントランス】 |
平日・土開放 |
| 【駐車場】 |
有り |
【エレベーター】 |
12基 |
アイタウン・プラザは、東京都新宿区西新宿6-21-1に位置する超高層のハイグレードオフィスビルです。1994年10月に竣工した本物件は、地上30階・地下4階建てというスケールを誇り、構造は鉄骨鉄筋…

| 図面 |
階数 |
面積 |
賃料(共益費込) (坪単価) |
保証金/敷金 |
礼金 |
入居可能日 |
|
|
3階 |
G 38.14坪 (126.10m2) |
|
5ヶ月 |
1.0ヶ月 |
2026/3/3 |
|
物件番号:032276
更新日:2026/2/24
新宿区西新宿3-5-1
【竣工】1994/4(改修:2022)
【階建て】地上10F 、地下2F
|
【最寄駅】
|
【耐震】 |
新耐震 |
| 【基準階】 |
72.12坪 |
【エントランス】 |
全日開放(制限有) |
| 【駐車場】 |
無し |
【エレベーター】 |
2基 |
新宿区西新宿3-5-1にある、新宿セントランドビルです。最寄り駅は、都営大江戸線の都庁前駅です。徒歩3分圏内で、アクセス可能な好立地です。周辺には、東京都庁や新宿中央公園がございます。公…

| 図面 |
階数 |
面積 |
賃料(共益費込) (坪単価) |
保証金/敷金 |
礼金 |
入居可能日 |
|
|
4階 |
G 29.03坪 (95.97m2) |
|
(未公開) |
無 |
2026/4 |
|
|
4階 |
G 37.83坪 (125.06m2) |
|
(未公開) |
無 |
2026/4 |
|
物件番号:067332
更新日:2026/3/4
新宿区左門町6-17
【竣工】1994/3
【階建て】地上7F 、地下1F
|
【最寄駅】
|
【耐震】 |
新耐震 |
| 【基準階】 |
18.57坪 |
【エントランス】 |
|
| 【駐車場】 |
無し |
【エレベーター】 |
1基 |
SEN四谷ビルは、東京都新宿区左門町6-17に位置する地上7階・地下1階建てのオフィスビルです。竣工は1994年3月で、堅牢なRC造(鉄筋コンクリート造)にて建てられており、新耐震基準に適合した設…

| 図面 |
階数 |
面積 |
賃料(共益費込) (坪単価) |
保証金/敷金 |
礼金 |
入居可能日 |
|
|
3階 |
G 24.05坪 (79.50m2) |
360,750 (15,000) |
6ヶ月 |
1.0ヶ月 |
即日 |
|
物件番号:033633
更新日:2026/2/25
新宿区四谷3-13-11
【竣工】1994/3
【階建て】地上9F 、地下1F
|
【最寄駅】
|
【耐震】 |
新耐震 |
| 【基準階】 |
20.90坪 |
【エントランス】 |
全日開放(24h) |
| 【駐車場】 |
無し |
【エレベーター】 |
1基 |
Biz Feel 四谷三丁目は、東京都新宿区四谷3丁目に位置する地上9階・地下1階建てのオフィスビルです。1994年3月に竣工し、鉄骨造(S造)で建てられています。新耐震基準に対応しており、地震など…

| 図面 |
階数 |
面積 |
賃料(共益費込) (坪単価) |
保証金/敷金 |
礼金 |
入居可能日 |
|
|
2階 |
G 20.18坪 (66.73m2) |
605,400 (30,000) |
無 |
無 |
2026/4 上旬 |
|
物件番号:033636
更新日:2026/2/9
新宿区四谷4-29-9
【竣工】1994/3
【階建て】地上9F 、地下1F
|
【最寄駅】
|
【耐震】 |
新耐震 |
| 【基準階】 |
29.20坪 |
【エントランス】 |
全日開放(制限有) |
| 【駐車場】 |
無し |
【エレベーター】 |
1基 |
しんまつビルは、東京都新宿区四谷四丁目29-9に位置する、地上9階・地下1階建てのオフィスビルです。1994年3月に竣工した本物件は、SRC造(鉄骨鉄筋コンクリート造)を採用しており、堅牢性と耐…

| 図面 |
階数 |
面積 |
賃料(共益費込) (坪単価) |
保証金/敷金 |
礼金 |
入居可能日 |
|
|
3階 |
G 29.20坪 (96.53m2) |
379,600 (13,000) |
4ヶ月 |
無 |
即日 |
|
物件番号:039068
更新日:2026/2/19
新宿区新宿1-14-5
【竣工】1994/2
【階建て】地上10F
|
【最寄駅】
|
【耐震】 |
新耐震 |
| 【基準階】 |
60.52坪 |
【エントランス】 |
全日開放(制限有) |
| 【駐車場】 |
無し |
【エレベーター】 |
1基 |
新宿KMビルは、東京都新宿区新宿1丁目14-5に位置する賃貸オフィスビルです。最寄り駅は東京メトロ丸ノ内線・新宿御苑前駅で、駅から徒歩1分という極めて利便性の高い立地にあります。さらに、東…

| 図面 |
階数 |
面積 |
賃料(共益費込) (坪単価) |
保証金/敷金 |
礼金 |
入居可能日 |
|
|
6階 |
G 35.84坪 (118.50m2) |
645,120 (18,000) |
6ヶ月 |
1.0ヶ月 |
即日 |
|
物件番号:083751
更新日:2026/2/25
新宿区下落合3-16-14
【竣工】1994/1
【階建て】地上7F
|
【最寄駅】
|
【耐震】 |
新耐震 |
| 【基準階】 |
|
【エントランス】 |
全日開放(制限有) |
| 【駐車場】 |
無し |
【エレベーター】 |
1基 |
大通り沿いの角ビルで二面採光が取れます!新耐震基準で耐震性もあります!山手線が利用できるのでアクセス性良好です!

| 図面 |
階数 |
面積 |
賃料(共益費込) (坪単価) |
保証金/敷金 |
礼金 |
入居可能日 |
|
|
1階 |
G 22.78坪 (75.32m2) |
433,182 (19,016) |
3,466,000 (152,151) |
1.0ヶ月 |
相談 |
|
物件番号:035027
更新日:2026/2/10
新宿区高田馬場3-3-2
【竣工】1993/6
【階建て】地上9F
|
【最寄駅】
|
【耐震】 |
新耐震 |
| 【基準階】 |
32.58坪 |
【エントランス】 |
全日開放(24h) |
| 【駐車場】 |
無し |
【エレベーター】 |
1基 |
複数路線が利用可能で交通アクセス良好です。シンプルな形状でレイアウトのしやすい貸室です。ワンフロア・ワンテナントなので使い勝手抜群です。

| 図面 |
階数 |
面積 |
賃料(共益費込) (坪単価) |
保証金/敷金 |
礼金 |
入居可能日 |
|
|
8階 |
G 32.57坪 (107.70m2) |
522,000 (16,027) |
4ヶ月 |
2.0ヶ月 |
2026/3 中旬 |
|
物件番号:032275
更新日:2026/2/10
新宿区西新宿3-2-7
【竣工】1993/5
【階建て】地上11F 、地下4F
|
【最寄駅】
|
【耐震】 |
新耐震 |
| 【基準階】 |
142.38坪 |
【エントランス】 |
全日開放(制限有) |
| 【駐車場】 |
有り |
【エレベーター】 |
3基 |
KDX新宿ビルは、東京都新宿区西新宿3に位置するオフィスビルで、ビジネスパーソンにとって非常に便利な環境が整っています。1993年に竣工し、地上11階、地下4階構造のこのビルは、鉄骨造(S造)…

| 図面 |
階数 |
面積 |
賃料(共益費込) (坪単価) |
保証金/敷金 |
礼金 |
入居可能日 |
|
|
1階 |
G 38.52坪 (127.34m2) |
|
12ヶ月 |
無 |
2026/4/9 |
|
|
10階 |
N 30.42坪 (99.17m2) |
|
12ヶ月 |
無 |
2026/7/1 |
|
物件番号:035815
更新日:2026/3/2
新宿区喜久井町65
【竣工】1993/4
【階建て】地上6F
|
【最寄駅】
|
【耐震】 |
新耐震 |
| 【基準階】 |
|
【エントランス】 |
|
| 【駐車場】 |
無し |
【エレベーター】 |
1基 |
東西線の早稲田駅から徒歩1分とアクセス良好です!管理の行き届いた清潔感のあるエントランスです!室内に男女別のトイレが設置されています!

| 図面 |
階数 |
面積 |
賃料(共益費込) (坪単価) |
保証金/敷金 |
礼金 |
入居可能日 |
|
|
3階 |
G 26.77坪 (88.49m2) |
340,000 (12,701) |
5ヶ月 |
1.0ヶ月 |
2026/5 予定 |
|
物件番号:035526
更新日:2026/3/4
新宿区西新宿7-23-9
【竣工】1993/3
【階建て】地上4F
|
【最寄駅】
|
【耐震】 |
新耐震 |
| 【基準階】 |
37.46坪 |
【エントランス】 |
|
| 【駐車場】 |
有り |
【エレベーター】 |
1基 |
白を基調とした清潔感のある外観です!1993年竣工の新耐震基準を満たした物件です!ワンフロア・ワンテナントで使い勝手良好です!

| 図面 |
階数 |
面積 |
賃料(共益費込) (坪単価) |
保証金/敷金 |
礼金 |
入居可能日 |
|
|
2階 |
G 37.46坪 (123.84m2) |
548,200 (14,634) |
6ヶ月 |
無 |
即日 |
|
物件番号:032325
更新日:2026/3/2
新宿区西新宿8-14-24
【竣工】1993/2
【階建て】地上8F 、地下1F
|
【最寄駅】
|
【耐震】 |
新耐震 |
| 【基準階】 |
298.00坪 |
【エントランス】 |
平日のみ開放 |
| 【駐車場】 |
有り |
【エレベーター】 |
4基 |
西新宿KFビルは、新宿区西新宿8丁目に位置する賃貸オフィスビルです。最寄駅は東京メトロ丸ノ内線「西新宿駅」で、徒歩3分の距離にあり、アクセスの利便性が高い立地となっています。また、都営…

| 図面 |
階数 |
面積 |
賃料(共益費込) (坪単価) |
保証金/敷金 |
礼金 |
入居可能日 |
|
|
7-8階 |
G 29.62坪 (97.92m2) |
|
12ヶ月 |
無 |
即日 |
|
非公開物件の賃料目安アイコン
8,000 円未満
8,000 円以上~1.0 万円未満
1.0 万以上~1.2 万円未満
1.2 万以上~1.4 万円未満
1.4 万以上~1.6 万円未満
1.6 万以上~2.0 万円未満
2.0 万以上~2.5 万円未満
2.5 万以上~3.0 万円未満
3.0 万円以上
未定
※取引態様:媒介
※フロア図面と現況が異なる場合は現況を優先いたします。
※貸室内部の写真・貸室からの景色に関しては、現在の募集フロアと異なる場合がございます。
※取引態様:媒介
その他、新宿区の貸事務所をお探しの方はこちらをクリック

30坪貸事務所|新宿区エリア
30坪(20坪~40坪)の新宿区貸事務所
東京都内の30坪(20坪~40坪)の貸事務所
新宿区の坪数特集
新宿区に関連する貸事務所検索ページ