30坪(20坪~40坪)の貸事務所(目黒)(20~40坪)
30坪の貸事務所を掲載しています。30坪前後の貸事務所を探す方に参考になるように20坪から40坪の範囲でオフィス物件を抽出しています。このページでは中でも目黒区にある目黒エリアのオフィスビルに限定して掲載しています。20坪~40坪とは、約10名~20名程度で利用する広さのオフィスになります。平米で換算すると約60㎡から130㎡程度の広さです。是非、オフィス移転のご参考にしてください。
30坪(20坪~40坪)の貸事務所(目黒)
物件番号:028096
更新日:2026/4/17
目黒区下目黒2-2-10
【竣工】2023/6
【階建て】地上4F
|
【最寄駅】
|
【耐震】 |
新耐震 |
| 【基準階】 |
48.67坪 |
【エントランス】 |
オートロック |
| 【駐車場】 |
無し |
【エレベーター】 |
1基 |
複数路線が利用可能で交通アクセス良好です。デザイン性の高いおしゃれな外観が目を惹きます。トイレは室内で男女別にわかれています。

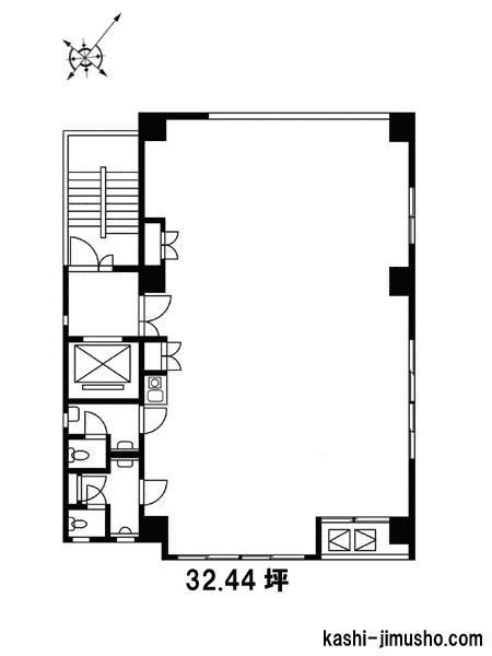
| 図面 |
階数 |
面積 |
賃料(共益費込) (坪単価) |
保証金/敷金 |
礼金 |
入居可能日 |
|
|
3階 |
G 23.33坪 (80.49m2) |
|
8ヶ月 |
無 |
2026/9 上旬 |
|
|
4階 |
G 24.33坪 (80.43m2) |
|
6ヶ月 |
無 |
即日 |
|
物件番号:028342
更新日:2026/4/9
目黒区目黒1-24-18
【竣工】1989/7
【階建て】地上10F
|
【最寄駅】
|
【耐震】 |
新耐震 |
| 【基準階】 |
23.29坪 |
【エントランス】 |
全日開放(24h) |
| 【駐車場】 |
無し |
【エレベーター】 |
1基 |
複数路線が乗り入れる便利な目黒駅から5分のオフィスです!大通り沿いで角地!視認性・採光性抜群です!ワンフロア・ワンテナントで使い勝手良好です!

| 図面 |
階数 |
面積 |
賃料(共益費込) (坪単価) |
保証金/敷金 |
礼金 |
入居可能日 |
|
|
8階 |
G 23.29坪 (76.88m2) |
450,000 (19,322) |
10ヶ月 |
1.0ヶ月 |
2026/5 中旬 |
|
物件番号:083443
更新日:2026/4/10
目黒区目黒1-3-13
【竣工】1971/3
【階建て】地上5F
|
【最寄駅】
|
【耐震】 |
旧耐震 |
| 【基準階】 |
8.70坪 |
【エントランス】 |
全日開放(24h) |
| 【駐車場】 |
無し |
【エレベーター】 |
無 |
| 図面 |
階数 |
面積 |
賃料(共益費込) (坪単価) |
保証金/敷金 |
礼金 |
入居可能日 |
|
|
3-5階 |
G 22.08坪 (73.00m2) |
1,500,000 (67,935) |
1ヶ月 |
1.0ヶ月 |
相談 |
|
非公開物件の賃料目安アイコン
8,000 円未満
8,000 円以上~1.0 万円未満
1.0 万以上~1.2 万円未満
1.2 万以上~1.4 万円未満
1.4 万以上~1.6 万円未満
1.6 万以上~2.0 万円未満
2.0 万以上~2.5 万円未満
2.5 万以上~3.0 万円未満
3.0 万円以上
未定
※取引態様:媒介
※フロア図面と現況が異なる場合は現況を優先いたします。
※貸室内部の写真・貸室からの景色に関しては、現在の募集フロアと異なる場合がございます。
※取引態様:媒介
その他、目黒エリアの貸事務所をお探しの方はこちらをクリック

30坪の貸事務所、賃貸オフィス
30坪(20坪~40坪)の千代田区貸事務所
30坪(20坪~40坪)の中央区貸事務所
30坪(20坪~40坪)の港区貸事務所
30坪(20坪~40坪)の新宿区貸事務所
30坪(20坪~40坪)の渋谷区貸事務所
30坪(20坪~40坪)の台東区貸事務所
30坪(20坪~40坪)の品川区貸事務所
30坪(20坪~40坪)の豊島区貸事務所
30坪(20坪~40坪)の文京区貸事務所
30坪(20坪~40坪)の目黒区貸事務所
東京都内の30坪(20坪~40坪)の貸事務所
目黒エリアの関連特集