30坪(20坪~40坪)の貸事務所(浜松町・芝大門)(20~40坪)
30坪の貸事務所を掲載しています。30坪前後の貸事務所を探す方に参考になるように20坪から40坪の範囲でオフィス物件を抽出しています。このページでは中でも港区にある浜松町・芝大門エリアのオフィスビルに限定して掲載しています。20坪~40坪とは、約10名~20名程度で利用する広さのオフィスになります。平米で換算すると約60㎡から130㎡程度の広さです。是非、オフィス移転のご参考にしてください。
30坪(20坪~40坪)の貸事務所(浜松町・芝大門)
物件番号:083219
更新日:2025/12/9
港区浜松町1-16-1
【竣工】2025/8
【階建て】地上12F
|
【最寄駅】
|
【耐震】 |
新耐震 |
| 【基準階】 |
41.90坪 |
【エントランス】 |
オートロック |
| 【駐車場】 |
有り |
【エレベーター】 |
1基 |
「NCO浜松町」は、東京都港区浜松町エリアに2025年8月竣工予定のオフィスビルです。JR山手線・京浜東北線「浜松町駅」から徒歩3分、また都営浅草線・大江戸線「大門駅」からも徒歩3分と、複数路…

| 図面 |
階数 |
面積 |
賃料(共益費込) (坪単価) |
保証金/敷金 |
礼金 |
入居可能日 |
|
|
2階 |
G 33.80坪 (111.74m2) |
980,200 (29,000) |
7,841,600 (8ヶ月) |
無 |
即日 |
|
物件番号:082725
更新日:2025/11/14
港区芝公園2-9-3
【竣工】2025/4
【階建て】地上5F
|
【最寄駅】
|
【耐震】 |
新耐震 |
| 【基準階】 |
41.92坪 |
【エントランス】 |
オートロック |
| 【駐車場】 |
無し |
【エレベーター】 |
1基 |
芝ファールビルディングは、2025年4月に竣工したばかりのオフィスビルで、東京都港区芝公園二丁目に位置します。最寄りの都営三田線「芝公園駅」からは徒歩4分、都営浅草線および大江戸線の「大…

| 図面 |
階数 |
面積 |
賃料(共益費込) (坪単価) |
保証金/敷金 |
礼金 |
入居可能日 |
|
|
3階 |
G 20.28坪 (67.06m2) |
507,000 (25,000) |
5,070,000 (10ヶ月) |
1.0ヶ月 |
即日 |
|
|
4階 |
G 20.28坪 (67.06m2) |
507,000 (25,000) |
5,070,000 (10ヶ月) |
1.0ヶ月 |
即日 |
|
物件番号:081955
更新日:2025/12/12
港区芝大門1-2-8
【竣工】2024/3
【階建て】地上9F
|
【最寄駅】
|
【耐震】 |
新耐震 |
| 【基準階】 |
20.13坪 |
【エントランス】 |
オートロック |
| 【駐車場】 |
無し |
【エレベーター】 |
1基 |
NOVEL WORK Shibadaimonは、東京都港区芝大門に位置する最新のオフィスビルです。地上9階建ての鉄筋コンクリート造(RC造)で建てられ、新耐震基準に適合した安全性の高い設計となっています。最…

| 図面 |
階数 |
面積 |
賃料(共益費込) (坪単価) |
保証金/敷金 |
礼金 |
入居可能日 |
|
|
2階 |
G 20.00坪 (66.14m2) |
680,000 (34,000) |
無 |
無 |
即日 |
|
物件番号:079266
更新日:2025/11/27
港区芝大門2-3-7
【竣工】2022/5
【階建て】地上11F
|
【最寄駅】
|
【耐震】 |
新耐震 |
| 【基準階】 |
20.62坪 |
【エントランス】 |
オートロック |
| 【駐車場】 |
有り |
【エレベーター】 |
1基 |
港区芝大門に位置するVILLA 芝大門は、落ち着いたグレーを基調としたシックな印象の賃貸オフィスビルです。最寄りの大門駅(都営浅草線・都営大江戸線)から徒歩わずか2分の好立地にあり、徒歩7分…

| 図面 |
階数 |
面積 |
賃料(共益費込) (坪単価) |
保証金/敷金 |
礼金 |
入居可能日 |
|
|
9階 |
G 20.62坪 (68.15m2) |
577,360 (28,000) |
3,464,160 (6ヶ月) |
無 |
相談 |
|
物件番号:070069
更新日:2025/12/1
港区浜松町2-7-13
【竣工】2019/1
【階建て】地上10F
|
【最寄駅】
|
【耐震】 |
新耐震 |
| 【基準階】 |
17.69坪 |
【エントランス】 |
|
| 【駐車場】 |
無し |
【エレベーター】 |
1基 |
再開発が進むエリアに位置する建物です!シックなデザインのグレード感溢れる外観です!高級感溢れるエントランスが来訪者をお迎えします!

| 図面 |
階数 |
面積 |
賃料(共益費込) (坪単価) |
保証金/敷金 |
礼金 |
入居可能日 |
|
|
4-5階 |
G 35.38坪 (116.96m2) |
813,740 (23,000) |
4,882,440 (6ヶ月) |
無 |
相談 |
|
物件番号:069829
更新日:2025/11/25
港区海岸3-15-15
【竣工】2007/2
【階建て】地上9F
|
【最寄駅】
|
【耐震】 |
新耐震 |
| 【基準階】 |
|
【エントランス】 |
オートロック |
| 【駐車場】 |
有り |
【エレベーター】 |
1基 |
港区海岸に位置する「ソルク海岸」は、東京湾と運河のほど近くに建つ、落ち着いた雰囲気のあるオフィスビルです。最寄り駅はゆりかもめ線の芝浦ふ頭駅から徒歩5分、さらにJR山手線および京浜東北…

| 図面 |
階数 |
面積 |
賃料(共益費込) (坪単価) |
保証金/敷金 |
礼金 |
入居可能日 |
|
|
4階 |
G 21.38坪 (70.68m2) |
247,000 (11,553) |
690,000 (3ヶ月) |
1.0ヶ月 |
即日 |
|
物件番号:015164
更新日:2025/11/12
港区芝大門1-11-4
【竣工】1998/3
【階建て】地上4F
|
【最寄駅】
|
【耐震】 |
新耐震 |
| 【基準階】 |
33.70坪 |
【エントランス】 |
全日開放(制限有) |
| 【駐車場】 |
無し |
【エレベーター】 |
1基 |
複数路線が利用可能、駅まで6分以内の便利な立地です!室内の形が良くレイアウトの組みやすいオフィスです!ワンフロア・ワンテナントで使い勝手良好です!

| 図面 |
階数 |
面積 |
賃料(共益費込) (坪単価) |
保証金/敷金 |
礼金 |
入居可能日 |
|
|
3階 |
G 37.36坪 (123.50m2) |
597,760 (16,000) |
3,586,560 (6ヶ月) |
無 |
即日 |
|
物件番号:014982
更新日:2025/12/4
港区芝公園1-8-21
【竣工】1994/9
【階建て】地上9F 、地下1F
|
【最寄駅】
|
【耐震】 |
新耐震 |
| 【基準階】 |
60.82坪 |
【エントランス】 |
平日のみ開放 |
| 【駐車場】 |
有り |
【エレベーター】 |
2基 |
芝公園リッジビルは、東京都港区芝公園1-8-21に位置する魅力的なオフィスビルです。立地の良さと充実した機能が特徴で、ビジネス環境として理想的な条件を備えています。最寄り駅は都営三田線の…

| 図面 |
階数 |
面積 |
賃料(共益費込) (坪単価) |
保証金/敷金 |
礼金 |
入居可能日 |
|
|
1階 |
G 23.82坪 (78.74m2) |
571,680 (24,000) |
6,860,160 (12ヶ月) |
1.0ヶ月 |
2026/3 上旬 |
|
物件番号:015368
更新日:2025/11/27
港区浜松町2-2-11
【竣工】1993/3
【階建て】地上9F 、地下1F
|
【最寄駅】
|
【耐震】 |
新耐震 |
| 【基準階】 |
22.10坪 |
【エントランス】 |
全日開放(制限有) |
| 【駐車場】 |
無し |
【エレベーター】 |
1基 |
広瀬ビルは、東京都港区浜松町2丁目に位置する、利便性の高いオフィスビルです。最寄り駅はJR浜松町駅で、山手線・京浜東北線・東京モノレール線の3路線が利用可能。駅からは徒歩2分という近さで…

| 図面 |
階数 |
面積 |
賃料(共益費込) (坪単価) |
保証金/敷金 |
礼金 |
入居可能日 |
|
|
2階 |
G 22.10坪 (73.05m2) |
397,800 (18,000) |
3,978,000 (10ヶ月) |
無 |
相談 |
|
物件番号:061076
更新日:2025/12/8
港区芝公園1-3-5
【竣工】1990/7
【階建て】地上6F 、地下1F
|
【最寄駅】
|
【耐震】 |
新耐震 |
| 【基準階】 |
21.07坪 |
【エントランス】 |
平日のみ開放 |
| 【駐車場】 |
有り |
【エレベーター】 |
1基 |
ACN芝公園ビルは、東京都港区芝公園1丁目に位置するオフィスビルで、交通利便性と快適なオフィス環境が特徴です。最寄り駅は都営三田線「御成門駅」から徒歩2分、都営浅草線・大江戸線「大門駅」…

| 図面 |
階数 |
面積 |
賃料(共益費込) (坪単価) |
保証金/敷金 |
礼金 |
入居可能日 |
|
|
3階 |
G 21.07坪 (69.67m2) |
|
4ヶ月 |
無 |
即日 |
|
物件番号:015077
更新日:2025/12/10
港区芝大門1-4-9
【竣工】1990/3
【階建て】地上9F
|
【最寄駅】
|
【耐震】 |
新耐震 |
| 【基準階】 |
26.73坪 |
【エントランス】 |
平日・土開放 |
| 【駐車場】 |
無し |
【エレベーター】 |
1基 |
大門駅より徒歩1分の快適なアクセス!JR浜松町駅も近くアクセス可能です!エレベーターや水周りと執務スペースが区切られた使いやすい間取りです!ワンフロア・ワンテナントの独立性が高い貸室で…

| 図面 |
階数 |
面積 |
賃料(共益費込) (坪単価) |
保証金/敷金 |
礼金 |
入居可能日 |
|
|
4階 |
G 26.73坪 (88.36m2) |
|
12ヶ月 |
無 |
2026/1/22 |
|
物件番号:015142
更新日:2025/11/20
港区芝大門1-1-15
【竣工】1990/3
【階建て】地上6F
|
【最寄駅】
|
【耐震】 |
新耐震 |
| 【基準階】 |
40.00坪 |
【エントランス】 |
平日・土開放 |
| 【駐車場】 |
無し |
【エレベーター】 |
1基 |
芝藤ビルは、東京都港区芝大門1-1-15に位置する、利便性と快適性を兼ね備えたオフィスビルです。このビルは、都営三田線の御成門駅から徒歩3分、都営浅草線と都営大江戸線の大門駅からは徒歩4分…

| 図面 |
階数 |
面積 |
賃料(共益費込) (坪単価) |
保証金/敷金 |
礼金 |
入居可能日 |
|
|
1階 |
G 33.00坪 (109.09m2) |
693,000 (21,000) |
5,544,000 (8ヶ月) |
無 |
即日 |
|
|
3階 |
G 40.00坪 (132.24m2) |
640,000 (16,000) |
3,840,000 (6ヶ月) |
無 |
即日 |
|
物件番号:015041
更新日:2025/12/1
港区芝大門1-3-17
【竣工】1990/1
【階建て】地上6F
|
【最寄駅】
|
【耐震】 |
新耐震 |
| 【基準階】 |
27.90坪 |
【エントランス】 |
全日開放(24h) |
| 【駐車場】 |
無し |
【エレベーター】 |
1基 |
複数路線が利用可能!交通アクセス抜群!シックなデザインのお洒落なエントランス!ワンフロア・ワンテナントの使い勝手良好なオフィス空間!

| 図面 |
階数 |
面積 |
賃料(共益費込) (坪単価) |
保証金/敷金 |
礼金 |
入居可能日 |
|
|
5階 |
G 24.83坪 (82.11m2) |
360,000 (14,500) |
2,160,000 (6ヶ月) |
無 |
2026/1 中旬 |
|
物件番号:015394
更新日:2025/12/1
港区浜松町2-1-15
【竣工】1989/12
【階建て】地上10F 、地下1F
|
【最寄駅】
|
【耐震】 |
新耐震 |
| 【基準階】 |
26.00坪 |
【エントランス】 |
全日開放(制限有) |
| 【駐車場】 |
無し |
【エレベーター】 |
1基 |
芝パークビル(東京都港区浜松町2-1-15)は、港区浜松町エリアに位置する、交通アクセスと快適性を兼ね備えたオフィスビルです。都営浅草線・大江戸線「大門駅」から徒歩1分、JR山手線・京浜東北…

| 図面 |
階数 |
面積 |
賃料(共益費込) (坪単価) |
保証金/敷金 |
礼金 |
入居可能日 |
|
|
3階 |
G 26.00坪 (85.95m2) |
507,000 (19,500) |
4,420,000 (10ヶ月) |
無 |
2026/2 |
|
|
4階 |
G 26.00坪 (85.95m2) |
507,000 (19,500) |
4,420,000 (10ヶ月) |
無 |
即日 |
|
|
7階 |
G 26.00坪 (85.95m2) |
507,000 (19,500) |
4,420,000 (10ヶ月) |
無 |
2026/3 |
|
物件番号:015036
更新日:2025/12/10
港区芝大門2-1-17
【竣工】1988/12
【階建て】地上8F
|
【最寄駅】
|
【耐震】 |
新耐震 |
| 【基準階】 |
34.43坪 |
【エントランス】 |
オートロック |
| 【駐車場】 |
無し |
【エレベーター】 |
1基 |
朝川ビルは、東京都港区芝大門2-1-17に位置する、利便性と使いやすさを兼ね備えたオフィスビルです。都営浅草線・大江戸線の大門駅から徒歩わずか2分という好立地にあり、芝大門交差点から50メー…

| 図面 |
階数 |
面積 |
賃料(共益費込) (坪単価) |
保証金/敷金 |
礼金 |
入居可能日 |
|
|
4階 |
G 34.43坪 (113.82m2) |
|
(未公開) |
無 |
即日 |
|
物件番号:015051
更新日:2025/11/21
港区芝大門2-4-1
【竣工】1988/11
【階建て】地上10F 、地下1F
|
【最寄駅】
|
【耐震】 |
新耐震 |
| 【基準階】 |
28.55坪 |
【エントランス】 |
平日・土開放 |
| 【駐車場】 |
無し |
【エレベーター】 |
1基 |
大門駅地下鉄出口からすぐの駅近賃貸オフィスビルです。IZUMIビルは、東京都港区芝大門2-4-1に位置し、1988年に竣工した地上10階建て、地下1階のオフィスビルです。都営浅草線および都営大江戸線…

| 図面 |
階数 |
面積 |
賃料(共益費込) (坪単価) |
保証金/敷金 |
礼金 |
入居可能日 |
|
|
7階 |
G 28.55坪 (94.37m2) |
551,015 (19,300) |
2,740,800 (6ヶ月) |
無 |
即日 |
|
物件番号:014979
更新日:2025/11/14
港区芝公園2-3-1
【竣工】1988/5(改修:2020)
【階建て】地上9F
|
【最寄駅】
|
【耐震】 |
新耐震 |
| 【基準階】 |
38.57坪 |
【エントランス】 |
|
| 【駐車場】 |
無し |
【エレベーター】 |
1基 |
芝加賀ビルは東京都港区芝公園2丁目に位置し、都営浅草線・都営大江戸線の大門駅から徒歩3分ととても便利な立地にあります。さらに都営三田線の芝公園駅も徒歩6分、JR山手線や京浜東北線の浜松町…

| 図面 |
階数 |
面積 |
賃料(共益費込) (坪単価) |
保証金/敷金 |
礼金 |
入居可能日 |
|
|
2階 |
G 38.57坪 (127.50m2) |
655,690 (17,000) |
4,165,560 (8ヶ月) |
無 |
即日 |
|
|
6階 |
G 38.57坪 (127.50m2) |
655,690 (17,000) |
4,165,560 (8ヶ月) |
無 |
即日 |
|
物件番号:015347
更新日:2025/12/10
港区浜松町2-2-5
【竣工】1988/2
【階建て】地上8F 、地下1F
|
【最寄駅】
|
【耐震】 |
新耐震 |
| 【基準階】 |
30.99坪 |
【エントランス】 |
平日・土開放 |
| 【駐車場】 |
無し |
【エレベーター】 |
1基 |
浜松町営和ビルは、東京都港区浜松町1丁目に位置する賃貸オフィスビルで、都営浅草線と都営大江戸線の大門駅から徒歩2分圏内にある好立地物件です。また、JR山手線・京浜東北線、東京モノレール…

| 図面 |
階数 |
面積 |
賃料(共益費込) (坪単価) |
保証金/敷金 |
礼金 |
入居可能日 |
|
|
6階 |
G 31.00坪 (102.48m2) |
496,000 (16,000) |
2,976,000 (6ヶ月) |
2.0ヶ月 |
即日 |
|
物件番号:015086
更新日:2025/12/8
港区芝大門2-11-17
【竣工】1988
【階建て】地上6F
|
【最寄駅】
|
【耐震】 |
新耐震 |
| 【基準階】 |
28.00坪 |
【エントランス】 |
|
| 【駐車場】 |
無し |
【エレベーター】 |
1基 |
東京都港区芝大門にある「第2木内ビル」は、1988年に竣工した地上6階建てのオフィスビルです。構造はSRC造(鉄骨鉄筋コンクリート造)で、新耐震基準に適合しており、安心して長期的に利用できる…

| 図面 |
階数 |
面積 |
賃料(共益費込) (坪単価) |
保証金/敷金 |
礼金 |
入居可能日 |
|
|
3階 |
G 28.30坪 (93.55m2) |
396,200 (14,000) |
2,575,300 (7ヶ月) |
無 |
即日 |
|
物件番号:015446
更新日:2025/12/12
港区浜松町2-2-15
【竣工】1987/11
【階建て】地上9F
|
【最寄駅】
|
【耐震】 |
新耐震 |
| 【基準階】 |
35.94坪 |
【エントランス】 |
全日開放(24h) |
| 【駐車場】 |
無し |
【エレベーター】 |
1基 |
大門駅から徒歩1分圏内、第一京浜に面した賃貸オフィスビル。浜松町ゼネラルビルは港区浜松町2丁目、都営浅草線・都営大江戸線の大門駅から徒歩1分圏内、第一京浜に面した分かりやすい立地です。…

| 図面 |
階数 |
面積 |
賃料(共益費込) (坪単価) |
保証金/敷金 |
礼金 |
入居可能日 |
|
|
9階 |
G 35.94坪 (118.81m2) |
575,040 (16,000) |
2,695,500 (6ヶ月) |
無 |
2026/2 中旬 |
|
物件番号:015325
更新日:2025/12/3
港区浜松町1-12-6
【竣工】1987/6
【階建て】地上7F
|
【最寄駅】
|
【耐震】 |
新耐震 |
| 【基準階】 |
28.64坪 |
【エントランス】 |
平日・土開放 |
| 【駐車場】 |
無し |
【エレベーター】 |
1基 |
閑静な立地で落ち着いた周辺環境です!1987年竣工の新耐震基準を満たした物件です!ワンフロア・ワンテナントで使い勝手良好です!

| 図面 |
階数 |
面積 |
賃料(共益費込) (坪単価) |
保証金/敷金 |
礼金 |
入居可能日 |
|
|
3階 |
G 28.62坪 (94.61m2) |
480,000 (16,771) |
3,840,000 (8ヶ月) |
2.0ヶ月 |
2026/2 上旬 |
|
物件番号:015001
更新日:2025/12/11
港区芝公園1-7-15
【竣工】1987/3
【階建て】地上9F 、地下1F
|
【最寄駅】
|
【耐震】 |
新耐震 |
| 【基準階】 |
36.23坪 |
【エントランス】 |
|
| 【駐車場】 |
有り |
【エレベーター】 |
1基 |
増上寺大門そばの貸事務所。池田ビルは港区芝公園1丁目、最寄り駅は都営浅草線 大門駅、都営大江戸線 大門駅です。大門駅より徒歩3分圏内。増上寺大門そば、ビル前歩道の街路樹が美しく落ち着い…

| 図面 |
階数 |
面積 |
賃料(共益費込) (坪単価) |
保証金/敷金 |
礼金 |
入居可能日 |
|
|
5階 |
G 36.24坪 (119.80m2) |
525,480 (14,500) |
3,189,120 (8ヶ月) |
無 |
即日 |
|
物件番号:015375
更新日:2025/12/12
港区浜松町2-11-7
【竣工】1986/5
【階建て】地上7F 、地下2F
|
【最寄駅】
|
【耐震】 |
新耐震 |
| 【基準階】 |
20.00坪 |
【エントランス】 |
全日開放(制限有) |
| 【駐車場】 |
無し |
【エレベーター】 |
1基 |
TMビル(東京都港区浜松町2-11-7)は、ビジネスの中心地・港区浜松町に位置する、利便性と落ち着いた環境を兼ね備えたオフィスビルです。JR山手線・京浜東北線・東京モノレール「浜松町駅」から…

| 図面 |
階数 |
面積 |
賃料(共益費込) (坪単価) |
保証金/敷金 |
礼金 |
入居可能日 |
|
|
4階 |
G 20.00坪 (66.11m2) |
300,000 (15,000) |
1,440,000 (6ヶ月) |
無 |
即日 |
|
物件番号:015113
更新日:2025/11/28
港区芝大門1-3-9
【竣工】1986/5(改修:2018)
【階建て】地上10F
|
【最寄駅】
|
【耐震】 |
新耐震 |
| 【基準階】 |
20.90坪 |
【エントランス】 |
全日開放(制限有) |
| 【駐車場】 |
無し |
【エレベーター】 |
1基 |
芝大門第一ビルは、東京都港区芝大門1丁目に位置する、利便性と快適さを兼ね備えたオフィスビルです。都営浅草線・大江戸線の大門駅から徒歩3分、都営三田線の御成門駅からも徒歩5分、さらにJR山…

| 図面 |
階数 |
面積 |
賃料(共益費込) (坪単価) |
保証金/敷金 |
礼金 |
入居可能日 |
|
|
3階 |
G 20.90坪 (69.09m2) |
292,600 (14,000) |
2,048,200 (7ヶ月) |
無 |
即日 |
|
物件番号:065097
更新日:2025/11/20
港区海岸3-5-13
【竣工】1986/4
【階建て】地上8F
|
【最寄駅】
|
【耐震】 |
新耐震 |
| 【基準階】 |
417.28坪 |
【エントランス】 |
|
| 【駐車場】 |
有り |
【エレベーター】 |
3基 |
五色橋ビルは、東京都港区海岸3-5-13に位置する8階建てのオフィスビルです。1986年4月に竣工し、新耐震基準に適合した鉄骨鉄筋コンクリート(SRC)造りの建物です。交通アクセスは、ゆりかもめ線…

| 図面 |
階数 |
面積 |
賃料(共益費込) (坪単価) |
保証金/敷金 |
礼金 |
入居可能日 |
|
|
5階 |
G 25.04坪 (82.77m2) |
|
6ヶ月 |
1.0ヶ月 |
即日 |
|
物件番号:039820
更新日:2025/11/20
港区海岸3-18-26
【竣工】1985/9
【階建て】地上7F
|
【最寄駅】
|
【耐震】 |
新耐震 |
| 【基準階】 |
33.45坪 |
【エントランス】 |
全日開放(24h) |
| 【駐車場】 |
有り |
【エレベーター】 |
1基 |
ペガソ21海岸ビルは、東京都港区海岸3-18-26に位置する地上7階建てのオフィスビルです。1985年9月に竣工し、構造はRC造(鉄筋コンクリート造)を採用しています。新耐震基準に適合して建設されて…

| 図面 |
階数 |
面積 |
賃料(共益費込) (坪単価) |
保証金/敷金 |
礼金 |
入居可能日 |
|
|
5階 |
G 33.45坪 (110.57m2) |
310,000 (9,268) |
1,040,000 (4ヶ月) |
1.0ヶ月 |
即日 |
|
物件番号:015121
更新日:2025/12/5
港区芝大門2-6-8
【竣工】1985/5
【階建て】地上5F
|
【最寄駅】
|
【耐震】 |
新耐震 |
| 【基準階】 |
20.57坪 |
【エントランス】 |
全日開放(24h) |
| 【駐車場】 |
無し |
【エレベーター】 |
1基 |
茶色を基調とした落ち着いた雰囲気です!清潔感があるエントランスです!ワンフロア・ワンテナントの使い勝手良好なオフィス空間です!

| 図面 |
階数 |
面積 |
賃料(共益費込) (坪単価) |
保証金/敷金 |
礼金 |
入居可能日 |
|
|
2階 |
G 20.57坪 (68.03m2) |
277,695 (13,500) |
1,357,620 (6ヶ月) |
無 |
2025/12 下旬 |
|
物件番号:015151
更新日:2025/12/12
港区芝大門2-11-18
【竣工】1985/3
【階建て】地上5F
|
【最寄駅】
|
【耐震】 |
新耐震 |
| 【基準階】 |
33.71坪 |
【エントランス】 |
|
| 【駐車場】 |
無し |
【エレベーター】 |
1基 |
芝関野ビルは、東京都港区芝大門2丁目に位置するオフィスビルで、交通利便性と実用的な設備が特徴の物件です。最寄り駅は都営浅草線・大江戸線「大門駅」から徒歩3分、JR山手線・京浜東北線およ…

| 図面 |
階数 |
面積 |
賃料(共益費込) (坪単価) |
保証金/敷金 |
礼金 |
入居可能日 |
|
|
3階 |
G 33.71坪 (111.44m2) |
471,940 (14,000) |
2,427,120 (6ヶ月) |
無 |
相談 |
|
物件番号:015050
更新日:2025/12/11
港区芝大門1-6-1
【竣工】1984/7(改修:2026)
【階建て】地上5F 、地下1F
|
【最寄駅】
|
【耐震】 |
新耐震 |
| 【基準階】 |
39.00坪 |
【エントランス】 |
全日開放(24h) |
| 【駐車場】 |
有り |
【エレベーター】 |
1基 |
複数路線が利用可能な便利な立地、芝大門エリアの賃貸オフィスビルです。芝大門エフビルは、東京都港区芝大門1-6-1に位置する賃貸オフィスビルです。1984年に竣工し、地上5階・地下1階建ての鉄筋…

| 図面 |
階数 |
面積 |
賃料(共益費込) (坪単価) |
保証金/敷金 |
礼金 |
入居可能日 |
|
|
3階 |
G 40.38坪 (133.49m2) |
|
8ヶ月 |
無 |
2025/12 下旬 |
|
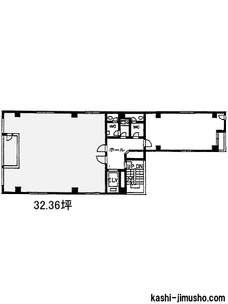
物件番号:015099
更新日:2025/12/5
港区芝大門1-3-6
【竣工】1984/6(改修:2016)
【階建て】地上10F 、地下1F
|
【最寄駅】
|
【耐震】 |
新耐震 |
| 【基準階】 |
32.36坪 |
【エントランス】 |
|
| 【駐車場】 |
無し |
【エレベーター】 |
1基 |
喜多ビルは、東京都港区芝大門1丁目に位置する地上10階・地下1階建てのオフィスビルです。1984年6月に竣工し、2016年にエントランスの改修が行われており、白を基調とした清潔感のある空間となっ…

| 図面 |
階数 |
面積 |
賃料(共益費込) (坪単価) |
保証金/敷金 |
礼金 |
入居可能日 |
|
|
3階 |
G 32.36坪 (106.99m2) |
520,000 (16,069) |
1,716,000 (53,028) |
無 |
即日 |
|
※取引態様:媒介
※フロア図面と現況が異なる場合は現況を優先いたします。
※貸室内部の写真・貸室からの景色に関しては、現在の募集フロアと異なる場合がございます。
※取引態様:媒介
その他、浜松町・芝大門エリアの貸事務所をお探しの方はこちらをクリック

30坪の貸事務所、賃貸オフィス
30坪(20坪~40坪)の千代田区貸事務所
30坪(20坪~40坪)の中央区貸事務所
30坪(20坪~40坪)の港区貸事務所
30坪(20坪~40坪)の新宿区貸事務所
30坪(20坪~40坪)の渋谷区貸事務所
30坪(20坪~40坪)の台東区貸事務所
30坪(20坪~40坪)の品川区貸事務所
30坪(20坪~40坪)の豊島区貸事務所
30坪(20坪~40坪)の文京区貸事務所
30坪(20坪~40坪)の目黒区貸事務所
東京都内の30坪(20坪~40坪)の貸事務所
浜松町・芝大門エリアの関連特集