新耐震基準の貸事務所、賃貸オフィス |豊島区
東京都豊島区の貸事務所、賃貸オフィスビルのうち、新耐震基準を満たす貸事務所を掲載しています。新耐震基準前の竣工物件でながら、補強や審査で基準値ををクリアした安心度の高いオフィスビルも調査して掲載しています。耐震性の高いもしくは補強済みの安心感があるオフィスビルです。
新耐震基準の貸事務所|豊島区
物件番号:081624
更新日:2026/5/7
豊島区西池袋3-28-4
【竣工】2025/12
【階建て】地上27F 、地下4F
|
【最寄駅】
|
【耐震】 |
新耐震+制震 |
| 【基準階】 |
291.37坪 |
【エントランス】 |
全日開放(制限有) |
| 【駐車場】 |
有り |
【エレベーター】 |
5基 |
東京都豊島区西池袋3丁目に位置するIT TOWER TOKYOは、2025年12月に竣工のオフィスビルです。池袋駅からのアクセスに非常に優れており、副都心線池袋駅からは徒歩1分、JR山手線・埼京線、東武東…

| 図面 |
階数 |
面積 |
賃料(共益費込) (坪単価) |
保証金/敷金 |
礼金 |
入居可能日 |
|
|
22階 |
N 102.10坪 (337.52m2) |
|
12ヶ月 |
無 |
即日 |
|
|
24階 |
N 291.37坪 (963.21m2) |
|
12ヶ月 |
無 |
即日 |
|
物件番号:083447
更新日:2026/5/1
豊島区南池袋2-17-7
【竣工】2025/6
【階建て】地上13F
|
【最寄駅】
|
【耐震】 |
新耐震 |
| 【基準階】 |
71.88坪 |
【エントランス】 |
全日開放(制限有) |
| 【駐車場】 |
- |
【エレベーター】 |
2基 |
UPROVEMENTは、東京都豊島区南池袋2丁目に位置する新築のオフィスビルで、住所は東京都豊島区南池袋2-17-7です。2025年6月に竣工したこのビルは、最新の設備とデザインを取り入れた地上13階建て…

| 図面 |
階数 |
面積 |
賃料(共益費込) (坪単価) |
保証金/敷金 |
礼金 |
入居可能日 |
|
|
6階 |
G 71.88坪 (237.62m2) |
2,372,040 (33,000) |
(未公開) |
無 |
即日 |
|
|
8階 |
G 71.88坪 (237.62m2) |
2,372,040 (33,000) |
(未公開) |
無 |
即日 |
|
|
10階 |
G 71.88坪 (237.62m2) |
2,372,040 (33,000) |
(未公開) |
無 |
即日 |
|
|
11階 |
G 71.88坪 (237.62m2) |
2,372,040 (33,000) |
(未公開) |
無 |
即日 |
|
物件番号:080252
更新日:2026/4/7
豊島区東池袋1-25-10
【竣工】2023/5
【階建て】地上12F
|
【最寄駅】
|
【耐震】 |
新耐震 |
| 【基準階】 |
91.98坪 |
【エントランス】 |
オートロック |
| 【駐車場】 |
有り |
【エレベーター】 |
2基 |
池袋エリアに位置するPMO池袋は、2023年に竣工した最新のハイグレードオフィスビルです。東京都豊島区東池袋1-25-10に所在し、グリーン大通りに面した好立地を誇ります。交通アクセスは非常に便…

| 図面 |
階数 |
面積 |
賃料(共益費込) (坪単価) |
保証金/敷金 |
礼金 |
入居可能日 |
|
|
12階 |
G 91.98坪 (304.09m2) |
|
(未公開) |
無 |
2026/6/1 |
|
物件番号:068564
更新日:2026/5/1
豊島区東池袋1-18-1
【竣工】2020/5
【階建て】地上32F 、地下2F
|
【最寄駅】
|
【耐震】 |
新耐震 |
| 【基準階】 |
466.35坪 |
【エントランス】 |
全日開放(制限有) |
| 【駐車場】 |
有り |
【エレベーター】 |
16基 |
Hareza Towerは、豊島区東池袋に位置する2020年竣工の大型オフィスタワーです。池袋駅から徒歩5分圏内で、JR各線、西武池袋線、東京メトロ丸ノ内線、有楽町線、副都心線といった複数路線が利用可…

| 図面 |
階数 |
面積 |
賃料(共益費込) (坪単価) |
保証金/敷金 |
礼金 |
入居可能日 |
|
|
17階 |
N 203.59坪 (673.03m2) |
|
12ヶ月 |
無 |
2026/10/1 |
|
|
25階 |
N 140.84坪 (465.56m2) |
|
12ヶ月 |
無 |
2027/2/1 |
|
物件番号:058831
更新日:2026/4/6
豊島区東池袋4-21-1
【竣工】2011/1
【階建て】地上52F 、地下2F
|
【最寄駅】
|
【耐震】 |
新耐震 |
| 【基準階】 |
286.25坪 |
【エントランス】 |
平日・土開放 |
| 【駐車場】 |
有り |
【エレベーター】 |
9基 |
アウルタワーは、豊島区東池袋4-21-1にある物件です。最寄駅は、東京メトロ有楽町線の東池袋駅です。東池袋駅から地下プロムナードで直結しています。徒歩2分圏内でアクセス可能な好立地です。徒…

| 図面 |
階数 |
面積 |
賃料(共益費込) (坪単価) |
保証金/敷金 |
礼金 |
入居可能日 |
|
|
4階 |
N 36.75坪 (121.49m2) |
900,432 (24,502) |
10,804,500 (294,000) |
有 |
即日 |
|
物件番号:061377
更新日:2026/4/20
豊島区南大塚1-2-12
【竣工】2010/7
【階建て】地上6F 、地下1F
|
【最寄駅】
|
【耐震】 |
新耐震 |
| 【基準階】 |
33.75坪 |
【エントランス】 |
全日開放(制限有) |
| 【駐車場】 |
有り |
【エレベーター】 |
1基 |
日個連会館は、東京都豊島区南大塚1丁目に所在する地上6階・地下1階建ての賃貸オフィスビルです。2010年7月に竣工された物件で、新耐震基準に適合した鉄骨鉄筋コンクリート造(SRC造)の堅牢な構…

| 図面 |
階数 |
面積 |
賃料(共益費込) (坪単価) |
保証金/敷金 |
礼金 |
入居可能日 |
|
|
1階 |
N 22.50坪 (74.38m2) |
405,000 (18,000) |
3ヶ月 |
無 |
即日 |
|
物件番号:056639
更新日:2026/4/23
豊島区池袋2-6-1
【竣工】2009/3
【階建て】地上10F 、地下1F
|
【最寄駅】
|
【耐震】 |
新耐震 |
| 【基準階】 |
100.29坪 |
【エントランス】 |
全日開放(制限有) |
| 【駐車場】 |
有り |
【エレベーター】 |
2基 |
池袋駅前に位置するスタイリッシュな印象の賃貸オフィスビル。KDX池袋ビルは、豊島区池袋2-6-1にある物件です。徒歩1分圏内で東京メトロ副都心線の池袋駅、徒歩5分圏内でJR山手線・JR埼京線・東…

| 図面 |
階数 |
面積 |
賃料(共益費込) (坪単価) |
保証金/敷金 |
礼金 |
入居可能日 |
|
|
9階 |
G 100.29坪 (331.54m2) |
|
12ヶ月 |
無 |
2026/9/1 |
|
物件番号:082561
更新日:2026/3/30
豊島区東池袋3-21-14
【竣工】2008/6
【階建て】地上9F 、地下1F
|
【最寄駅】
|
【耐震】 |
新耐震 |
| 【基準階】 |
298.60坪 |
【エントランス】 |
平日のみ開放 |
| 【駐車場】 |
無し |
【エレベーター】 |
5基 |
NTT新池袋ビルは、東京都豊島区東池袋3-21-14に位置するモダンなオフィスビルです。有楽町線の東池袋駅から徒歩9分、JR山手線や西武池袋線の池袋駅から徒歩10分と、複数路線にアクセス可能な便利…

| 図面 |
階数 |
面積 |
賃料(共益費込) (坪単価) |
保証金/敷金 |
礼金 |
入居可能日 |
|
|
1階 |
N 225.85坪 (746.61m2) |
|
10ヶ月 |
無 |
2026/8 予定 |
|
|
2階 |
N 298.60坪 (987.11m2) |
|
10ヶ月 |
無 |
2026/8 予定 |
|
|
3階 |
N 298.60坪 (987.11m2) |
|
10ヶ月 |
無 |
2026/8 予定 |
|
|
4階 |
N 298.60坪 (987.11m2) |
|
10ヶ月 |
無 |
2026/8 予定 |
|
|
5階 |
N 298.60坪 (987.11m2) |
|
10ヶ月 |
無 |
2026/8 予定 |
|
|
6階 |
N 298.60坪 (987.11m2) |
|
10ヶ月 |
無 |
2026/8 予定 |
|
|
7階 |
N 298.60坪 (987.11m2) |
|
10ヶ月 |
無 |
2026/8 予定 |
|
|
8階 |
N 298.60坪 (987.11m2) |
|
10ヶ月 |
無 |
2026/8 予定 |
|
物件番号:083725
更新日:2026/4/6
豊島区目白1-7-13
【竣工】2006/4
【階建て】地上7F
|
【最寄駅】
|
【耐震】 |
新耐震 |
| 【基準階】 |
22.25坪 |
【エントランス】 |
全日開放(制限有) |
| 【駐車場】 |
無し |
【エレベーター】 |
1基 |
タイムズ・ビルは、東京都豊島区目白1丁目に位置する賃貸オフィスビルです。2006年4月に竣工した比較的新しい建物で、新耐震基準を満たしたSRC造(鉄骨鉄筋コンクリート造)・地上7階建てのオフ…

| 図面 |
階数 |
面積 |
賃料(共益費込) (坪単価) |
保証金/敷金 |
礼金 |
入居可能日 |
|
|
3階 |
G 22.25坪 (73.54m2) |
350,000 (15,731) |
3ヶ月 |
2.0ヶ月 |
即日 |
|
|
4階 |
G 22.84坪 (75.51m2) |
350,000 (15,324) |
3ヶ月 |
2.0ヶ月 |
即日 |
|
物件番号:027525
更新日:2026/4/23
豊島区南池袋1-19-6
【竣工】2002/7
【階建て】地上9F 、地下1F
|
【最寄駅】
|
【耐震】 |
新耐震 |
| 【基準階】 |
185.05坪 |
【エントランス】 |
全日開放(制限有) |
| 【駐車場】 |
有り |
【エレベーター】 |
3基 |
豊島区南池袋1丁目にある、オリックス池袋ビルです。最寄駅は、池袋駅で徒歩3分圏内でアクセス可能な便利な立地となっています。JR山手線・JR埼京線・西武池袋線・東京メトロ丸ノ内線・東京メト…

| 図面 |
階数 |
面積 |
賃料(共益費込) (坪単価) |
保証金/敷金 |
礼金 |
入居可能日 |
|
|
4階 |
G 186.15坪 (615.37m2) |
|
12ヶ月 |
無 |
即日 |
|
物件番号:027479
更新日:2026/4/10
豊島区南池袋1-18-17
【竣工】1999/7
【階建て】地上10F
|
【最寄駅】
|
【耐震】 |
新耐震 |
| 【基準階】 |
28.85坪 |
【エントランス】 |
全日開放(制限有) |
| 【駐車場】 |
無し |
【エレベーター】 |
1基 |
「I&Kビル」は、東京都豊島区南池袋1丁目に位置する地上10階建てのオフィスビルです。1999年7月に竣工したこの物件は、鉄骨造(S造)の堅牢な構造で、新耐震基準を満たしており、安全性に優れて…

| 図面 |
階数 |
面積 |
賃料(共益費込) (坪単価) |
保証金/敷金 |
礼金 |
入居可能日 |
|
|
7階 |
G 28.85坪 (95.37m2) |
865,500 (30,000) |
18ヶ月 |
2.0ヶ月 |
即日 |
|
|
9階 |
G 28.85坪 (95.37m2) |
865,500 (30,000) |
18ヶ月 |
2.0ヶ月 |
即日 |
|
物件番号:027486
更新日:2026/4/21
豊島区南池袋3-18-36
【竣工】1999/5
【階建て】地上10F
|
【最寄駅】
|
【耐震】 |
新耐震 |
| 【基準階】 |
43.84坪 |
【エントランス】 |
平日・土開放 |
| 【駐車場】 |
無し |
【エレベーター】 |
1基 |
富美栄ビルは、東京都豊島区南池袋3丁目に位置する地上10階建てのオフィスビルです。1999年5月に竣工し、鉄骨鉄筋コンクリート造(SRC造)で建てられています。本物件は新耐震基準に適合しており…

| 図面 |
階数 |
面積 |
賃料(共益費込) (坪単価) |
保証金/敷金 |
礼金 |
入居可能日 |
|
|
4階 |
G 20.03坪 (66.22m2) |
350,525 (17,500) |
8ヶ月 |
無 |
即日 |
|
|
5階 |
G 20.03坪 (66.22m2) |
360,540 (18,000) |
8ヶ月 |
無 |
即日 |
|
物件番号:026515
更新日:2026/4/10
豊島区池袋4-1-7
【竣工】1994/9
【階建て】地上7F
|
【最寄駅】
|
【耐震】 |
新耐震 |
| 【基準階】 |
34.45坪 |
【エントランス】 |
全日開放(制限有) |
| 【駐車場】 |
無し |
【エレベーター】 |
1基 |
複数路線が利用可能で交通アクセス良好です。白を基調とした明るい印象の外観です。ワンフロア・ワンテナントなので使い勝手の良い貸室です。

| 図面 |
階数 |
面積 |
賃料(共益費込) (坪単価) |
保証金/敷金 |
礼金 |
入居可能日 |
|
|
7階 |
G 20.12坪 (66.51m2) |
330,000 (16,402) |
4ヶ月 |
1.0ヶ月 |
即日 |
|
物件番号:026806
更新日:2026/4/6
豊島区巣鴨1-14-8
【竣工】1994/3
【階建て】地上8F 、地下1F
|
【最寄駅】
|
【耐震】 |
新耐震 |
| 【基準階】 |
77.32坪 |
【エントランス】 |
全日開放(制限有) |
| 【駐車場】 |
有り |
【エレベーター】 |
1基 |
巣鴨駅から徒歩2分の好立地の建物!シックなイメージのおしゃれな外観!石張りの高級感あるエントランス!

| 図面 |
階数 |
面積 |
賃料(共益費込) (坪単価) |
保証金/敷金 |
礼金 |
入居可能日 |
|
|
B1階 |
G 32.85坪 (108.60m2) |
427,050 (13,000) |
6ヶ月 |
無 |
2026/6 上旬 |
|
物件番号:027570
更新日:2026/4/22
豊島区南大塚2-25-15
【竣工】1993/7
【階建て】地上12F 、地下1F
|
【最寄駅】
|
【耐震】 |
新耐震 |
| 【基準階】 |
183.09坪 |
【エントランス】 |
平日・土開放 |
| 【駐車場】 |
有り |
【エレベーター】 |
3基 |
South新大塚ビルは、豊島区南大塚2丁目に位置する賃貸オフィスビルです。東京メトロ丸ノ内線・新大塚駅から徒歩2分とアクセスに優れた立地で、JR山手線の大塚駅や都電荒川線の大塚駅前駅へも徒歩…

| 図面 |
階数 |
面積 |
賃料(共益費込) (坪単価) |
保証金/敷金 |
礼金 |
入居可能日 |
|
|
5階 |
G 106.38坪 (351.66m2) |
|
12ヶ月 |
無 |
2026/7/22 |
|
物件番号:026659
更新日:2026/4/8
豊島区上池袋4-1-1
【竣工】1993/7
【階建て】地上12F 、地下2F
|
【最寄駅】
|
【耐震】 |
新耐震 |
| 【基準階】 |
46.45坪 |
【エントランス】 |
全日開放(24h) |
| 【駐車場】 |
無し |
【エレベーター】 |
1基 |
明治通り沿いで、上池袋の交差点に位置する賃貸オフィスビルです。カブト上池袋ビルは、豊島区上池袋4-1-1にある物件です。徒歩8分圏内で東武東上線の北池袋駅、徒歩9分圏内で都電荒川線の巣鴨新…

| 図面 |
階数 |
面積 |
賃料(共益費込) (坪単価) |
保証金/敷金 |
礼金 |
入居可能日 |
|
|
6階 |
G 33.29坪 (110.05m2) |
380,000 (11,415) |
6ヶ月 |
1.0ヶ月 |
2026/10 中旬 |
|
|
7階 |
G 33.29坪 (110.05m2) |
420,000 (12,617) |
6ヶ月 |
1.0ヶ月 |
相談 |
|
物件番号:027238
更新日:2026/5/7
豊島区東池袋3-4-3
【竣工】1993/4
【階建て】地上14F 、地下1F
|
【最寄駅】
|
【耐震】 |
新耐震 |
| 【基準階】 |
244.91坪 |
【エントランス】 |
全日開放(制限有) |
| 【駐車場】 |
有り |
【エレベーター】 |
5基 |
NBF池袋イーストビルは、豊島区東池袋3-4-3にある物件です。徒歩6分圏内で東京メトロ有楽町線の東池袋駅、徒歩7分圏内でJR山手線・JR埼京線・東京メトロ丸ノ内線・西武池袋線の池袋駅が利用可能…

| 図面 |
階数 |
面積 |
賃料(共益費込) (坪単価) |
保証金/敷金 |
礼金 |
入居可能日 |
|
|
3階 |
N 71.82坪 (237.42m2) |
|
(未公開) |
無 |
2026/6/1 |
|
物件番号:026761
更新日:2026/5/8
豊島区駒込3-3-17
【竣工】1993/3
【階建て】地上7F 、地下1F
|
【最寄駅】
|
【耐震】 |
新耐震 |
| 【基準階】 |
51.94坪 |
【エントランス】 |
|
| 【駐車場】 |
無し |
【エレベーター】 |
1基 |
東宝駒込ビルは、豊島区駒込3-3-17にある物件です。最寄駅は、JR山手線・東京メトロ南北線の駒込駅です。徒歩2分圏内でアクセス可能な好立地です。複数路線が利用可能でアクセス良好です。電車の…

| 図面 |
階数 |
面積 |
賃料(共益費込) (坪単価) |
保証金/敷金 |
礼金 |
入居可能日 |
|
|
3階 |
N 57.15坪 (188.93m2) |
914,400 (16,000) |
12ヶ月 |
無 |
即日 |
|
物件番号:026701
更新日:2026/4/21
豊島区北大塚1-13-17
【竣工】1993/3
【階建て】地上5F 、地下1F
|
【最寄駅】
|
【耐震】 |
新耐震 |
| 【基準階】 |
239.64坪 |
【エントランス】 |
平日・土開放 |
| 【駐車場】 |
有り |
【エレベーター】 |
2基 |
日本綜合地所大塚ビルは、東京都豊島区北大塚1-13-17に建つ地上5階・地下1階のオフィスビルです。1993年3月に竣工し、新耐震基準に適合したSRC造(鉄骨鉄筋コンクリート造)で建てられています。…

| 図面 |
階数 |
面積 |
賃料(共益費込) (坪単価) |
保証金/敷金 |
礼金 |
入居可能日 |
|
|
3階 |
N 119.55坪 (395.23m2) |
1,912,800 (16,000) |
8ヶ月 |
1.0ヶ月 |
即日 |
|
|
4階 |
N 47.57坪 (157.26m2) |
761,120 (16,000) |
8ヶ月 |
1.0ヶ月 |
2026/8/1 |
|
物件番号:026989
更新日:2026/4/21
豊島区西池袋2-39-6
【竣工】1992/12(改修:2008)
【階建て】地上8F 、地下1F
|
【最寄駅】
|
【耐震】 |
新耐震 |
| 【基準階】 |
57.58坪 |
【エントランス】 |
平日・土開放 |
| 【駐車場】 |
無し |
【エレベーター】 |
1基 |
池袋ツルミビルは、東京都豊島区西池袋2-39-6に位置する地上8階・地下1階のオフィスビルです。1992年12月に竣工し、SRC造で建てられています。新耐震基準に適合しており、安全性にも優れています…

| 図面 |
階数 |
面積 |
賃料(共益費込) (坪単価) |
保証金/敷金 |
礼金 |
入居可能日 |
|
|
4階 |
G 58.96坪 (194.93m2) |
725,219 (12,300) |
7ヶ月 |
無 |
2026/7 上旬 |
|
物件番号:027195
更新日:2026/4/9
豊島区東池袋5-40-9
【竣工】1992/11
【階建て】地上7F 、地下1F
|
【最寄駅】
|
【耐震】 |
新耐震 |
| 【基準階】 |
43.00坪 |
【エントランス】 |
全日開放(制限有) |
| 【駐車場】 |
有り |
【エレベーター】 |
1基 |
複数路線が利用可能で交通アクセス良好!石張りの外観が印象的!落ち着いたイメージのエントランス!眺望の良い、ワンフロア・ワンテナントの独立性が高い貸事務所!

| 図面 |
階数 |
面積 |
賃料(共益費込) (坪単価) |
保証金/敷金 |
礼金 |
入居可能日 |
|
|
3階 |
G 42.99坪 (142.14m2) |
460,360 (10,708) |
3ヶ月 |
無 |
相談 |
|
|
5階 |
G 42.99坪 (142.14m2) |
460,360 (10,708) |
3ヶ月 |
無 |
相談 |
|
物件番号:027506
更新日:2026/4/17
豊島区南池袋3-9-7
【竣工】1992/8
【階建て】地上8F 、地下1F
|
【最寄駅】
|
【耐震】 |
新耐震 |
| 【基準階】 |
72.13坪 |
【エントランス】 |
平日のみ開放 |
| 【駐車場】 |
有り |
【エレベーター】 |
2基 |
HI池袋ビルは、東京都豊島区南池袋3-9-7に位置するオフィスビルです。西武池袋線「池袋」駅から徒歩5分、JR山手線・JR埼京線・丸ノ内線の「池袋」駅から徒歩7分、有楽町線「東池袋」駅から徒歩7…

| 図面 |
階数 |
面積 |
賃料(共益費込) (坪単価) |
保証金/敷金 |
礼金 |
入居可能日 |
|
|
2階 |
G 77.54坪 (256.33m2) |
|
8ヶ月 |
無 |
2026/8 予定 |
|
物件番号:060114
更新日:2026/4/23
豊島区駒込1-28-16
【竣工】1992/7
【階建て】地上8F
|
【最寄駅】
|
【耐震】 |
新耐震 |
| 【基準階】 |
67.90坪 |
【エントランス】 |
オートロック |
| 【駐車場】 |
無し |
【エレベーター】 |
1基 |
本澤ビルは、東京都豊島区駒込1丁目に位置する地上8階建ての賃貸オフィスビルです。1992年7月に竣工し、新耐震基準に適合した鉄骨鉄筋コンクリート造(SRC造)によって設計されています。耐震性…

| 図面 |
階数 |
面積 |
賃料(共益費込) (坪単価) |
保証金/敷金 |
礼金 |
入居可能日 |
|
|
2階 |
G 66.97坪 (221.39m2) |
1,385,000 (20,681) |
6ヶ月 |
1.0ヶ月 |
2026/6 中旬 |
|
物件番号:026805
更新日:2026/4/8
豊島区巣鴨1-24-1
【竣工】1992/7(改修:2022)
【階建て】地上6F
|
【最寄駅】
|
【耐震】 |
新耐震 |
| 【基準階】 |
45.62坪 |
【エントランス】 |
全日開放(制限有) |
| 【駐車場】 |
有り |
【エレベーター】 |
1基 |
第3グロビスビルは、東京都豊島区巣鴨1丁目に所在する賃貸オフィスビルです。1992年に竣工し、新耐震基準を満たした鉄筋コンクリート造の地上6階建てで、安心してご利用いただける建物です。基準…

| 図面 |
階数 |
面積 |
賃料(共益費込) (坪単価) |
保証金/敷金 |
礼金 |
入居可能日 |
|
|
3階 |
G 48.48坪 (160.28m2) |
632,000 (13,036) |
6ヶ月 |
1.0ヶ月 |
即日 |
|
物件番号:026477
更新日:2026/4/21
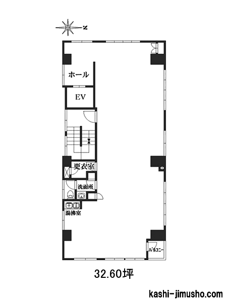
豊島区池袋1-8-8
【竣工】1992/6
【階建て】地上5F 、地下2F
|
【最寄駅】
|
【耐震】 |
新耐震 |
| 【基準階】 |
33.00坪 |
【エントランス】 |
|
| 【駐車場】 |
無し |
【エレベーター】 |
1基 |
賑やかな商店街沿いです!ワンフロア・ワンテナントで使い勝手良好です!

| 図面 |
階数 |
面積 |
賃料(共益費込) (坪単価) |
保証金/敷金 |
礼金 |
入居可能日 |
|
|
3階 |
G 32.60坪 (107.80m2) |
490,000 (15,031) |
6ヶ月 |
1.0ヶ月 |
2026/7 下旬 |
|
物件番号:026997
更新日:2026/5/7
豊島区西池袋5-17-11
【竣工】1992/6
【階建て】地上9F
|
【最寄駅】
|
【耐震】 |
新耐震 |
| 【基準階】 |
52.53坪 |
【エントランス】 |
平日・土開放 |
| 【駐車場】 |
無し |
【エレベーター】 |
1基 |
ルート西池袋ビルは、東京都豊島区西池袋5丁目に位置するオフィスビルで、アクセスの良さと設備の充実が魅力的な物件です。1992年に竣工したこの建物は9階建てのSRC造で、新耐震基準に準拠してお…

| 図面 |
階数 |
面積 |
賃料(共益費込) (坪単価) |
保証金/敷金 |
礼金 |
入居可能日 |
|
|
7階 |
G 31.72坪 (104.86m2) |
|
12ヶ月 |
無 |
2026/8/27 |
|
物件番号:035922
更新日:2026/4/27
豊島区目白2-2-2
【竣工】1992/3
【階建て】地上4F 、地下1F
|
【最寄駅】
|
【耐震】 |
新耐震 |
| 【基準階】 |
21.84坪 |
【エントランス】 |
|
| 【駐車場】 |
無し |
【エレベーター】 |
無 |
Mejiro222ビルは、東京都豊島区目白2丁目に位置する賃貸オフィスビルです。落ち着いた住宅街として知られる目白エリアにありながら、複数の駅と路線を利用できる利便性の高い立地が特徴のオフィ…

| 図面 |
階数 |
面積 |
賃料(共益費込) (坪単価) |
保証金/敷金 |
礼金 |
入居可能日 |
|
|
2階 |
G 25.18坪 (83.24m2) |
336,364 (13,358) |
4ヶ月 |
1.0ヶ月 |
即日 |
|
物件番号:027270
更新日:2026/4/21
豊島区東池袋3-23-13
【竣工】1992/1
【階建て】地上8F 、地下1F
|
【最寄駅】
|
【耐震】 |
新耐震 |
| 【基準階】 |
64.12坪 |
【エントランス】 |
平日・土開放 |
| 【駐車場】 |
有り |
【エレベーター】 |
1基 |
池袋エリアに建つ「池袋KSビル」は、春日通り沿いに位置し、視認性に優れた賃貸オフィスビルです。東京都豊島区東池袋3-23-13に所在し、全面ガラス張りのスタイリッシュな外観が印象的で、企業の…

| 図面 |
階数 |
面積 |
賃料(共益費込) (坪単価) |
保証金/敷金 |
礼金 |
入居可能日 |
|
|
2階 |
G 59.86坪 (197.88m2) |
1,060,000 (17,708) |
6ヶ月 |
無 |
即日 |
|
|
3階 |
G 64.12坪 (211.96m2) |
1,130,000 (17,623) |
6ヶ月 |
無 |
即日 |
|
|
4階 |
G 64.12坪 (211.96m2) |
1,130,000 (17,623) |
6ヶ月 |
無 |
即日 |
|
|
8階 |
G 63.05坪 (208.43m2) |
1,130,000 (17,922) |
6ヶ月 |
無 |
2026/8 上旬 |
|
物件番号:035423
更新日:2026/5/1
豊島区池袋2-47-6
【竣工】1991/10
【階建て】地上9F 、地下1F
|
【最寄駅】
|
【耐震】 |
新耐震 |
| 【基準階】 |
21.15坪 |
【エントランス】 |
平日・土開放 |
| 【駐車場】 |
無し |
【エレベーター】 |
1基 |
第2オンダビルは、1991年に竣工された地上9階、地下1階のSRC構造の建物です。基準階面積は21.15坪で、JR山手線、埼京線、東京メトロ丸ノ内線、有楽町線、副都心線、東武東上線の池袋駅から徒歩4…

| 図面 |
階数 |
面積 |
賃料(共益費込) (坪単価) |
保証金/敷金 |
礼金 |
入居可能日 |
|
|
3階 |
G 21.15坪 (69.93m2) |
359,550 (17,000) |
10ヶ月 |
無 |
2026/6/25 |
|
|
6階 |
G 21.15坪 (69.92m2) |
359,550 (17,000) |
10ヶ月 |
無 |
2026/9/2 |
|
物件番号:083185
更新日:2026/4/21
豊島区東池袋1-21-1
【竣工】1991/2
【階建て】地上8F 、地下2F
|
【最寄駅】
|
【耐震】 |
新耐震 |
| 【基準階】 |
|
【エントランス】 |
|
| 【駐車場】 |
無し |
【エレベーター】 |
2基 |
ラグーン池袋ビルは、東京都豊島区東池袋1丁目に位置する地上8階・地下2階建ての賃貸オフィスビルです。1991年2月に竣工し、新耐震基準に適合した構造を採用しているため、地震リスクへの備えも…

| 図面 |
階数 |
面積 |
賃料(共益費込) (坪単価) |
保証金/敷金 |
礼金 |
入居可能日 |
|
|
8階 |
G 39.89坪 (131.87m2) |
|
12ヶ月 |
無 |
即日 |
|
非公開物件の賃料目安アイコン
8,000 円未満
8,000 円以上~1.0 万円未満
1.0 万以上~1.2 万円未満
1.2 万以上~1.4 万円未満
1.4 万以上~1.6 万円未満
1.6 万以上~2.0 万円未満
2.0 万以上~2.5 万円未満
2.5 万以上~3.0 万円未満
3.0 万円以上
未定
※取引態様:媒介
※フロア図面と現況が異なる場合は現況を優先いたします。
※貸室内部の写真・貸室からの景色に関しては、現在の募集フロアと異なる場合がございます。
※取引態様:媒介
新耐震基準の貸事務所|エリア別
耐震性高い貸事務所(制震構造・免震構造)
さらに耐震性が高い、制震構造、免震構造の事務所を賃貸したい方は下記からお探しいただくと便利です。
豊島区の貸事務所検索ページ