50坪(40坪~60坪)の貸事務所(田町・三田・芝)(40~60坪)
50坪の貸事務所を掲載しています50坪前後の貸事務所を探す方に参考になるように40坪から60坪の範囲でオフィス物件を抽出しています。このページでは中でも港区にある田町・三田・芝エリアのオフィスビルに限定して掲載しています。40坪~60坪とは、約20名~30名程度で利用する広さのオフィスになります。平米で換算すると約120㎡から190㎡程度の広さです。是非、オフィス移転のご参考にしてください。
50坪(40坪~60坪)の貸事務所(田町・三田・芝)
物件番号:080591
更新日:2025/12/23
港区芝5-25-1
【竣工】2023/7
【階建て】地上9F
|
【最寄駅】
|
【耐震】 |
新耐震 |
| 【基準階】 |
45.33坪 |
【エントランス】 |
平日のみ開放 |
| 【駐車場】 |
無し |
【エレベーター】 |
1基 |
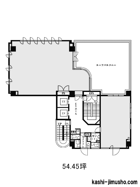
クローバー三田は、東京都港区芝5-25に位置する賃貸オフィスビルで、桜田通りに面しています。このビルは2023年に竣工し、新耐震基準を満たした鉄筋コンクリート造の地上9階建て(地下階なし)の…

| 図面 |
階数 |
面積 |
賃料(共益費込) (坪単価) |
保証金/敷金 |
礼金 |
入居可能日 |
|
|
2階 |
G 44.29坪 (146.41m2) |
|
5ヶ月 |
無 |
即日 |
|
|
4階 |
G 44.34坪 (146.58m2) |
|
6ヶ月 |
無 |
即日 |
|
|
6階 |
G 44.42坪 (146.84m2) |
|
6ヶ月 |
無 |
即日 |
|
|
7階 |
G 44.42坪 (146.84m2) |
|
6ヶ月 |
無 |
即日 |
|
物件番号:079224
更新日:2026/1/13
港区芝浦3-15-6
【竣工】2022/9
【階建て】地上6F
|
【最寄駅】
|
【耐震】 |
新耐震 |
| 【基準階】 |
57.65坪 |
【エントランス】 |
平日のみ開放 |
| 【駐車場】 |
無し |
【エレベーター】 |
1基 |
島倉田町ビルは、東京都港区芝浦3-15-6に位置する新しい賃貸オフィスビルで、2022年に竣工した鉄筋コンクリート造の地上6階建て物件です。新耐震基準に適合しており、耐震性と安全性を備えた設計…

| 図面 |
階数 |
面積 |
賃料(共益費込) (坪単価) |
保証金/敷金 |
礼金 |
入居可能日 |
|
|
3階 |
G 56.10坪 (185.46m2) |
|
6ヶ月 |
無 |
即日 |
|
|
4階 |
G 56.10坪 (185.46m2) |
|
6ヶ月 |
無 |
即日 |
|
|
5階 |
G 56.10坪 (185.46m2) |
|
6ヶ月 |
無 |
即日 |
|
|
6階 |
G 56.10坪 (185.46m2) |
|
6ヶ月 |
無 |
即日 |
|
物件番号:066178
更新日:2026/1/9
港区芝4-13-4
【竣工】2016/10
【階建て】地上9F
|
【最寄駅】
|
【耐震】 |
新耐震 |
| 【基準階】 |
56.03坪 |
【エントランス】 |
全日開放(制限有) |
| 【駐車場】 |
有り |
【エレベーター】 |
1基 |
田町第16藤島ビルは、港区芝4丁目に位置する賃貸オフィスビルです。最寄り駅は都営浅草線・三田線の三田駅で、徒歩2分圏内という好立地にあります。さらに、徒歩5分圏内にはJR山手線・京浜東北線…

| 図面 |
階数 |
面積 |
賃料(共益費込) (坪単価) |
保証金/敷金 |
礼金 |
入居可能日 |
|
|
6階 |
G 56.03坪 (185.22m2) |
1,120,600 (20,000) |
9,525,100 (10ヶ月) |
無 |
2026/4/1 |
|
物件番号:035327
更新日:2026/1/5
港区芝2-9-5
【竣工】1993/10
【階建て】地上6F 、地下1F
|
【最寄駅】
|
【耐震】 |
新耐震 |
| 【基準階】 |
48.43坪 |
【エントランス】 |
オートロック |
| 【駐車場】 |
無し |
【エレベーター】 |
1基 |
芝公園駅より徒歩4分、港区芝エリアの賃貸オフィスビルです。ワースリビングFKOビルは、東京都港区芝2-9-5に位置する地上6階建て、地下1階のオフィスビルで、1993年に竣工しました。都営三田線の…

| 図面 |
階数 |
面積 |
賃料(共益費込) (坪単価) |
保証金/敷金 |
礼金 |
入居可能日 |
|
|
3階 |
G 48.43坪 (160.10m2) |
748,545 (15,457) |
3,957,270 (6ヶ月) |
無 |
即日 |
|
物件番号:015778
更新日:2025/12/12
港区芝3-14-6
【竣工】1993/10
【階建て】地上5F
|
【最寄駅】
|
【耐震】 |
新耐震 |
| 【基準階】 |
45.28坪 |
【エントランス】 |
|
| 【駐車場】 |
有り |
【エレベーター】 |
1基 |
赤羽橋駅が最寄りの閑静な立地にあるシントクビルは、港区芝3-14-6に位置する賃貸オフィスビルです。都営大江戸線の赤羽橋駅まで徒歩4分、都営三田線の芝公園駅まで徒歩6分と、複数の路線が利用…

| 図面 |
階数 |
面積 |
賃料(共益費込) (坪単価) |
保証金/敷金 |
礼金 |
入居可能日 |
|
|
3階 |
G 45.28坪 (149.69m2) |
633,920 (14,000) |
3,803,520 (6ヶ月) |
無 |
2026/4/1 |
|
物件番号:037027
更新日:2025/12/11
港区芝4-12-2
【竣工】1993/6
【階建て】地上9F 、地下1F
|
【最寄駅】
|
【耐震】 |
新耐震 |
| 【基準階】 |
59.40坪 |
【エントランス】 |
平日のみ開放 |
| 【駐車場】 |
無し |
【エレベーター】 |
2基 |
クロスサイド田町ビルは、東京都港区芝4丁目に位置するオフィスビルで、優れた立地と充実した設備が特徴の物件です。最寄り駅である都営浅草線・三田線「三田駅」から徒歩2分、JR山手線・京浜東…

| 図面 |
階数 |
面積 |
賃料(共益費込) (坪単価) |
保証金/敷金 |
礼金 |
入居可能日 |
|
|
8階 |
G 59.40坪 (196.36m2) |
1,069,200 (18,000) |
8,553,600 (8ヶ月) |
無 |
即日 |
|
物件番号:048280
更新日:2025/12/15
港区芝3-6-9
【竣工】1993/3(改修:2006)
【階建て】地上9F 、地下1F
|
【最寄駅】
|
【耐震】 |
新耐震 |
| 【基準階】 |
50.88坪 |
【エントランス】 |
平日・土開放 |
| 【駐車場】 |
有り |
【エレベーター】 |
1基 |
芝公園プラザビルは、港区芝3丁目6番9号に位置する賃貸オフィスビルで、都営三田線「芝公園駅」から徒歩1分圏内という抜群のアクセス環境を誇ります。さらに徒歩5分圏内には都営浅草線・都営三田…

| 図面 |
階数 |
面積 |
賃料(共益費込) (坪単価) |
保証金/敷金 |
礼金 |
入居可能日 |
|
|
4階 |
G 50.88坪 (168.19m2) |
915,840 (18,000) |
7,326,720 (8ヶ月) |
1.0ヶ月 |
即日 |
|
物件番号:015926
更新日:2026/1/5
港区芝5-1-13
【竣工】1992/5
【階建て】地上9F 、地下1F
|
【最寄駅】
|
【耐震】 |
新耐震 |
| 【基準階】 |
59.88坪 |
【エントランス】 |
平日のみ開放 |
| 【駐車場】 |
有り |
【エレベーター】 |
1基 |
MAビル三田Ⅱは、東京都港区芝5-1-13に位置する賃貸オフィスビルで、桜田通りに面した視認性の高い物件です。1992年に竣工し、新耐震基準を満たした鉄骨鉄筋コンクリート造の地上9階建て(地下1階…

| 図面 |
階数 |
面積 |
賃料(共益費込) (坪単価) |
保証金/敷金 |
礼金 |
入居可能日 |
|
|
3階 |
G 59.88坪 (197.95m2) |
|
6ヶ月 |
1.0ヶ月 |
2026/4/1 |
|
物件番号:015580
更新日:2026/1/5
港区芝3-24-3
【竣工】1990/12
【階建て】地上5F
|
【最寄駅】
|
【耐震】 |
新耐震 |
| 【基準階】 |
46.88坪 |
【エントランス】 |
|
| 【駐車場】 |
無し |
【エレベーター】 |
1基 |
SUNTORAビルは東京都港区芝3-24-3に位置するオフィスビルです。都営三田線の芝公園駅から徒歩2分、都営大江戸線の赤羽橋駅からも徒歩5分と、複数の路線を利用できるアクセス環境が魅力です。さら…

| 図面 |
階数 |
面積 |
賃料(共益費込) (坪単価) |
保証金/敷金 |
礼金 |
入居可能日 |
|
|
2階 |
G 46.88坪 (154.98m2) |
609,440 (13,000) |
4,500,000 (95,990) |
無 |
即日 |
|
物件番号:015997
更新日:2025/12/12
港区芝浦3-14-18
【竣工】1988/3(改修:2021)
【階建て】地上8F
|
【最寄駅】
|
【耐震】 |
新耐震 |
| 【基準階】 |
52.95坪 |
【エントランス】 |
|
| 【駐車場】 |
無し |
【エレベーター】 |
1基 |
キャナルスクエア芝浦は、港区芝浦エリアに位置するスタイリッシュな賃貸オフィスビルです。ビルはももよ通りに面しており、視認性が高く、周囲には整備された歩道や街路樹が並ぶ、落ち着いた都…

| 図面 |
階数 |
面積 |
賃料(共益費込) (坪単価) |
保証金/敷金 |
礼金 |
入居可能日 |
|
|
5階 |
G 52.95坪 (175.06m2) |
1,376,700 (26,000) |
8,260,200 (6ヶ月) |
無 |
2026/4/1 |
|
物件番号:015687
更新日:2025/12/12
港区芝5-30-9
【竣工】1987/9(改修:2002)
【階建て】地上10F 、地下1F
|
【最寄駅】
|
【耐震】 |
新耐震 |
| 【基準階】 |
56.19坪 |
【エントランス】 |
|
| 【駐車場】 |
無し |
【エレベーター】 |
1基 |
THE PORTAL 田町(東京都港区芝5-30-9)は、第一京浜に面しており、駅から分かりやすい好立地の貸事務所物件です。都営三田線・浅草線「三田駅」まで徒歩2分、JR山手線・京浜東北線「田町駅」も…

| 図面 |
階数 |
面積 |
賃料(共益費込) (坪単価) |
保証金/敷金 |
礼金 |
入居可能日 |
|
|
2階 |
G 57.73坪 (190.87m2) |
1,905,090 (33,000) |
11,430,540 (6ヶ月) |
無 |
2026/1 予定 |
|
|
3階 |
G 57.73坪 (190.87m2) |
1,905,090 (33,000) |
11,430,540 (6ヶ月) |
無 |
即日 |
|
|
6階 |
G 57.73坪 (190.87m2) |
1,905,090 (33,000) |
11,430,540 (6ヶ月) |
無 |
即日 |
|
|
7階 |
G 57.73坪 (190.87m2) |
1,905,090 (33,000) |
11,430,540 (6ヶ月) |
無 |
即日 |
|
|
8階 |
G 57.73坪 (190.87m2) |
1,905,090 (33,000) |
11,430,540 (6ヶ月) |
無 |
2026/2 予定 |
|
物件番号:015988
更新日:2025/12/18
港区芝浦3-19-19
【竣工】1987/5(改修:2011)
【階建て】地上8F
|
【最寄駅】
|
【耐震】 |
新耐震 |
| 【基準階】 |
53.42坪 |
【エントランス】 |
全日開放(24h) |
| 【駐車場】 |
有り |
【エレベーター】 |
1基 |
オー・アイ・芝浦ビルは、港区芝浦3-19-19にある物件です。徒歩8分圏内でJR山手線・JR京浜東北線の田町駅、徒歩10分圏内で都営浅草線・都営三田線の三田駅が利用可能となっています。複数路線が…

| 図面 |
階数 |
面積 |
賃料(共益費込) (坪単価) |
保証金/敷金 |
礼金 |
入居可能日 |
|
|
5階 |
G 53.42坪 (176.60m2) |
801,300 (15,000) |
4,807,800 (6ヶ月) |
1.0ヶ月 |
即日 |
|
物件番号:015666
更新日:2026/1/9
港区芝2-23-15
【竣工】1987/3
【階建て】地上5F 、地下1F
|
【最寄駅】
|
【耐震】 |
新耐震 |
| 【基準階】 |
43.30坪 |
【エントランス】 |
平日・土開放 |
| 【駐車場】 |
無し |
【エレベーター】 |
1基 |
ARZ芝公園は、港区芝2-23-15にある物件です。徒歩5分圏内で都営浅草線・都営三田線の三田駅、都営三田線の芝公園駅、徒歩10分圏内でJR山手線・JR京浜東北線の田町駅が利用可能となっています。複…

| 図面 |
階数 |
面積 |
賃料(共益費込) (坪単価) |
保証金/敷金 |
礼金 |
入居可能日 |
|
|
3階 |
G 45.88坪 (151.68m2) |
1,284,640 (28,000) |
7,707,840 (6ヶ月) |
無 |
即日 |
|
物件番号:015627
更新日:2026/1/5
港区芝2-29-11
【竣工】1987/2
【階建て】地上9F
|
【最寄駅】
|
【耐震】 |
新耐震 |
| 【基準階】 |
41.64坪 |
【エントランス】 |
全日開放(24h) |
| 【駐車場】 |
無し |
【エレベーター】 |
1基 |
高浦ビルは、港区芝2丁目29番11号に位置する賃貸オフィスビルで、交通アクセスに優れた立地です。最寄り駅は、徒歩5分圏内で都営浅草線・都営三田線の三田駅、徒歩9分圏内でJR山手線・京浜東北線…

| 図面 |
階数 |
面積 |
賃料(共益費込) (坪単価) |
保証金/敷金 |
礼金 |
入居可能日 |
|
|
2階 |
G 41.64坪 (137.66m2) |
562,140 (13,500) |
2,748,240 (6ヶ月) |
1.0ヶ月 |
2026/6/1 |
|
|
8階 |
G 41.64坪 (137.66m2) |
562,140 (13,500) |
2,748,240 (6ヶ月) |
1.0ヶ月 |
2026/6/1 |
|
物件番号:015519
更新日:2026/1/13
港区芝4-5-11
【竣工】1984/11(改修:2007)
【階建て】地上10F 、地下1F
|
【最寄駅】
|
【耐震】 |
新耐震 |
| 【基準階】 |
63.76坪 |
【エントランス】 |
平日・土開放 |
| 【駐車場】 |
有り |
【エレベーター】 |
1基 |
芝プラザビルは東京都港区芝4-5-11にある賃貸オフィスビルです。田町エリア、第一京浜沿いに位置する分かりやすく案内しやすい立地です。2007年リニューアル済みの石張りでグレード感のある外観…

| 図面 |
階数 |
面積 |
賃料(共益費込) (坪単価) |
保証金/敷金 |
礼金 |
入居可能日 |
|
|
4階 |
G 50.23坪 (166.05m2) |
|
8ヶ月 |
無 |
即日 |
|
|
5階 |
G 50.23坪 (166.05m2) |
|
8ヶ月 |
無 |
2026/5 |
|
物件番号:015896
更新日:2025/12/11
港区芝3-12-18
【竣工】1984/5
【階建て】地上5F 、地下1F
|
【最寄駅】
|
【耐震】 |
新耐震 |
| 【基準階】 |
|
【エントランス】 |
オートロック |
| 【駐車場】 |
無し |
【エレベーター】 |
1基 |
震基準に適合しているため、安全性に優れた建物です。必要な設備をしっかりと備えており、利便性と快適性を両立したオフィス空間を提供しています。基準階は使いやすいレイアウトが可能で、床は…

| 図面 |
階数 |
面積 |
賃料(共益費込) (坪単価) |
保証金/敷金 |
礼金 |
入居可能日 |
|
|
B1階 |
G 49.43坪 (163.41m2) |
650,000 (13,150) |
3,250,000 (5ヶ月) |
1.0ヶ月 |
即日 |
|
物件番号:015501
更新日:2026/1/6
港区芝3-3-14
【竣工】1972/5(改修:2013)
【階建て】地上7F 、地下1F
|
【最寄駅】
|
【耐震】 |
旧耐震 |
| 【基準階】 |
40.76坪 |
【エントランス】 |
平日のみ開放 |
| 【駐車場】 |
無し |
【エレベーター】 |
1基 |
ニットクビルは、東京都港区芝3丁目に位置する地上7階・地下1階建てのオフィスビルです。1972年5月に竣工し、鉄筋コンクリート(RC)造で建てられています。最寄りの都営三田線「芝公園駅」から…

| 図面 |
階数 |
面積 |
賃料(共益費込) (坪単価) |
保証金/敷金 |
礼金 |
入居可能日 |
|
|
4階 |
G 40.76坪 (134.74m2) |
570,640 (14,000) |
3,709,160 (7ヶ月) |
無 |
即日 |
|
※取引態様:媒介
※フロア図面と現況が異なる場合は現況を優先いたします。
※貸室内部の写真・貸室からの景色に関しては、現在の募集フロアと異なる場合がございます。
※取引態様:媒介
その他、田町・三田・芝エリアの貸事務所をお探しの方はこちらをクリック

50坪の貸事務所、賃貸オフィス
50坪(40坪~60坪)の千代田区貸事務所
50坪(40坪~60坪)の中央区貸事務所
50坪(40坪~60坪)の港区貸事務所
50坪(40坪~60坪)の新宿区貸事務所
50坪(40坪~60坪)の渋谷区貸事務所
50坪(40坪~60坪)の台東区貸事務所
50坪(40坪~60坪)の品川区貸事務所
50坪(40坪~60坪)の豊島区貸事務所
50坪(40坪~60坪)の文京区貸事務所
50坪(40坪~60坪)の目黒区貸事務所
東京都内の50坪(40坪~60坪)の貸事務所
田町・三田・芝エリアの関連特集