50坪(40坪~60坪)の貸事務所(新橋・西新橋・汐留)(40~60坪)
50坪の貸事務所を掲載しています50坪前後の貸事務所を探す方に参考になるように40坪から60坪の範囲でオフィス物件を抽出しています。このページでは中でも港区にある新橋・西新橋・汐留エリアのオフィスビルに限定して掲載しています。40坪~60坪とは、約20名~30名程度で利用する広さのオフィスになります。平米で換算すると約120㎡から190㎡程度の広さです。是非、オフィス移転のご参考にしてください。
50坪(40坪~60坪)の貸事務所(新橋・西新橋・汐留)
物件番号:082599
更新日:2026/3/4
港区新橋5-23-7
【竣工】2025/5
【階建て】地上14F 、地下1F
|
【最寄駅】
|
【耐震】 |
新耐震 |
| 【基準階】 |
45.40坪 |
【エントランス】 |
オートロック |
| 【駐車場】 |
無し |
【エレベーター】 |
2基 |
ASOOM新橋は、東京都港区新橋5丁目に位置する、2025年5月竣工のオフィスビルです。地上14階・地下1階建ての構造で、RC造による新耐震基準を満たした堅牢な建物です。交通利便性にも優れており、…

| 図面 |
階数 |
面積 |
賃料(共益費込) (坪単価) |
保証金/敷金 |
礼金 |
入居可能日 |
|
|
2階 |
G 45.40坪 (150.08m2) |
|
(未公開) |
無 |
即日 |
|
|
5階 |
G 45.40坪 (150.08m2) |
|
(未公開) |
無 |
即日 |
|
|
6階 |
G 45.40坪 (150.08m2) |
|
(未公開) |
無 |
即日 |
|
|
7階 |
G 45.40坪 (150.08m2) |
|
(未公開) |
無 |
即日 |
|
|
9階 |
G 43.04坪 (142.28m2) |
|
(未公開) |
無 |
即日 |
|
物件番号:081653
更新日:2026/3/11
港区新橋1-14-8
【竣工】2024/12
【階建て】地上14F
|
【最寄駅】
|
【耐震】 |
新耐震 |
| 【基準階】 |
40.84坪 |
【エントランス】 |
|
| 【駐車場】 |
有り |
【エレベーター】 |
1基 |
VORT新橋一丁目は、東京都港区新橋1-14-8に位置する最新のオフィスビルです。地上14階建てのS造(鉄骨造)で、新耐震基準を満たしており、安心して利用できる堅牢な設計が特徴です。銀座線新橋駅…

| 図面 |
階数 |
面積 |
賃料(共益費込) (坪単価) |
保証金/敷金 |
礼金 |
入居可能日 |
|
|
3階 |
G 40.08坪 (132.50m2) |
|
5ヶ月 |
無 |
即日 |
|
|
8階 |
G 40.08坪 (132.50m2) |
|
5ヶ月 |
無 |
即日 |
|
物件番号:053630
更新日:2026/3/11
港区西新橋2-4-12
【竣工】2008/12
【階建て】地上9F 、地下1F
|
【最寄駅】
|
【耐震】 |
新耐震 |
| 【基準階】 |
41.89坪 |
【エントランス】 |
オートロック |
| 【駐車場】 |
無し |
【エレベーター】 |
1基 |
西新橋・虎ノ門エリア。前面ガラス張りの美しい外観が印象的なオフィスビル。西新橋PR-EXビルは、港区西西新橋2丁目、内幸町駅より徒歩5分圏内の好立地にあるオフィスビルです。東京メトロ…

| 図面 |
階数 |
面積 |
賃料(共益費込) (坪単価) |
保証金/敷金 |
礼金 |
入居可能日 |
|
|
2階 |
G 40.46坪 (133.75m2) |
|
5ヶ月 |
無 |
2026/8/26 |
|
|
6階 |
G 40.46坪 (133.75m2) |
|
5ヶ月 |
無 |
2026/7/6 |
|
物件番号:046066
更新日:2026/3/13
港区東新橋2-11-4
【竣工】2005/10
【階建て】地上11F
|
【最寄駅】
|
【耐震】 |
新耐震 |
| 【基準階】 |
48.26坪 |
【エントランス】 |
全日開放(制限有) |
| 【駐車場】 |
有り |
【エレベーター】 |
1基 |
Mayapada Shiodome Plaza(マヤパダ汐留プラザ)は、港区東新橋2丁目に位置する、スタイリッシュで洗練された外観が印象的な賃貸オフィスビルです。美しいガラスカーテンウォールを採用した外観…

| 図面 |
階数 |
面積 |
賃料(共益費込) (坪単価) |
保証金/敷金 |
礼金 |
入居可能日 |
|
|
9階 |
G 48.26坪 (159.54m2) |
|
6ヶ月 |
無 |
即日 |
|
|
10階 |
G 48.26坪 (159.55m2) |
|
6ヶ月 |
無 |
即日 |
|
物件番号:036645
更新日:2026/3/9
港区東新橋2-18-3
【竣工】2002/9
【階建て】地上11F 、地下1F
|
【最寄駅】
|
【耐震】 |
新耐震 |
| 【基準階】 |
124.36坪 |
【エントランス】 |
平日のみ開放 |
| 【駐車場】 |
有り |
【エレベーター】 |
2基 |
東京都港区東新橋2-18-3に位置するルネパルティーレ汐留です。東京の新しいビジネス街・汐留エリアに立地する高級賃貸オフィスビルです。都営大江戸線とゆりかもめ線の汐留駅から徒歩圏内と、抜…

| 図面 |
階数 |
面積 |
賃料(共益費込) (坪単価) |
保証金/敷金 |
礼金 |
入居可能日 |
|
|
2階 |
N 43.87坪 (144.99m2) |
1,140,620 (26,000) |
5ヶ月 |
無 |
2026/7/1 |
|
物件番号:010778
更新日:2026/3/3
港区台場2-3-1
【竣工】2001/2
【階建て】地上23F 、地下2F
|
【最寄駅】
|
【耐震】 |
新耐震+制震 |
| 【基準階】 |
649.85坪 |
【エントランス】 |
平日のみ開放 |
| 【駐車場】 |
有り |
【エレベーター】 |
19基 |
トレードピアお台場は、港区台場2丁目に位置する大型オフィスビルで、2001年に竣工した新耐震基準を満たした安心の建物です。構造は鉄骨鉄筋コンクリート造・地上23階建て(地下2階)で、制震構…

| 図面 |
階数 |
面積 |
賃料(共益費込) (坪単価) |
保証金/敷金 |
礼金 |
入居可能日 |
|
|
7階 |
G 55.83坪 (184.53m2) |
|
8ヶ月 |
無 |
即日 |
|
|
10階 |
G 55.83坪 (184.56m2) |
|
8ヶ月 |
無 |
相談 |
|
|
10階 |
G 55.83坪 (184.56m2) |
|
8ヶ月 |
無 |
相談 |
|
物件番号:013618
更新日:2026/3/9
港区新橋2-10-5
【竣工】1994/8
【階建て】地上9F
|
【最寄駅】
|
【耐震】 |
新耐震 |
| 【基準階】 |
48.31坪 |
【エントランス】 |
平日のみ開放 |
| 【駐車場】 |
無し |
【エレベーター】 |
1基 |
新橋・赤レンガ通り沿い。ハイグレード賃貸オフィスビル。新橋原ビルは港区新橋2丁目、JR線新橋駅より徒歩2分圏内、東京メトロ銀座線・都営浅草線の新橋駅より徒歩3分圏内、新橋駅近く赤レンガ通…

| 図面 |
階数 |
面積 |
賃料(共益費込) (坪単価) |
保証金/敷金 |
礼金 |
入居可能日 |
|
|
NEW4階 |
G 48.31坪 (159.70m2) |
|
12ヶ月 |
無 |
2026/9/1 |
|
物件番号:013500
更新日:2026/3/4
港区新橋6-20-11
【竣工】1992/11
【階建て】地上8F
|
【最寄駅】
|
【耐震】 |
新耐震 |
| 【基準階】 |
48.00坪 |
【エントランス】 |
|
| 【駐車場】 |
無し |
【エレベーター】 |
1基 |
新橋IKビルは、東京都港区新橋6-20-11に位置する地上8階建てのオフィスビルです。1992年11月に竣工し、S造で建てられています。新耐震基準に適合しており、安全性にも優れています。交通アクセス…

| 図面 |
階数 |
面積 |
賃料(共益費込) (坪単価) |
保証金/敷金 |
礼金 |
入居可能日 |
|
|
3階 |
G 48.00坪 (158.68m2) |
720,000 (15,000) |
6ヶ月 |
無 |
即日 |
|
物件番号:013558
更新日:2026/3/5
港区新橋4-5-1
【竣工】1992/4
【階建て】地上14F 、地下2F
|
【最寄駅】
|
【耐震】 |
新耐震 |
| 【基準階】 |
146.75坪 |
【エントランス】 |
平日・土開放 |
| 【駐車場】 |
有り |
【エレベーター】 |
3基 |
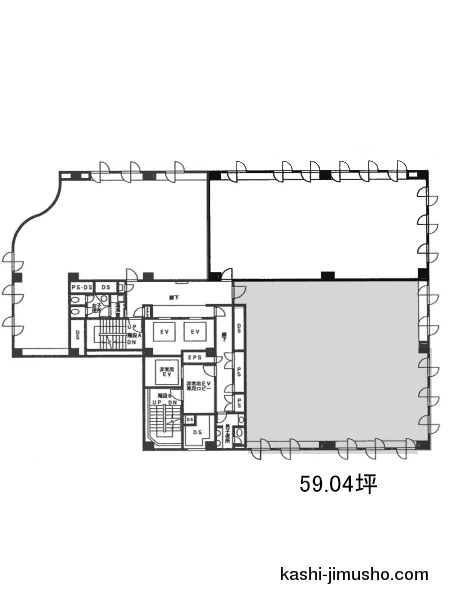
港区新橋4丁目にある、アーバン新橋ビルです。最寄り駅は、新橋駅です。徒歩5分圏内で、JR山手線・JR京浜東北線・ゆりかもめ線・東京メトロ銀座線・都営浅草線等の複数路線がアクセス可能な便利…

| 図面 |
階数 |
面積 |
賃料(共益費込) (坪単価) |
保証金/敷金 |
礼金 |
入居可能日 |
|
|
4階 |
N 59.04坪 (195.17m2) |
1,535,040 (26,000) |
10ヶ月 |
1.0ヶ月 |
即日 |
|
物件番号:013666
更新日:2026/3/4
港区新橋2-3-7
【竣工】1989/11
【階建て】地上7F 、地下2F
|
【最寄駅】
|
【耐震】 |
新耐震 |
| 【基準階】 |
58.48坪 |
【エントランス】 |
|
| 【駐車場】 |
無し |
【エレベーター】 |
1基 |
新橋第二中ビルは、港区新橋二丁目に位置する1989年竣工のオフィスビルで、耐震新耐震基準に適合したSRC造の堅牢な建物です。内幸町駅から徒歩1分、新橋駅からも徒歩3分と、都心の中心地に近接し…

| 図面 |
階数 |
面積 |
賃料(共益費込) (坪単価) |
保証金/敷金 |
礼金 |
入居可能日 |
|
|
4階 |
G 58.48坪 (193.32m2) |
1,189,600 (20,342) |
6ヶ月 |
無 |
即日 |
|
物件番号:014178
更新日:2026/3/2
港区西新橋1-16-3
【竣工】1980/3(改修:1993)
【階建て】地上9F
|
【最寄駅】
|
【耐震】 |
旧耐震+補強済 or 基準OK |
| 【基準階】 |
57.23坪 |
【エントランス】 |
平日のみ開放 |
| 【駐車場】 |
無し |
【エレベーター】 |
1基 |
1東洋海事ビルは、東京都港区西新橋1-16-3に位置する、ビジネス利用に適したオフィスビルです。都営三田線内幸町駅から徒歩1分、さらにJR山手線、京浜東北線、横須賀線、東海道本線、銀座線の各…

| 図面 |
階数 |
面積 |
賃料(共益費込) (坪単価) |
保証金/敷金 |
礼金 |
入居可能日 |
|
|
5階 |
G 44.81坪 (148.13m2) |
|
(未公開) |
無 |
2026/4 |
|
|
9階 |
G 57.23坪 (189.19m2) |
|
(未公開) |
無 |
即日 |
|
物件番号:014295
更新日:2026/3/9
港区西新橋1-23-9
【竣工】1979/7
【階建て】地上8F 、地下1F
|
【最寄駅】
|
【耐震】 |
旧耐震 |
| 【基準階】 |
53.50坪 |
【エントランス】 |
平日・土開放 |
| 【駐車場】 |
有り |
【エレベーター】 |
1基 |
複数駅からアクセス良好、利便性の高さが魅力に西新橋エリアの賃貸オフィスビルです。河野ビルは、東京都港区西新橋1-23-9に位置するオフィスビルで、ビジネスの利便性と快適な職場環境を提供し…

| 図面 |
階数 |
面積 |
賃料(共益費込) (坪単価) |
保証金/敷金 |
礼金 |
入居可能日 |
|
|
3階 |
G 53.54坪 (176.99m2) |
803,100 (15,000) |
8ヶ月 |
無 |
即日 |
|
|
4階 |
G 53.39坪 (176.50m2) |
800,850 (15,000) |
8ヶ月 |
無 |
即日 |
|
物件番号:014186
更新日:2026/3/2
港区西新橋2-8-11
【竣工】1977/4(改修:2016)
【階建て】地上10F
|
【最寄駅】
|
【耐震】 |
旧耐震+補強済 or 基準OK |
| 【基準階】 |
90.00坪 |
【エントランス】 |
平日・土開放 |
| 【駐車場】 |
無し |
【エレベーター】 |
2基 |
日比谷通り沿いの好立地の賃貸オフィスビルです。7東洋海事ビルは、東京都港区西新橋2-8-11に位置するオフィスビルです。ビジネスの拠点として優れた立地と機能性を提供しています。1977年に竣工…

| 図面 |
階数 |
面積 |
賃料(共益費込) (坪単価) |
保証金/敷金 |
礼金 |
入居可能日 |
|
|
2階 |
G 59.30坪 (197.03m2) |
|
(未公開) |
無 |
即日 |
|
物件番号:013478
更新日:2026/3/2
港区新橋3-2-5
【竣工】1973/4(改修:2016)
【階建て】地上6F 、地下1F
|
【最寄駅】
|
【耐震】 |
旧耐震+補強済 or 基準OK |
| 【基準階】 |
70.00坪 |
【エントランス】 |
平日・土開放 |
| 【駐車場】 |
無し |
【エレベーター】 |
1基 |
5東洋海事ビルは、東京都港区新橋に位置し、内幸町駅から徒歩4分、新橋駅から徒歩5分と、非常に利便性の高い立地にあります。1973年4月に竣工し、2016年にリニューアルされた6階建てのオフィスビ…

| 図面 |
階数 |
面積 |
賃料(共益費込) (坪単価) |
保証金/敷金 |
礼金 |
入居可能日 |
|
|
5階 |
G 55.00坪 (181.81m2) |
|
(未公開) |
無 |
即日 |
|
物件番号:014285
更新日:2026/3/2
港区西新橋1-5-14
【竣工】1972/9(改修:2016)
【階建て】地上9F
|
【最寄駅】
|
【耐震】 |
旧耐震+補強済 or 基準OK |
| 【基準階】 |
60.24坪 |
【エントランス】 |
平日・土開放 |
| 【駐車場】 |
無し |
【エレベーター】 |
1基 |
内幸町1ビルは、東京都港区西新橋1-5-14に位置する、アクセス抜群のオフィスビルです。都営三田線内幸町駅から徒歩2分、銀座線虎ノ門駅から徒歩3分、さらに丸ノ内線・日比谷線・千代田線の霞ヶ関…

| 図面 |
階数 |
面積 |
賃料(共益費込) (坪単価) |
保証金/敷金 |
礼金 |
入居可能日 |
|
|
9階 |
G 60.30坪 (199.34m2) |
|
(未公開) |
無 |
即日 |
|
物件番号:014250
更新日:2026/3/4
港区西新橋3-24-1
【竣工】1970/10
【階建て】地上5F
|
【最寄駅】
|
【耐震】 |
旧耐震 |
| 【基準階】 |
60.00坪 |
【エントランス】 |
平日のみ開放 |
| 【駐車場】 |
有り |
【エレベーター】 |
1基 |
御成門コープは、東京都港区西新橋3-24-1に位置する、都心の利便性に恵まれたオフィスビルです。都営三田線の御成門駅から徒歩1分という優れたアクセス環境を持ち、日比谷線の神谷町駅まで徒歩7…

| 図面 |
階数 |
面積 |
賃料(共益費込) (坪単価) |
保証金/敷金 |
礼金 |
入居可能日 |
|
|
2階 |
G 45.00坪 (148.76m2) |
630,000 (14,000) |
3,800,000 (84,444) |
無 |
即日 |
|
物件番号:013906
更新日:2026/3/3
港区新橋1-18-2
【竣工】1964
【階建て】地上8F 、地下1F
|
【最寄駅】
|
【耐震】 |
旧耐震+補強済 or 基準OK |
| 【基準階】 |
101.00坪 |
【エントランス】 |
平日・土開放 |
| 【駐車場】 |
有り |
【エレベーター】 |
2基 |
明宏ビル本館は、東京都港区新橋1-18-2に位置する地上8階・地下1階建てのオフィスビルです。1964年に竣工し、構造はSRC造(鉄骨鉄筋コンクリート造)を採用しています。交通アクセスにおいては特…

| 図面 |
階数 |
面積 |
賃料(共益費込) (坪単価) |
保証金/敷金 |
礼金 |
入居可能日 |
|
|
7階 |
G 50.30坪 (166.28m2) |
1,006,000 (20,000) |
10ヶ月 |
無 |
2026/3/20 |
|
非公開物件の賃料目安アイコン
8,000 円未満
8,000 円以上~1.0 万円未満
1.0 万以上~1.2 万円未満
1.2 万以上~1.4 万円未満
1.4 万以上~1.6 万円未満
1.6 万以上~2.0 万円未満
2.0 万以上~2.5 万円未満
2.5 万以上~3.0 万円未満
3.0 万円以上
未定
※取引態様:媒介
※フロア図面と現況が異なる場合は現況を優先いたします。
※貸室内部の写真・貸室からの景色に関しては、現在の募集フロアと異なる場合がございます。
※取引態様:媒介
その他、新橋・西新橋・汐留エリアの貸事務所をお探しの方はこちらをクリック

50坪の貸事務所、賃貸オフィス
50坪(40坪~60坪)の千代田区貸事務所
50坪(40坪~60坪)の中央区貸事務所
50坪(40坪~60坪)の港区貸事務所
50坪(40坪~60坪)の新宿区貸事務所
50坪(40坪~60坪)の渋谷区貸事務所
50坪(40坪~60坪)の台東区貸事務所
50坪(40坪~60坪)の品川区貸事務所
50坪(40坪~60坪)の豊島区貸事務所
50坪(40坪~60坪)の文京区貸事務所
50坪(40坪~60坪)の目黒区貸事務所
東京都内の50坪(40坪~60坪)の貸事務所
新橋・西新橋・汐留エリアの関連記事