トイレ男女別の貸事務所(築地・八丁堀・茅場町)(200坪以上)
築地・八丁堀・茅場町エリアにあるトイレが男女別の貸事務所を掲載しています。特に、女性のお客様が重要視するのがオフィスビルのトイレです。男性と同じトイレは敬遠されることが多く、男女別のトイレを希望するお客様がいらっしゃいます。そこで女性社員の快適性を考えトイレが男女別の貸事務所をご紹介します。
築地・八丁堀・茅場町エリアの男女別トイレ貸事務所
総数:7棟(16件)
- 1
| 図面 | 階数 | 面積 | 賃料(共益費込) (坪単価) |
保証金/敷金 | 礼金 | 入居可能日 | |
|---|---|---|---|---|---|---|---|
| 8階 | N 368.67坪 (1216.96m2) |
(未公開)
|
6ヶ月 | 無 | 即日 |
|
物件番号:035966
更新日:2026/4/27
中央区築地5-6-10
【竣工】2002/11
【階建て】地上17F 、地下2F
【最寄駅】
|
【耐震】 | 新耐震 | ||
|---|---|---|---|---|
| 【基準階】 | 436.88坪 | 【エントランス】 | 平日・土開放 | |
| 【駐車場】 | 有り | 【エレベーター】 | 9基 |
緑豊かな浜離宮恩賜庭園と東京湾が一望できる大型オフィスビルです。東京都中央区築地5-6-10にある浜離宮パークサイドプレイスは、2002年竣工の新耐震基準を満たした大型オフィスビルです。構造…

| 図面 | 階数 | 面積 | 賃料(共益費込) (坪単価) |
保証金/敷金 | 礼金 | 入居可能日 | |
|---|---|---|---|---|---|---|---|
| 2階 | N 463.95坪 (1533.73m2) |
(未公開)
|
(未公開) | 無 | 即日 |
|
| 図面 | 階数 | 面積 | 賃料(共益費込) (坪単価) |
保証金/敷金 | 礼金 | 入居可能日 | |
|---|---|---|---|---|---|---|---|
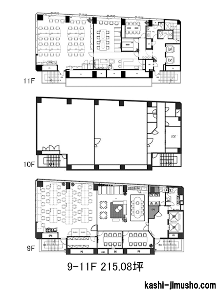
| 3階 | G 306.72坪 (1013.95m2) |
6,747,840 (22,000) |
8ヶ月 | 無 | 2026/5 上旬 |
|
| 図面 | 階数 | 面積 | 賃料(共益費込) (坪単価) |
保証金/敷金 | 礼金 | 入居可能日 | |
|---|---|---|---|---|---|---|---|
| 9階 | N 265.44坪 (877.49m2) |
(未公開)
|
12ヶ月 | 無 | 2027/1 予定 |
|
| 図面 | 階数 | 面積 | 賃料(共益費込) (坪単価) |
保証金/敷金 | 礼金 | 入居可能日 | |
|---|---|---|---|---|---|---|---|
| 3階 | N 254.20坪 (840.35m2) |
(未公開)
|
(未公開) | 無 | 2027/2 |
|
|
| 4階 | N 254.20坪 (840.35m2) |
(未公開)
|
(未公開) | 無 | 2027/2 |
|
|
| 5階 | N 254.20坪 (840.35m2) |
(未公開)
|
(未公開) | 無 | 2027/2 |
|
|
| 6階 | N 254.20坪 (840.35m2) |
(未公開)
|
(未公開) | 無 | 2027/2 |
|
|
| 7階 | N 254.20坪 (840.35m2) |
(未公開)
|
(未公開) | 無 | 2027/2 |
|
|
| 8階 | N 254.20坪 (840.35m2) |
(未公開)
|
(未公開) | 無 | 2027/2 |
|
|
| 9階 | N 254.20坪 (840.35m2) |
(未公開)
|
(未公開) | 無 | 2027/2 |
|
全7件を確認する
表示フロアを閉じる
※取引態様:媒介
※フロア図面と現況が異なる場合は現況を優先いたします。
※貸室内部の写真・貸室からの景色に関しては、現在の募集フロアと異なる場合がございます。
総数:7棟(16件)
- 1
※取引態様:媒介
その他、築地・八丁堀・茅場町の貸事務所をお探しの方はこちらをクリック
トイレ男女別貸事務所を区から探す
- 大手町・丸の内・有楽町・霞ヶ関のトイレ男女別貸事務所
- 番町・麹町・永田町のトイレ男女別貸事務所
- 御茶ノ水・神田 西側のトイレ男女別貸事務所
- 神田 東側・秋葉原 南側のトイレ男女別貸事務所
- 秋葉原・末広町のトイレ男女別貸事務所
- 九段・飯田橋・水道橋のトイレ男女別貸事務所
- 八重洲・京橋・日本橋のトイレ男女別貸事務所
- 銀座のトイレ男女別貸事務所
- 三越前・新日本橋のトイレ男女別貸事務所
- 築地・八丁堀・茅場町のトイレ男女別貸事務所
- 小伝馬町・人形町のトイレ男女別貸事務所
- 月島・勝どき・晴海のトイレ男女別貸事務所
- 新橋・西新橋・汐留のトイレ男女別貸事務所
- 虎ノ門・神谷町のトイレ男女別貸事務所
- 赤坂・溜池山王のトイレ男女別貸事務所
- 青山・表参道のトイレ男女別貸事務所
- 浜松町・芝大門のトイレ男女別貸事務所
- 田町・三田・芝のトイレ男女別貸事務所
- 品川駅 高輪・港南のトイレ男女別貸事務所
- 六本木・麻布・白金のトイレ男女別貸事務所
築地・八丁堀・茅場町エリアの関連記事






