トイレ男女別の貸事務所(台東区)
東京都台東区にあるトイレが男女別の貸事務所を掲載しています。特に、女性のお客様が重要視するのがオフィスビルのトイレです。男性と同じトイレは敬遠されることが多く、男女別のトイレを希望するお客様がいらっしゃいます。そこで女性社員の快適性を考えトイレが男女別の貸事務所をご紹介します。
台東区の男女別トイレ貸事務所
物件番号:083674
更新日:2026/4/22
台東区台東4-26-9
【竣工】2025/9
【階建て】地上9F
|
【最寄駅】
|
【耐震】 |
新耐震 |
| 【基準階】 |
63.03坪 |
【エントランス】 |
平日のみ開放 |
| 【駐車場】 |
無し |
【エレベーター】 |
2基 |
タスク新御徒町ビルは、東京都台東区台東4-26-9に位置するオフィスビルです。2025年9月に竣工し、構造はRC造、地上9階建てです。新耐震基準に適合しているので、安全性の高い建物です。交通アク…

| 図面 |
階数 |
面積 |
賃料(共益費込) (坪単価) |
保証金/敷金 |
礼金 |
入居可能日 |
|
|
2階 |
G 63.03坪 (208.36m2) |
1,260,600 (20,000) |
6ヶ月 |
1.0ヶ月 |
即日 |
|
|
3階 |
G 63.03坪 (208.36m2) |
1,260,600 (20,000) |
6ヶ月 |
1.0ヶ月 |
即日 |
|
|
4階 |
G 63.03坪 (208.36m2) |
1,260,600 (20,000) |
6ヶ月 |
1.0ヶ月 |
即日 |
|
物件番号:083193
更新日:2026/4/8
台東区東上野3-37-12
【竣工】2025/5
【階建て】地上12F 、地下1F
|
【最寄駅】
|
【耐震】 |
新耐震 |
| 【基準階】 |
64.00坪 |
【エントランス】 |
全日開放(制限有) |
| 【駐車場】 |
無し |
【エレベーター】 |
2基 |
「VORT上野plus」は、東京都台東区東上野3-37-12に位置する地上12階・地下1階建てのオフィスビルです。2025年5月に竣工した物件で、構造は鉄骨造(S造)で建てられています。新耐震基準に適合し…

| 図面 |
階数 |
面積 |
賃料(共益費込) (坪単価) |
保証金/敷金 |
礼金 |
入居可能日 |
|
|
3階 |
G 59.25坪 (195.87m2) |
|
5ヶ月 |
無 |
即日 |
|
|
4階 |
G 59.25坪 (195.87m2) |
|
5ヶ月 |
無 |
即日 |
|
|
5階 |
G 59.25坪 (195.87m2) |
|
5ヶ月 |
無 |
即日 |
|
|
6階 |
G 58.21坪 (192.43m2) |
|
5ヶ月 |
無 |
即日 |
|
|
11階 |
G 58.10坪 (192.07m2) |
|
5ヶ月 |
無 |
即日 |
|
物件番号:082935
更新日:2026/4/15
台東区浅草1-27-2
【竣工】2025/1
【階建て】地上10F
|
【最寄駅】
|
【耐震】 |
新耐震 |
| 【基準階】 |
32.89坪 |
【エントランス】 |
全日開放(24h) |
| 【駐車場】 |
無し |
【エレベーター】 |
1基 |
浅草トーセイビルは、東京都台東区浅草1丁目に所在する賃貸オフィスビルです。つくばエクスプレス・浅草駅から徒歩2分という抜群の利便性を誇り、東武スカイツリーライン・東京メトロ銀座線・都…

| 図面 |
階数 |
面積 |
賃料(共益費込) (坪単価) |
保証金/敷金 |
礼金 |
入居可能日 |
|
|
3階 |
G 41.58坪 (137.48m2) |
|
10ヶ月 |
無 |
2026/8 上旬 |
|
物件番号:082035
更新日:2026/4/3
台東区台東4-5-13
【竣工】2024/12
【階建て】地上10F
|
【最寄駅】
|
【耐震】 |
新耐震+免震 |
| 【基準階】 |
56.82坪 |
【エントランス】 |
平日のみ開放 |
| 【駐車場】 |
無し |
【エレベーター】 |
1基 |
NEWS X 御徒町は、東京都台東区台東4丁目に位置する、最新の設備と機能性を備えたオフィスビルです。2024年12月に竣工予定のこのビルは、地上10階建てのRC造(鉄筋コンクリート構造)で、新耐震…

| 図面 |
階数 |
面積 |
賃料(共益費込) (坪単価) |
保証金/敷金 |
礼金 |
入居可能日 |
|
|
2階 |
G 56.15坪 (185.62m2) |
|
(未公開) |
無 |
即日 |
|
|
3階 |
G 56.15坪 (185.62m2) |
|
(未公開) |
無 |
即日 |
|
|
4階 |
G 56.15坪 (185.62m2) |
|
(未公開) |
無 |
即日 |
|
|
5階 |
G 56.15坪 (185.62m2) |
|
(未公開) |
無 |
即日 |
|
|
7階 |
G 56.15坪 (185.62m2) |
|
(未公開) |
無 |
即日 |
|
|
8階 |
G 56.15坪 (185.62m2) |
|
(未公開) |
無 |
即日 |
|
物件番号:079318
更新日:2026/4/21
台東区台東4-9-2
【竣工】2022/1
【階建て】地上12F
|
【最寄駅】
|
【耐震】 |
新耐震 |
| 【基準階】 |
51.04坪 |
【エントランス】 |
全日開放(制限有) |
| 【駐車場】 |
無し |
【エレベーター】 |
2基 |
阪急阪神上野御徒町ビルは、台東区台東4-9-2にある物件です。最寄駅は、東京メトロ日比谷線の仲御徒町駅です。徒歩1分圏内でアクセス可能な好立地です。徒歩5分圏内でJR山手線・JR京浜東北線の御…

| 図面 |
階数 |
面積 |
賃料(共益費込) (坪単価) |
保証金/敷金 |
礼金 |
入居可能日 |
|
|
4階 |
G 51.05坪 (168.75m2) |
|
6ヶ月 |
無 |
2026/5 |
|
|
7階 |
G 51.05坪 (168.75m2) |
|
12ヶ月 |
無 |
2026/5 |
|
|
8階 |
G 51.05坪 (168.75m2) |
|
6ヶ月 |
無 |
2026/5 |
|
|
9階 |
G 51.05坪 (168.75m2) |
|
6ヶ月 |
無 |
2026/5 |
|
|
10階 |
G 51.05坪 (168.75m2) |
|
6ヶ月 |
無 |
2026/7 予定 |
|
|
11階 |
G 51.05坪 (168.75m2) |
|
12ヶ月 |
無 |
2026/7 予定 |
|
|
12階 |
G 51.05坪 (168.75m2) |
|
12ヶ月 |
無 |
2026/5 |
|
物件番号:074441
更新日:2026/4/1
台東区浅草橋5-19-5
【竣工】2020/10
【階建て】地上5F
|
【最寄駅】
|
【耐震】 |
新耐震 |
| 【基準階】 |
|
【エントランス】 |
オートロック |
| 【駐車場】 |
無し |
【エレベーター】 |
1基 |
SEIWA EAST FACEは、台東区浅草橋5-19-5にある物件です。徒歩6分圏内でJR総武線の浅草橋駅、徒歩9分圏内で都営浅草線の浅草橋駅が利用可能となっています。複数路線が利用可能で交通アクセス良好…

| 図面 |
階数 |
面積 |
賃料(共益費込) (坪単価) |
保証金/敷金 |
礼金 |
入居可能日 |
|
|
4階 |
G 42.49坪 (140.47m2) |
1,274,700 (30,000) |
7ヶ月 |
無 |
相談 |
|
物件番号:068745
更新日:2026/4/21
台東区台東1-31-7
【竣工】2018/12
【階建て】地上8F
|
【最寄駅】
|
【耐震】 |
新耐震 |
| 【基準階】 |
215.50坪 |
【エントランス】 |
オートロック |
| 【駐車場】 |
有り |
【エレベーター】 |
3基 |
PMO秋葉原北は、東京都台東区台東1-31-7に位置する地上8階建てのオフィスビルです。2018年12月に竣工し、S造で建てられています。新耐震基準に適合しているので、安全性にも優れています。交通ア…

| 図面 |
階数 |
面積 |
賃料(共益費込) (坪単価) |
保証金/敷金 |
礼金 |
入居可能日 |
|
|
7階 |
G 215.85坪 (713.55m2) |
|
12ヶ月 |
無 |
相談 |
|
物件番号:083541
更新日:2026/4/6
台東区蔵前2-14-4
【竣工】2016/12
【階建て】地上5F
|
【最寄駅】
|
【耐震】 |
新耐震 |
| 【基準階】 |
13.18坪 |
【エントランス】 |
全日開放(24h) |
| 【駐車場】 |
- |
【エレベーター】 |
1基 |
蔵前駅徒歩2分、交通アクセス抜群です。2016年竣工、新耐震基準のきれいな建物です。各フロアにトイレがついて、整形の使い勝手の良い室内です。

| 図面 |
階数 |
面積 |
賃料(共益費込) (坪単価) |
保証金/敷金 |
礼金 |
入居可能日 |
|
|
1-5階 |
G 61.38坪 (202.90m2) |
1,600,000 (26,067) |
6ヶ月 |
無 |
即日 |
|
物件番号:056584
更新日:2026/4/3
台東区東上野6-2-1
【竣工】2009/10
【階建て】地上10F
|
【最寄駅】
|
【耐震】 |
新耐震 |
| 【基準階】 |
146.03坪 |
【エントランス】 |
平日のみ開放 |
| 【駐車場】 |
有り |
【エレベーター】 |
2基 |
上野エリア。浅草通り沿いの角地に建つハイグレードな賃貸オフィスビル。MPR東上野ビルは、台東区東上野6丁目、最寄駅は東京メトロ銀座線・稲荷町駅、駅から徒歩1分圏内のアクセス抜群の立地です…

| 図面 |
階数 |
面積 |
賃料(共益費込) (坪単価) |
保証金/敷金 |
礼金 |
入居可能日 |
|
|
9階 |
N 87.16坪 (288.12m2) |
|
12ヶ月 |
無 |
2026/10 |
|
物件番号:043287
更新日:2026/4/24
台東区東上野3-36-7
【竣工】2006/1
【階建て】地上9F 、地下1F
|
【最寄駅】
|
【耐震】 |
新耐震 |
| 【基準階】 |
23.37坪 |
【エントランス】 |
全日開放(制限有) |
| 【駐車場】 |
無し |
【エレベーター】 |
1基 |
「上野Mビル」は、東京都台東区東上野3-36-7に位置するオフィスビルです。地上9階・地下1階建てで、鉄骨鉄筋コンクリート造(SRC造)で建てられています。2006年1月に竣工した建物で、新耐震基準…

| 図面 |
階数 |
面積 |
賃料(共益費込) (坪単価) |
保証金/敷金 |
礼金 |
入居可能日 |
|
|
4階 |
G 23.37坪 (77.12m2) |
300,000 (12,836) |
8ヶ月 |
無 |
即日 |
|
物件番号:068198
更新日:2026/4/7
台東区小島2-21-18
【竣工】2002/3
【階建て】地上5F
|
【最寄駅】
|
【耐震】 |
新耐震 |
| 【基準階】 |
38.71坪 |
【エントランス】 |
オートロック |
| 【駐車場】 |
無し |
【エレベーター】 |
1基 |
TX小島ビルは、台東区小島2-21-18にある物件です。最寄駅は、つくばエクスプレス・都営大江戸線の新御徒町駅です。新御徒町駅のA4出口がビルの1階にございます。徒歩1分圏内でアクセス可能な好立…

| 図面 |
階数 |
面積 |
賃料(共益費込) (坪単価) |
保証金/敷金 |
礼金 |
入居可能日 |
|
|
3階 |
G 39.71坪 (131.30m2) |
536,085 (13,500) |
10ヶ月 |
無 |
2026/6 上旬 |
|
物件番号:078904
更新日:2026/4/17
台東区台東3-15-3
【竣工】1999/6(改修:2022)
【階建て】地上11F
|
【最寄駅】
|
【耐震】 |
新耐震 |
| 【基準階】 |
56.64坪 |
【エントランス】 |
平日のみ開放 |
| 【駐車場】 |
有り |
【エレベーター】 |
2基 |
MARK SQUARE 御徒町は、台東区台東3-15-3に位置する物件で、利便性が高いエリアにあります。最寄駅は、東京メトロ日比谷線の仲御徒町駅から徒歩2分で、昭和通りに面した立地により、アクセスや視…

| 図面 |
階数 |
面積 |
賃料(共益費込) (坪単価) |
保証金/敷金 |
礼金 |
入居可能日 |
|
|
1階 |
G 31.61坪 (104.50m2) |
853,470 (27,000) |
4ヶ月 |
無 |
2026/8/28 |
|
物件番号:017211
更新日:2026/4/27
台東区東上野1-11-4
【竣工】1999/4
【階建て】地上8F
|
【最寄駅】
|
【耐震】 |
新耐震 |
| 【基準階】 |
68.43坪 |
【エントランス】 |
平日のみ開放 |
| 【駐車場】 |
無し |
【エレベーター】 |
1基 |
ザイマックス東上野ビルは、東京都台東区東上野1-11-4に位置する賃貸オフィスビルで、御徒町エリアの中でも利便性と快適性を兼ね備えた物件です。最寄り駅は東京メトロ日比谷線「仲御徒町駅」で…

| 図面 |
階数 |
面積 |
賃料(共益費込) (坪単価) |
保証金/敷金 |
礼金 |
入居可能日 |
|
|
NEW5階 |
G 70.67坪 (233.62m2) |
|
12ヶ月 |
無 |
2026/10/1 |
|
物件番号:082792
更新日:2026/3/30
台東区東上野6-10-8
【竣工】1996/8
【階建て】地上9F
|
【最寄駅】
|
【耐震】 |
新耐震 |
| 【基準階】 |
41.91坪 |
【エントランス】 |
|
| 【駐車場】 |
無し |
【エレベーター】 |
1基 |
リードシー東上野は、東京都台東区東上野6丁目10番8号に立地する地上9階建てのオフィスビルです。最寄り駅は東京メトロ銀座線の稲荷町駅で、徒歩3分という優れた立地にあります。また、JR山手線…

| 図面 |
階数 |
面積 |
賃料(共益費込) (坪単価) |
保証金/敷金 |
礼金 |
入居可能日 |
|
|
4階 |
G 45.88坪 (151.66m2) |
650,000 (14,167) |
8ヶ月 |
無 |
即日 |
|
|
5階 |
G 50.02坪 (165.36m2) |
700,000 (13,994) |
8ヶ月 |
無 |
2026/3 予定 |
|
物件番号:016930
更新日:2026/4/21
台東区上野1-9-2
【竣工】1996/7
【階建て】地上7F 、地下1F
|
【最寄駅】
|
【耐震】 |
新耐震 |
| 【基準階】 |
48.60坪 |
【エントランス】 |
オートロック |
| 【駐車場】 |
有り |
【エレベーター】 |
1基 |
湯島エリアの賃貸オフィスビルです。ビルボビルは、東京都台東区上野1-9-2に位置する賃貸オフィスビルです。最寄り駅からのアクセスは抜群で、東京メトロ千代田線の湯島駅から徒歩2分、銀座線の…

| 図面 |
階数 |
面積 |
賃料(共益費込) (坪単価) |
保証金/敷金 |
礼金 |
入居可能日 |
|
|
4階 |
G 48.25坪 (159.52m2) |
670,000 (13,886) |
4,000,000 (82,902) |
2.0ヶ月 |
2026/5 中旬 |
|
物件番号:017224
更新日:2026/4/28
台東区東上野4-12-1
【竣工】1993/8
【階建て】地上7F
|
【最寄駅】
|
【耐震】 |
新耐震 |
| 【基準階】 |
64.75坪 |
【エントランス】 |
平日・土開放 |
| 【駐車場】 |
無し |
【エレベーター】 |
1基 |
K・Tビルは、東京都台東区東上野4丁目に位置する優れたオフィスビルです。この物件は、JR山手線、京浜東北線、常磐線、さらに東京メトロ銀座線と日比谷線の各上野駅から徒歩わずか3分という非常…

| 図面 |
階数 |
面積 |
賃料(共益費込) (坪単価) |
保証金/敷金 |
礼金 |
入居可能日 |
|
|
6階 |
G 53.60坪 (177.22m2) |
750,400 (14,000) |
8ヶ月 |
無 |
相談 |
|
物件番号:017130
更新日:2026/4/27
台東区東上野2-1-13
【竣工】1993/2
【階建て】地上11F 、地下1F
|
【最寄駅】
|
【耐震】 |
新耐震 |
| 【基準階】 |
96.36坪 |
【エントランス】 |
平日・土開放 |
| 【駐車場】 |
有り |
【エレベーター】 |
2基 |
東上野センタービルは、東京都台東区東上野2丁目に位置する地上11階・地下1階建てのオフィスビルです。1993年2月に竣工し、構造は鉄骨鉄筋コンクリート造(SRC造)で、新耐震基準を満たしており…

| 図面 |
階数 |
面積 |
賃料(共益費込) (坪単価) |
保証金/敷金 |
礼金 |
入居可能日 |
|
|
NEW7階 |
N 96.36坪 (318.55m2) |
|
5ヶ月 |
1.0ヶ月 |
2026/10/21 |
|
物件番号:018146
更新日:2026/4/8
台東区元浅草2-6-4
【竣工】1993/1(改修:2015)
【階建て】地上9F 、地下1F
|
【最寄駅】
|
【耐震】 |
新耐震 |
| 【基準階】 |
27.73坪 |
【エントランス】 |
平日のみ開放 |
| 【駐車場】 |
無し |
【エレベーター】 |
1基 |
大通りに面したお洒落なオフィスビルです!室内の形が良く、OAフロア完備で使いやすいオフィスです!30坪未満のワンフロア・ワンテナントビルで、トイレ男女別は希少です!

| 図面 |
階数 |
面積 |
賃料(共益費込) (坪単価) |
保証金/敷金 |
礼金 |
入居可能日 |
|
|
4階 |
G 27.73坪 (91.67m2) |
388,220 (14,000) |
6ヶ月 |
無 |
2026/9 上旬 |
|
物件番号:018074
更新日:2026/4/28
台東区蔵前4-11-6
【竣工】1992/8
【階建て】地上9F
|
【最寄駅】
|
【耐震】 |
新耐震 |
| 【基準階】 |
53.54坪 |
【エントランス】 |
|
| 【駐車場】 |
有り |
【エレベーター】 |
1基 |
KUGAビルは、東京都台東区蔵前4-11-6に位置する地上9階建てのオフィスビルです。1992年8月に竣工し、鉄骨造(S造)の構造を採用しています。新耐震基準に準拠して建設されており、万が一の災害時…

| 図面 |
階数 |
面積 |
賃料(共益費込) (坪単価) |
保証金/敷金 |
礼金 |
入居可能日 |
|
|
8階 |
G 52.38坪 (173.15m2) |
628,500 (12,000) |
6ヶ月 |
1.0ヶ月 |
即日 |
|
物件番号:018155
更新日:2026/4/1
台東区元浅草1-6-29
【竣工】1992/6
【階建て】地上6F
|
【最寄駅】
|
【耐震】 |
新耐震 |
| 【基準階】 |
40.56坪 |
【エントランス】 |
平日のみ開放 |
| 【駐車場】 |
無し |
【エレベーター】 |
1基 |
新御徒町駅から徒歩2分の立地です!スタイリッシュな印象の外観です!トイレは室内で男女別になっています!

| 図面 |
階数 |
面積 |
賃料(共益費込) (坪単価) |
保証金/敷金 |
礼金 |
入居可能日 |
|
|
3階 |
G 40.56坪 (134.08m2) |
486,160 (11,986) |
6ヶ月 |
無 |
即日 |
|
物件番号:018526
更新日:2026/4/6
台東区北上野2-18-4
【竣工】1992/5(改修:2011)
【階建て】地上10F 、地下1F
|
【最寄駅】
|
【耐震】 |
新耐震 |
| 【基準階】 |
111.41坪 |
【エントランス】 |
平日・土開放 |
| 【駐車場】 |
有り |
【エレベーター】 |
2基 |
MIテラス北上野は、東京都台東区北上野2-18-4に位置する地上10階・地下1階のオフィスビルです。1992年5月に竣工し、SRC造で建てられています。交通アクセスは良好で、東京メトロ日比谷線の入谷駅…

| 図面 |
階数 |
面積 |
賃料(共益費込) (坪単価) |
保証金/敷金 |
礼金 |
入居可能日 |
|
|
3階 |
N 111.41坪 (368.30m2) |
|
12ヶ月 |
無 |
2026/11 予定 |
|
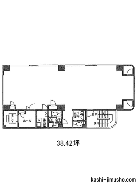
物件番号:018136
更新日:2026/4/14
台東区元浅草3-13-12
【竣工】1992/5
【階建て】地上8F
|
【最寄駅】
|
【耐震】 |
新耐震 |
| 【基準階】 |
38.42坪 |
【エントランス】 |
平日のみ開放 |
| 【駐車場】 |
有り |
【エレベーター】 |
1基 |
Uビルは、東京都台東区元浅草3-13-12に位置する地上8階建てのオフィスビルです。1992年5月に竣工し、構造は鉄骨鉄筋コンクリート造(SRC造)で、新耐震基準にも適合しています。耐震性に優れた設…

| 図面 |
階数 |
面積 |
賃料(共益費込) (坪単価) |
保証金/敷金 |
礼金 |
入居可能日 |
|
|
4階 |
G 38.42坪 (127.04m2) |
540,000 (14,055) |
6ヶ月 |
無 |
2026/5 上旬 |
|
物件番号:017201
更新日:2026/4/15
台東区東上野3-34-6
【竣工】1992/4(改修:2012)
【階建て】地上10F
|
【最寄駅】
|
【耐震】 |
新耐震 |
| 【基準階】 |
33.05坪 |
【エントランス】 |
全日開放(制限有) |
| 【駐車場】 |
無し |
【エレベーター】 |
1基 |
上野エリア。浅草通り沿いに建つハイグレードな賃貸オフィスビル。東上野フロントビルは、台東区東上野3丁目、最寄駅は東京メトロ銀座線・稲荷町駅、1番出口から徒歩1分圏内のアクセス抜群の立地…

| 図面 |
階数 |
面積 |
賃料(共益費込) (坪単価) |
保証金/敷金 |
礼金 |
入居可能日 |
|
|
2階 |
G 32.62坪 (109.25m2) |
|
6ヶ月 |
無 |
2026/5/1 |
|
物件番号:064224
更新日:2026/4/28
台東区台東3-29-1
【竣工】1992/1(改修:2014)
【階建て】地上9F
|
【最寄駅】
|
【耐震】 |
新耐震 |
| 【基準階】 |
93.61坪 |
【エントランス】 |
|
| 【駐車場】 |
有り |
【エレベーター】 |
2基 |
中央法規ビルは、東京都台東区台東3-29-1に位置するオフィスビルです。都営大江戸線・つくばエクスプレスの「新御徒町」駅から徒歩4分、東京メトロ日比谷線「仲御徒町」駅から徒歩7分、JR山手線…

| 図面 |
階数 |
面積 |
賃料(共益費込) (坪単価) |
保証金/敷金 |
礼金 |
入居可能日 |
|
|
2階 |
G 93.61坪 (309.45m2) |
1,497,760 (16,000) |
6ヶ月 |
無 |
2026/8/1 |
|
物件番号:017989
更新日:2026/4/7
台東区小島2-20-7
【竣工】1991/12
【階建て】地上8F
|
【最寄駅】
|
【耐震】 |
新耐震 |
| 【基準階】 |
37.00坪 |
【エントランス】 |
全日開放(24h) |
| 【駐車場】 |
有り |
【エレベーター】 |
1基 |
春日通りに面した駅上の分かりやすい立地!2面採光の明るく開放的な室内空間!独立性が高く使いやすいワンフロア・ワンテナント!

| 図面 |
階数 |
面積 |
賃料(共益費込) (坪単価) |
保証金/敷金 |
礼金 |
入居可能日 |
|
|
3階 |
G 37.90坪 (125.29m2) |
|
6ヶ月 |
無 |
2026/7/1 |
|
物件番号:017688
更新日:2026/4/15
台東区浅草橋1-7-2
【竣工】1991/11
【階建て】地上10F
|
【最寄駅】
|
【耐震】 |
新耐震 |
| 【基準階】 |
47.32坪 |
【エントランス】 |
|
| 【駐車場】 |
無し |
【エレベーター】 |
1基 |
複数路線が利用可能で交通アクセス抜群!2面採光の良い明るいオフィス空間!ワンフロア・ワンテナント!機械警備、光ファイバー対応!

| 図面 |
階数 |
面積 |
賃料(共益費込) (坪単価) |
保証金/敷金 |
礼金 |
入居可能日 |
|
|
5階 |
G 47.32坪 (156.43m2) |
662,480 (14,000) |
10ヶ月 |
1.0ヶ月 |
即日 |
|
物件番号:018539
更新日:2026/4/10
台東区北上野1-6-11
【竣工】1991/9
【階建て】地上7F 、地下1F
|
【最寄駅】
|
【耐震】 |
新耐震 |
| 【基準階】 |
107.42坪 |
【エントランス】 |
|
| 【駐車場】 |
有り |
【エレベーター】 |
2基 |
ノルドビルは、東京都台東区北上野1丁目6番11号に位置するオフィスビルです。最寄りのJR上野駅からは徒歩7分、東京メトロ銀座線および日比谷線上野駅からは徒歩10分と、複数路線が利用可能な優れ…

| 図面 |
階数 |
面積 |
賃料(共益費込) (坪単価) |
保証金/敷金 |
礼金 |
入居可能日 |
|
|
3階 |
G 107.42坪 (355.11m2) |
|
10ヶ月 |
無 |
2026/10 上旬 |
|
物件番号:017594
更新日:2026/4/6
台東区台東2-29-3
【竣工】1991/1
【階建て】地上5F
|
【最寄駅】
|
【耐震】 |
新耐震 |
| 【基準階】 |
|
【エントランス】 |
|
| 【駐車場】 |
無し |
【エレベーター】 |
1基 |
東京都台東区台東エリアに位置する「米十永野ビル」は、複数路線が利用可能な利便性と、落ち着いたオフィス環境を兼ね備えた賃貸オフィスビルです。東京メトロ日比谷線「仲御徒町駅」から徒歩3分…

| 図面 |
階数 |
面積 |
賃料(共益費込) (坪単価) |
保証金/敷金 |
礼金 |
入居可能日 |
|
|
1階 |
G 27.86坪 (92.10m2) |
501,480 (18,000) |
8ヶ月 |
無 |
即日 |
|
物件番号:083456
更新日:2026/4/9
台東区東上野4-20-2
【竣工】1991/1
【階建て】地上7F 、地下1F
|
【最寄駅】
|
【耐震】 |
新耐震 |
| 【基準階】 |
|
【エントランス】 |
全日開放(24h) |
| 【駐車場】 |
無し |
【エレベーター】 |
1基 |
トスビルは、東京都台東区東上野4-20-2に位置する地上7階・地下1階建てのオフィスビルです。1991年に竣工し、構造はS造(鉄骨造)を採用しています。新耐震基準に適合して建てられているため、地…

| 図面 |
階数 |
面積 |
賃料(共益費込) (坪単価) |
保証金/敷金 |
礼金 |
入居可能日 |
|
|
B1-7階 |
G 84.33坪 (278.78m2) |
1,264,950 (15,000) |
3ヶ月 |
1.0ヶ月 |
即日 |
|
物件番号:083828
更新日:2026/4/15
台東区浅草橋1-26-1
【竣工】1991
【階建て】地上5F 、地下1F
|
【最寄駅】
|
【耐震】 |
新耐震 |
| 【基準階】 |
|
【エントランス】 |
|
| 【駐車場】 |
無し |
【エレベーター】 |
無 |
浅草橋駅から徒歩1分、交通アクセス抜群です。1991年竣工の新耐震基準の建物です。1-2階の一括貸し物件、視認性の高い立地です。

| 図面 |
階数 |
面積 |
賃料(共益費込) (坪単価) |
保証金/敷金 |
礼金 |
入居可能日 |
|
|
1-2階 |
G 51.42坪 (170.00m2) |
955,000 (18,573) |
4ヶ月 |
1.0ヶ月 |
相談 |
|
非公開物件の賃料目安アイコン
8,000 円未満
8,000 円以上~1.0 万円未満
1.0 万以上~1.2 万円未満
1.2 万以上~1.4 万円未満
1.4 万以上~1.6 万円未満
1.6 万以上~2.0 万円未満
2.0 万以上~2.5 万円未満
2.5 万以上~3.0 万円未満
3.0 万円以上
未定
※取引態様:媒介
※フロア図面と現況が異なる場合は現況を優先いたします。
※貸室内部の写真・貸室からの景色に関しては、現在の募集フロアと異なる場合がございます。
※取引態様:媒介
その他、台東区の貸事務所をお探しの方はこちらをクリック

トイレ男女別貸事務所を区から探す
千代田区のトイレ男女別貸事務所
中央区のトイレ男女別貸事務所
港区のトイレ男女別貸事務所
新宿区のトイレ男女別貸事務所
渋谷区のトイレ男女別貸事務所
台東区のトイレ男女別貸事務所
品川区のトイレ男女別貸事務所
豊島区のトイレ男女別貸事務所
文京区のトイレ男女別貸事務所
目黒区のトイレ男女別貸事務所
東京都内のトイレ男女別貸事務所
台東区の貸事務所検索ページ