トイレ男女別の貸事務所(築地・八丁堀・茅場町)(20~40坪)
築地・八丁堀・茅場町エリアにあるトイレが男女別の貸事務所を掲載しています。特に、女性のお客様が重要視するのがオフィスビルのトイレです。男性と同じトイレは敬遠されることが多く、男女別のトイレを希望するお客様がいらっしゃいます。そこで女性社員の快適性を考えトイレが男女別の貸事務所をご紹介します。
築地・八丁堀・茅場町エリアの男女別トイレ貸事務所
物件番号:083476
更新日:2026/4/16
中央区八丁堀1-3-2
【竣工】2026/4
【階建て】地上8F
|
【最寄駅】
|
【耐震】 |
新耐震 |
| 【基準階】 |
89.75坪 |
【エントランス】 |
オートロック |
| 【駐車場】 |
有り |
【エレベーター】 |
2基 |
T-PLUS八丁堀は、東京都中央区八丁堀1丁目に誕生する2026年4月竣工のオフィスビルで、八丁堀エリアで注目のウェルネスオフィスです。地上8階建て、耐震新耐震設計を採用した建物は、基準階約89.7…

| 図面 |
階数 |
面積 |
賃料(共益費込) (坪単価) |
保証金/敷金 |
礼金 |
入居可能日 |
|
|
3階 |
G 39.18坪 (129.55m2) |
|
(未公開) |
無 |
2026/4 予定 |
|
物件番号:080803
更新日:2026/4/17
中央区八丁堀3-22-8
【竣工】2024/3
【階建て】地上11F
|
【最寄駅】
|
【耐震】 |
新耐震 |
| 【基準階】 |
36.54坪 |
【エントランス】 |
全日開放(制限有) |
| 【駐車場】 |
無し |
【エレベーター】 |
1基 |
八丁堀駅から徒歩1分の駅近賃貸オフィスビルです。合人社東京八丁堀ビルは、東京都中央区八丁堀3-22-8に位置し、JR京葉線と日比谷線の八丁堀駅から徒歩1分という非常に便利な立地です。都営浅草…

| 図面 |
階数 |
面積 |
賃料(共益費込) (坪単価) |
保証金/敷金 |
礼金 |
入居可能日 |
|
|
8階 |
G 36.54坪 (120.80m2) |
803,880 (22,000) |
6ヶ月 |
無 |
即日 |
|
|
9階 |
G 36.54坪 (120.80m2) |
840,420 (23,000) |
6ヶ月 |
無 |
即日 |
|
物件番号:081413
更新日:2026/4/17
中央区八丁堀2-29-4
【竣工】2024/2
【階建て】地上7F
|
【最寄駅】
|
【耐震】 |
新耐震 |
| 【基準階】 |
29.69坪 |
【エントランス】 |
オートロック |
| 【駐車場】 |
無し |
【エレベーター】 |
1基 |
東京NSビルは、東京都中央区八丁堀に位置する新築オフィスビルで、利便性と快適性を兼ね備えた物件です。2024年2月竣工予定の地上7階建ての鉄筋コンクリート造(RC造)で、新耐震基準を満たして…

| 図面 |
階数 |
面積 |
賃料(共益費込) (坪単価) |
保証金/敷金 |
礼金 |
入居可能日 |
|
|
2階 |
G 29.69坪 (98.15m2) |
564,110 (19,000) |
4ヶ月 |
無 |
即日 |
|
|
4階 |
G 29.69坪 (98.15m2) |
564,110 (19,000) |
4ヶ月 |
無 |
即日 |
|
物件番号:064132
更新日:2026/4/14
中央区日本橋茅場町2-2-1
【竣工】2014/4
【階建て】地上9F
|
【最寄駅】
|
【耐震】 |
新耐震 |
| 【基準階】 |
31.27坪 |
【エントランス】 |
平日のみ開放 |
| 【駐車場】 |
無し |
【エレベーター】 |
1基 |
東京石灰工業(株)東石ビルは、東京都中央区日本橋茅場町2-2-1に位置する地上9階建てのオフィスビルです。2014年4月に竣工し、S造で建てられています。新耐震基準に適合しており、安全性にも優れ…

| 図面 |
階数 |
面積 |
賃料(共益費込) (坪単価) |
保証金/敷金 |
礼金 |
入居可能日 |
|
|
3階 |
G 31.27坪 (103.37m2) |
594,130 (19,000) |
10ヶ月 |
無 |
2026/5 |
|
物件番号:054475
更新日:2026/4/7
中央区日本橋茅場町3-1-7
【竣工】2009/1
【階建て】地上10F 、地下1F
|
【最寄駅】
|
【耐震】 |
新耐震 |
| 【基準階】 |
11.67坪 |
【エントランス】 |
|
| 【駐車場】 |
無し |
【エレベーター】 |
1基 |
白を基調とした綺麗なエントランス!個別空調、OAフロア完備!この規模では珍しい男女別トイレ!

| 図面 |
階数 |
面積 |
賃料(共益費込) (坪単価) |
保証金/敷金 |
礼金 |
入居可能日 |
|
|
B1-1階 |
G 22.94坪 (75.83m2) |
344,100 (15,000) |
(未公開) |
無 |
2026/10 |
|
物件番号:069255
更新日:2026/4/22
中央区築地7-2-1
【竣工】2008/4(改修:2019)
【階建て】地上7F
|
【最寄駅】
|
【耐震】 |
新耐震 |
| 【基準階】 |
105.13坪 |
【エントランス】 |
平日のみ開放 |
| 【駐車場】 |
有り |
【エレベーター】 |
2基 |
THE TERRACE TSUKIJIは、中央区築地7丁目に立地する築地エリアでは希少な100坪超の大型貸事務所です。最寄駅は東京メトロ日比谷線の築地駅で、徒歩圏内には東京メトロ有楽町線の新富町駅や都営浅…

| 図面 |
階数 |
面積 |
賃料(共益費込) (坪単価) |
保証金/敷金 |
礼金 |
入居可能日 |
|
|
1階 |
G 25.91坪 (85.65m2) |
|
6ヶ月 |
無 |
即日 |
|
物件番号:064599
更新日:2026/4/3
中央区湊1-12-7
【竣工】2002/3(改修:2007)
【階建て】地上6F
|
【最寄駅】
|
【耐震】 |
新耐震 |
| 【基準階】 |
34.69坪 |
【エントランス】 |
平日のみ開放 |
| 【駐車場】 |
有り |
【エレベーター】 |
1基 |
中央区湊1丁目に位置する「湊日本ビル」は、八丁堀エリアの中でも特に落ち着いた環境に佇むハイグレードな賃貸オフィスビルです。東京メトロ日比谷線・JR京葉線の八丁堀駅から徒歩5分圏内にあり…

| 図面 |
階数 |
面積 |
賃料(共益費込) (坪単価) |
保証金/敷金 |
礼金 |
入居可能日 |
|
|
2階 |
G 34.69坪 (114.68m2) |
|
8ヶ月 |
無 |
即日 |
|
|
3階 |
G 34.69坪 (114.68m2) |
|
8ヶ月 |
無 |
即日 |
|
物件番号:007123
更新日:2026/4/10
中央区日本橋茅場町2-4-5
【竣工】2001/1
【階建て】地上9F
|
【最寄駅】
|
【耐震】 |
新耐震 |
| 【基準階】 |
26.74坪 |
【エントランス】 |
|
| 【駐車場】 |
無し |
【エレベーター】 |
1基 |
茅場町2丁目ビルは、東京都中央区日本橋茅場町2-4-5に位置する賃貸オフィスビルです。最寄駅は東京メトロ東西線・日比谷線の茅場町駅で徒歩1分、JR京葉線の八丁堀駅が徒歩5分、東京メトロ銀座線…

| 図面 |
階数 |
面積 |
賃料(共益費込) (坪単価) |
保証金/敷金 |
礼金 |
入居可能日 |
|
|
4階 |
G 26.74坪 (88.40m2) |
494,690 (18,500) |
12ヶ月 |
無 |
2026/7 |
|
|
8階 |
G 26.74坪 (88.40m2) |
494,690 (18,500) |
12ヶ月 |
無 |
2026/5 |
|
物件番号:067551
更新日:2026/4/28
中央区八丁堀3-16-6
【竣工】1994/10(改修:2017)
【階建て】地上7F 、地下1F
|
【最寄駅】
|
【耐震】 |
新耐震 |
| 【基準階】 |
37.51坪 |
【エントランス】 |
平日のみ開放 |
| 【駐車場】 |
無し |
【エレベーター】 |
1基 |
東八重洲プレイスは、中央区八丁堀に位置する貸事務所物件です。新大橋通りから一本入った「鈴らん通り」に面した角地に立地しており、周囲は落ち着いた雰囲気の中にも活気が感じられる、利便性…

| 図面 |
階数 |
面積 |
賃料(共益費込) (坪単価) |
保証金/敷金 |
礼金 |
入居可能日 |
|
|
NEW6階 |
G 28.28坪 (93.49m2) |
678,720 (24,000) |
4ヶ月 |
無 |
2026/9 下旬 |
|
物件番号:007265
更新日:2026/4/27
中央区新川2-1-10
【竣工】1994/3
【階建て】地上8F
|
【最寄駅】
|
【耐震】 |
新耐震 |
| 【基準階】 |
30.02坪 |
【エントランス】 |
平日・土開放 |
| 【駐車場】 |
無し |
【エレベーター】 |
1基 |
八重洲早川第2ビルは、東京都中央区新川2-1-10に位置する地上8階建てのオフィスビルです。1994年3月に竣工し、SRC造で建てられています。新耐震基準に適合しており、安全性にも優れています。交…

| 図面 |
階数 |
面積 |
賃料(共益費込) (坪単価) |
保証金/敷金 |
礼金 |
入居可能日 |
|
|
3階 |
G 30.02坪 (99.24m2) |
450,300 (15,000) |
8ヶ月 |
無 |
2026/6 上旬 |
|
物件番号:007299
更新日:2026/4/7
中央区新川2-17-12
【竣工】1993/11
【階建て】地上10F
|
【最寄駅】
|
【耐震】 |
新耐震 |
| 【基準階】 |
21.10坪 |
【エントランス】 |
|
| 【駐車場】 |
無し |
【エレベーター】 |
1基 |
新川二丁目交差点の角にあるオフィスビルです!外壁がヨーロッパ調のオシャな物件!角ビルだから日当たり良く気持ち良い空間!

| 図面 |
階数 |
面積 |
賃料(共益費込) (坪単価) |
保証金/敷金 |
礼金 |
入居可能日 |
|
|
3階 |
G 21.10坪 (69.75m2) |
337,600 (16,000) |
10ヶ月 |
無 |
2026/9 |
|
物件番号:007760
更新日:2026/4/23
中央区新富1-1-7
【竣工】1992/7(改修:2019)
【階建て】地上8F 、地下1F
|
【最寄駅】
|
【耐震】 |
新耐震 |
| 【基準階】 |
30.87坪 |
【エントランス】 |
|
| 【駐車場】 |
無し |
【エレベーター】 |
1基 |
BizSQUARE GINZAは、東京都中央区新富1丁目に位置するグレード感のある賃貸オフィスビルです。最寄り駅は都営浅草線の宝町駅で徒歩3分、さらに東京メトロ有楽町線の新富町駅が徒歩4分圏内、JR京…

| 図面 |
階数 |
面積 |
賃料(共益費込) (坪単価) |
保証金/敷金 |
礼金 |
入居可能日 |
|
|
4階 |
G 31.55坪 (104.32m2) |
820,300 (26,000) |
6ヶ月 |
無 |
即日 |
|
物件番号:007441
更新日:2026/4/8
中央区八丁堀4-9-4
【竣工】1992/2
【階建て】地上10F
|
【最寄駅】
|
【耐震】 |
新耐震 |
| 【基準階】 |
34.56坪 |
【エントランス】 |
平日・土開放 |
| 【駐車場】 |
無し |
【エレベーター】 |
1基 |
VORT八丁堀Ⅱは、東京都中央区八丁堀に位置する、交通アクセスの良さと機能的な設備を兼ね備えたオフィスビルです。JR京葉線と東京メトロ日比谷線「八丁堀駅」から徒歩1分という抜群の立地にあり…

| 図面 |
階数 |
面積 |
賃料(共益費込) (坪単価) |
保証金/敷金 |
礼金 |
入居可能日 |
|
|
7階 |
G 33.52坪 (110.82m2) |
|
5ヶ月 |
無 |
2026/7/31 |
|
物件番号:007736
更新日:2026/4/27
中央区八丁堀4-9-9
【竣工】1991/10(改修:2001)
【階建て】地上7F 、地下1F
|
【最寄駅】
|
【耐震】 |
新耐震 |
| 【基準階】 |
24.46坪 |
【エントランス】 |
全日開放(24h) |
| 【駐車場】 |
無し |
【エレベーター】 |
1基 |
エントランスはライトを上手く利用しており雰囲気良好!この規模で希少な男女別トイレ!ワンフロア・ワンテナントで使い勝手良好!

| 図面 |
階数 |
面積 |
賃料(共益費込) (坪単価) |
保証金/敷金 |
礼金 |
入居可能日 |
|
|
3階 |
G 24.01坪 (79.40m2) |
432,180 (18,000) |
2ヶ月 |
無 |
2026/8 上旬 |
|
物件番号:059353
更新日:2026/4/27
中央区日本橋茅場町1-6-17
【竣工】1991/3
【階建て】地上8F 、地下1F
|
【最寄駅】
|
【耐震】 |
新耐震 |
| 【基準階】 |
39.68坪 |
【エントランス】 |
全日開放(24h) |
| 【駐車場】 |
無し |
【エレベーター】 |
1基 |
トラッドビルは、中央区日本橋茅場町1-6-17にある物件です。最寄駅は、東京メトロ東西線・東京メトロ日比谷線の茅場町駅です。徒歩2分圏内でアクセス可能な好立地です。徒歩4分圏内で都営浅草線…

| 図面 |
階数 |
面積 |
賃料(共益費込) (坪単価) |
保証金/敷金 |
礼金 |
入居可能日 |
|
|
1階 |
G 26.84坪 (88.73m2) |
805,200 (30,000) |
8ヶ月 |
無 |
相談 |
|
|
3階 |
G 39.81坪 (131.60m2) |
756,390 (19,000) |
8ヶ月 |
無 |
相談 |
|
|
4階 |
G 39.81坪 (131.60m2) |
756,390 (19,000) |
8ヶ月 |
無 |
相談 |
|
物件番号:007177
更新日:2026/4/28
中央区新川1-23-5
【竣工】1990/8(改修:2023)
【階建て】地上14F 、地下1F
|
【最寄駅】
|
【耐震】 |
新耐震 |
| 【基準階】 |
174.23坪 |
【エントランス】 |
平日・土開放 |
| 【駐車場】 |
有り |
【エレベーター】 |
4基 |
ONE SHINKAWAは、中央区新川1-23-5に位置する賃貸オフィスビルです。最寄りの東京メトロ東西線・日比谷線「茅場町駅」からは徒歩7分、JR京葉線「八丁堀駅」および東京メトロ半蔵門線「水天宮前駅…

| 図面 |
階数 |
面積 |
賃料(共益費込) (坪単価) |
保証金/敷金 |
礼金 |
入居可能日 |
|
|
2階 |
N 38.12坪 (126.02m2) |
800,520 (21,000) |
(未公開) |
無 |
2026/7/16 |
|
|
12階 |
G 38.30坪 (126.60m2) |
842,600 (22,000) |
(未公開) |
無 |
即日 |
|
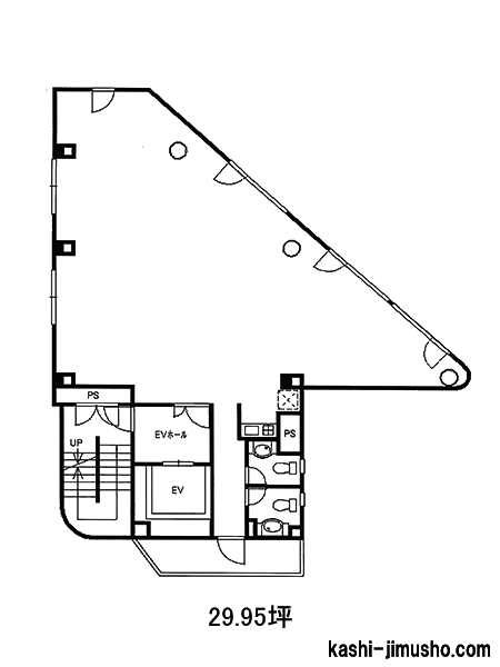
物件番号:007406
更新日:2026/4/27
中央区新川1-3-2
【竣工】1990/1
【階建て】地上9F
|
【最寄駅】
|
【耐震】 |
新耐震 |
| 【基準階】 |
29.95坪 |
【エントランス】 |
オートロック |
| 【駐車場】 |
無し |
【エレベーター】 |
1基 |
茅場町駅から徒歩2分の好立地!フットワーク抜群です!永代通り至近のわかりやすい立地です!ワンフロア・ワンテナント!使い勝手良好です!

| 図面 |
階数 |
面積 |
賃料(共益費込) (坪単価) |
保証金/敷金 |
礼金 |
入居可能日 |
|
|
9階 |
G 29.95坪 (99.04m2) |
494,175 (16,500) |
6ヶ月 |
1.0ヶ月 |
2026/9 下旬 |
|
物件番号:037712
更新日:2026/4/14
中央区湊1-12-10
【竣工】1989/8(改修:2018)
【階建て】地上8F
|
【最寄駅】
|
【耐震】 |
新耐震 |
| 【基準階】 |
38.29坪 |
【エントランス】 |
平日のみ開放 |
| 【駐車場】 |
無し |
【エレベーター】 |
1基 |
R.core HATCHOBORIは中央区湊1丁目に位置する、石貼りの重厚感あふれるハイグレードオフィスビルです。最寄り駅はJR京葉線および東京メトロ日比谷線の八丁堀駅で、JR京葉線の八丁堀駅からは徒歩5…

| 図面 |
階数 |
面積 |
賃料(共益費込) (坪単価) |
保証金/敷金 |
礼金 |
入居可能日 |
|
|
2階 |
G 31.91坪 (105.49m2) |
|
3ヶ月 |
無 |
即日 |
|
物件番号:080730
更新日:2026/4/28
中央区築地2-2-8
【竣工】1989/5(改修:2023)
【階建て】地上6F 、地下1F
|
【最寄駅】
|
【耐震】 |
新耐震 |
| 【基準階】 |
30.29坪 |
【エントランス】 |
|
| 【駐車場】 |
無し |
【エレベーター】 |
1基 |
角地に位置しているので視認性に優れています。モノトーンで統一された外観はシックな印象です。ワンフロア・ワンテナントなので使い勝手の良い貸室です。

| 図面 |
階数 |
面積 |
賃料(共益費込) (坪単価) |
保証金/敷金 |
礼金 |
入居可能日 |
|
|
4階 |
G 30.29坪 (100.14m2) |
|
8ヶ月 |
無 |
2026/10/1 |
|
物件番号:007151
更新日:2026/4/1
中央区新川2-15-7
【竣工】1988/12(改修:2004)
【階建て】地上7F 、地下1F
|
【最寄駅】
|
【耐震】 |
新耐震 |
| 【基準階】 |
44.00坪 |
【エントランス】 |
全日開放(24h) |
| 【駐車場】 |
無し |
【エレベーター】 |
1基 |
坂田ビルは、東京都中央区新川2-15-7に位置する、利便性と機能性を兼ね備えたオフィスビルです。JR京葉線および東京メトロ日比谷線「八丁堀駅」から徒歩6分、東京メトロ東西線「茅場町駅」からも…

| 図面 |
階数 |
面積 |
賃料(共益費込) (坪単価) |
保証金/敷金 |
礼金 |
入居可能日 |
|
|
6階 |
G 34.00坪 (112.40m2) |
493,000 (14,500) |
6ヶ月 |
無 |
即日 |
|
物件番号:007219
更新日:2026/4/28
中央区新川1-22-13
【竣工】1988/11(改修:2016)
【階建て】地上10F
|
【最寄駅】
|
【耐震】 |
新耐震 |
| 【基準階】 |
37.90坪 |
【エントランス】 |
平日のみ開放 |
| 【駐車場】 |
無し |
【エレベーター】 |
1基 |
新川I&Lビルは、東京都中央区新川1-22-13に位置する永代通り沿いの賃貸オフィスビルです。交通アクセスは、東京メトロ東西線・日比谷線「茅場町駅」徒歩6分、JR京葉線「八丁堀駅」徒歩9分、東京…

| 図面 |
階数 |
面積 |
賃料(共益費込) (坪単価) |
保証金/敷金 |
礼金 |
入居可能日 |
|
|
8階 |
G 37.95坪 (125.46m2) |
569,250 (15,000) |
6ヶ月 |
無 |
2026/7 上旬 |
|
|
9階 |
G 37.95坪 (125.46m2) |
569,250 (15,000) |
6ヶ月 |
無 |
2026/5 上旬 |
|
物件番号:008181
更新日:2026/4/23
中央区築地3-12-11
【竣工】1988/8
【階建て】地上7F 、地下1F
|
【最寄駅】
|
【耐震】 |
新耐震 |
| 【基準階】 |
31.25坪 |
【エントランス】 |
平日のみ開放 |
| 【駐車場】 |
無し |
【エレベーター】 |
1基 |
ナカシゲビルは、東京都中央区築地3-12-11に位置する利便性と機能性を兼ね備えたオフィスビルです。1987年8月に竣工したこのビルは、地上7階・地下1階建ての鉄筋コンクリート造(RC造)で、新耐…

| 図面 |
階数 |
面積 |
賃料(共益費込) (坪単価) |
保証金/敷金 |
礼金 |
入居可能日 |
|
|
4階 |
G 30.67坪 (101.39m2) |
444,715 (14,500) |
6ヶ月 |
無 |
即日 |
|
物件番号:008168
更新日:2026/3/30
中央区築地4-7-5
【竣工】1988/7
【階建て】地上8F 、地下1F
|
【最寄駅】
|
【耐震】 |
新耐震 |
| 【基準階】 |
342.57坪 |
【エントランス】 |
|
| 【駐車場】 |
有り |
【エレベーター】 |
4基 |
築地本願寺前にある視認性の高い賃貸オフィスビル。築地KYビルは東京都中央区築地4-7-5にあります。新大橋通りと晴海通りの築地四丁目交差点にある角ビルで周囲には高い建物がないため視認性、採…

| 図面 |
階数 |
面積 |
賃料(共益費込) (坪単価) |
保証金/敷金 |
礼金 |
入居可能日 |
|
|
3階 |
N 36.55坪 (120.83m2) |
986,850 (27,000) |
12ヶ月 |
無 |
相談 |
|
物件番号:008454
更新日:2026/4/14
中央区築地2-14-1
【竣工】1988/5
【階建て】地上7F
|
【最寄駅】
|
【耐震】 |
新耐震 |
| 【基準階】 |
29.93坪 |
【エントランス】 |
平日のみ開放 |
| 【駐車場】 |
無し |
【エレベーター】 |
1基 |
晴海通りに近く、銀座も徒歩圏内です!石張りの重厚感ある入口!管理の行き届いた綺麗なエントランスです!2面採光の明るく、開放的な室内空間です!

| 図面 |
階数 |
面積 |
賃料(共益費込) (坪単価) |
保証金/敷金 |
礼金 |
入居可能日 |
|
|
6階 |
G 29.93坪 (98.95m2) |
542,547 (18,127) |
10ヶ月 |
無 |
2026/8/1 |
|
物件番号:036936
更新日:2026/4/14
中央区新富1-9-4
【竣工】1988/2(改修:2025)
【階建て】地上6F 、地下2F
|
【最寄駅】
|
【耐震】 |
新耐震 |
| 【基準階】 |
24.91坪 |
【エントランス】 |
全日開放(24h) |
| 【駐車場】 |
無し |
【エレベーター】 |
1基 |
東京都中央区新富一丁目に位置する「AZ Ginza East」は、都心ならではの高い利便性と落ち着いた周辺環境を兼ね備えたオフィスビルです。最寄り駅である東京メトロ有楽町線「新富町駅」から徒歩3…

| 図面 |
階数 |
面積 |
賃料(共益費込) (坪単価) |
保証金/敷金 |
礼金 |
入居可能日 |
|
|
2階 |
G 25.54坪 (84.42m2) |
740,000 (28,974) |
6ヶ月 |
1.0ヶ月 |
即日 |
|
|
3階 |
G 25.54坪 (84.43m2) |
740,000 (28,974) |
6ヶ月 |
1.0ヶ月 |
即日 |
|
物件番号:006897
更新日:2026/4/1
中央区日本橋兜町15-12
【竣工】1987/5
【階建て】地上8F
|
【最寄駅】
|
【耐震】 |
新耐震 |
| 【基準階】 |
25.88坪 |
【エントランス】 |
|
| 【駐車場】 |
無し |
【エレベーター】 |
1基 |
茅場町駅・日本橋駅が利用できる便利な環境!東京駅徒歩圏内!春には桜並木がきれい!季節を感じられる立地!トイレ男女別・機械警備完備!

| 図面 |
階数 |
面積 |
賃料(共益費込) (坪単価) |
保証金/敷金 |
礼金 |
入居可能日 |
|
|
6階 |
G 25.88坪 (85.55m2) |
447,724 (17,300) |
8ヶ月 |
無 |
即日 |
|
|
8階 |
G 21.40坪 (70.74m2) |
370,220 (17,300) |
8ヶ月 |
無 |
即日 |
|
物件番号:007775
更新日:2026/4/23
中央区新富2-7-4
【竣工】1987/2(改修:2018)
【階建て】地上9F
|
【最寄駅】
|
【耐震】 |
新耐震 |
| 【基準階】 |
23.91坪 |
【エントランス】 |
平日のみ開放 |
| 【駐車場】 |
有り |
【エレベーター】 |
1基 |
growth ginza eastは、新富町駅至近の好立地に位置する賃貸オフィスビルです。中央区新富2-7-4に立地し、最寄りの東京メトロ有楽町線新富町駅まで徒歩1分と駅からの近接性に優れています。さらに…

| 図面 |
階数 |
面積 |
賃料(共益費込) (坪単価) |
保証金/敷金 |
礼金 |
入居可能日 |
|
|
4階 |
G 23.91坪 (79.04m2) |
549,930 (23,000) |
4ヶ月 |
無 |
2026/6/6 |
|
物件番号:083774
更新日:2026/4/23
中央区築地3-5-10
【竣工】1986/12
【階建て】地上7F 、地下3F
|
【最寄駅】
|
【耐震】 |
新耐震 |
| 【基準階】 |
|
【エントランス】 |
|
| 【駐車場】 |
- |
【エレベーター】 |
3基 |
トイレ給湯などの水回りが貸室の外にあり、レイアウトしやすいです。1986年竣工の新耐震基準を満たす物件です。機械警備完備でセキュリティ面も安心です。

| 図面 |
階数 |
面積 |
賃料(共益費込) (坪単価) |
保証金/敷金 |
礼金 |
入居可能日 |
|
|
2階 |
G 23.45坪 (77.53m2) |
445,550 (19,000) |
4ヶ月 |
無 |
2026/5 上旬 |
|
|
2階 |
G 26.92坪 (88.98m2) |
511,480 (19,000) |
4ヶ月 |
無 |
2026/5 上旬 |
|
物件番号:007544
更新日:2026/4/17
中央区八丁堀3-5-4
【竣工】1986/10(改修:2024)
【階建て】地上5F
|
【最寄駅】
|
【耐震】 |
新耐震 |
| 【基準階】 |
29.64坪 |
【エントランス】 |
平日のみ開放 |
| 【駐車場】 |
無し |
【エレベーター】 |
1基 |
NOVEL WORK 京橋は、東京都中央区八丁堀に位置する、交通利便性と快適な設備を兼ね備えたオフィスビルです。都営浅草線「宝町駅」から徒歩4分、JR京葉線および東京メトロ日比谷線「八丁堀駅」か…

| 図面 |
階数 |
面積 |
賃料(共益費込) (坪単価) |
保証金/敷金 |
礼金 |
入居可能日 |
|
|
3階 |
G 29.64坪 (97.99m2) |
844,740 (28,500) |
無 |
無 |
2026/6/1 |
|
物件番号:007169
更新日:2026/4/1
中央区新川1-17-27
【竣工】1986/7
【階建て】地上11F
|
【最寄駅】
|
【耐震】 |
新耐震 |
| 【基準階】 |
39.57坪 |
【エントランス】 |
全日開放(制限有) |
| 【駐車場】 |
無し |
【エレベーター】 |
1基 |
横川ビルは、東京都中央区新川1丁目に位置する永代通り沿いの賃貸オフィスビルです。交通アクセスは、東京メトロ東西線・日比谷線「茅場町駅」徒歩3分をはじめ、東京メトロ半蔵門線「水天宮前駅…

| 図面 |
階数 |
面積 |
賃料(共益費込) (坪単価) |
保証金/敷金 |
礼金 |
入居可能日 |
|
|
2階 |
G 36.21坪 (119.70m2) |
658,366 (18,182) |
10ヶ月 |
無 |
2026/5 下旬 |
|
非公開物件の賃料目安アイコン
8,000 円未満
8,000 円以上~1.0 万円未満
1.0 万以上~1.2 万円未満
1.2 万以上~1.4 万円未満
1.4 万以上~1.6 万円未満
1.6 万以上~2.0 万円未満
2.0 万以上~2.5 万円未満
2.5 万以上~3.0 万円未満
3.0 万円以上
未定
※取引態様:媒介
※フロア図面と現況が異なる場合は現況を優先いたします。
※貸室内部の写真・貸室からの景色に関しては、現在の募集フロアと異なる場合がございます。
※取引態様:媒介
その他、築地・八丁堀・茅場町の貸事務所をお探しの方はこちらをクリック

トイレ男女別貸事務所を区から探す
千代田区のトイレ男女別貸事務所
中央区のトイレ男女別貸事務所
港区のトイレ男女別貸事務所
新宿区のトイレ男女別貸事務所
渋谷区のトイレ男女別貸事務所
台東区のトイレ男女別貸事務所
品川区のトイレ男女別貸事務所
豊島区のトイレ男女別貸事務所
文京区のトイレ男女別貸事務所
目黒区のトイレ男女別貸事務所
東京都内のトイレ男女別貸事務所
築地・八丁堀・茅場町エリアの関連記事