トイレ男女別の貸事務所(小伝馬町・人形町)
小伝馬町・人形町エリア にあるトイレが男女別の貸事務所を掲載しています。特に、女性のお客様が重要視するのがオフィスビルのトイレです。男性と同じトイレは敬遠されることが多く、男女別のトイレを希望するお客様がいらっしゃいます。そこで女性社員の快適性を考えトイレが男女別の貸事務所をご紹介します。
小伝馬町・人形町の男女別トイレ貸事務所
物件番号:082494
更新日:2025/12/10
中央区日本橋浜町2-35-2
【竣工】2024/8
【階建て】地上11F
|
【最寄駅】
|
【耐震】 |
新耐震 |
| 【基準階】 |
53.81坪 |
【エントランス】 |
平日のみ開放 |
| 【駐車場】 |
有り |
【エレベーター】 |
2基 |
CIRCLES日本橋浜町は、東京都中央区日本橋浜町2-35-2に位置し、2024年8月に竣工予定の最新鋭オフィスビルです。都営新宿線「浜町駅」から徒歩2分、東京メトロ日比谷線および都営浅草線「人形町駅…

| 図面 |
階数 |
面積 |
賃料(共益費込) (坪単価) |
保証金/敷金 |
礼金 |
入居可能日 |
|
|
6階 |
G 53.82坪 (177.92m2) |
|
6ヶ月 |
無 |
即日 |
|
|
10階 |
G 53.82坪 (177.92m2) |
|
6ヶ月 |
無 |
即日 |
|
物件番号:076698
更新日:2026/1/8
中央区日本橋小伝馬町16-12
【竣工】2022/4
【階建て】地上9F
|
【最寄駅】
|
【耐震】 |
新耐震 |
| 【基準階】 |
86.92坪 |
【エントランス】 |
全日開放(制限有) |
| 【駐車場】 |
有り |
【エレベーター】 |
2基 |
T-PLUS日本橋小伝馬町は、中央区日本橋小伝馬町16-12に位置する、2022年竣工の新耐震基準を満たした賃貸オフィスビルです。最寄駅は、JR総武線(快速)の馬喰町駅で徒歩2分圏内、東京メトロ日比谷…

| 図面 |
階数 |
面積 |
賃料(共益費込) (坪単価) |
保証金/敷金 |
礼金 |
入居可能日 |
|
|
3階 |
G 85.60坪 (282.98m2) |
|
12ヶ月 |
無 |
2026/5/1 |
|
|
4階 |
G 41.13坪 (135.97m2) |
|
12ヶ月 |
無 |
即日 |
|
物件番号:074065
更新日:2025/12/12
中央区日本橋堀留町1-9-8
【竣工】2021/12
【階建て】地上10F
|
【最寄駅】
|
【耐震】 |
新耐震 |
| 【基準階】 |
158.06坪 |
【エントランス】 |
オートロック |
| 【駐車場】 |
有り |
【エレベーター】 |
2基 |
人形町PREXは、中央区日本橋堀留町1-8-1にある物件です。徒歩4分圏内で東京メトロ日比谷線・都営浅草線の人形町駅、東京メトロ日比谷線の小伝馬町駅、徒歩7分圏内で東京メトロ半蔵門線の水天宮前…

| 図面 |
階数 |
面積 |
賃料(共益費込) (坪単価) |
保証金/敷金 |
礼金 |
入居可能日 |
|
|
5階 |
G 158.06坪 (522.53m2) |
4,700,000 (29,736) |
28,200,000 (6ヶ月) |
無 |
即日 |
|
物件番号:077497
更新日:2026/1/9
中央区日本橋富沢町10-11
【竣工】2021/10(改修:2022)
【階建て】地上10F
|
【最寄駅】
|
【耐震】 |
新耐震 |
| 【基準階】 |
30.06坪 |
【エントランス】 |
全日開放(24h) |
| 【駐車場】 |
無し |
【エレベーター】 |
1基 |
TWG日本橋イーストⅡは、東京都中央区日本橋富沢町10-11に所在する賃貸オフィスビルです。2021年に竣工した築浅物件で、新耐震基準を満たした安心の設計が特徴です。鉄骨造・地上10階建てで、地下…

| 図面 |
階数 |
面積 |
賃料(共益費込) (坪単価) |
保証金/敷金 |
礼金 |
入居可能日 |
|
|
5階 |
G 30.06坪 (99.39m2) |
|
6ヶ月 |
無 |
即日 |
|
|
6階 |
G 30.06坪 (99.39m2) |
|
6ヶ月 |
無 |
2026/4/1 |
|
|
9階 |
G 30.06坪 (99.37m2) |
|
6ヶ月 |
無 |
2026/4/1 |
|
物件番号:076126
更新日:2025/12/8
中央区東日本橋2-22
【竣工】2021/4
【階建て】地上8F
|
【最寄駅】
|
【耐震】 |
新耐震 |
| 【基準階】 |
84.27坪 |
【エントランス】 |
全日開放(制限有) |
| 【駐車場】 |
有り |
【エレベーター】 |
2基 |
クロスシー東日本橋ビルは、中央区東日本橋2丁目に位置する、ガラス張りのユニークで洗練されたデザインが目を引く最新鋭のオフィスビルです。2021年4月に竣工した本物件は、鉄骨造・地上8階建て…

| 図面 |
階数 |
面積 |
賃料(共益費込) (坪単価) |
保証金/敷金 |
礼金 |
入居可能日 |
|
|
1階 |
G 48.56坪 (160.53m2) |
|
12ヶ月 |
無 |
2026/6/1 |
|
物件番号:070749
更新日:2025/12/10
中央区日本橋馬喰町1-5-12
【竣工】2019/12
【階建て】地上11F
|
【最寄駅】
|
【耐震】 |
新耐震 |
| 【基準階】 |
58.16坪 |
【エントランス】 |
平日のみ開放 |
| 【駐車場】 |
有り |
【エレベーター】 |
1基 |
CIRCLES日本橋馬喰町(サークルズニホンバシバクロチョウ)は、中央区日本橋馬喰町1丁目に位置する、馬喰町駅至近の視認性に優れたスタイリッシュな賃貸オフィスビルです。清洲橋通りに面した角…

| 図面 |
階数 |
面積 |
賃料(共益費込) (坪単価) |
保証金/敷金 |
礼金 |
入居可能日 |
|
|
7階 |
G 58.16坪 (192.29m2) |
|
6ヶ月 |
無 |
2026/3 予定 |
|
物件番号:082240
更新日:2026/1/5
中央区日本橋浜町3-39-3
【竣工】2012/2
【階建て】地上4F
|
【最寄駅】
|
【耐震】 |
新耐震 |
| 【基準階】 |
|
【エントランス】 |
全日開放(24h) |
| 【駐車場】 |
無し |
【エレベーター】 |
無 |
土牛産業日本橋浜町ビルは、東京都中央区日本橋浜町3-39-3に位置する、ビジネス環境に優れたオフィスビルです。この物件は、都営新宿線「浜町駅」から徒歩5分、東京メトロ半蔵門線「水天宮前駅」…

| 図面 |
階数 |
面積 |
賃料(共益費込) (坪単価) |
保証金/敷金 |
礼金 |
入居可能日 |
|
|
1-4階 |
G 41.49坪 (137.19m2) |
430,000 (10,364) |
2,580,000 (6ヶ月) |
1.0ヶ月 |
即日 |
|
物件番号:056701
更新日:2026/1/9
中央区東日本橋2-15-4
【竣工】2009/10
【階建て】地上9F
|
【最寄駅】
|
【耐震】 |
新耐震 |
| 【基準階】 |
70.33坪 |
【エントランス】 |
オートロック |
| 【駐車場】 |
有り |
【エレベーター】 |
2基 |
東日本橋エリア。東日本橋駅・馬喰町駅より徒歩2分圏内、清杉通り沿いのスタイリッシュなデザインのオフィスビル。PMO東日本橋は、中央区東日本橋2丁目、最寄駅は都営浅草線・東日本橋駅、JR…

| 図面 |
階数 |
面積 |
賃料(共益費込) (坪単価) |
保証金/敷金 |
礼金 |
入居可能日 |
|
|
NEW2階 |
G 70.33坪 (232.51m2) |
|
(未公開) |
無 |
2026/5/1 |
|
物件番号:057035
更新日:2026/1/9
中央区日本橋小伝馬町14-10
【竣工】2009/8
【階建て】地上12F 、地下1F
|
【最寄駅】
|
【耐震】 |
新耐震 |
| 【基準階】 |
28.92坪 |
【エントランス】 |
全日開放(制限有) |
| 【駐車場】 |
有り |
【エレベーター】 |
1基 |
アソルティ小伝馬町Liensは、東京都中央区日本橋小伝馬町14-10に位置する地上12階・地下1階建てのオフィスビルです。2009年8月に竣工した鉄骨鉄筋コンクリート造(SRC造)の建物で、新耐震基準を…

| 図面 |
階数 |
面積 |
賃料(共益費込) (坪単価) |
保証金/敷金 |
礼金 |
入居可能日 |
|
|
2階 |
G 20.55坪 (67.95m2) |
493,200 (24,000) |
1,972,800 (4ヶ月) |
無 |
即日 |
|
物件番号:037832
更新日:2025/12/23
中央区日本橋小伝馬町15-19
【竣工】2007/11
【階建て】地上9F
|
【最寄駅】
|
【耐震】 |
新耐震 |
| 【基準階】 |
55.37坪 |
【エントランス】 |
全日開放(24h) |
| 【駐車場】 |
無し |
【エレベーター】 |
1基 |
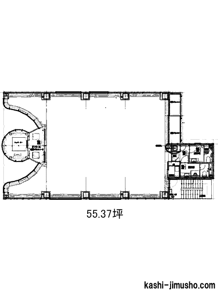
江戸通りに面した個性的でスタイリッシュな賃貸オフィスビル。ルミナスビルは、中央区日本橋小伝馬町15、最寄駅は東京メトロ日比谷線・小伝馬町駅から徒歩2分圏内。江戸通りに面した視認性の高い…

| 図面 |
階数 |
面積 |
賃料(共益費込) (坪単価) |
保証金/敷金 |
礼金 |
入居可能日 |
|
|
4階 |
G 55.37坪 (183.04m2) |
|
12ヶ月 |
無 |
2026/6/1 |
|
物件番号:056877
更新日:2026/1/5
中央区日本橋人形町1-11-12
【竣工】2007/10(改修:2020)
【階建て】地上3F 、地下2F
|
【最寄駅】
|
【耐震】 |
新耐震 |
| 【基準階】 |
120.00坪 |
【エントランス】 |
|
| 【駐車場】 |
有り |
【エレベーター】 |
1基 |
複数路線が利用可能で交通アクセス良好です。角地に位置しているので視認性に優れています。シンプルな形状でレイアウトのしやすい貸室です。

| 図面 |
階数 |
面積 |
賃料(共益費込) (坪単価) |
保証金/敷金 |
礼金 |
入居可能日 |
|
|
2階 |
N 26.80坪 (88.59m2) |
487,273 (18,182) |
1,461,819 (3ヶ月) |
1.0ヶ月 |
2026/3 下旬 |
|
物件番号:055885
更新日:2025/12/23
中央区日本橋人形町2-35-12
【竣工】2003/3
【階建て】地上14F
|
【最寄駅】
|
【耐震】 |
新耐震 |
| 【基準階】 |
|
【エントランス】 |
オートロック |
| 【駐車場】 |
無し |
【エレベーター】 |
1基 |
人形町アムフラットビルは、東京都中央区日本橋人形町の新大橋通り沿いに位置する、視認性と採光性に優れた物件です。2003年に竣工した建物は、グレーを基調とした落ち着きのある外観で、清潔感…

| 図面 |
階数 |
面積 |
賃料(共益費込) (坪単価) |
保証金/敷金 |
礼金 |
入居可能日 |
|
|
1-2階 |
G 63.83坪 (211.01m2) |
1,291,490 (20,233) |
6,600,000 (6ヶ月) |
1.0ヶ月 |
相談 |
|
物件番号:010752
更新日:2025/12/12
中央区日本橋箱崎町6-1
【竣工】1999/2
【階建て】地上7F
|
【最寄駅】
|
【耐震】 |
新耐震 |
| 【基準階】 |
65.42坪 |
【エントランス】 |
平日・土開放 |
| 【駐車場】 |
有り |
【エレベーター】 |
1基 |
カントー第2別館は、東京都中央区日本橋箱崎町に位置する、落ち着いた環境と高い実用性を兼ね備えたオフィスビルです。日本橋エリアの中でも箱崎町は、都心にありながら比較的静かな雰囲気が保た…

| 図面 |
階数 |
面積 |
賃料(共益費込) (坪単価) |
保証金/敷金 |
礼金 |
入居可能日 |
|
|
7階 |
G 65.42坪 (216.27m2) |
850,460 (13,000) |
4,252,300 (5ヶ月) |
無 |
2026/4 上旬 |
|
物件番号:010704
更新日:2026/1/8
中央区日本橋箱崎町16-1
【竣工】1994/3
【階建て】地上8F
|
【最寄駅】
|
【耐震】 |
新耐震 |
| 【基準階】 |
73.66坪 |
【エントランス】 |
|
| 【駐車場】 |
有り |
【エレベーター】 |
1基 |
東益ビルは、東京都中央区日本橋箱崎町16-1に位置する賃貸オフィスビルです。1994年3月に竣工し、地上8階建ての鉄骨鉄筋コンクリート造で新耐震基準を満たしており、ビジネスの安全性と安定性を…

| 図面 |
階数 |
面積 |
賃料(共益費込) (坪単価) |
保証金/敷金 |
礼金 |
入居可能日 |
|
|
NEW5階 |
G 73.66坪 (243.50m2) |
957,580 (13,000) |
4,419,600 (6ヶ月) |
無 |
即日 |
|
物件番号:009910
更新日:2026/1/5
中央区日本橋富沢町10-14
【竣工】1994/3(改修:2020)
【階建て】地上8F 、地下1F
|
【最寄駅】
|
【耐震】 |
新耐震 |
| 【基準階】 |
68.20坪 |
【エントランス】 |
|
| 【駐車場】 |
有り |
【エレベーター】 |
1基 |
日本橋BSビルは、中央区日本橋富沢町10-14にある物件です。徒歩4分圏内で都営浅草線の東日本橋駅、東京メトロ日比谷線の人形町駅、徒歩5分圏内で都営新宿線の馬喰横山駅、徒歩9分圏内でJR総武線(…

| 図面 |
階数 |
面積 |
賃料(共益費込) (坪単価) |
保証金/敷金 |
礼金 |
入居可能日 |
|
|
1階 |
G 55.41坪 (183.18m2) |
886,560 (16,000) |
7,092,480 (8ヶ月) |
無 |
2026/4 下旬 |
|
|
2階 |
G 68.20坪 (225.46m2) |
1,091,200 (16,000) |
8,729,600 (8ヶ月) |
無 |
2026/6 上旬 |
|
物件番号:010723
更新日:2025/12/18
中央区日本橋箱崎町17-1
【竣工】1993/8
【階建て】地上9F
|
【最寄駅】
|
【耐震】 |
新耐震 |
| 【基準階】 |
96.58坪 |
【エントランス】 |
平日・土開放 |
| 【駐車場】 |
有り |
【エレベーター】 |
2基 |
箱崎リージェントビルは、東京都中央区日本橋箱崎町に位置するオフィスビルで、広いオフィススペースと優れた利便性が特徴の物件です。東京メトロ半蔵門線「水天宮前駅」から徒歩3分と、抜群の立…

| 図面 |
階数 |
面積 |
賃料(共益費込) (坪単価) |
保証金/敷金 |
礼金 |
入居可能日 |
|
|
5階 |
G 96.58坪 (319.27m2) |
|
(未公開) |
無 |
2026/5 予定 |
|
物件番号:010596
更新日:2025/12/24
中央区日本橋蛎殻町1-4-1
【竣工】1993/3
【階建て】地上8F 、地下1F
|
【最寄駅】
|
【耐震】 |
新耐震 |
| 【基準階】 |
57.43坪 |
【エントランス】 |
平日・土開放 |
| 【駐車場】 |
無し |
【エレベーター】 |
1基 |
オーキッドプレイス蛎殻町ビルは、中央区日本橋蛎殻町1-4-1にある物件です。徒歩5分圏内で東京メトロ東西線・東京メトロ日比谷線の茅場町駅、東京メトロ半蔵門線の水天宮前駅、徒歩5分圏内で東京…

| 図面 |
階数 |
面積 |
賃料(共益費込) (坪単価) |
保証金/敷金 |
礼金 |
入居可能日 |
|
|
3階 |
G 64.64坪 (213.71m2) |
1,001,920 (15,500) |
(未公開) |
無 |
即日 |
|
|
6階 |
G 49.06坪 (162.18m2) |
784,960 (16,000) |
(未公開) |
無 |
2026/5 |
|
物件番号:010325
更新日:2025/12/12
中央区日本橋人形町2-25-15
【竣工】1993/1(改修:2025)
【階建て】地上10F
|
【最寄駅】
|
【耐震】 |
新耐震 |
| 【基準階】 |
41.72坪 |
【エントランス】 |
|
| 【駐車場】 |
有り |
【エレベーター】 |
1基 |
MS日本橋ビルは、東京都中央区日本橋人形町2-25-15に位置する、ビジネスニーズに対応した賃貸オフィスビルです。人形町エリアの閑静な一角にあり、落ち着いた雰囲気が特徴です。最寄り駅の東京メ…

| 図面 |
階数 |
面積 |
賃料(共益費込) (坪単価) |
保証金/敷金 |
礼金 |
入居可能日 |
|
|
7階 |
G 42.96坪 (142.04m2) |
1,031,040 (24,000) |
6,186,240 (6ヶ月) |
無 |
2026/3 下旬 |
|
|
9階 |
G 42.96坪 (142.04m2) |
1,031,040 (24,000) |
6,186,240 (6ヶ月) |
無 |
2026/3 下旬 |
|
物件番号:069343
更新日:2025/12/17
中央区日本橋小伝馬町21-1
【竣工】1992/12(改修:2019)
【階建て】地上9F 、地下1F
|
【最寄駅】
|
【耐震】 |
新耐震 |
| 【基準階】 |
39.66坪 |
【エントランス】 |
|
| 【駐車場】 |
無し |
【エレベーター】 |
1基 |
THE PORTAL Nihombashi Eastは、東京都中央区日本橋小伝馬町21-1に位置する賃貸オフィスビルです。複数の鉄道路線が利用可能な、非常に交通利便性に優れた立地が特徴です。最寄駅のJR総武線(快…

| 図面 |
階数 |
面積 |
賃料(共益費込) (坪単価) |
保証金/敷金 |
礼金 |
入居可能日 |
|
|
4階 |
G 39.66坪 (131.13m2) |
872,520 (22,000) |
5,235,120 (6ヶ月) |
無 |
即日 |
|
物件番号:057449
更新日:2026/1/13
中央区日本橋箱崎町17-9
【竣工】1992/11
【階建て】地上6F
|
【最寄駅】
|
【耐震】 |
新耐震 |
| 【基準階】 |
88.07坪 |
【エントランス】 |
平日のみ開放 |
| 【駐車場】 |
有り |
【エレベーター】 |
1基 |
半蔵門線の水天宮前駅から徒歩3分の駅近物件です!水天宮前駅から一直線で行ける分かりやすい立地です!白とグレーを基調としたすっきりした外観です!

| 図面 |
階数 |
面積 |
賃料(共益費込) (坪単価) |
保証金/敷金 |
礼金 |
入居可能日 |
|
|
4階 |
N 26.46坪 (87.47m2) |
396,900 (15,000) |
3,175,200 (10ヶ月) |
無 |
2026/4/25 |
|
物件番号:010685
更新日:2026/1/8
中央区日本橋箱崎町8-1
【竣工】1992/10
【階建て】地上7F 、地下1F
|
【最寄駅】
|
【耐震】 |
新耐震 |
| 【基準階】 |
129.89坪 |
【エントランス】 |
|
| 【駐車場】 |
有り |
【エレベーター】 |
2基 |
東京都中央区日本橋箱崎町に位置する「ヤマタネ箱崎ビル」は、ビジネスの拠点として非常に使いやすいオフィスビルです。1992年10月に竣工した地上7階・地下1階建てのSRC造で、新耐震基準を満たし…

| 図面 |
階数 |
面積 |
賃料(共益費込) (坪単価) |
保証金/敷金 |
礼金 |
入居可能日 |
|
|
4階 |
N 129.89坪 (429.42m2) |
|
12ヶ月 |
無 |
即日 |
|
|
5階 |
N 129.89坪 (429.42m2) |
|
12ヶ月 |
無 |
即日 |
|
物件番号:009630
更新日:2026/1/5
中央区日本橋浜町3-19-3
【竣工】1992/7(改修:2020)
【階建て】地上8F
|
【最寄駅】
|
【耐震】 |
新耐震 |
| 【基準階】 |
40.24坪 |
【エントランス】 |
全日開放(制限有) |
| 【駐車場】 |
無し |
【エレベーター】 |
1基 |
ムゲン日本橋ビルは、東京都中央区日本橋浜町3丁目に位置するオフィスビルで、利便性と機能性を兼ね備えた物件です。交通アクセスに優れており、東京メトロ半蔵門線水天宮前駅まで徒歩6分、都営…

| 図面 |
階数 |
面積 |
賃料(共益費込) (坪単価) |
保証金/敷金 |
礼金 |
入居可能日 |
|
|
3階 |
G 40.24坪 (133.03m2) |
724,320 (18,000) |
1,986,960 (3ヶ月) |
無 |
即日 |
|
|
4階 |
G 40.24坪 (133.03m2) |
724,320 (18,000) |
1,986,960 (3ヶ月) |
無 |
即日 |
|
物件番号:009209
更新日:2026/1/13
中央区日本橋小伝馬町7-10
【竣工】1992/6(改修:2019)
【階建て】地上8F
|
【最寄駅】
|
【耐震】 |
新耐震 |
| 【基準階】 |
27.38坪 |
【エントランス】 |
平日のみ開放 |
| 【駐車場】 |
無し |
【エレベーター】 |
1基 |
東京都中央区日本橋小伝馬町7-10に位置する「エムジー小伝馬町ビル」は、東京メトロ日比谷線「小伝馬町駅」から徒歩3分という好立地にあるオフィスビルです。さらに、JR総武線快速の「馬喰町駅」…

| 図面 |
階数 |
面積 |
賃料(共益費込) (坪単価) |
保証金/敷金 |
礼金 |
入居可能日 |
|
|
5階 |
G 27.38坪 (90.51m2) |
438,080 (16,000) |
2,053,500 (6ヶ月) |
無 |
2026/3 中旬 |
|
物件番号:010540
更新日:2025/12/10
中央区日本橋蛎殻町1-6-3
【竣工】1992/5(改修:2015)
【階建て】地上9F 、地下1F
|
【最寄駅】
|
【耐震】 |
新耐震 |
| 【基準階】 |
32.00坪 |
【エントランス】 |
平日のみ開放 |
| 【駐車場】 |
無し |
【エレベーター】 |
1基 |
VORT茅場町Ⅰは、東京都中央区日本橋蛎殻町1丁目に位置する、利便性と機能性を兼ね備えたオフィスビルです。最寄り駅へのアクセスが抜群で、半蔵門線「水天宮前駅」から徒歩4分、東西線および日比…

| 図面 |
階数 |
面積 |
賃料(共益費込) (坪単価) |
保証金/敷金 |
礼金 |
入居可能日 |
|
|
4階 |
G 30.35坪 (100.33m2) |
|
5ヶ月 |
1.0ヶ月 |
即日 |
|
|
7階 |
G 30.35坪 (100.33m2) |
|
5ヶ月 |
1.0ヶ月 |
即日 |
|
物件番号:009951
更新日:2025/12/24
中央区日本橋富沢町7-16
【竣工】1992/2(改修:2021)
【階建て】地上9F 、地下1F
|
【最寄駅】
|
【耐震】 |
新耐震 |
| 【基準階】 |
72.96坪 |
【エントランス】 |
平日のみ開放 |
| 【駐車場】 |
無し |
【エレベーター】 |
1基 |
THE GATE 日本橋人形町は、中央区日本橋富沢町7-16にある物件です。徒歩4分圏内で東京メトロ日比谷線・都営浅草線の人形町駅、徒歩6分圏内で都営新宿線の馬喰横山駅、徒歩7分圏内で東京メトロ半…

| 図面 |
階数 |
面積 |
賃料(共益費込) (坪単価) |
保証金/敷金 |
礼金 |
入居可能日 |
|
|
6階 |
G 62.65坪 (207.11m2) |
1,503,600 (24,000) |
10,525,200 (7ヶ月) |
無 |
2026/4/1 |
|
物件番号:010265
更新日:2026/1/5
中央区日本橋人形町2-4-9
【竣工】1992/1
【階建て】地上10F
|
【最寄駅】
|
【耐震】 |
新耐震 |
| 【基準階】 |
41.64坪 |
【エントランス】 |
全日開放(制限有) |
| 【駐車場】 |
無し |
【エレベーター】 |
1基 |
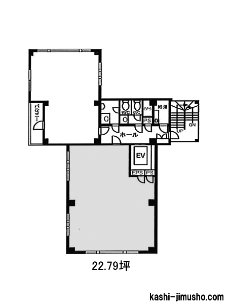
高級感のある入口アプローチ!企業イメージを高めます!この規模では希少な男女別トイレです!24時間使用可能!機械警備でセキュリティ安心です!

| 図面 |
階数 |
面積 |
賃料(共益費込) (坪単価) |
保証金/敷金 |
礼金 |
入居可能日 |
|
|
3階 |
G 22.79坪 (75.34m2) |
387,430 (17,000) |
2,324,580 (6ヶ月) |
無 |
2026/1 下旬 |
|
|
4階 |
G 41.64坪 (137.65m2) |
624,600 (15,000) |
3,747,600 (6ヶ月) |
無 |
2026/1 下旬 |
|
物件番号:009379
更新日:2026/1/8
中央区東日本橋2-23-3
【竣工】1991/10
【階建て】地上7F
|
【最寄駅】
|
【耐震】 |
新耐震 |
| 【基準階】 |
32.05坪 |
【エントランス】 |
|
| 【駐車場】 |
無し |
【エレベーター】 |
1基 |
MYS東日本橋ビルは、東京都中央区東日本橋2丁目に位置するオフィスビルです。多数路線が利用可能な利便性の良い立地のオフィス物件です。都営浅草線の東日本橋駅から徒歩3分、都営新宿線の馬喰横…

| 図面 |
階数 |
面積 |
賃料(共益費込) (坪単価) |
保証金/敷金 |
礼金 |
入居可能日 |
|
|
5階 |
G 32.05坪 (105.95m2) |
468,182 (14,608) |
2,809,092 (6ヶ月) |
1.0ヶ月 |
2026/4/10 |
|
物件番号:009661
更新日:2026/1/7
中央区日本橋浜町3-41-4
【竣工】1991/10
【階建て】地上9F
|
【最寄駅】
|
【耐震】 |
新耐震 |
| 【基準階】 |
31.70坪 |
【エントランス】 |
平日のみ開放 |
| 【駐車場】 |
無し |
【エレベーター】 |
1基 |
旭光ビルは、東京都中央区日本橋浜町3-41-4に位置する賃貸オフィスビルです。この物件の最大の特徴は、新大橋通りに面した視認性の高さにあります。目線の通る角地立地で、来訪者にも建物の場所…

| 図面 |
階数 |
面積 |
賃料(共益費込) (坪単価) |
保証金/敷金 |
礼金 |
入居可能日 |
|
|
9階 |
G 31.70坪 (104.79m2) |
475,500 (15,000) |
2,282,400 (6ヶ月) |
無 |
2026/3/16 |
|
物件番号:009325
更新日:2025/12/24
中央区日本橋大伝馬町14-15
【竣工】1991/8
【階建て】地上9F 、地下2F
|
【最寄駅】
|
【耐震】 |
新耐震 |
| 【基準階】 |
181.67坪 |
【エントランス】 |
平日のみ開放 |
| 【駐車場】 |
有り |
【エレベーター】 |
3基 |
マツモトビルは、東京都中央区日本橋大伝馬町14-15に位置する賃貸オフィスビルです。最寄りの駅は、都営新宿線の「馬喰横山駅」で徒歩3分、東京メトロ日比谷線の「小伝馬町駅」まで徒歩4分、JR総…

| 図面 |
階数 |
面積 |
賃料(共益費込) (坪単価) |
保証金/敷金 |
礼金 |
入居可能日 |
|
|
8階 |
G 170.27坪 (562.88m2) |
|
12ヶ月 |
無 |
即日 |
|
物件番号:009842
更新日:2025/12/24
中央区日本橋久松町9-8
【竣工】1991/8(改修:2024)
【階建て】地上9F
|
【最寄駅】
|
【耐震】 |
新耐震 |
| 【基準階】 |
23.48坪 |
【エントランス】 |
全日開放(24h) |
| 【駐車場】 |
無し |
【エレベーター】 |
1基 |
BizFeel東日本橋は、東京都中央区日本橋久松町に位置するオフィスビルで、優れた交通アクセスと快適なオフィス環境を兼ね備えた物件です。1991年8月に竣工し、地上9階建ての鉄骨造(S造)で建て…

| 図面 |
階数 |
面積 |
賃料(共益費込) (坪単価) |
保証金/敷金 |
礼金 |
入居可能日 |
|
|
8階 |
G 23.48坪 (77.62m2) |
600,000 (25,554) |
2,400,000 (4ヶ月) |
無 |
2026/2 上旬 |
|
※取引態様:媒介
※フロア図面と現況が異なる場合は現況を優先いたします。
※貸室内部の写真・貸室からの景色に関しては、現在の募集フロアと異なる場合がございます。
※取引態様:媒介
その他、小伝馬町・人形町の貸事務所をお探しの方はこちらをクリック

トイレ男女別貸事務所を区から探す
千代田区のトイレ男女別貸事務所
中央区のトイレ男女別貸事務所
港区のトイレ男女別貸事務所
新宿区のトイレ男女別貸事務所
渋谷区のトイレ男女別貸事務所
台東区のトイレ男女別貸事務所
品川区のトイレ男女別貸事務所
豊島区のトイレ男女別貸事務所
文京区のトイレ男女別貸事務所
目黒区のトイレ男女別貸事務所
東京都内のトイレ男女別貸事務所
小伝馬町・人形町エリアの関連記事