トイレ男女別の貸事務所(湯島・本郷)
湯島・本郷エリア にあるトイレが男女別の貸事務所を掲載しています。特に、女性のお客様が重要視するのがオフィスビルのトイレです。男性と同じトイレは敬遠されることが多く、男女別のトイレを希望するお客様がいらっしゃいます。そこで女性社員の快適性を考えトイレが男女別の貸事務所をご紹介します。
湯島・本郷エリアの男女別トイレ貸事務所
物件番号:082698
更新日:2026/5/15
文京区湯島4-1-16
【竣工】2025/12
【階建て】地上9F 、地下2F
|
【最寄駅】
|
【耐震】 |
新耐震 |
| 【基準階】 |
126.94坪 |
【エントランス】 |
|
| 【駐車場】 |
有り |
【エレベーター】 |
2基 |
Gate Cross HONGOは、東京都文京区湯島4丁目に位置するオフィスビルです。竣工は2025年12月で、構造は鉄骨造、地上9階・地下2階建てです。新耐震基準に準拠して設計されており、災害時にも高い安…

| 図面 |
階数 |
面積 |
賃料(共益費込) (坪単価) |
保証金/敷金 |
礼金 |
入居可能日 |
|
|
5階 |
N 126.94坪 (419.63m2) |
|
6ヶ月 |
無 |
2026/7 予定 |
|
物件番号:083061
更新日:2026/5/13
文京区本郷1-4-5
【竣工】2025/5
【階建て】地上10F
|
【最寄駅】
|
【耐震】 |
新耐震 |
| 【基準階】 |
69.35坪 |
【エントランス】 |
オートロック |
| 【駐車場】 |
有り |
【エレベーター】 |
2基 |
後楽園PREXは、東京都文京区本郷1丁目に所在する新築のオフィスビルです。竣工は2025年5月で、構造は鉄骨造、地上10階建てです。新耐震基準に適合した設計が採用されており、耐震性能の面でも安…

| 図面 |
階数 |
面積 |
賃料(共益費込) (坪単価) |
保証金/敷金 |
礼金 |
入居可能日 |
|
|
2階 |
G 69.27坪 (228.99m2) |
1,803,000 (26,029) |
6ヶ月 |
無 |
即日 |
|
|
4階 |
G 69.27坪 (228.99m2) |
1,873,000 (27,039) |
6ヶ月 |
無 |
即日 |
|
|
5階 |
G 69.27坪 (228.99m2) |
1,873,000 (27,039) |
6ヶ月 |
無 |
即日 |
|
|
6階 |
G 69.27坪 (228.99m2) |
1,873,000 (27,039) |
6ヶ月 |
無 |
即日 |
|
|
7階 |
G 69.27坪 (228.99m2) |
1,873,000 (27,039) |
6ヶ月 |
無 |
即日 |
|
|
8階 |
G 69.27坪 (228.99m2) |
1,873,000 (27,039) |
6ヶ月 |
無 |
即日 |
|
|
9階 |
G 69.27坪 (228.99m2) |
2,013,000 (29,060) |
6ヶ月 |
無 |
即日 |
|
|
10階 |
G 69.27坪 (228.99m2) |
2,083,000 (30,071) |
6ヶ月 |
無 |
即日 |
|
物件番号:083320
更新日:2026/5/18
文京区湯島3-31-4
【竣工】2025/1
【階建て】地上9F
|
【最寄駅】
|
【耐震】 |
新耐震+免震 |
| 【基準階】 |
43.75坪 |
【エントランス】 |
全日開放(制限有) |
| 【駐車場】 |
無し |
【エレベーター】 |
1基 |
「TS.ONE」は、東京都文京区湯島3-31-4に位置する地上9階建てのオフィスビルです。2025年1月に竣工した物件で、構造は鉄筋コンクリート造(RC造)となっており、新耐震基準に加えて免震構造も採…

| 図面 |
階数 |
面積 |
賃料(共益費込) (坪単価) |
保証金/敷金 |
礼金 |
入居可能日 |
|
|
3階 |
G 43.75坪 (144.63m2) |
|
12ヶ月 |
無 |
即日 |
|
|
4階 |
G 43.75坪 (144.63m2) |
|
12ヶ月 |
無 |
即日 |
|
|
5階 |
G 43.75坪 (144.63m2) |
|
12ヶ月 |
無 |
即日 |
|
|
6階 |
G 43.75坪 (144.63m2) |
|
12ヶ月 |
無 |
即日 |
|
物件番号:083816
更新日:2026/5/22
文京区本郷3-35-2
【竣工】2002/3(改修:2026)
【階建て】地上10F 、地下1F
|
【最寄駅】
|
【耐震】 |
新耐震 |
| 【基準階】 |
|
【エントランス】 |
|
| 【駐車場】 |
- |
【エレベーター】 |
1基 |
複数路線が利用可能で交通アクセス良好です!白色を基調とした明るい印象の貸事務所です!女性にも嬉しい男女別トイレです!

| 図面 |
階数 |
面積 |
賃料(共益費込) (坪単価) |
保証金/敷金 |
礼金 |
入居可能日 |
|
|
NEWB1-1階 |
G 64.10坪 (211.92m2) |
1,410,200 (22,000) |
6ヶ月 |
無 |
2026/6 下旬 |
|
|
NEW2階 |
G 45.85坪 (151.59m2) |
1,100,400 (24,000) |
6ヶ月 |
無 |
2026/6 下旬 |
|
|
NEW3階 |
G 36.19坪 (119.64m2) |
868,560 (24,000) |
4ヶ月 |
無 |
2026/6 下旬 |
|
|
9階 |
G 32.37坪 (107.01m2) |
776,880 (24,000) |
4ヶ月 |
無 |
2026/6/1 |
|
|
10階 |
G 23.96坪 (79.21m2) |
599,000 (25,000) |
4ヶ月 |
無 |
2026/6/1 |
|
物件番号:083724
更新日:2026/5/22
文京区本郷3-14-11
【竣工】1996/6
【階建て】地上10F 、地下1F
|
【最寄駅】
|
【耐震】 |
新耐震 |
| 【基準階】 |
29.65坪 |
【エントランス】 |
平日のみ開放 |
| 【駐車場】 |
有り |
【エレベーター】 |
1基 |
東京都文京区本郷3丁目に位置する日平本郷ビルは、本郷三丁目駅から徒歩圏内にある利便性の高い賃貸オフィスビルです。東京メトロ丸ノ内線と都営大江戸線の2路線が利用できる本郷三丁目駅から徒…

| 図面 |
階数 |
面積 |
賃料(共益費込) (坪単価) |
保証金/敷金 |
礼金 |
入居可能日 |
|
|
B1階 |
G 30.14坪 (99.64m2) |
663,080 (22,000) |
無 |
無 |
2026/9/1 |
|
|
2階 |
G 24.15坪 (79.84m2) |
676,200 (28,000) |
無 |
無 |
2026/9/1 |
|
|
3階 |
G 29.65坪 (98.02m2) |
830,200 (28,000) |
無 |
無 |
2026/6/1 |
|
|
4階 |
G 29.65坪 (98.02m2) |
830,200 (28,000) |
無 |
無 |
2026/6/1 |
|
|
5階 |
G 29.65坪 (98.02m2) |
830,200 (28,000) |
無 |
無 |
2026/6/1 |
|
|
6階 |
G 29.65坪 (98.02m2) |
830,200 (28,000) |
無 |
無 |
即日 |
|
|
7階 |
G 29.65坪 (98.02m2) |
830,200 (28,000) |
無 |
無 |
即日 |
|
|
8階 |
G 24.39坪 (80.63m2) |
707,310 (29,000) |
無 |
無 |
2026/9/1 |
|
物件番号:026069
更新日:2026/4/23
文京区本郷2-6-7
【竣工】1994/4
【階建て】地上6F
|
【最寄駅】
|
【耐震】 |
新耐震 |
| 【基準階】 |
56.81坪 |
【エントランス】 |
|
| 【駐車場】 |
有り |
【エレベーター】 |
1基 |
日比ビルは、東京都文京区本郷2-6-7に位置する地上6階建てのオフィスビルです。1994年4月に竣工し、鉄筋コンクリート造(RC造)で建てられており、新耐震基準に適合しています。災害対策に配慮さ…

| 図面 |
階数 |
面積 |
賃料(共益費込) (坪単価) |
保証金/敷金 |
礼金 |
入居可能日 |
|
|
2階 |
G 56.81坪 (187.80m2) |
624,910 (11,000) |
6ヶ月 |
1.0ヶ月 |
即日 |
|
物件番号:042703
更新日:2026/5/13
文京区本郷2-3-9
【竣工】1994/3
【階建て】地上9F 、地下1F
|
【最寄駅】
|
【耐震】 |
新耐震 |
| 【基準階】 |
163.92坪 |
【エントランス】 |
平日・土開放 |
| 【駐車場】 |
有り |
【エレベーター】 |
1基 |
複数路線が利用可能で交通アクセス良好!男女別のトイレで女性も使いやすいオフィス!24時間使用可能!機械警備でセキュリティ万全!

| 図面 |
階数 |
面積 |
賃料(共益費込) (坪単価) |
保証金/敷金 |
礼金 |
入居可能日 |
|
|
2階 |
N 51.91坪 (171.60m2) |
|
12ヶ月 |
無 |
即日 |
|
物件番号:025878
更新日:2026/5/14
文京区本郷1-34-3
【竣工】1992/12
【階建て】地上9F 、地下1F
|
【最寄駅】
|
【耐震】 |
新耐震 |
| 【基準階】 |
65.60坪 |
【エントランス】 |
平日のみ開放 |
| 【駐車場】 |
有り |
【エレベーター】 |
1基 |
文京区本郷エリアに位置する「後楽園SAJビル」は、白山通りに面した視認性の高い貸事務所で、交通利便性と利便施設が揃った魅力的なオフィスビルです。東京都文京区本郷1-24-1に所在し、都営三田…

| 図面 |
階数 |
面積 |
賃料(共益費込) (坪単価) |
保証金/敷金 |
礼金 |
入居可能日 |
|
|
8階 |
G 33.79坪 (111.70m2) |
|
12ヶ月 |
無 |
2026/7 上旬 |
|
物件番号:026007
更新日:2026/5/15
文京区本郷3-19-7
【竣工】1992/10
【階建て】地上8F 、地下1F
|
【最寄駅】
|
【耐震】 |
新耐震 |
| 【基準階】 |
39.00坪 |
【エントランス】 |
|
| 【駐車場】 |
無し |
【エレベーター】 |
1基 |
本郷三宝ビルは、文京区本郷3-19-7にある物件です。徒歩4分圏内で都営大江戸線の本郷三丁目駅、徒歩5分圏内で東京メトロ丸ノ内線の本郷三丁目駅が利用可能となっています。複数路線が利用可能で…

| 図面 |
階数 |
面積 |
賃料(共益費込) (坪単価) |
保証金/敷金 |
礼金 |
入居可能日 |
|
|
4階 |
G 38.66坪 (127.84m2) |
541,240 (14,000) |
6ヶ月 |
1.0ヶ月 |
即日 |
|
物件番号:025905
更新日:2026/5/13
文京区本郷5-33-10
【竣工】1992/4
【階建て】地上6F 、地下1F
|
【最寄駅】
|
【耐震】 |
新耐震 |
| 【基準階】 |
158.00坪 |
【エントランス】 |
全日開放(制限有) |
| 【駐車場】 |
有り |
【エレベーター】 |
2基 |
いちご本郷ビルは、東京都文京区本郷5-33-10に位置する賃貸オフィスビルです。都営三田線・都営大江戸線の春日駅まで徒歩3分、東京メトロ南北線・丸ノ内線の後楽園駅へも徒歩6分と、複数路線が利…

| 図面 |
階数 |
面積 |
賃料(共益費込) (坪単価) |
保証金/敷金 |
礼金 |
入居可能日 |
|
|
6階 |
N 111.48坪 (368.55m2) |
|
(未公開) |
無 |
2026/6/25 |
|
物件番号:025830
更新日:2026/5/15
文京区本郷3-2-7
【竣工】1991/12
【階建て】地上9F
|
【最寄駅】
|
【耐震】 |
新耐震 |
| 【基準階】 |
18.93坪 |
【エントランス】 |
平日のみ開放 |
| 【駐車場】 |
無し |
【エレベーター】 |
1基 |
東京都文京区本郷3丁目に位置する「お茶の水サニービル」は、交通アクセスの良さと快適なオフィス環境を備えたビルです。1991年12月に竣工したこの建物は、地上9階建ての鉄骨(S造)構造で、新耐…

| 図面 |
階数 |
面積 |
賃料(共益費込) (坪単価) |
保証金/敷金 |
礼金 |
入居可能日 |
|
|
8-9階 |
G 38.83坪 (128.36m2) |
524,205 (13,500) |
2,562,780 (66,000) |
無 |
即日 |
|
物件番号:055351
更新日:2026/5/22
文京区本郷2-38-16
【竣工】1991/2
【階建て】地上8F 、地下1F
|
【最寄駅】
|
【耐震】 |
新耐震 |
| 【基準階】 |
161.98坪 |
【エントランス】 |
平日のみ開放 |
| 【駐車場】 |
有り |
【エレベーター】 |
2基 |
東京都文京区本郷2丁目に位置する「JEI本郷ビル」は、交通の利便性、広いフロア面積、そして充実した設備を兼ね備えたオフィスビルです。1991年2月に竣工したこの建物は、地上8階、地下1階建ての…

| 図面 |
階数 |
面積 |
賃料(共益費込) (坪単価) |
保証金/敷金 |
礼金 |
入居可能日 |
|
|
3階 |
G 42.48坪 (140.42m2) |
|
10ヶ月 |
無 |
2026/6/1 |
|
|
3階 |
G 62.93坪 (208.03m2) |
|
10ヶ月 |
無 |
2026/6/1 |
|
|
3階 |
G 87.63坪 (289.68m2) |
|
10ヶ月 |
無 |
2026/6/1 |
|
|
5階 |
G 42.48坪 (140.42m2) |
|
10ヶ月 |
無 |
2026/6/1 |
|
|
5階 |
G 62.93坪 (208.03m2) |
|
10ヶ月 |
無 |
2026/6/1 |
|
|
5階 |
G 87.63坪 (289.68m2) |
|
10ヶ月 |
無 |
2026/6/1 |
|
物件番号:025981
更新日:2026/5/15
文京区本郷1-28-24
【竣工】1991/1
【階建て】地上10F
|
【最寄駅】
|
【耐震】 |
新耐震 |
| 【基準階】 |
57.24坪 |
【エントランス】 |
全日開放(制限有) |
| 【駐車場】 |
有り |
【エレベーター】 |
1基 |
文京区本郷エリアに位置する「IS弓町ビル」は、春日通りに面した角地に建つ視認性の高い賃貸オフィスビルです。本郷1丁目アドレスに所在し、最寄り駅は東京メトロ丸ノ内線・都営大江戸線の本郷三…

| 図面 |
階数 |
面積 |
賃料(共益費込) (坪単価) |
保証金/敷金 |
礼金 |
入居可能日 |
|
|
9階 |
G 57.24坪 (189.22m2) |
|
3,949,560 (69,000) |
無 |
即日 |
|
物件番号:081948
更新日:2026/4/27
文京区湯島3-21-5
【竣工】1990/3
【階建て】地上9F
|
【最寄駅】
|
【耐震】 |
新耐震 |
| 【基準階】 |
30.00坪 |
【エントランス】 |
全日開放(制限有) |
| 【駐車場】 |
無し |
【エレベーター】 |
1基 |
複数路線が利用可能で交通アクセス良好です。ワンフロア・ワンテナントなので使い勝手の良い貸室です。トイレは室内で男女別にわかれています。

| 図面 |
階数 |
面積 |
賃料(共益費込) (坪単価) |
保証金/敷金 |
礼金 |
入居可能日 |
|
|
1階 |
G 25.00坪 (82.64m2) |
325,000 (13,000) |
2ヶ月 |
無 |
2026/6 中旬 |
|
物件番号:025930
更新日:2026/5/20
文京区本郷3-30-10
【竣工】1990/1(改修:2019)
【階建て】地上6F 、地下1F
|
【最寄駅】
|
【耐震】 |
新耐震 |
| 【基準階】 |
39.96坪 |
【エントランス】 |
全日開放(24h) |
| 【駐車場】 |
有り |
【エレベーター】 |
1基 |
本郷K&Kビルは、文京区本郷3-30-10にある物件です。徒歩2分圏内で都営大江戸線の本郷三丁目駅、徒歩3分圏内で東京メトロ丸ノ内線の本郷三丁目駅が利用可能となっています。複数路線が利用可能で…

| 図面 |
階数 |
面積 |
賃料(共益費込) (坪単価) |
保証金/敷金 |
礼金 |
入居可能日 |
|
|
3階 |
G 39.96坪 (132.10m2) |
839,160 (21,000) |
6ヶ月 |
無 |
即日 |
|
物件番号:026047
更新日:2026/5/19
文京区本郷2-39-6
【竣工】1989/12
【階建て】地上9F 、地下1F
|
【最寄駅】
|
【耐震】 |
新耐震 |
| 【基準階】 |
39.63坪 |
【エントランス】 |
全日開放(24h) |
| 【駐車場】 |
無し |
【エレベーター】 |
1基 |
複数路線が利用可能で交通アクセス抜群です!本郷通り沿いにあり、眺望の良い物件です!ワンフロア・ワンテナントで使い勝手良好です!

| 図面 |
階数 |
面積 |
賃料(共益費込) (坪単価) |
保証金/敷金 |
礼金 |
入居可能日 |
|
|
NEW6階 |
G 38.63坪 (127.69m2) |
540,820 (14,000) |
6ヶ月 |
2.0ヶ月 |
2026/6 |
|
物件番号:053515
更新日:2026/5/12
文京区本郷3-14-7
【竣工】1989/8(改修:2008)
【階建て】地上8F 、地下1F
|
【最寄駅】
|
【耐震】 |
新耐震 |
| 【基準階】 |
155.00坪 |
【エントランス】 |
平日のみ開放 |
| 【駐車場】 |
有り |
【エレベーター】 |
3基 |
NF本郷ビルは、東京都文京区本郷3-14-7に位置するオフィスビルです。丸ノ内線・都営大江戸線の「本郷三丁目」駅から徒歩5分、JR中央線・JR総武線の「御茶ノ水」駅から徒歩8分と、複数路線を利用…

| 図面 |
階数 |
面積 |
賃料(共益費込) (坪単価) |
保証金/敷金 |
礼金 |
入居可能日 |
|
|
B1-8階 |
N 1190.27坪 (3934.78m2) |
|
12ヶ月 |
無 |
2027/3/1 |
|
物件番号:025882
更新日:2026/5/18
文京区本郷5-1-16
【竣工】1989/1
【階建て】地上11F 、地下1F
|
【最寄駅】
|
【耐震】 |
新耐震 |
| 【基準階】 |
42.97坪 |
【エントランス】 |
全日開放(制限有) |
| 【駐車場】 |
無し |
【エレベーター】 |
1基 |
VORT本郷は、文京区本郷5丁目、本郷通りに面した視認性の高いロケーションに位置する賃貸オフィスビルです。1989年に竣工し、新耐震基準を満たした鉄骨鉄筋コンクリート造・地上11階地下1階建て…

| 図面 |
階数 |
面積 |
賃料(共益費込) (坪単価) |
保証金/敷金 |
礼金 |
入居可能日 |
|
|
B1階 |
G 36.07坪 (119.24m2) |
|
5ヶ月 |
1.0ヶ月 |
2026/7/1 |
|
|
2階 |
G 40.11坪 (132.60m2) |
|
5ヶ月 |
1.0ヶ月 |
即日 |
|
物件番号:083839
更新日:2026/5/15
文京区本郷3-9-3
【竣工】1989/1
【階建て】地上4F 、地下1F
|
【最寄駅】
|
【耐震】 |
新耐震 |
| 【基準階】 |
|
【エントランス】 |
全日開放(24h) |
| 【駐車場】 |
有り |
【エレベーター】 |
未調査 |
本郷三丁目駅・御茶ノ水駅が徒歩圏内です!閑静な立地で落ち着いた周辺環境です!1階事務所物件、専用入口があります!

| 図面 |
階数 |
面積 |
賃料(共益費込) (坪単価) |
保証金/敷金 |
礼金 |
入居可能日 |
|
|
1階 |
G 28.54坪 (94.36m2) |
|
10ヶ月 |
無 |
即日 |
|
物件番号:025943
更新日:2026/5/22
文京区本郷2-12-10
【竣工】1988/10(改修:2026)
【階建て】地上5F 、地下1F
|
【最寄駅】
|
【耐震】 |
新耐震 |
| 【基準階】 |
57.10坪 |
【エントランス】 |
平日のみ開放 |
| 【駐車場】 |
無し |
【エレベーター】 |
1基 |
UT本郷ビルは、文京区本郷2-12-10にある物件です。徒歩5分圏内で東京メトロ丸ノ内線の本郷三丁目駅、徒歩6分圏内で都営大江戸線の本郷三丁目駅、徒歩7分圏内でJR中央線・JR総武線の御茶ノ水駅、…

| 図面 |
階数 |
面積 |
賃料(共益費込) (坪単価) |
保証金/敷金 |
礼金 |
入居可能日 |
|
|
1階 |
G 48.55坪 (160.50m2) |
1,213,750 (25,000) |
6ヶ月 |
無 |
2026/8 予定 |
|
|
2階 |
G 57.10坪 (188.76m2) |
1,427,500 (25,000) |
6ヶ月 |
無 |
即日 |
|
物件番号:026269
更新日:2026/5/20
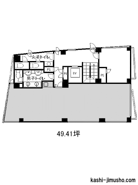
文京区湯島3-2-12
【竣工】1988/8
【階建て】地上6F
|
【最寄駅】
|
【耐震】 |
新耐震 |
| 【基準階】 |
56.86坪 |
【エントランス】 |
平日・土開放 |
| 【駐車場】 |
有り |
【エレベーター】 |
1基 |
御茶ノ水天神ビルは、東京都文京区湯島3丁目、清水坂に面した角地に建つ視認性の高い賃貸オフィスビルです。湯島・御茶ノ水エリアは古くから文教地区として知られ、落ち着いた環境と利便性を兼ね…

| 図面 |
階数 |
面積 |
賃料(共益費込) (坪単価) |
保証金/敷金 |
礼金 |
入居可能日 |
|
|
2階 |
G 49.41坪 (163.34m2) |
765,855 (15,500) |
6ヶ月 |
無 |
即日 |
|
物件番号:025836
更新日:2026/5/15
文京区本郷6-17-9
【竣工】1988/8
【階建て】地上10F
|
【最寄駅】
|
【耐震】 |
新耐震 |
| 【基準階】 |
69.98坪 |
【エントランス】 |
平日・土開放 |
| 【駐車場】 |
無し |
【エレベーター】 |
2基 |
本郷綱ビルは、東京都文京区本郷6丁目に位置する賃貸オフィスビルです。本郷通りに面しており、視認性が高く、初めて訪れる来訪者にも分かりやすい立地が魅力です。周囲は交通量の多いエリアで、…

| 図面 |
階数 |
面積 |
賃料(共益費込) (坪単価) |
保証金/敷金 |
礼金 |
入居可能日 |
|
|
8階 |
G 40.95坪 (135.37m2) |
|
(未公開) |
無 |
2026/10/1 |
|
物件番号:025915
更新日:2026/5/15
文京区本郷4-1-4
【竣工】1987/10
【階建て】地上10F 、地下2F
|
【最寄駅】
|
【耐震】 |
新耐震 |
| 【基準階】 |
69.98坪 |
【エントランス】 |
全日開放(制限有) |
| 【駐車場】 |
有り |
【エレベーター】 |
1基 |
Design Place αは、文京区本郷4-1-4にある物件です。徒歩1分圏内で都営大江戸線の本郷三丁目駅、徒歩3分圏内で東京メトロ丸ノ内線の本郷三丁目駅、徒歩9分圏内で都営三田線の水道橋駅が利用可能…

| 図面 |
階数 |
面積 |
賃料(共益費込) (坪単価) |
保証金/敷金 |
礼金 |
入居可能日 |
|
|
8階 |
G 31.91坪 (105.49m2) |
|
12ヶ月 |
無 |
2026/10/24 |
|
物件番号:026016
更新日:2026/5/18
文京区本郷4-37-18
【竣工】1986/9
【階建て】地上7F 、地下1F
|
【最寄駅】
|
【耐震】 |
新耐震 |
| 【基準階】 |
71.55坪 |
【エントランス】 |
平日のみ開放 |
| 【駐車場】 |
有り |
【エレベーター】 |
1基 |
複数路線が利用可能!交通アクセス抜群です!白いパネル貼りの清潔感ある物件です!ワンフロア・ワンテナントの使い勝手良好なオフィス空間です!

| 図面 |
階数 |
面積 |
賃料(共益費込) (坪単価) |
保証金/敷金 |
礼金 |
入居可能日 |
|
|
2階 |
G 71.55坪 (236.53m2) |
965,925 (13,500) |
6ヶ月 |
無 |
2026/6 |
|
物件番号:025899
更新日:2026/5/11
文京区本郷2-30-7
【竣工】1986/7
【階建て】地上6F
|
【最寄駅】
|
【耐震】 |
新耐震 |
| 【基準階】 |
55.00坪 |
【エントランス】 |
全日開放(24h) |
| 【駐車場】 |
無し |
【エレベーター】 |
1基 |
本郷T&Sビルは、東京都文京区本郷2-30-7に位置する地上6階建ての中規模オフィスビルです。1986年7月に竣工し、構造は鉄骨鉄筋コンクリート造(SRC造)で、新耐震基準に準拠しています。最寄り駅…

| 図面 |
階数 |
面積 |
賃料(共益費込) (坪単価) |
保証金/敷金 |
礼金 |
入居可能日 |
|
|
3階 |
G 55.00坪 (181.82m2) |
797,500 (14,500) |
6ヶ月 |
無 |
即日 |
|
物件番号:026055
更新日:2026/5/1
文京区本郷3-3-11
【竣工】1986/6
【階建て】地上8F 、地下1F
|
【最寄駅】
|
【耐震】 |
新耐震 |
| 【基準階】 |
34.61坪 |
【エントランス】 |
平日・土開放 |
| 【駐車場】 |
有り |
【エレベーター】 |
1基 |
東京都文京区本郷3丁目に位置する「NCKビル」は、交通アクセスの利便性と機能的な設備を兼ね備えたオフィスビルです。1986年6月に竣工したこの建物は、地上8階、地下1階建ての鉄骨鉄筋コンクリー…

| 図面 |
階数 |
面積 |
賃料(共益費込) (坪単価) |
保証金/敷金 |
礼金 |
入居可能日 |
|
|
4階 |
G 34.61坪 (114.41m2) |
484,540 (14,000) |
5ヶ月 |
無 |
即日 |
|
|
6階 |
G 34.61坪 (114.41m2) |
432,625 (12,500) |
5ヶ月 |
無 |
即日 |
|
物件番号:026362
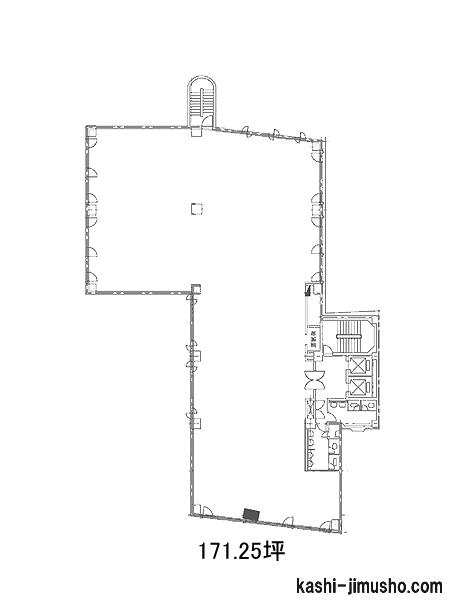
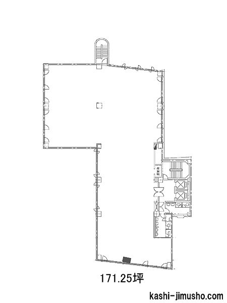
更新日:2026/5/18
文京区湯島3-39-10
【竣工】1986/1
【階建て】地上8F
|
【最寄駅】
|
【耐震】 |
新耐震 |
| 【基準階】 |
171.25坪 |
【エントランス】 |
全日開放(制限有) |
| 【駐車場】 |
有り |
【エレベーター】 |
2基 |
上野THビルは、文京区湯島3-39-10にある物件です。徒歩2分圏内で東京メトロ銀座線の上野広小路駅、都営大江戸線の上野御徒町駅、徒歩3分圏内で東京メトロ千代田線の湯島駅、徒歩4分圏内でJR山手…

| 図面 |
階数 |
面積 |
賃料(共益費込) (坪単価) |
保証金/敷金 |
礼金 |
入居可能日 |
|
|
7階 |
G 171.25坪 (566.12m2) |
|
12ヶ月 |
無 |
2026/8/1 |
|
|
8階 |
G 171.25坪 (566.12m2) |
|
12ヶ月 |
無 |
2026/8/1 |
|
物件番号:026425
更新日:2026/5/20
文京区湯島1-12-4
【竣工】1985/10
【階建て】地上9F
|
【最寄駅】
|
【耐震】 |
新耐震 |
| 【基準階】 |
61.00坪 |
【エントランス】 |
全日開放(制限有) |
| 【駐車場】 |
無し |
【エレベーター】 |
1基 |
小宮ビルは、文京区湯島1-12-4に位置する、明るく落ち着いた環境が魅力の賃貸オフィスビルです。JR中央線・総武線「御茶ノ水駅」から徒歩5分、東京メトロ丸ノ内線「御茶ノ水駅」から徒歩6分でア…

| 図面 |
階数 |
面積 |
賃料(共益費込) (坪単価) |
保証金/敷金 |
礼金 |
入居可能日 |
|
|
7階 |
G 61.00坪 (201.65m2) |
854,000 (14,000) |
6ヶ月 |
無 |
即日 |
|
物件番号:025928
更新日:2026/5/20
文京区本郷1-33-13
【竣工】1985/5(改修:2020)
【階建て】地上7F 、地下1F
|
【最寄駅】
|
【耐震】 |
新耐震 |
| 【基準階】 |
84.32坪 |
【エントランス】 |
平日のみ開放 |
| 【駐車場】 |
有り |
【エレベーター】 |
1基 |
春日町ビルは、東京都文京区本郷1-33-13に位置する貸事務所で、水道橋エリアの中でも利便性の高い立地にあります。都営三田線の水道橋駅から徒歩4分、都営大江戸線の春日駅から徒歩5分、JR総武線…

| 図面 |
階数 |
面積 |
賃料(共益費込) (坪単価) |
保証金/敷金 |
礼金 |
入居可能日 |
|
|
6階 |
N 84.32坪 (278.75m2) |
2,192,320 (26,000) |
無 |
無 |
2026/9/23 |
|
物件番号:035634
更新日:2026/5/15
文京区本郷3-37-1
【竣工】1985/1
【階建て】地上4F
|
【最寄駅】
|
【耐震】 |
新耐震 |
| 【基準階】 |
30.00坪 |
【エントランス】 |
|
| 【駐車場】 |
無し |
【エレベーター】 |
無 |
本郷三丁目駅から徒歩3分!交通アクセス良好です!ワンフロア・ワンテナントの使いやすい貸室です!女性にも嬉しい男女別トイレです!

| 図面 |
階数 |
面積 |
賃料(共益費込) (坪単価) |
保証金/敷金 |
礼金 |
入居可能日 |
|
|
2階 |
G 30.00坪 (99.17m2) |
300,000 (10,000) |
6ヶ月 |
無 |
相談 |
|
非公開物件の賃料目安アイコン
8,000 円未満
8,000 円以上~1.0 万円未満
1.0 万以上~1.2 万円未満
1.2 万以上~1.4 万円未満
1.4 万以上~1.6 万円未満
1.6 万以上~2.0 万円未満
2.0 万以上~2.5 万円未満
2.5 万以上~3.0 万円未満
3.0 万円以上
未定
※取引態様:媒介
※フロア図面と現況が異なる場合は現況を優先いたします。
※貸室内部の写真・貸室からの景色に関しては、現在の募集フロアと異なる場合がございます。
※取引態様:媒介
その他、湯島・本郷エリアの貸事務所をお探しの方はこちらをクリック

トイレ男女別貸事務所を区から探す
千代田区のトイレ男女別貸事務所
中央区のトイレ男女別貸事務所
港区のトイレ男女別貸事務所
新宿区のトイレ男女別貸事務所
渋谷区のトイレ男女別貸事務所
台東区のトイレ男女別貸事務所
品川区のトイレ男女別貸事務所
豊島区のトイレ男女別貸事務所
文京区のトイレ男女別貸事務所
目黒区のトイレ男女別貸事務所
東京都内のトイレ男女別貸事務所
湯島・本郷の関連特集