大通り角ビルの貸事務所(港区)(40~60坪)
東京都港区にある大通り角ビルのテナント募集物件、貸事務所情報です。人材募集や来客が多い企業が、オフィスを選ぶポイントの1つが大通り沿いなどの分かりやすい立地です。さらに、大通り沿いの角ビルは日当たりや見晴らしもよく、ワーカーの快適性、働きやすさも抜群です。
港区の大通り沿い角ビル
物件番号:070069
更新日:2026/5/20
港区浜松町2-7-13
【竣工】2019/1
【階建て】地上10F
|
【最寄駅】
|
【耐震】 |
新耐震 |
| 【基準階】 |
17.69坪 |
【エントランス】 |
|
| 【駐車場】 |
無し |
【エレベーター】 |
1基 |
VISTA浜松町は、東京都港区浜松町2-7-13に位置する、地上10階建てのオフィスビルです。2019年1月に竣工したS造の建物で、新耐震基準に対応しており、地震対策の面でも現行基準に沿った安全性が確…

| 図面 |
階数 |
面積 |
賃料(共益費込) (坪単価) |
保証金/敷金 |
礼金 |
入居可能日 |
|
|
8-10階 |
G 53.07坪 (175.43m2) |
1,326,750 (25,000) |
6ヶ月 |
無 |
相談 |
|
物件番号:051167
更新日:2026/4/27
港区港南2-11-1
【竣工】2007/3
【階建て】地上8F
|
【最寄駅】
|
【耐震】 |
新耐震 |
| 【基準階】 |
44.64坪 |
【エントランス】 |
|
| 【駐車場】 |
有り |
【エレベーター】 |
1基 |
品川シティビルは、港区港南2-11-1に位置するインテリジェント賃貸オフィスビルです。この物件は、旧海岸通り沿いの角地に建っており、視認性が高く、来訪者にとっても分かりやすいアクセスを提…

| 図面 |
階数 |
面積 |
賃料(共益費込) (坪単価) |
保証金/敷金 |
礼金 |
入居可能日 |
|
|
2階 |
G 44.64坪 (147.59m2) |
803,520 (18,000) |
6ヶ月 |
1.0ヶ月 |
2026/7 上旬 |
|
物件番号:010778
更新日:2026/5/22
港区台場2-3-1
【竣工】2001/2
【階建て】地上23F 、地下2F
|
【最寄駅】
|
【耐震】 |
新耐震+制震 |
| 【基準階】 |
649.85坪 |
【エントランス】 |
平日のみ開放 |
| 【駐車場】 |
有り |
【エレベーター】 |
19基 |
トレードピアお台場は、港区台場2丁目に位置する大型オフィスビルで、2001年に竣工した新耐震基準を満たした安心の建物です。構造は鉄骨鉄筋コンクリート造・地上23階建て(地下2階)で、制震構…

| 図面 |
階数 |
面積 |
賃料(共益費込) (坪単価) |
保証金/敷金 |
礼金 |
入居可能日 |
|
|
7階 |
G 55.83坪 (184.53m2) |
|
8ヶ月 |
無 |
即日 |
|
|
10階 |
G 55.83坪 (184.56m2) |
|
8ヶ月 |
無 |
相談 |
|
|
10階 |
G 55.83坪 (184.56m2) |
|
8ヶ月 |
無 |
相談 |
|
物件番号:014775
更新日:2026/5/21
港区虎ノ門3-18-16
【竣工】1996/6
【階建て】地上8F
|
【最寄駅】
|
【耐震】 |
新耐震 |
| 【基準階】 |
45.25坪 |
【エントランス】 |
平日のみ開放 |
| 【駐車場】 |
無し |
【エレベーター】 |
1基 |
大通りに面したわかりやすい立地にある物件です!ワンフロア・ワンテナントで使い勝手の良い貸室です!光ファイバー、機械警備を完備しています!

| 図面 |
階数 |
面積 |
賃料(共益費込) (坪単価) |
保証金/敷金 |
礼金 |
入居可能日 |
|
|
4階 |
G 45.25坪 (149.61m2) |
|
(未公開) |
無 |
2026/11 |
|
物件番号:015911
更新日:2026/5/15
港区芝1-15-14
【竣工】1995/10
【階建て】地上10F 、地下1F
|
【最寄駅】
|
【耐震】 |
新耐震 |
| 【基準階】 |
42.34坪 |
【エントランス】 |
平日のみ開放 |
| 【駐車場】 |
有り |
【エレベーター】 |
1基 |
複数路線が利用可能でアクセス抜群!スッキリとした落ち着いた印象のオフィスビル!ワンフロア・ワンテナントの使い勝手良い室内!

| 図面 |
階数 |
面積 |
賃料(共益費込) (坪単価) |
保証金/敷金 |
礼金 |
入居可能日 |
|
|
2階 |
G 42.34坪 (139.98m2) |
677,440 (16,000) |
6ヶ月 |
無 |
2026/8 上旬 |
|
物件番号:039422
更新日:2026/4/30
港区南麻布4-14-6
【竣工】1993/3
【階建て】地上8F
|
【最寄駅】
|
【耐震】 |
新耐震 |
| 【基準階】 |
43.48坪 |
【エントランス】 |
オートロック |
| 【駐車場】 |
無し |
【エレベーター】 |
1基 |
Precious18は、東京都港区南麻布4丁目14番6号に位置する賃貸オフィスビルです。最寄駅は東京メトロ日比谷線「広尾駅」で、徒歩8分圏内と、都心部ながらも落ち着いた環境の中に立地しています。物…

| 図面 |
階数 |
面積 |
賃料(共益費込) (坪単価) |
保証金/敷金 |
礼金 |
入居可能日 |
|
|
3階 |
G 43.48坪 (143.73m2) |
850,000 (19,549) |
6ヶ月 |
無 |
即日 |
|
物件番号:058505
更新日:2026/4/28
港区南麻布2-12-7
【竣工】1993/3
【階建て】地上9F
|
【最寄駅】
|
【耐震】 |
新耐震 |
| 【基準階】 |
43.79坪 |
【エントランス】 |
全日開放(制限有) |
| 【駐車場】 |
有り |
【エレベーター】 |
1基 |
南麻布TMDビルは、東京都港区南麻布2-12-7に位置する地上9階建てのオフィスビルです。1993年3月に竣工し、SRC造で建てられています。新耐震基準に適合しており、安全性にも優れています。交通ア…

| 図面 |
階数 |
面積 |
賃料(共益費込) (坪単価) |
保証金/敷金 |
礼金 |
入居可能日 |
|
|
7階 |
G 43.79坪 (144.76m2) |
963,380 (22,000) |
7ヶ月 |
1.0ヶ月 |
2026/5 上旬 |
|
物件番号:011707
更新日:2026/5/13
港区六本木6-17-1
【竣工】1989/5
【階建て】地上7F
|
【最寄駅】
|
【耐震】 |
新耐震 |
| 【基準階】 |
40.00坪 |
【エントランス】 |
|
| 【駐車場】 |
有り |
【エレベーター】 |
1基 |
蟻川ビルは、東京都港区六本木6丁目に建つ地上7階建ての賃貸オフィスビルです。1989年5月に竣工し、構造は鉄骨鉄筋コンクリート造(SRC造)で設計されています。新耐震基準に適合しており、安全…

| 図面 |
階数 |
面積 |
賃料(共益費込) (坪単価) |
保証金/敷金 |
礼金 |
入居可能日 |
|
|
4階 |
G 40.08坪 (132.50m2) |
|
12ヶ月 |
無 |
即日 |
|
物件番号:014609
更新日:2026/5/7
港区虎ノ門3-7-10
【竣工】1989/1(改修:2020)
【階建て】地上10F
|
【最寄駅】
|
【耐震】 |
新耐震 |
| 【基準階】 |
42.80坪 |
【エントランス】 |
|
| 【駐車場】 |
無し |
【エレベーター】 |
2基 |
虎ノ門エリア。ハイグレードな賃貸オフィスビル。ランディック虎ノ門ビルは港区虎ノ門3丁目、東京メトロ日比谷線の神谷町駅から徒歩2分圏内と駅からのアクセスは抜群。桜田通りに面した角地に位…

| 図面 |
階数 |
面積 |
賃料(共益費込) (坪単価) |
保証金/敷金 |
礼金 |
入居可能日 |
|
|
8階 |
N 42.80坪 (141.49m2) |
898,800 (21,000) |
12ヶ月 |
無 |
2026/11/1 |
|
物件番号:013239
更新日:2026/5/21
港区東麻布1-7-3
【竣工】1988/10
【階建て】地上8F 、地下1F
|
【最寄駅】
|
【耐震】 |
新耐震 |
| 【基準階】 |
38.42坪 |
【エントランス】 |
|
| 【駐車場】 |
無し |
【エレベーター】 |
1基 |
赤羽橋エリア。桜田通りに面した視認性抜群の貸事務所。第二渡邊ビルは港区東麻布1丁目、最寄り駅は都営大江戸線の赤羽橋駅です。地下鉄出口から徒歩5分圏内でアクセスできます。桜田通りに面し…

| 図面 |
階数 |
面積 |
賃料(共益費込) (坪単価) |
保証金/敷金 |
礼金 |
入居可能日 |
|
|
2階 |
G 42.62坪 (140.89m2) |
895,020 (21,000) |
6ヶ月 |
無 |
2026/7 予定 |
|
|
8階 |
G 42.62坪 (140.89m2) |
937,640 (22,000) |
6ヶ月 |
無 |
2026/7 予定 |
|
物件番号:015687
更新日:2026/5/20
港区芝5-30-9
【竣工】1987/9(改修:2002)
【階建て】地上10F 、地下1F
|
【最寄駅】
|
【耐震】 |
新耐震 |
| 【基準階】 |
56.19坪 |
【エントランス】 |
|
| 【駐車場】 |
無し |
【エレベーター】 |
1基 |
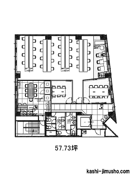
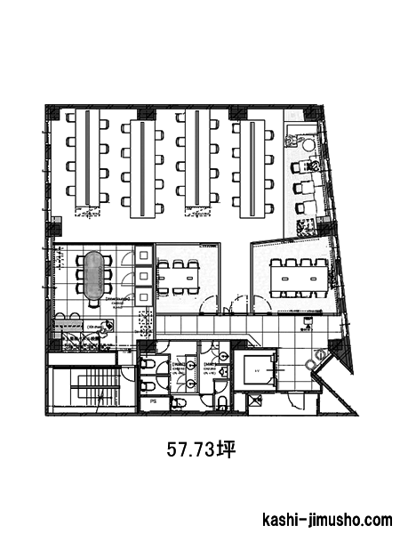
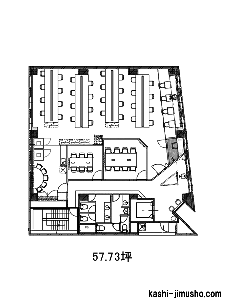
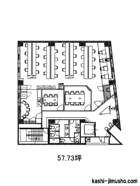
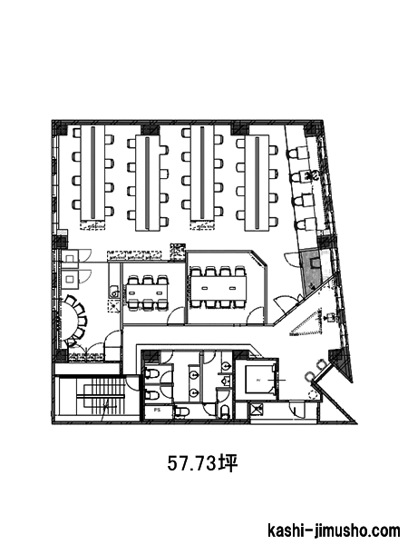
THE PORTAL 田町(東京都港区芝5-30-9)は、第一京浜に面しており、駅から分かりやすい好立地の貸事務所物件です。都営三田線・浅草線「三田駅」まで徒歩2分、JR山手線・京浜東北線「田町駅」も…

| 図面 |
階数 |
面積 |
賃料(共益費込) (坪単価) |
保証金/敷金 |
礼金 |
入居可能日 |
|
|
2階 |
G 57.73坪 (190.87m2) |
1,789,630 (31,000) |
6ヶ月 |
無 |
即日 |
|
|
3階 |
G 57.73坪 (190.87m2) |
1,789,630 (31,000) |
6ヶ月 |
無 |
即日 |
|
|
NEW4階 |
G 57.73坪 (190.84m2) |
1,905,090 (33,000) |
6ヶ月 |
無 |
2026/6 予定 |
|
|
6階 |
G 57.73坪 (190.87m2) |
1,905,090 (33,000) |
6ヶ月 |
無 |
即日 |
|
物件番号:013247
更新日:2026/5/1
港区東麻布1-3-8
【竣工】1986/9
【階建て】地上10F
|
【最寄駅】
|
【耐震】 |
新耐震 |
| 【基準階】 |
54.31坪 |
【エントランス】 |
平日・土開放 |
| 【駐車場】 |
有り |
【エレベーター】 |
1基 |
TOWER FRONT 神谷町は、東京都港区東麻布1丁目3番8号に所在する賃貸オフィスビルです。東京メトロ日比谷線「神谷町駅」および都営大江戸線「赤羽橋駅」から徒歩6分圏内と、2路線の駅が利用可能な…

| 図面 |
階数 |
面積 |
賃料(共益費込) (坪単価) |
保証金/敷金 |
礼金 |
入居可能日 |
|
|
2階 |
G 54.31坪 (179.54m2) |
1,303,440 (24,000) |
6ヶ月 |
1.0ヶ月 |
即日 |
|
|
3階 |
G 54.31坪 (179.55m2) |
1,303,440 (24,000) |
6ヶ月 |
1.0ヶ月 |
即日 |
|
物件番号:011239
更新日:2026/5/20
港区赤坂1-11-28
【竣工】1985/3
【階建て】地上10F 、地下2F
|
【最寄駅】
|
【耐震】 |
新耐震 |
| 【基準階】 |
86.90坪 |
【エントランス】 |
平日・土開放 |
| 【駐車場】 |
有り |
【エレベーター】 |
2基 |
JMFビル赤坂01ビルは東京都港区赤坂1-11-28にある賃貸オフィスビルです。溜池山王駅から出て、六本木通り沿いの角地に位置する分かりやすい立地です。落ち着いた色合いの重厚感のある外観です。…

| 図面 |
階数 |
面積 |
賃料(共益費込) (坪単価) |
保証金/敷金 |
礼金 |
入居可能日 |
|
|
8階 |
N 52.58坪 (173.82m2) |
|
無 |
無 |
2026/6 |
|
物件番号:015662
更新日:2026/5/8
港区芝2-3-3
【竣工】1984/3(改修:2023)
【階建て】地上8F 、地下2F
|
【最寄駅】
|
【耐震】 |
新耐震 |
| 【基準階】 |
469.00坪 |
【エントランス】 |
平日・土開放 |
| 【駐車場】 |
有り |
【エレベーター】 |
5基 |
JRE芝ニ丁目大門ビルは、港区芝2-3-3にある物件です。徒歩6分圏内で都営三田線の芝公園駅、徒歩7分圏内でJR山手線・JR京浜東北線・東京モノレール線の浜松町駅、都営浅草線・都営大江戸線の大門…

| 図面 |
階数 |
面積 |
賃料(共益費込) (坪単価) |
保証金/敷金 |
礼金 |
入居可能日 |
|
|
6階 |
N 43.51坪 (143.83m2) |
|
(未公開) |
無 |
2026/10 |
|
物件番号:062273
更新日:2026/4/24
港区南青山5-10-19
【竣工】1976/12
【階建て】地上9F 、地下1F
|
【最寄駅】
|
【耐震】 |
旧耐震 |
| 【基準階】 |
44.92坪 |
【エントランス】 |
|
| 【駐車場】 |
無し |
【エレベーター】 |
1基 |
表参道駅から2分!地下鉄3路線が利用可能でアクセスの良い物件です!女性社員がオフィス選びの重要ポイントの室外男女別トイレが完備されています!1フロア1テナントで使い勝手の良い物件です!

| 図面 |
階数 |
面積 |
賃料(共益費込) (坪単価) |
保証金/敷金 |
礼金 |
入居可能日 |
|
|
3階 |
G 45.00坪 (148.50m2) |
1,035,000 (23,000) |
8,000,000 (177,778) |
2.0ヶ月 |
即日 |
|
物件番号:010810
更新日:2026/5/15
港区元赤坂1-1-2
【竣工】1974/10(改修:2010)
【階建て】地上9F 、地下1F
|
【最寄駅】
|
【耐震】 |
旧耐震 |
| 【基準階】 |
44.22坪 |
【エントランス】 |
平日のみ開放 |
| 【駐車場】 |
有り |
【エレベーター】 |
1基 |
赤坂見附駅から徒歩3分と好立地な物件です!外堀通り沿いのわかりやすい立地です!光ファイバー・機械警備など設備が整っています!

| 図面 |
階数 |
面積 |
賃料(共益費込) (坪単価) |
保証金/敷金 |
礼金 |
入居可能日 |
|
|
2階 |
G 44.22坪 (146.18m2) |
840,180 (19,000) |
8ヶ月 |
無 |
即日 |
|
物件番号:012179
更新日:2026/5/11
港区南青山2-2-8
【竣工】1971/7(改修:2008)
【階建て】地上10F 、地下1F
|
【最寄駅】
|
【耐震】 |
旧耐震 |
| 【基準階】 |
115.00坪 |
【エントランス】 |
全日開放(制限有) |
| 【駐車場】 |
有り |
【エレベーター】 |
2基 |
DFビルは、東京都港区南青山2-2-8に位置するオフィスビルです。1971年7月に竣工し、構造はSRC造、地上10階・地下1階建てです。交通アクセスは東京メトロ銀座線・半蔵門線、都営大江戸線が利用で…

| 図面 |
階数 |
面積 |
賃料(共益費込) (坪単価) |
保証金/敷金 |
礼金 |
入居可能日 |
|
|
4階 |
G 56.91坪 (188.14m2) |
1,260,000 (22,140) |
6ヶ月 |
無 |
即日 |
|
物件番号:011717
更新日:2026/5/13
港区六本木6-2-31
【竣工】1971/1(改修:2004)
【階建て】地上18F 、地下4F
|
【最寄駅】
|
【耐震】 |
旧耐震+補強済 or 基準OK |
| 【基準階】 |
219.70坪 |
【エントランス】 |
全日開放(制限有) |
| 【駐車場】 |
有り |
【エレベーター】 |
6基 |
六本木ヒルズノースタワーは、東京都港区六本木6-2-31に位置する、六本木ヒルズ複合施設の一部を成す高層オフィスビルです。最寄り駅は東京メトロ日比谷線六本木駅から徒歩1分、都営大江戸線六本…

| 図面 |
階数 |
面積 |
賃料(共益費込) (坪単価) |
保証金/敷金 |
礼金 |
入居可能日 |
|
|
7階 |
N 41.40坪 (137.52m2) |
|
(未公開) |
無 |
2026/10 上旬 |
|
非公開物件の賃料目安アイコン
8,000 円未満
8,000 円以上~1.0 万円未満
1.0 万以上~1.2 万円未満
1.2 万以上~1.4 万円未満
1.4 万以上~1.6 万円未満
1.6 万以上~2.0 万円未満
2.0 万以上~2.5 万円未満
2.5 万以上~3.0 万円未満
3.0 万円以上
未定
※取引態様:媒介
※フロア図面と現況が異なる場合は現況を優先いたします。
※貸室内部の写真・貸室からの景色に関しては、現在の募集フロアと異なる場合がございます。
※取引態様:媒介
その他、港区の貸事務所をお探しの方はこちらをクリック

貸事務所―大通り角ビル
千代田区の大通り角にある貸事務所
中央区の大通り角にある貸事務所
港区の大通り角にある貸事務所
新宿区の大通り角にある貸事務所
渋谷区の大通り角にある貸事務所
台東区の大通り角にある貸事務所
品川区の大通り角にある貸事務所
豊島区の大通り角にある貸事務所
文京区の大通り角にある貸事務所
目黒区の大通り角にある貸事務所
東京都内の大通り角にある貸事務所
港区の貸事務所検索ページ