大通り沿い角ビル特集(台東区)
東京都台東区にある大通り角ビルのテナント募集物件、貸事務所情報です。人材募集や来客が多い企業が、オフィスを選ぶポイントの1つが大通り沿いなどの分かりやすい立地です。さらに、大通り沿いの角ビルは日当たりや見晴らしもよく、ワーカーの快適性、働きやすさも抜群です。
台東区の大通り沿い角ビル
物件番号:079318
更新日:2026/5/18
台東区台東4-9-2
【竣工】2022/1
【階建て】地上12F
|
【最寄駅】
|
【耐震】 |
新耐震 |
| 【基準階】 |
51.04坪 |
【エントランス】 |
全日開放(制限有) |
| 【駐車場】 |
無し |
【エレベーター】 |
2基 |
阪急阪神上野御徒町ビルは、台東区台東4-9-2にある物件です。最寄駅は、東京メトロ日比谷線の仲御徒町駅です。徒歩1分圏内でアクセス可能な好立地です。徒歩5分圏内でJR山手線・JR京浜東北線の御…

| 図面 |
階数 |
面積 |
賃料(共益費込) (坪単価) |
保証金/敷金 |
礼金 |
入居可能日 |
|
|
4階 |
G 51.05坪 (168.75m2) |
|
6ヶ月 |
無 |
即日 |
|
|
7階 |
G 51.05坪 (168.75m2) |
|
12ヶ月 |
無 |
即日 |
|
|
8階 |
G 51.05坪 (168.75m2) |
|
6ヶ月 |
無 |
即日 |
|
|
9階 |
G 51.05坪 (168.75m2) |
|
6ヶ月 |
無 |
即日 |
|
|
10階 |
G 51.05坪 (168.75m2) |
|
6ヶ月 |
無 |
2026/7 予定 |
|
|
11階 |
G 51.05坪 (168.75m2) |
|
12ヶ月 |
無 |
2026/7 予定 |
|
|
12階 |
G 51.05坪 (168.75m2) |
|
12ヶ月 |
無 |
即日 |
|
物件番号:068745
更新日:2026/5/12
台東区台東1-31-7
【竣工】2018/12
【階建て】地上8F
|
【最寄駅】
|
【耐震】 |
新耐震 |
| 【基準階】 |
215.50坪 |
【エントランス】 |
オートロック |
| 【駐車場】 |
有り |
【エレベーター】 |
3基 |
PMO秋葉原北は、東京都台東区台東1-31-7に位置する地上8階建てのオフィスビルです。2018年12月に竣工し、S造で建てられています。新耐震基準に適合しているので、安全性にも優れています。交通ア…

| 図面 |
階数 |
面積 |
賃料(共益費込) (坪単価) |
保証金/敷金 |
礼金 |
入居可能日 |
|
|
7階 |
G 215.85坪 (713.55m2) |
|
12ヶ月 |
無 |
2027/2 予定 |
|
物件番号:056584
更新日:2026/5/1
台東区東上野6-2-1
【竣工】2009/10
【階建て】地上10F
|
【最寄駅】
|
【耐震】 |
新耐震 |
| 【基準階】 |
146.03坪 |
【エントランス】 |
平日のみ開放 |
| 【駐車場】 |
有り |
【エレベーター】 |
2基 |
上野エリア。浅草通り沿いの角地に建つハイグレードな賃貸オフィスビル。MPR東上野ビルは、台東区東上野6丁目、最寄駅は東京メトロ銀座線・稲荷町駅、駅から徒歩1分圏内のアクセス抜群の立地です…

| 図面 |
階数 |
面積 |
賃料(共益費込) (坪単価) |
保証金/敷金 |
礼金 |
入居可能日 |
|
|
9階 |
N 87.16坪 (288.12m2) |
|
12ヶ月 |
無 |
2026/10 |
|
物件番号:068198
更新日:2026/5/8
台東区小島2-21-18
【竣工】2002/3
【階建て】地上5F
|
【最寄駅】
|
【耐震】 |
新耐震 |
| 【基準階】 |
38.71坪 |
【エントランス】 |
オートロック |
| 【駐車場】 |
無し |
【エレベーター】 |
1基 |
TX小島ビルは、台東区小島2-21-18にある物件です。最寄駅は、つくばエクスプレス・都営大江戸線の新御徒町駅です。新御徒町駅のA4出口がビルの1階にございます。徒歩1分圏内でアクセス可能な好立…

| 図面 |
階数 |
面積 |
賃料(共益費込) (坪単価) |
保証金/敷金 |
礼金 |
入居可能日 |
|
|
3階 |
G 39.71坪 (131.30m2) |
536,085 (13,500) |
10ヶ月 |
無 |
2026/6 上旬 |
|
物件番号:017211
更新日:2026/5/12
台東区東上野1-11-4
【竣工】1999/4
【階建て】地上8F
|
【最寄駅】
|
【耐震】 |
新耐震 |
| 【基準階】 |
68.43坪 |
【エントランス】 |
平日のみ開放 |
| 【駐車場】 |
無し |
【エレベーター】 |
1基 |
ザイマックス東上野ビルは、東京都台東区東上野1-11-4に位置する賃貸オフィスビルで、御徒町エリアの中でも利便性と快適性を兼ね備えた物件です。最寄り駅は東京メトロ日比谷線「仲御徒町駅」で…

| 図面 |
階数 |
面積 |
賃料(共益費込) (坪単価) |
保証金/敷金 |
礼金 |
入居可能日 |
|
|
5階 |
G 70.67坪 (233.62m2) |
|
12ヶ月 |
無 |
2026/10/1 |
|
物件番号:018146
更新日:2026/5/8
台東区元浅草2-6-4
【竣工】1993/1(改修:2015)
【階建て】地上9F 、地下1F
|
【最寄駅】
|
【耐震】 |
新耐震 |
| 【基準階】 |
27.73坪 |
【エントランス】 |
平日のみ開放 |
| 【駐車場】 |
無し |
【エレベーター】 |
1基 |
大通りに面したお洒落なオフィスビルです!室内の形が良く、OAフロア完備で使いやすいオフィスです!30坪未満のワンフロア・ワンテナントビルで、トイレ男女別は希少です!

| 図面 |
階数 |
面積 |
賃料(共益費込) (坪単価) |
保証金/敷金 |
礼金 |
入居可能日 |
|
|
4階 |
G 27.73坪 (91.67m2) |
388,220 (14,000) |
6ヶ月 |
無 |
2026/9 上旬 |
|
物件番号:064224
更新日:2026/5/20
台東区台東3-29-1
【竣工】1992/1(改修:2014)
【階建て】地上9F
|
【最寄駅】
|
【耐震】 |
新耐震 |
| 【基準階】 |
93.61坪 |
【エントランス】 |
|
| 【駐車場】 |
有り |
【エレベーター】 |
2基 |
中央法規ビルは、東京都台東区台東3-29-1に位置するオフィスビルです。都営大江戸線・つくばエクスプレスの「新御徒町」駅から徒歩4分、東京メトロ日比谷線「仲御徒町」駅から徒歩7分、JR山手線…

| 図面 |
階数 |
面積 |
賃料(共益費込) (坪単価) |
保証金/敷金 |
礼金 |
入居可能日 |
|
|
2階 |
G 93.61坪 (309.45m2) |
1,497,760 (16,000) |
6ヶ月 |
無 |
2026/8/1 |
|
物件番号:017989
更新日:2026/5/13
台東区小島2-20-7
【竣工】1991/12
【階建て】地上8F
|
【最寄駅】
|
【耐震】 |
新耐震 |
| 【基準階】 |
37.00坪 |
【エントランス】 |
全日開放(24h) |
| 【駐車場】 |
有り |
【エレベーター】 |
1基 |
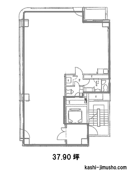
春日通りに面した駅上の分かりやすい立地!2面採光の明るく開放的な室内空間!独立性が高く使いやすいワンフロア・ワンテナント!

| 図面 |
階数 |
面積 |
賃料(共益費込) (坪単価) |
保証金/敷金 |
礼金 |
入居可能日 |
|
|
3階 |
G 37.90坪 (125.29m2) |
|
6ヶ月 |
無 |
2026/7/1 |
|
物件番号:036592
更新日:2026/5/22
台東区鳥越1-4-3
【竣工】1991/3
【階建て】地上8F
|
【最寄駅】
|
【耐震】 |
新耐震 |
| 【基準階】 |
33.11坪 |
【エントランス】 |
全日開放(24h) |
| 【駐車場】 |
無し |
【エレベーター】 |
1基 |
鳥越ミハマビルは、東京都台東区鳥越1丁目4-3に位置するオフィスビルです。最寄り駅は都営大江戸線「新御徒町駅」で徒歩8分の距離にあり、アクセスが良好な立地です。また、都営浅草線およびJR総…

| 図面 |
階数 |
面積 |
賃料(共益費込) (坪単価) |
保証金/敷金 |
礼金 |
入居可能日 |
|
|
2階 |
G 33.11坪 (109.45m2) |
446,985 (13,500) |
8ヶ月 |
無 |
2026/10/15 |
|
|
3階 |
G 33.11坪 (109.47m2) |
446,985 (13,500) |
8ヶ月 |
無 |
2026/10/15 |
|
物件番号:072600
更新日:2026/5/22
台東区秋葉原1-8
【竣工】1990/10(改修:2019)
【階建て】地上10F
|
【最寄駅】
|
【耐震】 |
新耐震 |
| 【基準階】 |
53.84坪 |
【エントランス】 |
平日のみ開放 |
| 【駐車場】 |
有り |
【エレベーター】 |
1基 |
TOWA秋葉原ビルは、台東区秋葉原1-8に位置する貸事務所です。JR山手線・京浜東北線・総武線「秋葉原駅」から徒歩6分、東京メトロ日比谷線「秋葉原駅」も徒歩6分の距離にあり、東京メトロ銀座線「…

| 図面 |
階数 |
面積 |
賃料(共益費込) (坪単価) |
保証金/敷金 |
礼金 |
入居可能日 |
|
|
7階 |
G 53.84坪 (177.99m2) |
|
12ヶ月 |
無 |
2026/9/1 |
|
物件番号:057942
更新日:2026/5/19
台東区浅草橋3-25-5
【竣工】1989/10
【階建て】地上9F 、地下1F
|
【最寄駅】
|
【耐震】 |
新耐震 |
| 【基準階】 |
28.17坪 |
【エントランス】 |
|
| 【駐車場】 |
無し |
【エレベーター】 |
1基 |
東京都台東区浅草橋エリアに位置する「M’s325ビル」は、交通利便性と使い勝手の良いオフィス環境を兼ね備えた賃貸オフィスビルです。都営浅草線「蔵前駅」から徒歩3分、都営大江戸線「蔵前駅」か…

| 図面 |
階数 |
面積 |
賃料(共益費込) (坪単価) |
保証金/敷金 |
礼金 |
入居可能日 |
|
|
7階 |
G 28.17坪 (93.12m2) |
450,720 (16,000) |
6ヶ月 |
無 |
即日 |
|
物件番号:017739
更新日:2026/5/21
台東区浅草橋1-1-14
【竣工】1988/1
【階建て】地上8F
|
【最寄駅】
|
【耐震】 |
新耐震 |
| 【基準階】 |
23.11坪 |
【エントランス】 |
平日のみ開放 |
| 【駐車場】 |
無し |
【エレベーター】 |
1基 |
「清水ビル」は、東京都台東区浅草橋1-1-14に位置するオフィスビルです。構造は鉄骨鉄筋コンクリート造(SRC造)で、地上8階建てで、耐久性と安定性に優れています。1988年1月に竣工し、新耐震基…

| 図面 |
階数 |
面積 |
賃料(共益費込) (坪単価) |
保証金/敷金 |
礼金 |
入居可能日 |
|
|
NEW5階 |
G 23.11坪 (76.40m2) |
300,430 (13,000) |
5ヶ月 |
1.0ヶ月 |
2026/8 予定 |
|
物件番号:059678
更新日:2026/5/18
台東区台東1-31-10
【竣工】1987/11
【階建て】地上10F
|
【最寄駅】
|
【耐震】 |
新耐震 |
| 【基準階】 |
48.22坪 |
【エントランス】 |
全日開放(制限有) |
| 【駐車場】 |
無し |
【エレベーター】 |
1基 |
末広町駅、秋葉原駅の複数路線が利用可能です!蔵前橋通りの角地にあるビルです!個別空調、室外男女別のトイレを完備しています!

| 図面 |
階数 |
面積 |
賃料(共益費込) (坪単価) |
保証金/敷金 |
礼金 |
入居可能日 |
|
|
3階 |
G 48.22坪 (159.40m2) |
675,080 (14,000) |
6ヶ月 |
2.0ヶ月 |
即日 |
|
|
7階 |
G 48.22坪 (159.40m2) |
675,080 (14,000) |
6ヶ月 |
2.0ヶ月 |
即日 |
|
物件番号:018083
更新日:2026/5/18
台東区蔵前3-12-8
【竣工】1987/5
【階建て】地上9F 、地下1F
|
【最寄駅】
|
【耐震】 |
新耐震 |
| 【基準階】 |
58.83坪 |
【エントランス】 |
全日開放(制限有) |
| 【駐車場】 |
有り |
【エレベーター】 |
1基 |
岡安ビルは、東京都台東区蔵前3丁目12-8に位置するオフィスビルです。最寄り駅は都営浅草線「蔵前駅」で徒歩1分、さらに都営大江戸線「蔵前駅」も徒歩2分と、2つの路線が至近距離で利用可能な利…

| 図面 |
階数 |
面積 |
賃料(共益費込) (坪単価) |
保証金/敷金 |
礼金 |
入居可能日 |
|
|
5階 |
G 23.86坪 (78.88m2) |
333,340 (14,000) |
10ヶ月 |
無 |
即日 |
|
|
8階 |
G 23.81坪 (78.74m2) |
333,340 (14,000) |
10ヶ月 |
無 |
2026/8 予定 |
|
物件番号:017141
更新日:2026/5/15
台東区東上野1-1-1
【竣工】1987/4
【階建て】地上7F 、地下1F
|
【最寄駅】
|
【耐震】 |
新耐震 |
| 【基準階】 |
27.67坪 |
【エントランス】 |
|
| 【駐車場】 |
無し |
【エレベーター】 |
1基 |
東京都台東区東上野エリアに位置する「O&K1.1.1ビル」は、駅近の利便性とコンパクトで使い勝手の良いオフィス環境を兼ね備えた賃貸オフィスビルです。最寄りの都営大江戸線「新御徒町駅」から徒…

| 図面 |
階数 |
面積 |
賃料(共益費込) (坪単価) |
保証金/敷金 |
礼金 |
入居可能日 |
|
|
2階 |
G 27.67坪 (91.48m2) |
359,704 (13,000) |
8ヶ月 |
無 |
即日 |
|
物件番号:016806
更新日:2026/5/15
台東区上野5-5-8
【竣工】1986/11
【階建て】地上9F 、地下1F
|
【最寄駅】
|
【耐震】 |
新耐震 |
| 【基準階】 |
24.92坪 |
【エントランス】 |
平日・土開放 |
| 【駐車場】 |
無し |
【エレベーター】 |
1基 |
東京都台東区上野エリアに位置する「IMIビル」は、交通利便性と機能性を兼ね備えた賃貸オフィスビルです。東京メトロ日比谷線「仲御徒町駅」から徒歩3分をはじめ、JR山手線「御徒町駅」徒歩6分、…

| 図面 |
階数 |
面積 |
賃料(共益費込) (坪単価) |
保証金/敷金 |
礼金 |
入居可能日 |
|
|
5階 |
G 24.92坪 (82.38m2) |
|
10ヶ月 |
無 |
即日 |
|
物件番号:075452
更新日:2026/5/1
台東区花川戸1-2-8
【竣工】1977/3
【階建て】地上9F
|
【最寄駅】
|
【耐震】 |
旧耐震 |
| 【基準階】 |
|
【エントランス】 |
|
| 【駐車場】 |
無し |
【エレベーター】 |
1基 |
コーポ花川戸は、東京都台東区花川戸1-2-8に位置する地上9階建てのビルで、1977年3月に竣工しました。構造は鉄骨鉄筋コンクリート造(SRC造)です。交通アクセスの面では、まさに「浅草」の中心…

| 図面 |
階数 |
面積 |
賃料(共益費込) (坪単価) |
保証金/敷金 |
礼金 |
入居可能日 |
|
|
3階 |
G 36.99坪 (122.30m2) |
768,000 (20,762) |
5ヶ月 |
1.0ヶ月 |
即日 |
|
物件番号:017599
更新日:2026/5/7
台東区台東4-27-5
【竣工】1976/11
【階建て】地上9F
|
【最寄駅】
|
【耐震】 |
旧耐震 |
| 【基準階】 |
43.00坪 |
【エントランス】 |
全日開放(制限有) |
| 【駐車場】 |
無し |
【エレベーター】 |
1基 |
仲御徒町駅、御徒町駅、上野御徒町駅などの複数路線が利用可能です!大通り沿いの角地に位置しているので視認性抜群です!白を基調とした明るい印象の外観です!

| 図面 |
階数 |
面積 |
賃料(共益費込) (坪単価) |
保証金/敷金 |
礼金 |
入居可能日 |
|
|
2階 |
G 28.00坪 (92.50m2) |
280,000 (10,000) |
6ヶ月 |
無 |
2026/6 下旬 |
|
物件番号:054046
更新日:2026/5/22
台東区寿3-19-2
【竣工】1975/2(改修:2017)
【階建て】地上11F 、地下1F
|
【最寄駅】
|
【耐震】 |
旧耐震 |
| 【基準階】 |
154.98坪 |
【エントランス】 |
全日開放(24h) |
| 【駐車場】 |
無し |
【エレベーター】 |
1基 |
シュロス浅草は、東京都台東区に所在する地上11階・地下1階建ての賃貸オフィスビルです。1975年2月に竣工し、堅牢な鉄骨鉄筋コンクリート造(SRC造)で建設された建物です。交通アクセスに優れて…

| 図面 |
階数 |
面積 |
賃料(共益費込) (坪単価) |
保証金/敷金 |
礼金 |
入居可能日 |
|
|
2階 |
G 29.17坪 (96.45m2) |
262,530 (9,000) |
7ヶ月 |
無 |
2026/9/16 |
|
物件番号:050972
更新日:2026/5/7
台東区蔵前4-3-3
【竣工】1963/6
【階建て】地上6F
|
【最寄駅】
|
【耐震】 |
旧耐震 |
| 【基準階】 |
16.64坪 |
【エントランス】 |
全日開放(制限有) |
| 【駐車場】 |
無し |
【エレベーター】 |
無 |
「蔵前協同ビル」は、東京都台東区蔵前4-3-3に位置する1963年6月に竣工したオフィスビルです。構造は鉄筋コンクリート造(RC造)で、地上6階建ての設計となっています。都営浅草線・蔵前駅から徒…

| 図面 |
階数 |
面積 |
賃料(共益費込) (坪単価) |
保証金/敷金 |
礼金 |
入居可能日 |
|
|
5-6階 |
G 20.89坪 (69.05m2) |
168,000 (8,042) |
2ヶ月 |
1.0ヶ月 |
即日 |
|
非公開物件の賃料目安アイコン
8,000 円未満
8,000 円以上~1.0 万円未満
1.0 万以上~1.2 万円未満
1.2 万以上~1.4 万円未満
1.4 万以上~1.6 万円未満
1.6 万以上~2.0 万円未満
2.0 万以上~2.5 万円未満
2.5 万以上~3.0 万円未満
3.0 万円以上
未定
※取引態様:媒介
※フロア図面と現況が異なる場合は現況を優先いたします。
※貸室内部の写真・貸室からの景色に関しては、現在の募集フロアと異なる場合がございます。
※取引態様:媒介
その他、台東区の貸事務所をお探しの方はこちらをクリック

貸事務所―大通り角ビル
千代田区の大通り角にある貸事務所
中央区の大通り角にある貸事務所
港区の大通り角にある貸事務所
新宿区の大通り角にある貸事務所
渋谷区の大通り角にある貸事務所
台東区の大通り角にある貸事務所
品川区の大通り角にある貸事務所
豊島区の大通り角にある貸事務所
文京区の大通り角にある貸事務所
目黒区の大通り角にある貸事務所
東京都内の大通り角にある貸事務所
台東区の貸事務所検索ページ