
赤坂ライオンズビル赤坂・溜池山王 港区の賃貸情報
物件番号:10810
赤坂ライオンズビルの募集中物件リスト
| 図面 | 階数 | 面積 | 賃料(共益費込) (坪単価) |
保証金/敷金 | 礼金 | 入居可能日 |
|---|---|---|---|---|---|---|
| 2階 |
G 44.22坪 (146.18m2) |
707,520 (16,000) |
8ヶ月 | 無 | 即日 | |
| 8階 |
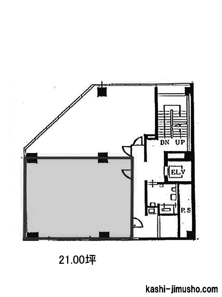
G 21.00坪 (69.42m2) |
409,500 (19,500) |
8ヶ月 | 無 | 即日 |
- ※取引態様:媒介
- ※フロア図面と現況が異なる場合は現況を優先いたします。
- ※貸室内部の写真・貸室からの景色に関しては、現在の募集フロアと異なる場合がございます。
- ※保証金/敷金以外の費用については別途消費税が必要になります。
- ※各物件により、別途費用が必要な場合には、物件紹介時又は重要事項説明においてご説明いたします。
- ※面積の箇所に表示している N はネット契約(契約面積はオフィス専用部分のみ)、G はグロス契約(契約面積は共用部分を加えた面積)を表しています。
赤坂ライオンズビルの設備概要※-は確認中の表記になります。
| 竣工 | 1974年 (改修:2010年) | 構造・階建て | SRC造 地上9階 地下1階 |
|---|---|---|---|
| 耐震 | 旧耐震 | 基準階面積 | 44.22坪 |
| エレベーター | 1基 | 駐車場 | 有 |
| ビル使用時間 | 24時間使用可 | エントランス | 平日のみ開放 |
| セキュリティ | 機械 | 光ファイバー | 有 |
| 契約種別 | 普通借家契約 | 建替え予定 | - |
| 保証契約 | - |
おすすめポイント!
弁慶堀を望む緑豊かな立地の駅近賃貸オフィスビル!

赤坂見附駅から徒歩3分と好立地な物件です!
外堀通り沿いのわかりやすい立地です!
光ファイバー・機械警備など設備が整っています!
外堀通り沿いのわかりやすい立地です!
光ファイバー・機械警備など設備が整っています!
赤坂ライオンズビルの周辺地図
「赤坂ライオンズビル」に関するお問合せ
![]() |
|
| このページのURL | https://tokyo.kashi-jimusho.com/detail/10810/ |
|---|---|
株式会社サンエスコーポレーション |
|
| 〒103-0027 東京都中央区日本橋2-2-21 日本橋二丁目ビル5階 | |










