貸事務所|土日エントランス開放(新宿区)(20~40坪)
東京都新宿区にある土曜日や日曜日もエントランスが開放している賃貸オフィスビルを掲載しています。平日はもちろん、週末の土日や祝日、祭日でもメインエントランスが開いているので、土日に営業をされる企業様に最適の賃貸オフィスビルを見つけることができます。
貸事務所|土日エントランス開放|新宿区
物件番号:080400
更新日:2026/5/15
新宿区高田馬場2-8-2
【竣工】2023/1
【階建て】地上12F 、地下1F
|
【最寄駅】
|
【耐震】 |
新耐震 |
| 【基準階】 |
33.42坪 |
【エントランス】 |
全日開放(24h) |
| 【駐車場】 |
無し |
【エレベーター】 |
1基 |
コレタス高田馬場は、新宿区高田馬場2丁目に誕生した、存在感のある外観と使いやすさを兼ね備えたオフィスビルです。ガラス張りのファサードが印象的で、街並みの中でもひときわ目を引くスタイリ…

| 図面 |
階数 |
面積 |
賃料(共益費込) (坪単価) |
保証金/敷金 |
礼金 |
入居可能日 |
|
|
4階 |
G 27.58坪 (91.19m2) |
680,000 (24,656) |
8ヶ月 |
1.0ヶ月 |
2026/6/1 |
|
|
7階 |
G 25.76坪 (85.17m2) |
630,000 (24,457) |
8ヶ月 |
1.0ヶ月 |
即日 |
|
|
9階 |
G 33.42坪 (110.47m2) |
800,000 (23,938) |
8ヶ月 |
1.0ヶ月 |
即日 |
|
物件番号:076929
更新日:2026/5/19
新宿区市谷田町3-8
【竣工】2021/6
【階建て】地上12F
|
【最寄駅】
|
【耐震】 |
新耐震 |
| 【基準階】 |
46.47坪 |
【エントランス】 |
全日開放(制限有) |
| 【駐車場】 |
有り |
【エレベーター】 |
1基 |
市ヶ谷科学技術イノベーションセンタービルは、新宿区市谷田町3-8に位置する、利便性と機能性を兼ね備えた賃貸オフィスビルです。最寄り駅までのアクセスが非常に良好で、東京メトロ有楽町線・南…

| 図面 |
階数 |
面積 |
賃料(共益費込) (坪単価) |
保証金/敷金 |
礼金 |
入居可能日 |
|
|
NEW11階 |
G 29.26坪 (96.73m2) |
|
8ヶ月 |
無 |
2026/10/1 |
|
物件番号:071307
更新日:2026/5/12
新宿区西新宿3-1-2
【竣工】2019/6
【階建て】地上10F 、地下1F
|
【最寄駅】
|
【耐震】 |
新耐震 |
| 【基準階】 |
22.06坪 |
【エントランス】 |
全日開放(24h) |
| 【駐車場】 |
無し |
【エレベーター】 |
1基 |
SKI西新宿は、新宿の西側エリアに位置する視認性の高い賃貸オフィスビルです。この物件は新宿区西新宿3-1-2に立地し、甲州街道に面した角地という好立地が魅力的です。最寄駅は、徒歩4分の都営大…

| 図面 |
階数 |
面積 |
賃料(共益費込) (坪単価) |
保証金/敷金 |
礼金 |
入居可能日 |
|
|
7階 |
G 22.06坪 (72.94m2) |
639,740 (29,000) |
8ヶ月 |
1.0ヶ月 |
2026/6 予定 |
|
物件番号:068299
更新日:2026/5/11
新宿区新宿6-29-11
【竣工】2017/10
【階建て】地上10F
|
【最寄駅】
|
【耐震】 |
新耐震 |
| 【基準階】 |
27.41坪 |
【エントランス】 |
全日開放(制限有) |
| 【駐車場】 |
無し |
【エレベーター】 |
1基 |
複数路線が利用可能!交通アクセス抜群!ガラス張りでデザイン性の高いクリエイティブな外観!ワンフロア・ワンテナントで使い勝手良好!

| 図面 |
階数 |
面積 |
賃料(共益費込) (坪単価) |
保証金/敷金 |
礼金 |
入居可能日 |
|
|
9階 |
G 27.41坪 (90.64m2) |
900,000 (32,835) |
6ヶ月 |
無 |
相談 |
|
物件番号:050292
更新日:2026/5/8
新宿区四谷4-3-20
【竣工】2006/10
【階建て】地上11F
|
【最寄駅】
|
【耐震】 |
新耐震 |
| 【基準階】 |
21.50坪 |
【エントランス】 |
全日開放(24h) |
| 【駐車場】 |
無し |
【エレベーター】 |
1基 |
複数路線が利用可能で交通アクセス良好です。管理の行き届いた清潔感のあるエントランスです。ワンフロア・ワンテナントなので使い勝手の良い貸室です。

| 図面 |
階数 |
面積 |
賃料(共益費込) (坪単価) |
保証金/敷金 |
礼金 |
入居可能日 |
|
|
8階 |
G 21.50坪 (71.06m2) |
386,820 (17,991) |
6ヶ月 |
無 |
相談 |
|
物件番号:083002
更新日:2026/5/8
新宿区高田馬場3-38-15
【竣工】1997/3
【階建て】地上3F
|
【最寄駅】
|
【耐震】 |
新耐震 |
| 【基準階】 |
22.50坪 |
【エントランス】 |
全日開放(24h) |
| 【駐車場】 |
有り |
【エレベーター】 |
無 |
日報ビルは、東京都新宿区高田馬場3丁目に位置する地上3階建ての小規模オフィスビルです。1997年3月に竣工し、構造は鉄骨造(S造)で、新耐震基準に適合しているため、耐震性にも優れた設計とな…

| 図面 |
階数 |
面積 |
賃料(共益費込) (坪単価) |
保証金/敷金 |
礼金 |
入居可能日 |
|
|
2階 |
G 22.50坪 (74.25m2) |
204,546 (9,091) |
3ヶ月 |
1.0ヶ月 |
相談 |
|
物件番号:032314
更新日:2026/5/22
新宿区西新宿3-20-2
【竣工】1996/7
【階建て】地上54F 、地下4F
|
【最寄駅】
|
【耐震】 |
新耐震 |
| 【基準階】 |
653.00坪 |
【エントランス】 |
全日開放(制限有) |
| 【駐車場】 |
有り |
【エレベーター】 |
45基 |
東京オペラシティは、新宿区西新宿3丁目に位置する超高層の複合型オフィスビルです。住所は東京都新宿区西新宿3-20-2で、京王新線「初台駅」と地下通路で直結しており、駅改札からビル内まで雨に…

| 図面 |
階数 |
面積 |
賃料(共益費込) (坪単価) |
保証金/敷金 |
礼金 |
入居可能日 |
|
|
8階 |
N 36.60坪 (120.99m2) |
|
12ヶ月 |
無 |
2026/6/4 |
|
物件番号:032295
更新日:2026/5/20
新宿区西新宿6-5-1
【竣工】1995/1
【階建て】地上44F 、地下4F
|
【最寄駅】
|
【耐震】 |
新耐震 |
| 【基準階】 |
784.00坪 |
【エントランス】 |
全日開放(制限有) |
| 【駐車場】 |
有り |
【エレベーター】 |
32基 |
新宿アイランドタワーは、新宿区西新宿6-5-1に所在する超高層オフィスビルです。東京メトロ丸ノ内線の西新宿駅に直結しており、雨の日でも濡れずにアクセスできる抜群の立地が大きな魅力です。ま…

| 図面 |
階数 |
面積 |
賃料(共益費込) (坪単価) |
保証金/敷金 |
礼金 |
入居可能日 |
|
|
6階 |
N 38.25坪 (126.46m2) |
|
(未公開) |
(未公開) |
2026/11 |
|
物件番号:032276
更新日:2026/5/18
新宿区西新宿3-5-1
【竣工】1994/4(改修:2022)
【階建て】地上10F 、地下2F
|
【最寄駅】
|
【耐震】 |
新耐震 |
| 【基準階】 |
72.12坪 |
【エントランス】 |
全日開放(制限有) |
| 【駐車場】 |
無し |
【エレベーター】 |
2基 |
新宿区西新宿3-5-1にある、新宿セントランドビルです。最寄り駅は、都営大江戸線の都庁前駅です。徒歩3分圏内で、アクセス可能な好立地です。周辺には、東京都庁や新宿中央公園がございます。公…

| 図面 |
階数 |
面積 |
賃料(共益費込) (坪単価) |
保証金/敷金 |
礼金 |
入居可能日 |
|
|
4階 |
G 29.03坪 (95.97m2) |
|
(未公開) |
無 |
即日 |
|
|
4階 |
G 37.83坪 (125.06m2) |
|
(未公開) |
無 |
即日 |
|
物件番号:033636
更新日:2026/5/18
新宿区四谷4-29-9
【竣工】1994/3
【階建て】地上9F 、地下1F
|
【最寄駅】
|
【耐震】 |
新耐震 |
| 【基準階】 |
29.20坪 |
【エントランス】 |
全日開放(制限有) |
| 【駐車場】 |
無し |
【エレベーター】 |
1基 |
しんまつビルは、東京都新宿区四谷四丁目29-9に位置する、地上9階・地下1階建てのオフィスビルです。1994年3月に竣工した本物件は、SRC造(鉄骨鉄筋コンクリート造)を採用しており、堅牢性と耐…

| 図面 |
階数 |
面積 |
賃料(共益費込) (坪単価) |
保証金/敷金 |
礼金 |
入居可能日 |
|
|
3階 |
G 29.20坪 (96.53m2) |
379,600 (13,000) |
4ヶ月 |
無 |
即日 |
|
物件番号:032275
更新日:2026/5/19
新宿区西新宿3-2-7
【竣工】1993/5
【階建て】地上11F 、地下4F
|
【最寄駅】
|
【耐震】 |
新耐震 |
| 【基準階】 |
142.38坪 |
【エントランス】 |
全日開放(制限有) |
| 【駐車場】 |
有り |
【エレベーター】 |
3基 |
KDX新宿ビルは、東京都新宿区西新宿3に位置するオフィスビルで、ビジネスパーソンにとって非常に便利な環境が整っています。1993年に竣工し、地上11階、地下4階構造のこのビルは、鉄骨造(S造)…

| 図面 |
階数 |
面積 |
賃料(共益費込) (坪単価) |
保証金/敷金 |
礼金 |
入居可能日 |
|
|
1階 |
G 38.52坪 (127.34m2) |
|
12ヶ月 |
無 |
即日 |
|
|
10階 |
N 30.42坪 (99.17m2) |
|
12ヶ月 |
無 |
2026/7/1 |
|
物件番号:032630
更新日:2026/5/11
新宿区西新宿1-23-1
【竣工】1992/11
【階建て】地上10F 、地下2F
|
【最寄駅】
|
【耐震】 |
新耐震 |
| 【基準階】 |
47.81坪 |
【エントランス】 |
全日開放(制限有) |
| 【駐車場】 |
無し |
【エレベーター】 |
1基 |
TK新都心ビルは、東京都新宿区西新宿1-23-1に位置する、地上10階・地下2階建てのオフィスビルです。1992年11月に竣工し、構造は鉄骨鉄筋コンクリート造(SRC造)を採用しています。新耐震基準に…

| 図面 |
階数 |
面積 |
賃料(共益費込) (坪単価) |
保証金/敷金 |
礼金 |
入居可能日 |
|
|
8階 |
G 23.51坪 (77.75m2) |
|
10ヶ月 |
無 |
2026/6 中旬 |
|
物件番号:032211
更新日:2026/4/27
新宿区西新宿4-29-6
【竣工】1992/6
【階建て】地上7F 、地下2F
|
【最寄駅】
|
【耐震】 |
新耐震 |
| 【基準階】 |
90.32坪 |
【エントランス】 |
全日開放(24h) |
| 【駐車場】 |
無し |
【エレベーター】 |
2基 |
WISビルは、新宿区西新宿4-29-6に位置する賃貸オフィスビルです。最寄り駅は都営大江戸線の西新宿五丁目駅で、徒歩6分ほどでアクセス可能です。さらに、都庁前駅までは徒歩8分、京王新線の初台駅…

| 図面 |
階数 |
面積 |
賃料(共益費込) (坪単価) |
保証金/敷金 |
礼金 |
入居可能日 |
|
|
7階 |
G 31.06坪 (102.67m2) |
481,430 (15,500) |
7ヶ月 |
1.0ヶ月 |
2026/7/1 |
|
物件番号:080483
更新日:2026/5/7
新宿区新宿5-13-13
【竣工】1992/4
【階建て】地上4F
|
【最寄駅】
|
【耐震】 |
新耐震 |
| 【基準階】 |
|
【エントランス】 |
全日開放(制限有) |
| 【駐車場】 |
無し |
【エレベーター】 |
無 |
新宿三丁目駅徒歩4分の好立地でフットワーク良好!明治通りから一本入った立地なので、静かで落ち着いた環境です!シンプルな形状でレイアウトのしやすい貸室です!

| 図面 |
階数 |
面積 |
賃料(共益費込) (坪単価) |
保証金/敷金 |
礼金 |
入居可能日 |
|
|
2階 |
G 28.71坪 (94.92m2) |
400,000 (13,932) |
6ヶ月 |
1.0ヶ月 |
相談 |
|
物件番号:032700
更新日:2026/5/18
新宿区新宿1-5-6
【竣工】1991/11
【階建て】地上10F 、地下1F
|
【最寄駅】
|
【耐震】 |
新耐震 |
| 【基準階】 |
21.42坪 |
【エントランス】 |
全日開放(24h) |
| 【駐車場】 |
無し |
【エレベーター】 |
1基 |
156御苑ビルは、東京都新宿区新宿1丁目に位置する地上10階・地下1階建てのオフィスビルです。1991年11月に竣工し、構造はS造(鉄骨造)で建てられており、新耐震基準に適合しているため、地震に…

| 図面 |
階数 |
面積 |
賃料(共益費込) (坪単価) |
保証金/敷金 |
礼金 |
入居可能日 |
|
|
6階 |
G 21.42坪 (70.81m2) |
511,455 (23,877) |
8ヶ月 |
無 |
即日 |
|
物件番号:060267
更新日:2026/5/18
新宿区荒木町6
【竣工】1991/10
【階建て】地上3F
|
【最寄駅】
|
【耐震】 |
新耐震 |
| 【基準階】 |
23.45坪 |
【エントランス】 |
全日開放(24h) |
| 【駐車場】 |
無し |
【エレベーター】 |
無 |
四谷三丁目駅と曙橋駅が利用可能です。閑静な住環境に建つ、使い勝手の良い事務所です。1階は荷物の搬出入もし易い環境です。

| 図面 |
階数 |
面積 |
賃料(共益費込) (坪単価) |
保証金/敷金 |
礼金 |
入居可能日 |
|
|
1階 |
G 23.61坪 (78.05m2) |
600,000 (25,413) |
(未公開) |
無 |
相談 |
|
|
2階 |
G 23.45坪 (77.53m2) |
400,000 (17,057) |
(未公開) |
無 |
相談 |
|
|
3階 |
G 20.27坪 (67.03m2) |
400,000 (19,734) |
(未公開) |
無 |
相談 |
|
物件番号:032916
更新日:2026/5/1
新宿区新宿2-12-4
【竣工】1991/7
【階建て】地上10F 、地下2F
|
【最寄駅】
|
【耐震】 |
新耐震 |
| 【基準階】 |
113.48坪 |
【エントランス】 |
全日開放(24h) |
| 【駐車場】 |
有り |
【エレベーター】 |
2基 |
アコード新宿ビルは、新宿エリアの中心部に位置する明るく開放的な印象の賃貸オフィスビルです。この物件は新宿区新宿2-12-4にあり、複数の路線が利用可能なアクセス良好な立地が最大の魅力とい…

| 図面 |
階数 |
面積 |
賃料(共益費込) (坪単価) |
保証金/敷金 |
礼金 |
入居可能日 |
|
|
9階 |
G 24.10坪 (79.67m2) |
650,700 (27,000) |
2ヶ月 |
2.0ヶ月 |
即日 |
|
物件番号:032155
更新日:2026/5/20
新宿区西新宿3-9-6
【竣工】1990/11
【階建て】地上9F
|
【最寄駅】
|
【耐震】 |
新耐震 |
| 【基準階】 |
26.00坪 |
【エントランス】 |
全日開放(制限有) |
| 【駐車場】 |
無し |
【エレベーター】 |
1基 |
初台駅・参宮橋駅・都庁前駅が利用可能です!大通り沿いで視認性抜群です!個別空調やOAフロアなどの設備が充実しています!

| 図面 |
階数 |
面積 |
賃料(共益費込) (坪単価) |
保証金/敷金 |
礼金 |
入居可能日 |
|
|
2階 |
G 25.01坪 (82.68m2) |
775,310 (31,000) |
無 |
無 |
2026/6 上旬 |
|
|
5階 |
G 25.01坪 (82.68m2) |
775,310 (31,000) |
無 |
無 |
2026/6 上旬 |
|
物件番号:032866
更新日:2026/5/7
新宿区新宿5-10-12
【竣工】1990/9
【階建て】地上6F
|
【最寄駅】
|
【耐震】 |
新耐震 |
| 【基準階】 |
26.00坪 |
【エントランス】 |
全日開放(24h) |
| 【駐車場】 |
無し |
【エレベーター】 |
1基 |
新宿三丁目駅の新宿線、副都心線、丸ノ内線が利用可能です。近隣は住宅も混在しており閑静な雰囲気です。隠れ家的な飲食店が多く人通りも多いです。

| 図面 |
階数 |
面積 |
賃料(共益費込) (坪単価) |
保証金/敷金 |
礼金 |
入居可能日 |
|
|
3階 |
G 26.68坪 (88.20m2) |
360,160 (13,500) |
6ヶ月 |
無 |
即日 |
|
物件番号:034792
更新日:2026/5/18
新宿区西早稲田1-6-3
【竣工】1990/6
【階建て】地上6F
|
【最寄駅】
|
【耐震】 |
新耐震 |
| 【基準階】 |
23.00坪 |
【エントランス】 |
全日開放(24h) |
| 【駐車場】 |
無し |
【エレベーター】 |
1基 |
都電荒川線早稲田駅より徒歩2分の好立地!ベージュのシンプルで清潔感のある外観!ワンフロア・ワンテナントの使いやすい貸事務所!

| 図面 |
階数 |
面積 |
賃料(共益費込) (坪単価) |
保証金/敷金 |
礼金 |
入居可能日 |
|
|
2階 |
G 23.00坪 (76.04m2) |
230,000 (10,000) |
4ヶ月 |
1.0ヶ月 |
即日 |
|
物件番号:032291
更新日:2026/5/11
新宿区西新宿2-3-1
【竣工】1990/6
【階建て】地上30F 、地下3F
|
【最寄駅】
|
【耐震】 |
新耐震 |
| 【基準階】 |
505.44坪 |
【エントランス】 |
全日開放(制限有) |
| 【駐車場】 |
有り |
【エレベーター】 |
16基 |
新宿モノリスビルは、新宿区西新宿2丁目に所在する大規模なハイグレードオフィスビルです。住所は東京都新宿区西新宿2-3-1で、JR各線・都営新宿線などが乗り入れる「新宿駅」から徒歩4分、都営大…

| 図面 |
階数 |
面積 |
賃料(共益費込) (坪単価) |
保証金/敷金 |
礼金 |
入居可能日 |
|
|
2階 |
N 35.97坪 (118.91m2) |
|
12ヶ月 |
無 |
即日 |
|
物件番号:034204
更新日:2026/5/18
新宿区新小川町5-20
【竣工】1990/5
【階建て】地上5F
|
【最寄駅】
|
【耐震】 |
新耐震 |
| 【基準階】 |
26.39坪 |
【エントランス】 |
全日開放(24h) |
| 【駐車場】 |
無し |
【エレベーター】 |
1基 |
サンライズビルⅡは、東京都新宿区新小川町5-20に位置する地上5階建てのオフィスビルです。1990年5月に竣工し、新耐震基準に適合したRC造(鉄筋コンクリート造)で建築されています。最寄り駅は東…

| 図面 |
階数 |
面積 |
賃料(共益費込) (坪単価) |
保証金/敷金 |
礼金 |
入居可能日 |
|
|
2階 |
G 26.39坪 (87.27m2) |
343,000 (12,997) |
3ヶ月 |
2.0ヶ月 |
相談 |
|
物件番号:008558
更新日:2026/5/18
新宿区高田馬場1-30-15
【竣工】1990/1
【階建て】地上9F
|
【最寄駅】
|
【耐震】 |
新耐震 |
| 【基準階】 |
35.08坪 |
【エントランス】 |
全日開放(24h) |
| 【駐車場】 |
有り |
【エレベーター】 |
1基 |
高田馬場エリアに位置するVORT高田馬場Ⅰは、シックな雰囲気が魅力の賃貸オフィスビルです。所在地は新宿区高田馬場1-30-15で、交通の便が非常に良好です。最寄りの駅は、徒歩5分圏内にあるJR山手…

| 図面 |
階数 |
面積 |
賃料(共益費込) (坪単価) |
保証金/敷金 |
礼金 |
入居可能日 |
|
|
1階 |
G 23.56坪 (77.88m2) |
|
5ヶ月 |
1.0ヶ月 |
2026/10/22 |
|
物件番号:033445
更新日:2026/5/1
新宿区北新宿1-12-12
【竣工】1989/12
【階建て】地上8F
|
【最寄駅】
|
【耐震】 |
新耐震 |
| 【基準階】 |
30.50坪 |
【エントランス】 |
全日開放(制限有) |
| 【駐車場】 |
無し |
【エレベーター】 |
1基 |
MIビルは、東京都新宿区北新宿に位置し、利便性と快適な設備を兼ね備えたオフィスビルです。最寄り駅であるJR総武線「大久保駅」から徒歩4分、さらにJR山手線「新大久保駅」から徒歩9分という好…

| 図面 |
階数 |
面積 |
賃料(共益費込) (坪単価) |
保証金/敷金 |
礼金 |
入居可能日 |
|
|
4階 |
G 30.50坪 (100.83m2) |
457,500 (15,000) |
6ヶ月 |
無 |
即日 |
|
物件番号:033836
更新日:2026/5/1
新宿区荒木町23-15
【竣工】1989/11
【階建て】地上11F
|
【最寄駅】
|
【耐震】 |
新耐震 |
| 【基準階】 |
36.73坪 |
【エントランス】 |
全日開放(24h) |
| 【駐車場】 |
有り |
【エレベーター】 |
1基 |
外苑東通り沿いのわかりやすい立地!ガラス張りの外観が印象的な雰囲気のあるビル!ワンフロア・ワンテナントの使い勝手良好なオフィス空間!

| 図面 |
階数 |
面積 |
賃料(共益費込) (坪単価) |
保証金/敷金 |
礼金 |
入居可能日 |
|
|
7階 |
G 36.73坪 (121.42m2) |
550,950 (15,000) |
8ヶ月 |
無 |
2026/5 中旬 |
|
物件番号:032777
更新日:2026/5/13
新宿区新宿1-18-10
【竣工】1989/9
【階建て】地上9F
|
【最寄駅】
|
【耐震】 |
新耐震 |
| 【基準階】 |
35.00坪 |
【エントランス】 |
全日開放(24h) |
| 【駐車場】 |
無し |
【エレベーター】 |
1基 |
カテリーナ柳通りビルは、東京都新宿区新宿1-18-10に位置するオフィスビルです。1989年9月に竣工し、構造はSRC造、地上9階建てです。新耐震基準に適合しており、安全性の高い建物です。交通アク…

| 図面 |
階数 |
面積 |
賃料(共益費込) (坪単価) |
保証金/敷金 |
礼金 |
入居可能日 |
|
|
4階 |
G 35.31坪 (116.73m2) |
|
12ヶ月 |
無 |
即日 |
|
物件番号:032513
更新日:2026/5/22
新宿区西新宿7-15-4
【竣工】1989/5
【階建て】地上5F 、地下2F
|
【最寄駅】
|
【耐震】 |
新耐震 |
| 【基準階】 |
|
【エントランス】 |
全日開放(制限有) |
| 【駐車場】 |
有り |
【エレベーター】 |
1基 |
新宿西口駅から徒歩3分!アクセス良好な賃貸オフィスです!周辺は飲食店も充実しており利便性の高い事務所です!機械警備を完備し、セキリュティ面でも安心です!

| 図面 |
階数 |
面積 |
賃料(共益費込) (坪単価) |
保証金/敷金 |
礼金 |
入居可能日 |
|
|
3階 |
G 38.97坪 (128.82m2) |
584,550 (15,000) |
6ヶ月 |
無 |
2026/10 中旬 |
|
物件番号:034737
更新日:2026/5/14
新宿区馬場下町61-6
【竣工】1989/5
【階建て】地上6F 、地下1F
|
【最寄駅】
|
【耐震】 |
新耐震 |
| 【基準階】 |
31.11坪 |
【エントランス】 |
全日開放(24h) |
| 【駐車場】 |
無し |
【エレベーター】 |
1基 |
グレーのタイル張りで綺麗な事務所!貸室入口にはシャッターが付いておりセキリュティ安心!機械警備・光ファイバーの設備を完備!

| 図面 |
階数 |
面積 |
賃料(共益費込) (坪単価) |
保証金/敷金 |
礼金 |
入居可能日 |
|
|
4階 |
G 31.11坪 (102.85m2) |
500,000 (16,072) |
5ヶ月 |
1.0ヶ月 |
即日 |
|
物件番号:032772
更新日:2026/5/20
新宿区新宿1-10-5
【竣工】1989/4
【階建て】地上9F 、地下1F
|
【最寄駅】
|
【耐震】 |
新耐震 |
| 【基準階】 |
35.85坪 |
【エントランス】 |
全日開放(制限有) |
| 【駐車場】 |
無し |
【エレベーター】 |
1基 |
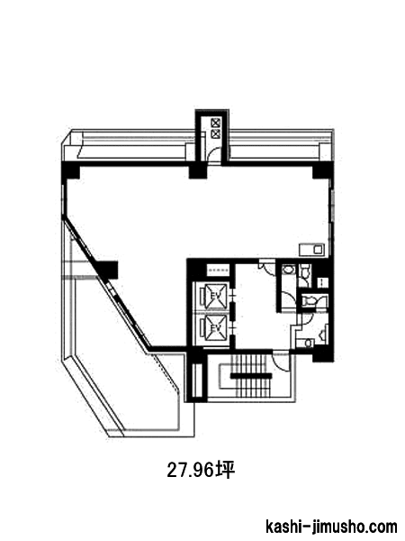
岡田ビルは、新宿区新宿1-10-5にある物件です。最寄駅は、東京メトロ丸ノ内線の新宿御苑前駅です。徒歩3分圏内でアクセス可能です。徒歩10分圏内で東京メトロ副都心線・都営新宿線の新宿三丁目駅…

| 図面 |
階数 |
面積 |
賃料(共益費込) (坪単価) |
保証金/敷金 |
礼金 |
入居可能日 |
|
|
2階 |
G 33.43坪 (110.52m2) |
601,745 (18,000) |
8ヶ月 |
無 |
相談 |
|
物件番号:032697
更新日:2026/5/11
新宿区新宿2-5-10
【竣工】1989/3
【階建て】地上10F 、地下1F
|
【最寄駅】
|
【耐震】 |
新耐震 |
| 【基準階】 |
183.07坪 |
【エントランス】 |
全日開放(制限有) |
| 【駐車場】 |
有り |
【エレベーター】 |
4基 |
アーバンセンター新宿が立地する新宿二丁目エリアは、東京の中心地でありながらも、ビジネスと商業、文化が絶妙に融合した活気あるロケーションです。東京メトロ丸ノ内線・副都心線・都営新宿線…

| 図面 |
階数 |
面積 |
賃料(共益費込) (坪単価) |
保証金/敷金 |
礼金 |
入居可能日 |
|
|
3階 |
G 29.33坪 (96.96m2) |
|
12ヶ月 |
無 |
2026/10/8 |
|
非公開物件の賃料目安アイコン
8,000 円未満
8,000 円以上~1.0 万円未満
1.0 万以上~1.2 万円未満
1.2 万以上~1.4 万円未満
1.4 万以上~1.6 万円未満
1.6 万以上~2.0 万円未満
2.0 万以上~2.5 万円未満
2.5 万以上~3.0 万円未満
3.0 万円以上
未定
※取引態様:媒介
※フロア図面と現況が異なる場合は現況を優先いたします。
※貸室内部の写真・貸室からの景色に関しては、現在の募集フロアと異なる場合がございます。
※取引態様:媒介
その他、新宿区の貸事務所をお探しの方はこちらをクリック

貸事務所|土日エントランス開放
新宿区に関連する貸事務所検索ページ