貸事務所|土日エントランス開放(豊島区)
東京都豊島区にある土曜日や日曜日もエントランスが開放している賃貸オフィスビルを掲載しています。平日はもちろん、週末の土日や祝日、祭日でもメインエントランスが開いているので、土日に営業をされる企業様に最適の賃貸オフィスビルを見つけることができます。
貸事務所|土日エントランス開放|豊島区
物件番号:081624
更新日:2026/5/12
豊島区西池袋3-28-4
【竣工】2025/12
【階建て】地上27F 、地下4F
|
【最寄駅】
|
【耐震】 |
新耐震+制震 |
| 【基準階】 |
291.37坪 |
【エントランス】 |
全日開放(制限有) |
| 【駐車場】 |
有り |
【エレベーター】 |
5基 |
東京都豊島区西池袋3丁目に位置するIT TOWER TOKYOは、2025年12月に竣工のオフィスビルです。池袋駅からのアクセスに非常に優れており、副都心線池袋駅からは徒歩1分、JR山手線・埼京線、東武東…

| 図面 |
階数 |
面積 |
賃料(共益費込) (坪単価) |
保証金/敷金 |
礼金 |
入居可能日 |
|
|
22階 |
N 102.10坪 (337.52m2) |
|
12ヶ月 |
無 |
即日 |
|
|
24階 |
N 291.37坪 (963.21m2) |
|
12ヶ月 |
無 |
即日 |
|
物件番号:083447
更新日:2026/5/1
豊島区南池袋2-17-7
【竣工】2025/6
【階建て】地上13F
|
【最寄駅】
|
【耐震】 |
新耐震 |
| 【基準階】 |
71.88坪 |
【エントランス】 |
全日開放(制限有) |
| 【駐車場】 |
- |
【エレベーター】 |
2基 |
UPROVEMENTは、東京都豊島区南池袋2丁目に位置する新築のオフィスビルで、住所は東京都豊島区南池袋2-17-7です。2025年6月に竣工したこのビルは、最新の設備とデザインを取り入れた地上13階建て…

| 図面 |
階数 |
面積 |
賃料(共益費込) (坪単価) |
保証金/敷金 |
礼金 |
入居可能日 |
|
|
6階 |
G 71.88坪 (237.62m2) |
2,372,040 (33,000) |
(未公開) |
無 |
即日 |
|
|
8階 |
G 71.88坪 (237.62m2) |
2,372,040 (33,000) |
(未公開) |
無 |
即日 |
|
|
10階 |
G 71.88坪 (237.62m2) |
2,372,040 (33,000) |
(未公開) |
無 |
即日 |
|
|
11階 |
G 71.88坪 (237.62m2) |
2,372,040 (33,000) |
(未公開) |
無 |
即日 |
|
物件番号:068564
更新日:2026/5/11
豊島区東池袋1-18-1
【竣工】2020/5
【階建て】地上32F 、地下2F
|
【最寄駅】
|
【耐震】 |
新耐震 |
| 【基準階】 |
466.35坪 |
【エントランス】 |
全日開放(制限有) |
| 【駐車場】 |
有り |
【エレベーター】 |
16基 |
Hareza Towerは、豊島区東池袋に位置する2020年竣工の大型オフィスタワーです。池袋駅から徒歩5分圏内で、JR各線、西武池袋線、東京メトロ丸ノ内線、有楽町線、副都心線といった複数路線が利用可…

| 図面 |
階数 |
面積 |
賃料(共益費込) (坪単価) |
保証金/敷金 |
礼金 |
入居可能日 |
|
|
17階 |
N 203.59坪 (673.03m2) |
|
12ヶ月 |
無 |
2026/10/1 |
|
|
25階 |
N 140.83坪 (465.56m2) |
|
12ヶ月 |
無 |
2027/2/1 |
|
物件番号:061377
更新日:2026/4/20
豊島区南大塚1-2-12
【竣工】2010/7
【階建て】地上6F 、地下1F
|
【最寄駅】
|
【耐震】 |
新耐震 |
| 【基準階】 |
33.75坪 |
【エントランス】 |
全日開放(制限有) |
| 【駐車場】 |
有り |
【エレベーター】 |
1基 |
日個連会館は、東京都豊島区南大塚1丁目に所在する地上6階・地下1階建ての賃貸オフィスビルです。2010年7月に竣工された物件で、新耐震基準に適合した鉄骨鉄筋コンクリート造(SRC造)の堅牢な構…

| 図面 |
階数 |
面積 |
賃料(共益費込) (坪単価) |
保証金/敷金 |
礼金 |
入居可能日 |
|
|
1階 |
N 22.50坪 (74.38m2) |
405,000 (18,000) |
3ヶ月 |
無 |
即日 |
|
物件番号:056639
更新日:2026/4/23
豊島区池袋2-6-1
【竣工】2009/3
【階建て】地上10F 、地下1F
|
【最寄駅】
|
【耐震】 |
新耐震 |
| 【基準階】 |
100.29坪 |
【エントランス】 |
全日開放(制限有) |
| 【駐車場】 |
有り |
【エレベーター】 |
2基 |
池袋駅前に位置するスタイリッシュな印象の賃貸オフィスビル。KDX池袋ビルは、豊島区池袋2-6-1にある物件です。徒歩1分圏内で東京メトロ副都心線の池袋駅、徒歩5分圏内でJR山手線・JR埼京線・東…

| 図面 |
階数 |
面積 |
賃料(共益費込) (坪単価) |
保証金/敷金 |
礼金 |
入居可能日 |
|
|
9階 |
G 100.29坪 (331.54m2) |
|
12ヶ月 |
無 |
2026/9/1 |
|
物件番号:083725
更新日:2026/5/11
豊島区目白1-7-13
【竣工】2006/4
【階建て】地上7F
|
【最寄駅】
|
【耐震】 |
新耐震 |
| 【基準階】 |
22.25坪 |
【エントランス】 |
全日開放(制限有) |
| 【駐車場】 |
無し |
【エレベーター】 |
1基 |
タイムズ・ビルは、東京都豊島区目白1丁目に位置する賃貸オフィスビルです。2006年4月に竣工した比較的新しい建物で、新耐震基準を満たしたSRC造(鉄骨鉄筋コンクリート造)・地上7階建てのオフ…

| 図面 |
階数 |
面積 |
賃料(共益費込) (坪単価) |
保証金/敷金 |
礼金 |
入居可能日 |
|
|
3階 |
G 22.25坪 (73.54m2) |
350,000 (15,731) |
3ヶ月 |
2.0ヶ月 |
即日 |
|
|
4階 |
G 22.84坪 (75.51m2) |
350,000 (15,324) |
3ヶ月 |
2.0ヶ月 |
即日 |
|
物件番号:027525
更新日:2026/5/12
豊島区南池袋1-19-6
【竣工】2002/7
【階建て】地上9F 、地下1F
|
【最寄駅】
|
【耐震】 |
新耐震 |
| 【基準階】 |
185.05坪 |
【エントランス】 |
全日開放(制限有) |
| 【駐車場】 |
有り |
【エレベーター】 |
3基 |
豊島区南池袋1丁目にある、オリックス池袋ビルです。最寄駅は、池袋駅で徒歩3分圏内でアクセス可能な便利な立地となっています。JR山手線・JR埼京線・西武池袋線・東京メトロ丸ノ内線・東京メト…

| 図面 |
階数 |
面積 |
賃料(共益費込) (坪単価) |
保証金/敷金 |
礼金 |
入居可能日 |
|
|
4階 |
G 186.15坪 (615.37m2) |
|
12ヶ月 |
無 |
即日 |
|
物件番号:027350
更新日:2026/5/13
豊島区東池袋3-2-3
【竣工】2000/2
【階建て】地上9F
|
【最寄駅】
|
【耐震】 |
新耐震 |
| 【基準階】 |
24.44坪 |
【エントランス】 |
全日開放(制限有) |
| 【駐車場】 |
無し |
【エレベーター】 |
1基 |
ビルの向かい側にはサンシャインシティ!説明しやすい場所です!オフィス専用のエントランスが建物の脇にあります!個別空調・光ファイバーの設備を完備しています!

| 図面 |
階数 |
面積 |
賃料(共益費込) (坪単価) |
保証金/敷金 |
礼金 |
入居可能日 |
|
|
NEW5階 |
G 24.44坪 (80.79m2) |
488,775 (20,000) |
8ヶ月 |
無 |
2026/6 予定 |
|
物件番号:027479
更新日:2026/5/11
豊島区南池袋1-18-17
【竣工】1999/7
【階建て】地上10F
|
【最寄駅】
|
【耐震】 |
新耐震 |
| 【基準階】 |
28.85坪 |
【エントランス】 |
全日開放(制限有) |
| 【駐車場】 |
無し |
【エレベーター】 |
1基 |
「I&Kビル」は、東京都豊島区南池袋1丁目に位置する地上10階建てのオフィスビルです。1999年7月に竣工したこの物件は、鉄骨造(S造)の堅牢な構造で、新耐震基準を満たしており、安全性に優れて…

| 図面 |
階数 |
面積 |
賃料(共益費込) (坪単価) |
保証金/敷金 |
礼金 |
入居可能日 |
|
|
9階 |
G 28.85坪 (95.37m2) |
865,500 (30,000) |
18ヶ月 |
2.0ヶ月 |
相談 |
|
物件番号:026806
更新日:2026/5/11
豊島区巣鴨1-14-8
【竣工】1994/3
【階建て】地上8F 、地下1F
|
【最寄駅】
|
【耐震】 |
新耐震 |
| 【基準階】 |
77.32坪 |
【エントランス】 |
全日開放(制限有) |
| 【駐車場】 |
有り |
【エレベーター】 |
1基 |
巣鴨駅から徒歩2分の好立地の建物!シックなイメージのおしゃれな外観!石張りの高級感あるエントランス!

| 図面 |
階数 |
面積 |
賃料(共益費込) (坪単価) |
保証金/敷金 |
礼金 |
入居可能日 |
|
|
B1階 |
G 32.85坪 (108.60m2) |
427,700 (13,020) |
6ヶ月 |
無 |
2026/6 上旬 |
|
物件番号:026659
更新日:2026/5/13
豊島区上池袋4-1-1
【竣工】1993/7
【階建て】地上12F 、地下2F
|
【最寄駅】
|
【耐震】 |
新耐震 |
| 【基準階】 |
46.45坪 |
【エントランス】 |
全日開放(24h) |
| 【駐車場】 |
無し |
【エレベーター】 |
1基 |
明治通り沿いで、上池袋の交差点に位置する賃貸オフィスビルです。カブト上池袋ビルは、豊島区上池袋4-1-1にある物件です。徒歩8分圏内で東武東上線の北池袋駅、徒歩9分圏内で都電荒川線の巣鴨新…

| 図面 |
階数 |
面積 |
賃料(共益費込) (坪単価) |
保証金/敷金 |
礼金 |
入居可能日 |
|
|
6階 |
G 33.29坪 (110.05m2) |
380,000 (11,415) |
6ヶ月 |
1.0ヶ月 |
2026/10 中旬 |
|
|
7階 |
G 33.29坪 (110.05m2) |
420,000 (12,617) |
6ヶ月 |
1.0ヶ月 |
相談 |
|
物件番号:027238
更新日:2026/5/7
豊島区東池袋3-4-3
【竣工】1993/4
【階建て】地上14F 、地下1F
|
【最寄駅】
|
【耐震】 |
新耐震 |
| 【基準階】 |
244.91坪 |
【エントランス】 |
全日開放(制限有) |
| 【駐車場】 |
有り |
【エレベーター】 |
5基 |
NBF池袋イーストビルは、豊島区東池袋3-4-3にある物件です。徒歩6分圏内で東京メトロ有楽町線の東池袋駅、徒歩7分圏内でJR山手線・JR埼京線・東京メトロ丸ノ内線・西武池袋線の池袋駅が利用可能…

| 図面 |
階数 |
面積 |
賃料(共益費込) (坪単価) |
保証金/敷金 |
礼金 |
入居可能日 |
|
|
3階 |
N 71.82坪 (237.42m2) |
|
(未公開) |
無 |
2026/6/1 |
|
物件番号:027195
更新日:2026/5/11
豊島区東池袋5-40-9
【竣工】1992/11
【階建て】地上7F 、地下1F
|
【最寄駅】
|
【耐震】 |
新耐震 |
| 【基準階】 |
43.00坪 |
【エントランス】 |
全日開放(制限有) |
| 【駐車場】 |
有り |
【エレベーター】 |
1基 |
複数路線が利用可能で交通アクセス良好!石張りの外観が印象的!落ち着いたイメージのエントランス!眺望の良い、ワンフロア・ワンテナントの独立性が高い貸事務所!

| 図面 |
階数 |
面積 |
賃料(共益費込) (坪単価) |
保証金/敷金 |
礼金 |
入居可能日 |
|
|
3階 |
G 42.99坪 (142.14m2) |
460,360 (10,708) |
3ヶ月 |
無 |
相談 |
|
|
5階 |
G 42.99坪 (142.14m2) |
460,360 (10,708) |
3ヶ月 |
無 |
相談 |
|
物件番号:026524
更新日:2026/5/11
豊島区池袋1-7-14
【竣工】1991
【階建て】地上4F 、地下1F
|
【最寄駅】
|
【耐震】 |
新耐震 |
| 【基準階】 |
96.65坪 |
【エントランス】 |
全日開放(制限有) |
| 【駐車場】 |
無し |
【エレベーター】 |
1基 |
開放感のある入口アプローチ!白基調で清潔感のあるビル!池袋駅利用で交通アクセス良好!

| 図面 |
階数 |
面積 |
賃料(共益費込) (坪単価) |
保証金/敷金 |
礼金 |
入居可能日 |
|
|
NEW3階 |
G 32.17坪 (106.35m2) |
541,000 (16,817) |
6ヶ月 |
1.0ヶ月 |
即日 |
|
物件番号:073365
更新日:2026/4/23
豊島区東池袋3-3-5
【竣工】1990/8
【階建て】地上14F 、地下3F
|
【最寄駅】
|
【耐震】 |
新耐震 |
| 【基準階】 |
233.19坪 |
【エントランス】 |
全日開放(制限有) |
| 【駐車場】 |
無し |
【エレベーター】 |
6基 |
豊島区東池袋3丁目にある、サンシャインシティアネックスです。JR各線・東京メトロ・西武線・東武東上線の池袋駅、都電荒川線の東池袋四丁目駅が利用可能です。大通り沿いの角地で、視認性・採…

| 図面 |
階数 |
面積 |
賃料(共益費込) (坪単価) |
保証金/敷金 |
礼金 |
入居可能日 |
|
|
7階 |
G 232.00坪 (766.94m2) |
|
(未公開) |
無 |
即日 |
|
|
8階 |
G 233.19坪 (770.89m2) |
|
(未公開) |
無 |
即日 |
|
|
9階 |
G 233.19坪 (770.89m2) |
|
(未公開) |
無 |
即日 |
|
物件番号:027435
更新日:2026/5/1
豊島区南池袋2-5-2
【竣工】1990/7
【階建て】地上5F 、地下1F
|
【最寄駅】
|
【耐震】 |
新耐震 |
| 【基準階】 |
47.36坪 |
【エントランス】 |
全日開放(制限有) |
| 【駐車場】 |
有り |
【エレベーター】 |
1基 |
M.BALANCE+ IKEBUKURO SOUTHは、東京都豊島区南池袋2丁目に位置する賃貸オフィスビルです。池袋エリアの中でも落ち着いた環境にありながら、複数の路線や駅を利用できる利便性の高い立地が特徴の…

| 図面 |
階数 |
面積 |
賃料(共益費込) (坪単価) |
保証金/敷金 |
礼金 |
入居可能日 |
|
|
1階 |
G 22.57坪 (74.61m2) |
700,000 (31,015) |
6ヶ月 |
無 |
即日 |
|
|
1階 |
G 30.73坪 (101.59m2) |
850,000 (27,660) |
6ヶ月 |
無 |
即日 |
|
物件番号:026682
更新日:2026/5/12
豊島区北大塚2-15-9
【竣工】1990/6
【階建て】地上10F
|
【最寄駅】
|
【耐震】 |
新耐震 |
| 【基準階】 |
39.50坪 |
【エントランス】 |
全日開放(24h) |
| 【駐車場】 |
無し |
【エレベーター】 |
1基 |
ITY大塚ビルは、東京都豊島区北大塚2丁目に位置するオフィスビルです。住所は東京都豊島区北大塚2-15-9で、JR山手線大塚駅から徒歩1分、都電荒川線大塚駅前駅からも徒歩1分という優れた立地条件…

| 図面 |
階数 |
面積 |
賃料(共益費込) (坪単価) |
保証金/敷金 |
礼金 |
入居可能日 |
|
|
7階 |
G 39.10坪 (129.26m2) |
|
12ヶ月 |
無 |
2026/10/1 |
|
物件番号:026680
更新日:2026/4/24
豊島区北大塚2-17-4
【竣工】1989/11
【階建て】地上8F 、地下1F
|
【最寄駅】
|
【耐震】 |
新耐震 |
| 【基準階】 |
27.50坪 |
【エントランス】 |
全日開放(24h) |
| 【駐車場】 |
無し |
【エレベーター】 |
1基 |
閑静で落ち着いた環境に位置しています。グレーを基調としたシックな印象の外観です。ワンフロア・ワンテナントなので使い勝手の良い貸室です。

| 図面 |
階数 |
面積 |
賃料(共益費込) (坪単価) |
保証金/敷金 |
礼金 |
入居可能日 |
|
|
2階 |
G 25.40坪 (83.96m2) |
380,000 (14,961) |
5ヶ月 |
1.0ヶ月 |
2026/5 |
|
|
5階 |
G 28.65坪 (94.72m2) |
380,000 (13,263) |
5ヶ月 |
1.0ヶ月 |
相談 |
|
物件番号:057808
更新日:2026/4/23
豊島区北大塚3-10-4
【竣工】1989/6
【階建て】地上6F 、地下1F
|
【最寄駅】
|
【耐震】 |
新耐震 |
| 【基準階】 |
37.90坪 |
【エントランス】 |
全日開放(制限有) |
| 【駐車場】 |
無し |
【エレベーター】 |
1基 |
岩田ビルは、東京都豊島区北大塚3-10-4に位置する地上6階・地下1階建てのオフィスビルです。1989年6月に竣工し、新耐震基準に適合したRC造(鉄筋コンクリート造)で建築されているため、耐震性に…

| 図面 |
階数 |
面積 |
賃料(共益費込) (坪単価) |
保証金/敷金 |
礼金 |
入居可能日 |
|
|
B1階 |
G 21.78坪 (72.00m2) |
240,000 (11,019) |
2,000,000 (91,827) |
1.0ヶ月 |
相談 |
|
物件番号:026908
更新日:2026/4/22
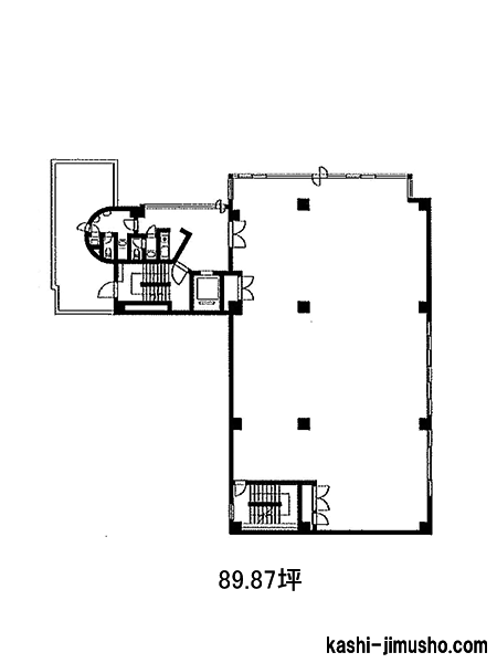
豊島区高田3-5-15
【竣工】1988/11
【階建て】地上4F
|
【最寄駅】
|
【耐震】 |
新耐震 |
| 【基準階】 |
89.17坪 |
【エントランス】 |
全日開放(24h) |
| 【駐車場】 |
有り |
【エレベーター】 |
1基 |
サイテックビルは、東京都豊島区高田3-5-15に位置するオフィスビルです。JR山手線・東西線・西武新宿線の「高田馬場」駅から徒歩6分、都電荒川線「学習院下」駅から徒歩7分、副都心線「西早稲田…

| 図面 |
階数 |
面積 |
賃料(共益費込) (坪単価) |
保証金/敷金 |
礼金 |
入居可能日 |
|
|
2階 |
G 89.87坪 (297.09m2) |
1,662,596 (18,500) |
10ヶ月 |
無 |
即日 |
|
物件番号:062196
更新日:2026/5/7
豊島区上池袋3-34-4
【竣工】1988/6
【階建て】地上3F 、地下1F
|
【最寄駅】
|
【耐震】 |
新耐震 |
| 【基準階】 |
70.00坪 |
【エントランス】 |
全日開放(24h) |
| 【駐車場】 |
有り |
【エレベーター】 |
無 |
大通りを一本入っただけなので、北池袋駅からのアクセスは良好です!周辺環境は落ち着いており下町らしい雰囲気が魅力的な立地です!静かで落ち着いた街並みです!

| 図面 |
階数 |
面積 |
賃料(共益費込) (坪単価) |
保証金/敷金 |
礼金 |
入居可能日 |
|
|
1階 |
G 24.81坪 (82.00m2) |
181,819 (7,328) |
1ヶ月 |
1.0ヶ月 |
即日 |
|
物件番号:027653
更新日:2026/5/7
豊島区南大塚3-1-6
【竣工】1988/5
【階建て】地上7F
|
【最寄駅】
|
【耐震】 |
新耐震 |
| 【基準階】 |
36.10坪 |
【エントランス】 |
全日開放(24h) |
| 【駐車場】 |
有り |
【エレベーター】 |
2基 |
藤枝ビルは、東京都豊島区南大塚3丁目に位置するオフィスビルで、交通の利便性と快適なオフィス環境を備えた物件です。最寄り駅は東京メトロ丸ノ内線「新大塚駅」から徒歩1分と駅至近の立地にあ…

| 図面 |
階数 |
面積 |
賃料(共益費込) (坪単価) |
保証金/敷金 |
礼金 |
入居可能日 |
|
|
6階 |
G 36.10坪 (119.34m2) |
318,800 (8,831) |
3ヶ月 |
2.0ヶ月 |
相談 |
|
物件番号:036022
更新日:2026/5/11
豊島区東池袋3-9-9
【竣工】1987/9
【階建て】地上10F
|
【最寄駅】
|
【耐震】 |
新耐震 |
| 【基準階】 |
21.80坪 |
【エントランス】 |
全日開放(24h) |
| 【駐車場】 |
無し |
【エレベーター】 |
1基 |
東京都豊島区東池袋3丁目に位置する明昌KSビルは、池袋駅から徒歩圏内にある利便性の高い賃貸オフィスビルです。JR山手線・JR埼京線・東京メトロ有楽町線・丸ノ内線・東武東上線など複数路線が乗…

| 図面 |
階数 |
面積 |
賃料(共益費込) (坪単価) |
保証金/敷金 |
礼金 |
入居可能日 |
|
|
10階 |
G 21.80坪 (72.04m2) |
336,000 (15,413) |
5ヶ月 |
1.0ヶ月 |
即日 |
|
物件番号:027168
更新日:2026/5/8
豊島区東池袋1-5-6
【竣工】1987/9
【階建て】地上10F 、地下1F
|
【最寄駅】
|
【耐震】 |
新耐震 |
| 【基準階】 |
170.66坪 |
【エントランス】 |
全日開放(制限有) |
| 【駐車場】 |
有り |
【エレベーター】 |
2基 |
ビック池袋東口ビルは、東京都豊島区東池袋1丁目に位置する、アクセスの良さが際立つオフィスビルです。このビルの最大の魅力は、池袋駅から徒歩わずか1分という利便性にあります。JR山手線、埼…

| 図面 |
階数 |
面積 |
賃料(共益費込) (坪単価) |
保証金/敷金 |
礼金 |
入居可能日 |
|
|
7階 |
G 172.34坪 (569.73m2) |
|
12ヶ月 |
無 |
2026/5 下旬 |
|
物件番号:083830
更新日:2026/4/28
豊島区駒込1-14-7
【竣工】1986/5
【階建て】地上7F
|
【最寄駅】
|
【耐震】 |
新耐震 |
| 【基準階】 |
|
【エントランス】 |
全日開放(24h) |
| 【駐車場】 |
無し |
【エレベーター】 |
1基 |
駅からのアクセス抜群の好立地です。1986年竣工の新耐震基準を満たす物件です。角地の事務所物件、視認性に優れています。

| 図面 |
階数 |
面積 |
賃料(共益費込) (坪単価) |
保証金/敷金 |
礼金 |
入居可能日 |
|
|
1階 |
G 29.84坪 (98.65m2) |
450,000 (15,080) |
3ヶ月 |
1.0ヶ月 |
相談 |
|
物件番号:026432
更新日:2026/5/1
豊島区池袋2-68-12
【竣工】1986/3
【階建て】地上9F
|
【最寄駅】
|
【耐震】 |
新耐震 |
| 【基準階】 |
40.52坪 |
【エントランス】 |
全日開放(24h) |
| 【駐車場】 |
無し |
【エレベーター】 |
1基 |
池袋グランディアビルは、東京都豊島区池袋2に位置する、交通利便性と機能性を兼ね備えたオフィスビルです。JR山手線をはじめとするJR埼京線、西武池袋線、東武東上線、東京メトロ丸ノ内線の各「…

| 図面 |
階数 |
面積 |
賃料(共益費込) (坪単価) |
保証金/敷金 |
礼金 |
入居可能日 |
|
|
5階 |
G 40.52坪 (133.96m2) |
567,280 (14,000) |
10ヶ月 |
無 |
2026/10/1 |
|
物件番号:027371
更新日:2026/5/13
豊島区南池袋1-19-4
【竣工】1980/4
【階建て】地上9F 、地下1F
|
【最寄駅】
|
【耐震】 |
旧耐震 |
| 【基準階】 |
72.21坪 |
【エントランス】 |
全日開放(制限有) |
| 【駐車場】 |
無し |
【エレベーター】 |
1基 |
東京都豊島区南池袋の中心地に位置する「幸伸ビル」は、オフィススペースをお探しの企業様にとって魅力的な選択肢です。このビルは、池袋駅から徒歩圏内の利便性が特徴で、西武池袋線からわずか2…

| 図面 |
階数 |
面積 |
賃料(共益費込) (坪単価) |
保証金/敷金 |
礼金 |
入居可能日 |
|
|
1-2階 |
G 142.61坪 (471.44m2) |
4,636,330 (32,508) |
12ヶ月 |
1.0ヶ月 |
即日 |
|
物件番号:066779
更新日:2026/4/30
豊島区南池袋2-25-6
【竣工】1980/3
【階建て】地上9F 、地下1F
|
【最寄駅】
|
【耐震】 |
旧耐震 |
| 【基準階】 |
36.03坪 |
【エントランス】 |
全日開放(24h) |
| 【駐車場】 |
無し |
【エレベーター】 |
1基 |
池袋駅徒歩3分の好立地!交通アクセス良好です。独立性の高いワンフロア・ワンテナントの貸室です。1階にはカフェが入居!飲食店が多く大変便利な環境です。

| 図面 |
階数 |
面積 |
賃料(共益費込) (坪単価) |
保証金/敷金 |
礼金 |
入居可能日 |
|
|
7階 |
G 35.91坪 (118.75m2) |
718,200 (20,000) |
4,740,120 (132,000) |
1.0ヶ月 |
相談 |
|
物件番号:027117
更新日:2026/5/11
豊島区東池袋1-9-9
【竣工】1980/1
【階建て】地上9F
|
【最寄駅】
|
【耐震】 |
旧耐震 |
| 【基準階】 |
25.62坪 |
【エントランス】 |
全日開放(制限有) |
| 【駐車場】 |
無し |
【エレベーター】 |
1基 |
東京都豊島区東池袋1丁目に位置する清水ビルは、池袋駅から徒歩圏内という優れたアクセス環境を備えた賃貸オフィスビルです。西武池袋線池袋駅から徒歩2分、JR山手線・JR埼京線・東武東上線・東…

| 図面 |
階数 |
面積 |
賃料(共益費込) (坪単価) |
保証金/敷金 |
礼金 |
入居可能日 |
|
|
4階 |
G 25.62坪 (84.70m2) |
602,070 (23,500) |
8ヶ月 |
2.0ヶ月 |
即日 |
|
物件番号:027630
更新日:2026/4/24
豊島区南大塚3-22-13
【竣工】1978/10
【階建て】地上6F
|
【最寄駅】
|
【耐震】 |
旧耐震 |
| 【基準階】 |
|
【エントランス】 |
全日開放(24h) |
| 【駐車場】 |
無し |
【エレベーター】 |
未調査 |
東京都豊島区南大塚3丁目に位置するルシール南大塚は、都電荒川線と東京メトロ丸ノ内線の2路線が利用できる利便性の高い立地にある物件です。都電荒川線向原駅から徒歩3分、東京メトロ丸ノ内線新…

| 図面 |
階数 |
面積 |
賃料(共益費込) (坪単価) |
保証金/敷金 |
礼金 |
入居可能日 |
|
|
1階 |
G 28.63坪 (94.65m2) |
364,000 (12,714) |
3ヶ月 |
無 |
即日 |
|
非公開物件の賃料目安アイコン
8,000 円未満
8,000 円以上~1.0 万円未満
1.0 万以上~1.2 万円未満
1.2 万以上~1.4 万円未満
1.4 万以上~1.6 万円未満
1.6 万以上~2.0 万円未満
2.0 万以上~2.5 万円未満
2.5 万以上~3.0 万円未満
3.0 万円以上
未定
※取引態様:媒介
※フロア図面と現況が異なる場合は現況を優先いたします。
※貸室内部の写真・貸室からの景色に関しては、現在の募集フロアと異なる場合がございます。
※取引態様:媒介
その他、豊島区の貸事務所をお探しの方はこちらをクリック

貸事務所|土日エントランス開放
豊島区の貸事務所検索ページ