貸事務所|土日エントランス開放(品川区)
東京都品川区にある土曜日や日曜日もエントランスが開放している賃貸オフィスビルを掲載しています。平日はもちろん、週末の土日や祝日、祭日でもメインエントランスが開いているので、土日に営業をされる企業様に最適の賃貸オフィスビルを見つけることができます。
貸事務所|土日エントランス開放|品川区
物件番号:081541
更新日:2026/5/21
品川区東品川3-27-17
【竣工】2025/5
【階建て】地上5F 、地下1F
|
【最寄駅】
|
【耐震】 |
新耐震 |
| 【基準階】 |
26.98坪 |
【エントランス】 |
全日開放(24h) |
| 【駐車場】 |
無し |
【エレベーター】 |
1基 |
香雅堂品川ビルは、東京都品川区東品川3-27-17に位置する地上5階・地下1階建てのRC造(鉄筋コンクリート造)オフィスビルです。2025年5月に竣工した物件であり、新耐震基準に適合しているため、…

| 図面 |
階数 |
面積 |
賃料(共益費込) (坪単価) |
保証金/敷金 |
礼金 |
入居可能日 |
|
|
3階 |
G 26.98坪 (89.19m2) |
593,560 (22,000) |
6ヶ月 |
無 |
即日 |
|
|
4階 |
G 25.20坪 (83.31m2) |
554,400 (22,000) |
6ヶ月 |
無 |
即日 |
|
物件番号:064331
更新日:2026/5/19
品川区北品川5-5-15
【竣工】2015/4
【階建て】地上20F 、地下2F
|
【最寄駅】
|
【耐震】 |
新耐震+制震 |
| 【基準階】 |
448.89坪 |
【エントランス】 |
全日開放(制限有) |
| 【駐車場】 |
有り |
【エレベーター】 |
11基 |
大崎ブライトコアは、品川区北品川5-5-15に位置する高機能オフィスビルです。最寄りの大崎駅から徒歩4分と利便性が高く、JR山手線・埼京線・りんかい線の3路線が利用可能です。角地に立地してい…

| 図面 |
階数 |
面積 |
賃料(共益費込) (坪単価) |
保証金/敷金 |
礼金 |
入居可能日 |
|
|
5階 |
N 448.89坪 (1483.94m2) |
|
(未公開) |
無 |
2026/10/1 |
|
|
12階 |
N 130.86坪 (432.60m2) |
|
(未公開) |
無 |
2026/11/1 |
|
|
15階 |
N 80.11坪 (264.83m2) |
|
(未公開) |
無 |
2026/10/1 |
|
物件番号:059564
更新日:2026/5/20
品川区西五反田2-27-3
【竣工】2012/3
【階建て】地上10F 、地下1F
|
【最寄駅】
|
【耐震】 |
新耐震 |
| 【基準階】 |
130.08坪 |
【エントランス】 |
全日開放(制限有) |
| 【駐車場】 |
有り |
【エレベーター】 |
2基 |
A-PLACE五反田は、品川区西五反田2-27-3にある賃貸オフィスビルです。徒歩3分圏内で東急池上線・都営浅草線の五反田駅、徒歩4分圏内でJR山手線の五反田駅が利用可能となっています。複数路線が…

| 図面 |
階数 |
面積 |
賃料(共益費込) (坪単価) |
保証金/敷金 |
礼金 |
入居可能日 |
|
|
4階 |
N 130.08坪 (430.02m2) |
|
12ヶ月 |
無 |
2027/4/1 |
|
物件番号:062570
更新日:2026/5/11
品川区東品川4-12-4
【竣工】2003/7
【階建て】地上23F 、地下2F
|
【最寄駅】
|
【耐震】 |
新耐震+制震 |
| 【基準階】 |
505.40坪 |
【エントランス】 |
全日開放(制限有) |
| 【駐車場】 |
有り |
【エレベーター】 |
13基 |
品川区東品川4丁目にある、品川シーサイドパークタワーです。最寄駅は、りんかい線の品川シーサイド駅です。徒歩1分圏内で利用可能です。品川シーサイド駅近くで、アクセス抜群の立地です。京急…

| 図面 |
階数 |
面積 |
賃料(共益費込) (坪単価) |
保証金/敷金 |
礼金 |
入居可能日 |
|
|
6階 |
N 505.40坪 (1670.75m2) |
|
12ヶ月 |
無 |
2027/1/1 |
|
|
7階 |
N 353.63坪 (1169.03m2) |
|
12ヶ月 |
無 |
2026/12/1 |
|
物件番号:070654
更新日:2026/5/20
品川区大井1-21-2
【竣工】2000/1
【階建て】地上7F
|
【最寄駅】
|
【耐震】 |
新耐震 |
| 【基準階】 |
|
【エントランス】 |
全日開放(24h) |
| 【駐車場】 |
無し |
【エレベーター】 |
1基 |
豊強ビルは、東京都品川区大井1丁目に位置するオフィスビルで、JR京浜東北線「大井町駅」から徒歩4分という便利な立地にあります。大井町駅は、東急大井町線やりんかい線も乗り入れており、都内…

| 図面 |
階数 |
面積 |
賃料(共益費込) (坪単価) |
保証金/敷金 |
礼金 |
入居可能日 |
|
|
2階 |
G 24.20坪 (80.00m2) |
464,000 (19,174) |
6ヶ月 |
1.0ヶ月 |
即日 |
|
物件番号:043191
更新日:2026/5/22
品川区東五反田5-28-1
【竣工】1999/5
【階建て】地上8F
|
【最寄駅】
|
【耐震】 |
新耐震 |
| 【基準階】 |
25.11坪 |
【エントランス】 |
全日開放(制限有) |
| 【駐車場】 |
無し |
【エレベーター】 |
1基 |
複数路線利用可能で交通アクセス良好の物件!三差路の角地!日当たり良く見晴らしの良いビル!ワンフロア・ワンテナントの使い勝手良好なオフィス空間!

| 図面 |
階数 |
面積 |
賃料(共益費込) (坪単価) |
保証金/敷金 |
礼金 |
入居可能日 |
|
|
7階 |
G 25.11坪 (83.01m2) |
|
10ヶ月 |
無 |
2026/9 中旬 |
|
物件番号:073085
更新日:2026/4/27
品川区西五反田3-15-6
【竣工】1996/10
【階建て】地上8F
|
【最寄駅】
|
【耐震】 |
新耐震 |
| 【基準階】 |
39.45坪 |
【エントランス】 |
全日開放(24h) |
| 【駐車場】 |
無し |
【エレベーター】 |
1基 |
リードシー目黒不動前ビルは、東京都品川区西五反田3-15-6に位置する魅力的なオフィスビルです。交通アクセスが非常に便利で、東急目黒線不動前駅から徒歩5分圏内、JR山手線、東急目黒線、東京メ…

| 図面 |
階数 |
面積 |
賃料(共益費込) (坪単価) |
保証金/敷金 |
礼金 |
入居可能日 |
|
|
2階 |
G 39.45坪 (130.44m2) |
907,350 (23,000) |
無 |
無 |
即日 |
|
物件番号:050034
更新日:2026/5/21
品川区南大井6-16-16
【竣工】1993/6
【階建て】地上8F 、地下1F
|
【最寄駅】
|
【耐震】 |
新耐震 |
| 【基準階】 |
70.82坪 |
【エントランス】 |
全日開放(制限有) |
| 【駐車場】 |
有り |
【エレベーター】 |
1基 |
鈴中ビル大森ANNEXは、東京都品川区南大井にある8階建て(地下1階付)の建物です。1993年6月に竣工したこのビルは、鉄骨鉄筋コンクリート造(SRC造)で設計されており、新耐震基準を満たしている…

| 図面 |
階数 |
面積 |
賃料(共益費込) (坪単価) |
保証金/敷金 |
礼金 |
入居可能日 |
|
|
NEWB1階 |
G 56.68坪 (187.38m2) |
|
12ヶ月 |
無 |
相談 |
|
|
3階 |
G 70.82坪 (234.12m2) |
|
(未公開) |
無 |
即日 |
|
|
7階 |
G 76.21坪 (251.94m2) |
|
12ヶ月 |
無 |
即日 |
|
物件番号:022635
更新日:2026/5/14
品川区西五反田3-12-14
【竣工】1993/6
【階建て】地上8F 、地下2F
|
【最寄駅】
|
【耐震】 |
新耐震 |
| 【基準階】 |
62.77坪 |
【エントランス】 |
全日開放(制限有) |
| 【駐車場】 |
有り |
【エレベーター】 |
1基 |
西五反田プレイスは、品川区西五反田3丁目に位置する、美築のハイグレードオフィスビルです。最寄り駅は東急目黒線「不動前駅」で、駅から徒歩わずか3分という優れたアクセスを誇ります。また、J…

| 図面 |
階数 |
面積 |
賃料(共益費込) (坪単価) |
保証金/敷金 |
礼金 |
入居可能日 |
|
|
4階 |
G 62.77坪 (207.51m2) |
|
6ヶ月 |
無 |
即日 |
|
物件番号:023201
更新日:2026/5/18
品川区東大井5-7-10
【竣工】1993/2
【階建て】地上8F 、地下1F
|
【最寄駅】
|
【耐震】 |
新耐震 |
| 【基準階】 |
44.46坪 |
【エントランス】 |
全日開放(24h) |
| 【駐車場】 |
無し |
【エレベーター】 |
1基 |
クレストワンは、東京都品川区東大井にある魅力的なオフィスビルです。JR京浜東北線、東急大井町線、りんかい線の3路線が利用可能な大井町駅から徒歩4分の距離に位置しており、アクセスの良さが…

| 図面 |
階数 |
面積 |
賃料(共益費込) (坪単価) |
保証金/敷金 |
礼金 |
入居可能日 |
|
|
4階 |
G 44.46坪 (146.98m2) |
|
8ヶ月 |
無 |
2026/6 上旬 |
|
物件番号:023172
更新日:2026/5/8
品川区南大井3-24-13
【竣工】1992/10
【階建て】地上6F
|
【最寄駅】
|
【耐震】 |
新耐震 |
| 【基準階】 |
35.42坪 |
【エントランス】 |
全日開放(制限有) |
| 【駐車場】 |
有り |
【エレベーター】 |
1基 |
大森駅徒歩4分の賃貸オフィスビルです。EBUCHIビルは、東京都品川区南大井3-24-13に位置する賃貸オフィスビルです。京急本線の大森海岸駅から徒歩4分、JR京浜東北線の大森駅から徒歩6分という便…

| 図面 |
階数 |
面積 |
賃料(共益費込) (坪単価) |
保証金/敷金 |
礼金 |
入居可能日 |
|
|
6階 |
G 35.42坪 (117.09m2) |
440,000 (12,422) |
6ヶ月 |
1.0ヶ月 |
相談 |
|
物件番号:023137
更新日:2026/5/21
品川区南大井3-28-10
【竣工】1992/9
【階建て】地上7F
|
【最寄駅】
|
【耐震】 |
新耐震 |
| 【基準階】 |
117.11坪 |
【エントランス】 |
全日開放(24h) |
| 【駐車場】 |
有り |
【エレベーター】 |
2基 |
大森エリア。桜新道に面した貸事務所。ORIENT BLD No140 OIトレーディングビルは品川区南大井3丁目。JR京浜東北線の大森駅より徒歩6分圏内、京急本線の大森海岸駅より徒歩3分圏内でアクセス可能…

| 図面 |
階数 |
面積 |
賃料(共益費込) (坪単価) |
保証金/敷金 |
礼金 |
入居可能日 |
|
|
1階 |
N 97.58坪 (322.59m2) |
2,439,500 (25,000) |
10ヶ月 |
1.0ヶ月 |
2026/8 下旬 |
|
|
2階 |
N 52.31坪 (172.93m2) |
680,030 (13,000) |
10ヶ月 |
1.0ヶ月 |
即日 |
|
|
2階 |
N 56.40坪 (186.45m2) |
733,200 (13,000) |
10ヶ月 |
1.0ヶ月 |
即日 |
|
物件番号:022798
更新日:2026/5/8
品川区大崎1-20-3
【竣工】1992/8
【階建て】地上6F
|
【最寄駅】
|
【耐震】 |
新耐震 |
| 【基準階】 |
82.03坪 |
【エントランス】 |
全日開放(制限有) |
| 【駐車場】 |
有り |
【エレベーター】 |
1基 |
イマス大崎ビルは、東京都品川区大崎1-20-3に位置する地上6階建てのオフィスビルです。1992年8月に竣工し、S造で建てられています。新耐震基準に適合しており、安全性にも優れています。交通アク…

| 図面 |
階数 |
面積 |
賃料(共益費込) (坪単価) |
保証金/敷金 |
礼金 |
入居可能日 |
|
|
3階 |
G 82.03坪 (271.17m2) |
1,558,570 (19,000) |
10ヶ月 |
無 |
2026/11/1 |
|
物件番号:023127
更新日:2026/5/15
品川区南大井6-25-3
【竣工】1992/7
【階建て】地上8F 、地下1F
|
【最寄駅】
|
【耐震】 |
新耐震 |
| 【基準階】 |
144.93坪 |
【エントランス】 |
全日開放(制限有) |
| 【駐車場】 |
有り |
【エレベーター】 |
2基 |
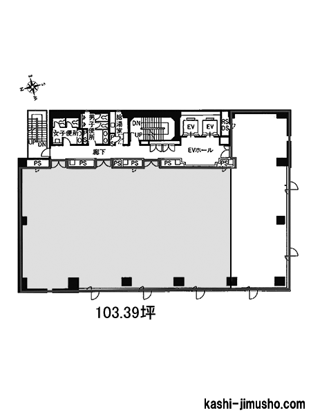
いちご大森ビルは、品川区南大井6-25-3にある物件です。最寄駅は、JR京浜東北線の大森駅です。徒歩2分圏内でアクセス可能な好立地です。徒歩6分圏内で京急本線の大森海岸駅も利用可能となってい…

| 図面 |
階数 |
面積 |
賃料(共益費込) (坪単価) |
保証金/敷金 |
礼金 |
入居可能日 |
|
|
3階 |
N 41.58坪 (137.47m2) |
|
10ヶ月 |
無 |
2026/9/1 |
|
|
3階 |
N 103.39坪 (341.81m2) |
|
10ヶ月 |
無 |
2026/10/1 |
|
|
3階 |
N 144.97坪 (479.28m2) |
|
10ヶ月 |
無 |
2026/10/1 |
|
物件番号:063542
更新日:2026/5/20
品川区東品川2-3-14
【竣工】1992/6(改修:2015)
【階建て】地上22F 、地下1F
|
【最寄駅】
|
【耐震】 |
新耐震+免震 |
| 【基準階】 |
282.70坪 |
【エントランス】 |
全日開放(制限有) |
| 【駐車場】 |
有り |
【エレベーター】 |
9基 |
品川区東品川2丁目にある、東京フロントテラスです。東京モノレール線の天王洲アイル駅と直結しています。雨に濡れずにビル内にアクセス可能です。また、りんかい線の天王洲アイル駅も徒歩5分圏…

| 図面 |
階数 |
面積 |
賃料(共益費込) (坪単価) |
保証金/敷金 |
礼金 |
入居可能日 |
|
|
11階 |
G 289.24坪 (956.17m2) |
|
12ヶ月 |
無 |
2027/4/1 |
|
|
12階 |
G 82.21坪 (271.77m2) |
|
12ヶ月 |
無 |
2026/10/1 |
|
|
15階 |
G 131.93坪 (436.13m2) |
|
12ヶ月 |
無 |
2026/7/1 |
|
物件番号:023152
更新日:2026/5/15
品川区南大井5-26-12
【竣工】1992/2
【階建て】地上5F 、地下2F
|
【最寄駅】
|
【耐震】 |
新耐震 |
| 【基準階】 |
83.28坪 |
【エントランス】 |
全日開放(24h) |
| 【駐車場】 |
有り |
【エレベーター】 |
1基 |
JSCビルは、東京都品川区南大井5-26-12に位置し、JR京浜東北線の大森駅から徒歩8分、京急本線の大森海岸駅から徒歩13分という、2つの駅が利用可能な便利な立地です。1992年2月に竣工したこのビル…

| 図面 |
階数 |
面積 |
賃料(共益費込) (坪単価) |
保証金/敷金 |
礼金 |
入居可能日 |
|
|
B1階 |
G 145.66坪 (481.52m2) |
1,165,280 (8,000) |
8ヶ月 |
無 |
即日 |
|
物件番号:022710
更新日:2026/5/13
品川区西五反田7-25-9
【竣工】1991/9(改修:2021)
【階建て】地上8F 、地下1F
|
【最寄駅】
|
【耐震】 |
新耐震 |
| 【基準階】 |
197.81坪 |
【エントランス】 |
全日開放(制限有) |
| 【駐車場】 |
有り |
【エレベーター】 |
2基 |
五反田フラットアイアンは、東京都品川区西五反田7-25-9に位置する魅力的なオフィスビルです。交通アクセスが便利で、東急池上線大崎広小路駅と都営浅草線戸越駅から徒歩8分圏内、JR山手線五反田…

| 図面 |
階数 |
面積 |
賃料(共益費込) (坪単価) |
保証金/敷金 |
礼金 |
入居可能日 |
|
|
5階 |
N 60.56坪 (200.20m2) |
|
6ヶ月 |
無 |
即日 |
|
物件番号:059715
更新日:2026/5/11
品川区西五反田8-2-8
【竣工】1991/7
【階建て】地上10F 、地下1F
|
【最寄駅】
|
【耐震】 |
新耐震 |
| 【基準階】 |
89.16坪 |
【エントランス】 |
全日開放(制限有) |
| 【駐車場】 |
有り |
【エレベーター】 |
2基 |
五反田佑気ビルは、東京都品川区西五反田8丁目に位置する地上10階・地下1階建てのオフィスビルです。1991年7月に竣工し、新耐震基準に適合したSRC造の建物で、安心して長く使えるしっかりとした…

| 図面 |
階数 |
面積 |
賃料(共益費込) (坪単価) |
保証金/敷金 |
礼金 |
入居可能日 |
|
|
3階 |
G 72.60坪 (240.00m2) |
|
(未公開) |
無 |
即日 |
|
物件番号:077776
更新日:2026/5/12
品川区大井4-10-6
【竣工】1991/4
【階建て】地上3F
|
【最寄駅】
|
【耐震】 |
新耐震 |
| 【基準階】 |
41.68坪 |
【エントランス】 |
全日開放(24h) |
| 【駐車場】 |
有り |
【エレベーター】 |
無 |
フジ大理石ビルは、東京都品川区大井四丁目に位置するオフィスビルです。JR京浜東北線、東急大井町線、りんかい線の大井町駅からいずれも徒歩5分の距離にあり、都内主要エリアへのアクセスが非常…

| 図面 |
階数 |
面積 |
賃料(共益費込) (坪単価) |
保証金/敷金 |
礼金 |
入居可能日 |
|
|
3階 |
G 45.12坪 (149.15m2) |
451,200 (10,000) |
8ヶ月 |
無 |
相談 |
|
物件番号:022552
更新日:2026/5/21
品川区東五反田3-1-6
【竣工】1990/11
【階建て】地上9F
|
【最寄駅】
|
【耐震】 |
新耐震 |
| 【基準階】 |
20.42坪 |
【エントランス】 |
全日開放(24h) |
| 【駐車場】 |
無し |
【エレベーター】 |
1基 |
ウエストワールドビルは1990年竣工の地上9階建てのRC造で、最寄り駅は都営浅草線の高輪台駅から徒歩1分、その他にもJR山手線、都営浅草線、東急池上線の五反田駅からは徒歩9分、JR京浜東北線と京…

| 図面 |
階数 |
面積 |
賃料(共益費込) (坪単価) |
保証金/敷金 |
礼金 |
入居可能日 |
|
|
6階 |
G 20.42坪 (67.53m2) |
320,000 (15,671) |
2,112,000 (103,428) |
無 |
即日 |
|
物件番号:022695
更新日:2026/5/14
品川区西五反田2-23-1
【竣工】1990/4
【階建て】地上8F
|
【最寄駅】
|
【耐震】 |
新耐震 |
| 【基準階】 |
36.00坪 |
【エントランス】 |
全日開放(制限有) |
| 【駐車場】 |
有り |
【エレベーター】 |
1基 |
五反田エリア。目黒川沿いの角地に建つ貸事務所。スペースエリア飯嶋ビルは品川区西五反田2丁目。最寄り駅はJR五反田駅、東急池上線・都営浅草線の五反田駅です。五反田駅より徒歩5分圏内でアク…

| 図面 |
階数 |
面積 |
賃料(共益費込) (坪単価) |
保証金/敷金 |
礼金 |
入居可能日 |
|
|
3階 |
G 37.73坪 (124.76m2) |
1,056,440 (28,000) |
6ヶ月 |
無 |
2026/10 下旬 |
|
|
4階 |
G 37.73坪 (124.76m2) |
1,056,440 (28,000) |
6ヶ月 |
無 |
2026/10 下旬 |
|
|
6階 |
G 37.73坪 (124.76m2) |
1,056,440 (28,000) |
6ヶ月 |
無 |
2026/10 予定 |
|
|
8階 |
G 31.96坪 (105.65m2) |
1,000,000 (31,289) |
6ヶ月 |
無 |
2026/6/1 |
|
物件番号:044286
更新日:2026/5/9
品川区西五反田3-6-20
【竣工】1990/3
【階建て】地上9F
|
【最寄駅】
|
【耐震】 |
新耐震 |
| 【基準階】 |
42.82坪 |
【エントランス】 |
全日開放(制限有) |
| 【駐車場】 |
無し |
【エレベーター】 |
1基 |
いちご西五反田ビルは、東京都品川区西五反田3丁目6-20に位置する賃貸オフィスビルで、ビジネスの利便性と快適な環境を兼ね備えた物件です。最寄り駅はJR山手線、東急池上線、都営浅草線が乗り入…

| 図面 |
階数 |
面積 |
賃料(共益費込) (坪単価) |
保証金/敷金 |
礼金 |
入居可能日 |
|
|
7階 |
G 44.59坪 (147.41m2) |
|
(未公開) |
無 |
2026/7/14 |
|
物件番号:022927
更新日:2026/5/21
品川区南品川2-4-7
【竣工】1989/6
【階建て】地上12F 、地下1F
|
【最寄駅】
|
【耐震】 |
新耐震 |
| 【基準階】 |
74.88坪 |
【エントランス】 |
全日開放(制限有) |
| 【駐車場】 |
有り |
【エレベーター】 |
2基 |
アサミビルは、東京都品川区南品川2-4-7に位置する、ビジネスパーソンにとって非常に魅力的なオフィスビルです。交通アクセスの良さが際立っており、京急本線の青物横丁駅からわずか徒歩2分とい…

| 図面 |
階数 |
面積 |
賃料(共益費込) (坪単価) |
保証金/敷金 |
礼金 |
入居可能日 |
|
|
5階 |
G 74.89坪 (247.57m2) |
898,681 (12,000) |
6ヶ月 |
1.0ヶ月 |
即日 |
|
物件番号:074200
更新日:2026/5/22
品川区西五反田7-16-3
【竣工】1989/5(改修:2020)
【階建て】地上5F
|
【最寄駅】
|
【耐震】 |
新耐震 |
| 【基準階】 |
27.61坪 |
【エントランス】 |
全日開放(24h) |
| 【駐車場】 |
有り |
【エレベーター】 |
1基 |
東京モリスビル第10は、東京都品川区西五反田7-16-3に所在する地上5階建てのオフィスビルです。1989年5月に竣工し、鉄筋コンクリート造(RC造)で建てられており、新耐震基準に準拠しています。…

| 図面 |
階数 |
面積 |
賃料(共益費込) (坪単価) |
保証金/敷金 |
礼金 |
入居可能日 |
|
|
3階 |
G 27.61坪 (91.27m2) |
401,600 (14,545) |
6ヶ月 |
1.0ヶ月 |
2027/1/1 |
|
物件番号:022589
更新日:2026/5/15
品川区西五反田2-1-22
【竣工】1989/5
【階建て】地上10F
|
【最寄駅】
|
【耐震】 |
新耐震 |
| 【基準階】 |
33.96坪 |
【エントランス】 |
全日開放(制限有) |
| 【駐車場】 |
無し |
【エレベーター】 |
1基 |
プラネットビルは、東京都品川区西五反田2丁目に位置し、アクセスの良さと快適なオフィス環境を提供するビジネス向けのオフィスビルです。1989年5月に竣工したこの建物は、地上10階建ての鉄骨鉄…

| 図面 |
階数 |
面積 |
賃料(共益費込) (坪単価) |
保証金/敷金 |
礼金 |
入居可能日 |
|
|
6階 |
G 33.96坪 (112.26m2) |
490,000 (14,429) |
6ヶ月 |
1.0ヶ月 |
即日 |
|
物件番号:041660
更新日:2026/5/15
品川区東品川3-21-10
【竣工】1989/4
【階建て】地上7F 、地下1F
|
【最寄駅】
|
【耐震】 |
新耐震 |
| 【基準階】 |
104.88坪 |
【エントランス】 |
全日開放(制限有) |
| 【駐車場】 |
有り |
【エレベーター】 |
1基 |
品川シーサイド駅利用、大通りに面した角地の明るい貸事務所。ヤダビルは品川区東品川3丁目。最寄り駅はりんかい線品川シーサイド駅、最寄駅より徒歩8分圏内です。海岸通りに面した角地に位置し…

| 図面 |
階数 |
面積 |
賃料(共益費込) (坪単価) |
保証金/敷金 |
礼金 |
入居可能日 |
|
|
3階 |
G 74.39坪 (245.92m2) |
|
(未公開) |
無 |
2026/7 |
|
|
6階 |
G 52.40坪 (173.22m2) |
|
(未公開) |
無 |
即日 |
|
物件番号:062177
更新日:2026/5/15
品川区西五反田1-29-2
【竣工】1989/3
【階建て】地上8F
|
【最寄駅】
|
【耐震】 |
新耐震 |
| 【基準階】 |
35.00坪 |
【エントランス】 |
全日開放(24h) |
| 【駐車場】 |
無し |
【エレベーター】 |
1基 |
吾作ビルは、東京都品川区西五反田1丁目に位置する、アクセスの良さと機能性を兼ね備えたオフィスビルです。1989年3月に竣工したこの建物は、鉄骨鉄筋コンクリート造(SRC造)で、新耐震基準に適…

| 図面 |
階数 |
面積 |
賃料(共益費込) (坪単価) |
保証金/敷金 |
礼金 |
入居可能日 |
|
|
6階 |
G 35.00坪 (115.70m2) |
560,000 (16,000) |
2,730,000 (78,000) |
無 |
即日 |
|
物件番号:022748
更新日:2026/5/13
品川区西五反田8-8-15
【竣工】1989/2
【階建て】地上11F 、地下1F
|
【最寄駅】
|
【耐震】 |
新耐震 |
| 【基準階】 |
44.06坪 |
【エントランス】 |
全日開放(24h) |
| 【駐車場】 |
有り |
【エレベーター】 |
1基 |
西五反田エリアの賃貸オフィスビルです。カーニープレイス五反田は、東京都品川区西五反田8-8-15に位置する賃貸オフィスビルです。1989年に竣工したこのビルは、地上11階、地下1階の鉄骨鉄筋コン…

| 図面 |
階数 |
面積 |
賃料(共益費込) (坪単価) |
保証金/敷金 |
礼金 |
入居可能日 |
|
|
2階 |
G 25.98坪 (85.91m2) |
600,000 (23,095) |
4ヶ月 |
無 |
2026/5 下旬 |
|
物件番号:022454
更新日:2026/5/20
品川区東五反田4-7-27
【竣工】1988/2(改修:2023)
【階建て】地上12F 、地下1F
|
【最寄駅】
|
【耐震】 |
新耐震 |
| 【基準階】 |
17.81坪 |
【エントランス】 |
全日開放(24h) |
| 【駐車場】 |
有り |
【エレベーター】 |
1基 |
NOVEL WORK Gotandaは、東京都品川区東五反田4丁目に位置する地上12階・地下1階建てのオフィスビルです。1988年2月に竣工しており、構造は鉄骨鉄筋コンクリート造(SRC造)です。新耐震基準に適…

| 図面 |
階数 |
面積 |
賃料(共益費込) (坪単価) |
保証金/敷金 |
礼金 |
入居可能日 |
|
|
10-11階 |
G 27.94坪 (92.34m2) |
735,855 (26,337) |
(未公開) |
無 |
2026/6 上旬 |
|
物件番号:054596
更新日:2026/5/21
品川区南大井6-16-16
【竣工】1987/4(改修:1992)
【階建て】地上6F 、地下1F
|
【最寄駅】
|
【耐震】 |
新耐震 |
| 【基準階】 |
152.03坪 |
【エントランス】 |
全日開放(制限有) |
| 【駐車場】 |
有り |
【エレベーター】 |
2基 |
鈴中ビル大森は、品川区南大井6-16-16に位置する、使い勝手の良い賃貸オフィスビルです。JR京浜東北線「大森駅」から徒歩3分の場所にあり、毎日の通勤や来客対応にも便利な立地です。さらに、京…

| 図面 |
階数 |
面積 |
賃料(共益費込) (坪単価) |
保証金/敷金 |
礼金 |
入居可能日 |
|
|
5階 |
G 81.19坪 (268.41m2) |
|
12ヶ月 |
無 |
即日 |
|
非公開物件の賃料目安アイコン
8,000 円未満
8,000 円以上~1.0 万円未満
1.0 万以上~1.2 万円未満
1.2 万以上~1.4 万円未満
1.4 万以上~1.6 万円未満
1.6 万以上~2.0 万円未満
2.0 万以上~2.5 万円未満
2.5 万以上~3.0 万円未満
3.0 万円以上
未定
※取引態様:媒介
※フロア図面と現況が異なる場合は現況を優先いたします。
※貸室内部の写真・貸室からの景色に関しては、現在の募集フロアと異なる場合がございます。
※取引態様:媒介
その他、品川区の貸事務所をお探しの方はこちらをクリック

貸事務所|土日エントランス開放
品川区の貸事務所検索ページ