トイレ男女別の貸事務所(恵比寿・広尾・代官山)(80~100坪)
恵比寿・広尾・代官山エリア にあるトイレが男女別の貸事務所を掲載しています。特に、女性のお客様が重要視するのがオフィスビルのトイレです。男性と同じトイレは敬遠されることが多く、男女別のトイレを希望するお客様がいらっしゃいます。そこで女性社員の快適性を考えトイレが男女別の貸事務所をご紹介します。
恵比寿・広尾・代官山エリアの男女別トイレ貸事務所
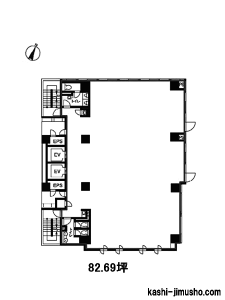
物件番号:083669
更新日:2026/5/18
中央区日本橋小伝馬町8-12
【竣工】2026/5
【階建て】地上8F
|
【最寄駅】
|
【耐震】 |
新耐震 |
| 【基準階】 |
69.41坪 |
【エントランス】 |
平日のみ開放 |
| 【駐車場】 |
有り |
【エレベーター】 |
2基 |
CIRCLES日本橋小伝馬町は、東京都中央区日本橋小伝馬町107-2に位置する地上8階建てのオフィスビルです。2026年5月竣工の物件で、構造はS造となっています。新耐震基準に適合しており、今後のオフ…

| 図面 |
階数 |
面積 |
賃料(共益費込) (坪単価) |
保証金/敷金 |
礼金 |
入居可能日 |
|
|
3階 |
G 92.58坪 (306.07m2) |
|
8ヶ月 |
無 |
即日 |
|
物件番号:083476
更新日:2026/5/11
中央区八丁堀1-3-2
【竣工】2026/4
【階建て】地上8F
|
【最寄駅】
|
【耐震】 |
新耐震 |
| 【基準階】 |
89.75坪 |
【エントランス】 |
オートロック |
| 【駐車場】 |
有り |
【エレベーター】 |
2基 |
T-PLUS八丁堀は、東京都中央区八丁堀1丁目に誕生する2026年4月竣工のオフィスビルで、八丁堀エリアで注目のウェルネスオフィスです。地上8階建て、耐震新耐震設計を採用した建物は、基準階約89.7…

| 図面 |
階数 |
面積 |
賃料(共益費込) (坪単価) |
保証金/敷金 |
礼金 |
入居可能日 |
|
|
4階 |
G 89.75坪 (296.71m2) |
|
(未公開) |
無 |
即日 |
|
|
5階 |
G 89.75坪 (296.71m2) |
|
(未公開) |
無 |
即日 |
|
|
6階 |
G 89.75坪 (296.71m2) |
|
(未公開) |
無 |
即日 |
|
|
7階 |
G 89.75坪 (296.71m2) |
|
(未公開) |
無 |
即日 |
|
|
8階 |
G 89.75坪 (296.71m2) |
|
(未公開) |
無 |
即日 |
|
物件番号:083861
更新日:2026/5/11
港区赤坂4-1-6
【竣工】2026/1
【階建て】地上9F
|
【最寄駅】
|
【耐震】 |
新耐震 |
| 【基準階】 |
118.71坪 |
【エントランス】 |
平日のみ開放 |
| 【駐車場】 |
有り |
【エレベーター】 |
2基 |
NBL ARK TOWERは、東京都港区赤坂4-1-6に位置する地上9階建てのオフィスビルです。2026年1月に竣工し、S造で建てられています。新耐震基準に適合しており、安全性にも優れています。交通アクセス…

| 図面 |
階数 |
面積 |
賃料(共益費込) (坪単価) |
保証金/敷金 |
礼金 |
入居可能日 |
|
|
2階 |
G 90.65坪 (299.69m2) |
|
10ヶ月 |
無 |
即日 |
|
物件番号:081606
更新日:2026/5/22
千代田区麹町5-1-4
【竣工】2025/6
【階建て】地上12F 、地下2F
|
【最寄駅】
|
【耐震】 |
新耐震 |
| 【基準階】 |
669.73坪 |
【エントランス】 |
|
| 【駐車場】 |
有り |
【エレベーター】 |
9基 |
東京都千代田区麹町に2025年6月竣工予定の「麹町弘済ビルディング」は、都心の主要エリアに位置しながらも、快適性と高機能を兼ね備えた次世代型の大型オフィスビルです。立地は新宿通り沿いの角…

| 図面 |
階数 |
面積 |
賃料(共益費込) (坪単価) |
保証金/敷金 |
礼金 |
入居可能日 |
|
|
NEW4階 |
N 97.83坪 (323.41m2) |
|
12ヶ月 |
無 |
2027/2/1 |
|
物件番号:082619
更新日:2026/5/15
港区南青山5-9-2
【竣工】2024/10
【階建て】地上9F
|
【最寄駅】
|
【耐震】 |
新耐震 |
| 【基準階】 |
92.61坪 |
【エントランス】 |
全日開放(制限有) |
| 【駐車場】 |
無し |
【エレベーター】 |
2基 |
VORT南青山maximは、東京都港区南青山5-9-2に位置する新築オフィスビルで、2024年10月に竣工予定の物件です。東京メトロ銀座線・半蔵門線・千代田線の表参道駅から徒歩1分という好立地にあり、都…

| 図面 |
階数 |
面積 |
賃料(共益費込) (坪単価) |
保証金/敷金 |
礼金 |
入居可能日 |
|
|
6階 |
G 92.67坪 (306.38m2) |
|
5ヶ月 |
無 |
即日 |
|
|
7階 |
G 92.67坪 (306.38m2) |
|
5ヶ月 |
1.0ヶ月 |
即日 |
|
|
9階 |
G 92.67坪 (306.38m2) |
|
5ヶ月 |
無 |
即日 |
|
物件番号:013515
更新日:2026/5/11
港区新橋6-2-1
【竣工】2024/10
【階建て】地上13F
|
【最寄駅】
|
【耐震】 |
新耐震+制震 |
| 【基準階】 |
99.99坪 |
【エントランス】 |
オートロック |
| 【駐車場】 |
有り |
【エレベーター】 |
3基 |
CIRCLES+SHINBASHIは、東京都港区新橋6-2-1に位置する最新のオフィスビルで、2024年10月に竣工予定です。地上13階建てのS造(鉄骨造)で、新耐震基準に加え、制震構造を採用しており、地震対策に…

| 図面 |
階数 |
面積 |
賃料(共益費込) (坪単価) |
保証金/敷金 |
礼金 |
入居可能日 |
|
|
3階 |
G 99.99坪 (330.55m2) |
|
6ヶ月 |
無 |
即日 |
|
|
10階 |
G 99.99坪 (330.55m2) |
|
6ヶ月 |
無 |
即日 |
|
物件番号:082497
更新日:2026/5/8
渋谷区代々木2-5-4
【竣工】2024/10
【階建て】地上10F 、地下1F
|
【最寄駅】
|
【耐震】 |
新耐震 |
| 【基準階】 |
162.60坪 |
【エントランス】 |
全日開放(制限有) |
| 【駐車場】 |
有り |
【エレベーター】 |
3基 |
榊原記念ビルディングは、東京都渋谷区代々木2丁目に位置する最新鋭のオフィスビルです。2024年10月に竣工このビルは、京王線、小田急小田原線、東京メトロ丸ノ内線、都営大江戸線、都営新宿線「…

| 図面 |
階数 |
面積 |
賃料(共益費込) (坪単価) |
保証金/敷金 |
礼金 |
入居可能日 |
|
|
7階 |
N 86.52坪 (286.02m2) |
|
12ヶ月 |
無 |
即日 |
|
物件番号:081681
更新日:2026/5/13
江東区佐賀1-4-9
【竣工】2024/4
【階建て】地上9F 、地下1F
|
【最寄駅】
|
【耐震】 |
新耐震 |
| 【基準階】 |
86.65坪 |
【エントランス】 |
全日開放(制限有) |
| 【駐車場】 |
有り |
【エレベーター】 |
2基 |
永代通りに面したガラス貼りのハイグレードオフィスビルです。門前仲町トーセイビルは、東京都江東区佐賀1-4-9に位置する賃貸オフィスビルです。2024年4月に竣工した美築オフィスビルです。地上9…

| 図面 |
階数 |
面積 |
賃料(共益費込) (坪単価) |
保証金/敷金 |
礼金 |
入居可能日 |
|
|
2階 |
G 96.16坪 (317.91m2) |
|
10ヶ月 |
無 |
即日 |
|
|
3階 |
G 96.16坪 (317.91m2) |
|
10ヶ月 |
無 |
即日 |
|
|
4階 |
G 96.16坪 (317.91m2) |
|
10ヶ月 |
無 |
即日 |
|
|
5階 |
G 96.16坪 (317.91m2) |
|
10ヶ月 |
無 |
即日 |
|
物件番号:080577
更新日:2026/5/12
港区浜松町2-10-6
【竣工】2023/9
【階建て】地上11F
|
【最寄駅】
|
【耐震】 |
新耐震 |
| 【基準階】 |
92.71坪 |
【エントランス】 |
オートロック |
| 【駐車場】 |
有り |
【エレベーター】 |
2基 |
PMO浜松町Ⅲは、洗練された佇まいと充実の設備が魅力的なオフィスビルです。徒歩3分圏内にJR山手線・京浜東北線・東京モノレール線の「浜松町」駅があり、さらに徒歩7分で都営浅草線・大江戸線の…

| 図面 |
階数 |
面積 |
賃料(共益費込) (坪単価) |
保証金/敷金 |
礼金 |
入居可能日 |
|
|
8階 |
G 92.71坪 (306.51m2) |
|
(未公開) |
無 |
2026/9/1 |
|
物件番号:080252
更新日:2026/5/12
豊島区東池袋1-25-10
【竣工】2023/5
【階建て】地上12F
|
【最寄駅】
|
【耐震】 |
新耐震 |
| 【基準階】 |
91.98坪 |
【エントランス】 |
オートロック |
| 【駐車場】 |
有り |
【エレベーター】 |
2基 |
池袋エリアに位置するPMO池袋は、2023年に竣工した最新のハイグレードオフィスビルです。東京都豊島区東池袋1-25-10に所在し、グリーン大通りに面した好立地を誇ります。交通アクセスは非常に便…

| 図面 |
階数 |
面積 |
賃料(共益費込) (坪単価) |
保証金/敷金 |
礼金 |
入居可能日 |
|
|
12階 |
G 91.98坪 (304.09m2) |
|
(未公開) |
無 |
2026/6/1 |
|
物件番号:079316
更新日:2026/5/21
渋谷区神南1-46-9
【竣工】2023/3
【階建て】地上6F 、地下1F
|
【最寄駅】
|
【耐震】 |
新耐震 |
| 【基準階】 |
93.04坪 |
【エントランス】 |
|
| 【駐車場】 |
- |
【エレベーター】 |
1基 |
テアトル神南は、東京都渋谷区神南1丁目46番9号に位置するハイグレードな賃貸オフィスビルです。この物件は、JR山手線、埼京線、東京メトロ銀座線、半蔵門線、副都心線の渋谷駅から徒歩7分という…

| 図面 |
階数 |
面積 |
賃料(共益費込) (坪単価) |
保証金/敷金 |
礼金 |
入居可能日 |
|
|
NEW2階 |
N 93.04坪 (307.59m2) |
|
12ヶ月 |
無 |
2026/11/1 |
|
|
NEW6階 |
N 93.04坪 (307.59m2) |
|
12ヶ月 |
無 |
2026/11/1 |
|
物件番号:078850
更新日:2026/5/12
港区芝5-29-19
【竣工】2022/6
【階建て】地上11F
|
【最寄駅】
|
【耐震】 |
新耐震 |
| 【基準階】 |
99.39坪 |
【エントランス】 |
オートロック |
| 【駐車場】 |
有り |
【エレベーター】 |
2基 |
PMO田町Ⅳは、港区芝5-29-19にある物件です。徒歩4分圏内で都営浅草線・都営三田線の三田駅、徒歩5分圏内でJR山手線・JR京浜東北線の田町駅が利用可能となっています。複数路線が利用可能でアクセ…

| 図面 |
階数 |
面積 |
賃料(共益費込) (坪単価) |
保証金/敷金 |
礼金 |
入居可能日 |
|
|
8階 |
G 99.39坪 (328.59m2) |
|
12ヶ月 |
無 |
2026/8/1 |
|
物件番号:064331
更新日:2026/5/19
品川区北品川5-5-15
【竣工】2015/4
【階建て】地上20F 、地下2F
|
【最寄駅】
|
【耐震】 |
新耐震+制震 |
| 【基準階】 |
448.89坪 |
【エントランス】 |
全日開放(制限有) |
| 【駐車場】 |
有り |
【エレベーター】 |
11基 |
大崎ブライトコアは、品川区北品川5-5-15に位置する高機能オフィスビルです。最寄りの大崎駅から徒歩4分と利便性が高く、JR山手線・埼京線・りんかい線の3路線が利用可能です。角地に立地してい…

| 図面 |
階数 |
面積 |
賃料(共益費込) (坪単価) |
保証金/敷金 |
礼金 |
入居可能日 |
|
|
15階 |
N 80.11坪 (264.83m2) |
|
(未公開) |
無 |
2026/10/1 |
|
物件番号:083268
更新日:2026/5/25
渋谷区恵比寿南2-5-1
【竣工】2014/2(改修:2025)
【階建て】地上5F
|
【最寄駅】
|
【耐震】 |
新耐震 |
| 【基準階】 |
|
【エントランス】 |
|
| 【駐車場】 |
無し |
【エレベーター】 |
1基 |
「Ebisu MIT Bldg.」は、東京都渋谷区恵比寿南2-5-1に位置する地上5階建てのオフィスビルです。2014年2月に竣工された本物件は、鉄筋コンクリート造(RC造)で建てられており、新耐震基準を満た…

| 図面 |
階数 |
面積 |
賃料(共益費込) (坪単価) |
保証金/敷金 |
礼金 |
入居可能日 |
|
|
1-5階 |
G 95.48坪 (315.59m2) |
5,500,000 (57,604) |
8ヶ月 |
無 |
即日 |
|
物件番号:054734
更新日:2026/4/23
港区新橋5-13-1
【竣工】2010/3
【階建て】地上9F 、地下1F
|
【最寄駅】
|
【耐震】 |
新耐震 |
| 【基準階】 |
84.00坪 |
【エントランス】 |
平日のみ開放 |
| 【駐車場】 |
有り |
【エレベーター】 |
2基 |
新橋菊栄ビルは、東京都港区新橋5-13-1に位置する地上9階建て地下1階のオフィスビルです。2010年3月に竣工し、SRC造で建てられています。また、新耐震基準に適合しており、長期的に安心して利用…

| 図面 |
階数 |
面積 |
賃料(共益費込) (坪単価) |
保証金/敷金 |
礼金 |
入居可能日 |
|
|
5階 |
N 84.12坪 (277.69m2) |
2,103,000 (25,000) |
12ヶ月 |
無 |
2026/6/1 |
|
物件番号:059993
更新日:2026/4/27
江東区青海2-7-4
【竣工】2010/1
【階建て】地上13F 、地下1F
|
【最寄駅】
|
【耐震】 |
新耐震 |
| 【基準階】 |
696.66坪 |
【エントランス】 |
オートロック |
| 【駐車場】 |
有り |
【エレベーター】 |
5基 |
the SOHOは、東京都江東区青海に位置するデザイン性と機能性を兼ね備えたオフィスビルです。最寄りのゆりかもめ線「東京国際クルーズターミナル駅」および「テレコムセンター駅」から徒歩5分の立…

| 図面 |
階数 |
面積 |
賃料(共益費込) (坪単価) |
保証金/敷金 |
礼金 |
入居可能日 |
|
|
3階 |
G 98.11坪 (324.34m2) |
1,995,000 (20,334) |
無 |
無 |
相談 |
|
物件番号:056584
更新日:2026/5/1
台東区東上野6-2-1
【竣工】2009/10
【階建て】地上10F
|
【最寄駅】
|
【耐震】 |
新耐震 |
| 【基準階】 |
146.03坪 |
【エントランス】 |
平日のみ開放 |
| 【駐車場】 |
有り |
【エレベーター】 |
2基 |
上野エリア。浅草通り沿いの角地に建つハイグレードな賃貸オフィスビル。MPR東上野ビルは、台東区東上野6丁目、最寄駅は東京メトロ銀座線・稲荷町駅、駅から徒歩1分圏内のアクセス抜群の立地です…

| 図面 |
階数 |
面積 |
賃料(共益費込) (坪単価) |
保証金/敷金 |
礼金 |
入居可能日 |
|
|
9階 |
N 87.16坪 (288.12m2) |
|
12ヶ月 |
無 |
2026/10 |
|
物件番号:056639
更新日:2026/5/19
豊島区池袋2-6-1
【竣工】2009/3
【階建て】地上10F 、地下1F
|
【最寄駅】
|
【耐震】 |
新耐震 |
| 【基準階】 |
100.29坪 |
【エントランス】 |
全日開放(制限有) |
| 【駐車場】 |
有り |
【エレベーター】 |
2基 |
池袋駅前に位置するスタイリッシュな印象の賃貸オフィスビル。KDX池袋ビルは、豊島区池袋2-6-1にある物件です。徒歩1分圏内で東京メトロ副都心線の池袋駅、徒歩5分圏内でJR山手線・JR埼京線・東…

| 図面 |
階数 |
面積 |
賃料(共益費込) (坪単価) |
保証金/敷金 |
礼金 |
入居可能日 |
|
|
9階 |
G 100.29坪 (331.54m2) |
|
12ヶ月 |
無 |
2026/9/1 |
|
物件番号:064671
更新日:2026/5/13
港区赤坂3-17-1
【竣工】2009/1
【階建て】地上8F 、地下1F
|
【最寄駅】
|
【耐震】 |
新耐震 |
| 【基準階】 |
90.88坪 |
【エントランス】 |
平日のみ開放 |
| 【駐車場】 |
有り |
【エレベーター】 |
2基 |
港区赤坂3-17-1にある、いちご赤坂317ビルです。徒歩3分圏内で東京メトロ銀座線・東京メトロ丸ノ内線の赤坂見附駅、徒歩4分圏内で東京メトロ千代田線の赤坂駅、徒歩5分圏内で東京メトロ有楽町線…

| 図面 |
階数 |
面積 |
賃料(共益費込) (坪単価) |
保証金/敷金 |
礼金 |
入居可能日 |
|
|
3階 |
G 90.72坪 (299.90m2) |
|
(未公開) |
無 |
2026/9/1 |
|
物件番号:047665
更新日:2026/5/18
渋谷区宇田川町10-3
【竣工】2006/9(改修:2024)
【階建て】地上9F 、地下1F
|
【最寄駅】
|
【耐震】 |
新耐震 |
| 【基準階】 |
97.84坪 |
【エントランス】 |
全日開放(24h) |
| 【駐車場】 |
有り |
【エレベーター】 |
3基 |
渋谷・宇田川町エリアに立地する「VORT渋谷Ⅱ」は、井の頭通り沿いに建つデザイナーズオフィスビルです。住所は渋谷区宇田川町、最寄り駅はJR山手線・埼京線、東京メトロ銀座線・半蔵門線・副都心…

| 図面 |
階数 |
面積 |
賃料(共益費込) (坪単価) |
保証金/敷金 |
礼金 |
入居可能日 |
|
|
4階 |
G 96.93坪 (320.43m2) |
|
5ヶ月 |
1.0ヶ月 |
2026/10/1 |
|
物件番号:044852
更新日:2026/5/12
中央区日本橋本町1-9-13
【竣工】2006/3
【階建て】地上10F 、地下1F
|
【最寄駅】
|
【耐震】 |
新耐震 |
| 【基準階】 |
157.77坪 |
【エントランス】 |
平日のみ開放 |
| 【駐車場】 |
有り |
【エレベーター】 |
2基 |
日本橋本町1丁目ビルは、中央区日本橋本町に位置するハイグレードオフィスビルで、ガラスカーテンウォールを採用したモダンな外観が印象的です。構造は鉄骨・鉄骨鉄筋コンクリート造で陸屋根、…

| 図面 |
階数 |
面積 |
賃料(共益費込) (坪単価) |
保証金/敷金 |
礼金 |
入居可能日 |
|
|
8階 |
N 87.89坪 (290.56m2) |
|
12ヶ月 |
無 |
2026/10/1 |
|
物件番号:043792
更新日:2026/5/15
港区赤坂4-15-1
【竣工】2006/1
【階建て】地上19F 、地下2F
|
【最寄駅】
|
【耐震】 |
新耐震 |
| 【基準階】 |
470.08坪 |
【エントランス】 |
平日のみ開放 |
| 【駐車場】 |
有り |
【エレベーター】 |
11基 |
港区赤坂4-15-1に位置する「赤坂ガーデンシティビル」は、利便性と快適性を兼ね備えた大型賃貸オフィスビルです。2006年竣工の本物件は新耐震基準を満たしており、安心して利用できる安全性の高…

| 図面 |
階数 |
面積 |
賃料(共益費込) (坪単価) |
保証金/敷金 |
礼金 |
入居可能日 |
|
|
17階 |
G 91.29坪 (301.79m2) |
|
12ヶ月 |
無 |
即日 |
|
物件番号:043898
更新日:2026/5/12
渋谷区代々木2-11-17
【竣工】2005/11
【階建て】地上9F 、地下2F
|
【最寄駅】
|
【耐震】 |
新耐震 |
| 【基準階】 |
161.67坪 |
【エントランス】 |
全日開放(制限有) |
| 【駐車場】 |
有り |
【エレベーター】 |
2基 |
ラウンドクロス新宿ビルは、東京都渋谷区代々木2-11-17に位置する、地上9階建て、地下2階のオフィスビルです。2005年11月に竣工したSRC造の建物で、新耐震基準に対応しており、地震対策の面でも…

| 図面 |
階数 |
面積 |
賃料(共益費込) (坪単価) |
保証金/敷金 |
礼金 |
入居可能日 |
|
|
5階 |
N 80.48坪 (266.05m2) |
|
12ヶ月 |
無 |
2026/6/16 |
|
|
5階 |
N 81.18坪 (268.36m2) |
|
12ヶ月 |
無 |
2026/6/16 |
|
物件番号:041063
更新日:2026/5/9
千代田区九段南2-1-30
【竣工】2005/9
【階建て】地上12F 、地下2F
|
【最寄駅】
|
【耐震】 |
新耐震 |
| 【基準階】 |
254.16坪 |
【エントランス】 |
平日のみ開放 |
| 【駐車場】 |
有り |
【エレベーター】 |
3基 |
イタリア文化会館ビルは、千代田区九段南2丁目に位置する大型賃貸オフィスビルです。皇居の北側に位置し、春には桜の名所として知られる千鳥ヶ淵を望む立地で、四季折々の景観を楽しむことができ…

| 図面 |
階数 |
面積 |
賃料(共益費込) (坪単価) |
保証金/敷金 |
礼金 |
入居可能日 |
|
|
3階 |
N 84.45坪 (279.17m2) |
|
10ヶ月 |
無 |
即日 |
|
物件番号:053395
更新日:2026/5/1
新宿区歌舞伎町2-46-3
【竣工】2005/9(改修:2019)
【階建て】地上8F
|
【最寄駅】
|
【耐震】 |
新耐震 |
| 【基準階】 |
82.56坪 |
【エントランス】 |
全日開放(制限有) |
| 【駐車場】 |
有り |
【エレベーター】 |
1基 |
SIL新宿は、新宿区歌舞伎町2丁目46-3に位置する賃貸オフィスビルで、利便性と視認性に優れた立地が魅力です。最寄り駅である西武新宿駅から徒歩1分、都営大江戸線の新宿西口駅から徒歩5分、さら…

| 図面 |
階数 |
面積 |
賃料(共益費込) (坪単価) |
保証金/敷金 |
礼金 |
入居可能日 |
|
|
5階 |
G 82.56坪 (272.95m2) |
2,641,920 (32,000) |
12ヶ月 |
無 |
2026/7/1 |
|
物件番号:041840
更新日:2026/5/13
品川区東品川4-12-1
【竣工】2004/8
【階建て】地上18F 、地下1F
|
【最寄駅】
|
【耐震】 |
新耐震+制震 |
| 【基準階】 |
596.44坪 |
【エントランス】 |
平日のみ開放 |
| 【駐車場】 |
有り |
【エレベーター】 |
13基 |
品川区東品川4丁目にある、品川シーサイドサウスタワーです。最寄駅は、りんかい線の品川シーサイド駅です。徒歩3分圏内でアクセス可能です。京急本線の青物横丁駅も徒歩10分圏内でアクセス可能…

| 図面 |
階数 |
面積 |
賃料(共益費込) (坪単価) |
保証金/敷金 |
礼金 |
入居可能日 |
|
|
2階 |
N 85.00坪 (280.99m2) |
|
12ヶ月 |
無 |
相談 |
|
|
2階 |
N 89.00坪 (294.22m2) |
|
12ヶ月 |
無 |
相談 |
|
物件番号:083802
更新日:2026/5/11
渋谷区神宮前1-12-3
【竣工】2004/7
【階建て】地上2F 、地下1F
|
【最寄駅】
|
【耐震】 |
新耐震 |
| 【基準階】 |
|
【エントランス】 |
全日開放(24h) |
| 【駐車場】 |
無し |
【エレベーター】 |
無 |
原宿駅・明治神宮前駅から徒歩3分とアクセス良好です!コンクリート打ち放しの洗練されたデザインの建物です!大通りから1本入った立地で落ち着いた環境です!

| 図面 |
階数 |
面積 |
賃料(共益費込) (坪単価) |
保証金/敷金 |
礼金 |
入居可能日 |
|
|
B1-2階 |
G 88.18坪 (291.51m2) |
|
12ヶ月 |
無 |
即日 |
|
物件番号:003569
更新日:2026/5/20
千代田区神田須田町1-14-1
【竣工】2004/5
【階建て】地上10F 、地下1F
|
【最寄駅】
|
【耐震】 |
新耐震 |
| 【基準階】 |
80.73坪 |
【エントランス】 |
平日のみ開放 |
| 【駐車場】 |
有り |
【エレベーター】 |
2基 |
ヒューリック神田須田町ビルは、東京都千代田区神田須田町1-14-1に位置する、優れた立地条件を誇る貸事務所物件です。靖国通りに面した角地に建つこのビルは、視認性が高く、アクセスの良さが特…

| 図面 |
階数 |
面積 |
賃料(共益費込) (坪単価) |
保証金/敷金 |
礼金 |
入居可能日 |
|
|
7階 |
G 80.73坪 (266.88m2) |
2,018,250 (25,000) |
6ヶ月 |
無 |
即日 |
|
物件番号:036526
更新日:2026/5/12
江東区木場1-5-25
【竣工】2003/1
【階建て】地上21F 、地下1F
|
【最寄駅】
|
【耐震】 |
新耐震+制震 |
| 【基準階】 |
379.30坪 |
【エントランス】 |
平日のみ開放 |
| 【駐車場】 |
有り |
【エレベーター】 |
10基 |
木場エリアに位置する深川ギャザリアタワーS棟は、大型商業施設に隣接したハイグレードな賃貸オフィスビルです。所在地は江東区木場1-5-25で、三ツ目通りに面しているため視認性が高く、来訪者へ…

| 図面 |
階数 |
面積 |
賃料(共益費込) (坪単価) |
保証金/敷金 |
礼金 |
入居可能日 |
|
|
3階 |
N 85.09坪 (281.29m2) |
|
2ヶ月 |
無 |
即日 |
|
物件番号:040460
更新日:2026/5/21
品川区東品川4-12-6
【竣工】2002/9
【階建て】地上22F 、地下2F
|
【最寄駅】
|
【耐震】 |
新耐震+制震 |
| 【基準階】 |
403.31坪 |
【エントランス】 |
平日のみ開放 |
| 【駐車場】 |
有り |
【エレベーター】 |
13基 |
品川シーサイドキャナルタワーは、品川区東品川4-12-6に位置するハイグレードな賃貸オフィスビルです。最寄りのりんかい線「品川シーサイド駅」まで徒歩1分と、駅近の好立地にあります。さらに、…

| 図面 |
階数 |
面積 |
賃料(共益費込) (坪単価) |
保証金/敷金 |
礼金 |
入居可能日 |
|
|
8階 |
N 96.84坪 (320.13m2) |
|
12ヶ月 |
無 |
即日 |
|
非公開物件の賃料目安アイコン
8,000 円未満
8,000 円以上~1.0 万円未満
1.0 万以上~1.2 万円未満
1.2 万以上~1.4 万円未満
1.4 万以上~1.6 万円未満
1.6 万以上~2.0 万円未満
2.0 万以上~2.5 万円未満
2.5 万以上~3.0 万円未満
3.0 万円以上
未定
※取引態様:媒介
※フロア図面と現況が異なる場合は現況を優先いたします。
※貸室内部の写真・貸室からの景色に関しては、現在の募集フロアと異なる場合がございます。
※取引態様:媒介
その他、恵比寿・広尾・代官山の貸事務所をお探しの方はこちらをクリック

トイレ男女別貸事務所を区から探す
千代田区のトイレ男女別貸事務所
中央区のトイレ男女別貸事務所
港区のトイレ男女別貸事務所
新宿区のトイレ男女別貸事務所
渋谷区のトイレ男女別貸事務所
台東区のトイレ男女別貸事務所
品川区のトイレ男女別貸事務所
豊島区のトイレ男女別貸事務所
文京区のトイレ男女別貸事務所
目黒区のトイレ男女別貸事務所
東京都内のトイレ男女別貸事務所
恵比寿・広尾・代官山の関連特集