大型貸事務所100坪以上|港区(100坪以上)
100坪以上の面積でテナント募集している大型貸事務所、大型賃貸オフィスビルの特集です。東京都港区の最新空室情報を掲載しています。平米で換算すると約330㎡以上、約50名以上で利用する物件になります。是非、オフィス移転のご参考にしてください。
大型貸事務所100坪以上|港区
物件番号:083861
更新日:2026/4/21
港区赤坂4-1-6
【竣工】2026/1
【階建て】地上9F
|
【最寄駅】
|
【耐震】 |
新耐震 |
| 【基準階】 |
118.71坪 |
【エントランス】 |
平日のみ開放 |
| 【駐車場】 |
有り |
【エレベーター】 |
2基 |
NBL ARK TOWERは、東京都港区赤坂4-1-6に位置する地上9階建てのオフィスビルです。2026年1月に竣工し、S造で建てられています。新耐震基準に適合しており、安全性にも優れています。交通アクセス…

| 図面 |
階数 |
面積 |
賃料(共益費込) (坪単価) |
保証金/敷金 |
礼金 |
入居可能日 |
|
|
3階 |
G 118.71坪 (392.46m2) |
|
10ヶ月 |
無 |
即日 |
|
|
4階 |
G 118.71坪 (392.46m2) |
|
10ヶ月 |
無 |
即日 |
|
|
5階 |
G 118.71坪 (392.46m2) |
|
10ヶ月 |
無 |
即日 |
|
|
6階 |
G 118.71坪 (392.46m2) |
|
10ヶ月 |
無 |
即日 |
|
|
7階 |
G 118.71坪 (392.46m2) |
|
10ヶ月 |
無 |
即日 |
|
物件番号:083159
更新日:2026/4/8
港区高輪3-466-5
【竣工】2026/1
【階建て】地上10F
|
【最寄駅】
|
【耐震】 |
新耐震 |
| 【基準階】 |
277.00坪 |
【エントランス】 |
全日開放(制限有) |
| 【駐車場】 |
有り |
【エレベーター】 |
6基 |
Ave.Takanawaは、東京都港区高輪3丁目に2026年1月に竣工のオフィスビルです。JR山手線、京浜東北線、横須賀線、東海道本線および京急本線の各品川駅から徒歩4分という優れたアクセス性を誇り、都…

| 図面 |
階数 |
面積 |
賃料(共益費込) (坪単価) |
保証金/敷金 |
礼金 |
入居可能日 |
|
|
3階 |
N 278.79坪 (921.65m2) |
|
(未公開) |
無 |
即日 |
|
|
4階 |
N 278.79坪 (921.65m2) |
|
(未公開) |
無 |
即日 |
|
|
9階 |
N 278.79坪 (921.65m2) |
|
(未公開) |
無 |
即日 |
|
物件番号:082709
更新日:2026/4/6
港区西新橋3-13-3
【竣工】2025/2
【階建て】地上13F
|
【最寄駅】
|
【耐震】 |
新耐震 |
| 【基準階】 |
110.59坪 |
【エントランス】 |
オートロック |
| 【駐車場】 |
有り |
【エレベーター】 |
2基 |
BIZCORE西新橋は、東京都港区西新橋三丁目に位置する、2025年2月に竣工の地上13階建て、鉄骨造のオフィスビルです。構造は新耐震基準に準拠しており、安全性をしっかりと確保した設計が採用され…

| 図面 |
階数 |
面積 |
賃料(共益費込) (坪単価) |
保証金/敷金 |
礼金 |
入居可能日 |
|
|
2階 |
G 110.59坪 (365.59m2) |
|
(未公開) |
無 |
2026/5 予定 |
|
|
3階 |
G 110.59坪 (365.59m2) |
|
(未公開) |
無 |
2026/5 予定 |
|
|
7階 |
G 110.59坪 (365.59m2) |
|
(未公開) |
無 |
2026/5 予定 |
|
|
8階 |
G 110.59坪 (365.59m2) |
|
(未公開) |
無 |
即日 |
|
|
9階 |
G 110.59坪 (365.59m2) |
|
(未公開) |
無 |
即日 |
|
|
10階 |
G 110.59坪 (365.59m2) |
|
(未公開) |
無 |
即日 |
|
物件番号:079369
更新日:2026/4/2
港区赤坂2-17-22
【竣工】2024/8
【階建て】地上43F 、地下3F
|
【最寄駅】
|
【耐震】 |
新耐震+免震 |
| 【基準階】 |
1024.91坪 |
【エントランス】 |
全日開放(制限有) |
| 【駐車場】 |
有り |
【エレベーター】 |
39基 |
2024年8月竣工、グレード感あふれるインテリジェント賃貸オフィスビルです。赤坂トラストタワーは、東京都港区赤坂に2024年8月に竣工した新築の高層オフィスタワーです。地上43階、地下3階建ての…

| 図面 |
階数 |
面積 |
賃料(共益費込) (坪単価) |
保証金/敷金 |
礼金 |
入居可能日 |
|
|
5階 |
N 136.69坪 (451.87m2) |
|
12ヶ月 |
無 |
相談 |
|
物件番号:080277
更新日:2026/4/8
港区麻布台1-3-1
【竣工】2023/7
【階建て】地上64F 、地下5F
|
【最寄駅】
|
【耐震】 |
新耐震+制震 |
| 【基準階】 |
1440.00坪 |
【エントランス】 |
全日開放(24h) |
| 【駐車場】 |
有り |
【エレベーター】 |
31基 |
麻布台エリアに佇む、麻布台ヒルズ森JPタワーは高級感漂うハイグレードなオフィスビルです。東京の一等地、港区麻布台に位置し、徒歩圏内に東京メトロ日比谷線の神谷町駅、南北線の六本木一丁目…

| 図面 |
階数 |
面積 |
賃料(共益費込) (坪単価) |
保証金/敷金 |
礼金 |
入居可能日 |
|
|
31階 |
N 266.70坪 (881.66m2) |
|
(未公開) |
無 |
即日 |
|
物件番号:072306
更新日:2026/4/7
港区赤坂2-5-8
【竣工】2020/11
【階建て】地上12F
|
【最寄駅】
|
【耐震】 |
新耐震+免震 |
| 【基準階】 |
165.25坪 |
【エントランス】 |
平日・土開放 |
| 【駐車場】 |
有り |
【エレベーター】 |
3基 |
ヒューリックJP赤坂ビルは、東京都港区赤坂2-5-8に位置する賃貸オフィスビルです。最寄駅は東京メトロ銀座線・南北線の溜池山王駅で、徒歩2分という非常に良好なアクセス環境にあります。ビルは…

| 図面 |
階数 |
面積 |
賃料(共益費込) (坪単価) |
保証金/敷金 |
礼金 |
入居可能日 |
|
|
11階 |
N 165.25坪 (546.29m2) |
|
(未公開) |
無 |
2027/1 |
|
物件番号:067317
更新日:2026/4/7
港区芝4-13-3
【竣工】2018/2
【階建て】地上10F
|
【最寄駅】
|
【耐震】 |
新耐震 |
| 【基準階】 |
182.52坪 |
【エントランス】 |
オートロック |
| 【駐車場】 |
有り |
【エレベーター】 |
3基 |
PMO田町Ⅱは、東京都港区芝4丁目に位置するオフィスビルで、2018年2月に竣工しました。地上10階建ての鉄骨鉄筋コンクリート造(SRC造)で、新耐震基準に適合しており、耐震性と安全性に優れた設計…

| 図面 |
階数 |
面積 |
賃料(共益費込) (坪単価) |
保証金/敷金 |
礼金 |
入居可能日 |
|
|
3階 |
G 182.89坪 (604.60m2) |
|
(未公開) |
無 |
2026/10/1 |
|
物件番号:067872
更新日:2026/4/2
港区新橋3-3-13
【竣工】2017/11
【階建て】地上12F 、地下1F
|
【最寄駅】
|
【耐震】 |
新耐震 |
| 【基準階】 |
110.33坪 |
【エントランス】 |
平日のみ開放 |
| 【駐車場】 |
有り |
【エレベーター】 |
3基 |
港区新橋3丁目に位置する「Tsao Hibiya」は、交通利便性と快適なオフィス環境を兼ね備えたハイグレードな賃貸オフィスビルです。最寄駅は都営三田線・内幸町駅で、徒歩4分圏内という好立地にあり…

| 図面 |
階数 |
面積 |
賃料(共益費込) (坪単価) |
保証金/敷金 |
礼金 |
入居可能日 |
|
|
10階 |
G 110.33坪 (364.73m2) |
|
12ヶ月 |
無 |
2026/9/1 |
|
物件番号:063963
更新日:2026/4/15
港区新橋6-17-15
【竣工】2015/4
【階建て】地上8F 、地下1F
|
【最寄駅】
|
【耐震】 |
新耐震 |
| 【基準階】 |
251.86坪 |
【エントランス】 |
平日のみ開放 |
| 【駐車場】 |
有り |
【エレベーター】 |
3基 |
菱進御成門ビルは、東京都港区新橋6-17-15に位置する、最新設備を備えたモダンなオフィスビルです。2015年4月に竣工したこのビルは、地上8階、地下1階建てのS造(鉄骨造)で、新耐震基準を満たし…

| 図面 |
階数 |
面積 |
賃料(共益費込) (坪単価) |
保証金/敷金 |
礼金 |
入居可能日 |
|
|
2階 |
N 251.86坪 (832.60m2) |
|
(未公開) |
無 |
即日 |
|
物件番号:064643
更新日:2026/4/14
港区芝公園1-7-6
【竣工】2015/4
【階建て】地上10F 、地下1F
|
【最寄駅】
|
【耐震】 |
新耐震+免震 |
| 【基準階】 |
304.00坪 |
【エントランス】 |
オートロック |
| 【駐車場】 |
有り |
【エレベーター】 |
5基 |
港区芝公園1丁目にある、KDX浜松町プレイスです。最寄駅は、都営浅草線・都営大江戸線の大門駅です。徒歩3分圏内でアクセス可能です。都営三田線の御成門駅が徒歩4分圏内、JR山手線・JR京浜東北…

| 図面 |
階数 |
面積 |
賃料(共益費込) (坪単価) |
保証金/敷金 |
礼金 |
入居可能日 |
|
|
2階 |
N 207.32坪 (685.36m2) |
|
12ヶ月 |
無 |
2027/2 予定 |
|
物件番号:058771
更新日:2026/4/2
港区港南1-2-70
【竣工】2015/2
【階建て】地上32F 、地下1F
|
【最寄駅】
|
【耐震】 |
新耐震+免震 |
| 【基準階】 |
1503.00坪 |
【エントランス】 |
平日のみ開放 |
| 【駐車場】 |
有り |
【エレベーター】 |
36基 |
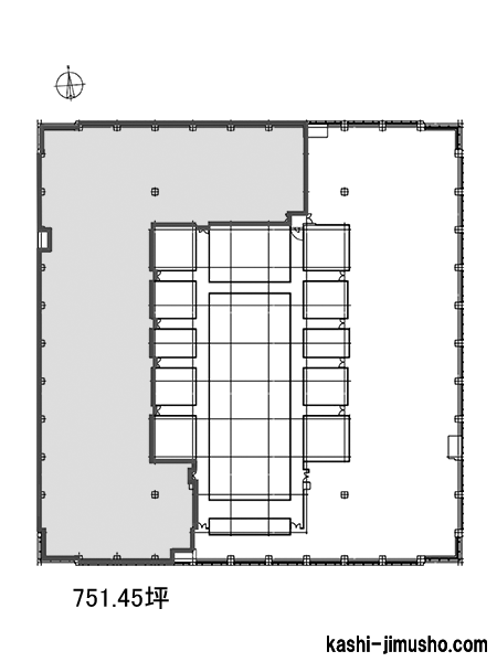
港区港南1-2-70にある、品川シーズンテラスです。徒歩6分圏内でJR山手線・JR京浜東北線・JR横須賀線・JR東海道本線・JR東海道新幹線等の品川駅がアクセス可能です。複数路線が利用可能で、国内外…

| 図面 |
階数 |
面積 |
賃料(共益費込) (坪単価) |
保証金/敷金 |
礼金 |
入居可能日 |
|
|
8階 |
G 751.45坪 (2484.14m2) |
|
12ヶ月 |
無 |
2026/10 |
|
物件番号:061987
更新日:2026/4/2
港区虎ノ門1-1-12
【竣工】2013/4
【階建て】地上10F 、地下1F
|
【最寄駅】
|
【耐震】 |
新耐震+制震 |
| 【基準階】 |
108.32坪 |
【エントランス】 |
平日のみ開放 |
| 【駐車場】 |
有り |
【エレベーター】 |
2基 |
TORANOMON BUILDINGは、洗練された外観と高機能な設備を兼ね備えた賃貸オフィスビルです。所在地は港区虎ノ門1丁目1-12で、東京メトロ銀座線の虎ノ門駅から徒歩2分、東京メトロ丸ノ内線・日比谷…

| 図面 |
階数 |
面積 |
賃料(共益費込) (坪単価) |
保証金/敷金 |
礼金 |
入居可能日 |
|
|
9階 |
N 108.32坪 (358.08m2) |
|
12ヶ月 |
無 |
2026/5/29 |
|
物件番号:057901
更新日:2026/4/8
港区六本木1-9-10
【竣工】2012/8
【階建て】地上47F 、地下4F
|
【最寄駅】
|
【耐震】 |
新耐震+制震 |
| 【基準階】 |
624.00坪 |
【エントランス】 |
平日・土開放 |
| 【駐車場】 |
有り |
【エレベーター】 |
12基 |
アークヒルズ仙石山森タワーは、東京都港区六本木1-9-10に位置する賃貸オフィスビルです。最寄り駅は南北線の六本木一丁目駅から徒歩5分、日比谷線の神谷町駅から徒歩8分と、都心の交通の便が良…

| 図面 |
階数 |
面積 |
賃料(共益費込) (坪単価) |
保証金/敷金 |
礼金 |
入居可能日 |
|
|
34階 |
N 328.20坪 (1084.96m2) |
|
(未公開) |
無 |
即日 |
|
|
35階 |
N 469.50坪 (1552.07m2) |
|
(未公開) |
無 |
即日 |
|
物件番号:059198
更新日:2026/4/8
港区赤坂2-3-5
【竣工】2011/3
【階建て】地上16F 、地下2F
|
【最寄駅】
|
【耐震】 |
新耐震+制震 |
| 【基準階】 |
235.10坪 |
【エントランス】 |
平日のみ開放 |
| 【駐車場】 |
有り |
【エレベーター】 |
7基 |
赤坂スターゲートプラザは、港区赤坂2-3-5にある物件です。最寄駅は、東京メトロ銀座線・東京メトロ南北線の溜池山王駅です。徒歩1分圏内でアクセス可能な好立地です。徒歩6分圏内で東京メトロ千…

| 図面 |
階数 |
面積 |
賃料(共益費込) (坪単価) |
保証金/敷金 |
礼金 |
入居可能日 |
|
|
6階 |
N 235.10坪 (777.19m2) |
|
12ヶ月 |
無 |
2027/4/1 |
|
|
16階 |
N 102.11坪 (337.56m2) |
|
12ヶ月 |
無 |
2026/9/1 |
|
物件番号:054974
更新日:2026/4/7
港区南青山2-2-3
【竣工】2009/11
【階建て】地上9F 、地下1F
|
【最寄駅】
|
【耐震】 |
新耐震 |
| 【基準階】 |
304.55坪 |
【エントランス】 |
平日のみ開放 |
| 【駐車場】 |
有り |
【エレベーター】 |
4基 |
東京都港区南青山2-2-3に位置する「ヒューリック青山外苑東通りビル」は、洗練されたデザインと高い利便性を兼ね備えたハイグレード賃貸オフィスビルです。2009年竣工の本物件は新耐震基準を満た…

| 図面 |
階数 |
面積 |
賃料(共益費込) (坪単価) |
保証金/敷金 |
礼金 |
入居可能日 |
|
|
3階 |
N 304.55坪 (1006.78m2) |
|
12ヶ月 |
無 |
2026/8/1 |
|
物件番号:056834
更新日:2026/4/20
港区南麻布3-20-1
【竣工】2009/9
【階建て】地上6F 、地下1F
|
【最寄駅】
|
【耐震】 |
新耐震 |
| 【基準階】 |
770.00坪 |
【エントランス】 |
平日のみ開放 |
| 【駐車場】 |
有り |
【エレベーター】 |
4基 |
Daiwa麻布テラスは、港区南麻布3丁目に位置するオフィスビルです。東京メトロ南北線・都営三田線の「白金高輪駅」から徒歩9分、東京メトロ日比谷線の「広尾駅」から徒歩13分と、複数路線が利用可…

| 図面 |
階数 |
面積 |
賃料(共益費込) (坪単価) |
保証金/敷金 |
礼金 |
入居可能日 |
|
|
3階 |
N 263.57坪 (871.32m2) |
|
12ヶ月 |
無 |
即日 |
|
物件番号:053287
更新日:2026/4/6
港区南青山3-8-38
【竣工】2008/5
【階建て】地上9F 、地下1F
|
【最寄駅】
|
【耐震】 |
新耐震 |
| 【基準階】 |
316.55坪 |
【エントランス】 |
平日・土開放 |
| 【駐車場】 |
有り |
【エレベーター】 |
4基 |
表参道グランビルは、東京都港区南青山3丁目に位置する大型の賃貸オフィスビルです。最寄駅は東京メトロ「表参道駅」で、徒歩4分圏内とアクセス良好な立地にあります。東京メトロ銀座線・半蔵門…

| 図面 |
階数 |
面積 |
賃料(共益費込) (坪単価) |
保証金/敷金 |
礼金 |
入居可能日 |
|
|
4階 |
N 316.56坪 (1046.48m2) |
|
12ヶ月 |
無 |
2026/7/1 |
|
|
5階 |
N 316.56坪 (1046.48m2) |
|
12ヶ月 |
無 |
2026/7/1 |
|
物件番号:052627
更新日:2026/4/15
港区赤坂5-3-1
【竣工】2008/1
【階建て】地上39F 、地下3F
|
【最寄駅】
|
【耐震】 |
新耐震+制震 |
| 【基準階】 |
854.13坪 |
【エントランス】 |
平日のみ開放 |
| 【駐車場】 |
有り |
【エレベーター】 |
42基 |
港区赤坂5-3-1にある、赤坂Bizタワーです。最寄駅は、東京メトロ千代田線の赤坂駅です。赤坂駅と直結しているので、雨に濡れずにビル内へアクセス可能な抜群の立地です。徒歩5分圏内で東京メ…

| 図面 |
階数 |
面積 |
賃料(共益費込) (坪単価) |
保証金/敷金 |
礼金 |
入居可能日 |
|
|
27階 |
N 571.62坪 (1889.66m2) |
|
(未公開) |
無 |
2027/1/1 |
|
|
35階 |
N 440.59坪 (1456.50m2) |
|
(未公開) |
無 |
2026/11/1 |
|
物件番号:083735
更新日:2026/4/9
港区赤坂2-17-11
【竣工】2007/3
【階建て】地上7F
|
【最寄駅】
|
【耐震】 |
新耐震 |
| 【基準階】 |
192.79坪 |
【エントランス】 |
|
| 【駐車場】 |
有り |
【エレベーター】 |
2基 |
赤坂シグマタワービルは、東京都港区赤坂2-17-11に位置する地上7階建てのオフィスビルです。2007年3月に竣工し、SRC造で建てられています。新耐震基準に適合しており、安全性にも優れています。…

| 図面 |
階数 |
面積 |
賃料(共益費込) (坪単価) |
保証金/敷金 |
礼金 |
入居可能日 |
|
|
2階 |
N 192.79坪 (637.33m2) |
|
12ヶ月 |
無 |
2027/4 |
|
|
3階 |
N 192.75坪 (637.19m2) |
|
12ヶ月 |
無 |
2027/4 |
|
|
4階 |
N 192.75坪 (637.19m2) |
|
12ヶ月 |
無 |
2027/4 |
|
|
5階 |
N 192.75坪 (637.19m2) |
|
12ヶ月 |
無 |
2027/4 |
|
|
6階 |
N 192.75坪 (637.19m2) |
|
12ヶ月 |
無 |
2027/4 |
|
|
7階 |
N 192.75坪 (637.19m2) |
|
12ヶ月 |
無 |
2027/4 |
|
物件番号:044197
更新日:2026/4/9
港区虎ノ門4-1-28
【竣工】2006/8
【階建て】地上23F 、地下3F
|
【最寄駅】
|
【耐震】 |
新耐震+制震 |
| 【基準階】 |
454.70坪 |
【エントランス】 |
平日・土開放 |
| 【駐車場】 |
有り |
【エレベーター】 |
16基 |
虎ノ門タワーズオフィスは、東京都港区虎ノ門4丁目に位置する高層オフィスビルで、洗練されたデザインと最新の設備を兼ね備えた物件です。アクセスは、東京メトロ日比谷線「神谷町駅」から徒歩4…

| 図面 |
階数 |
面積 |
賃料(共益費込) (坪単価) |
保証金/敷金 |
礼金 |
入居可能日 |
|
|
18階 |
N 477.75坪 (1579.35m2) |
|
12ヶ月 |
無 |
即日 |
|
|
19階 |
N 477.75坪 (1579.35m2) |
|
12ヶ月 |
無 |
2027/1 |
|
物件番号:056826
更新日:2026/4/15
港区白金1-17-3
【竣工】2005/11
【階建て】地上26F 、地下2F
|
【最寄駅】
|
【耐震】 |
新耐震 |
| 【基準階】 |
391.77坪 |
【エントランス】 |
平日のみ開放 |
| 【駐車場】 |
有り |
【エレベーター】 |
6基 |
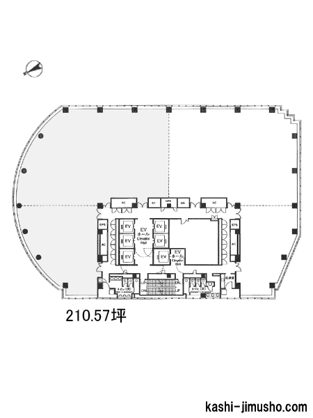
NBFプラチナタワーは、東京・港区白金の桜田通り沿いに位置する、視認性に優れた賃貸オフィスビルです。白金高輪駅と直結しており、抜群のアクセス環境を備えています。全面ガラス張りの外観から…

| 図面 |
階数 |
面積 |
賃料(共益費込) (坪単価) |
保証金/敷金 |
礼金 |
入居可能日 |
|
|
14階 |
N 210.57坪 (696.10m2) |
|
(未公開) |
無 |
2026/12/1 |
|
物件番号:037272
更新日:2026/4/2
港区浜松町1-30-5
【竣工】2004/9(改修:2021)
【階建て】地上20F 、地下1F
|
【最寄駅】
|
【耐震】 |
新耐震+制震 |
| 【基準階】 |
274.04坪 |
【エントランス】 |
平日・土開放 |
| 【駐車場】 |
有り |
【エレベーター】 |
5基 |
港区浜松町1丁目にある、浜松町スクエアです。徒歩1分圏内でJR山手線・JR京浜東北線・東京モノレール線の浜松町駅、都営浅草線・都営大江戸線の大門駅にアクセス可能です。複数路線利用可能…

| 図面 |
階数 |
面積 |
賃料(共益費込) (坪単価) |
保証金/敷金 |
礼金 |
入居可能日 |
|
|
2階 |
N 134.44坪 (444.45m2) |
|
12ヶ月 |
無 |
2026/7/1 |
|
|
9階 |
N 274.04坪 (905.92m2) |
|
12ヶ月 |
無 |
2026/8/1 |
|
物件番号:083711
更新日:2026/4/17
港区高輪2-16-3
【竣工】2003/5
【階建て】地上5F 、地下1F
|
【最寄駅】
|
【耐震】 |
新耐震 |
| 【基準階】 |
|
【エントランス】 |
全日開放(24h) |
| 【駐車場】 |
有り |
【エレベーター】 |
1基 |
ダンケ高輪ビルは、東京都港区高輪2-16-3に位置する地上5階・地下1階のオフィスビルです。2003年5月に竣工し、RC造で建てられています。新耐震基準に適合しており、安全性にも優れています。交通…

| 図面 |
階数 |
面積 |
賃料(共益費込) (坪単価) |
保証金/敷金 |
礼金 |
入居可能日 |
|
|
B1-5階 |
G 167.32坪 (553.14m2) |
2,550,000 (15,240) |
6ヶ月 |
無 |
即日 |
|
物件番号:037623
更新日:2026/4/8
港区六本木6-10-1
【竣工】2003/4
【階建て】地上54F 、地下6F
|
【最寄駅】
|
【耐震】 |
新耐震+制震 |
| 【基準階】 |
1360.00坪 |
【エントランス】 |
全日開放(制限有) |
| 【駐車場】 |
有り |
【エレベーター】 |
41基 |
港区六本木6-10-1にある、六本木ヒルズ森タワーです。東京メトロ日比谷線の六本木駅と直結しています。アクセス抜群の立地です。徒歩4分圏内で都営大江戸線の六本木駅、徒歩8分圏内で東京メトロ…

| 図面 |
階数 |
面積 |
賃料(共益費込) (坪単価) |
保証金/敷金 |
礼金 |
入居可能日 |
|
|
20階 |
N 280.00坪 (925.62m2) |
|
(未公開) |
無 |
即日 |
|
|
29階 |
N 357.90坪 (1183.15m2) |
|
(未公開) |
無 |
未定 |
|
|
29階 |
N 925.61坪 (3059.88m2) |
|
(未公開) |
無 |
即日 |
|
物件番号:002137
更新日:2026/4/7
港区港南2-16-2
【竣工】2003/3
【階建て】地上30F 、地下3F
|
【最寄駅】
|
【耐震】 |
新耐震+制震 |
| 【基準階】 |
273.56坪 |
【エントランス】 |
平日のみ開放 |
| 【駐車場】 |
有り |
【エレベーター】 |
15基 |
太陽生命品川ビルは、港区港南2丁目16番2号に位置する、大規模ハイグレード賃貸オフィスビルです。最寄駅はJR品川駅で、徒歩4分圏内という利便性の高い立地にあります。品川駅とはペデストリアン…

| 図面 |
階数 |
面積 |
賃料(共益費込) (坪単価) |
保証金/敷金 |
礼金 |
入居可能日 |
|
|
26階 |
N 309.96坪 (1024.67m2) |
|
12ヶ月 |
無 |
2026/10/1 |
|
物件番号:016179
更新日:2026/4/6
港区港南2-14-14
【竣工】2001/7
【階建て】地上9F 、地下1F
|
【最寄駅】
|
【耐震】 |
新耐震 |
| 【基準階】 |
102.86坪 |
【エントランス】 |
全日開放(制限有) |
| 【駐車場】 |
有り |
【エレベーター】 |
2基 |
品川インターシティフロントビルは、東京都港区港南2-14-14に位置する地上9階・地下1階のオフィスビルです。2001年7月に竣工し、S造で建てられています。新耐震基準に適合しており、安全性にも優…

| 図面 |
階数 |
面積 |
賃料(共益費込) (坪単価) |
保証金/敷金 |
礼金 |
入居可能日 |
|
|
6階 |
N 102.86坪 (340.03m2) |
|
(未公開) |
無 |
2026/7/1 |
|
物件番号:065076
更新日:2026/4/8
港区六本木6-11-1
【竣工】2001/7
【階建て】地上15F 、地下2F
|
【最寄駅】
|
【耐震】 |
新耐震+制震 |
| 【基準階】 |
458.70坪 |
【エントランス】 |
|
| 【駐車場】 |
有り |
【エレベーター】 |
6基 |
六本木ヒルズゲートタワーは、東京都港区六本木6-11-1に位置する地上15階建て地下2階のオフィスビルです。2001年7月に竣工し、S造で建てられています。新耐震基準に適合しており、さらに制震構造…

| 図面 |
階数 |
面積 |
賃料(共益費込) (坪単価) |
保証金/敷金 |
礼金 |
入居可能日 |
|
|
3階 |
G 368.00坪 (1216.53m2) |
|
(未公開) |
無 |
2027/4 中旬 |
|
|
4階 |
G 458.70坪 (1516.37m2) |
|
(未公開) |
無 |
2027/4 中旬 |
|
物件番号:014946
更新日:2026/4/8
港区愛宕2-5-1
【竣工】2001/7
【階建て】地上42F 、地下2F
|
【最寄駅】
|
【耐震】 |
新耐震+制震 |
| 【基準階】 |
445.60坪 |
【エントランス】 |
全日開放(制限有) |
| 【駐車場】 |
有り |
【エレベーター】 |
22基 |
愛宕グリーンヒルズMORIタワーは、港区虎ノ門2丁目に位置する、ガラス張りの外観が特徴的な高品質賃貸オフィスビルです。最寄り駅は、東京メトロ日比谷線の虎ノ門ヒルズ駅(徒歩2分)、銀座…

| 図面 |
階数 |
面積 |
賃料(共益費込) (坪単価) |
保証金/敷金 |
礼金 |
入居可能日 |
|
|
25階 |
N 136.30坪 (450.58m2) |
|
(未公開) |
無 |
2026/6 上旬 |
|
|
28階 |
N 443.60坪 (1466.45m2) |
|
(未公開) |
無 |
未定 |
|
物件番号:080346
更新日:2026/4/10
港区芝3-5-1
【竣工】2001/4
【階建て】地上7F 、地下1F
|
【最寄駅】
|
【耐震】 |
新耐震 |
| 【基準階】 |
135.85坪 |
【エントランス】 |
平日のみ開放 |
| 【駐車場】 |
有り |
【エレベーター】 |
2基 |
コーンズハウスⅡは、港区芝3-5-1に位置するスタイリッシュなオフィスビルです。前面ガラス張りのデザインが特徴で、緑豊かな芝公園エリアに囲まれた角地に立地しています。都営三田線の芝公園駅…

| 図面 |
階数 |
面積 |
賃料(共益費込) (坪単価) |
保証金/敷金 |
礼金 |
入居可能日 |
|
|
3階 |
G 135.85坪 (449.09m2) |
|
12ヶ月 |
無 |
即日 |
|
|
4階 |
G 135.85坪 (449.09m2) |
|
12ヶ月 |
無 |
即日 |
|
|
5階 |
G 135.85坪 (449.09m2) |
|
12ヶ月 |
無 |
即日 |
|
|
6階 |
G 135.85坪 (449.09m2) |
|
12ヶ月 |
無 |
即日 |
|
物件番号:010778
更新日:2026/4/13
港区台場2-3-1
【竣工】2001/2
【階建て】地上23F 、地下2F
|
【最寄駅】
|
【耐震】 |
新耐震+制震 |
| 【基準階】 |
649.85坪 |
【エントランス】 |
平日のみ開放 |
| 【駐車場】 |
有り |
【エレベーター】 |
19基 |
トレードピアお台場は、港区台場2丁目に位置する大型オフィスビルで、2001年に竣工した新耐震基準を満たした安心の建物です。構造は鉄骨鉄筋コンクリート造・地上23階建て(地下2階)で、制震構…

| 図面 |
階数 |
面積 |
賃料(共益費込) (坪単価) |
保証金/敷金 |
礼金 |
入居可能日 |
|
|
10階 |
G 111.66坪 (369.13m2) |
|
8ヶ月 |
無 |
相談 |
|
|
22階 |
G 106.12坪 (350.81m2) |
|
8ヶ月 |
無 |
即日 |
|
非公開物件の賃料目安アイコン
8,000 円未満
8,000 円以上~1.0 万円未満
1.0 万以上~1.2 万円未満
1.2 万以上~1.4 万円未満
1.4 万以上~1.6 万円未満
1.6 万以上~2.0 万円未満
2.0 万以上~2.5 万円未満
2.5 万以上~3.0 万円未満
3.0 万円以上
未定
※取引態様:媒介
※フロア図面と現況が異なる場合は現況を優先いたします。
※貸室内部の写真・貸室からの景色に関しては、現在の募集フロアと異なる場合がございます。
※取引態様:媒介
その他、港区の貸事務所をお探しの方はこちらをクリック

大型貸事務所|100坪以上
大型100坪以上の千代田区貸事務所
大型100坪以上の中央区貸事務所
大型100坪以上の港区貸事事務所
大型100坪以上の新宿区貸事務所
大型100坪以上の渋谷区貸事務所
大型100坪以上の台東区貸事務所
大型100坪以上の品川区貸事務所
大型100坪以上の豊島区貸事務所
大型100坪以上の文京区貸事務所
大型100坪以上の目黒区貸事務所
東京都内の大型100坪以上貸事務所
港区の坪数特集
港区の貸事務所検索ページ