1階の貸事務所(天王洲・品川シーサイド)(20~40坪)
天王洲・品川シーサイドエリア(品川区)にある貸事務所の中で、1階オフィスビルもしくは1Fを含む賃貸オフィス物件をあつめて掲載しています。オフィスビルの1階物件は、集客が必要な来店型オフィスとして最適です。またショールームや荷物の搬出、搬入が多い企業様も1階の賃貸事務所を探されます。さらには、内装デザインにこだわりたい!おしゃれな事務所で働きたい!そんな企業様にも1階物件はおすすめです。1階は店舗兼用であることが多く自由度の高いオフィスレイアウトが組める可能性が高いです。ぜひご参考にどうぞ!
1階貸事務所(天王洲・品川シーサイド)
総数:2棟(2件)
- 1
物件番号:022908
更新日:2026/4/22
品川区東品川2-2-8
【竣工】1993/4(改修:2015)
【階建て】地上28F 、地下2F
【最寄駅】
|
【耐震】 | 新耐震 | ||
|---|---|---|---|---|
| 【基準階】 | 312.75坪 | 【エントランス】 | 平日のみ開放 | |
| 【駐車場】 | 有り | 【エレベーター】 | 9基 |
スフィアタワー天王洲ビルは、品川区東品川2-2-8に位置する賃貸オフィスビルです。東京モノレール「天王洲アイル駅」に直結しており、徒歩1分でアクセス可能。さらに、りんかい線「天王洲アイル…

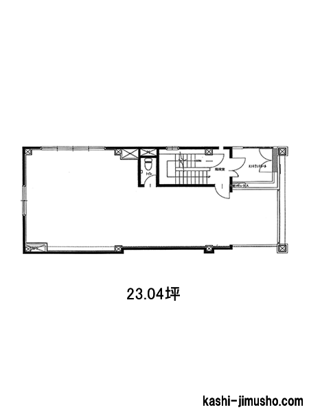
| 図面 | 階数 | 面積 | 賃料(共益費込) (坪単価) |
保証金/敷金 | 礼金 | 入居可能日 | |
|---|---|---|---|---|---|---|---|
| 1階 | N 40.25坪 (133.06m2) |
(未公開)
|
12ヶ月 | 無 | 即日 |
|
※取引態様:媒介
※フロア図面と現況が異なる場合は現況を優先いたします。
※貸室内部の写真・貸室からの景色に関しては、現在の募集フロアと異なる場合がございます。
総数:2棟(2件)
- 1
※取引態様:媒介
その他、天王洲・品川シーサイドエリアの貸事務所をお探しの方はこちらをクリック
エリアから1階貸事務所を探す
- 五反田・大崎・上大崎
- 大井町・大森
- 戸越・中延
- 天王洲・品川シーサイドの1階貸事務所

