1階の貸事務所(渋谷・神宮前)
渋谷・神宮前エリア(東京都渋谷区)にある貸事務所の中で、1階オフィスビルもしくは1Fを含む賃貸オフィス物件をあつめて掲載しています。オフィスビルの1階物件は、集客が必要な来店型オフィスとして最適です。またショールームや荷物の搬出、搬入が多い企業様も1階の賃貸事務所を探されます。さらには、内装デザインにこだわりたい!おしゃれな事務所で働きたい!そんな企業様にも1階物件はおすすめです。1階は店舗兼用であることが多く自由度の高いオフィスレイアウトが組める可能性が高いです。ぜひご参考にどうぞ!!
1階貸事務所(渋谷・神宮前)
物件番号:064333
更新日:2025/12/5
渋谷区松濤1-29-10
【竣工】2014/4
【階建て】地上3F
|
【最寄駅】
|
【耐震】 |
新耐震 |
| 【基準階】 |
|
【エントランス】 |
|
| 【駐車場】 |
無し |
【エレベーター】 |
1基 |
神泉駅をはじめ複数路線が利用できる渋谷駅も徒歩圏内です!閑静な立地に佇むマンションの1階物件です!柱も無く、スッキリした形状なので、レイアウト自在です!

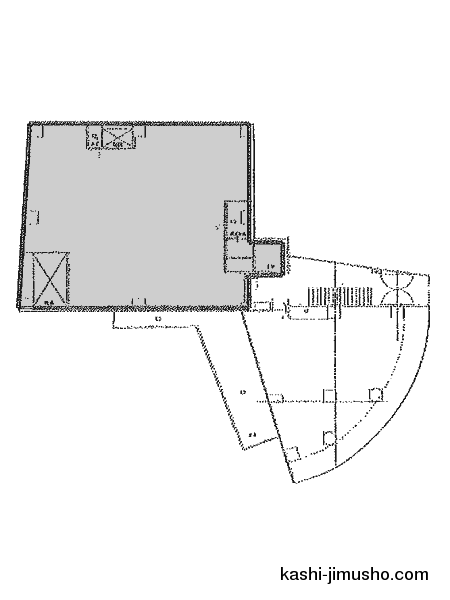
| 図面 |
階数 |
面積 |
賃料(共益費込) (坪単価) |
保証金/敷金 |
礼金 |
入居可能日 |
|
|
1階 |
G 21.92坪 (72.46m2) |
460,320 (21,000) |
2,761,920 (6ヶ月) |
1.0ヶ月 |
2026/1 下旬 |
|
|
1階 |
G 22.91坪 (75.75m2) |
481,110 (21,000) |
2,886,660 (6ヶ月) |
1.0ヶ月 |
即日 |
|
物件番号:071833
更新日:2025/11/27
渋谷区渋谷4-2-22
【竣工】2010/10(改修:2011)
【階建て】地上5F
|
【最寄駅】
|
【耐震】 |
新耐震 |
| 【基準階】 |
|
【エントランス】 |
オートロック |
| 【駐車場】 |
有り |
【エレベーター】 |
1基 |
東京都渋谷区渋谷4-2-22に位置する「TMTビル」は、2010年10月に竣工したRC(鉄筋コンクリート)造の建物で、新耐震基準に対応して設計されています。交通アクセスは非常に良好で、東京メトロ銀座…

| 図面 |
階数 |
面積 |
賃料(共益費込) (坪単価) |
保証金/敷金 |
礼金 |
入居可能日 |
|
|
1-2階 |
G 48.90坪 (161.65m2) |
1,000,000 (20,450) |
6,000,000 (6ヶ月) |
無 |
即日 |
|
物件番号:083598
更新日:2025/12/3
渋谷区東3-6-22
【竣工】2003/4
【階建て】地上8F 、地下1F
|
【最寄駅】
|
【耐震】 |
新耐震 |
| 【基準階】 |
|
【エントランス】 |
オートロック |
| 【駐車場】 |
有り |
【エレベーター】 |
有 |
共用部にフィットネスジムがあるのでリフレッシュするのに便利です!駐車場もあるので営業所には丁度良いです!渋谷駅も徒歩圏内なのでどこへでも行きやすいです!

| 図面 |
階数 |
面積 |
賃料(共益費込) (坪単価) |
保証金/敷金 |
礼金 |
入居可能日 |
|
|
1階 |
G 25.49坪 (84.27m2) |
750,000 (29,423) |
2,250,000 (3ヶ月) |
無 |
2026/1 上旬 |
|
物件番号:068831
更新日:2025/11/11
渋谷区東3-20-4
【竣工】2002/4
【階建て】地上4F
|
【最寄駅】
|
【耐震】 |
新耐震 |
| 【基準階】 |
|
【エントランス】 |
全日開放(24h) |
| 【駐車場】 |
有り |
【エレベーター】 |
無 |
オーシーシービルは、東京都渋谷区東に位置するオフィスビルで、恵比寿駅から徒歩4分という好立地が魅力の物件です。最寄りのJR山手線・埼京線、東京メトロ日比谷線「恵比寿駅」から徒歩4分、さ…

| 図面 |
階数 |
面積 |
賃料(共益費込) (坪単価) |
保証金/敷金 |
礼金 |
入居可能日 |
|
|
1-4階 |
G 44.67坪 (147.67m2) |
1,200,000 (26,864) |
7,200,000 (6ヶ月) |
1.0ヶ月 |
相談 |
|
物件番号:020994
更新日:2025/12/3
渋谷区円山町28-3
【竣工】1994/9
【階建て】地上9F 、地下2F
|
【最寄駅】
|
【耐震】 |
新耐震 |
| 【基準階】 |
100.49坪 |
【エントランス】 |
平日・土開放 |
| 【駐車場】 |
有り |
【エレベーター】 |
2基 |
いちご渋谷道玄坂ビルは、渋谷区円山町28-3に位置する賃貸オフィスビルです。この物件の最大の魅力は、抜群の交通アクセスと広々とした賃貸スペースにあります。最寄り駅は京王井の頭線の神泉駅…

| 図面 |
階数 |
面積 |
賃料(共益費込) (坪単価) |
保証金/敷金 |
礼金 |
入居可能日 |
|
|
1階 |
G 39.26坪 (129.79m2) |
|
(未公開) |
無 |
即日 |
|
物件番号:020457
更新日:2025/11/19
渋谷区渋谷1-2-5
【竣工】1992/7
【階建て】地上14F 、地下3F
|
【最寄駅】
|
【耐震】 |
新耐震 |
| 【基準階】 |
177.88坪 |
【エントランス】 |
平日のみ開放 |
| 【駐車場】 |
有り |
【エレベーター】 |
5基 |
渋谷区渋谷1丁目にある、MFPR渋谷ビルです。最寄駅は、渋谷駅です。JR山手線・東急東横線・東京メトロ銀座線・東京メトロ半蔵門線・東京メトロ副都心線等が徒歩7分圏内で利用可能となっています…

| 図面 |
階数 |
面積 |
賃料(共益費込) (坪単価) |
保証金/敷金 |
礼金 |
入居可能日 |
|
|
1階 |
N 71.29坪 (235.67m2) |
|
(未公開) |
無 |
即日 |
|
物件番号:021407
更新日:2025/11/13
渋谷区桜丘町22-14
【竣工】1992/2
【階建て】地上9F 、地下3F
|
【最寄駅】
|
【耐震】 |
新耐震 |
| 【基準階】 |
248.23坪 |
【エントランス】 |
平日・土開放 |
| 【駐車場】 |
有り |
【エレベーター】 |
4基 |
N.E.Sビルは、渋谷区桜丘町22-14にある物件です。徒歩6分圏内でJR山手線・JR埼京線・東京メトロ銀座線・東京メトロ半蔵門線・東京メトロ副都心線の渋谷駅が利用可能となっています。複数路線が利…

| 図面 |
階数 |
面積 |
賃料(共益費込) (坪単価) |
保証金/敷金 |
礼金 |
入居可能日 |
|
|
1階 |
N 63.10坪 (208.60m2) |
1,577,500 (25,000) |
15,775,000 (10ヶ月) |
1.0ヶ月 |
即日 |
|
物件番号:020398
更新日:2025/12/2
渋谷区渋谷4-2-12
【竣工】1992/1(改修:2017)
【階建て】地上4F 、地下1F
|
【最寄駅】
|
【耐震】 |
新耐震 |
| 【基準階】 |
196.30坪 |
【エントランス】 |
全日開放(制限有) |
| 【駐車場】 |
有り |
【エレベーター】 |
2基 |
EDGE南青山は、渋谷区渋谷4-2-12にある物件です。徒歩8分圏内で東京メトロ銀座線・東京メトロ半蔵門線・東京メトロ千代田線の表参道駅が利用可能となっています。複数路線が利用可能でアクセス良…

| 図面 |
階数 |
面積 |
賃料(共益費込) (坪単価) |
保証金/敷金 |
礼金 |
入居可能日 |
|
|
1階 |
G 113.60坪 (375.54m2) |
|
12ヶ月 |
無 |
2026/1/24 |
|
物件番号:022216
更新日:2025/11/25
渋谷区東3-22-14
【竣工】1990/12
【階建て】地上8F
|
【最寄駅】
|
【耐震】 |
新耐震 |
| 【基準階】 |
63.00坪 |
【エントランス】 |
全日開放(制限有) |
| 【駐車場】 |
無し |
【エレベーター】 |
1基 |
グランファースト恵比寿は、東京都渋谷区東3-22-14に位置する地上8階建てのオフィスビルで、都心の人気エリア「恵比寿」にあります。アクセス面でも非常に優れており、日比谷線恵比寿駅から徒歩5…

| 図面 |
階数 |
面積 |
賃料(共益費込) (坪単価) |
保証金/敷金 |
礼金 |
入居可能日 |
|
|
1階 |
G 26.29坪 (86.92m2) |
1,050,000 (39,939) |
無 |
無 |
2026/1 上旬 |
|
物件番号:022075
更新日:2025/11/10
渋谷区東1-32-12
【竣工】1990/12
【階建て】地上15F 、地下2F
|
【最寄駅】
|
【耐震】 |
新耐震 |
| 【基準階】 |
286.54坪 |
【エントランス】 |
全日開放(制限有) |
| 【駐車場】 |
有り |
【エレベーター】 |
6基 |
渋谷プロパティータワーは、渋谷区東1丁目に位置するハイグレードな賃貸オフィスビルです。最寄り駅は渋谷駅で、JR各線(山手線・埼京線・湘南新宿ライン)をはじめ、東京メトロ副都心線・銀座線…

| 図面 |
階数 |
面積 |
賃料(共益費込) (坪単価) |
保証金/敷金 |
礼金 |
入居可能日 |
|
|
1階 |
N 68.59坪 (226.77m2) |
|
12ヶ月 |
無 |
2026/3/1 |
|
物件番号:019783
更新日:2025/12/1
渋谷区神宮前2-30-32
【竣工】1988/6
【階建て】地上7F
|
【最寄駅】
|
【耐震】 |
新耐震 |
| 【基準階】 |
|
【エントランス】 |
|
| 【駐車場】 |
- |
【エレベーター】 |
有 |
明るい陽射しが差し込む、開放感あふれるオフィス空間。パークレーンプラザは、採光性に優れた大きなガラス面が特徴の、神宮前エリアに佇む事務所物件です。副都心線「北参道駅」から徒歩6分、JR…

| 図面 |
階数 |
面積 |
賃料(共益費込) (坪単価) |
保証金/敷金 |
礼金 |
入居可能日 |
|
|
1階 |
G 201.55坪 (666.27m2) |
|
12ヶ月 |
無 |
即日 |
|
物件番号:021482
更新日:2025/11/14
渋谷区桜丘町24-4
【竣工】1982/3(改修:2004)
【階建て】地上6F 、地下1F
|
【最寄駅】
|
【耐震】 |
|
| 【基準階】 |
164.29坪 |
【エントランス】 |
平日のみ開放 |
| 【駐車場】 |
有り |
【エレベーター】 |
2基 |
ビッグターミナル渋谷駅から徒歩6分の好立地です!さくら坂に面した立地!春には桜が楽しめます!OAフロア、男女別トイレ、光ファイバー完備です!

| 図面 |
階数 |
面積 |
賃料(共益費込) (坪単価) |
保証金/敷金 |
礼金 |
入居可能日 |
|
|
1階 |
G 32.41坪 (107.14m2) |
|
12ヶ月 |
無 |
2026/2 |
|
物件番号:020792
更新日:2025/11/12
渋谷区渋谷2-15-1
【竣工】1976/4
【階建て】地上32F 、地下3F
|
【最寄駅】
|
【耐震】 |
旧耐震+補強済 or 基準OK |
| 【基準階】 |
312.70坪 |
【エントランス】 |
全日開放(制限有) |
| 【駐車場】 |
有り |
【エレベーター】 |
13基 |
東京都渋谷区渋谷2-15-1に位置する「渋谷クロスタワー」は、1976年4月に竣工した地上32階、地下3階建ての超高層ビルで、S(鉄骨)造の堅牢な構造が特徴です。渋谷駅から徒歩5分以内という好立地…

| 図面 |
階数 |
面積 |
賃料(共益費込) (坪単価) |
保証金/敷金 |
礼金 |
入居可能日 |
|
|
1-2階 |
N 159.19坪 (526.25m2) |
|
12ヶ月 |
無 |
即日 |
|
物件番号:046590
更新日:2025/11/21
渋谷区神泉町16-12
【竣工】1966/9(改修:2020)
【階建て】地上7F
|
【最寄駅】
|
【耐震】 |
旧耐震+補強済 or 基準OK |
| 【基準階】 |
|
【エントランス】 |
全日開放(24h) |
| 【駐車場】 |
有り |
【エレベーター】 |
1基 |
光和パレスは、東京都渋谷区神泉町16-12に位置する地上7階建てのオフィスビルです。1966年9月に竣工しており、RC造(鉄筋コンクリート造)で建てられています。最寄り駅は京王井の頭線「神泉駅」…

| 図面 |
階数 |
面積 |
賃料(共益費込) (坪単価) |
保証金/敷金 |
礼金 |
入居可能日 |
|
|
1階 |
G 21.30坪 (70.42m2) |
320,000 (15,024) |
1,800,000 (6ヶ月) |
無 |
即日 |
|
物件番号:069581
更新日:2025/11/27
渋谷区猿楽町12-1
【竣工】1956/8
【階建て】地上5F
|
【最寄駅】
|
【耐震】 |
旧耐震 |
| 【基準階】 |
|
【エントランス】 |
全日開放(24h) |
| 【駐車場】 |
有り |
【エレベーター】 |
無 |
代官山コーポラスは、東京都渋谷区猿楽町12-1に位置する地上5階建てのビルです。1956年8月に竣工し、RC造(鉄筋コンクリート造)で建てられています。最寄り駅は渋谷駅と代官山駅の両方が利用可…

| 図面 |
階数 |
面積 |
賃料(共益費込) (坪単価) |
保証金/敷金 |
礼金 |
入居可能日 |
|
|
1-2階 |
G 20.89坪 (69.07m2) |
318,182 (15,231) |
1,272,728 (4ヶ月) |
2.0ヶ月 |
即日 |
|
物件番号:083445
更新日:2025/11/19
渋谷区神宮前3-22-12
【竣工】2026/6
【階建て】地上5F
|
【最寄駅】
|
【耐震】 |
|
| 【基準階】 |
|
【エントランス】 |
|
| 【駐車場】 |
- |
【エレベーター】 |
未調査 |
| 図面 |
階数 |
面積 |
賃料(共益費込) (坪単価) |
保証金/敷金 |
礼金 |
入居可能日 |
|
|
1階 |
G 25.40坪 (83.97m2) |
|
(未公開) |
無 |
2026/6 予定 |
|
|
1階 |
G 31.20坪 (103.14m2) |
|
(未公開) |
無 |
2026/6 予定 |
|
|
1階 |
G 33.00坪 (109.09m2) |
|
(未公開) |
無 |
2026/6 予定 |
|
物件番号:083412
更新日:2025/11/19
渋谷区松濤2-15-13
【竣工】2011/5(改修:2025)
【階建て】地上6F 、地下1F
|
【最寄駅】
|
【耐震】 |
新耐震 |
| 【基準階】 |
|
【エントランス】 |
|
| 【駐車場】 |
有り |
【エレベーター】 |
2基 |
落ち着きと高級感が漂う渋谷・松濤エリアに誕生する「(仮称)X-BASE SHIBUYA」は、ビジネスの新たな拠点として注目されるフルリノベーション済みのセットアップオフィスです。松濤二丁目交差点…

| 図面 |
階数 |
面積 |
賃料(共益費込) (坪単価) |
保証金/敷金 |
礼金 |
入居可能日 |
|
|
1階 |
N 54.84坪 (181.29m2) |
2,030,448 (37,025) |
12,182,688 (6ヶ月) |
無 |
2026/1/13 |
|
|
1階 |
N 56.02坪 (185.19m2) |
2,074,464 (37,031) |
12,446,784 (6ヶ月) |
無 |
2026/1/13 |
|
物件番号:083446
更新日:2025/11/19
渋谷区神宮前1-8-17
【竣工】未調査
【階建て】地上3F
|
【最寄駅】
|
【耐震】 |
新耐震 |
| 【基準階】 |
|
【エントランス】 |
|
| 【駐車場】 |
- |
【エレベーター】 |
未調査 |
| 図面 |
階数 |
面積 |
賃料(共益費込) (坪単価) |
保証金/敷金 |
礼金 |
入居可能日 |
|
|
1-3階 |
G 132.19坪 (436.99m2) |
7,931,400 (60,000) |
(未公開) |
(未公開) |
相談 |
|
※取引態様:媒介
※フロア図面と現況が異なる場合は現況を優先いたします。
※貸室内部の写真・貸室からの景色に関しては、現在の募集フロアと異なる場合がございます。
※取引態様:媒介
その他、渋谷・神宮前エリアの貸事務所をお探しの方はこちらをクリック

エリアから1階貸事務所を探す
千代田区の1階貸事務所
中央区の1階貸事務所
港区の1階貸事務所
新宿区の1階貸事務所
渋谷区の1階貸事務所
台東区の1階貸事務所
品川区の1階貸事務所
豊島区の1階貸事務所
文京区の1階貸事務所
目黒区の1階貸事務所
東京都内の1階貸事務所
渋谷・神宮前の関連特集