1階の貸事務所(番町・麹町・永田町)
番町・麹町・永田町エリア(東京都千代田区)にある貸事務所の中で、1階オフィスビルもしくは1Fを含む賃貸オフィス物件をあつめて掲載しています。オフィスビルの1階物件は、集客が必要な来店型オフィスとして最適です。またショールームや荷物の搬出、搬入が多い企業様も1階の賃貸事務所を探されます。さらには、内装デザインにこだわりたい!おしゃれな事務所で働きたい!そんな企業様にも1階物件はおすすめです。1階は店舗兼用であることが多く自由度の高いオフィスレイアウトが組める可能性が高いです。ぜひご参考にどうぞ!
1階貸事務所(番町・麹町・永田町)
物件番号:057531
更新日:2025/12/1
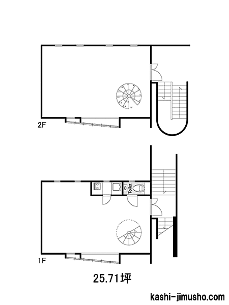
千代田区永田町2-4-8
【竣工】2010/1
【階建て】地上8F 、地下1F
|
【最寄駅】
|
【耐震】 |
新耐震 |
| 【基準階】 |
188.00坪 |
【エントランス】 |
平日・土開放 |
| 【駐車場】 |
有り |
【エレベーター】 |
2基 |
ニッセイ永田町ビルは、千代田区永田町2丁目に位置する賃貸オフィスビルです。最寄駅は東京メトロ銀座線・南北線の溜池山王駅で、徒歩2分というアクセス至便な立地が大きな魅力です。さらに、徒…

| 図面 |
階数 |
面積 |
賃料(共益費込) (坪単価) |
保証金/敷金 |
礼金 |
入居可能日 |
|
|
1階 |
N 110.00坪 (362.05m2) |
|
(未公開) |
無 |
即日 |
|
物件番号:052262
更新日:2025/11/19
千代田区三番町7-14
【竣工】2007/4
【階建て】地上6F
|
【最寄駅】
|
【耐震】 |
新耐震 |
| 【基準階】 |
51.42坪 |
【エントランス】 |
全日開放(制限有) |
| 【駐車場】 |
有り |
【エレベーター】 |
1基 |
千代田区三番町7-14にある、メットライフ三番町ビルです。徒歩5分圏内で東京メトロ半蔵門線の半蔵門駅、都営新宿線の市ヶ谷駅、徒歩7分圏内で東京メトロ有楽町線の麹町駅、JR総武線・東京メトロ…

| 図面 |
階数 |
面積 |
賃料(共益費込) (坪単価) |
保証金/敷金 |
礼金 |
入居可能日 |
|
|
1階 |
G 22.49坪 (74.38m2) |
|
(未公開) |
無 |
2026/4/15 |
|
物件番号:000048
更新日:2025/12/1
千代田区一番町22-4
【竣工】2005/2
【階建て】地上5F 、地下1F
|
【最寄駅】
|
【耐震】 |
新耐震 |
| 【基準階】 |
50.54坪 |
【エントランス】 |
オートロック |
| 【駐車場】 |
有り |
【エレベーター】 |
1基 |
一番町館は、東京都千代田区一番町に位置する低層型のオフィスビルで、落ち着いた住環境の中にありながら、都心ならではの利便性も兼ね備えたバランスの良い物件です。最寄りの半蔵門線「半蔵門…

| 図面 |
階数 |
面積 |
賃料(共益費込) (坪単価) |
保証金/敷金 |
礼金 |
入居可能日 |
|
|
1階 |
G 46.16坪 (152.62m2) |
923,200 (20,000) |
4,616,000 (5ヶ月) |
1.0ヶ月 |
即日 |
|
物件番号:000246
更新日:2025/11/25
千代田区五番町1-11
【竣工】1993/11
【階建て】地上5F
|
【最寄駅】
|
【耐震】 |
新耐震 |
| 【基準階】 |
64.47坪 |
【エントランス】 |
平日のみ開放 |
| 【駐車場】 |
無し |
【エレベーター】 |
1基 |
JRと地下鉄の利用出来る市ヶ谷駅から徒歩1分です!ガラス張りで洗練された印象のオフィスビルです!機械警備、光ファイバーの設備を完備しています!

| 図面 |
階数 |
面積 |
賃料(共益費込) (坪単価) |
保証金/敷金 |
礼金 |
入居可能日 |
|
|
1階 |
G 57.67坪 (190.66m2) |
|
12ヶ月 |
無 |
2026/5 中旬 |
|
物件番号:000546
更新日:2025/11/13
千代田区麹町2-10-7
【竣工】1993/11
【階建て】地上6F
|
【最寄駅】
|
【耐震】 |
新耐震 |
| 【基準階】 |
58.85坪 |
【エントランス】 |
平日のみ開放 |
| 【駐車場】 |
有り |
【エレベーター】 |
1基 |
麹町スカイフィールドは、東京都千代田区麹町2丁目に位置する、重厚感のある外観が印象的なオフィスビルです。1993年11月に竣工したSRC造の6階建てで、新耐震基準に適合しているため、安全性にも…

| 図面 |
階数 |
面積 |
賃料(共益費込) (坪単価) |
保証金/敷金 |
礼金 |
入居可能日 |
|
|
1階 |
G 54.07坪 (178.75m2) |
|
12ヶ月 |
無 |
即日 |
|
物件番号:000368
更新日:2025/12/2
千代田区麹町3-5
【竣工】1992/8
【階建て】地上9F 、地下2F
|
【最寄駅】
|
【耐震】 |
新耐震 |
| 【基準階】 |
134.30坪 |
【エントランス】 |
平日のみ開放 |
| 【駐車場】 |
有り |
【エレベーター】 |
2基 |
麴町シルクビルは東京都千代田区麹町3-5にある賃貸オフィスビルです。新宿通りから一本入った場所に位置するビルです。重厚な石造りでガラス張りが綺麗なビルです。エントランスホールは大理石を…

| 図面 |
階数 |
面積 |
賃料(共益費込) (坪単価) |
保証金/敷金 |
礼金 |
入居可能日 |
|
|
1階 |
G 62.08坪 (205.22m2) |
1,142,272 (18,400) |
9,500,000 (153,028) |
無 |
即日 |
|
物件番号:000122
更新日:2025/11/28
千代田区二番町12-13
【竣工】1991/4
【階建て】地上5F 、地下1F
|
【最寄駅】
|
【耐震】 |
新耐震 |
| 【基準階】 |
58.57坪 |
【エントランス】 |
|
| 【駐車場】 |
有り |
【エレベーター】 |
1基 |
セブネスビルは、東京都千代田区二番町12-13に位置する高品質な賃貸オフィスビルです。このビルは1991年に竣工し、新耐震基準を満たした鉄筋コンクリート造の地上5階建て(地下1階)の構造を持っ…

| 図面 |
階数 |
面積 |
賃料(共益費込) (坪単価) |
保証金/敷金 |
礼金 |
入居可能日 |
|
|
1階 |
G 44.15坪 (145.95m2) |
883,000 (20,000) |
10,596,000 (12ヶ月) |
無 |
2026/4/1 |
|
物件番号:000586
更新日:2025/11/14
千代田区紀尾井町3-28
【竣工】1990/12
【階建て】地上10F
|
【最寄駅】
|
【耐震】 |
新耐震 |
| 【基準階】 |
42.51坪 |
【エントランス】 |
平日・土開放 |
| 【駐車場】 |
無し |
【エレベーター】 |
1基 |
アドミラル紀尾井町ビルは、東京都千代田区紀尾井町に位置し、落ち着いたビジネス環境が整うオフィスビルです。最寄りの東京メトロ有楽町線「麹町駅」から徒歩3分、さらに「永田町駅」も徒歩4分…

| 図面 |
階数 |
面積 |
賃料(共益費込) (坪単価) |
保証金/敷金 |
礼金 |
入居可能日 |
|
|
1階 |
G 24.35坪 (80.49m2) |
657,444 (27,000) |
3,506,400 (6ヶ月) |
無 |
2026/4/1 |
|
物件番号:058432
更新日:2025/11/27
千代田区紀尾井町1-11
【竣工】1990/7
【階建て】地上4F 、地下1F
|
【最寄駅】
|
【耐震】 |
新耐震 |
| 【基準階】 |
36.72坪 |
【エントランス】 |
|
| 【駐車場】 |
無し |
【エレベーター】 |
1基 |
ウスイ紀尾井町ビルは、東京都千代田区紀尾井町1-11に位置するオフィスビルで、1990年7月に竣工しました。地上4階、地下1階建てのRC造(鉄筋コンクリート造)で、新耐震基準を満たしており、現代…

| 図面 |
階数 |
面積 |
賃料(共益費込) (坪単価) |
保証金/敷金 |
礼金 |
入居可能日 |
|
|
1階 |
G 25.30坪 (83.63m2) |
430,100 (17,000) |
2,580,600 (6ヶ月) |
無 |
即日 |
|
物件番号:000334
更新日:2025/12/2
千代田区麹町1-8-1
【竣工】1989/10(改修:2025)
【階建て】地上7F
|
【最寄駅】
|
【耐震】 |
新耐震 |
| 【基準階】 |
40.94坪 |
【エントランス】 |
全日開放(制限有) |
| 【駐車場】 |
無し |
【エレベーター】 |
1基 |
麹町駅より徒歩1分圏内の好立地。2面採光の明るい貸事務所。半蔵門MKビルは千代田区麹町1-8-1の物件です。最寄駅は東京メトロ半蔵門線 半蔵門駅。半蔵門駅地下鉄a3出口より徒歩1分圏内の好立地で…

| 図面 |
階数 |
面積 |
賃料(共益費込) (坪単価) |
保証金/敷金 |
礼金 |
入居可能日 |
|
|
1階 |
G 32.35坪 (106.94m2) |
905,800 (28,000) |
5,434,800 (6ヶ月) |
無 |
2025/12 下旬 |
|
物件番号:000172
更新日:2025/11/14
千代田区三番町24-14
【竣工】1989/1(改修:2016)
【階建て】地上7F
|
【最寄駅】
|
【耐震】 |
新耐震 |
| 【基準階】 |
66.82坪 |
【エントランス】 |
全日開放(制限有) |
| 【駐車場】 |
有り |
【エレベーター】 |
1基 |
三番町ABCビルは、東京都千代田区三番町24-14に位置するインテリジェントオフィスです。市ヶ谷エリアにあり、大妻通りに面した落ち着いた環境の中に建つ賃貸オフィスビルです。外観は落ち着いた…

| 図面 |
階数 |
面積 |
賃料(共益費込) (坪単価) |
保証金/敷金 |
礼金 |
入居可能日 |
|
|
1階 |
G 44.55坪 (147.30m2) |
668,250 (15,000) |
4,009,500 (6ヶ月) |
無 |
即日 |
|
物件番号:000599
更新日:2025/11/13
千代田区紀尾井町3-23
【竣工】1987/6
【階建て】地上8F 、地下1F
|
【最寄駅】
|
【耐震】 |
新耐震 |
| 【基準階】 |
285.16坪 |
【エントランス】 |
平日・土開放 |
| 【駐車場】 |
有り |
【エレベーター】 |
3基 |
麹町駅近くに位置する、重厚感のある賃貸オフィスビルです。文藝春秋ビル新館は、千代田区紀尾井町3-23にある物件です。徒歩2分圏内で東京メトロ有楽町線の麹町駅、徒歩4分圏内で東京メトロ半蔵…

| 図面 |
階数 |
面積 |
賃料(共益費込) (坪単価) |
保証金/敷金 |
礼金 |
入居可能日 |
|
|
1階 |
G 54.15坪 (179.04m2) |
|
10ヶ月 |
無 |
2026/1 予定 |
|
物件番号:035170
更新日:2025/11/13
千代田区麹町3-5-7
【竣工】1986/9
【階建て】地上7F 、地下1F
|
【最寄駅】
|
【耐震】 |
新耐震 |
| 【基準階】 |
91.62坪 |
【エントランス】 |
平日のみ開放 |
| 【駐車場】 |
有り |
【エレベーター】 |
1基 |
全共連ビル麹町館は、千代田区麹町3-5-7に位置する白を基調にしたタイル張りの賃貸オフィスビルです。麹町エリアにあり、徒歩1分で東京メトロ有楽町線の麹町駅、徒歩3分で東京メトロ半蔵門線の半…

| 図面 |
階数 |
面積 |
賃料(共益費込) (坪単価) |
保証金/敷金 |
礼金 |
入居可能日 |
|
|
1階 |
G 51.76坪 (171.11m2) |
|
12ヶ月 |
無 |
即日 |
|
物件番号:000171
更新日:2025/12/1
千代田区三番町1-1
【竣工】1984/8
【階建て】地上8F 、地下1F
|
【最寄駅】
|
【耐震】 |
新耐震 |
| 【基準階】 |
102.64坪 |
【エントランス】 |
平日のみ開放 |
| 【駐車場】 |
有り |
【エレベーター】 |
2基 |
"Y三番町ビルは、千代田区三番町1に位置する賃貸オフィスビルです。内堀通り沿いの角地に建ち、視認性の高い立地は来訪者への案内もしやすく、企業の拠点としても好印象を与えます。落ち着いた色…

| 図面 |
階数 |
面積 |
賃料(共益費込) (坪単価) |
保証金/敷金 |
礼金 |
入居可能日 |
|
|
1階 |
G 102.64坪 (339.31m2) |
1,847,520 (18,000) |
14,780,160 (8ヶ月) |
無 |
即日 |
|
物件番号:000462
更新日:2025/11/21
千代田区麹町1-5-4
【竣工】1982/3
【階建て】地上10F 、地下1F
|
【最寄駅】
|
【耐震】 |
旧耐震 |
| 【基準階】 |
150.00坪 |
【エントランス】 |
オートロック |
| 【駐車場】 |
無し |
【エレベーター】 |
1基 |
「ライオンズステーションプラザ半蔵門」は、東京都千代田区麹町1丁目に位置する地上10階・地下1階建てのオフィスビルです。1982年3月に竣工し、SRC(鉄骨鉄筋コンクリート)造で建てられていま…

| 図面 |
階数 |
面積 |
賃料(共益費込) (坪単価) |
保証金/敷金 |
礼金 |
入居可能日 |
|
|
1階 |
G 51.08坪 (168.87m2) |
1,150,000 (22,513) |
9,000,000 (10ヶ月) |
1.0ヶ月 |
相談 |
|
物件番号:000789
更新日:2025/11/12
千代田区永田町2-14-2
【竣工】1966/9
【階建て】地上9F 、地下3F
|
【最寄駅】
|
【耐震】 |
旧耐震+補強済 or 基準OK |
| 【基準階】 |
699.00坪 |
【エントランス】 |
平日・土開放 |
| 【駐車場】 |
有り |
【エレベーター】 |
7基 |
千代田区永田町2-14-2にある、山王グランドビルです。東京メトロ銀座線の赤坂見附駅からすぐの立地にある賃貸オフィスビルです。その他に、東京メトロ有楽町線・半蔵門線・南北線の永田町駅、東…

| 図面 |
階数 |
面積 |
賃料(共益費込) (坪単価) |
保証金/敷金 |
礼金 |
入居可能日 |
|
|
1階 |
N 95.97坪 (317.26m2) |
|
(未公開) |
無 |
相談 |
|
物件番号:083582
更新日:2025/12/2
千代田区紀尾井町3-27
【竣工】2026/3
【階建て】地上8F 、地下1F
|
【最寄駅】
|
【耐震】 |
新耐震 |
| 【基準階】 |
|
【エントランス】 |
平日のみ開放 |
| 【駐車場】 |
有り |
【エレベーター】 |
3基 |
複数路線が利用可能、交通アクセス良好です。2階には講堂ゾーンやラウンジを設置、充実したオフィス環境です。EV3基で館内の移動はスムーズ!貸室は天井高2,800mm、LED照明完備です。

| 図面 |
階数 |
面積 |
賃料(共益費込) (坪単価) |
保証金/敷金 |
礼金 |
入居可能日 |
|
|
1階 |
N 47.10坪 (155.70m2) |
|
12ヶ月 |
無 |
2026/4 |
|
※取引態様:媒介
※フロア図面と現況が異なる場合は現況を優先いたします。
※貸室内部の写真・貸室からの景色に関しては、現在の募集フロアと異なる場合がございます。
※取引態様:媒介
その他、番町・麹町・永田町エリアの貸事務所をお探しの方はこちらをクリック

エリアから1階貸事務所を探す
千代田区の1階貸事務所
中央区の1階貸事務所
港区の1階貸事務所
新宿区の1階貸事務所
渋谷区の1階貸事務所
台東区の1階貸事務所
品川区の1階貸事務所
豊島区の1階貸事務所
文京区の1階貸事務所
目黒区の1階貸事務所
東京都内の1階貸事務所
番町・麹町・永田町エリアの駅
番町・麹町・永田町の近隣エリア