トイレ男女別の貸事務所(小伝馬町・人形町)(40~60坪)
小伝馬町・人形町エリア にあるトイレが男女別の貸事務所を掲載しています。特に、女性のお客様が重要視するのがオフィスビルのトイレです。男性と同じトイレは敬遠されることが多く、男女別のトイレを希望するお客様がいらっしゃいます。そこで女性社員の快適性を考えトイレが男女別の貸事務所をご紹介します。
小伝馬町・人形町の男女別トイレ貸事務所
物件番号:083847
更新日:2026/4/23
中央区日本橋横山町6-8
【竣工】2023/6
【階建て】地上5F
|
【最寄駅】
|
【耐震】 |
新耐震 |
| 【基準階】 |
56.29坪 |
【エントランス】 |
オートロック |
| 【駐車場】 |
無し |
【エレベーター】 |
1基 |
馬喰町駅徒歩1分の好立地、複数路線が利用可能です。ワンフロア・ワンテナントの独立性の高い貸室です。天井高3m超の開放的な室内空間です。

| 図面 |
階数 |
面積 |
賃料(共益費込) (坪単価) |
保証金/敷金 |
礼金 |
入居可能日 |
|
|
3階 |
G 56.29坪 (186.09m2) |
1,100,000 (19,542) |
6ヶ月 |
3.0ヶ月 |
相談 |
|
物件番号:076126
更新日:2026/4/8
中央区東日本橋2-22
【竣工】2021/4
【階建て】地上8F
|
【最寄駅】
|
【耐震】 |
新耐震 |
| 【基準階】 |
84.27坪 |
【エントランス】 |
全日開放(制限有) |
| 【駐車場】 |
有り |
【エレベーター】 |
2基 |
クロスシー東日本橋ビルは、中央区東日本橋2丁目に位置する、ガラス張りのユニークで洗練されたデザインが目を引く最新鋭のオフィスビルです。2021年4月に竣工した本物件は、鉄骨造・地上8階建て…

| 図面 |
階数 |
面積 |
賃料(共益費込) (坪単価) |
保証金/敷金 |
礼金 |
入居可能日 |
|
|
1階 |
G 48.75坪 (161.16m2) |
|
5ヶ月 |
無 |
2026/6/1 |
|
物件番号:070749
更新日:2026/4/15
中央区日本橋馬喰町1-5-12
【竣工】2019/12
【階建て】地上11F
|
【最寄駅】
|
【耐震】 |
新耐震 |
| 【基準階】 |
58.16坪 |
【エントランス】 |
平日のみ開放 |
| 【駐車場】 |
有り |
【エレベーター】 |
1基 |
CIRCLES日本橋馬喰町(サークルズニホンバシバクロチョウ)は、中央区日本橋馬喰町1丁目に位置する、馬喰町駅至近の視認性に優れたスタイリッシュな賃貸オフィスビルです。清洲橋通りに面した角…

| 図面 |
階数 |
面積 |
賃料(共益費込) (坪単価) |
保証金/敷金 |
礼金 |
入居可能日 |
|
|
7階 |
G 58.16坪 (192.29m2) |
|
6ヶ月 |
無 |
即日 |
|
物件番号:037832
更新日:2026/4/13
中央区日本橋小伝馬町15-19
【竣工】2007/11
【階建て】地上9F
|
【最寄駅】
|
【耐震】 |
新耐震 |
| 【基準階】 |
55.37坪 |
【エントランス】 |
全日開放(24h) |
| 【駐車場】 |
無し |
【エレベーター】 |
1基 |
江戸通りに面した個性的でスタイリッシュな賃貸オフィスビル。ルミナスビルは、中央区日本橋小伝馬町15、最寄駅は東京メトロ日比谷線・小伝馬町駅から徒歩2分圏内。江戸通りに面した視認性の高い…

| 図面 |
階数 |
面積 |
賃料(共益費込) (坪単価) |
保証金/敷金 |
礼金 |
入居可能日 |
|
|
4階 |
G 55.37坪 (183.04m2) |
|
12ヶ月 |
無 |
2026/6/1 |
|
物件番号:009910
更新日:2026/4/28
中央区日本橋富沢町10-14
【竣工】1994/3(改修:2020)
【階建て】地上8F 、地下1F
|
【最寄駅】
|
【耐震】 |
新耐震 |
| 【基準階】 |
68.20坪 |
【エントランス】 |
|
| 【駐車場】 |
有り |
【エレベーター】 |
1基 |
日本橋BSビルは、中央区日本橋富沢町10-14にある物件です。徒歩4分圏内で都営浅草線の東日本橋駅、東京メトロ日比谷線の人形町駅、徒歩5分圏内で都営新宿線の馬喰横山駅、徒歩9分圏内でJR総武線(…

| 図面 |
階数 |
面積 |
賃料(共益費込) (坪単価) |
保証金/敷金 |
礼金 |
入居可能日 |
|
|
1階 |
G 55.41坪 (183.18m2) |
886,560 (16,000) |
8ヶ月 |
無 |
即日 |
|
物件番号:010596
更新日:2026/4/17
中央区日本橋蛎殻町1-4-1
【竣工】1993/3
【階建て】地上8F 、地下1F
|
【最寄駅】
|
【耐震】 |
新耐震 |
| 【基準階】 |
57.43坪 |
【エントランス】 |
平日・土開放 |
| 【駐車場】 |
無し |
【エレベーター】 |
1基 |
オーキッドプレイス蛎殻町ビルは、中央区日本橋蛎殻町1-4-1にある物件です。徒歩5分圏内で東京メトロ東西線・東京メトロ日比谷線の茅場町駅、東京メトロ半蔵門線の水天宮前駅、徒歩5分圏内で東京…

| 図面 |
階数 |
面積 |
賃料(共益費込) (坪単価) |
保証金/敷金 |
礼金 |
入居可能日 |
|
|
6階 |
G 49.06坪 (162.18m2) |
784,960 (16,000) |
(未公開) |
無 |
2026/5 予定 |
|
物件番号:010509
更新日:2026/4/7
中央区日本橋蛎殻町1-28-5
【竣工】1993/3(改修:2026)
【階建て】地上9F 、地下1F
|
【最寄駅】
|
【耐震】 |
新耐震 |
| 【基準階】 |
102.96坪 |
【エントランス】 |
平日のみ開放 |
| 【駐車場】 |
有り |
【エレベーター】 |
2基 |
ヒューリック蛎殻町ビルは、東京都中央区日本橋蛎殻町1-28-5に位置する賃貸オフィスビルです。東京メトロ半蔵門線「水天宮前」駅から徒歩2分、東京メトロ日比谷線・都営浅草線「人形町」駅から徒…

| 図面 |
階数 |
面積 |
賃料(共益費込) (坪単価) |
保証金/敷金 |
礼金 |
入居可能日 |
|
|
2階 |
G 56.19坪 (185.75m2) |
|
(未公開) |
無 |
2026/6 予定 |
|
|
2階 |
G 56.64坪 (187.24m2) |
|
(未公開) |
無 |
2026/6 予定 |
|
物件番号:010325
更新日:2026/4/17
中央区日本橋人形町2-25-15
【竣工】1993/1(改修:2026)
【階建て】地上10F
|
【最寄駅】
|
【耐震】 |
新耐震 |
| 【基準階】 |
41.72坪 |
【エントランス】 |
|
| 【駐車場】 |
有り |
【エレベーター】 |
1基 |
MS日本橋ビルは、東京都中央区日本橋人形町2丁目に位置する賃貸オフィスビルです。人形町エリアの落ち着いた街並みの中にあり、複数の駅や路線を利用できる交通利便性の高い立地が特徴です。最寄…

| 図面 |
階数 |
面積 |
賃料(共益費込) (坪単価) |
保証金/敷金 |
礼金 |
入居可能日 |
|
|
8階 |
G 42.96坪 (142.04m2) |
1,116,960 (26,000) |
6ヶ月 |
無 |
2026/8 上旬 |
|
物件番号:010737
更新日:2026/5/1
中央区日本橋箱崎町10-2
【竣工】1992/9(改修:2017)
【階建て】地上7F 、地下1F
|
【最寄駅】
|
【耐震】 |
新耐震 |
| 【基準階】 |
49.39坪 |
【エントランス】 |
全日開放(制限有) |
| 【駐車場】 |
有り |
【エレベーター】 |
1基 |
日本橋箱崎町エリア。2017年リニューアルのモダンなオフィスビル。ACN日本橋ビルは中央区日本橋箱崎町、最寄駅は東京メトロ半蔵門線 水天宮前駅です。地下鉄出口より徒歩5分圏内でアクセスです。…

| 図面 |
階数 |
面積 |
賃料(共益費込) (坪単価) |
保証金/敷金 |
礼金 |
入居可能日 |
|
|
3階 |
G 49.39坪 (163.27m2) |
|
8ヶ月 |
無 |
2026/7 下旬 |
|
物件番号:009022
更新日:2026/4/22
中央区日本橋馬喰町1-6-6
【竣工】1992/1
【階建て】地上9F
|
【最寄駅】
|
【耐震】 |
新耐震 |
| 【基準階】 |
41.44坪 |
【エントランス】 |
平日・土開放 |
| 【駐車場】 |
無し |
【エレベーター】 |
2基 |
吉野第二ビルは、東京都中央区日本橋馬喰町1丁目6-6に位置する、交通利便性と機能性を兼ね備えた賃貸オフィスビルです。利用できる駅としては、馬喰町駅、馬喰横山駅、東日本橋駅、小伝馬町駅、…

| 図面 |
階数 |
面積 |
賃料(共益費込) (坪単価) |
保証金/敷金 |
礼金 |
入居可能日 |
|
|
7階 |
G 41.44坪 (136.99m2) |
538,720 (13,000) |
10ヶ月 |
無 |
2026/8 上旬 |
|
物件番号:010265
更新日:2026/4/10
中央区日本橋人形町2-4-9
【竣工】1992/1
【階建て】地上10F
|
【最寄駅】
|
【耐震】 |
新耐震 |
| 【基準階】 |
41.64坪 |
【エントランス】 |
全日開放(制限有) |
| 【駐車場】 |
無し |
【エレベーター】 |
1基 |
人形町双葉ビルは、東京都中央区日本橋人形町2-4-9に位置する地上10階建てのオフィスビルです。1992年1月に竣工し、S造で建てられています。新耐震基準に適合しており、安全性に優れています。交…

| 図面 |
階数 |
面積 |
賃料(共益費込) (坪単価) |
保証金/敷金 |
礼金 |
入居可能日 |
|
|
4階 |
G 41.64坪 (137.65m2) |
624,600 (15,000) |
6ヶ月 |
無 |
即日 |
|
物件番号:073640
更新日:2026/5/1
中央区日本橋浜町3-23-1
【竣工】1992(改修:2020)
【階建て】地上8F 、地下3F
|
【最寄駅】
|
【耐震】 |
新耐震 |
| 【基準階】 |
41.42坪 |
【エントランス】 |
オートロック |
| 【駐車場】 |
有り |
【エレベーター】 |
1基 |
2020年フルリニューアル。お洒落なラウンジが目を惹くオフィスビル。ACN日本橋リバーサイドビルは中央区日本橋浜町3-23-1の物件です。最寄り駅は都営新宿線 浜町駅。地下鉄出口から徒歩5分圏内の…

| 図面 |
階数 |
面積 |
賃料(共益費込) (坪単価) |
保証金/敷金 |
礼金 |
入居可能日 |
|
|
2階 |
G 40.44坪 (133.69m2) |
|
5ヶ月 |
1.0ヶ月 |
2026/7 上旬 |
|
|
5階 |
G 41.59坪 (137.49m2) |
|
5ヶ月 |
1.0ヶ月 |
2026/8 上旬 |
|
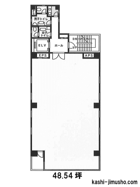
物件番号:010123
更新日:2026/5/7
中央区日本橋小舟町6-3
【竣工】1991/2
【階建て】地上8F 、地下1F
|
【最寄駅】
|
【耐震】 |
新耐震 |
| 【基準階】 |
48.54坪 |
【エントランス】 |
平日のみ開放 |
| 【駐車場】 |
有り |
【エレベーター】 |
1基 |
日本橋山大ビルは、東京都中央区日本橋小舟町6-3に位置するお洒落な外観デザインの賃貸オフィスビルです。1991年竣工ですが、新耐震基準を満たした安全性の高い建物です。立地は閑静な住宅街で落…

| 図面 |
階数 |
面積 |
賃料(共益費込) (坪単価) |
保証金/敷金 |
礼金 |
入居可能日 |
|
|
3階 |
G 48.54坪 (160.46m2) |
728,100 (15,000) |
10ヶ月 |
無 |
即日 |
|
物件番号:009852
更新日:2026/4/17
中央区日本橋久松町10-6
【竣工】1988/11(改修:2023)
【階建て】地上9F
|
【最寄駅】
|
【耐震】 |
新耐震 |
| 【基準階】 |
59.60坪 |
【エントランス】 |
平日・土開放 |
| 【駐車場】 |
無し |
【エレベーター】 |
1基 |
THE CROSS 日本橋人形町は、中央区日本橋久松町10-6にある物件です。徒歩4分圏内で都営浅草線の東日本橋駅、都営新宿線の馬喰横山駅、徒歩5分圏内で都営新宿線の浜町駅、徒歩6分圏内でJR総武線(…

| 図面 |
階数 |
面積 |
賃料(共益費込) (坪単価) |
保証金/敷金 |
礼金 |
入居可能日 |
|
|
3階 |
G 60.95坪 (201.49m2) |
1,340,900 (22,000) |
6ヶ月 |
無 |
2026/6 中旬 |
|
|
5階 |
G 60.95坪 (201.49m2) |
1,401,850 (23,000) |
6ヶ月 |
無 |
2026/6 上旬 |
|
|
8階 |
G 60.95坪 (201.49m2) |
1,310,425 (21,500) |
6ヶ月 |
無 |
2026/6 中旬 |
|
物件番号:010691
更新日:2026/4/30
中央区日本橋箱崎町5-4
【竣工】1988/4(改修:2002)
【階建て】地上7F
|
【最寄駅】
|
【耐震】 |
新耐震 |
| 【基準階】 |
52.80坪 |
【エントランス】 |
平日・土開放 |
| 【駐車場】 |
有り |
【エレベーター】 |
1基 |
アライズ第2ビルは、東京都中央区日本橋箱崎町に位置する賃貸オフィスビルです。隅田川に近いリバーサイドエリアに立地しており、落ち着いた環境の中で業務に集中できるオフィス環境が整っていま…

| 図面 |
階数 |
面積 |
賃料(共益費込) (坪単価) |
保証金/敷金 |
礼金 |
入居可能日 |
|
|
3階 |
G 52.80坪 (174.55m2) |
739,200 (14,000) |
7ヶ月 |
1.0ヶ月 |
即日 |
|
物件番号:009185
更新日:2026/4/20
中央区日本橋小伝馬町18-1
【竣工】1987/11(改修:2025)
【階建て】地上7F 、地下1F
|
【最寄駅】
|
【耐震】 |
新耐震 |
| 【基準階】 |
43.04坪 |
【エントランス】 |
平日・土開放 |
| 【駐車場】 |
無し |
【エレベーター】 |
1基 |
Grandir 日本橋小伝馬町は、中央区日本橋小伝馬町18-1にある物件です。最寄駅は、東京メトロ日比谷線の小伝馬町駅です。徒歩2分圏内でアクセス可能な好立地です。徒歩5分圏内でJR総武線(快速)の…

| 図面 |
階数 |
面積 |
賃料(共益費込) (坪単価) |
保証金/敷金 |
礼金 |
入居可能日 |
|
|
2階 |
G 44.34坪 (146.58m2) |
1,064,160 (24,000) |
6ヶ月 |
無 |
即日 |
|
物件番号:009375
更新日:2026/5/1
中央区東日本橋2-24-12
【竣工】1987/9
【階建て】地上9F
|
【最寄駅】
|
【耐震】 |
新耐震 |
| 【基準階】 |
58.34坪 |
【エントランス】 |
平日・土開放 |
| 【駐車場】 |
有り |
【エレベーター】 |
2基 |
東日本橋槇町ビルは、中央区東日本橋2-24-12に位置する視認性の高いオフィスビルです。京葉道路に面し、三角形のシャープなデザインが特徴的で、外観に一際目を引きます。このビルは、最寄り駅か…

| 図面 |
階数 |
面積 |
賃料(共益費込) (坪単価) |
保証金/敷金 |
礼金 |
入居可能日 |
|
|
5階 |
G 58.34坪 (192.86m2) |
875,091 (15,000) |
6ヶ月 |
無 |
相談 |
|
物件番号:010218
更新日:2026/5/1
中央区日本橋小網町15-9
【竣工】1987/9
【階建て】地上6F
|
【最寄駅】
|
【耐震】 |
新耐震 |
| 【基準階】 |
82.61坪 |
【エントランス】 |
平日のみ開放 |
| 【駐車場】 |
無し |
【エレベーター】 |
1基 |
森友第一ビルは、中央区日本橋小網町に位置し、日比谷線・都営浅草線の人形町駅から徒歩3分というアクセスの良さが魅力のオフィスビルです。半蔵門線の水天宮前駅や東西線の茅場町駅も徒歩圏内に…

| 図面 |
階数 |
面積 |
賃料(共益費込) (坪単価) |
保証金/敷金 |
礼金 |
入居可能日 |
|
|
5階 |
G 52.90坪 (174.88m2) |
793,500 (15,000) |
6ヶ月 |
1.0ヶ月 |
相談 |
|
物件番号:051636
更新日:2026/4/17
中央区東日本橋3-7-19
【竣工】1986/10
【階建て】地上10F
|
【最寄駅】
|
【耐震】 |
新耐震 |
| 【基準階】 |
58.00坪 |
【エントランス】 |
平日のみ開放 |
| 【駐車場】 |
無し |
【エレベーター】 |
1基 |
東日本橋ロータリービルは、東京都中央区東日本橋3丁目、清杉通り沿いの角地に位置するオフィスビルです。都営浅草線「東日本橋駅」から徒歩1分という抜群の駅近立地に加え、都営新宿線「馬喰横…

| 図面 |
階数 |
面積 |
賃料(共益費込) (坪単価) |
保証金/敷金 |
礼金 |
入居可能日 |
|
|
5階 |
G 58.00坪 (191.74m2) |
1,044,000 (18,000) |
6ヶ月 |
無 |
即日 |
|
物件番号:036741
更新日:2026/4/17
中央区日本橋蛎殻町1-13-7
【竣工】1985/6(改修:2002)
【階建て】地上7F 、地下1F
|
【最寄駅】
|
【耐震】 |
新耐震 |
| 【基準階】 |
60.93坪 |
【エントランス】 |
|
| 【駐車場】 |
無し |
【エレベーター】 |
1基 |
日本橋人形町プレイスは東京都中央区日本橋蛎殻町1-13-7にある賃貸オフィスビルです。人形町駅から出て、新大橋通りから一本入った角地に位置する分かりやすい物件です。落ち着いた色合いの重厚…

| 図面 |
階数 |
面積 |
賃料(共益費込) (坪単価) |
保証金/敷金 |
礼金 |
入居可能日 |
|
|
3階 |
G 60.93坪 (201.42m2) |
|
無 |
無 |
即日 |
|
物件番号:083899
更新日:2026/5/7
中央区日本橋小伝馬町12-8
【竣工】1985/5
【階建て】地上4F
|
【最寄駅】
|
【耐震】 |
新耐震 |
| 【基準階】 |
58.53坪 |
【エントランス】 |
|
| 【駐車場】 |
有り |
【エレベーター】 |
1基 |
駅から徒歩1分の好立地!5駅5路線利用可能で利便性抜群です!独立性の高い1フロア1テナント、整形の使いやすい貸室です!OAフロア・男女別トイレ・機械警備を完備しています!

| 図面 |
階数 |
面積 |
賃料(共益費込) (坪単価) |
保証金/敷金 |
礼金 |
入居可能日 |
|
|
2階 |
G 58.53坪 (193.49m2) |
877,950 (15,000) |
6ヶ月 |
無 |
2026/8/1 |
|
|
3階 |
G 58.53坪 (193.49m2) |
877,950 (15,000) |
6ヶ月 |
無 |
2026/8/1 |
|
|
4階 |
G 58.13坪 (192.17m2) |
871,950 (15,000) |
6ヶ月 |
無 |
2026/8/1 |
|
物件番号:010718
更新日:2026/4/15
中央区日本橋箱崎町25-7
【竣工】1981/1
【階建て】地上9F 、地下1F
|
【最寄駅】
|
【耐震】 |
旧耐震 |
| 【基準階】 |
49.91坪 |
【エントランス】 |
全日開放(24h) |
| 【駐車場】 |
有り |
【エレベーター】 |
1基 |
東京都中央区日本橋箱崎町に位置する「ヤマキビル」は、最寄り駅の東京メトロ半蔵門線「水天宮前駅」から徒歩わずか1分という絶好のロケーションにあり、さらに日比谷線・東西線「茅場町駅」や都…

| 図面 |
階数 |
面積 |
賃料(共益費込) (坪単価) |
保証金/敷金 |
礼金 |
入居可能日 |
|
|
7階 |
G 49.91坪 (164.99m2) |
625,000 (12,523) |
6ヶ月 |
無 |
即日 |
|
物件番号:009498
更新日:2026/4/7
中央区東日本橋3-8-1
【竣工】1980/10
【階建て】地上9F 、地下1F
|
【最寄駅】
|
【耐震】 |
旧耐震 |
| 【基準階】 |
51.60坪 |
【エントランス】 |
全日開放(24h) |
| 【駐車場】 |
無し |
【エレベーター】 |
1基 |
東日本橋コーポラスは、東京都中央区東日本橋3-8-1に位置する地上9階・地下1階のオフィスビルです。1980年10月に竣工し、SRC造で建てられています。交通アクセスは非常に優れています。都営新宿…

| 図面 |
階数 |
面積 |
賃料(共益費込) (坪単価) |
保証金/敷金 |
礼金 |
入居可能日 |
|
|
2階 |
G 45.52坪 (150.48m2) |
660,000 (14,500) |
6ヶ月 |
1.0ヶ月 |
相談 |
|
物件番号:010240
更新日:2026/4/24
中央区日本橋小網町18-20
【竣工】1980/1
【階建て】地上10F
|
【最寄駅】
|
【耐震】 |
旧耐震 |
| 【基準階】 |
89.75坪 |
【エントランス】 |
|
| 【駐車場】 |
有り |
【エレベーター】 |
有 |
人形町駅から徒歩5分、3駅4路線が利用できます!角地のため、窓面多く採光性が期待できます!ワンフロア・ワンテナントの独立性の高い貸室です!

| 図面 |
階数 |
面積 |
賃料(共益費込) (坪単価) |
保証金/敷金 |
礼金 |
入居可能日 |
|
|
1階 |
G 57.39坪 (189.73m2) |
1,150,000 (20,038) |
8ヶ月 |
1.0ヶ月 |
相談 |
|
物件番号:009715
更新日:2026/4/14
中央区日本橋浜町2-21-7
【竣工】1972/7
【階建て】地上4F
|
【最寄駅】
|
【耐震】 |
旧耐震 |
| 【基準階】 |
|
【エントランス】 |
|
| 【駐車場】 |
- |
【エレベーター】 |
未調査 |
日本橋浜町2丁目ビルは、東京都中央区日本橋浜町2-21-7に位置する地上4階建てのオフィスビルです。1972年7月に竣工し、S造で建てられています。交通アクセスは良好で、都営新宿線の浜町駅から徒…

| 図面 |
階数 |
面積 |
賃料(共益費込) (坪単価) |
保証金/敷金 |
礼金 |
入居可能日 |
|
|
1-4階 |
G 40.04坪 (132.38m2) |
600,000 (14,985) |
3ヶ月 |
1.0ヶ月 |
即日 |
|
非公開物件の賃料目安アイコン
8,000 円未満
8,000 円以上~1.0 万円未満
1.0 万以上~1.2 万円未満
1.2 万以上~1.4 万円未満
1.4 万以上~1.6 万円未満
1.6 万以上~2.0 万円未満
2.0 万以上~2.5 万円未満
2.5 万以上~3.0 万円未満
3.0 万円以上
未定
※取引態様:媒介
※フロア図面と現況が異なる場合は現況を優先いたします。
※貸室内部の写真・貸室からの景色に関しては、現在の募集フロアと異なる場合がございます。
※取引態様:媒介
その他、小伝馬町・人形町の貸事務所をお探しの方はこちらをクリック

トイレ男女別貸事務所を区から探す
千代田区のトイレ男女別貸事務所
中央区のトイレ男女別貸事務所
港区のトイレ男女別貸事務所
新宿区のトイレ男女別貸事務所
渋谷区のトイレ男女別貸事務所
台東区のトイレ男女別貸事務所
品川区のトイレ男女別貸事務所
豊島区のトイレ男女別貸事務所
文京区のトイレ男女別貸事務所
目黒区のトイレ男女別貸事務所
東京都内のトイレ男女別貸事務所
小伝馬町・人形町エリアの関連記事