トイレ男女別の貸事務所(御茶ノ水・神田 西側)(40~60坪)
御茶ノ水・神田 西側にあるトイレが男女別の貸事務所を掲載しています。特に、女性のお客様が重要視するのがオフィスビルのトイレです。男性と同じトイレは敬遠されることが多く、男女別のトイレを希望するお客様がいらっしゃいます。そこで女性社員の快適性を考えトイレが男女別の貸事務所をご紹介します。
御茶ノ水・神田 西側の男女別トイレ貸事務所
物件番号:083594
更新日:2026/4/17
千代田区神田錦町3-14-1
【竣工】2025/12
【階建て】地上8F
|
【最寄駅】
|
【耐震】 |
新耐震 |
| 【基準階】 |
45.03坪 |
【エントランス】 |
オートロック |
| 【駐車場】 |
無し |
【エレベーター】 |
1基 |
BIASTA JIMBOCHOは東京都千代田区神田錦町3-14に位置する、2025年12月に竣工の地上8階建てのオフィスビルです。RC造で建てられており、新耐震基準に適合しているので安全性の高い建物です。交通…

| 図面 |
階数 |
面積 |
賃料(共益費込) (坪単価) |
保証金/敷金 |
礼金 |
入居可能日 |
|
|
4階 |
G 45.03坪 (148.86m2) |
1,666,110 (37,000) |
2ヶ月 |
無 |
相談 |
|
|
5階 |
G 45.03坪 (148.86m2) |
1,666,110 (37,000) |
2ヶ月 |
無 |
相談 |
|
物件番号:070899
更新日:2026/4/28
千代田区神田司町2-7-9
【竣工】2020/2
【階建て】地上9F
|
【最寄駅】
|
【耐震】 |
新耐震 |
| 【基準階】 |
59.04坪 |
【エントランス】 |
オートロック |
| 【駐車場】 |
有り |
【エレベーター】 |
2基 |
ADPR神田司町ビルは、2020年2月に竣工したハイグレード賃貸オフィスビルです。東京都千代田区神田司町2-7-9に位置し、丸の内線淡路町駅から徒歩3分、都営新宿線小川町駅からも3分と抜群のアクセ…

| 図面 |
階数 |
面積 |
賃料(共益費込) (坪単価) |
保証金/敷金 |
礼金 |
入居可能日 |
|
|
2階 |
G 59.04坪 (195.17m2) |
|
4ヶ月 |
無 |
相談 |
|
物件番号:066734
更新日:2026/4/6
千代田区神田小川町3-9-2
【竣工】2017/11
【階建て】地上9F
|
【最寄駅】
|
【耐震】 |
新耐震 |
| 【基準階】 |
269.25坪 |
【エントランス】 |
オートロック |
| 【駐車場】 |
有り |
【エレベーター】 |
3基 |
神保町エリアのハイグレードオフィスビル。BIZCORE神保町は千代田区神田小川町3-9-2の物件です。最寄駅は東京メトロ半蔵門線・都営三田線・都営新宿線の神保町駅。神保町駅から徒歩4分圏内でアク…

| 図面 |
階数 |
面積 |
賃料(共益費込) (坪単価) |
保証金/敷金 |
礼金 |
入居可能日 |
|
|
8階 |
N 54.15坪 (179.01m2) |
|
(未公開) |
無 |
2026/7/1 |
|
物件番号:066440
更新日:2026/4/7
千代田区神田須田町2-9-2
【竣工】2017/2
【階建て】地上10F
|
【最寄駅】
|
【耐震】 |
新耐震 |
| 【基準階】 |
62.11坪 |
【エントランス】 |
オートロック |
| 【駐車場】 |
有り |
【エレベーター】 |
2基 |
PMO神田岩本町は、東京都千代田区神田須田町2丁目に位置する賃貸オフィスビルです。最寄駅は都営新宿線の岩本町駅で、徒歩1分圏内という抜群のアクセスを誇ります。さらに徒歩3分圏内には東京メ…

| 図面 |
階数 |
面積 |
賃料(共益費込) (坪単価) |
保証金/敷金 |
礼金 |
入居可能日 |
|
|
10階 |
G 59.92坪 (198.11m2) |
|
(未公開) |
無 |
2026/11/15 |
|
物件番号:070633
更新日:2026/4/21
千代田区神田須田町2-25-16
【竣工】2010/6(改修:2019)
【階建て】地上13F
|
【最寄駅】
|
【耐震】 |
新耐震 |
| 【基準階】 |
40.69坪 |
【エントランス】 |
全日開放(24h) |
| 【駐車場】 |
無し |
【エレベーター】 |
1基 |
日宝秋葉原ビルは、千代田区神田須田町2丁目に位置する賃貸オフィスビルです。最寄駅は都営新宿線の岩本町駅で、徒歩2分圏内という高い利便性を誇ります。さらに、JR山手線・京浜東北線・総武線…

| 図面 |
階数 |
面積 |
賃料(共益費込) (坪単価) |
保証金/敷金 |
礼金 |
入居可能日 |
|
|
13階 |
G 40.69坪 (134.52m2) |
996,905 (24,500) |
5ヶ月 |
無 |
2026/9 上旬 |
|
物件番号:053675
更新日:2026/4/28
千代田区神田須田町1-24-6
【竣工】2008/9
【階建て】地上11F
|
【最寄駅】
|
【耐震】 |
新耐震 |
| 【基準階】 |
43.06坪 |
【エントランス】 |
平日のみ開放 |
| 【駐車場】 |
有り |
【エレベーター】 |
1基 |
ACN神田須田町ビルは、千代田区神田須田町1-24-6に位置する賃貸オフィスビルで、ビジネスに最適な利便性と快適性を兼ね備えています。最寄り駅は東京メトロ銀座線の神田駅で徒歩1分圏内、さらにJ…

| 図面 |
階数 |
面積 |
賃料(共益費込) (坪単価) |
保証金/敷金 |
礼金 |
入居可能日 |
|
|
3階 |
G 43.06坪 (142.38m2) |
|
8ヶ月 |
無 |
2026/9/1 |
|
物件番号:003138
更新日:2026/4/17
千代田区内神田1-5-12
【竣工】1997/4(改修:2020)
【階建て】地上8F 、地下1F
|
【最寄駅】
|
【耐震】 |
新耐震 |
| 【基準階】 |
63.38坪 |
【エントランス】 |
平日・土開放 |
| 【駐車場】 |
有り |
【エレベーター】 |
2基 |
北大手町・神田エリアに位置する北大手町スクエアは、千代田区内神田1丁目の利便性に優れた賃貸オフィスビルです。東京メトロ大手町駅の出口から徒歩5分圏内というアクセスの良さを誇り、JR山手…

| 図面 |
階数 |
面積 |
賃料(共益費込) (坪単価) |
保証金/敷金 |
礼金 |
入居可能日 |
|
|
8階 |
G 42.64坪 (140.96m2) |
1,066,000 (25,000) |
6ヶ月 |
無 |
2026/8/1 |
|
物件番号:051683
更新日:2026/4/15
千代田区神田淡路町2-3
【竣工】1993/9
【階建て】地上8F
|
【最寄駅】
|
【耐震】 |
新耐震 |
| 【基準階】 |
59.53坪 |
【エントランス】 |
オートロック |
| 【駐車場】 |
有り |
【エレベーター】 |
1基 |
神田淡路町エリアに位置する淡路町トーセイビルは、東京都千代田区神田淡路町2丁目にあり、東京メトロ丸ノ内線の淡路町駅と都営新宿線の小川町駅から徒歩2分以内という非常に利便性の高い場所に…

| 図面 |
階数 |
面積 |
賃料(共益費込) (坪単価) |
保証金/敷金 |
礼金 |
入居可能日 |
|
|
5階 |
G 59.53坪 (196.79m2) |
|
10ヶ月 |
無 |
即日 |
|
物件番号:002451
更新日:2026/4/7
千代田区神田小川町1-7
【竣工】1992/6
【階建て】地上10F 、地下1F
|
【最寄駅】
|
【耐震】 |
新耐震 |
| 【基準階】 |
53.44坪 |
【エントランス】 |
平日・土開放 |
| 【駐車場】 |
無し |
【エレベーター】 |
2基 |
地下鉄出口より徒歩1分圏内の好立地。本郷通りに面した貸事務所。 小川町メセナビルは、千代田区神田小川町1-7の物件です。大通りに面した角地に位置し、地下鉄出口から歩いてすぐの好立地です。…

| 図面 |
階数 |
面積 |
賃料(共益費込) (坪単価) |
保証金/敷金 |
礼金 |
入居可能日 |
|
|
10階 |
G 41.07坪 (135.77m2) |
|
12ヶ月 |
無 |
2026/9/1 |
|
物件番号:002481
更新日:2026/4/24
千代田区神田小川町2-2-8
【竣工】1991/10
【階建て】地上9F 、地下1F
|
【最寄駅】
|
【耐震】 |
新耐震 |
| 【基準階】 |
52.15坪 |
【エントランス】 |
全日開放(制限有) |
| 【駐車場】 |
有り |
【エレベーター】 |
2基 |
小川町交差点至近、駅近好立地の賃貸オフィスビルです。天下堂ビルは、東京都千代田区神田小川町2-2-8に位置し、ビジネスの拠点として非常に利便性の高いオフィスビルです。1990年12月に竣工し、…

| 図面 |
階数 |
面積 |
賃料(共益費込) (坪単価) |
保証金/敷金 |
礼金 |
入居可能日 |
|
|
NEW9階 |
G 52.15坪 (172.40m2) |
938,700 (18,000) |
8ヶ月 |
1.0ヶ月 |
相談 |
|
物件番号:002737
更新日:2026/4/15
千代田区内神田1-9-12
【竣工】1991/3(改修:2019)
【階建て】地上9F
|
【最寄駅】
|
【耐震】 |
新耐震 |
| 【基準階】 |
42.59坪 |
【エントランス】 |
全日開放(制限有) |
| 【駐車場】 |
無し |
【エレベーター】 |
1基 |
北大手町・神田エリア。神田駅・大手町駅が利用可能、外堀通りに面した賃貸オフィスビル。NTビルは、千代田区内神田1丁目、JR山手線・中央・京浜東北線の神田駅より徒歩5分圏内、東京メトロ銀座…

| 図面 |
階数 |
面積 |
賃料(共益費込) (坪単価) |
保証金/敷金 |
礼金 |
入居可能日 |
|
|
8階 |
G 42.59坪 (140.79m2) |
|
(未公開) |
無 |
2026/7/6 |
|
物件番号:003167
更新日:2026/4/15
千代田区神田司町2-10
【竣工】1990/10(改修:2020)
【階建て】地上9F
|
【最寄駅】
|
【耐震】 |
新耐震 |
| 【基準階】 |
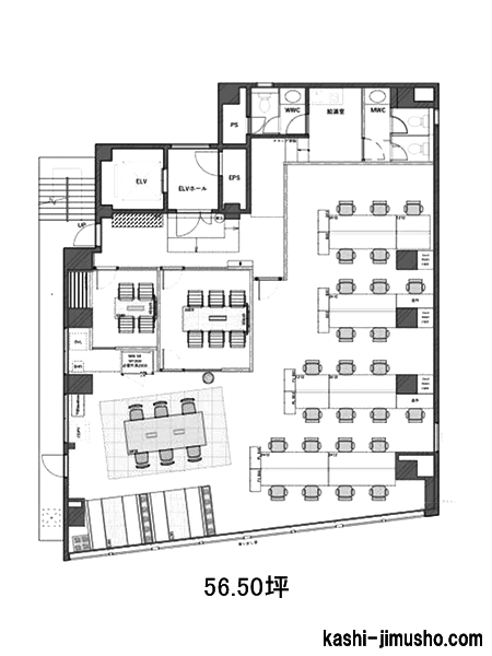
56.50坪 |
【エントランス】 |
平日・土開放 |
| 【駐車場】 |
無し |
【エレベーター】 |
1基 |
神田エリア。淡路町駅から徒歩2分圏内でアクセス可能な貸事務所。安和司町ビルは、千代田区神田司町2丁目、東京メトロ丸ノ内線の淡路町駅、都営新宿線の小川町駅より徒歩2分圏内。外堀通りから一…

| 図面 |
階数 |
面積 |
賃料(共益費込) (坪単価) |
保証金/敷金 |
礼金 |
入居可能日 |
|
|
3階 |
G 56.50坪 (186.78m2) |
|
3ヶ月 |
無 |
即日 |
|
物件番号:002839
更新日:2026/4/16
千代田区内神田3-2-8
【竣工】1989/11
【階建て】地上10F 、地下1F
|
【最寄駅】
|
【耐震】 |
新耐震 |
| 【基準階】 |
42.46坪 |
【エントランス】 |
平日・土開放 |
| 【駐車場】 |
無し |
【エレベーター】 |
1基 |
北大手町・神田エリア。神田駅・大手町駅が利用可能、竜閑橋交差点目の前の賃貸オフィスビル。いちご内神田ビルは、千代田区内神田3丁目、JR山手線・中央・京浜東北線の神田駅より徒歩3分圏内、…

| 図面 |
階数 |
面積 |
賃料(共益費込) (坪単価) |
保証金/敷金 |
礼金 |
入居可能日 |
|
|
8階 |
G 42.46坪 (140.37m2) |
|
(未公開) |
無 |
2026/10/21 |
|
物件番号:002178
更新日:2026/4/27
千代田区神田錦町1-17-1
【竣工】1988/10
【階建て】地上7F 、地下1F
|
【最寄駅】
|
【耐震】 |
新耐震 |
| 【基準階】 |
43.00坪 |
【エントランス】 |
|
| 【駐車場】 |
無し |
【エレベーター】 |
1基 |
神田髙木ビルは、東京都千代田区神田錦町に位置するオフィスビルで、交通アクセスの良さと快適なオフィス環境を兼ね備えています。東京メトロ丸ノ内線、半蔵門線、千代田線、都営三田線の各「大…

| 図面 |
階数 |
面積 |
賃料(共益費込) (坪単価) |
保証金/敷金 |
礼金 |
入居可能日 |
|
|
3階 |
G 43.05坪 (142.31m2) |
|
6ヶ月 |
無 |
即日 |
|
物件番号:002607
更新日:2026/4/17
千代田区神田駿河台2-1-18
【竣工】1988/9
【階建て】地上7F 、地下1F
|
【最寄駅】
|
【耐震】 |
新耐震 |
| 【基準階】 |
91.32坪 |
【エントランス】 |
|
| 【駐車場】 |
有り |
【エレベーター】 |
1基 |
御茶ノ水駅前ビルは、千代田区神田駿河台2-1-18にある物件です。徒歩1分圏内でJR中央線・JR総武線の御茶ノ水駅、徒歩2分圏内で東京メトロ丸ノ内線の御茶ノ水駅、徒歩3分圏内で東京メトロ千代田線…

| 図面 |
階数 |
面積 |
賃料(共益費込) (坪単価) |
保証金/敷金 |
礼金 |
入居可能日 |
|
|
6階 |
G 54.42坪 (179.93m2) |
1,251,660 (23,000) |
6ヶ月 |
無 |
相談 |
|
物件番号:002816
更新日:2026/4/16
千代田区内神田1-18-12
【竣工】1987/11
【階建て】地上9F
|
【最寄駅】
|
【耐震】 |
新耐震 |
| 【基準階】 |
55.85坪 |
【エントランス】 |
全日開放(制限有) |
| 【駐車場】 |
有り |
【エレベーター】 |
2基 |
神田エリア。外堀通り沿いに面した貸事務所。内神田東誠ビルは、千代田区内神田1-18-12の物件です。東京メトロ丸ノ内線 淡路町駅、JR神田駅、東京メトロ銀座線 神田駅、都営新宿線 小川町駅から…

| 図面 |
階数 |
面積 |
賃料(共益費込) (坪単価) |
保証金/敷金 |
礼金 |
入居可能日 |
|
|
4階 |
G 55.85坪 (184.63m2) |
1,005,300 (18,000) |
5ヶ月 |
無 |
即日 |
|
物件番号:003228
更新日:2026/4/15
千代田区神田多町2-4
【竣工】1987/7
【階建て】地上8F
|
【最寄駅】
|
【耐震】 |
新耐震 |
| 【基準階】 |
58.71坪 |
【エントランス】 |
平日・土開放 |
| 【駐車場】 |
無し |
【エレベーター】 |
1基 |
第二滝ビルは角地にあり窓面が多いため、太陽の光を存分に感じられる賃貸オフィスです。ビルの外観は白く、清潔感を感じさせます。千代田区神田多町2-4に位置し、JR山手線・JR中央線・JR京浜東北…

| 図面 |
階数 |
面積 |
賃料(共益費込) (坪単価) |
保証金/敷金 |
礼金 |
入居可能日 |
|
|
8階 |
G 45.42坪 (150.16m2) |
681,260 (15,000) |
8ヶ月 |
無 |
2026/6 下旬 |
|
物件番号:002670
更新日:2026/4/17
千代田区神田駿河台3-5-4
【竣工】1986/2(改修:2022)
【階建て】地上8F
|
【最寄駅】
|
【耐震】 |
新耐震 |
| 【基準階】 |
65.67坪 |
【エントランス】 |
|
| 【駐車場】 |
無し |
【エレベーター】 |
1基 |
サンジュ共和十番館は、千代田区神田駿河台3-5-4にある物件です。徒歩2分圏内で東京メトロ千代田線の新御茶ノ水駅、徒歩5分圏内で都営新宿線の小川町駅、徒歩6分圏内で東京メトロ丸ノ内線の淡路…

| 図面 |
階数 |
面積 |
賃料(共益費込) (坪単価) |
保証金/敷金 |
礼金 |
入居可能日 |
|
|
6階 |
G 48.76坪 (161.22m2) |
1,316,520 (27,000) |
6ヶ月 |
無 |
即日 |
|
物件番号:002208
更新日:2026/4/13
千代田区神田錦町3-13-7
【竣工】1985/3
【階建て】地上9F 、地下1F
|
【最寄駅】
|
【耐震】 |
新耐震 |
| 【基準階】 |
260.80坪 |
【エントランス】 |
平日・土開放 |
| 【駐車場】 |
有り |
【エレベーター】 |
2基 |
名古路ビル本館は、東京都千代田区神田錦町3-13-7に位置する、大手町と皇居に近い竹橋エリアの大規模オフィスビルです。交通アクセスに優れ、東京メトロ東西線竹橋駅から徒歩5分、千代田線新御茶…

| 図面 |
階数 |
面積 |
賃料(共益費込) (坪単価) |
保証金/敷金 |
礼金 |
入居可能日 |
|
|
2階 |
N 44.67坪 (147.67m2) |
|
12ヶ月 |
無 |
2026/9 |
|
物件番号:002980
更新日:2026/4/16
千代田区内神田1-15-11
【竣工】1984/10
【階建て】地上8F
|
【最寄駅】
|
【耐震】 |
新耐震 |
| 【基準階】 |
42.13坪 |
【エントランス】 |
平日のみ開放 |
| 【駐車場】 |
無し |
【エレベーター】 |
1基 |
千代田西井ビルは、千代田区内神田1-15-11にある物件です。徒歩3分圏内で東京メトロ丸ノ内線の淡路町駅、都営新宿線の小川町駅、徒歩5分圏内でJR山手線・JR中央線・JR京浜東北線・東京メトロ銀座…

| 図面 |
階数 |
面積 |
賃料(共益費込) (坪単価) |
保証金/敷金 |
礼金 |
入居可能日 |
|
|
5階 |
G 42.13坪 (139.27m2) |
758,340 (18,000) |
(未公開) |
無 |
2026/5 上旬 |
|
物件番号:003488
更新日:2026/4/17
千代田区神田須田町2-2-5
【竣工】1983/4
【階建て】地上8F
|
【最寄駅】
|
【耐震】 |
新耐震 |
| 【基準階】 |
44.16坪 |
【エントランス】 |
平日・土開放 |
| 【駐車場】 |
無し |
【エレベーター】 |
1基 |
Cocoro Kanda Bldg.は、東京都千代田区神田須田町2丁目に所在するオフィスビルです。最寄り駅は東京メトロ銀座線・神田駅で、徒歩2分圏内の駅近物件となっており、JR山手線・中央線・京浜東北線…

| 図面 |
階数 |
面積 |
賃料(共益費込) (坪単価) |
保証金/敷金 |
礼金 |
入居可能日 |
|
|
5階 |
G 44.16坪 (145.98m2) |
1,324,800 (30,000) |
無 |
無 |
即日 |
|
|
6階 |
G 44.16坪 (145.98m2) |
1,324,800 (30,000) |
無 |
無 |
即日 |
|
物件番号:003406
更新日:2026/4/14
千代田区神田須田町2-9
【竣工】1980/1(改修:2018)
【階建て】地上9F 、地下1F
|
【最寄駅】
|
【耐震】 |
旧耐震+補強済 or 基準OK |
| 【基準階】 |
50.76坪 |
【エントランス】 |
全日開放(制限有) |
| 【駐車場】 |
無し |
【エレベーター】 |
1基 |
岩本町駅から徒歩1分と利便性抜群、靖国通り沿いの駅近賃貸オフィスビルです。宮川ビルは、東京都千代田区神田須田町2に位置する賃貸オフィスビルで、ビジネスの拠点として非常に優れた利便性を…

| 図面 |
階数 |
面積 |
賃料(共益費込) (坪単価) |
保証金/敷金 |
礼金 |
入居可能日 |
|
|
7階 |
G 50.76坪 (167.80m2) |
761,400 (15,000) |
10ヶ月 |
無 |
2026/7 上旬 |
|
物件番号:002241
更新日:2026/4/27
千代田区神田錦町3-7-2
【竣工】1978/3(改修:2006)
【階建て】地上9F
|
【最寄駅】
|
【耐震】 |
旧耐震+補強済 or 基準OK |
| 【基準階】 |
41.68坪 |
【エントランス】 |
平日のみ開放 |
| 【駐車場】 |
有り |
【エレベーター】 |
1基 |
東京堂錦町ビルディングは、東京都千代田区神田錦町3-7-2に位置する利便性の高いオフィスビルです。東京メトロ東西線「竹橋」駅から徒歩2分という駅近立地に加え、都営三田線「神保町」駅徒歩3分…

| 図面 |
階数 |
面積 |
賃料(共益費込) (坪単価) |
保証金/敷金 |
礼金 |
入居可能日 |
|
|
5階 |
G 41.68坪 (137.81m2) |
|
12ヶ月 |
無 |
2026/10/1 |
|
物件番号:002817
更新日:2026/4/16
千代田区内神田1-11-11
【竣工】1978/3
【階建て】地上6F
|
【最寄駅】
|
【耐震】 |
旧耐震 |
| 【基準階】 |
43.00坪 |
【エントランス】 |
全日開放(24h) |
| 【駐車場】 |
無し |
【エレベーター】 |
1基 |
複数路線が利用可能で利便性の高さが魅力の内神田エリア、落ち着いた環境の賃貸オフィスビルです。藤井第一ビルは、東京都千代田区内神田1-11-11に位置し、1978年3月に竣工した6階建ての鉄骨造の…

| 図面 |
階数 |
面積 |
賃料(共益費込) (坪単価) |
保証金/敷金 |
礼金 |
入居可能日 |
|
|
3階 |
G 43.00坪 (142.15m2) |
516,000 (12,000) |
6ヶ月 |
無 |
即日 |
|
|
4階 |
G 43.00坪 (142.15m2) |
516,000 (12,000) |
6ヶ月 |
無 |
即日 |
|
物件番号:044498
更新日:2026/4/15
千代田区神田錦町3-11-1
【竣工】1973/5(改修:2001)
【階建て】地上9F 、地下2F
|
【最寄駅】
|
【耐震】 |
旧耐震+補強済 or 基準OK |
| 【基準階】 |
310.00坪 |
【エントランス】 |
平日のみ開放 |
| 【駐車場】 |
有り |
【エレベーター】 |
4基 |
NMF竹橋ビルは、東京都千代田区神田錦町に位置する大型オフィスビルで、1973年5月に竣工し、2001年に大規模改修が実施されました。地上9階、地下2階建ての鉄骨鉄筋コンクリート(SRC造)構造で、…

| 図面 |
階数 |
面積 |
賃料(共益費込) (坪単価) |
保証金/敷金 |
礼金 |
入居可能日 |
|
|
3階 |
N 48.29坪 (159.64m2) |
|
(未公開) |
無 |
即日 |
|
物件番号:083813
更新日:2026/4/14
千代田区神田駿河台2-10-4
【竣工】2026/10
【階建て】地上9F
|
【最寄駅】
|
【耐震】 |
新耐震 |
| 【基準階】 |
53.37坪 |
【エントランス】 |
|
| 【駐車場】 |
- |
【エレベーター】 |
2基 |
2026年10月竣工予定!JR御茶ノ水駅徒歩2分の賃貸オフィスビル!

| 図面 |
階数 |
面積 |
賃料(共益費込) (坪単価) |
保証金/敷金 |
礼金 |
入居可能日 |
|
|
3階 |
G 53.14坪 (175.67m2) |
1,381,640 (26,000) |
8ヶ月 |
1.0ヶ月 |
2026/11 予定 |
|
|
4階 |
G 53.37坪 (176.44m2) |
1,387,620 (26,000) |
8ヶ月 |
1.0ヶ月 |
2026/11 予定 |
|
|
5階 |
G 53.37坪 (176.44m2) |
1,387,620 (26,000) |
8ヶ月 |
1.0ヶ月 |
2026/11 予定 |
|
|
6階 |
G 53.37坪 (176.44m2) |
1,387,620 (26,000) |
8ヶ月 |
1.0ヶ月 |
2026/11 予定 |
|
|
7階 |
G 53.37坪 (176.44m2) |
1,387,620 (26,000) |
8ヶ月 |
1.0ヶ月 |
2026/11 予定 |
|
|
8階 |
G 53.37坪 (176.44m2) |
1,387,620 (26,000) |
8ヶ月 |
1.0ヶ月 |
2026/11 予定 |
|
|
9階 |
G 53.37坪 (176.44m2) |
1,387,620 (26,000) |
8ヶ月 |
1.0ヶ月 |
2026/11 予定 |
|
非公開物件の賃料目安アイコン
8,000 円未満
8,000 円以上~1.0 万円未満
1.0 万以上~1.2 万円未満
1.2 万以上~1.4 万円未満
1.4 万以上~1.6 万円未満
1.6 万以上~2.0 万円未満
2.0 万以上~2.5 万円未満
2.5 万以上~3.0 万円未満
3.0 万円以上
未定
※取引態様:媒介
※フロア図面と現況が異なる場合は現況を優先いたします。
※貸室内部の写真・貸室からの景色に関しては、現在の募集フロアと異なる場合がございます。
※取引態様:媒介
その他、御茶ノ水・神田 西側の貸事務所をお探しの方はこちらをクリック

トイレ男女別貸事務所を区から探す
千代田区のトイレ男女別貸事務所
中央区のトイレ男女別貸事務所
港区のトイレ男女別貸事務所
新宿区のトイレ男女別貸事務所
渋谷区のトイレ男女別貸事務所
台東区のトイレ男女別貸事務所
品川区のトイレ男女別貸事務所
豊島区のトイレ男女別貸事務所
文京区のトイレ男女別貸事務所
目黒区のトイレ男女別貸事務所
東京都内のトイレ男女別貸事務所
御茶ノ水・神田西側エリアの駅検索
御茶ノ水・神田西側の近隣エリア