トイレ男女別の貸事務所(文京区)(40~60坪)
東京都文京区にあるトイレが男女別の貸事務所を掲載しています。特に、女性のお客様が重要視するのがオフィスビルのトイレです。男性と同じトイレは敬遠されることが多く、男女別のトイレを希望するお客様がいらっしゃいます。そこで女性社員の快適性を考えトイレが男女別の貸事務所をご紹介します。
文京区の男女別トイレ貸事務所
物件番号:026069
更新日:2026/4/23
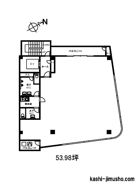
文京区本郷2-6-7
【竣工】1994/4
【階建て】地上6F
|
【最寄駅】
|
【耐震】 |
新耐震 |
| 【基準階】 |
56.81坪 |
【エントランス】 |
|
| 【駐車場】 |
有り |
【エレベーター】 |
1基 |
日比ビルは、東京都文京区本郷2-6-7に位置する地上6階建てのオフィスビルです。1994年4月に竣工し、鉄筋コンクリート造(RC造)で建てられており、新耐震基準に適合しています。災害対策に配慮さ…

| 図面 |
階数 |
面積 |
賃料(共益費込) (坪単価) |
保証金/敷金 |
礼金 |
入居可能日 |
|
|
2階 |
G 56.81坪 (187.80m2) |
624,910 (11,000) |
6ヶ月 |
1.0ヶ月 |
即日 |
|
物件番号:042703
更新日:2026/5/1
文京区本郷2-3-9
【竣工】1994/3
【階建て】地上9F 、地下1F
|
【最寄駅】
|
【耐震】 |
新耐震 |
| 【基準階】 |
163.92坪 |
【エントランス】 |
平日・土開放 |
| 【駐車場】 |
有り |
【エレベーター】 |
1基 |
複数路線が利用可能で交通アクセス良好!男女別のトイレで女性も使いやすいオフィス!24時間使用可能!機械警備でセキュリティ万全!

| 図面 |
階数 |
面積 |
賃料(共益費込) (坪単価) |
保証金/敷金 |
礼金 |
入居可能日 |
|
|
2階 |
N 51.91坪 (171.60m2) |
|
12ヶ月 |
無 |
即日 |
|
物件番号:025306
更新日:2026/5/1
文京区小石川5-36-5
【竣工】1994/3(改修:2016)
【階建て】地上7F 、地下1F
|
【最寄駅】
|
【耐震】 |
新耐震 |
| 【基準階】 |
106.00坪 |
【エントランス】 |
全日開放(24h) |
| 【駐車場】 |
有り |
【エレベーター】 |
1基 |
三共小石川THビルは、文京区小石川5丁目、落ち着いた街並みに佇む賃貸オフィスビルです。1994年に竣工し、新耐震基準を満たした鉄骨鉄筋コンクリート造・地上7階地下1階建ての堅牢な構造を持ち、…

| 図面 |
階数 |
面積 |
賃料(共益費込) (坪単価) |
保証金/敷金 |
礼金 |
入居可能日 |
|
|
B1階 |
G 53.40坪 (176.53m2) |
|
10ヶ月 |
無 |
即日 |
|
物件番号:025193
更新日:2026/4/3
文京区大塚5-7-12
【竣工】1994/3
【階建て】地上10F
|
【最寄駅】
|
【耐震】 |
新耐震 |
| 【基準階】 |
110.51坪 |
【エントランス】 |
平日・土開放 |
| 【駐車場】 |
無し |
【エレベーター】 |
2基 |
NKビル新大塚は、東京都文京区大塚に位置する地上10階建てのオフィスビルです。1994年3月に竣工したSRC造(鉄骨鉄筋コンクリート造)の建物で、新耐震基準に準拠した安全性の高い設計が施されて…

| 図面 |
階数 |
面積 |
賃料(共益費込) (坪単価) |
保証金/敷金 |
礼金 |
入居可能日 |
|
|
5階 |
G 41.26坪 (136.40m2) |
|
(未公開) |
無 |
相談 |
|
物件番号:025682
更新日:2026/4/17
文京区白山5-36-9
【竣工】1993/7(改修:2017)
【階建て】地上10F
|
【最寄駅】
|
【耐震】 |
新耐震 |
| 【基準階】 |
45.47坪 |
【エントランス】 |
平日・土開放 |
| 【駐車場】 |
有り |
【エレベーター】 |
2基 |
白山麻の実ビルは、文京区白山5-36-9にある物件です。最寄駅は、都営三田線の白山駅です。徒歩1分圏内でアクセス可能な好立地です。徒歩6分圏内で東京メトロ南北線の本駒込駅も利用可能となって…

| 図面 |
階数 |
面積 |
賃料(共益費込) (坪単価) |
保証金/敷金 |
礼金 |
入居可能日 |
|
|
6階 |
G 46.41坪 (153.42m2) |
603,330 (13,000) |
10ヶ月 |
無 |
即日 |
|
物件番号:025488
更新日:2026/4/30
文京区関口1-35-17
【竣工】1993/4
【階建て】地上6F
|
【最寄駅】
|
【耐震】 |
新耐震 |
| 【基準階】 |
109.05坪 |
【エントランス】 |
平日のみ開放 |
| 【駐車場】 |
有り |
【エレベーター】 |
1基 |
山水ビルは、東京都文京区関口1丁目に位置する地上6階建てのオフィスビルです。1993年4月に竣工した建物で、RC造(鉄筋コンクリート造)の堅牢な構造を持ち、新耐震基準に対応した設計が施されて…

| 図面 |
階数 |
面積 |
賃料(共益費込) (坪単価) |
保証金/敷金 |
礼金 |
入居可能日 |
|
|
4階 |
G 49.54坪 (163.77m2) |
495,400 (10,000) |
8ヶ月 |
無 |
2026/6 上旬 |
|
物件番号:025749
更新日:2026/5/1
文京区本駒込2-29-24
【竣工】1992/11(改修:2023)
【階建て】地上9F
|
【最寄駅】
|
【耐震】 |
新耐震 |
| 【基準階】 |
139.18坪 |
【エントランス】 |
全日開放(制限有) |
| 【駐車場】 |
有り |
【エレベーター】 |
2基 |
千石駅近くの賃貸オフィス、白山通りに面した美築ビルです。パシフィックスクエア千石ビルは、東京都文京区本駒込2-29-24に位置する貸事務所です。都営三田線の千石駅から徒歩わずか2分、JR山手…

| 図面 |
階数 |
面積 |
賃料(共益費込) (坪単価) |
保証金/敷金 |
礼金 |
入居可能日 |
|
|
8階 |
G 50.37坪 (166.48m2) |
906,660 (18,000) |
6ヶ月 |
無 |
即日 |
|
物件番号:025186
更新日:2026/5/1
文京区大塚5-40-18
【竣工】1992/8
【階建て】地上10F 、地下1F
|
【最寄駅】
|
【耐震】 |
新耐震 |
| 【基準階】 |
41.27坪 |
【エントランス】 |
平日・土開放 |
| 【駐車場】 |
有り |
【エレベーター】 |
1基 |
友成フォーサイトビルは、東京都文京区大塚に位置する地上10階建て、地下1階付きのオフィスビルです。1992年8月に竣工したSRC造(鉄骨鉄筋コンクリート造)の建物で、新耐震基準に適合した堅牢な…

| 図面 |
階数 |
面積 |
賃料(共益費込) (坪単価) |
保証金/敷金 |
礼金 |
入居可能日 |
|
|
4階 |
G 41.27坪 (136.46m2) |
500,000 (12,116) |
6ヶ月 |
無 |
即日 |
|
|
7階 |
G 41.27坪 (136.46m2) |
500,000 (12,116) |
6ヶ月 |
無 |
即日 |
|
物件番号:055351
更新日:2026/4/21
文京区本郷2-38-16
【竣工】1991/2
【階建て】地上8F 、地下1F
|
【最寄駅】
|
【耐震】 |
新耐震 |
| 【基準階】 |
161.98坪 |
【エントランス】 |
平日のみ開放 |
| 【駐車場】 |
有り |
【エレベーター】 |
2基 |
東京都文京区本郷2丁目に位置する「JEI本郷ビル」は、交通の利便性、広いフロア面積、そして充実した設備を兼ね備えたオフィスビルです。1991年2月に竣工したこの建物は、地上8階、地下1階建ての…

| 図面 |
階数 |
面積 |
賃料(共益費込) (坪単価) |
保証金/敷金 |
礼金 |
入居可能日 |
|
|
3階 |
G 42.48坪 (140.42m2) |
|
10ヶ月 |
無 |
2026/6/1 |
|
|
5階 |
G 42.48坪 (140.42m2) |
|
10ヶ月 |
無 |
2026/6/1 |
|
物件番号:025981
更新日:2026/4/20
文京区本郷1-28-24
【竣工】1991/1
【階建て】地上10F
|
【最寄駅】
|
【耐震】 |
新耐震 |
| 【基準階】 |
57.24坪 |
【エントランス】 |
全日開放(制限有) |
| 【駐車場】 |
有り |
【エレベーター】 |
1基 |
文京区本郷エリアに位置する「IS弓町ビル」は、春日通りに面した角地に建つ視認性の高い賃貸オフィスビルです。本郷1丁目アドレスに所在し、最寄り駅は東京メトロ丸ノ内線・都営大江戸線の本郷三…

| 図面 |
階数 |
面積 |
賃料(共益費込) (坪単価) |
保証金/敷金 |
礼金 |
入居可能日 |
|
|
6階 |
G 57.24坪 (189.24m2) |
|
3,949,560 (69,000) |
無 |
即日 |
|
|
9階 |
G 57.24坪 (189.22m2) |
|
3,949,560 (69,000) |
無 |
即日 |
|
物件番号:025882
更新日:2026/4/8
文京区本郷5-1-16
【竣工】1989/1
【階建て】地上11F 、地下1F
|
【最寄駅】
|
【耐震】 |
新耐震 |
| 【基準階】 |
42.97坪 |
【エントランス】 |
全日開放(制限有) |
| 【駐車場】 |
無し |
【エレベーター】 |
1基 |
VORT本郷は、文京区本郷5丁目、本郷通りに面した視認性の高いロケーションに位置する賃貸オフィスビルです。1989年に竣工し、新耐震基準を満たした鉄骨鉄筋コンクリート造・地上11階地下1階建て…

| 図面 |
階数 |
面積 |
賃料(共益費込) (坪単価) |
保証金/敷金 |
礼金 |
入居可能日 |
|
|
2階 |
G 40.11坪 (132.60m2) |
|
5ヶ月 |
1.0ヶ月 |
2026/4 予定 |
|
物件番号:025943
更新日:2026/4/17
文京区本郷2-12-10
【竣工】1988/10(改修:2026)
【階建て】地上5F 、地下1F
|
【最寄駅】
|
【耐震】 |
新耐震 |
| 【基準階】 |
57.10坪 |
【エントランス】 |
|
| 【駐車場】 |
無し |
【エレベーター】 |
1基 |
UT本郷ビルは、文京区本郷2-12-10にある物件です。徒歩5分圏内で東京メトロ丸ノ内線の本郷三丁目駅、徒歩6分圏内で都営大江戸線の本郷三丁目駅、徒歩7分圏内でJR中央線・JR総武線の御茶ノ水駅、…

| 図面 |
階数 |
面積 |
賃料(共益費込) (坪単価) |
保証金/敷金 |
礼金 |
入居可能日 |
|
|
2階 |
G 57.10坪 (188.76m2) |
1,427,500 (25,000) |
6ヶ月 |
無 |
即日 |
|
物件番号:025492
更新日:2026/5/1
文京区関口1-44-4
【竣工】1988/8
【階建て】地上8F
|
【最寄駅】
|
【耐震】 |
新耐震 |
| 【基準階】 |
45.14坪 |
【エントランス】 |
平日のみ開放 |
| 【駐車場】 |
有り |
【エレベーター】 |
1基 |
新荒井ビルは、文京区関口1丁目に位置する賃貸オフィスビルです。東京メトロ有楽町線・江戸川橋駅から徒歩4分の立地にあり、永田町駅・有楽町駅・飯田橋駅など主要エリアへのアクセスもスムーズ…

| 図面 |
階数 |
面積 |
賃料(共益費込) (坪単価) |
保証金/敷金 |
礼金 |
入居可能日 |
|
|
3階 |
G 44.89坪 (148.40m2) |
538,680 (12,000) |
6ヶ月 |
1.0ヶ月 |
即日 |
|
|
4階 |
G 45.14坪 (149.22m2) |
541,680 (12,000) |
6ヶ月 |
1.0ヶ月 |
即日 |
|
|
6階 |
G 45.14坪 (149.22m2) |
541,680 (12,000) |
6ヶ月 |
1.0ヶ月 |
即日 |
|
物件番号:026269
更新日:2026/5/1
文京区湯島3-2-12
【竣工】1988/8
【階建て】地上6F
|
【最寄駅】
|
【耐震】 |
新耐震 |
| 【基準階】 |
56.86坪 |
【エントランス】 |
平日・土開放 |
| 【駐車場】 |
有り |
【エレベーター】 |
1基 |
御茶ノ水天神ビルは、東京都文京区湯島3丁目、清水坂に面した角地に建つ視認性の高い賃貸オフィスビルです。湯島・御茶ノ水エリアは古くから文教地区として知られ、落ち着いた環境と利便性を兼ね…

| 図面 |
階数 |
面積 |
賃料(共益費込) (坪単価) |
保証金/敷金 |
礼金 |
入居可能日 |
|
|
2階 |
G 49.41坪 (163.34m2) |
765,855 (15,500) |
6ヶ月 |
無 |
即日 |
|
物件番号:025836
更新日:2026/4/20
文京区本郷6-17-9
【竣工】1988/8
【階建て】地上10F
|
【最寄駅】
|
【耐震】 |
新耐震 |
| 【基準階】 |
69.98坪 |
【エントランス】 |
平日・土開放 |
| 【駐車場】 |
無し |
【エレベーター】 |
2基 |
本郷綱ビルは、東京都文京区本郷6丁目に位置する賃貸オフィスビルです。本郷通りに面しており、視認性が高く、初めて訪れる来訪者にも分かりやすい立地が魅力です。周囲は交通量の多いエリアで、…

| 図面 |
階数 |
面積 |
賃料(共益費込) (坪単価) |
保証金/敷金 |
礼金 |
入居可能日 |
|
|
8階 |
G 40.95坪 (135.37m2) |
|
(未公開) |
無 |
2026/10/1 |
|
物件番号:025385
更新日:2026/4/30
文京区後楽1-1-5
【竣工】1986/9
【階建て】地上9F
|
【最寄駅】
|
【耐震】 |
新耐震 |
| 【基準階】 |
60.00坪 |
【エントランス】 |
|
| 【駐車場】 |
無し |
【エレベーター】 |
1基 |
水道橋外堀通ビルは、東京都文京区後楽1-1-5に位置するオフィスビルです。都営三田線「水道橋」駅から徒歩1分、JR総武線「水道橋」駅から徒歩2分、丸ノ内線「後楽園」駅から徒歩6分、都営新宿線…

| 図面 |
階数 |
面積 |
賃料(共益費込) (坪単価) |
保証金/敷金 |
礼金 |
入居可能日 |
|
|
2階 |
G 59.99坪 (198.31m2) |
|
2ヶ月 |
無 |
2026/5 中旬 |
|
物件番号:025899
更新日:2026/4/24
文京区本郷2-30-7
【竣工】1986/7
【階建て】地上6F
|
【最寄駅】
|
【耐震】 |
新耐震 |
| 【基準階】 |
55.00坪 |
【エントランス】 |
全日開放(24h) |
| 【駐車場】 |
無し |
【エレベーター】 |
1基 |
本郷T&Sビルは、東京都文京区本郷2-30-7に位置する地上6階建ての中規模オフィスビルです。1986年7月に竣工し、構造は鉄骨鉄筋コンクリート造(SRC造)で、新耐震基準に準拠しています。最寄り駅…

| 図面 |
階数 |
面積 |
賃料(共益費込) (坪単価) |
保証金/敷金 |
礼金 |
入居可能日 |
|
|
3階 |
G 55.00坪 (181.82m2) |
797,500 (14,500) |
6ヶ月 |
無 |
即日 |
|
物件番号:042111
更新日:2026/4/14
文京区後楽1-7-12
【竣工】1974/10
【階建て】地上6F 、地下1F
|
【最寄駅】
|
【耐震】 |
旧耐震 |
| 【基準階】 |
249.90坪 |
【エントランス】 |
平日のみ開放 |
| 【駐車場】 |
有り |
【エレベーター】 |
2基 |
東京都文京区後楽1丁目に位置する「林友ビル」は、アクセス性、利便性、設備の面で優れたオフィスビルです。1974年10月竣工の鉄筋コンクリート構造(RC造)で、地上6階、地下1階建てという堅実な…

| 図面 |
階数 |
面積 |
賃料(共益費込) (坪単価) |
保証金/敷金 |
礼金 |
入居可能日 |
|
|
3階 |
G 49.66坪 (164.17m2) |
855,294 (17,223) |
12ヶ月 |
無 |
即日 |
|
非公開物件の賃料目安アイコン
8,000 円未満
8,000 円以上~1.0 万円未満
1.0 万以上~1.2 万円未満
1.2 万以上~1.4 万円未満
1.4 万以上~1.6 万円未満
1.6 万以上~2.0 万円未満
2.0 万以上~2.5 万円未満
2.5 万以上~3.0 万円未満
3.0 万円以上
未定
※取引態様:媒介
※フロア図面と現況が異なる場合は現況を優先いたします。
※貸室内部の写真・貸室からの景色に関しては、現在の募集フロアと異なる場合がございます。
※取引態様:媒介
その他、文京区の貸事務所をお探しの方はこちらをクリック

トイレ男女別貸事務所を区から探す
千代田区のトイレ男女別貸事務所
中央区のトイレ男女別貸事務所
港区のトイレ男女別貸事務所
新宿区のトイレ男女別貸事務所
渋谷区のトイレ男女別貸事務所
台東区のトイレ男女別貸事務所
品川区のトイレ男女別貸事務所
豊島区のトイレ男女別貸事務所
文京区のトイレ男女別貸事務所
目黒区のトイレ男女別貸事務所
東京都内のトイレ男女別貸事務所
文京区の貸事務所検索ページ