新着の貸事務所、賃貸オフィス一覧(東京都内)(40~60坪)
最新の空き賃貸オフィス情報をチェック!
オフィス移転や新規開設を検討中の企業様へ、【最新の空き賃貸オフィス情報】をお届けします。人気エリアの物件はすぐに埋まるため、最新情報をいち早く確認し、理想のオフィスを確保しましょう。本ページでは、東京都心部を中心に、主要ビジネスエリアの最新空室情報を随時更新。広さや賃料、設備条件など、細かなニーズに合わせた検索が可能です。企業の成長を支えるハイグレードオフィスや、利便性の高い立地の物件など、多彩なラインナップをご用意しています。最新情報を活用して、最適なオフィスをスムーズに見つけましょう!気になる物件がございましたら、お気軽にお問い合わせください。
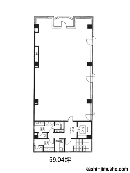
物件番号:070899
更新日:2026/4/15
千代田区神田司町2-7-9
【竣工】2020/2
【階建て】地上9F
|
【最寄駅】
|
【耐震】 |
新耐震 |
| 【基準階】 |
59.04坪 |
【エントランス】 |
オートロック |
| 【駐車場】 |
有り |
【エレベーター】 |
2基 |
ADPR神田司町ビルは、2020年2月に竣工したハイグレード賃貸オフィスビルです。東京都千代田区神田司町2-7-9に位置し、丸の内線淡路町駅から徒歩3分、都営新宿線小川町駅からも3分と抜群のアクセ…

| 図面 |
階数 |
面積 |
賃料(共益費込) (坪単価) |
保証金/敷金 |
礼金 |
入居可能日 |
|
|
NEW2階 |
G 59.04坪 (195.17m2) |
|
4ヶ月 |
無 |
相談 |
|
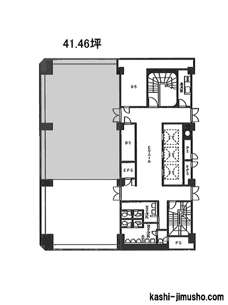
物件番号:023201
更新日:2026/4/17
品川区東大井5-7-10
【竣工】1993/2
【階建て】地上8F 、地下1F
|
【最寄駅】
|
【耐震】 |
新耐震 |
| 【基準階】 |
44.46坪 |
【エントランス】 |
全日開放(24h) |
| 【駐車場】 |
無し |
【エレベーター】 |
1基 |
クレストワンは、東京都品川区東大井にある魅力的なオフィスビルです。JR京浜東北線、東急大井町線、りんかい線の3路線が利用可能な大井町駅から徒歩4分の距離に位置しており、アクセスの良さが…

| 図面 |
階数 |
面積 |
賃料(共益費込) (坪単価) |
保証金/敷金 |
礼金 |
入居可能日 |
|
|
NEW4階 |
G 44.46坪 (146.98m2) |
|
8ヶ月 |
無 |
2026/6 上旬 |
|
物件番号:007177
更新日:2026/4/17
中央区新川1-23-5
【竣工】1990/8(改修:2023)
【階建て】地上14F 、地下1F
|
【最寄駅】
|
【耐震】 |
新耐震 |
| 【基準階】 |
174.23坪 |
【エントランス】 |
平日・土開放 |
| 【駐車場】 |
有り |
【エレベーター】 |
4基 |
ONE SHINKAWAは、中央区新川1-23-5に位置する賃貸オフィスビルです。最寄りの東京メトロ東西線・日比谷線「茅場町駅」からは徒歩7分、JR京葉線「八丁堀駅」および東京メトロ半蔵門線「水天宮前駅…

| 図面 |
階数 |
面積 |
賃料(共益費込) (坪単価) |
保証金/敷金 |
礼金 |
入居可能日 |
|
|
NEW14階 |
G 41.41坪 (136.89m2) |
911,020 (22,000) |
(未公開) |
無 |
即日 |
|
物件番号:032855
更新日:2026/4/14
新宿区新宿2-1-11
【竣工】1990/1
【階建て】地上10F
|
【最寄駅】
|
【耐震】 |
新耐震 |
| 【基準階】 |
53.58坪 |
【エントランス】 |
全日開放(制限有) |
| 【駐車場】 |
無し |
【エレベーター】 |
1基 |
御苑スカイビルは、東京都新宿区新宿2-1-11に位置する地上10階建てのオフィスビルです。1990年1月に竣工し、SRC造で建てられています。新耐震基準に適合しており、安全性にも優れています。交通…

| 図面 |
階数 |
面積 |
賃料(共益費込) (坪単価) |
保証金/敷金 |
礼金 |
入居可能日 |
|
|
NEW4階 |
G 53.58坪 (177.14m2) |
964,440 (18,000) |
8ヶ月 |
無 |
2026/6/1 |
|
物件番号:013239
更新日:2026/4/17
港区東麻布1-7-3
【竣工】1988/10
【階建て】地上8F 、地下1F
|
【最寄駅】
|
【耐震】 |
新耐震 |
| 【基準階】 |
38.42坪 |
【エントランス】 |
|
| 【駐車場】 |
無し |
【エレベーター】 |
1基 |
赤羽橋エリア。桜田通りに面した視認性抜群の貸事務所。第二渡邊ビルは港区東麻布1丁目、最寄り駅は都営大江戸線の赤羽橋駅です。地下鉄出口から徒歩5分圏内でアクセスできます。桜田通りに面し…

| 図面 |
階数 |
面積 |
賃料(共益費込) (坪単価) |
保証金/敷金 |
礼金 |
入居可能日 |
|
|
NEW2階 |
G 42.62坪 (140.89m2) |
895,020 (21,000) |
6ヶ月 |
無 |
2026/7 予定 |
|
|
NEW8階 |
G 42.62坪 (140.89m2) |
937,640 (22,000) |
6ヶ月 |
無 |
2026/7 予定 |
|
物件番号:003228
更新日:2026/4/15
千代田区神田多町2-4
【竣工】1987/7
【階建て】地上8F
|
【最寄駅】
|
【耐震】 |
新耐震 |
| 【基準階】 |
58.71坪 |
【エントランス】 |
平日・土開放 |
| 【駐車場】 |
無し |
【エレベーター】 |
1基 |
第二滝ビルは角地にあり窓面が多いため、太陽の光を存分に感じられる賃貸オフィスです。ビルの外観は白く、清潔感を感じさせます。千代田区神田多町2-4に位置し、JR山手線・JR中央線・JR京浜東北…

| 図面 |
階数 |
面積 |
賃料(共益費込) (坪単価) |
保証金/敷金 |
礼金 |
入居可能日 |
|
|
NEW8階 |
G 45.42坪 (150.16m2) |
681,260 (15,000) |
8ヶ月 |
無 |
2026/6 下旬 |
|
物件番号:014904
更新日:2026/4/17
港区虎ノ門1-7-6
【竣工】1983/11(改修:1999)
【階建て】地上7F 、地下1F
|
【最寄駅】
|
【耐震】 |
新耐震 |
| 【基準階】 |
54.37坪 |
【エントランス】 |
平日・土開放 |
| 【駐車場】 |
無し |
【エレベーター】 |
1基 |
升本ビルは東京都港区虎ノ門1-7-6にある賃貸オフィスビルです。桜田通りから一本入った角地に位置する視認性の高い立地です。黒を基調としたシックな色合いの外観です。石造りの高級感があるエン…

| 図面 |
階数 |
面積 |
賃料(共益費込) (坪単価) |
保証金/敷金 |
礼金 |
入居可能日 |
|
|
NEW2階 |
G 58.69坪 (194.04m2) |
|
7ヶ月 |
無 |
2026/7 上旬 |
|
物件番号:032955
更新日:2026/4/14
新宿区新宿5-2-1
【竣工】1974/11
【階建て】地上10F 、地下1F
|
【最寄駅】
|
【耐震】 |
旧耐震 |
| 【基準階】 |
|
【エントランス】 |
全日開放(24h) |
| 【駐車場】 |
無し |
【エレベーター】 |
1基 |
ニュー番衆ビルは、新宿区新宿5丁目に位置する地上10階・地下1階建てのオフィスビルです。1974年11月に竣工、SRC造の建物です。丸ノ内線「新宿御苑前駅」から徒歩6分、副都心線・都営新宿線「新…

| 図面 |
階数 |
面積 |
賃料(共益費込) (坪単価) |
保証金/敷金 |
礼金 |
入居可能日 |
|
|
NEW3階 |
G 43.52坪 (143.88m2) |
435,200 (10,000) |
4ヶ月 |
1.0ヶ月 |
即日 |
|
物件番号:032177
更新日:2026/4/14
新宿区西新宿3-1-4
【竣工】1974/2
【階建て】地上10F 、地下1F
|
【最寄駅】
|
【耐震】 |
旧耐震+補強済 or 基準OK |
| 【基準階】 |
40.00坪 |
【エントランス】 |
全日開放(24h) |
| 【駐車場】 |
無し |
【エレベーター】 |
1基 |
第2佐山ビルは、東京都新宿区西新宿3-1-4に位置する地上10階・地下1階のオフィスビルです。1974年2月に竣工し、SRC造で建てられています。交通アクセスは非常に優れています。京王新線の新線新宿…

| 図面 |
階数 |
面積 |
賃料(共益費込) (坪単価) |
保証金/敷金 |
礼金 |
入居可能日 |
|
|
NEW9階 |
G 40.00坪 (132.23m2) |
680,000 (17,000) |
10ヶ月 |
無 |
相談 |
|
物件番号:037662
更新日:2026/4/15
中央区銀座7-15-3
【竣工】1973/2(改修:1992)
【階建て】地上8F
|
【最寄駅】
|
【耐震】 |
旧耐震 |
| 【基準階】 |
41.70坪 |
【エントランス】 |
平日・土開放 |
| 【駐車場】 |
無し |
【エレベーター】 |
1基 |
第5安田ビルは、東京都中央区銀座7-15-3に位置する、機能性と利便性を兼ね備えたオフィスビルです。1973年2月に竣工したこのビルは、地上8階建ての鉄骨鉄筋コンクリート造(SRC造)です。東京メ…

| 図面 |
階数 |
面積 |
賃料(共益費込) (坪単価) |
保証金/敷金 |
礼金 |
入居可能日 |
|
|
NEW3階 |
G 41.70坪 (137.85m2) |
583,800 (14,000) |
6ヶ月 |
無 |
即日 |
|
物件番号:004267
更新日:2026/4/15
千代田区東神田1-10-4
【竣工】1972/4(改修:2005)
【階建て】地上10F 、地下1F
|
【最寄駅】
|
【耐震】 |
旧耐震 |
| 【基準階】 |
64.84坪 |
【エントランス】 |
平日・土開放 |
| 【駐車場】 |
有り |
【エレベーター】 |
1基 |
大通り沿いの角地!視認性・採光性抜群です!機械警備・光ファイバーを完備しています!ワンフロア・ワンテナントで使い勝手良好です!

| 図面 |
階数 |
面積 |
賃料(共益費込) (坪単価) |
保証金/敷金 |
礼金 |
入居可能日 |
|
|
NEW2階 |
G 51.61坪 (170.61m2) |
727,701 (14,100) |
5ヶ月 |
無 |
2026/7 |
|
物件番号:083921
更新日:2026/4/17
品川区西五反田1-3-10
【竣工】2026/10
【階建て】
|
【最寄駅】
|
【耐震】 |
新耐震 |
| 【基準階】 |
60.50坪 |
【エントランス】 |
オートロック |
| 【駐車場】 |
- |
【エレベーター】 |
1基 |
| 図面 |
階数 |
面積 |
賃料(共益費込) (坪単価) |
保証金/敷金 |
礼金 |
入居可能日 |
|
|
NEW7階 |
G 60.50坪 (200.00m2) |
1,754,500 (29,000) |
10ヶ月 |
1.0ヶ月 |
2026/10 |
|
|
NEW8階 |
G 60.50坪 (200.00m2) |
1,754,500 (29,000) |
10ヶ月 |
1.0ヶ月 |
2026/10 |
|
|
NEW9階 |
G 60.50坪 (200.00m2) |
1,754,500 (29,000) |
10ヶ月 |
1.0ヶ月 |
2026/10 |
|
|
NEW10階 |
G 60.50坪 (200.00m2) |
1,754,500 (29,000) |
10ヶ月 |
1.0ヶ月 |
2026/10 |
|
|
NEW11階 |
G 60.50坪 (200.00m2) |
1,815,000 (30,000) |
10ヶ月 |
1.0ヶ月 |
2026/10 |
|
物件番号:052065
更新日:2026/4/16
渋谷区富ヶ谷1-19-2
【竣工】2007/3
【階建て】地上4F 、地下1F
|
【最寄駅】
|
【耐震】 |
新耐震 |
| 【基準階】 |
|
【エントランス】 |
|
| 【駐車場】 |
- |
【エレベーター】 |
1基 |
| 図面 |
階数 |
面積 |
賃料(共益費込) (坪単価) |
保証金/敷金 |
礼金 |
入居可能日 |
|
|
NEWB1階 |
G 47.33坪 (156.47m2) |
1,467,230 (31,000) |
10ヶ月 |
1.0ヶ月 |
2026/10 上旬 |
|
物件番号:019527
更新日:2026/4/16
渋谷区千駄ヶ谷3-12-15
【竣工】1981/12
【階建て】地上4F
|
【最寄駅】
|
【耐震】 |
|
| 【基準階】 |
|
【エントランス】 |
|
| 【駐車場】 |
無し |
【エレベーター】 |
無 |
| 図面 |
階数 |
面積 |
賃料(共益費込) (坪単価) |
保証金/敷金 |
礼金 |
入居可能日 |
|
|
NEW1階 |
G 45.83坪 (151.50m2) |
1,055,000 (23,020) |
6ヶ月 |
2.0ヶ月 |
相談 |
|
物件番号:083907
更新日:2026/4/14
港区南青山6-8-1
【竣工】1967
【階建て】地上5F
|
【最寄駅】
|
【耐震】 |
旧耐震 |
| 【基準階】 |
|
【エントランス】 |
|
| 【駐車場】 |
無し |
【エレベーター】 |
無 |
| 図面 |
階数 |
面積 |
賃料(共益費込) (坪単価) |
保証金/敷金 |
礼金 |
入居可能日 |
|
|
NEW1-5階 |
G 50.57坪 (167.20m2) |
1,200,000 (23,729) |
6ヶ月 |
2.0ヶ月 |
相談 |
|
非公開物件の賃料目安アイコン
8,000 円未満
8,000 円以上~1.0 万円未満
1.0 万以上~1.2 万円未満
1.2 万以上~1.4 万円未満
1.4 万以上~1.6 万円未満
1.6 万以上~2.0 万円未満
2.0 万以上~2.5 万円未満
2.5 万以上~3.0 万円未満
3.0 万円以上
未定
※取引態様:媒介
※フロア図面と現況が異なる場合は現況を優先いたします。
※貸室内部の写真・貸室からの景色に関しては、現在の募集フロアと異なる場合がございます。
※取引態様:媒介
最新テナント募集情報に関するお問合せ