新着の貸事務所、賃貸オフィス一覧(東京都内)
最新の空き賃貸オフィス情報をチェック!
オフィス移転や新規開設を検討中の企業様へ、【最新の空き賃貸オフィス情報】をお届けします。人気エリアの物件はすぐに埋まるため、最新情報をいち早く確認し、理想のオフィスを確保しましょう。本ページでは、東京都心部を中心に、主要ビジネスエリアの最新空室情報を随時更新。広さや賃料、設備条件など、細かなニーズに合わせた検索が可能です。企業の成長を支えるハイグレードオフィスや、利便性の高い立地の物件など、多彩なラインナップをご用意しています。最新情報を活用して、最適なオフィスをスムーズに見つけましょう!気になる物件がございましたら、お気軽にお問い合わせください。
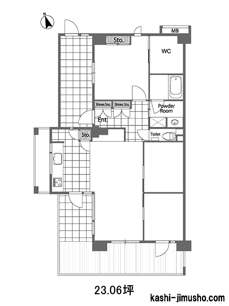
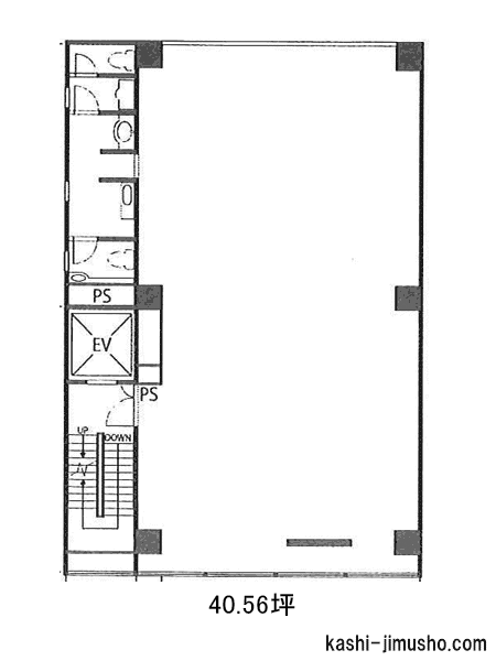
物件番号:074063
更新日:2025/11/10
中央区八丁堀4-3-5
【竣工】2021/5
【階建て】地上11F
|
【最寄駅】
|
【耐震】 |
新耐震 |
| 【基準階】 |
67.05坪 |
【エントランス】 |
オートロック |
| 【駐車場】 |
有り |
【エレベーター】 |
2基 |
京橋宝町PREXは、中央区八丁堀4丁目に位置するスタイリッシュでハイグレードな賃貸オフィスビルです。平成通りに面した角地に建ち、視認性の高い立地を誇ります。最寄駅は都営浅草線・宝町駅で、…

| 図面 |
階数 |
面積 |
賃料(共益費込) (坪単価) |
保証金/敷金 |
礼金 |
入居可能日 |
|
|
NEW8階 |
G 67.05坪 (221.64m2) |
|
6ヶ月 |
無 |
2026/4/7 |
|
物件番号:073026
更新日:2025/11/11
港区六本木7-8-7
【竣工】2020/3
【階建て】地上8F
|
【最寄駅】
|
【耐震】 |
新耐震 |
| 【基準階】 |
20.52坪 |
【エントランス】 |
オートロック |
| 【駐車場】 |
無し |
【エレベーター】 |
1基 |
複数路線が利用可能で交通アクセス良好です。管理の行き届いた清潔感のあるエントランスです。ワンフロア・ワンテナントなので使い勝手の良い貸室です。

| 図面 |
階数 |
面積 |
賃料(共益費込) (坪単価) |
保証金/敷金 |
礼金 |
入居可能日 |
|
|
NEW5階 |
G 20.52坪 (67.83m2) |
677,160 (33,000) |
2,462,400 (4ヶ月) |
無 |
即日 |
|
物件番号:069834
更新日:2025/11/10
千代田区麹町3-1
【竣工】2018/8
【階建て】地上11F 、地下1F
|
【最寄駅】
|
【耐震】 |
新耐震 |
| 【基準階】 |
59.44坪 |
【エントランス】 |
全日開放(制限有) |
| 【駐車場】 |
有り |
【エレベーター】 |
2基 |
千代田区麹町3丁目にある、KOJIMACHI TERRACEです。徒歩2分圏内で東京メトロ有楽町線の麹町駅、徒歩3分圏内で東京メトロ半蔵門線の半蔵門駅、徒歩7分圏内で東京メトロ南北線等の永田町駅がアクセ…

| 図面 |
階数 |
面積 |
賃料(共益費込) (坪単価) |
保証金/敷金 |
礼金 |
入居可能日 |
|
|
NEW10階 |
G 42.86坪 (141.71m2) |
|
(未公開) |
無 |
2026/5 上旬 |
|
物件番号:062264
更新日:2025/11/10
渋谷区恵比寿1-8-4
【竣工】2013/8
【階建て】地上9F
|
【最寄駅】
|
【耐震】 |
新耐震+免震 |
| 【基準階】 |
27.64坪 |
【エントランス】 |
全日開放(制限有) |
| 【駐車場】 |
無し |
【エレベーター】 |
1基 |
植栽のあるエントランスが印象的なオフィスビルです!免震構造・非常用発電完備で防災対策万全な賃貸オフィスです!ワンフロア・ワンテナントで使い勝手良好です!

| 図面 |
階数 |
面積 |
賃料(共益費込) (坪単価) |
保証金/敷金 |
礼金 |
入居可能日 |
|
|
NEW7階 |
G 27.64坪 (91.37m2) |
|
12ヶ月 |
無 |
2026/4 中旬 |
|
物件番号:062653
更新日:2025/11/10
中央区湊3-3-3
【竣工】2012/8
【階建て】地上4F
|
【最寄駅】
|
【耐震】 |
新耐震 |
| 【基準階】 |
50.00坪 |
【エントランス】 |
|
| 【駐車場】 |
有り |
【エレベーター】 |
無 |
新富町駅、築地駅が利用可能で交通アクセス良好です!2012年竣工の新耐震基準を満たした物件です!個別空調やOAフロアなどの設備が充実しています!

| 図面 |
階数 |
面積 |
賃料(共益費込) (坪単価) |
保証金/敷金 |
礼金 |
入居可能日 |
|
|
NEW1階 |
G 24.16坪 (79.87m2) |
|
6ヶ月 |
無 |
2026/2/1 |
|
物件番号:054136
更新日:2025/11/11
港区高輪3-19-26
【竣工】2008/9
【階建て】地上9F
|
【最寄駅】
|
【耐震】 |
新耐震 |
| 【基準階】 |
79.46坪 |
【エントランス】 |
平日のみ開放 |
| 【駐車場】 |
有り |
【エレベーター】 |
2基 |
SOC高輪ビルは、港区高輪3丁目に位置する品川・高輪エリアの魅力を活かしたハイグレードな賃貸オフィスビルです。JR各線および京急本線の品川駅から徒歩6分圏内という利便性に優れた立地で、第一…

| 図面 |
階数 |
面積 |
賃料(共益費込) (坪単価) |
保証金/敷金 |
礼金 |
入居可能日 |
|
|
NEW8階 |
G 79.46坪 (262.68m2) |
1,986,500 (25,000) |
23,838,000 (12ヶ月) |
無 |
2026/2/1 |
|
物件番号:055327
更新日:2025/11/10
港区麻布十番3-6-2
【竣工】2008/8
【階建て】地上13F 、地下1F
|
【最寄駅】
|
【耐震】 |
新耐震 |
| 【基準階】 |
35.01坪 |
【エントランス】 |
全日開放(制限有) |
| 【駐車場】 |
無し |
【エレベーター】 |
1基 |
NS麻布十番ビルは、港区麻布十番3-6-2にある賃貸オフィスビルです。徒歩3分圏内で東京メトロ南北線の麻布十番駅、徒歩5分圏内で都営大江戸線の麻布十番駅が利用可能となっています。複数路線が利…

| 図面 |
階数 |
面積 |
賃料(共益費込) (坪単価) |
保証金/敷金 |
礼金 |
入居可能日 |
|
|
NEW13階 |
G 35.01坪 (115.75m2) |
875,250 (25,000) |
6,161,760 (8ヶ月) |
無 |
2026/5/1 |
|
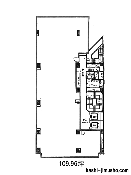
物件番号:041840
更新日:2025/11/12
品川区東品川4-12-1
【竣工】2004/8
【階建て】地上18F 、地下1F
|
【最寄駅】
|
【耐震】 |
新耐震+制震 |
| 【基準階】 |
596.44坪 |
【エントランス】 |
平日のみ開放 |
| 【駐車場】 |
有り |
【エレベーター】 |
13基 |
品川区東品川4丁目にある、品川シーサイドサウスタワーです。最寄駅は、りんかい線の品川シーサイド駅です。徒歩3分圏内でアクセス可能です。京急本線の青物横丁駅も徒歩10分圏内でアクセス可能…

| 図面 |
階数 |
面積 |
賃料(共益費込) (坪単価) |
保証金/敷金 |
礼金 |
入居可能日 |
|
|
NEW2階 |
N 85.00坪 (280.99m2) |
|
12ヶ月 |
無 |
相談 |
|
|
NEW2階 |
N 89.00坪 (294.22m2) |
|
12ヶ月 |
無 |
相談 |
|
|
NEW2階 |
N 193.59坪 (639.97m2) |
|
12ヶ月 |
無 |
2026/5/1 |
|
物件番号:077576
更新日:2025/11/11
渋谷区代々木1-44-4
【竣工】2004/4
【階建て】地上4F
|
【最寄駅】
|
【耐震】 |
新耐震 |
| 【基準階】 |
|
【エントランス】 |
|
| 【駐車場】 |
無し |
【エレベーター】 |
無 |
複数路線が利用可能で交通アクセス良好です。グレーを基調としたデザイン性の高いオシャレな外観です。シンプルな形状でレイアウトのしやすい貸室です。

| 図面 |
階数 |
面積 |
賃料(共益費込) (坪単価) |
保証金/敷金 |
礼金 |
入居可能日 |
|
|
NEW1-4階 |
G 42.56坪 (140.72m2) |
800,000 (18,797) |
2,400,000 (3ヶ月) |
1.0ヶ月 |
2025/12 予定 |
|
物件番号:072607
更新日:2025/11/10
豊島区南大塚3-37-2
【竣工】2000/6
【階建て】地上6F
|
【最寄駅】
|
【耐震】 |
新耐震 |
| 【基準階】 |
20.93坪 |
【エントランス】 |
オートロック |
| 【駐車場】 |
無し |
【エレベーター】 |
1基 |
向原駅より徒歩2分!大塚駅より徒歩4分の好立地!オートロックでセキュリティも安心!ワンフロア・ワンテナントの使いやすい貸事務所!

| 図面 |
階数 |
面積 |
賃料(共益費込) (坪単価) |
保証金/敷金 |
礼金 |
入居可能日 |
|
|
NEW3階 |
G 20.93坪 (69.20m2) |
230,000 (10,989) |
660,000 (3ヶ月) |
1.0ヶ月 |
相談 |
|
物件番号:000809
更新日:2025/11/12
千代田区永田町2-11-1
【竣工】2000/1
【階建て】地上44F 、地下4F
|
【最寄駅】
|
【耐震】 |
新耐震 |
| 【基準階】 |
1018.00坪 |
【エントランス】 |
平日のみ開放 |
| 【駐車場】 |
有り |
【エレベーター】 |
61基 |
山王パークタワーは、東京都千代田区永田町2丁目11番1号に位置する超高層の賃貸オフィスビルです。東京メトロ銀座線・南北線の「溜池山王駅」、および東京メトロ丸ノ内線・千代田線の「国会議事…

| 図面 |
階数 |
面積 |
賃料(共益費込) (坪単価) |
保証金/敷金 |
礼金 |
入居可能日 |
|
|
NEW20階 |
N 52.33坪 (172.99m2) |
|
(未公開) |
無 |
2026/8/1 |
|
|
NEW20階 |
N 372.83坪 (1232.50m2) |
|
(未公開) |
無 |
2026/8/1 |
|
物件番号:015164
更新日:2025/11/12
港区芝大門1-11-4
【竣工】1998/3
【階建て】地上4F
|
【最寄駅】
|
【耐震】 |
新耐震 |
| 【基準階】 |
33.70坪 |
【エントランス】 |
全日開放(制限有) |
| 【駐車場】 |
無し |
【エレベーター】 |
1基 |
複数路線が利用可能、駅まで6分以内の便利な立地です!室内の形が良くレイアウトの組みやすいオフィスです!ワンフロア・ワンテナントで使い勝手良好です!

| 図面 |
階数 |
面積 |
賃料(共益費込) (坪単価) |
保証金/敷金 |
礼金 |
入居可能日 |
|
|
NEW3階 |
G 37.36坪 (123.50m2) |
597,760 (16,000) |
3,586,560 (6ヶ月) |
無 |
即日 |
|
物件番号:003449
更新日:2025/11/10
千代田区神田須田町1-5-1
【竣工】1997/8
【階建て】地上9F 、地下1F
|
【最寄駅】
|
【耐震】 |
新耐震 |
| 【基準階】 |
30.77坪 |
【エントランス】 |
|
| 【駐車場】 |
無し |
【エレベーター】 |
1基 |
複数路線が利用可能!交通アクセス抜群!靖国通り沿いのわかりやすい立地!石張りの重厚感のあるオフィスビル!

| 図面 |
階数 |
面積 |
賃料(共益費込) (坪単価) |
保証金/敷金 |
礼金 |
入居可能日 |
|
|
NEW4階 |
G 30.77坪 (101.72m2) |
|
(未公開) |
(未公開) |
2026/5 上旬 |
|
物件番号:000508
更新日:2025/11/11
千代田区麹町4-2-1
【竣工】1997/3
【階建て】地上10F 、地下2F
|
【最寄駅】
|
【耐震】 |
新耐震 |
| 【基準階】 |
48.77坪 |
【エントランス】 |
平日・土開放 |
| 【駐車場】 |
無し |
【エレベーター】 |
1基 |
千代田区麹町4丁目にある、MK麹町ビルです。最寄駅は、麹町駅です。東京メトロ有楽町線が徒歩1分圏内でアクセス可能な好立地です。東京メトロ半蔵門線の半蔵門駅が徒歩5分圏内、JR中央線・JR総武…

| 図面 |
階数 |
面積 |
賃料(共益費込) (坪単価) |
保証金/敷金 |
礼金 |
入居可能日 |
|
|
NEW9階 |
G 31.35坪 (103.63m2) |
|
12ヶ月 |
無 |
2026/2/1 |
|
物件番号:036643
更新日:2025/11/10
港区芝5-31-7
【竣工】1997/3
【階建て】地上12F 、地下2F
|
【最寄駅】
|
【耐震】 |
新耐震 |
| 【基準階】 |
54.36坪 |
【エントランス】 |
|
| 【駐車場】 |
無し |
【エレベーター】 |
1基 |
三田ステーションビルアミタは、東京都港区芝五丁目に位置する利便性の高いオフィスビルです。都営浅草線・三田線「三田駅」から徒歩1分、A3出口に直結しており、駅から雨に濡れずにダイレクトア…

| 図面 |
階数 |
面積 |
賃料(共益費込) (坪単価) |
保証金/敷金 |
礼金 |
入居可能日 |
|
|
NEW7階 |
N 25.17坪 (83.21m2) |
|
6ヶ月 |
無 |
2026/5/1 |
|
|
NEW7階 |
N 30.62坪 (101.22m2) |
|
6ヶ月 |
無 |
2026/5/1 |
|
物件番号:003442
更新日:2025/11/11
千代田区神田須田町2-7-3
【竣工】1995/1
【階建て】地上9F 、地下1F
|
【最寄駅】
|
【耐震】 |
新耐震 |
| 【基準階】 |
124.85坪 |
【エントランス】 |
平日のみ開放 |
| 【駐車場】 |
有り |
【エレベーター】 |
2基 |
千代田区神田須田町2丁目にある、VORT秋葉原BLD.です。徒歩5分圏内で、東京メトロ銀座線の神田駅、東京メトロ丸ノ内線の淡路町駅、都営新宿線の岩本町駅・小川町駅、JR山手線・JR京浜東北線の秋…

| 図面 |
階数 |
面積 |
賃料(共益費込) (坪単価) |
保証金/敷金 |
礼金 |
入居可能日 |
|
|
NEW2階 |
N 124.85坪 (412.73m2) |
|
5ヶ月 |
1.0ヶ月 |
2026/5/5 |
|
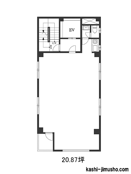
物件番号:032145
更新日:2025/11/11
新宿区西新宿3-7-1
【竣工】1994/4
【階建て】地上52F 、地下5F
|
【最寄駅】
|
【耐震】 |
新耐震+制震 |
| 【基準階】 |
1030.08坪 |
【エントランス】 |
全日開放(制限有) |
| 【駐車場】 |
有り |
【エレベーター】 |
35基 |
新宿パークタワーは、新宿新都心のビジネスエリアに位置するハイグレードな賃貸オフィスビルです。所在地は新宿区西新宿3-7-1で、京王新線の初台駅および都営大江戸線の都庁前駅から徒歩10分圏内…

| 図面 |
階数 |
面積 |
賃料(共益費込) (坪単価) |
保証金/敷金 |
礼金 |
入居可能日 |
|
|
NEW30階 |
N 397.00坪 (1312.40m2) |
|
(未公開) |
(未公開) |
2028/1 予定 |
|
|
NEW31階 |
N 964.00坪 (3186.79m2) |
|
(未公開) |
(未公開) |
2028/1 予定 |
|
|
NEW36階 |
N 676.00坪 (2234.72m2) |
|
(未公開) |
(未公開) |
2028/1 予定 |
|
物件番号:015367
更新日:2025/11/12
港区浜松町2-7-16
【竣工】1994/2
【階建て】地上10F 、地下1F
|
【最寄駅】
|
【耐震】 |
新耐震 |
| 【基準階】 |
51.16坪 |
【エントランス】 |
平日のみ開放 |
| 【駐車場】 |
有り |
【エレベーター】 |
2基 |
第3小森谷ビルは、港区浜松町2丁目に位置する賃貸オフィスビルです。浜松町エリアの中でも第一京浜(国道15号)沿いに面しており、視認性が非常に高く、訪問客にも説明しやすい立地が魅力です。…

| 図面 |
階数 |
面積 |
賃料(共益費込) (坪単価) |
保証金/敷金 |
礼金 |
入居可能日 |
|
|
NEW3階 |
G 51.16坪 (169.12m2) |
844,140 (16,500) |
5,525,280 (8ヶ月) |
無 |
即日 |
|
物件番号:039068
更新日:2025/11/10
新宿区新宿1-14-5
【竣工】1994/2
【階建て】地上10F
|
【最寄駅】
|
【耐震】 |
新耐震 |
| 【基準階】 |
60.52坪 |
【エントランス】 |
全日開放(制限有) |
| 【駐車場】 |
無し |
【エレベーター】 |
1基 |
新宿KMビルは、東京都新宿区新宿1丁目14-5に位置する賃貸オフィスビルです。最寄り駅は東京メトロ丸ノ内線・新宿御苑前駅で、駅から徒歩1分という極めて利便性の高い立地にあります。さらに、東…

| 図面 |
階数 |
面積 |
賃料(共益費込) (坪単価) |
保証金/敷金 |
礼金 |
入居可能日 |
|
|
NEW6階 |
G 35.84坪 (118.50m2) |
645,120 (18,000) |
3,225,600 (6ヶ月) |
1.0ヶ月 |
2026/1 中旬 |
|
物件番号:017516
更新日:2025/11/11
台東区台東4-9-3
【竣工】1993/5
【階建て】地上9F
|
【最寄駅】
|
【耐震】 |
新耐震 |
| 【基準階】 |
78.94坪 |
【エントランス】 |
全日開放(制限有) |
| 【駐車場】 |
有り |
【エレベーター】 |
2基 |
豊ビルは、東京都台東区台東4丁目に位置する地上9階建てのオフィスビルです。日比谷線仲御徒町駅から徒歩1分という非常に便利な立地にあり、銀座線上野広小路駅および都営大江戸線上野御徒町駅か…

| 図面 |
階数 |
面積 |
賃料(共益費込) (坪単価) |
保証金/敷金 |
礼金 |
入居可能日 |
|
|
NEW6階 |
G 78.54坪 (259.64m2) |
|
12ヶ月 |
無 |
2026/5/1 |
|
物件番号:022080
更新日:2025/11/12
渋谷区東3-14-15
【竣工】1992/4
【階建て】地上10F 、地下2F
|
【最寄駅】
|
【耐震】 |
新耐震 |
| 【基準階】 |
139.89坪 |
【エントランス】 |
平日のみ開放 |
| 【駐車場】 |
- |
【エレベーター】 |
2基 |
明治通り沿いのデザイン性が高い賃貸オフィスビルです。MOビルは、渋谷区東3-14-15にある物件です。徒歩5分圏内でJR山手線・JR総武線の恵比寿駅、徒歩6分圏内で東京メトロ日比谷線の恵比寿駅、徒…

| 図面 |
階数 |
面積 |
賃料(共益費込) (坪単価) |
保証金/敷金 |
礼金 |
入居可能日 |
|
|
NEW6階 |
G 68.14坪 (225.26m2) |
1,499,080 (22,000) |
3,883,980 (3ヶ月) |
1.0ヶ月 |
2026/4 上旬 |
|
物件番号:067549
更新日:2025/11/11
千代田区神田東松下町23-1
【竣工】1992/3(改修:2017)
【階建て】地上7F 、地下1F
|
【最寄駅】
|
【耐震】 |
新耐震 |
| 【基準階】 |
47.38坪 |
【エントランス】 |
平日のみ開放 |
| 【駐車場】 |
無し |
【エレベーター】 |
1基 |
岩本町駅より徒歩1分圏内、ワンフロア約47坪の貸事務所。Yunuoビル は、千代田区神田東松下町23-1の物件です。都営新宿線 岩本町駅より徒歩1分圏内の好立地、一八通りに面しています。東京メトロ…

| 図面 |
階数 |
面積 |
賃料(共益費込) (坪単価) |
保証金/敷金 |
礼金 |
入居可能日 |
|
|
NEW2階 |
G 47.38坪 (156.64m2) |
900,220 (19,000) |
5,500,000 (116,083) |
1.0ヶ月 |
相談 |
|
物件番号:000938
更新日:2025/11/11
千代田区九段南2-6-8
【竣工】1991/7
【階建て】地上6F 、地下2F
|
【最寄駅】
|
【耐震】 |
新耐震 |
| 【基準階】 |
54.23坪 |
【エントランス】 |
平日のみ開放 |
| 【駐車場】 |
有り |
【エレベーター】 |
1基 |
九段下駅の3路線が利用可能です。ワンフロア・ワンテナントで使い勝手が良いです。機械警備・光ファイバーの設備を完備しています。

| 図面 |
階数 |
面積 |
賃料(共益費込) (坪単価) |
保証金/敷金 |
礼金 |
入居可能日 |
|
|
NEW4階 |
G 54.23坪 (179.27m2) |
|
10ヶ月 |
無 |
即日 |
|
|
NEW5階 |
G 54.23坪 (179.27m2) |
|
10ヶ月 |
無 |
即日 |
|
物件番号:055384
更新日:2025/11/12
港区六本木7-2-29
【竣工】1991/5
【階建て】地上5F 、地下1F
|
【最寄駅】
|
【耐震】 |
新耐震 |
| 【基準階】 |
82.92坪 |
【エントランス】 |
|
| 【駐車場】 |
有り |
【エレベーター】 |
1基 |
静かな立地!落ち着いて仕事が出来る環境!大きな窓で明るい貸室内!ワンフロア・ワンテナントの使い勝手良好なオフィス空間!

| 図面 |
階数 |
面積 |
賃料(共益費込) (坪単価) |
保証金/敷金 |
礼金 |
入居可能日 |
|
|
NEW3階 |
G 83.45坪 (275.87m2) |
|
5ヶ月 |
1.0ヶ月 |
相談 |
|
物件番号:046593
更新日:2025/11/12
港区南青山5-11-14
【竣工】1991/5
【階建て】地上6F 、地下2F
|
【最寄駅】
|
【耐震】 |
新耐震 |
| 【基準階】 |
116.72坪 |
【エントランス】 |
オートロック |
| 【駐車場】 |
有り |
【エレベーター】 |
1基 |
H&M南青山EASTは、東京都港区南青山5丁目に位置するオフィスビルです。東京メトロ銀座線・半蔵門線・千代田線の表参道駅から徒歩4分という好立地にあり、都内各地へのアクセスが非常に良好です。…

| 図面 |
階数 |
面積 |
賃料(共益費込) (坪単価) |
保証金/敷金 |
礼金 |
入居可能日 |
|
|
NEWB1階 |
G 93.02坪 (307.52m2) |
2,790,600 (30,000) |
23,706,000 (10ヶ月) |
2.0ヶ月 |
即日 |
|
物件番号:064989
更新日:2025/11/12
渋谷区恵比寿南2-6-11
【竣工】1991/3
【階建て】地上4F
|
【最寄駅】
|
【耐震】 |
新耐震 |
| 【基準階】 |
27.86坪 |
【エントランス】 |
|
| 【駐車場】 |
有り |
【エレベーター】 |
無 |
部屋型は正形でレイアウト自由自在です!1階部分には駐車スペースがあり、搬出入に便利です!

| 図面 |
階数 |
面積 |
賃料(共益費込) (坪単価) |
保証金/敷金 |
礼金 |
入居可能日 |
|
|
NEW3階 |
G 27.86坪 (92.10m2) |
400,000 (14,358) |
2,400,000 (6ヶ月) |
1.0ヶ月 |
2025/12 上旬 |
|
物件番号:041653
更新日:2025/11/12
目黒区上目黒1-3-7
【竣工】1990/7
【階建て】地上9F
|
【最寄駅】
|
【耐震】 |
新耐震 |
| 【基準階】 |
76.85坪 |
【エントランス】 |
全日開放(制限有) |
| 【駐車場】 |
有り |
【エレベーター】 |
1基 |
VORT代官山は、東京都目黒区上目黒1-3-7に位置する地上9階建てのオフィスビルです。1990年7月に竣工し、構造は鉄骨鉄筋コンクリート造(SRC造)で建てられています。新耐震基準に適合しており、…

| 図面 |
階数 |
面積 |
賃料(共益費込) (坪単価) |
保証金/敷金 |
礼金 |
入居可能日 |
|
|
NEW7階 |
G 47.28坪 (156.30m2) |
|
5ヶ月 |
1.0ヶ月 |
2026/5/6 |
|
物件番号:044286
更新日:2025/11/10
品川区西五反田3-6-20
【竣工】1990/3
【階建て】地上9F
|
【最寄駅】
|
【耐震】 |
新耐震 |
| 【基準階】 |
42.82坪 |
【エントランス】 |
全日開放(制限有) |
| 【駐車場】 |
無し |
【エレベーター】 |
1基 |
いちご西五反田ビルは、東京都品川区西五反田3丁目6-20に位置する賃貸オフィスビルで、ビジネスの利便性と快適な環境を兼ね備えた物件です。最寄り駅はJR山手線、東急池上線、都営浅草線が乗り入…

| 図面 |
階数 |
面積 |
賃料(共益費込) (坪単価) |
保証金/敷金 |
礼金 |
入居可能日 |
|
|
NEW9階 |
G 42.82坪 (141.55m2) |
|
(未公開) |
無 |
2026/5/5 |
|
物件番号:016800
更新日:2025/11/9
台東区上野3-6-4
【竣工】1990/3
【階建て】地上5F
|
【最寄駅】
|
【耐震】 |
新耐震 |
| 【基準階】 |
21.98坪 |
【エントランス】 |
オートロック |
| 【駐車場】 |
無し |
【エレベーター】 |
1基 |
スッキリとした落ち着いた印象のオフィスです!シンプルな形状でレイアウトのしやすい貸室内です!ワンフロア・ワンテナントで使い勝手が良いです!

| 図面 |
階数 |
面積 |
賃料(共益費込) (坪単価) |
保証金/敷金 |
礼金 |
入居可能日 |
|
|
NEW4階 |
G 21.98坪 (72.66m2) |
307,720 (14,000) |
2,637,600 (10ヶ月) |
無 |
2026/2/1 |
|
物件番号:000592
更新日:2025/11/10
千代田区紀尾井町3-12
【竣工】1989/11
【階建て】地上26F 、地下4F
|
【最寄駅】
|
【耐震】 |
新耐震 |
| 【基準階】 |
382.03坪 |
【エントランス】 |
全日開放(制限有) |
| 【駐車場】 |
有り |
【エレベーター】 |
12基 |
千代田区紀尾井町3-12にある、紀尾井町ビルです。最寄駅は、東京メトロ有楽町線の麹町駅です。また、東京メトロ銀座線・丸ノ内線の赤坂見附駅、東京メトロ南北線・半蔵門線の永田町駅も徒歩10分…

| 図面 |
階数 |
面積 |
賃料(共益費込) (坪単価) |
保証金/敷金 |
礼金 |
入居可能日 |
|
|
NEW17階 |
N 108.63坪 (359.11m2) |
|
12ヶ月 |
無 |
2026/5/1 |
|
|
NEW18階 |
N 190.60坪 (630.09m2) |
|
12ヶ月 |
無 |
2026/5/1 |
|
※取引態様:媒介
※フロア図面と現況が異なる場合は現況を優先いたします。
※貸室内部の写真・貸室からの景色に関しては、現在の募集フロアと異なる場合がございます。
※取引態様:媒介
最新テナント募集情報に関するお問合せ