新着の貸事務所、賃貸オフィス一覧(東京都内)(150~200坪)
最新の空き賃貸オフィス情報をチェック!
オフィス移転や新規開設を検討中の企業様へ、【最新の空き賃貸オフィス情報】をお届けします。人気エリアの物件はすぐに埋まるため、最新情報をいち早く確認し、理想のオフィスを確保しましょう。本ページでは、東京都心部を中心に、主要ビジネスエリアの最新空室情報を随時更新。広さや賃料、設備条件など、細かなニーズに合わせた検索が可能です。企業の成長を支えるハイグレードオフィスや、利便性の高い立地の物件など、多彩なラインナップをご用意しています。最新情報を活用して、最適なオフィスをスムーズに見つけましょう!気になる物件がございましたら、お気軽にお問い合わせください。
総数:1棟(1件)
- 1
| 図面 | 階数 | 面積 | 賃料(共益費込) (坪単価) |
保証金/敷金 | 礼金 | 入居可能日 | |
|---|---|---|---|---|---|---|---|
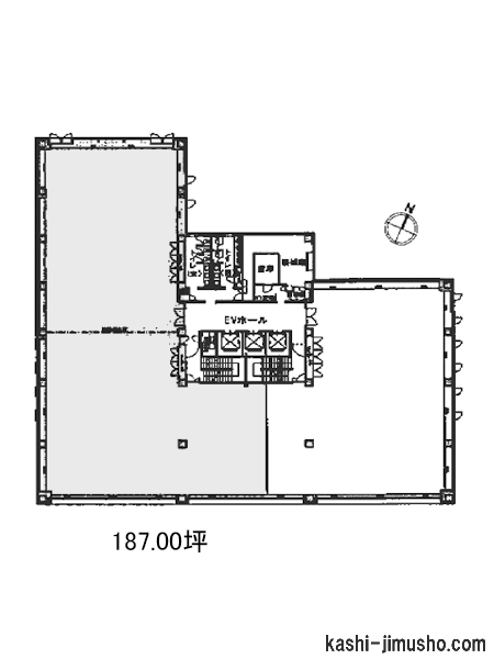
| NEW3階 | N 187.00坪 (618.18m2) |
3,553,000 (19,000) |
12ヶ月 | 無 | 2026/9 |
|
※取引態様:媒介
※フロア図面と現況が異なる場合は現況を優先いたします。
※貸室内部の写真・貸室からの景色に関しては、現在の募集フロアと異なる場合がございます。
総数:1棟(1件)
- 1
※取引態様:媒介
最新テナント募集情報に関するお問合せ

