新着の貸事務所、賃貸オフィス一覧(東京都内)(20~40坪)
最新の空き賃貸オフィス情報をチェック!
オフィス移転や新規開設を検討中の企業様へ、【最新の空き賃貸オフィス情報】をお届けします。人気エリアの物件はすぐに埋まるため、最新情報をいち早く確認し、理想のオフィスを確保しましょう。本ページでは、東京都心部を中心に、主要ビジネスエリアの最新空室情報を随時更新。広さや賃料、設備条件など、細かなニーズに合わせた検索が可能です。企業の成長を支えるハイグレードオフィスや、利便性の高い立地の物件など、多彩なラインナップをご用意しています。最新情報を活用して、最適なオフィスをスムーズに見つけましょう!気になる物件がございましたら、お気軽にお問い合わせください。
物件番号:079043
更新日:2026/4/17
千代田区神田三崎町2-21-6
【竣工】2023/1
【階建て】地上6F
|
【最寄駅】
|
【耐震】 |
新耐震 |
| 【基準階】 |
30.20坪 |
【エントランス】 |
オートロック |
| 【駐車場】 |
無し |
【エレベーター】 |
1基 |
Gaia Force Buildingは、東京都千代田区神田三崎町2-21-6に位置する、2023年1月竣工のオフィスビルです。JR総武線の水道橋駅から徒歩1分、都営三田線の水道橋駅から徒歩3分という優れた近さに加…

| 図面 |
階数 |
面積 |
賃料(共益費込) (坪単価) |
保証金/敷金 |
礼金 |
入居可能日 |
|
|
NEW6階 |
G 30.20坪 (99.84m2) |
845,600 (28,000) |
3ヶ月 |
無 |
2026/8 中旬 |
|
物件番号:037128
更新日:2026/4/17
千代田区外神田1-18-13
【竣工】2005/3
【階建て】地上30F 、地下2F
|
【最寄駅】
|
【耐震】 |
新耐震+制震 |
| 【基準階】 |
336.00坪 |
【エントランス】 |
全日開放(制限有) |
| 【駐車場】 |
有り |
【エレベーター】 |
12基 |
秋葉原ダイビルは、東京都千代田区外神田1-18-13に位置する地上30階建て地下2階のオフィスビルです。2005年3月に竣工し、SRC造で建てられています。新耐震基準に適合していることに加え、制震構…

| 図面 |
階数 |
面積 |
賃料(共益費込) (坪単価) |
保証金/敷金 |
礼金 |
入居可能日 |
|
|
NEW5階 |
N 30.25坪 (100.01m2) |
|
(未公開) |
無 |
2026/7 予定 |
|
物件番号:036417
更新日:2026/4/17
中央区銀座8-15-2
【竣工】2003/3
【階建て】地上11F
|
【最寄駅】
|
【耐震】 |
新耐震 |
| 【基準階】 |
30.22坪 |
【エントランス】 |
平日のみ開放 |
| 【駐車場】 |
無し |
【エレベーター】 |
1基 |
ACN銀座ビルは、中央区銀座8丁目に位置する視認性抜群のハイグレードオフィスビルです。住所は東京都中央区銀座8-15-2。昭和通り沿いの角地に建ち、大きなガラス面を持つ外観は、周囲の街並みに…

| 図面 |
階数 |
面積 |
賃料(共益費込) (坪単価) |
保証金/敷金 |
礼金 |
入居可能日 |
|
|
NEW4階 |
G 30.22坪 (99.90m2) |
|
4ヶ月 |
無 |
2026/9/27 |
|
物件番号:071818
更新日:2026/4/17
中央区銀座2-14-4
【竣工】1994/6(改修:2019)
【階建て】地上8F 、地下1F
|
【最寄駅】
|
【耐震】 |
新耐震 |
| 【基準階】 |
26.26坪 |
【エントランス】 |
|
| 【駐車場】 |
無し |
【エレベーター】 |
1基 |
複数路線が利用可能で交通アクセス抜群です!シックな色合いでガラス張りの外観は高級感があります!個別空調、OAフロア完備で設備が充実しています!

| 図面 |
階数 |
面積 |
賃料(共益費込) (坪単価) |
保証金/敷金 |
礼金 |
入居可能日 |
|
|
NEWB1-1階 |
G 20.74坪 (68.59m2) |
440,000 (21,215) |
4ヶ月 |
無 |
2026/6 下旬 |
|
物件番号:005250
更新日:2026/4/17
中央区日本橋3-5-12
【竣工】1992/11
【階建て】地上10F 、地下1F
|
【最寄駅】
|
【耐震】 |
新耐震 |
| 【基準階】 |
34.35坪 |
【エントランス】 |
|
| 【駐車場】 |
無し |
【エレベーター】 |
1基 |
日本橋駅、東京駅が利用可能!八重洲通りに面した分かりやすい立地!石張りの高級感溢れるエントランス!

| 図面 |
階数 |
面積 |
賃料(共益費込) (坪単価) |
保証金/敷金 |
礼金 |
入居可能日 |
|
|
NEW2階 |
G 34.19坪 (113.04m2) |
|
無 |
無 |
2026/8/1 |
|
|
NEW10階 |
G 25.22坪 (83.40m2) |
|
無 |
無 |
2026/5/1 |
|
物件番号:002216
更新日:2026/4/16
千代田区神田錦町3-19-21
【竣工】1992/3
【階建て】地上9F
|
【最寄駅】
|
【耐震】 |
新耐震 |
| 【基準階】 |
22.53坪 |
【エントランス】 |
全日開放(24h) |
| 【駐車場】 |
無し |
【エレベーター】 |
1基 |
複数路線が利用可能で交通アクセス良好です。管理の行き届いた清潔感のあるエントランスです。ワンフロア・ワンテナントなので使い勝手の良い貸室です。

| 図面 |
階数 |
面積 |
賃料(共益費込) (坪単価) |
保証金/敷金 |
礼金 |
入居可能日 |
|
|
NEW5階 |
G 22.53坪 (74.48m2) |
326,685 (14,500) |
6ヶ月 |
無 |
2026/7/1 |
|
物件番号:000383
更新日:2026/4/17
千代田区麹町5-2-1
【竣工】1991/10
【階建て】地上11F
|
【最寄駅】
|
【耐震】 |
新耐震 |
| 【基準階】 |
29.43坪 |
【エントランス】 |
平日・土開放 |
| 【駐車場】 |
無し |
【エレベーター】 |
1基 |
K-WINGビルは、東京都千代田区麹町5-2-1に位置するオフィスビルで、都心のビジネス街に立地し、交通アクセスが非常に良いのが特徴です。最寄り駅は有楽町線の麹町駅で、徒歩わずか3分という近さ…

| 図面 |
階数 |
面積 |
賃料(共益費込) (坪単価) |
保証金/敷金 |
礼金 |
入居可能日 |
|
|
NEW5階 |
G 29.43坪 (97.28m2) |
|
10ヶ月 |
無 |
2026/10/13 |
|
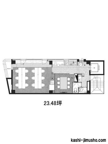
物件番号:009842
更新日:2026/4/17
中央区日本橋久松町9-8
【竣工】1991/8(改修:2024)
【階建て】地上9F
|
【最寄駅】
|
【耐震】 |
新耐震 |
| 【基準階】 |
23.48坪 |
【エントランス】 |
全日開放(24h) |
| 【駐車場】 |
無し |
【エレベーター】 |
1基 |
BizFeel東日本橋は、東京都中央区日本橋久松町に位置するオフィスビルで、優れた交通アクセスと快適なオフィス環境を兼ね備えた物件です。1991年8月に竣工し、地上9階建ての鉄骨造(S造)で建て…

| 図面 |
階数 |
面積 |
賃料(共益費込) (坪単価) |
保証金/敷金 |
礼金 |
入居可能日 |
|
|
NEW3階 |
G 23.48坪 (77.62m2) |
|
4ヶ月 |
無 |
2026/9 下旬 |
|
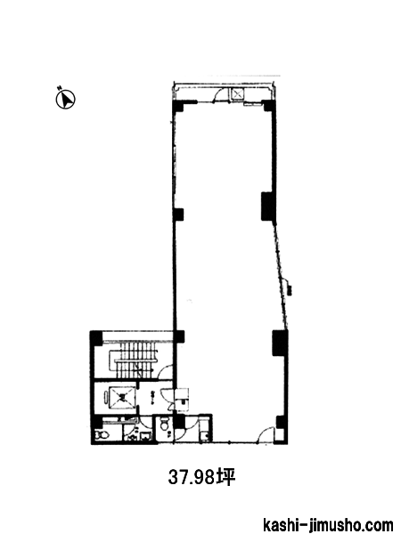
物件番号:017765
更新日:2026/4/16
台東区浅草橋3-22-9
【竣工】1990/2(改修:2026)
【階建て】地上5F
|
【最寄駅】
|
【耐震】 |
新耐震 |
| 【基準階】 |
37.50坪 |
【エントランス】 |
全日開放(24h) |
| 【駐車場】 |
有り |
【エレベーター】 |
1基 |
浅草橋駅の2路線が利用可能!便利な立地です!ワンフロア・ワンテナント!使い勝手良好です!光ファイバー、個別空調が完備されています!

| 図面 |
階数 |
面積 |
賃料(共益費込) (坪単価) |
保証金/敷金 |
礼金 |
入居可能日 |
|
|
NEW1階 |
G 29.30坪 (96.86m2) |
616,000 (21,024) |
6ヶ月 |
1.0ヶ月 |
2026/5 中旬 |
|
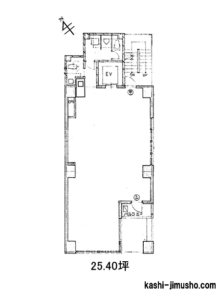
物件番号:026680
更新日:2026/4/17
豊島区北大塚2-17-4
【竣工】1989/11
【階建て】地上8F 、地下1F
|
【最寄駅】
|
【耐震】 |
新耐震 |
| 【基準階】 |
27.50坪 |
【エントランス】 |
全日開放(24h) |
| 【駐車場】 |
無し |
【エレベーター】 |
1基 |
閑静で落ち着いた環境に位置しています。グレーを基調としたシックな印象の外観です。ワンフロア・ワンテナントなので使い勝手の良い貸室です。

| 図面 |
階数 |
面積 |
賃料(共益費込) (坪単価) |
保証金/敷金 |
礼金 |
入居可能日 |
|
|
NEW2階 |
G 25.40坪 (83.96m2) |
380,000 (14,961) |
5ヶ月 |
1.0ヶ月 |
2026/5 |
|
物件番号:032697
更新日:2026/4/17
新宿区新宿2-5-10
【竣工】1989/3
【階建て】地上10F 、地下1F
|
【最寄駅】
|
【耐震】 |
新耐震 |
| 【基準階】 |
183.07坪 |
【エントランス】 |
全日開放(制限有) |
| 【駐車場】 |
有り |
【エレベーター】 |
4基 |
アーバンセンター新宿が立地する新宿二丁目エリアは、東京の中心地でありながらも、ビジネスと商業、文化が絶妙に融合した活気あるロケーションです。東京メトロ丸ノ内線・副都心線・都営新宿線…

| 図面 |
階数 |
面積 |
賃料(共益費込) (坪単価) |
保証金/敷金 |
礼金 |
入居可能日 |
|
|
NEW3階 |
G 28.33坪 (93.65m2) |
|
12ヶ月 |
無 |
2026/10/8 |
|
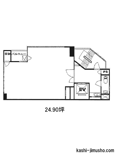
物件番号:022748
更新日:2026/4/16
品川区西五反田8-8-15
【竣工】1989/2
【階建て】地上11F 、地下1F
|
【最寄駅】
|
【耐震】 |
新耐震 |
| 【基準階】 |
44.06坪 |
【エントランス】 |
全日開放(24h) |
| 【駐車場】 |
有り |
【エレベーター】 |
1基 |
西五反田エリアの賃貸オフィスビルです。カーニープレイス五反田は、東京都品川区西五反田8-8-15に位置する賃貸オフィスビルです。1989年に竣工したこのビルは、地上11階、地下1階の鉄骨鉄筋コン…

| 図面 |
階数 |
面積 |
賃料(共益費込) (坪単価) |
保証金/敷金 |
礼金 |
入居可能日 |
|
|
NEW2階 |
G 25.98坪 (85.91m2) |
600,000 (23,095) |
4ヶ月 |
無 |
2026/5 下旬 |
|
物件番号:017739
更新日:2026/4/16
台東区浅草橋1-1-14
【竣工】1988/1
【階建て】地上8F
|
【最寄駅】
|
【耐震】 |
新耐震 |
| 【基準階】 |
23.11坪 |
【エントランス】 |
全日開放(24h) |
| 【駐車場】 |
無し |
【エレベーター】 |
1基 |
「清水ビル」は、東京都台東区浅草橋1-1-14に位置するオフィスビルです。構造は鉄骨鉄筋コンクリート造(SRC造)で、地上8階建てで、耐久性と安定性に優れています。1988年1月に竣工し、新耐震基…

| 図面 |
階数 |
面積 |
賃料(共益費込) (坪単価) |
保証金/敷金 |
礼金 |
入居可能日 |
|
|
NEW6階 |
G 23.11坪 (76.40m2) |
300,430 (13,000) |
5ヶ月 |
1.0ヶ月 |
即日 |
|
物件番号:018083
更新日:2026/4/17
台東区蔵前3-12-8
【竣工】1987/5
【階建て】地上9F 、地下1F
|
【最寄駅】
|
【耐震】 |
新耐震 |
| 【基準階】 |
58.83坪 |
【エントランス】 |
全日開放(制限有) |
| 【駐車場】 |
有り |
【エレベーター】 |
1基 |
岡安ビルは、東京都台東区蔵前3丁目12-8に位置するオフィスビルです。最寄り駅は都営浅草線「蔵前駅」で徒歩1分、さらに都営大江戸線「蔵前駅」も徒歩2分と、2つの路線が至近距離で利用可能な利…

| 図面 |
階数 |
面積 |
賃料(共益費込) (坪単価) |
保証金/敷金 |
礼金 |
入居可能日 |
|
|
NEW8階 |
G 23.81坪 (78.74m2) |
333,340 (14,000) |
10ヶ月 |
無 |
2026/8 予定 |
|
物件番号:043229
更新日:2026/4/17
千代田区神田小川町1-8
【竣工】1986/9
【階建て】地上9F 、地下1F
|
【最寄駅】
|
【耐震】 |
新耐震 |
| 【基準階】 |
33.09坪 |
【エントランス】 |
全日開放(24h) |
| 【駐車場】 |
無し |
【エレベーター】 |
1基 |
小川町、新御茶ノ水駅、淡路町駅など複数路線が利用可能!スタイリッシュでシャープな外観の貸事務所!ワンフロア・ワンテナントの使い勝手良好なオフィス空間!

| 図面 |
階数 |
面積 |
賃料(共益費込) (坪単価) |
保証金/敷金 |
礼金 |
入居可能日 |
|
|
NEW5階 |
N 33.00坪 (109.09m2) |
561,000 (17,000) |
12ヶ月 |
無 |
即日 |
|
物件番号:015811
更新日:2026/4/17
港区芝5-16-4
【竣工】1985/1
【階建て】地上4F
|
【最寄駅】
|
【耐震】 |
新耐震 |
| 【基準階】 |
40.42坪 |
【エントランス】 |
全日開放(24h) |
| 【駐車場】 |
無し |
【エレベーター】 |
無 |
東京都港区芝5丁目に位置する天池ビルは、三田駅から徒歩4分、田町駅からも徒歩6分と交通利便性の高い立地にあるオフィスビルです。都営三田線・浅草線、JR山手線・京浜東北線の4路線が利用でき…

| 図面 |
階数 |
面積 |
賃料(共益費込) (坪単価) |
保証金/敷金 |
礼金 |
入居可能日 |
|
|
NEW4階 |
G 20.20坪 (66.79m2) |
220,000 (10,891) |
600,000 (29,703) |
無 |
即日 |
|
物件番号:002455
更新日:2026/4/16
千代田区神田小川町3-28
【竣工】1974/12
【階建て】地上7F
|
【最寄駅】
|
【耐震】 |
旧耐震 |
| 【基準階】 |
66.70坪 |
【エントランス】 |
|
| 【駐車場】 |
無し |
【エレベーター】 |
1基 |
千代田線・新御茶ノ水駅から徒歩2分!複数路線が利用可能で交通アクセス良好!学生とサラリーマンが多い立地で来客型オフィスに最適!個別空調、室外男女別トイレ完備で使い勝手良好!

| 図面 |
階数 |
面積 |
賃料(共益費込) (坪単価) |
保証金/敷金 |
礼金 |
入居可能日 |
|
|
NEW3階 |
G 20.60坪 (68.09m2) |
|
(未公開) |
(未公開) |
未定 |
|
物件番号:060221
更新日:2026/4/17
豊島区池袋2-5-8
【竣工】1973/12
【階建て】地上4F 、地下1F
|
【最寄駅】
|
【耐震】 |
|
| 【基準階】 |
21.17坪 |
【エントランス】 |
|
| 【駐車場】 |
無し |
【エレベーター】 |
無 |
池袋駅利用で交通アクセス良好です!窓面が大きいので室内が明るく快適です!角地にあるビルです!

| 図面 |
階数 |
面積 |
賃料(共益費込) (坪単価) |
保証金/敷金 |
礼金 |
入居可能日 |
|
|
NEW2階 |
G 21.17坪 (70.00m2) |
289,000 (13,651) |
3ヶ月 |
1.0ヶ月 |
2026/7 |
|
物件番号:047007
更新日:2026/4/16
中央区日本橋久松町4-12
【竣工】1973/5
【階建て】地上5F
|
【最寄駅】
|
【耐震】 |
旧耐震 |
| 【基準階】 |
21.50坪 |
【エントランス】 |
全日開放(24h) |
| 【駐車場】 |
無し |
【エレベーター】 |
無 |
複数路線が利用可能で交通アクセス抜群です。ワンフロア・ワンテナントなので使い勝手良好です。シンプルな形状でレイアウトのしやすい貸室です。

| 図面 |
階数 |
面積 |
賃料(共益費込) (坪単価) |
保証金/敷金 |
礼金 |
入居可能日 |
|
|
NEW3階 |
G 21.50坪 (71.10m2) |
300,000 (13,953) |
4ヶ月 |
無 |
相談 |
|
物件番号:058121
更新日:2026/4/17
渋谷区神宮前5-30-6
【竣工】1972/11
【階建て】地上5F 、地下1F
|
【最寄駅】
|
【耐震】 |
旧耐震 |
| 【基準階】 |
|
【エントランス】 |
|
| 【駐車場】 |
無し |
【エレベーター】 |
1基 |
明治通りの裏路地を入った環境のい物件です!車付けもしやすい利便性の良い物件です!重厚感のある佇まい!しっかりとした印象です!

| 図面 |
階数 |
面積 |
賃料(共益費込) (坪単価) |
保証金/敷金 |
礼金 |
入居可能日 |
|
|
NEWB1階 |
G 22.50坪 (74.39m2) |
820,000 (36,444) |
8ヶ月 |
1.0ヶ月 |
2026/6 上旬 |
|
物件番号:059891
更新日:2026/4/17
品川区上大崎2-24-18
【竣工】1970/10
【階建て】地上11F 、地下1F
|
【最寄駅】
|
【耐震】 |
旧耐震 |
| 【基準階】 |
|
【エントランス】 |
|
| 【駐車場】 |
有り |
【エレベーター】 |
有 |
目黒駅から徒歩1分!目黒通りからすぐの説明しやすい物件!清潔感のある明るい建物!SOHOタイプの貸事務所!

| 図面 |
階数 |
面積 |
賃料(共益費込) (坪単価) |
保証金/敷金 |
礼金 |
入居可能日 |
|
|
NEW3階 |
G 24.00坪 (79.34m2) |
350,000 (14,583) |
3ヶ月 |
1.0ヶ月 |
即日 |
|
物件番号:033274
更新日:2026/4/16
新宿区大久保1-1-10
【竣工】1970/3(改修:2011)
【階建て】地上14F 、地下1F
|
【最寄駅】
|
【耐震】 |
旧耐震+補強済 or 基準OK |
| 【基準階】 |
77.99坪 |
【エントランス】 |
全日開放(制限有) |
| 【駐車場】 |
無し |
【エレベーター】 |
2基 |
GUNKAN東新宿は、東京都新宿区大久保1-1-10に位置する地上14階建て地下1階のオフィスビルです。1970年3月に竣工し、SRC造で建てられています。交通アクセスは非常に良好です。都営大江戸線の東新…

| 図面 |
階数 |
面積 |
賃料(共益費込) (坪単価) |
保証金/敷金 |
礼金 |
入居可能日 |
|
|
NEW3階 |
G 39.00坪 (128.93m2) |
545,000 (13,974) |
5ヶ月 |
1.0ヶ月 |
即日 |
|
物件番号:039439
更新日:2026/4/17
台東区浅草橋4-18-6
【竣工】2004/2
【階建て】地上10F
|
【最寄駅】
|
【耐震】 |
新耐震 |
| 【基準階】 |
|
【エントランス】 |
オートロック |
| 【駐車場】 |
- |
【エレベーター】 |
有 |
| 図面 |
階数 |
面積 |
賃料(共益費込) (坪単価) |
保証金/敷金 |
礼金 |
入居可能日 |
|
|
NEW2階 |
G 21.26坪 (70.29m2) |
260,000 (12,230) |
6ヶ月 |
無 |
即日 |
|
非公開物件の賃料目安アイコン
8,000 円未満
8,000 円以上~1.0 万円未満
1.0 万以上~1.2 万円未満
1.2 万以上~1.4 万円未満
1.4 万以上~1.6 万円未満
1.6 万以上~2.0 万円未満
2.0 万以上~2.5 万円未満
2.5 万以上~3.0 万円未満
3.0 万円以上
未定
※取引態様:媒介
※フロア図面と現況が異なる場合は現況を優先いたします。
※貸室内部の写真・貸室からの景色に関しては、現在の募集フロアと異なる場合がございます。
※取引態様:媒介
最新テナント募集情報に関するお問合せ