新着の貸事務所、賃貸オフィス一覧(東京都内)(100~150坪)
最新の空き賃貸オフィス情報をチェック!
オフィス移転や新規開設を検討中の企業様へ、【最新の空き賃貸オフィス情報】をお届けします。人気エリアの物件はすぐに埋まるため、最新情報をいち早く確認し、理想のオフィスを確保しましょう。本ページでは、東京都心部を中心に、主要ビジネスエリアの最新空室情報を随時更新。広さや賃料、設備条件など、細かなニーズに合わせた検索が可能です。企業の成長を支えるハイグレードオフィスや、利便性の高い立地の物件など、多彩なラインナップをご用意しています。最新情報を活用して、最適なオフィスをスムーズに見つけましょう!気になる物件がございましたら、お気軽にお問い合わせください。
物件番号:002552
更新日:2026/4/17
千代田区神田猿楽町2-8-16
【竣工】1995/11
【階建て】地上9F 、地下1F
|
【最寄駅】
|
【耐震】 |
新耐震 |
| 【基準階】 |
137.15坪 |
【エントランス】 |
平日のみ開放 |
| 【駐車場】 |
有り |
【エレベーター】 |
2基 |
平田ビルは、千代田区神田猿楽町2丁目に位置する、重厚感と高級感を兼ね備えた賃貸オフィスビルです。神田駿河台の高台に立地しており、水道橋・神保町・御茶ノ水の3エリアを生活圏とする利便性…

| 図面 |
階数 |
面積 |
賃料(共益費込) (坪単価) |
保証金/敷金 |
礼金 |
入居可能日 |
|
|
NEW9階 |
N 118.06坪 (390.28m2) |
|
12ヶ月 |
無 |
2026/10/2 |
|
物件番号:018974
更新日:2026/4/17
渋谷区初台1-53-6
【竣工】1986/11
【階建て】地上7F 、地下1F
|
【最寄駅】
|
【耐震】 |
新耐震 |
| 【基準階】 |
294.85坪 |
【エントランス】 |
全日開放(制限有) |
| 【駐車場】 |
有り |
【エレベーター】 |
3基 |
京王新線 初台駅出口より徒歩1分圏内のハイグレードオフィスビル。初台光山ビルは渋谷区初台1-53-6の物件です。最寄駅は京王新線 初台駅です。初台駅出口より徒歩1分圏内、駅からのアクセス抜群…

| 図面 |
階数 |
面積 |
賃料(共益費込) (坪単価) |
保証金/敷金 |
礼金 |
入居可能日 |
|
|
NEW3階 |
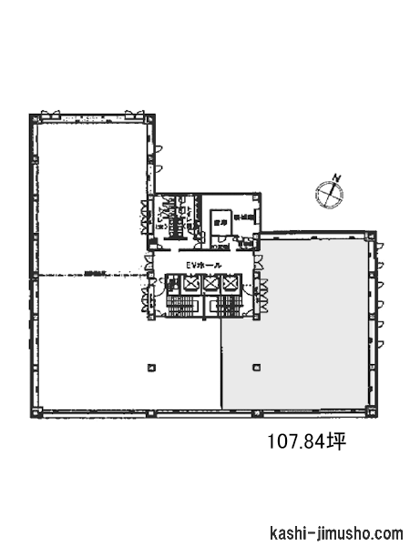
N 107.84坪 (356.50m2) |
2,048,960 (19,000) |
12ヶ月 |
無 |
2026/9 |
|
非公開物件の賃料目安アイコン
8,000 円未満
8,000 円以上~1.0 万円未満
1.0 万以上~1.2 万円未満
1.2 万以上~1.4 万円未満
1.4 万以上~1.6 万円未満
1.6 万以上~2.0 万円未満
2.0 万以上~2.5 万円未満
2.5 万以上~3.0 万円未満
3.0 万円以上
未定
※取引態様:媒介
※フロア図面と現況が異なる場合は現況を優先いたします。
※貸室内部の写真・貸室からの景色に関しては、現在の募集フロアと異なる場合がございます。
※取引態様:媒介
最新テナント募集情報に関するお問合せ