トイレ男女別の貸事務所(九段・飯田橋・水道橋)(40~60坪)
九段・飯田橋・水道橋エリア にあるトイレが男女別の貸事務所を掲載しています。特に、女性のお客様が重要視するのがオフィスビルのトイレです。男性と同じトイレは敬遠されることが多く、男女別のトイレを希望するお客様がいらっしゃいます。そこで女性社員の快適性を考えトイレが男女別の貸事務所をご紹介します。
九段・飯田橋・水道橋エリアの男女別トイレ貸事務所
物件番号:083865
更新日:2026/5/12
千代田区神田猿楽町2-2-10
【竣工】2023/5
【階建て】地上8F
|
【最寄駅】
|
【耐震】 |
新耐震 |
| 【基準階】 |
47.43坪 |
【エントランス】 |
|
| 【駐車場】 |
- |
【エレベーター】 |
1基 |
千代田区神田猿楽町に位置する「医事新報水道橋ビル」は、2023年5月に竣工した築浅オフィスビルで、洗練されたデザインと高い機能性を兼ね備えた魅力的な物件です。周辺には水道橋駅や神保町駅、…

| 図面 |
階数 |
面積 |
賃料(共益費込) (坪単価) |
保証金/敷金 |
礼金 |
入居可能日 |
|
|
2階 |
G 47.43坪 (156.79m2) |
948,600 (20,000) |
8ヶ月 |
1.0ヶ月 |
相談 |
|
|
3階 |
G 47.43坪 (156.79m2) |
948,600 (20,000) |
8ヶ月 |
1.0ヶ月 |
相談 |
|
|
4階 |
G 47.43坪 (156.79m2) |
948,600 (20,000) |
8ヶ月 |
1.0ヶ月 |
相談 |
|
物件番号:082701
更新日:2026/5/15
千代田区九段北1-15-12
【竣工】2022/12
【階建て】地上12F
|
【最寄駅】
|
【耐震】 |
新耐震 |
| 【基準階】 |
38.86坪 |
【エントランス】 |
全日開放(24h) |
| 【駐車場】 |
無し |
【エレベーター】 |
1基 |
ミナト九段下ビルは、東京都千代田区九段北1丁目に位置する2024年竣工の賃貸オフィスビルです。東京メトロ東西線、半蔵門線、都営新宿線の九段下駅から徒歩5分、JR総武線ほか東京メトロの飯田橋…

| 図面 |
階数 |
面積 |
賃料(共益費込) (坪単価) |
保証金/敷金 |
礼金 |
入居可能日 |
|
|
10階 |
G 40.91坪 (135.24m2) |
1,022,750 (25,000) |
6ヶ月 |
無 |
即日 |
|
物件番号:071081
更新日:2026/5/15
千代田区神田猿楽町2-8-11
【竣工】2020/1
【階建て】地上9F
|
【最寄駅】
|
【耐震】 |
新耐震 |
| 【基準階】 |
57.77坪 |
【エントランス】 |
平日のみ開放 |
| 【駐車場】 |
有り |
【エレベーター】 |
1基 |
VORT水道橋Ⅲは、東京都千代田区神田猿楽町2に位置する賃貸オフィスビルです。2020年1月に竣工した地上9階建てのRC造(鉄筋コンクリート造)構造を持つ建物です。新耐震基準に適合して設計されて…

| 図面 |
階数 |
面積 |
賃料(共益費込) (坪単価) |
保証金/敷金 |
礼金 |
入居可能日 |
|
|
6階 |
G 57.77坪 (190.98m2) |
|
5ヶ月 |
1.0ヶ月 |
即日 |
|
物件番号:001848
更新日:2026/5/9
千代田区神田神保町1-11-1
【竣工】1994/3
【階建て】地上11F 、地下2F
|
【最寄駅】
|
【耐震】 |
新耐震 |
| 【基準階】 |
42.49坪 |
【エントランス】 |
平日・土開放 |
| 【駐車場】 |
有り |
【エレベーター】 |
1基 |
いちご神保町ビルは、千代田区神田神保町1-11-1に位置するハイグレードな賃貸オフィスビルです。最寄りの神保町駅までは、東京メトロ半蔵門線、都営三田線、都営新宿線を利用し、徒歩1分圏内とい…

| 図面 |
階数 |
面積 |
賃料(共益費込) (坪単価) |
保証金/敷金 |
礼金 |
入居可能日 |
|
|
3階 |
N 42.50坪 (140.50m2) |
|
10ヶ月 |
無 |
即日 |
|
物件番号:001388
更新日:2026/5/21
千代田区飯田橋2-14-2
【竣工】1993/2
【階建て】地上5F
|
【最寄駅】
|
【耐震】 |
新耐震 |
| 【基準階】 |
57.93坪 |
【エントランス】 |
平日のみ開放 |
| 【駐車場】 |
有り |
【エレベーター】 |
1基 |
雄邦ビルは、九段下エリアに位置する、落ち着いた色合いで清潔感のある賃貸オフィスビルです。この物件は、千代田区飯田橋2-14-2に所在しており、最寄駅は東京メトロ東西線・東京メトロ半蔵門線…

| 図面 |
階数 |
面積 |
賃料(共益費込) (坪単価) |
保証金/敷金 |
礼金 |
入居可能日 |
|
|
4階 |
G 57.93坪 (191.50m2) |
984,810 (17,000) |
12ヶ月 |
1.0ヶ月 |
2026/8 上旬 |
|
物件番号:000980
更新日:2026/5/20
千代田区九段南2-4-11
【竣工】1992/12(改修:2023)
【階建て】地上10F
|
【最寄駅】
|
【耐震】 |
新耐震 |
| 【基準階】 |
43.05坪 |
【エントランス】 |
オートロック |
| 【駐車場】 |
無し |
【エレベーター】 |
1基 |
パシフィックスクエア九段南ビルは、東京都千代田区九段南2-4-11に位置する賃貸オフィスビルです。靖国通りに面しており、視認性が高く、来訪者への案内もしやすい立地です。周辺は車通りが多く…

| 図面 |
階数 |
面積 |
賃料(共益費込) (坪単価) |
保証金/敷金 |
礼金 |
入居可能日 |
|
|
4階 |
G 43.05坪 (142.32m2) |
1,291,500 (30,000) |
7ヶ月 |
無 |
即日 |
|
|
6階 |
G 43.05坪 (142.31m2) |
1,291,500 (30,000) |
7ヶ月 |
無 |
即日 |
|
|
9-10階 |
G 58.84坪 (194.53m2) |
1,765,200 (30,000) |
7ヶ月 |
無 |
即日 |
|
物件番号:001580
更新日:2026/5/20
千代田区神田三崎町3-6-12
【竣工】1992/10(改修:2021)
【階建て】地上7F 、地下1F
|
【最寄駅】
|
【耐震】 |
新耐震 |
| 【基準階】 |
51.57坪 |
【エントランス】 |
全日開放(制限有) |
| 【駐車場】 |
無し |
【エレベーター】 |
1基 |
神田三崎町ビルは、千代田区神田三崎町3丁目に位置する、交通利便性と機能性を兼ね備えた貸事務所物件です。JR総武線「水道橋駅」西口から徒歩1分圏内という抜群のアクセス環境にあり、ビルは水…

| 図面 |
階数 |
面積 |
賃料(共益費込) (坪単価) |
保証金/敷金 |
礼金 |
入居可能日 |
|
|
7階 |
G 51.57坪 (170.49m2) |
928,260 (18,000) |
6ヶ月 |
無 |
即日 |
|
物件番号:001880
更新日:2026/5/18
千代田区神田神保町2-22-3
【竣工】1992/4
【階建て】地上5F 、地下1F
|
【最寄駅】
|
【耐震】 |
新耐震 |
| 【基準階】 |
62.06坪 |
【エントランス】 |
全日開放(制限有) |
| 【駐車場】 |
無し |
【エレベーター】 |
1基 |
カンナビルは、千代田区神田神保町2丁目に位置する、利便性と静かな環境の両立が魅力の貸事務所ビルです。最寄り駅は、東京メトロ半蔵門線・都営三田線・都営新宿線の「神保町駅」で、地下鉄出口…

| 図面 |
階数 |
面積 |
賃料(共益費込) (坪単価) |
保証金/敷金 |
礼金 |
入居可能日 |
|
|
B1階 |
G 44.42坪 (146.86m2) |
577,460 (13,000) |
10ヶ月 |
無 |
即日 |
|
物件番号:000938
更新日:2026/5/11
千代田区九段南2-6-8
【竣工】1991/7
【階建て】地上6F 、地下2F
|
【最寄駅】
|
【耐震】 |
新耐震 |
| 【基準階】 |
54.23坪 |
【エントランス】 |
平日のみ開放 |
| 【駐車場】 |
有り |
【エレベーター】 |
1基 |
九段南ビルディングは、東京都千代田区九段南2-6-8に位置する、落ち着いた周辺環境と都心ならではの利便性をあわせ持つオフィス物件です。東京メトロ東西線・半蔵門線、都営新宿線が利用できる九…

| 図面 |
階数 |
面積 |
賃料(共益費込) (坪単価) |
保証金/敷金 |
礼金 |
入居可能日 |
|
|
5階 |
G 54.23坪 (179.27m2) |
|
10ヶ月 |
無 |
即日 |
|
物件番号:002076
更新日:2026/5/18
千代田区神田神保町3-5
【竣工】1990/12
【階建て】地上9F 、地下1F
|
【最寄駅】
|
【耐震】 |
新耐震 |
| 【基準階】 |
42.50坪 |
【エントランス】 |
平日のみ開放 |
| 【駐車場】 |
無し |
【エレベーター】 |
1基 |
千代田区神田神保町3丁目に位置する「BONMARUSANビル」は、靖国通りから一本入った落ち着いた環境にありながら、神保町駅と九段下駅の両方から徒歩3〜5分という恵まれた交通利便性を誇ります。半…

| 図面 |
階数 |
面積 |
賃料(共益費込) (坪単価) |
保証金/敷金 |
礼金 |
入居可能日 |
|
|
3階 |
G 42.50坪 (140.50m2) |
701,250 (16,500) |
5ヶ月 |
無 |
即日 |
|
物件番号:001692
更新日:2026/5/7
千代田区神田三崎町3-3-1
【竣工】1990/11
【階建て】地上8F 、地下2F
|
【最寄駅】
|
【耐震】 |
新耐震 |
| 【基準階】 |
43.40坪 |
【エントランス】 |
|
| 【駐車場】 |
無し |
【エレベーター】 |
1基 |
TKiビルは、東京都千代田区神田三崎町3-3-1に位置するオフィスビルで、交通の便が非常に良いのが大きな特徴です。最寄り駅であるJR総武線「水道橋駅」から徒歩4分というアクセスの良さに加え、東…

| 図面 |
階数 |
面積 |
賃料(共益費込) (坪単価) |
保証金/敷金 |
礼金 |
入居可能日 |
|
|
4階 |
G 43.40坪 (143.47m2) |
651,000 (15,000) |
12ヶ月 |
無 |
即日 |
|
物件番号:001534
更新日:2026/5/1
千代田区神田三崎町3-10-2
【竣工】1990/7
【階建て】地上7F
|
【最寄駅】
|
【耐震】 |
新耐震 |
| 【基準階】 |
24.69坪 |
【エントランス】 |
全日開放(24h) |
| 【駐車場】 |
無し |
【エレベーター】 |
1基 |
みさきBLDは、東京都千代田区神田三崎町3丁目に位置するオフィスビルで、JR総武線の水道橋駅西口から徒歩わずか2分という非常に利便性の高い場所にあります。さらに、都営三田線の水道橋駅や、飯…

| 図面 |
階数 |
面積 |
賃料(共益費込) (坪単価) |
保証金/敷金 |
礼金 |
入居可能日 |
|
|
2-4階 |
G 49.38坪 (163.24m2) |
740,700 (15,000) |
6ヶ月 |
2.0ヶ月 |
即日 |
|
物件番号:001754
更新日:2026/5/18
千代田区西神田1-4-11
【竣工】1989/10
【階建て】地上8F
|
【最寄駅】
|
【耐震】 |
新耐震 |
| 【基準階】 |
52.49坪 |
【エントランス】 |
全日開放(24h) |
| 【駐車場】 |
有り |
【エレベーター】 |
1基 |
サンポウ水道橋ビルは、東京都千代田区西神田に位置する地上8階建てのオフィスビルで、1989年10月に竣工したRC造の新耐震構造物件です。水道橋駅から徒歩5分、神保町駅も徒歩7分と複数路線が利用…

| 図面 |
階数 |
面積 |
賃料(共益費込) (坪単価) |
保証金/敷金 |
礼金 |
入居可能日 |
|
|
2階 |
G 46.10坪 (152.40m2) |
691,500 (15,000) |
8ヶ月 |
無 |
即日 |
|
|
7階 |
G 52.49坪 (173.52m2) |
734,860 (14,000) |
8ヶ月 |
無 |
即日 |
|
物件番号:043737
更新日:2026/5/29
千代田区神田猿楽町2-7-6
【竣工】1989/2
【階建て】地上6F
|
【最寄駅】
|
【耐震】 |
新耐震 |
| 【基準階】 |
64.07坪 |
【エントランス】 |
平日・土開放 |
| 【駐車場】 |
有り |
【エレベーター】 |
1基 |
TK猿楽町ビルは、千代田区神田猿楽町に位置する地上6階建てのオフィスビルで、最寄りの水道橋駅から徒歩5分という通勤にも便利な立地にあります。JR総武線・都営三田線の水道橋駅に加え、神保町…

| 図面 |
階数 |
面積 |
賃料(共益費込) (坪単価) |
保証金/敷金 |
礼金 |
入居可能日 |
|
|
1階 |
G 42.83坪 (141.61m2) |
985,090 (23,000) |
12ヶ月 |
無 |
即日 |
|
物件番号:058938
更新日:2026/5/24
千代田区神田三崎町3-2-8
【竣工】1989/2(改修:2010)
【階建て】地上8F
|
【最寄駅】
|
【耐震】 |
新耐震 |
| 【基準階】 |
57.89坪 |
【エントランス】 |
オートロック |
| 【駐車場】 |
有り |
【エレベーター】 |
2基 |
水道橋駅近くのインテリジェント賃貸オフィス。グランバレー三崎町ビルは、千代田区神田三崎町3-2-8にある物件です。徒歩4分圏内でJR総武線の水道橋駅、徒歩7分圏内で都営三田線の水道橋駅、東京…

| 図面 |
階数 |
面積 |
賃料(共益費込) (坪単価) |
保証金/敷金 |
礼金 |
入居可能日 |
|
|
1階 |
G 43.85坪 (144.90m2) |
877,000 (20,000) |
6ヶ月 |
無 |
2026/8/1 |
|
物件番号:001358
更新日:2026/5/29
千代田区飯田橋1-4-1
【竣工】1989/1
【階建て】地上9F
|
【最寄駅】
|
【耐震】 |
新耐震 |
| 【基準階】 |
43.50坪 |
【エントランス】 |
全日開放(24h) |
| 【駐車場】 |
無し |
【エレベーター】 |
1基 |
九段下駅から徒歩3分の好立地、目白通り沿いの賃貸オフィスビルです。九段ウイズビルは、東京都千代田区飯田橋1丁目に位置する9階建てのオフィスビルで、1989年1月に竣工しました。鉄骨鉄筋コン…

| 図面 |
階数 |
面積 |
賃料(共益費込) (坪単価) |
保証金/敷金 |
礼金 |
入居可能日 |
|
|
7階 |
G 43.50坪 (143.80m2) |
674,250 (15,500) |
6ヶ月 |
1.0ヶ月 |
即日 |
|
物件番号:001816
更新日:2026/5/1
千代田区神田神保町2-20-13
【竣工】1989/1
【階建て】地上7F
|
【最寄駅】
|
【耐震】 |
新耐震 |
| 【基準階】 |
21.54坪 |
【エントランス】 |
全日開放(制限有) |
| 【駐車場】 |
無し |
【エレベーター】 |
1基 |
Y's CORALビルは、東京都千代田区神田神保町2丁目20-13に位置する、交通利便性と使い勝手のよさを兼ね備えた賃貸オフィスビルです。最寄りの神保町駅へは東京メトロ半蔵門線、都営新宿線のいずれ…

| 図面 |
階数 |
面積 |
賃料(共益費込) (坪単価) |
保証金/敷金 |
礼金 |
入居可能日 |
|
|
4-5階 |
G 43.08坪 (142.41m2) |
700,000 (16,249) |
4ヶ月 |
1.0ヶ月 |
即日 |
|
物件番号:001830
更新日:2026/5/11
千代田区神田神保町2-4-7
【竣工】1988/5
【階建て】地上8F
|
【最寄駅】
|
【耐震】 |
新耐震 |
| 【基準階】 |
55.56坪 |
【エントランス】 |
平日・土開放 |
| 【駐車場】 |
無し |
【エレベーター】 |
1基 |
久月神田ビルは、東京都千代田区神田神保町二丁目に位置する、駅近立地と実用性を兼ね備えた賃貸オフィスビルです。神保町エリアの中心に立地し、専大通りに面した角地という分かりやすいロケー…

| 図面 |
階数 |
面積 |
賃料(共益費込) (坪単価) |
保証金/敷金 |
礼金 |
入居可能日 |
|
|
6階 |
G 55.56坪 (183.67m2) |
|
(未公開) |
無 |
即日 |
|
|
7階 |
G 55.55坪 (183.66m2) |
|
(未公開) |
無 |
即日 |
|
|
8階 |
G 55.52坪 (183.54m2) |
|
(未公開) |
無 |
即日 |
|
物件番号:064202
更新日:2026/5/28
千代田区九段南4-3-7
【竣工】1988/3
【階建て】地上6F 、地下1F
|
【最寄駅】
|
【耐震】 |
新耐震 |
| 【基準階】 |
47.56坪 |
【エントランス】 |
|
| 【駐車場】 |
無し |
【エレベーター】 |
1基 |
翠ビルヂングは、千代田区九段南4丁目に位置する、市ヶ谷エリアの角地に建つ賃貸オフィスビルです。周辺は落ち着いた街並みが広がり、都心にありながらも安定した執務環境が期待できる立地となっ…

| 図面 |
階数 |
面積 |
賃料(共益費込) (坪単価) |
保証金/敷金 |
礼金 |
入居可能日 |
|
|
B1階 |
G 48.18坪 (159.28m2) |
774,590 (16,077) |
6ヶ月 |
1.0ヶ月 |
即日 |
|
物件番号:001387
更新日:2026/5/8
千代田区飯田橋4-9-5
【竣工】1987/2
【階建て】地上8F
|
【最寄駅】
|
【耐震】 |
新耐震 |
| 【基準階】 |
47.09坪 |
【エントランス】 |
平日・土開放 |
| 【駐車場】 |
有り |
【エレベーター】 |
1基 |
スギタビルは、千代田区飯田橋4-9-5に位置する賃貸オフィスビルです。最寄りの飯田橋駅から徒歩1分という抜群のアクセスを誇り、JR総武線、東京メトロ東西線、東京メトロ有楽町線が利用可能です…

| 図面 |
階数 |
面積 |
賃料(共益費込) (坪単価) |
保証金/敷金 |
礼金 |
入居可能日 |
|
|
2階 |
G 47.09坪 (155.67m2) |
800,530 (17,000) |
8ヶ月 |
無 |
即日 |
|
物件番号:001702
更新日:2026/5/29
千代田区神田三崎町3-6-5
【竣工】1986/11
【階建て】地上7F
|
【最寄駅】
|
【耐震】 |
新耐震 |
| 【基準階】 |
59.21坪 |
【エントランス】 |
全日開放(制限有) |
| 【駐車場】 |
無し |
【エレベーター】 |
1基 |
原島本店ビルは、東京都千代田区神田三崎町3-6-5に位置するオフィスビルで、交通の利便性や耐震性の面で優れた物件です。1986年に竣工したこのビルは、地上7階建てのSRC(鉄骨鉄筋コンクリート)…

| 図面 |
階数 |
面積 |
賃料(共益費込) (坪単価) |
保証金/敷金 |
礼金 |
入居可能日 |
|
|
3階 |
G 59.21坪 (195.74m2) |
651,310 (11,000) |
8ヶ月 |
無 |
即日 |
|
物件番号:001361
更新日:2026/5/19
千代田区飯田橋2-1-5
【竣工】1986/5(改修:2018)
【階建て】地上9F
|
【最寄駅】
|
【耐震】 |
新耐震 |
| 【基準階】 |
55.82坪 |
【エントランス】 |
全日開放(24h) |
| 【駐車場】 |
有り |
【エレベーター】 |
1基 |
飯田橋・九段エリア。専大通りに面したオフィスビ。S-Glanz KUDAN BLDは千代田区飯田橋1丁目、東京メトロ東西線・半蔵門線・都営新宿線の九段下駅より徒歩4分圏内。専大通りに面した角地に位置し…

| 図面 |
階数 |
面積 |
賃料(共益費込) (坪単価) |
保証金/敷金 |
礼金 |
入居可能日 |
|
|
7階 |
G 56.11坪 (185.49m2) |
1,403,000 (25,000) |
6ヶ月 |
無 |
即日 |
|
|
8階 |
G 56.11坪 (185.49m2) |
1,403,000 (25,000) |
6ヶ月 |
無 |
即日 |
|
物件番号:036649
更新日:2026/5/28
千代田区神田神保町2-8-20
【竣工】1986/3(改修:2024)
【階建て】地上7F
|
【最寄駅】
|
【耐震】 |
新耐震 |
| 【基準階】 |
30.39坪 |
【エントランス】 |
全日開放(24h) |
| 【駐車場】 |
無し |
【エレベーター】 |
1基 |
NOVEL WORK Jimbocho は、東京都千代田区神田神保町2-8-20に位置する賃貸オフィスビルです。交通アクセスに恵まれた立地が魅力で、東京メトロ半蔵門線・都営三田線・都営新宿線の神保町駅から徒…

| 図面 |
階数 |
面積 |
賃料(共益費込) (坪単価) |
保証金/敷金 |
礼金 |
入居可能日 |
|
|
5-6階 |
G 50.25坪 (166.13m2) |
1,256,250 (25,000) |
無 |
無 |
即日 |
|
物件番号:001366
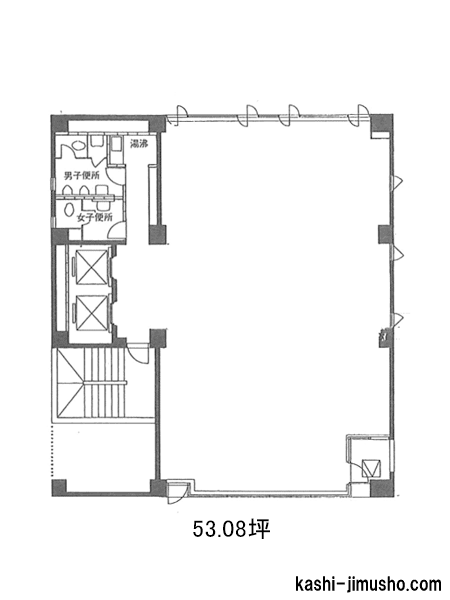
更新日:2026/5/8
千代田区飯田橋3-11-20
【竣工】1986/1
【階建て】地上8F 、地下1F
|
【最寄駅】
|
【耐震】 |
新耐震 |
| 【基準階】 |
53.08坪 |
【エントランス】 |
平日のみ開放 |
| 【駐車場】 |
有り |
【エレベーター】 |
2基 |
SPビルは、東京都千代田区飯田橋3-11-20に位置するオフィスビルです。JR総武線「飯田橋」駅をはじめ、東京メトロ東西線・南北線、都営大江戸線がいずれも徒歩2分圏内で利用できる非常に優れた…

| 図面 |
階数 |
面積 |
賃料(共益費込) (坪単価) |
保証金/敷金 |
礼金 |
入居可能日 |
|
|
6階 |
G 53.08坪 (175.47m2) |
1,167,760 (22,000) |
8ヶ月 |
無 |
2026/5 中旬 |
|
|
7階 |
G 53.08坪 (175.47m2) |
1,167,760 (22,000) |
8ヶ月 |
無 |
2026/5 中旬 |
|
物件番号:079472
更新日:2026/5/28
千代田区神田三崎町3-7-1
【竣工】1985/4
【階建て】地上7F 、地下1F
|
【最寄駅】
|
【耐震】 |
新耐震 |
| 【基準階】 |
51.03坪 |
【エントランス】 |
|
| 【駐車場】 |
無し |
【エレベーター】 |
1基 |
水道橋フロントは、千代田区神田三崎町3-7-1にある賃貸オフィスビルです。最寄りのJR総武線水道橋駅から徒歩1分という距離にあり、非常にアクセスが良好です。また、徒歩6分圏内で都営三田線の水…

| 図面 |
階数 |
面積 |
賃料(共益費込) (坪単価) |
保証金/敷金 |
礼金 |
入居可能日 |
|
|
2階 |
G 51.03坪 (168.70m2) |
1,377,810 (27,000) |
6ヶ月 |
無 |
2026/9 中旬 |
|
|
3階 |
G 53.11坪 (175.60m2) |
1,433,970 (27,000) |
6ヶ月 |
無 |
2026/9 中旬 |
|
物件番号:062166
更新日:2026/5/20
千代田区神田三崎町2-2-14
【竣工】1985/4(改修:2017)
【階建て】地上5F
|
【最寄駅】
|
【耐震】 |
新耐震 |
| 【基準階】 |
50.83坪 |
【エントランス】 |
平日のみ開放 |
| 【駐車場】 |
有り |
【エレベーター】 |
1基 |
神田三崎町エリア。2017年全面リニューアルのスタイリッシュな貸事務所。BRICK GATE水道橋は千代田区神田三崎町2-17-2です。JR総武線 水道橋駅より徒歩4分圏内、都営三田線 水道橋駅より徒歩5分…

| 図面 |
階数 |
面積 |
賃料(共益費込) (坪単価) |
保証金/敷金 |
礼金 |
入居可能日 |
|
|
2階 |
G 50.83坪 (168.06m2) |
1,219,920 (24,000) |
6ヶ月 |
無 |
2026/9/20 |
|
物件番号:057694
更新日:2026/5/28
千代田区神田神保町2-5
【竣工】1985/1(改修:2019)
【階建て】地上8F 、地下1F
|
【最寄駅】
|
【耐震】 |
新耐震 |
| 【基準階】 |
25.05坪 |
【エントランス】 |
全日開放(制限有) |
| 【駐車場】 |
無し |
【エレベーター】 |
1基 |
神保町センタービルは東京都千代田区神田神保町2-5にある賃貸オフィスビルです。靖国通り沿いに位置する視認性抜群の立地です。白を基調としたシンプルでシャープな外観です。2019年にリニューア…

| 図面 |
階数 |
面積 |
賃料(共益費込) (坪単価) |
保証金/敷金 |
礼金 |
入居可能日 |
|
|
3-4階 |
G 48.26坪 (159.54m2) |
|
6ヶ月 |
無 |
即日 |
|
物件番号:066688
更新日:2026/5/7
千代田区神田三崎町2-2-12
【竣工】1984/5
【階建て】地上6F
|
【最寄駅】
|
【耐震】 |
新耐震 |
| 【基準階】 |
55.50坪 |
【エントランス】 |
平日のみ開放 |
| 【駐車場】 |
無し |
【エレベーター】 |
1基 |
塩谷ビルは、東京都千代田区神田三崎町2丁目に位置する地上6階建ての鉄筋コンクリート造(RC造)オフィスビルです。1984年5月に竣工し、新耐震基準を満たしている安心の構造です。JR総武線「水道…

| 図面 |
階数 |
面積 |
賃料(共益費込) (坪単価) |
保証金/敷金 |
礼金 |
入居可能日 |
|
|
3階 |
G 55.50坪 (183.47m2) |
777,000 (14,000) |
6ヶ月 |
無 |
相談 |
|
物件番号:001434
更新日:2026/5/18
千代田区飯田橋4-2-1
【竣工】1984/2(改修:2016)
【階建て】地上8F
|
【最寄駅】
|
【耐震】 |
新耐震 |
| 【基準階】 |
85.58坪 |
【エントランス】 |
平日・土開放 |
| 【駐車場】 |
有り |
【エレベーター】 |
1基 |
岩見ビルは、東京都千代田区飯田橋四丁目に位置する、角地に立地した明るい貸事務所ビルです。レンガタイル貼りの外観が印象的で、落ち着いた街並みに調和しながらも視認性の高い佇まいを備えて…

| 図面 |
階数 |
面積 |
賃料(共益費込) (坪単価) |
保証金/敷金 |
礼金 |
入居可能日 |
|
|
6階 |
G 41.98坪 (138.78m2) |
629,700 (15,000) |
7ヶ月 |
無 |
即日 |
|
物件番号:001205
更新日:2026/5/28
千代田区九段北4-3-16
【竣工】1980/7
【階建て】地上7F
|
【最寄駅】
|
【耐震】 |
旧耐震 |
| 【基準階】 |
53.43坪 |
【エントランス】 |
全日開放(制限有) |
| 【駐車場】 |
有り |
【エレベーター】 |
1基 |
サンライン第14ビルは、東京都千代田区九段北四丁目に位置する地上9階建てのオフィスビルです。1980年7月に竣工し、堅牢なSRC(鉄骨鉄筋コンクリート)構造によって建てられています。交通アクセ…

| 図面 |
階数 |
面積 |
賃料(共益費込) (坪単価) |
保証金/敷金 |
礼金 |
入居可能日 |
|
|
2階 |
G 48.74坪 (161.14m2) |
731,101 (15,000) |
6ヶ月 |
0.5ヶ月 |
即日 |
|
|
3階 |
G 53.43坪 (176.63m2) |
840,310 (15,728) |
6ヶ月 |
0.5ヶ月 |
即日 |
|
|
4階 |
G 53.43坪 (176.63m2) |
820,880 (15,364) |
6ヶ月 |
0.5ヶ月 |
即日 |
|
非公開物件の賃料目安アイコン
8,000 円未満
8,000 円以上~1.0 万円未満
1.0 万以上~1.2 万円未満
1.2 万以上~1.4 万円未満
1.4 万以上~1.6 万円未満
1.6 万以上~2.0 万円未満
2.0 万以上~2.5 万円未満
2.5 万以上~3.0 万円未満
3.0 万円以上
未定
※取引態様:媒介
※フロア図面と現況が異なる場合は現況を優先いたします。
※貸室内部の写真・貸室からの景色に関しては、現在の募集フロアと異なる場合がございます。
※取引態様:媒介
その他、九段・飯田橋・水道橋の貸事務所をお探しの方はこちらをクリック

トイレ男女別貸事務所を区から探す
千代田区のトイレ男女別貸事務所
中央区のトイレ男女別貸事務所
港区のトイレ男女別貸事務所
新宿区のトイレ男女別貸事務所
渋谷区のトイレ男女別貸事務所
台東区のトイレ男女別貸事務所
品川区のトイレ男女別貸事務所
豊島区のトイレ男女別貸事務所
文京区のトイレ男女別貸事務所
目黒区のトイレ男女別貸事務所
東京都内のトイレ男女別貸事務所
九段・飯田橋・水道橋エリアの関連特集