
五島育英会ビル渋谷・神宮前 渋谷区の賃貸情報
物件番号:20868
住所
渋谷区道玄坂1-10-7五島育英会ビルの募集中物件リスト
| 図面 | 階数 | 面積 | 賃料(共益費込) (坪単価) |
保証金/敷金 | 礼金 | 入居可能日 |
|---|---|---|---|---|---|---|
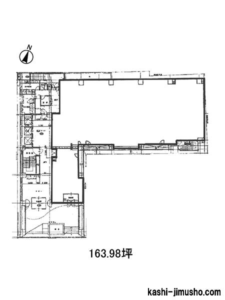
| 1階 |
N 163.98坪 (542.09m2) |
(未公開)
|
12ヶ月 | 無 | 2026/8/1 |
- ※取引態様:媒介
- ※フロア図面と現況が異なる場合は現況を優先いたします。
- ※貸室内部の写真・貸室からの景色に関しては、現在の募集フロアと異なる場合がございます。
- ※保証金/敷金以外の費用については別途消費税が必要になります。
- ※各物件により、別途費用が必要な場合には、物件紹介時又は重要事項説明においてご説明いたします。
- ※面積の箇所に表示している N はネット契約(契約面積はオフィス専用部分のみ)、G はグロス契約(契約面積は共用部分を加えた面積)を表しています。
五島育英会ビルの設備概要※-は確認中の表記になります。
| 竣工 | 1988年 | 構造・階建て | SRC造 地上8階 地下3階 |
|---|---|---|---|
| 耐震 | 新耐震 | 基準階面積 | 223.87坪 |
| エレベーター | 3基 | 駐車場 | 有 |
| ビル使用時間 | 24時間使用可 | エントランス | 平日・土開放 |
| セキュリティ | 機械 | 光ファイバー | 有 |
| 契約種別 | 定期借家契約 | 建替え予定 | - |
| 保証契約 | - |
渋谷駅から徒歩3分の賃貸オフィス!

野口 椋太
五島育英会ビルは、東京都渋谷区道玄坂1丁目10-7に位置する、大規模かつ機能性に優れた賃貸オフィスビルです。渋谷駅から徒歩わずか3分という抜群のアクセスを誇り、JR山手線・東急東横線・田園都市線・東京メトロ銀座線・半蔵門線といった複数路線が利用可能なため、都内はもちろん、郊外からのアクセスにも非常に便利です。1988年8月に竣工した本ビルは、地上8階・地下3階建てのSRC造(鉄骨鉄筋コンクリート造)で、新耐震基準に適合しており、安全性にも配慮された堅牢な構造です。基準階は223.87㎡(約67.7坪)と広々とした空間を確保しており、レイアウトの自由度が高く、規模のある企業にも対応できる仕様となっています。エレベーターは3基設置されており、出勤時や休憩時間など、混雑しやすい時間帯でもスムーズなフロア移動が可能です。また、38台分の駐車場を完備しています。空調は個別方式を採用しており、各テナントが自由に室温調整できるため、快適なオフィス環境を実現します。床はOAフロア仕様となっており、配線が床下に収まることでオフィス内をすっきり保ち、柔軟なレイアウトに対応可能です。トイレは室外に設置されており、男女別に分かれているため、清潔で快適に利用することができます。さらに、光ファイバーによる高速インターネット環境が整っており、ビジネスに欠かせない通信面でも安心です。セキュリティ面では機械警備が導入されており、24時間利用が可能なため、フレックスタイムや夜間稼働がある業態にも柔軟に対応できます。五島育英会ビルは、渋谷の中心という立地に加え、広さ・機能・安全性を兼ね備えたオフィス空間で、成長企業から大規模法人まで幅広いニーズに応える物件です。
【周辺ガイド】
五島育英会ビルの周辺は、ビジネスにも日常利用にも優れた環境が整っています。道玄坂エリアは渋谷の中でも特に発展したオフィス・商業混在エリアで、多くの企業や店舗が集まり、常に人と情報が行き交う活気あるエリアです。ビルの近隣には、渋谷マークシティや渋谷道玄坂通(旧東急プラザ渋谷)などの商業施設があり、飲食店・カフェ・コンビニが充実しています。ランチや来客対応、仕事終わりの会食にも便利で、ビジネスの幅を広げる環境が整っています。また、銀行、郵便局、ドラッグストア、クリニックなど、オフィス運営に欠かせない生活インフラもすべて徒歩圏内に揃っており、日常業務を効率的に進められる点も魅力です。さらに、渋谷駅は複数路線が乗り入れるターミナル駅であるため、都内各地はもちろん、埼玉・神奈川方面からのアクセスも良く、通勤や取引先との行き来にも大きな利便性を発揮します。道玄坂は、賑わいのある商業ゾーンであると同時に、少し奥に入れば落ち着いた雰囲気の通りも多く、オフィスとしての環境も確保されています。周囲にはIT企業やスタートアップ、メディア関連企業も多く、ビジネス交流や情報収集の場としても適しています。五島育英会ビルの立地は、渋谷という大都市の中心にありながら、快適で実用的なオフィス環境が手に入る、バランスの取れた魅力的な環境と言えるでしょう。
【評価】4.2
| 駅からの距離 | 設備 | 耐震性 | エントランス |
|---|
五島育英会ビルの周辺地図
「五島育英会ビル」に関するお問合せ
![]() |
|
| このページのURL | https://tokyo.kashi-jimusho.com/detail/20868/ |
|---|---|
株式会社サンエスコーポレーション |
|
| 〒103-0027 東京都中央区日本橋2-2-21 日本橋二丁目ビル5階 | |













