トイレ男女別の貸事務所(港区)(60~80坪)
東京都港区にあるトイレが男女別の貸事務所を掲載しています。特に、女性のお客様が重要視するのがオフィスビルのトイレです。男性と同じトイレは敬遠されることが多く、男女別のトイレを希望するお客様がいらっしゃいます。そこで女性社員の快適性を考えトイレが男女別の貸事務所をご紹介します。
港区の男女別トイレ貸事務所
物件番号:083079
更新日:2026/5/11
港区西新橋1-104-6
【竣工】2026/2
【階建て】地上10F
|
【最寄駅】
|
【耐震】 |
新耐震 |
| 【基準階】 |
67.64坪 |
【エントランス】 |
オートロック |
| 【駐車場】 |
有り |
【エレベーター】 |
2基 |
REVZO新橋は、東京都港区西新橋1丁目に位置する2026年2月竣工のオフィスビルです。都営三田線「内幸町駅」から徒歩2分、JR山手線・京浜東北線・東海道本線および東京メトロ銀座線「新橋駅」から…

| 図面 |
階数 |
面積 |
賃料(共益費込) (坪単価) |
保証金/敷金 |
礼金 |
入居可能日 |
|
|
9階 |
G 67.64坪 (223.60m2) |
|
無 |
無 |
2026/10 |
|
|
10階 |
G 67.64坪 (223.60m2) |
|
無 |
無 |
2026/10 |
|
物件番号:083159
更新日:2026/5/11
港区高輪3-466-5
【竣工】2026/1
【階建て】地上10F
|
【最寄駅】
|
【耐震】 |
新耐震 |
| 【基準階】 |
277.00坪 |
【エントランス】 |
全日開放(制限有) |
| 【駐車場】 |
有り |
【エレベーター】 |
6基 |
Ave.Takanawaは、東京都港区高輪3丁目に2026年1月に竣工のオフィスビルです。JR山手線、京浜東北線、横須賀線、東海道本線および京急本線の各品川駅から徒歩4分という優れたアクセス性を誇り、都…

| 図面 |
階数 |
面積 |
賃料(共益費込) (坪単価) |
保証金/敷金 |
礼金 |
入居可能日 |
|
|
2階 |
N 70.99坪 (234.68m2) |
|
(未公開) |
無 |
即日 |
|
|
2階 |
N 70.99坪 (234.68m2) |
|
(未公開) |
無 |
即日 |
|
物件番号:080541
更新日:2026/5/12
港区芝2-2-12
【竣工】2023/1
【階建て】地上11F
|
【最寄駅】
|
【耐震】 |
新耐震 |
| 【基準階】 |
69.85坪 |
【エントランス】 |
オートロック |
| 【駐車場】 |
無し |
【エレベーター】 |
2基 |
浜松町PREXは、東京都港区芝2-2-12に位置する2023年竣工のハイグレードオフィスビルです。立地と機能性を兼ね備え、現代のビジネスニーズに応える優れた環境を提供しています。浜松町PREXは、浜…

| 図面 |
階数 |
面積 |
賃料(共益費込) (坪単価) |
保証金/敷金 |
礼金 |
入居可能日 |
|
|
4階 |
G 69.85坪 (230.91m2) |
|
12ヶ月 |
無 |
2026/7 |
|
物件番号:064643
更新日:2026/5/19
港区芝公園1-7-6
【竣工】2015/4
【階建て】地上10F 、地下1F
|
【最寄駅】
|
【耐震】 |
新耐震+免震 |
| 【基準階】 |
304.00坪 |
【エントランス】 |
オートロック |
| 【駐車場】 |
有り |
【エレベーター】 |
5基 |
港区芝公園1丁目にある、KDX浜松町プレイスです。最寄駅は、都営浅草線・都営大江戸線の大門駅です。徒歩3分圏内でアクセス可能です。都営三田線の御成門駅が徒歩4分圏内、JR山手線・JR京浜東北…

| 図面 |
階数 |
面積 |
賃料(共益費込) (坪単価) |
保証金/敷金 |
礼金 |
入居可能日 |
|
|
7階 |
N 67.20坪 (222.15m2) |
|
12ヶ月 |
無 |
2026/10/1 |
|
物件番号:061856
更新日:2026/5/20
港区三田3-1-17
【竣工】2011/10
【階建て】地上14F 、地下1F
|
【最寄駅】
|
【耐震】 |
新耐震 |
| 【基準階】 |
71.62坪 |
【エントランス】 |
オートロック |
| 【駐車場】 |
有り |
【エレベーター】 |
2基 |
港区三田3丁目に位置する「Axior三田ビル」は、複数路線を利用できる優れた交通利便性を備えた賃貸オフィスビルです。徒歩圏内に地下鉄やJRの駅があり、都内主要エリアはもちろん、郊外方面への…

| 図面 |
階数 |
面積 |
賃料(共益費込) (坪単価) |
保証金/敷金 |
礼金 |
入居可能日 |
|
|
8階 |
G 71.62坪 (236.76m2) |
|
無 |
無 |
2026/6/1 |
|
物件番号:053339
更新日:2026/5/15
港区浜松町1-6-15
【竣工】2008/8
【階建て】地上10F
|
【最寄駅】
|
【耐震】 |
新耐震 |
| 【基準階】 |
66.43坪 |
【エントランス】 |
平日・土開放 |
| 【駐車場】 |
有り |
【エレベーター】 |
1基 |
大門・浜松町駅より徒歩4分圏内。2面採光の明るい貸事務所。 VORT浜松町Ⅰは港区浜松町1-6-15の物件です。JR山手線・京浜東北線 浜松町駅、東京モノレール線 浜松町駅より徒歩4分圏内、都営浅草線…

| 図面 |
階数 |
面積 |
賃料(共益費込) (坪単価) |
保証金/敷金 |
礼金 |
入居可能日 |
|
|
5階 |
G 66.43坪 (219.62m2) |
|
5ヶ月 |
1.0ヶ月 |
2026/10 上旬 |
|
物件番号:039329
更新日:2026/5/13
港区三田3-1-4
【竣工】2007/4
【階建て】地上7F
|
【最寄駅】
|
【耐震】 |
新耐震 |
| 【基準階】 |
70.27坪 |
【エントランス】 |
平日・土開放 |
| 【駐車場】 |
有り |
【エレベーター】 |
1基 |
NET1三田ビルは、東京都港区三田3丁目に位置するオフィスビルで、利便性と機能性を兼ね備えた物件です。交通アクセスに優れた立地が特徴で、JR山手線と京浜東北線「田町駅」、および都営三田線と…

| 図面 |
階数 |
面積 |
賃料(共益費込) (坪単価) |
保証金/敷金 |
礼金 |
入居可能日 |
|
|
6階 |
G 70.27坪 (232.30m2) |
|
10ヶ月 |
無 |
即日 |
|
物件番号:083714
更新日:2026/5/18
港区芝大門2-1-14
【竣工】2001/3
【階建て】地上9F 、地下1F
|
【最寄駅】
|
【耐震】 |
新耐震 |
| 【基準階】 |
72.00坪 |
【エントランス】 |
|
| 【駐車場】 |
有り |
【エレベーター】 |
2基 |
エンスイテ芝大門は、東京都港区芝大門2-1-14に位置する地上9階建て地下1階のオフィスビルです。2001年3月に竣工し、RC造で建てられています。新耐震基準に適合しており、安全性にも優れています…

| 図面 |
階数 |
面積 |
賃料(共益費込) (坪単価) |
保証金/敷金 |
礼金 |
入居可能日 |
|
|
2階 |
G 75.21坪 (248.66m2) |
|
6ヶ月 |
無 |
2026/8 予定 |
|
|
3階 |
G 75.21坪 (248.66m2) |
|
6ヶ月 |
無 |
2026/8 予定 |
|
|
4階 |
G 75.21坪 (248.66m2) |
|
6ヶ月 |
無 |
2026/8 予定 |
|
|
5階 |
G 75.21坪 (248.66m2) |
|
6ヶ月 |
無 |
2026/8 予定 |
|
|
6階 |
G 75.21坪 (248.66m2) |
|
6ヶ月 |
無 |
2026/8 予定 |
|
|
7階 |
G 75.21坪 (248.66m2) |
|
6ヶ月 |
無 |
2026/8 予定 |
|
|
8階 |
G 75.21坪 (248.66m2) |
|
6ヶ月 |
無 |
2026/8 予定 |
|
物件番号:011792
更新日:2026/5/12
港区六本木4-8-7
【竣工】1996/2
【階建て】地上9F
|
【最寄駅】
|
【耐震】 |
新耐震 |
| 【基準階】 |
65.57坪 |
【エントランス】 |
平日・土開放 |
| 【駐車場】 |
有り |
【エレベーター】 |
1基 |
六本木三河台ビルは、東京都港区六本木4-8-7に位置するオフィスビルで、利便性と機能性を兼ね備えた物件です。1996年2月に竣工したこのビルは、地上9階建ての鉄骨造(S造)で、新耐震基準を満た…

| 図面 |
階数 |
面積 |
賃料(共益費込) (坪単価) |
保証金/敷金 |
礼金 |
入居可能日 |
|
|
9階 |
G 67.12坪 (221.88m2) |
|
(未公開) |
無 |
未定 |
|
物件番号:013708
更新日:2026/5/1
港区新橋6-20-1
【竣工】1995/8
【階建て】地上9F
|
【最寄駅】
|
【耐震】 |
新耐震 |
| 【基準階】 |
63.33坪 |
【エントランス】 |
平日のみ開放 |
| 【駐車場】 |
有り |
【エレベーター】 |
1基 |
御成門エリアに位置する、窓が大きく明るい賃貸オフィスビルです。ル・グラシエルBLDG.1は、東京都港区新橋6-20-1に立地する賃貸オフィスビルです。この物件は、都営三田線の御成門駅から徒歩5分…

| 図面 |
階数 |
面積 |
賃料(共益費込) (坪単価) |
保証金/敷金 |
礼金 |
入居可能日 |
|
|
4階 |
G 63.33坪 (209.36m2) |
949,950 (15,000) |
無 |
無 |
即日 |
|
物件番号:011064
更新日:2026/5/1
港区赤坂9-5-24
【竣工】1994/10
【階建て】地上5F 、地下1F
|
【最寄駅】
|
【耐震】 |
新耐震 |
| 【基準階】 |
93.00坪 |
【エントランス】 |
平日のみ開放 |
| 【駐車場】 |
有り |
【エレベーター】 |
2基 |
赤坂日本ビルは、東京都港区赤坂9-5-24に位置する賃貸オフィスビルで、利便性と快適性を兼ね備えた魅力的な物件です。最寄り駅は東京メトロ千代田線の乃木坂駅で、徒歩1分圏内と極めて好立地にあ…

| 図面 |
階数 |
面積 |
賃料(共益費込) (坪単価) |
保証金/敷金 |
礼金 |
入居可能日 |
|
|
5階 |
G 78.64坪 (259.97m2) |
|
8ヶ月 |
無 |
即日 |
|
物件番号:014982
更新日:2026/5/7
港区芝公園1-8-21
【竣工】1994/9
【階建て】地上9F 、地下1F
|
【最寄駅】
|
【耐震】 |
新耐震 |
| 【基準階】 |
60.82坪 |
【エントランス】 |
平日のみ開放 |
| 【駐車場】 |
有り |
【エレベーター】 |
2基 |
芝公園リッジビルは、東京都港区芝公園1-8-21に位置する魅力的なオフィスビルです。立地の良さと充実した機能が特徴で、ビジネス環境として理想的な条件を備えています。最寄り駅は都営三田線の…

| 図面 |
階数 |
面積 |
賃料(共益費込) (坪単価) |
保証金/敷金 |
礼金 |
入居可能日 |
|
|
7階 |
G 63.22坪 (208.99m2) |
1,264,400 (20,000) |
10ヶ月 |
無 |
2026/6 上旬 |
|
物件番号:016118
更新日:2026/5/18
港区海岸3-18-1
【竣工】1994/7
【階建て】地上16F 、地下3F
|
【最寄駅】
|
【耐震】 |
新耐震 |
| 【基準階】 |
274.90坪 |
【エントランス】 |
平日のみ開放 |
| 【駐車場】 |
有り |
【エレベーター】 |
5基 |
ピアシティ芝浦ビルは東京都港区海岸3-18-1にあるオフィスビルです。芝浦ふ頭駅から出た海岸通り沿い角地に位置するビルです。周辺はベイエリアで倉庫などを中心に発展したエリアで、落ち着いた…

| 図面 |
階数 |
面積 |
賃料(共益費込) (坪単価) |
保証金/敷金 |
礼金 |
入居可能日 |
|
|
6階 |
N 65.54坪 (216.66m2) |
|
12ヶ月 |
無 |
即日 |
|
物件番号:014322
更新日:2026/5/20
港区西新橋3-15-12
【竣工】1994/1
【階建て】地上9F
|
【最寄駅】
|
【耐震】 |
新耐震 |
| 【基準階】 |
69.95坪 |
【エントランス】 |
平日・土開放 |
| 【駐車場】 |
無し |
【エレベーター】 |
1基 |
西新橋JKビルは、東京都港区西新橋3丁目に位置するハイグレードな賃貸オフィスビルです。再開発が進み注目を集める虎ノ門・西新橋エリアに立地し、愛宕下通りに面しているため視認性にも優れてい…

| 図面 |
階数 |
面積 |
賃料(共益費込) (坪単価) |
保証金/敷金 |
礼金 |
入居可能日 |
|
|
5階 |
G 69.95坪 (231.24m2) |
1,329,050 (19,000) |
6ヶ月 |
無 |
即日 |
|
物件番号:015307
更新日:2026/5/12
港区浜松町1-9-10
【竣工】1993/7
【階建て】地上10F 、地下2F
|
【最寄駅】
|
【耐震】 |
新耐震 |
| 【基準階】 |
135.62坪 |
【エントランス】 |
平日・土開放 |
| 【駐車場】 |
有り |
【エレベーター】 |
2基 |
DaiwaA浜松町ビルは、東京都港区浜松町1-9-10に位置する、利便性と快適さを兼ね備えたオフィスビルです。都営浅草線と都営大江戸線の大門駅から徒歩3分、JR山手線および京浜東北線の浜松町駅から…

| 図面 |
階数 |
面積 |
賃料(共益費込) (坪単価) |
保証金/敷金 |
礼金 |
入居可能日 |
|
|
8階 |
N 63.89坪 (211.21m2) |
|
(未公開) |
無 |
即日 |
|
物件番号:015744
更新日:2026/5/13
港区芝3-12-1
【竣工】1992/12
【階建て】地上8F
|
【最寄駅】
|
【耐震】 |
新耐震 |
| 【基準階】 |
66.52坪 |
【エントランス】 |
平日・土開放 |
| 【駐車場】 |
無し |
【エレベーター】 |
1基 |
いちご芝公園ビルは、港区芝3丁目に位置する賃貸オフィスビルです。最寄り駅の都営大江戸線赤羽橋駅から徒歩3分、都営三田線芝公園駅から徒歩5分、都営三田線・都営浅草線三田駅から徒歩8分圏内…

| 図面 |
階数 |
面積 |
賃料(共益費込) (坪単価) |
保証金/敷金 |
礼金 |
入居可能日 |
|
|
6階 |
G 66.52坪 (219.90m2) |
|
(未公開) |
無 |
即日 |
|
物件番号:016477
更新日:2026/4/30
港区三田1-2-18
【竣工】1992/11
【階建て】地上9F 、地下1F
|
【最寄駅】
|
【耐震】 |
新耐震 |
| 【基準階】 |
191.52坪 |
【エントランス】 |
平日・土開放 |
| 【駐車場】 |
有り |
【エレベーター】 |
2基 |
複数路線が利用可能で交通アクセス良好です。グレーを基調とした落ち着いた印象の外観です。トイレは室外で男女別にわかれています。

| 図面 |
階数 |
面積 |
賃料(共益費込) (坪単価) |
保証金/敷金 |
礼金 |
入居可能日 |
|
|
5階 |
G 69.86坪 (230.94m2) |
1,117,760 (16,000) |
6ヶ月 |
1.0ヶ月 |
即日 |
|
物件番号:062820
更新日:2026/5/20
港区芝浦4-17-3
【竣工】1992/10
【階建て】地上7F 、地下1F
|
【最寄駅】
|
【耐震】 |
新耐震 |
| 【基準階】 |
120.38坪 |
【エントランス】 |
全日開放(制限有) |
| 【駐車場】 |
有り |
【エレベーター】 |
2基 |
芝浦NAビルは、港区芝浦4-17-3に位置し、交通の便が良い場所にあります。最寄駅はJR山手線の高輪ゲートウェイ駅で、徒歩5分圏内とアクセスも非常に良好です。さらに、徒歩10分圏内には京急本線と…

| 図面 |
階数 |
面積 |
賃料(共益費込) (坪単価) |
保証金/敷金 |
礼金 |
入居可能日 |
|
|
6階 |
G 71.85坪 (237.52m2) |
862,200 (12,000) |
8ヶ月 |
1.0ヶ月 |
即日 |
|
物件番号:039669
更新日:2026/5/15
港区芝公園1-2-4
【竣工】1992/10
【階建て】地上9F 、地下2F
|
【最寄駅】
|
【耐震】 |
新耐震 |
| 【基準階】 |
69.08坪 |
【エントランス】 |
平日のみ開放 |
| 【駐車場】 |
有り |
【エレベーター】 |
2基 |
エス・ティビルは、東京都港区芝公園1丁目に立地する地上9階・地下2階建てのオフィスビルです。1992年10月に竣工し、SRC造による堅固な構造で新耐震基準に適合しており、安心してご利用いただけ…

| 図面 |
階数 |
面積 |
賃料(共益費込) (坪単価) |
保証金/敷金 |
礼金 |
入居可能日 |
|
|
4階 |
N 69.98坪 (231.34m2) |
|
12ヶ月 |
無 |
即日 |
|
物件番号:013525
更新日:2026/5/20
港区新橋2-13-8
【竣工】1992/7(改修:2007)
【階建て】地上9F 、地下1F
|
【最寄駅】
|
【耐震】 |
新耐震 |
| 【基準階】 |
81.54坪 |
【エントランス】 |
平日のみ開放 |
| 【駐車場】 |
無し |
【エレベーター】 |
1基 |
複数路線が利用可能な利便性に優れた立地です!メンテナンスが行き届いた清潔感のある綺麗な物件です!機械警備でセキュリティも安心です!

| 図面 |
階数 |
面積 |
賃料(共益費込) (坪単価) |
保証金/敷金 |
礼金 |
入居可能日 |
|
|
NEW5階 |
G 66.24坪 (218.98m2) |
1,457,280 (22,000) |
12ヶ月 |
無 |
2026/9/1 |
|
物件番号:035598
更新日:2026/4/30
港区六本木1-7-27
【竣工】1992/1
【階建て】地上5F 、地下2F
|
【最寄駅】
|
【耐震】 |
新耐震 |
| 【基準階】 |
201.00坪 |
【エントランス】 |
|
| 【駐車場】 |
有り |
【エレベーター】 |
2基 |
六本木一丁目駅からわずか徒歩1分、ビジネスの中心地に佇む「全特六本木ビルEAST棟」は、御影石とガラスが織りなす重厚かつ洗練された外観が印象的なオフィスビルです。明るく開放感あるガラス張…

| 図面 |
階数 |
面積 |
賃料(共益費込) (坪単価) |
保証金/敷金 |
礼金 |
入居可能日 |
|
|
3階 |
N 64.20坪 (212.23m2) |
1,412,400 (22,000) |
10ヶ月 |
無 |
即日 |
|
物件番号:080724
更新日:2026/5/22
港区赤坂7-5-17
【竣工】1991/9
【階建て】地上3F
|
【最寄駅】
|
【耐震】 |
新耐震 |
| 【基準階】 |
|
【エントランス】 |
|
| 【駐車場】 |
- |
【エレベーター】 |
1基 |
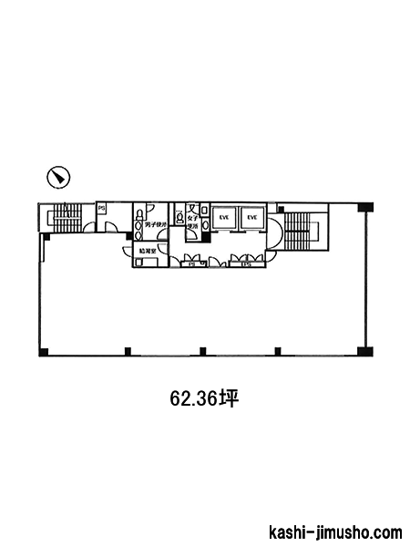
ラグジュアリーヒルズ赤坂は、東京都港区赤坂7丁目に位置する3階建てのオフィスビルで、1991年9月に竣工した建物です。千代田線の乃木坂駅から徒歩10分、赤坂駅からは徒歩11分という利便性の高い…

| 図面 |
階数 |
面積 |
賃料(共益費込) (坪単価) |
保証金/敷金 |
礼金 |
入居可能日 |
|
|
2階 |
G 62.38坪 (206.22m2) |
|
8ヶ月 |
無 |
即日 |
|
物件番号:044206
更新日:2026/5/22
港区港南1-8-40
【竣工】1991/9
【階建て】地上8F 、地下1F
|
【最寄駅】
|
【耐震】 |
新耐震 |
| 【基準階】 |
122.63坪 |
【エントランス】 |
平日のみ開放 |
| 【駐車場】 |
有り |
【エレベーター】 |
2基 |
A-PLACE品川は、東京都港区港南1-8-40に位置するオフィスビルです。交通アクセスに優れており、JR山手線・JR東海道本線・JR京浜東北線・JR横須賀線の各「品川」駅から徒歩4分、さらに京急本線「…

| 図面 |
階数 |
面積 |
賃料(共益費込) (坪単価) |
保証金/敷金 |
礼金 |
入居可能日 |
|
|
1階 |
N 66.72坪 (220.56m2) |
|
12ヶ月 |
無 |
2026/9/1 |
|
物件番号:012149
更新日:2026/5/15
港区南青山2-26-37
【竣工】1991/9
【階建て】地上9F
|
【最寄駅】
|
【耐震】 |
新耐震 |
| 【基準階】 |
63.21坪 |
【エントランス】 |
全日開放(制限有) |
| 【駐車場】 |
無し |
【エレベーター】 |
1基 |
港区南青山2丁目に位置する「VORT外苑前Ⅰ」は、東京メトロ銀座線・外苑前駅の地下鉄出口から徒歩わずか1分の距離にある、青山通り沿いの視認性に優れた賃貸オフィスビルです。1991年に竣工した本…

| 図面 |
階数 |
面積 |
賃料(共益費込) (坪単価) |
保証金/敷金 |
礼金 |
入居可能日 |
|
|
7階 |
G 63.21坪 (208.98m2) |
|
5ヶ月 |
1.0ヶ月 |
即日 |
|
物件番号:016412
更新日:2026/4/27
港区三田3-12-17
【竣工】1991/9
【階建て】地上10F
|
【最寄駅】
|
【耐震】 |
新耐震 |
| 【基準階】 |
74.56坪 |
【エントランス】 |
全日開放(24h) |
| 【駐車場】 |
無し |
【エレベーター】 |
1基 |
泉岳寺駅より徒歩5分圏内。第一京浜に面した貸事務所。プレクスビルディングは港区三田3-12-17の物件です。最寄駅は京急本線・都営浅草線の泉岳寺駅。泉岳寺駅より徒歩5分圏内でアクセスできます…

| 図面 |
階数 |
面積 |
賃料(共益費込) (坪単価) |
保証金/敷金 |
礼金 |
入居可能日 |
|
|
3階 |
G 74.56坪 (246.48m2) |
1,081,120 (14,500) |
6ヶ月 |
1.0ヶ月 |
2026/5 上旬 |
|
|
4階 |
G 74.56坪 (246.48m2) |
1,081,120 (14,500) |
6ヶ月 |
1.0ヶ月 |
2026/5 上旬 |
|
|
6階 |
G 74.56坪 (246.48m2) |
1,081,120 (14,500) |
6ヶ月 |
1.0ヶ月 |
2026/5 上旬 |
|
物件番号:013177
更新日:2026/5/20
港区麻布十番1-2-3
【竣工】1991/5
【階建て】地上9F 、地下1F
|
【最寄駅】
|
【耐震】 |
新耐震 |
| 【基準階】 |
63.40坪 |
【エントランス】 |
平日のみ開放 |
| 【駐車場】 |
有り |
【エレベーター】 |
1基 |
プラスアストルビルは、東京都港区麻布十番1-2-3に位置する地上9階・地下1階建てのオフィスビルです。1991年5月に竣工し、構造はS造(鉄骨造)を採用しています。新耐震基準に適合して建設されて…

| 図面 |
階数 |
面積 |
賃料(共益費込) (坪単価) |
保証金/敷金 |
礼金 |
入居可能日 |
|
|
3階 |
G 63.40坪 (209.59m2) |
|
12ヶ月 |
無 |
2026/8 下旬 |
|
物件番号:014099
更新日:2026/5/15
港区新橋3-1-11
【竣工】1991/2
【階建て】地上9F
|
【最寄駅】
|
【耐震】 |
新耐震 |
| 【基準階】 |
67.15坪 |
【エントランス】 |
平日のみ開放 |
| 【駐車場】 |
無し |
【エレベーター】 |
2基 |
長友ランディックビルは、東京都港区新橋3-1-11に位置する賃貸オフィスビルです。交通アクセスが良好で、都営三田線内幸町駅から徒歩3分、JR山手線新橋駅、JR京浜東北線新橋駅、JR東海道本線新橋…

| 図面 |
階数 |
面積 |
賃料(共益費込) (坪単価) |
保証金/敷金 |
礼金 |
入居可能日 |
|
|
8階 |
G 67.15坪 (221.98m2) |
|
12ヶ月 |
無 |
即日 |
|
物件番号:063775
更新日:2026/5/1
港区芝浦1-7-14
【竣工】1990/9
【階建て】地上6F
|
【最寄駅】
|
【耐震】 |
新耐震 |
| 【基準階】 |
62.95坪 |
【エントランス】 |
平日のみ開放 |
| 【駐車場】 |
無し |
【エレベーター】 |
1基 |
岡家寿ビルは、東京都港区芝浦1-7-14に位置するオフィスビルで、1990年9月に竣工しました。このビルは、JR山手線およびJR京浜東北線の田町駅、都営浅草線および都営三田線の三田駅からいずれも徒…

| 図面 |
階数 |
面積 |
賃料(共益費込) (坪単価) |
保証金/敷金 |
礼金 |
入居可能日 |
|
|
2階 |
G 62.95坪 (208.10m2) |
1,007,200 (16,000) |
10ヶ月 |
無 |
即日 |
|
物件番号:015083
更新日:2026/5/20
港区芝大門2-1-16
【竣工】1990/1
【階建て】地上8F 、地下1F
|
【最寄駅】
|
【耐震】 |
新耐震 |
| 【基準階】 |
77.89坪 |
【エントランス】 |
平日・土開放 |
| 【駐車場】 |
無し |
【エレベーター】 |
1基 |
+SHIFT SHIBADAIMONは、港区芝大門2丁目に位置する賃貸オフィスビルです。大門エリアの中でも都営浅草線・都営大江戸線「大門駅」から徒歩3分圏内という優れた立地を誇り、芝大門交差点からも約…

| 図面 |
階数 |
面積 |
賃料(共益費込) (坪単価) |
保証金/敷金 |
礼金 |
入居可能日 |
|
|
5階 |
G 77.89坪 (257.49m2) |
2,336,700 (30,000) |
7ヶ月 |
無 |
即日 |
|
|
6階 |
G 77.89坪 (257.49m2) |
2,336,700 (30,000) |
7ヶ月 |
無 |
即日 |
|
物件番号:016003
更新日:2026/5/21
港区芝浦1-3-11
【竣工】1989/8
【階建て】地上6F 、地下1F
|
【最寄駅】
|
【耐震】 |
新耐震 |
| 【基準階】 |
100.72坪 |
【エントランス】 |
平日・土開放 |
| 【駐車場】 |
有り |
【エレベーター】 |
1基 |
芝浦エリアの設備が整った使いやすい賃貸オフィスです。ニュー芝浦ビルは、港区芝浦1-3-11にある物件です。最寄駅は、ゆりかもめ線の日の出駅です。徒歩7分圏内でアクセス可能です。徒歩9分圏内…

| 図面 |
階数 |
面積 |
賃料(共益費込) (坪単価) |
保証金/敷金 |
礼金 |
入居可能日 |
|
|
1階 |
G 60.00坪 (198.37m2) |
1,080,000 (18,000) |
6ヶ月 |
無 |
2026/8/1 |
|
非公開物件の賃料目安アイコン
8,000 円未満
8,000 円以上~1.0 万円未満
1.0 万以上~1.2 万円未満
1.2 万以上~1.4 万円未満
1.4 万以上~1.6 万円未満
1.6 万以上~2.0 万円未満
2.0 万以上~2.5 万円未満
2.5 万以上~3.0 万円未満
3.0 万円以上
未定
※取引態様:媒介
※フロア図面と現況が異なる場合は現況を優先いたします。
※貸室内部の写真・貸室からの景色に関しては、現在の募集フロアと異なる場合がございます。
※取引態様:媒介
その他、港区の貸事務所をお探しの方はこちらをクリック

トイレ男女別貸事務所を区から探す
千代田区のトイレ男女別貸事務所
中央区のトイレ男女別貸事務所
港区のトイレ男女別貸事務所
新宿区のトイレ男女別貸事務所
渋谷区のトイレ男女別貸事務所
台東区のトイレ男女別貸事務所
品川区のトイレ男女別貸事務所
豊島区のトイレ男女別貸事務所
文京区のトイレ男女別貸事務所
目黒区のトイレ男女別貸事務所
東京都内のトイレ男女別貸事務所
港区の貸事務所検索ページ