定期借家契約の貸事務所・賃貸オフィス|千代田区
東京都千代田区の定期借家契約(ていきしゃっかけいやく)の賃貸オフィスビルを掲載しています。定借(ていしゃく)とは、期間の満了によって確定的に終了する賃貸契約のことです。(反対語が普通賃貸借契約)
定期借家契約は建替え前のオフィスなどに適用することが多くお得な賃料の物件が多いのが特徴です。※期間満了後、再契約できる物件もあります。詳細についてはお問い合わせください。
定期借家契約の貸事務所|千代田区
物件番号:083582
更新日:2026/4/2
千代田区紀尾井町3-27
【竣工】2026/3
【階建て】地上8F 、地下1F
|
【最寄駅】
|
【耐震】 |
新耐震 |
| 【基準階】 |
|
【エントランス】 |
平日のみ開放 |
| 【駐車場】 |
有り |
【エレベーター】 |
3基 |
明治薬科大学剛堂会館は、東京都千代田区紀尾井町3-27に位置する地上8階建て地下1階のオフィスビルです。2026年3月竣工で、構造はS造です。新耐震基準に適合しており、安全性にも優れています。…

| 図面 |
階数 |
面積 |
賃料(共益費込) (坪単価) |
保証金/敷金 |
礼金 |
入居可能日 |
|
|
1階 |
N 47.10坪 (155.71m2) |
|
12ヶ月 |
無 |
即日 |
|
|
3階 |
N 112.51坪 (371.93m2) |
|
12ヶ月 |
無 |
即日 |
|
|
3階 |
N 118.74坪 (392.53m2) |
|
12ヶ月 |
無 |
即日 |
|
|
4階 |
N 30.79坪 (101.80m2) |
|
12ヶ月 |
無 |
相談 |
|
物件番号:082947
更新日:2026/5/8
千代田区飯田橋2-14-9
【竣工】2025/7
【階建て】地上9F
|
【最寄駅】
|
【耐震】 |
新耐震 |
| 【基準階】 |
150.83坪 |
【エントランス】 |
オートロック |
| 【駐車場】 |
有り |
【エレベーター】 |
2基 |
東京都千代田区飯田橋に誕生する「BIZCORE飯田橋」は、2025年7月竣工予定の最新型オフィスビルで、目白通り沿いの角地という視認性とアクセス性に優れた立地にあります。東京メトロ東西線やJR総…

| 図面 |
階数 |
面積 |
賃料(共益費込) (坪単価) |
保証金/敷金 |
礼金 |
入居可能日 |
|
|
4階 |
G 150.83坪 (498.61m2) |
|
(未公開) |
無 |
即日 |
|
|
5階 |
G 150.83坪 (498.61m2) |
|
(未公開) |
無 |
即日 |
|
|
8階 |
G 150.83坪 (498.61m2) |
|
(未公開) |
無 |
即日 |
|
物件番号:083128
更新日:2026/4/7
千代田区六番町2-19
【竣工】2025/6
【階建て】地上10F
|
【最寄駅】
|
【耐震】 |
新耐震 |
| 【基準階】 |
114.80坪 |
【エントランス】 |
オートロック |
| 【駐車場】 |
有り |
【エレベーター】 |
2基 |
東京都千代田区六番町に誕生する「PMO市ヶ谷」は、2025年6月竣工予定の最新型オフィスビルで、都心での快適かつ効率的な働き方を実現する理想的なビジネス拠点です。市ヶ谷駅から徒歩4分という抜…

| 図面 |
階数 |
面積 |
賃料(共益費込) (坪単価) |
保証金/敷金 |
礼金 |
入居可能日 |
|
|
4階 |
G 114.80坪 (379.52m2) |
|
(未公開) |
無 |
即日 |
|
|
8階 |
G 114.80坪 (379.52m2) |
|
(未公開) |
無 |
即日 |
|
物件番号:082952
更新日:2026/4/17
千代田区神田須田町1-34-3
【竣工】2024/10
【階建て】地上9F
|
【最寄駅】
|
【耐震】 |
新耐震 |
| 【基準階】 |
38.77坪 |
【エントランス】 |
全日開放(24h) |
| 【駐車場】 |
無し |
【エレベーター】 |
1基 |
D2SMは東京都千代田区神田須田町に位置する、2024年10月竣工予定の新築オフィスビルです。銀座線「神田駅」から徒歩わずか1分という駅近の好立地に加え、JR山手線・中央線・京浜東北線「神田駅」…

| 図面 |
階数 |
面積 |
賃料(共益費込) (坪単価) |
保証金/敷金 |
礼金 |
入居可能日 |
|
|
2階 |
G 38.77坪 (128.16m2) |
|
10ヶ月 |
無 |
相談 |
|
|
4階 |
G 38.77坪 (128.16m2) |
|
10ヶ月 |
無 |
相談 |
|
|
5階 |
G 38.77坪 (128.17m2) |
|
10ヶ月 |
無 |
相談 |
|
物件番号:082701
更新日:2026/4/24
千代田区九段北1-15-12
【竣工】2022/12
【階建て】地上12F
|
【最寄駅】
|
【耐震】 |
新耐震 |
| 【基準階】 |
38.86坪 |
【エントランス】 |
全日開放(24h) |
| 【駐車場】 |
無し |
【エレベーター】 |
1基 |
ミナト九段下ビルは、東京都千代田区九段北1丁目に位置する2024年竣工の賃貸オフィスビルです。東京メトロ東西線、半蔵門線、都営新宿線の九段下駅から徒歩5分、JR総武線ほか東京メトロの飯田橋…

| 図面 |
階数 |
面積 |
賃料(共益費込) (坪単価) |
保証金/敷金 |
礼金 |
入居可能日 |
|
|
3階 |
G 38.86坪 (128.49m2) |
738,340 (19,000) |
6ヶ月 |
無 |
即日 |
|
|
5階 |
G 38.86坪 (128.49m2) |
932,640 (24,000) |
6ヶ月 |
無 |
即日 |
|
|
6階 |
G 38.86坪 (128.49m2) |
932,640 (24,000) |
6ヶ月 |
無 |
即日 |
|
|
7階 |
G 38.86坪 (128.49m2) |
932,640 (24,000) |
6ヶ月 |
無 |
即日 |
|
|
8階 |
G 38.86坪 (128.49m2) |
1,049,220 (27,000) |
6ヶ月 |
無 |
即日 |
|
|
10階 |
G 40.91坪 (135.24m2) |
1,022,750 (25,000) |
6ヶ月 |
無 |
即日 |
|
物件番号:000531
更新日:2026/5/1
千代田区麹町4-4-4
【竣工】2022/9
【階建て】地上12F 、地下1F
|
【最寄駅】
|
【耐震】 |
新耐震 |
| 【基準階】 |
45.37坪 |
【エントランス】 |
全日開放(制限有) |
| 【駐車場】 |
有り |
【エレベーター】 |
2基 |
千代田区麹町4-4-4に位置するACN麹町ビルは、大きな窓面が特徴的な開放感あふれる賃貸オフィスビルです。複数駅・複数路線が利用できる利便性の高いエリアにあり、都内主要エリアへの移動もしや…

| 図面 |
階数 |
面積 |
賃料(共益費込) (坪単価) |
保証金/敷金 |
礼金 |
入居可能日 |
|
|
3階 |
G 45.27坪 (149.99m2) |
|
8ヶ月 |
無 |
2026/11 |
|
|
8階 |
G 45.27坪 (149.65m2) |
|
4ヶ月 |
1.0ヶ月 |
2026/7/1 |
|
|
12階 |
G 45.27坪 (149.65m2) |
|
8ヶ月 |
無 |
2026/10 |
|
物件番号:077911
更新日:2026/4/2
千代田区九段南1-6-5
【竣工】2022/7
【階建て】地上17F 、地下3F
|
【最寄駅】
|
【耐震】 |
新耐震+免震 |
| 【基準階】 |
775.76坪 |
【エントランス】 |
|
| 【駐車場】 |
無し |
【エレベーター】 |
10基 |
九段会館テラスは、千代田区九段南1-6-5にある物件です。最寄駅は、東京メトロ東西線・東京メトロ半蔵門線・都営新宿線の九段下駅です。徒歩1分圏内でアクセス可能な好立地です。徒歩8分圏内で東…

| 図面 |
階数 |
面積 |
賃料(共益費込) (坪単価) |
保証金/敷金 |
礼金 |
入居可能日 |
|
|
3階 |
N 23.71坪 (78.41m2) |
|
12ヶ月 |
無 |
2026/9/1 |
|
物件番号:070899
更新日:2026/5/1
千代田区神田司町2-7-9
【竣工】2020/2
【階建て】地上9F
|
【最寄駅】
|
【耐震】 |
新耐震 |
| 【基準階】 |
59.04坪 |
【エントランス】 |
オートロック |
| 【駐車場】 |
有り |
【エレベーター】 |
2基 |
ADPR神田司町ビルは、2020年2月に竣工したハイグレード賃貸オフィスビルです。東京都千代田区神田司町2-7-9に位置し、丸の内線淡路町駅から徒歩3分、都営新宿線小川町駅からも3分と抜群のアクセ…

| 図面 |
階数 |
面積 |
賃料(共益費込) (坪単価) |
保証金/敷金 |
礼金 |
入居可能日 |
|
|
2階 |
G 59.04坪 (195.17m2) |
|
4ヶ月 |
無 |
相談 |
|
物件番号:070563
更新日:2026/4/17
千代田区神田鍛冶町3-7
【竣工】2019/1
【階建て】地上10F 、地下1F
|
【最寄駅】
|
【耐震】 |
新耐震 |
| 【基準階】 |
27.07坪 |
【エントランス】 |
オートロック |
| 【駐車場】 |
無し |
【エレベーター】 |
1基 |
神田カドウチビルは東京都千代田区神田鍛冶町に位置する、2019年1月に竣工した新耐震基準に対応したオフィスビルです。JR山手線・中央線・京浜東北線の「神田駅」から徒歩3分という駅近の好立地…

| 図面 |
階数 |
面積 |
賃料(共益費込) (坪単価) |
保証金/敷金 |
礼金 |
入居可能日 |
|
|
8階 |
G 27.07坪 (89.49m2) |
676,750 (25,000) |
6ヶ月 |
無 |
即日 |
|
物件番号:066734
更新日:2026/5/8
千代田区神田小川町3-9-2
【竣工】2017/11
【階建て】地上9F
|
【最寄駅】
|
【耐震】 |
新耐震 |
| 【基準階】 |
269.25坪 |
【エントランス】 |
オートロック |
| 【駐車場】 |
有り |
【エレベーター】 |
3基 |
神保町エリアのハイグレードオフィスビル。BIZCORE神保町は千代田区神田小川町3-9-2の物件です。最寄駅は東京メトロ半蔵門線・都営三田線・都営新宿線の神保町駅。神保町駅から徒歩4分圏内でアク…

| 図面 |
階数 |
面積 |
賃料(共益費込) (坪単価) |
保証金/敷金 |
礼金 |
入居可能日 |
|
|
8階 |
N 54.15坪 (179.01m2) |
|
(未公開) |
無 |
2026/7/1 |
|
物件番号:066440
更新日:2026/4/7
千代田区神田須田町2-9-2
【竣工】2017/2
【階建て】地上10F
|
【最寄駅】
|
【耐震】 |
新耐震 |
| 【基準階】 |
62.11坪 |
【エントランス】 |
オートロック |
| 【駐車場】 |
有り |
【エレベーター】 |
2基 |
PMO神田岩本町は、東京都千代田区神田須田町2丁目に位置する賃貸オフィスビルです。最寄駅は都営新宿線の岩本町駅で、徒歩1分圏内という抜群のアクセスを誇ります。さらに徒歩3分圏内には東京メ…

| 図面 |
階数 |
面積 |
賃料(共益費込) (坪単価) |
保証金/敷金 |
礼金 |
入居可能日 |
|
|
10階 |
G 59.92坪 (198.11m2) |
|
(未公開) |
無 |
2026/11/15 |
|
物件番号:073760
更新日:2026/5/1
千代田区平河町2-10-4
【竣工】2013/12
【階建て】地上3F
|
【最寄駅】
|
【耐震】 |
新耐震 |
| 【基準階】 |
28.45坪 |
【エントランス】 |
全日開放(制限有) |
| 【駐車場】 |
有り |
【エレベーター】 |
無 |
Shirasuna bldg. NAGATACHOは、東京都千代田区平河町2丁目に位置するスタイリッシュなオフィスビルです。2013年12月に竣工した鉄骨造(S造)の建物で、新耐震基準に適合しており、安全性が確保さ…

| 図面 |
階数 |
面積 |
賃料(共益費込) (坪単価) |
保証金/敷金 |
礼金 |
入居可能日 |
|
|
2階 |
G 28.60坪 (94.55m2) |
569,000 (19,895) |
7ヶ月 |
無 |
即日 |
|
物件番号:056715
更新日:2026/4/13
千代田区神田淡路町2-5
【竣工】2013/2
【階建て】地上15F 、地下2F
|
【最寄駅】
|
【耐震】 |
新耐震+制震 |
| 【基準階】 |
305.62坪 |
【エントランス】 |
平日・土開放 |
| 【駐車場】 |
有り |
【エレベーター】 |
5基 |
神田淡路町の複合施設WATERRAS。ワテラス アネックスは千代田区神田淡路町2-5の物件です。2013年竣工の鉄骨造(地下鉄骨鉄筋コンクリート造)地上15階地下2階の新耐震基準を満たした建物です。制…

| 図面 |
階数 |
面積 |
賃料(共益費込) (坪単価) |
保証金/敷金 |
礼金 |
入居可能日 |
|
|
13階 |
N 29.69坪 (98.15m2) |
|
12ヶ月 |
無 |
2026/8/1 |
|
|
13階 |
N 30.51坪 (100.86m2) |
|
12ヶ月 |
無 |
2026/7/1 |
|
物件番号:058769
更新日:2026/5/7
千代田区内神田3-6-2
【竣工】2012/5
【階建て】地上19F 、地下1F
|
【最寄駅】
|
【耐震】 |
新耐震+制震 |
| 【基準階】 |
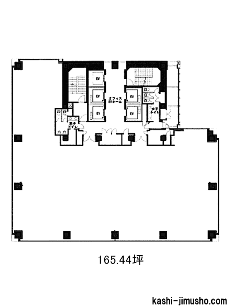
165.44坪 |
【エントランス】 |
|
| 【駐車場】 |
有り |
【エレベーター】 |
5基 |
アーバンネット神田ビルは、東京都千代田区内神田三丁目に位置するハイグレードオフィスビルです。落ち着きと品格を兼ね備えた存在感のある建物で、企業イメージの向上を重視する企業様に適した…

| 図面 |
階数 |
面積 |
賃料(共益費込) (坪単価) |
保証金/敷金 |
礼金 |
入居可能日 |
|
|
5階 |
N 165.44坪 (546.91m2) |
|
12ヶ月 |
無 |
2026/8 |
|
物件番号:059108
更新日:2026/4/9
千代田区東神田2-3-10
【竣工】2011/1
【階建て】地上7F
|
【最寄駅】
|
【耐震】 |
新耐震 |
| 【基準階】 |
136.14坪 |
【エントランス】 |
オートロック |
| 【駐車場】 |
有り |
【エレベーター】 |
2基 |
東神田エリア、神田川に面するリバーサイド物件で気持ちの良い環境の賃貸オフィスビルです。PMO秋葉原Ⅱは、千代田区東神田2-3-10にある物件です。徒歩4分圏内で東京メトロ日比谷線の秋葉原駅、都…

| 図面 |
階数 |
面積 |
賃料(共益費込) (坪単価) |
保証金/敷金 |
礼金 |
入居可能日 |
|
|
7階 |
G 136.14坪 (450.07m2) |
|
(未公開) |
無 |
2026/9/1 |
|
物件番号:078309
更新日:2026/4/27
千代田区麹町3-7-7
【竣工】2010/1
【階建て】地上9F
|
【最寄駅】
|
【耐震】 |
新耐震 |
| 【基準階】 |
25.31坪 |
【エントランス】 |
オートロック |
| 【駐車場】 |
無し |
【エレベーター】 |
1基 |
"セット東京は、東京都千代田区麹町3-7-7に位置する2010年竣工の貸事務所ビルです。立地は抜群で、東京メトロ半蔵門線の半蔵門駅から徒歩わずか2分、有楽町線の麹町駅からも徒歩3分と最寄り駅か…

| 図面 |
階数 |
面積 |
賃料(共益費込) (坪単価) |
保証金/敷金 |
礼金 |
入居可能日 |
|
|
2階 |
G 25.10坪 (82.98m2) |
702,800 (28,000) |
4ヶ月 |
無 |
即日 |
|
物件番号:056450
更新日:2026/4/7
千代田区岩本町3-11-6
【竣工】2010/1
【階建て】地上8F 、地下1F
|
【最寄駅】
|
【耐震】 |
新耐震 |
| 【基準階】 |
131.25坪 |
【エントランス】 |
オートロック |
| 【駐車場】 |
有り |
【エレベーター】 |
2基 |
PMO秋葉原は、東京都千代田区岩本町3丁目に位置する賃貸オフィスビルです。昭和通りから約160メートルほど入った神田川沿いに立地しており、閑静で落ち着いたオフィス環境が広がるエリアにありま…

| 図面 |
階数 |
面積 |
賃料(共益費込) (坪単価) |
保証金/敷金 |
礼金 |
入居可能日 |
|
|
5階 |
G 131.25坪 (433.88m2) |
|
(未公開) |
無 |
即日 |
|
|
6階 |
G 131.25坪 (433.88m2) |
|
(未公開) |
無 |
即日 |
|
物件番号:053860
更新日:2026/4/15
千代田区二番町5-25
【竣工】2009/7
【階建て】地上13F 、地下2F
|
【最寄駅】
|
【耐震】 |
新耐震 |
| 【基準階】 |
1006.00坪 |
【エントランス】 |
|
| 【駐車場】 |
有り |
【エレベーター】 |
8基 |
番町エリアに位置するワンフロア約1,006坪の大規模オフィスビル。二番町センタービルは、千代田区二番町5-25にある物件です。最寄駅は、東京メトロ有楽町線の麹町駅です。徒歩1分圏内でアクセス…

| 図面 |
階数 |
面積 |
賃料(共益費込) (坪単価) |
保証金/敷金 |
礼金 |
入居可能日 |
|
|
7階 |
N 440.57坪 (1456.44m2) |
|
(未公開) |
無 |
2026/10/1 |
|
物件番号:055953
更新日:2026/5/1
千代田区神田錦町3-19-4
【竣工】2009/4(改修:2017)
【階建て】地上10F
|
【最寄駅】
|
【耐震】 |
新耐震 |
| 【基準階】 |
22.86坪 |
【エントランス】 |
全日開放(制限有) |
| 【駐車場】 |
無し |
【エレベーター】 |
1基 |
複数路線が利用可能で交通アクセス良好です。ワンフロア・ワンテナントなので使い勝手の良い貸室です。個別空調・OAフロア・男女別トイレ完備で設備が充実しています。

| 図面 |
階数 |
面積 |
賃料(共益費込) (坪単価) |
保証金/敷金 |
礼金 |
入居可能日 |
|
|
6階 |
G 22.86坪 (75.58m2) |
|
4ヶ月 |
1.0ヶ月 |
2026/9/19 |
|
物件番号:052686
更新日:2026/4/15
千代田区大手町1-3-1
【竣工】2009/3
【階建て】地上37F 、地下3F
|
【最寄駅】
|
【耐震】 |
新耐震+制震 |
| 【基準階】 |
508.29坪 |
【エントランス】 |
平日のみ開放 |
| 【駐車場】 |
有り |
【エレベーター】 |
19基 |
JAビルは、東京都千代田区大手町1丁目に位置する大型賃貸オフィスビルです。最寄駅は東京メトロ「大手町駅」で、徒歩2分圏内という好立地にあり、丸ノ内線・半蔵門線・千代田線・都営三田線が直…

| 図面 |
階数 |
面積 |
賃料(共益費込) (坪単価) |
保証金/敷金 |
礼金 |
入居可能日 |
|
|
19階 |
N 508.63坪 (1681.43m2) |
|
(未公開) |
無 |
即日 |
|
物件番号:053675
更新日:2026/5/7
千代田区神田須田町1-24-6
【竣工】2008/9
【階建て】地上11F
|
【最寄駅】
|
【耐震】 |
新耐震 |
| 【基準階】 |
43.06坪 |
【エントランス】 |
平日のみ開放 |
| 【駐車場】 |
有り |
【エレベーター】 |
1基 |
ACN神田須田町ビルは、千代田区神田須田町1-24-6に位置する賃貸オフィスビルで、ビジネスに最適な利便性と快適性を兼ね備えています。最寄り駅は東京メトロ銀座線の神田駅で徒歩1分圏内、さらにJ…

| 図面 |
階数 |
面積 |
賃料(共益費込) (坪単価) |
保証金/敷金 |
礼金 |
入居可能日 |
|
|
3階 |
G 43.06坪 (142.38m2) |
|
8ヶ月 |
無 |
2026/9/1 |
|
|
11階 |
G 34.46坪 (113.92m2) |
|
8ヶ月 |
無 |
2026/8 |
|
物件番号:044195
更新日:2026/4/22
千代田区丸の内1-9-2
【竣工】2007/10
【階建て】地上42F 、地下4F
|
【最寄駅】
|
【耐震】 |
新耐震+制震 |
| 【基準階】 |
626.00坪 |
【エントランス】 |
平日のみ開放 |
| 【駐車場】 |
有り |
【エレベーター】 |
44基 |
グラントウキョウサウスタワーは、千代田区丸の内の一等地に位置する大型オフィスビルです。外堀通りに面しており、周囲には高層ビルが立ち並ぶ東京の代表的なビジネス街の中心にあります。視認…

| 図面 |
階数 |
面積 |
賃料(共益費込) (坪単価) |
保証金/敷金 |
礼金 |
入居可能日 |
|
|
6階 |
N 25.52坪 (84.33m2) |
|
(未公開) |
無 |
即日 |
|
物件番号:052262
更新日:2026/5/8
千代田区三番町7-14
【竣工】2007/4
【階建て】地上6F
|
【最寄駅】
|
【耐震】 |
新耐震 |
| 【基準階】 |
51.42坪 |
【エントランス】 |
全日開放(制限有) |
| 【駐車場】 |
有り |
【エレベーター】 |
1基 |
千代田区三番町7-14にある、メットライフ三番町ビルです。徒歩5分圏内で東京メトロ半蔵門線の半蔵門駅、都営新宿線の市ヶ谷駅、徒歩7分圏内で東京メトロ有楽町線の麹町駅、JR総武線・東京メトロ…

| 図面 |
階数 |
面積 |
賃料(共益費込) (坪単価) |
保証金/敷金 |
礼金 |
入居可能日 |
|
|
4階 |
G 51.42坪 (169.98m2) |
|
(未公開) |
無 |
2026/7 |
|
物件番号:046758
更新日:2026/5/7
千代田区麹町2-3-9
【竣工】2006/9
【階建て】地上12F 、地下1F
|
【最寄駅】
|
【耐震】 |
新耐震 |
| 【基準階】 |
102.63坪 |
【エントランス】 |
平日のみ開放 |
| 【駐車場】 |
有り |
【エレベーター】 |
2基 |
麹町プレイスビルは、千代田区麹町2-3-9にある物件です。最寄駅は、東京メトロ半蔵門線の半蔵門駅です。徒歩2分圏内でアクセス可能な好立地です。徒歩4分圏内で東京メトロ有楽町線の麹町駅、徒歩…

| 図面 |
階数 |
面積 |
賃料(共益費込) (坪単価) |
保証金/敷金 |
礼金 |
入居可能日 |
|
|
3階 |
G 51.99坪 (171.87m2) |
1,819,650 (35,000) |
12ヶ月 |
無 |
即日 |
|
|
9階 |
G 103.97坪 (343.69m2) |
3,638,950 (35,000) |
12ヶ月 |
無 |
即日 |
|
|
10階 |
G 103.97坪 (343.69m2) |
3,638,950 (35,000) |
12ヶ月 |
無 |
即日 |
|
物件番号:054397
更新日:2026/4/10
千代田区麹町4-4-7
【竣工】2006/3
【階建て】地上12F
|
【最寄駅】
|
【耐震】 |
新耐震 |
| 【基準階】 |
42.24坪 |
【エントランス】 |
平日のみ開放 |
| 【駐車場】 |
有り |
【エレベーター】 |
1基 |
アトム麹町タワーは、千代田区麹町4-4-7にある物件です。最寄駅は、東京メトロ有楽町線の麹町駅です。徒歩4分圏内でアクセス可能です。徒歩8分圏内で東京メトロ半蔵門線の半蔵門駅・JR中央線・JR…

| 図面 |
階数 |
面積 |
賃料(共益費込) (坪単価) |
保証金/敷金 |
礼金 |
入居可能日 |
|
|
4階 |
G 42.24坪 (139.62m2) |
|
12ヶ月 |
無 |
相談 |
|
物件番号:041063
更新日:2026/5/1
千代田区九段南2-1-30
【竣工】2005/9
【階建て】地上12F 、地下2F
|
【最寄駅】
|
【耐震】 |
新耐震 |
| 【基準階】 |
254.16坪 |
【エントランス】 |
平日のみ開放 |
| 【駐車場】 |
有り |
【エレベーター】 |
3基 |
イタリア文化会館ビルは、千代田区九段南2丁目に位置する大型賃貸オフィスビルです。皇居の北側に位置し、春には桜の名所として知られる千鳥ヶ淵を望む立地で、四季折々の景観を楽しむことができ…

| 図面 |
階数 |
面積 |
賃料(共益費込) (坪単価) |
保証金/敷金 |
礼金 |
入居可能日 |
|
|
3階 |
N 84.45坪 (279.17m2) |
|
10ヶ月 |
無 |
即日 |
|
物件番号:037128
更新日:2026/5/1
千代田区外神田1-18-13
【竣工】2005/3
【階建て】地上30F 、地下2F
|
【最寄駅】
|
【耐震】 |
新耐震+制震 |
| 【基準階】 |
336.00坪 |
【エントランス】 |
全日開放(制限有) |
| 【駐車場】 |
有り |
【エレベーター】 |
12基 |
秋葉原ダイビルは、東京都千代田区外神田1-18-13に位置する地上30階建て地下2階のオフィスビルです。2005年3月に竣工し、SRC造で建てられています。新耐震基準に適合していることに加え、制震構…

| 図面 |
階数 |
面積 |
賃料(共益費込) (坪単価) |
保証金/敷金 |
礼金 |
入居可能日 |
|
|
5階 |
N 30.25坪 (100.01m2) |
|
(未公開) |
無 |
2026/7 予定 |
|
物件番号:037364
更新日:2026/4/27
千代田区丸の内1-6-6
【竣工】2004/8
【階建て】地上28F 、地下4F
|
【最寄駅】
|
【耐震】 |
新耐震 |
| 【基準階】 |
658.68坪 |
【エントランス】 |
平日のみ開放 |
| 【駐車場】 |
有り |
【エレベーター】 |
14基 |
日本生命丸の内ビルは、オフィス入居の絶好のロケーションを誇る賃貸オフィスビルです。東京駅に直結しているため、アクセスに優れ、雨に濡れることなくビル内へとスムーズに移動できます。徒歩1…

| 図面 |
階数 |
面積 |
賃料(共益費込) (坪単価) |
保証金/敷金 |
礼金 |
入居可能日 |
|
|
22階 |
N 25.58坪 (84.56m2) |
|
(未公開) |
無 |
2026/6 |
|
|
22階 |
N 26.38坪 (87.21m2) |
|
(未公開) |
無 |
2026/6 |
|
|
22階 |
N 51.96坪 (171.77m2) |
|
(未公開) |
無 |
2026/6 |
|
物件番号:000887
更新日:2026/5/7
千代田区有楽町1-1-3
【竣工】2000/12
【階建て】地上19F 、地下4F
|
【最寄駅】
|
【耐震】 |
新耐震+制震 |
| 【基準階】 |
343.28坪 |
【エントランス】 |
|
| 【駐車場】 |
有り |
【エレベーター】 |
5基 |
日比谷の空にそびえる尖塔がひときわ印象的な「東京宝塚ビル」。重厚感のあるファサードと堂々とした佇まいは、この街のランドマーク的存在です。劇場やオフィス、商業が共存する複合施設として…

| 図面 |
階数 |
面積 |
賃料(共益費込) (坪単価) |
保証金/敷金 |
礼金 |
入居可能日 |
|
|
18階 |
N 300.91坪 (994.76m2) |
|
12ヶ月 |
無 |
即日 |
|
物件番号:002348
更新日:2026/5/7
千代田区神田錦町3-15-5
【竣工】2000/7
【階建て】地上9F 、地下1F
|
【最寄駅】
|
【耐震】 |
新耐震 |
| 【基準階】 |
23.00坪 |
【エントランス】 |
平日・土開放 |
| 【駐車場】 |
無し |
【エレベーター】 |
1基 |
複数路線利用可能で交通アクセス抜群です!御影石を使用したグレード感溢れる外観です!個別空調やOAフロアなどの設備が充実しています!

| 図面 |
階数 |
面積 |
賃料(共益費込) (坪単価) |
保証金/敷金 |
礼金 |
入居可能日 |
|
|
8階 |
G 23.00坪 (76.02m2) |
333,500 (14,500) |
8ヶ月 |
無 |
2026/7 上旬 |
|
非公開物件の賃料目安アイコン
8,000 円未満
8,000 円以上~1.0 万円未満
1.0 万以上~1.2 万円未満
1.2 万以上~1.4 万円未満
1.4 万以上~1.6 万円未満
1.6 万以上~2.0 万円未満
2.0 万以上~2.5 万円未満
2.5 万以上~3.0 万円未満
3.0 万円以上
未定
※取引態様:媒介
※フロア図面と現況が異なる場合は現況を優先いたします。
※貸室内部の写真・貸室からの景色に関しては、現在の募集フロアと異なる場合がございます。
※取引態様:媒介
その他、千代田区の貸事務所をお探しの方はこちらをクリック

定期借家契約オフィス|エリア別
千代田区に関連する貸事務所検索ページ