貸事務所|土日エントランス開放(中央区)(20~40坪)
東京都中央区にある土曜日や日曜日もエントランスが開放している賃貸オフィスビルを掲載しています。平日はもちろん、週末の土日や祝日、祭日でもメインエントランスが開いているので、土日に営業をされる企業様に最適の賃貸オフィスビルを見つけることができます。
貸事務所|土日エントランス開放|中央区
物件番号:082872
更新日:2026/5/1
中央区銀座1-28-16
【竣工】2025/6
【階建て】地上8F 、地下1F
|
【最寄駅】
|
【耐震】 |
新耐震 |
| 【基準階】 |
|
【エントランス】 |
全日開放(制限有) |
| 【駐車場】 |
- |
【エレベーター】 |
2基 |
東京都中央区銀座一丁目に誕生する新築オフィスビル「SUGIURA GINZA」は、2025年6月に竣工予定の地上8階・地下1階建ての複合ビルです。最寄り駅は東京メトロ有楽町線「新富町駅」で、徒歩3分とい…

| 図面 |
階数 |
面積 |
賃料(共益費込) (坪単価) |
保証金/敷金 |
礼金 |
入居可能日 |
|
|
3階 |
G 30.95坪 (102.31m2) |
1,153,700 (37,277) |
10ヶ月 |
1.0ヶ月 |
相談 |
|
|
4階 |
G 31.03坪 (102.58m2) |
981,160 (31,619) |
10ヶ月 |
1.0ヶ月 |
相談 |
|
|
5階 |
G 31.03坪 (102.58m2) |
981,160 (31,619) |
10ヶ月 |
1.0ヶ月 |
相談 |
|
物件番号:082322
更新日:2026/5/25
中央区日本橋本町4-5-13
【竣工】2024/6
【階建て】地上10F 、地下1F
|
【最寄駅】
|
【耐震】 |
新耐震 |
| 【基準階】 |
32.06坪 |
【エントランス】 |
全日開放(24h) |
| 【駐車場】 |
無し |
【エレベーター】 |
1基 |
(仮称)SG日本橋本町は、東京都中央区日本橋本町4丁目に誕生した2024年6月竣工のオフィスビルで、ビジネスの中心地である日本橋エリアにおいて、新耐震基準を満たした安全性の高い物件です。地…

| 図面 |
階数 |
面積 |
賃料(共益費込) (坪単価) |
保証金/敷金 |
礼金 |
入居可能日 |
|
|
NEW8階 |
G 29.23坪 (96.63m2) |
|
3ヶ月 |
無 |
2026/12/1 |
|
物件番号:080803
更新日:2026/5/20
中央区八丁堀3-22-8
【竣工】2024/3
【階建て】地上11F
|
【最寄駅】
|
【耐震】 |
新耐震 |
| 【基準階】 |
36.54坪 |
【エントランス】 |
全日開放(制限有) |
| 【駐車場】 |
無し |
【エレベーター】 |
1基 |
八丁堀駅から徒歩1分の駅近賃貸オフィスビルです。合人社東京八丁堀ビルは、東京都中央区八丁堀3-22-8に位置し、JR京葉線と日比谷線の八丁堀駅から徒歩1分という非常に便利な立地です。都営浅草…

| 図面 |
階数 |
面積 |
賃料(共益費込) (坪単価) |
保証金/敷金 |
礼金 |
入居可能日 |
|
|
8階 |
G 36.54坪 (120.80m2) |
803,880 (22,000) |
6ヶ月 |
無 |
即日 |
|
|
9階 |
G 36.54坪 (120.80m2) |
840,420 (23,000) |
6ヶ月 |
無 |
即日 |
|
物件番号:078380
更新日:2026/5/20
中央区日本橋浜町2-43-4
【竣工】2022/3
【階建て】地上9F
|
【最寄駅】
|
【耐震】 |
新耐震 |
| 【基準階】 |
35.72坪 |
【エントランス】 |
全日開放(24h) |
| 【駐車場】 |
無し |
【エレベーター】 |
1基 |
中央区日本橋浜町に位置する「日本橋浜町2丁目ビル」は、2022年竣工の築浅オフィスビルで、明治座通りに面した角地に立地しています。都営新宿線「浜町駅」A2出口から徒歩1分圏内という優れたア…

| 図面 |
階数 |
面積 |
賃料(共益費込) (坪単価) |
保証金/敷金 |
礼金 |
入居可能日 |
|
|
3階 |
G 35.72坪 (118.11m2) |
999,000 (27,968) |
無 |
無 |
即日 |
|
物件番号:077497
更新日:2026/5/1
中央区日本橋富沢町10-11
【竣工】2021/10(改修:2022)
【階建て】地上10F
|
【最寄駅】
|
【耐震】 |
新耐震 |
| 【基準階】 |
30.06坪 |
【エントランス】 |
全日開放(24h) |
| 【駐車場】 |
無し |
【エレベーター】 |
1基 |
TWG日本橋イーストⅡは、東京都中央区日本橋富沢町10-11に所在する賃貸オフィスビルです。2021年に竣工した築浅物件で、新耐震基準を満たした安心の設計が特徴です。鉄骨造・地上10階建てで、地下…

| 図面 |
階数 |
面積 |
賃料(共益費込) (坪単価) |
保証金/敷金 |
礼金 |
入居可能日 |
|
|
5階 |
G 30.06坪 (99.39m2) |
|
6ヶ月 |
無 |
即日 |
|
|
6階 |
G 30.06坪 (99.39m2) |
|
6ヶ月 |
無 |
即日 |
|
物件番号:065185
更新日:2026/5/7
中央区銀座7-13-2
【竣工】2015/3
【階建て】地上11F
|
【最寄駅】
|
【耐震】 |
新耐震 |
| 【基準階】 |
29.97坪 |
【エントランス】 |
全日開放(制限有) |
| 【駐車場】 |
無し |
【エレベーター】 |
1基 |
ティアラグレイス銀座タワーは、東京都中央区銀座7-13-2に位置する地上11階建てのオフィスビルです。2015年3月に竣工し、RC造で建てられています。新耐震基準に適合しており、安全性の高い建物で…

| 図面 |
階数 |
面積 |
賃料(共益費込) (坪単価) |
保証金/敷金 |
礼金 |
入居可能日 |
|
|
10階 |
G 30.00坪 (99.17m2) |
1,185,000 (39,500) |
10ヶ月 |
1.0ヶ月 |
2026/6 上旬 |
|
物件番号:057035
更新日:2026/5/7
中央区日本橋小伝馬町14-10
【竣工】2009/8
【階建て】地上12F 、地下1F
|
【最寄駅】
|
【耐震】 |
新耐震 |
| 【基準階】 |
45.94坪 |
【エントランス】 |
全日開放(制限有) |
| 【駐車場】 |
有り |
【エレベーター】 |
1基 |
アソルティ小伝馬町Liensは、東京都中央区日本橋小伝馬町14-10に位置する地上12階・地下1階建てのオフィスビルです。2009年8月に竣工した鉄骨鉄筋コンクリート造(SRC造)の建物で、新耐震基準を…

| 図面 |
階数 |
面積 |
賃料(共益費込) (坪単価) |
保証金/敷金 |
礼金 |
入居可能日 |
|
|
2階 |
G 20.55坪 (67.95m2) |
493,200 (24,000) |
4ヶ月 |
無 |
即日 |
|
物件番号:068829
更新日:2026/5/20
中央区日本橋蛎殻町1-10-4
【竣工】2000/3
【階建て】地上5F
|
【最寄駅】
|
【耐震】 |
新耐震 |
| 【基準階】 |
24.77坪 |
【エントランス】 |
全日開放(24h) |
| 【駐車場】 |
無し |
【エレベーター】 |
1基 |
複数路線が利用できる便利なエリア!大通りから少し入った落ち着いた周辺環境!2000年竣工の新耐震基準を満たしている物件!

| 図面 |
階数 |
面積 |
賃料(共益費込) (坪単価) |
保証金/敷金 |
礼金 |
入居可能日 |
|
|
4階 |
G 24.77坪 (81.88m2) |
297,240 (12,000) |
4ヶ月 |
1.0ヶ月 |
相談 |
|
物件番号:068715
更新日:2026/5/12
中央区日本橋堀留町1-1-13
【竣工】1998/3
【階建て】地上5F
|
【最寄駅】
|
【耐震】 |
新耐震 |
| 【基準階】 |
16.28坪 |
【エントランス】 |
全日開放(制限有) |
| 【駐車場】 |
無し |
【エレベーター】 |
無 |
複数路線が利用可能で交通アクセス良好です。白を基調とした明るい印象の外観です。シンプルな形状でレイアウトのしやすい貸室です。

| 図面 |
階数 |
面積 |
賃料(共益費込) (坪単価) |
保証金/敷金 |
礼金 |
入居可能日 |
|
|
4-5階 |
G 30.89坪 (102.13m2) |
250,000 (8,094) |
4ヶ月 |
無 |
即日 |
|
物件番号:061907
更新日:2026/5/20
中央区新川1-10-3
【竣工】1994/3(改修:2025)
【階建て】地上5F 、地下1F
|
【最寄駅】
|
【耐震】 |
新耐震 |
| 【基準階】 |
42.11坪 |
【エントランス】 |
全日開放(24h) |
| 【駐車場】 |
無し |
【エレベーター】 |
1基 |
THE GATE茅場町は、東京都中央区新川1-10-3に位置する賃貸オフィスビルです。茅場町駅から徒歩4分、八丁堀駅から徒歩5分と、アクセスが非常に便利です。永代通りから少し入った場所に位置し、周…

| 図面 |
階数 |
面積 |
賃料(共益費込) (坪単価) |
保証金/敷金 |
礼金 |
入居可能日 |
|
|
NEW2階 |
G 40.12坪 (132.66m2) |
962,880 (24,000) |
5ヶ月 |
無 |
2026/10/1 |
|
物件番号:005867
更新日:2026/5/20
中央区銀座2-11-15
【竣工】1993/12(改修:2008)
【階建て】地上8F 、地下2F
|
【最寄駅】
|
【耐震】 |
新耐震 |
| 【基準階】 |
73.69坪 |
【エントランス】 |
全日開放(制限有) |
| 【駐車場】 |
有り |
【エレベーター】 |
1基 |
SF銀座ビルは、中央区銀座2-11-15にある物件です。徒歩2分圏内で東京メトロ有楽町線の銀座一丁目駅、徒歩3分圏内で東京メトロ日比谷線・都営浅草線の東銀座駅、徒歩4分圏内で東京メトロ日比谷線…

| 図面 |
階数 |
面積 |
賃料(共益費込) (坪単価) |
保証金/敷金 |
礼金 |
入居可能日 |
|
|
8階 |
G 28.68坪 (94.83m2) |
745,680 (26,000) |
(未公開) |
無 |
2026/8/1 |
|
物件番号:066561
更新日:2026/5/15
中央区日本橋室町1-8-3
【竣工】1993/7
【階建て】地上9F
|
【最寄駅】
|
【耐震】 |
新耐震 |
| 【基準階】 |
49.92坪 |
【エントランス】 |
全日開放(制限有) |
| 【駐車場】 |
無し |
【エレベーター】 |
1基 |
室町NSビルは、東京都中央区日本橋室町1-8-3に位置する1993年竣工の賃貸オフィスビルです。立地が最大の魅力で、東京メトロ銀座線・半蔵門線の三越前駅から徒歩わずか1分と最寄り駅への近接性が…

| 図面 |
階数 |
面積 |
賃料(共益費込) (坪単価) |
保証金/敷金 |
礼金 |
入居可能日 |
|
|
5階 |
N 22.50坪 (74.38m2) |
|
6ヶ月 |
無 |
即日 |
|
物件番号:069003
更新日:2026/5/21
中央区日本橋2-16-4
【竣工】1993/4(改修:2018)
【階建て】地上9F
|
【最寄駅】
|
【耐震】 |
新耐震 |
| 【基準階】 |
23.84坪 |
【エントランス】 |
全日開放(制限有) |
| 【駐車場】 |
無し |
【エレベーター】 |
1基 |
WORK BASE Nihombashiは、日本橋エリアに位置する清潔感のある印象の賃貸オフィスビルです。東京都中央区日本橋2-16-4に立地しており、東京メトロ銀座線・東西線、都営浅草線の日本橋駅まで徒歩3…

| 図面 |
階数 |
面積 |
賃料(共益費込) (坪単価) |
保証金/敷金 |
礼金 |
入居可能日 |
|
|
4階 |
G 23.84坪 (78.80m2) |
|
5ヶ月 |
無 |
2026/6 上旬 |
|
|
6階 |
G 23.84坪 (78.80m2) |
|
5ヶ月 |
無 |
2026/10 上旬 |
|
物件番号:007280
更新日:2026/5/8
中央区新川1-15-11
【竣工】1993/2
【階建て】地上7F
|
【最寄駅】
|
【耐震】 |
新耐震 |
| 【基準階】 |
36.60坪 |
【エントランス】 |
全日開放(制限有) |
| 【駐車場】 |
有り |
【エレベーター】 |
1基 |
複数路線が利用可能で交通アクセス良好です。管理の行き届いた清潔感のあるエントランスです。ワンフロア・ワンテナントなので使い勝手の良い貸室です。

| 図面 |
階数 |
面積 |
賃料(共益費込) (坪単価) |
保証金/敷金 |
礼金 |
入居可能日 |
|
|
3階 |
G 36.60坪 (120.99m2) |
496,000 (13,552) |
3ヶ月 |
1.0ヶ月 |
2026/7/28 |
|
物件番号:009131
更新日:2026/4/28
中央区日本橋横山町5-2
【竣工】1992/9
【階建て】地上8F 、地下1F
|
【最寄駅】
|
【耐震】 |
新耐震 |
| 【基準階】 |
37.96坪 |
【エントランス】 |
全日開放(24h) |
| 【駐車場】 |
無し |
【エレベーター】 |
1基 |
清洲橋通りに面した分かりやすい立地です!ワンフロア・ワンテナントで使いやすい貸室内です!機械警備を完備した貸事務所です!

| 図面 |
階数 |
面積 |
賃料(共益費込) (坪単価) |
保証金/敷金 |
礼金 |
入居可能日 |
|
|
4階 |
G 37.96坪 (125.49m2) |
480,000 (12,645) |
6ヶ月 |
無 |
未定 |
|
物件番号:045029
更新日:2026/5/1
中央区日本橋本石町4-4-12
【竣工】1992/7
【階建て】地上5F
|
【最寄駅】
|
【耐震】 |
新耐震 |
| 【基準階】 |
20.00坪 |
【エントランス】 |
全日開放(制限有) |
| 【駐車場】 |
無し |
【エレベーター】 |
1基 |
光沢のある白いパネルタイルが印象的な清潔感のあるビル!室内は柱が無くスッキリした形状でレイアウト自在!機械警備システム対応でセキュリティ面も安心!

| 図面 |
階数 |
面積 |
賃料(共益費込) (坪単価) |
保証金/敷金 |
礼金 |
入居可能日 |
|
|
2階 |
G 20.00坪 (67.00m2) |
320,000 (16,000) |
8ヶ月 |
無 |
即日 |
|
物件番号:010312
更新日:2026/4/28
中央区日本橋人形町1-7-9
【竣工】1992/5
【階建て】地上8F 、地下1F
|
【最寄駅】
|
【耐震】 |
新耐震 |
| 【基準階】 |
27.05坪 |
【エントランス】 |
全日開放(制限有) |
| 【駐車場】 |
無し |
【エレベーター】 |
1基 |
東京都中央区日本橋人形町に位置する「伊勢兼ビル」は、日比谷線・都営浅草線人形町駅から徒歩わずか1分という抜群のアクセスを誇るオフィスビルです。さらに、半蔵門線水天宮前駅、都営新宿線浜…

| 図面 |
階数 |
面積 |
賃料(共益費込) (坪単価) |
保証金/敷金 |
礼金 |
入居可能日 |
|
|
7階 |
G 27.05坪 (89.42m2) |
459,850 (17,000) |
(未公開) |
無 |
即日 |
|
物件番号:007736
更新日:2026/5/25
中央区八丁堀4-9-9
【竣工】1991/10(改修:2001)
【階建て】地上7F 、地下1F
|
【最寄駅】
|
【耐震】 |
新耐震 |
| 【基準階】 |
24.46坪 |
【エントランス】 |
全日開放(24h) |
| 【駐車場】 |
無し |
【エレベーター】 |
1基 |
エントランスはライトを上手く利用しており雰囲気良好!この規模で希少な男女別トイレ!ワンフロア・ワンテナントで使い勝手良好!

| 図面 |
階数 |
面積 |
賃料(共益費込) (坪単価) |
保証金/敷金 |
礼金 |
入居可能日 |
|
|
3階 |
G 24.01坪 (79.40m2) |
432,180 (18,000) |
2ヶ月 |
無 |
2026/8 上旬 |
|
物件番号:009842
更新日:2026/5/21
中央区日本橋久松町9-8
【竣工】1991/8(改修:2024)
【階建て】地上9F
|
【最寄駅】
|
【耐震】 |
新耐震 |
| 【基準階】 |
23.48坪 |
【エントランス】 |
全日開放(24h) |
| 【駐車場】 |
無し |
【エレベーター】 |
1基 |
BizFeel東日本橋は、東京都中央区日本橋久松町に位置するオフィスビルで、優れた交通アクセスと快適なオフィス環境を兼ね備えた物件です。1991年8月に竣工し、地上9階建ての鉄骨造(S造)で建て…

| 図面 |
階数 |
面積 |
賃料(共益費込) (坪単価) |
保証金/敷金 |
礼金 |
入居可能日 |
|
|
3階 |
G 23.48坪 (77.62m2) |
|
4ヶ月 |
無 |
2026/9 下旬 |
|
|
5階 |
G 23.48坪 (77.62m2) |
600,000 (25,554) |
4ヶ月 |
無 |
相談 |
|
物件番号:010199
更新日:2026/5/19
中央区日本橋小網町18-17
【竣工】1991/3
【階建て】地上7F
|
【最寄駅】
|
【耐震】 |
新耐震 |
| 【基準階】 |
30.48坪 |
【エントランス】 |
全日開放(24h) |
| 【駐車場】 |
無し |
【エレベーター】 |
1基 |
TRUST VALUE日本橋小網町は、東京都中央区日本橋小網町18-17に位置する地上7階建てのオフィスビルです。1992年3月に竣工したこのビルは、鉄骨造(S造)で、新耐震基準を満たしており、安全性に優…

| 図面 |
階数 |
面積 |
賃料(共益費込) (坪単価) |
保証金/敷金 |
礼金 |
入居可能日 |
|
|
6階 |
G 28.05坪 (92.76m2) |
410,000 (14,617) |
6ヶ月 |
無 |
即日 |
|
物件番号:010721
更新日:2026/5/18
中央区日本橋箱崎町44-7
【竣工】1990/10(改修:2022)
【階建て】地上7F
|
【最寄駅】
|
【耐震】 |
新耐震 |
| 【基準階】 |
27.51坪 |
【エントランス】 |
全日開放(24h) |
| 【駐車場】 |
無し |
【エレベーター】 |
1基 |
箱崎YMビルは、東京都中央区日本橋箱崎町に所在するオフィスビルです。竣工は1990年10月、構造は鉄骨造、地上7階建てで構成されています。新耐震基準に適合しており、耐震性に配慮された設計がな…

| 図面 |
階数 |
面積 |
賃料(共益費込) (坪単価) |
保証金/敷金 |
礼金 |
入居可能日 |
|
|
5階 |
G 27.51坪 (90.95m2) |
280,000 (10,178) |
6ヶ月 |
無 |
即日 |
|
物件番号:007841
更新日:2026/5/8
中央区新富2-3-7
【竣工】1990/8
【階建て】地上6F
|
【最寄駅】
|
【耐震】 |
新耐震 |
| 【基準階】 |
22.06坪 |
【エントランス】 |
全日開放(24h) |
| 【駐車場】 |
無し |
【エレベーター】 |
1基 |
複数路線が利用可能で交通アクセス良好です。グレーを基調とした落ち着いた印象の外観です。ワンフロア・ワンテナントなので使い勝手の良い貸室です。

| 図面 |
階数 |
面積 |
賃料(共益費込) (坪単価) |
保証金/敷金 |
礼金 |
入居可能日 |
|
|
3階 |
G 22.06坪 (72.93m2) |
297,811 (13,500) |
8ヶ月 |
1.0ヶ月 |
即日 |
|
物件番号:009537
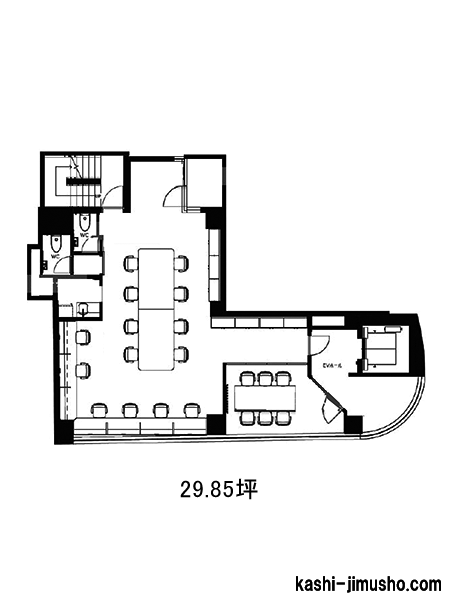
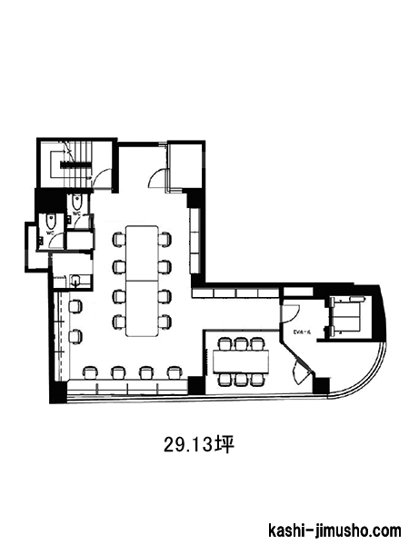
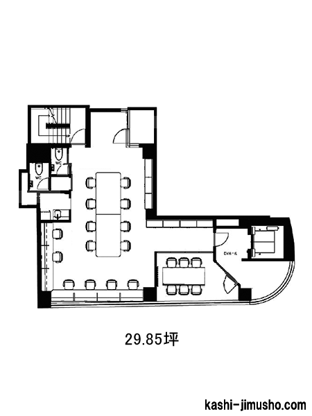
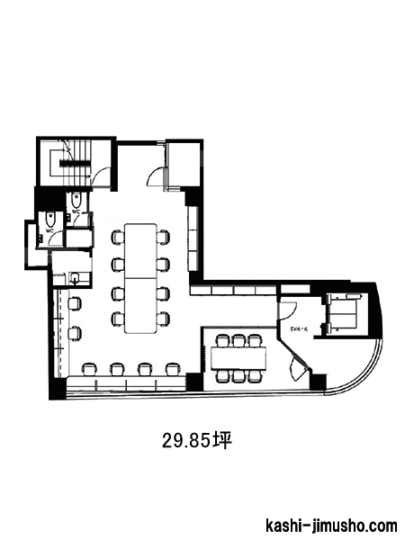
更新日:2026/5/22
中央区東日本橋2-25-4
【竣工】1990/6
【階建て】地上9F
|
【最寄駅】
|
【耐震】 |
新耐震 |
| 【基準階】 |
29.85坪 |
【エントランス】 |
全日開放(制限有) |
| 【駐車場】 |
有り |
【エレベーター】 |
1基 |
複数路線が利用可能!交通アクセス抜群な賃貸オフィス!靖国通り「両国橋西」交差点近くの分かりやすい立地!曲線状の外観フォルムが美しいオフィスビル!

| 図面 |
階数 |
面積 |
賃料(共益費込) (坪単価) |
保証金/敷金 |
礼金 |
入居可能日 |
|
|
2階 |
G 29.13坪 (96.30m2) |
650,000 (22,314) |
無 |
無 |
即日 |
|
|
3階 |
G 29.85坪 (98.67m2) |
650,000 (21,776) |
無 |
無 |
即日 |
|
|
4階 |
G 29.85坪 (98.67m2) |
650,000 (21,776) |
無 |
無 |
即日 |
|
|
7階 |
G 29.85坪 (98.67m2) |
650,000 (21,776) |
無 |
無 |
即日 |
|
|
8階 |
G 29.85坪 (98.67m2) |
650,000 (21,776) |
無 |
無 |
即日 |
|
物件番号:008292
更新日:2026/5/14
中央区築地6-15-6
【竣工】1990/6
【階建て】地上9F
|
【最寄駅】
|
【耐震】 |
新耐震 |
| 【基準階】 |
22.71坪 |
【エントランス】 |
全日開放(24h) |
| 【駐車場】 |
無し |
【エレベーター】 |
1基 |
ユースクエア築地は、東京都中央区築地6丁目に位置するオフィスビルです。1990年4月に竣工した地上9階建ての鉄骨造(S造)で、新耐震基準に適合しており、安全性に優れた設計が特徴です。アクセ…

| 図面 |
階数 |
面積 |
賃料(共益費込) (坪単価) |
保証金/敷金 |
礼金 |
入居可能日 |
|
|
1階 |
G 22.70坪 (75.04m2) |
420,000 (18,502) |
6ヶ月 |
1.0ヶ月 |
相談 |
|
物件番号:010111
更新日:2026/5/25
中央区日本橋小舟町9-4
【竣工】1990/2
【階建て】地上7F 、地下1F
|
【最寄駅】
|
【耐震】 |
新耐震 |
| 【基準階】 |
32.62坪 |
【エントランス】 |
全日開放(24h) |
| 【駐車場】 |
無し |
【エレベーター】 |
1基 |
イトーピア日本橋小舟町ビルは、中央区日本橋小舟町9-4に位置する賃貸オフィスビルです。東京メトロ日比谷線の人形町駅、都営浅草線の人形町駅からともに徒歩4分、日比谷線の小伝馬町駅からは徒…

| 図面 |
階数 |
面積 |
賃料(共益費込) (坪単価) |
保証金/敷金 |
礼金 |
入居可能日 |
|
|
3階 |
G 32.62坪 (107.85m2) |
480,000 (14,715) |
3ヶ月 |
無 |
即日 |
|
物件番号:009587
更新日:2026/4/27
中央区東日本橋2-2-10
【竣工】1989/8(改修:2026)
【階建て】地上6F 、地下1F
|
【最寄駅】
|
【耐震】 |
新耐震 |
| 【基準階】 |
26.73坪 |
【エントランス】 |
全日開放(24h) |
| 【駐車場】 |
無し |
【エレベーター】 |
1基 |
サンブライト東日本橋ビルは、東京都中央区東日本橋2丁目に位置するオフィスビルで、交通アクセスの良さと機能的な設備が魅力です。最寄り駅の都営浅草線東日本橋駅までは徒歩2分、都営新宿線馬…

| 図面 |
階数 |
面積 |
賃料(共益費込) (坪単価) |
保証金/敷金 |
礼金 |
入居可能日 |
|
|
1階 |
G 22.81坪 (75.39m2) |
|
6ヶ月 |
無 |
即日 |
|
|
2階 |
G 26.59坪 (87.90m2) |
|
6ヶ月 |
無 |
即日 |
|
|
5階 |
G 26.73坪 (88.38m2) |
|
6ヶ月 |
無 |
即日 |
|
|
6階 |
G 26.73坪 (88.38m2) |
|
6ヶ月 |
無 |
即日 |
|
物件番号:009181
更新日:2026/5/13
中央区日本橋小伝馬町16-20
【竣工】1989/1(改修:2026)
【階建て】地上6F 、地下1F
|
【最寄駅】
|
【耐震】 |
新耐震 |
| 【基準階】 |
22.14坪 |
【エントランス】 |
全日開放(24h) |
| 【駐車場】 |
無し |
【エレベーター】 |
1基 |
複数路線が利用可能で交通アクセス良好です。白を基調とした明るい印象の外観です。ワンフロア・ワンテナントなので使い勝手の良い貸室です。

| 図面 |
階数 |
面積 |
賃料(共益費込) (坪単価) |
保証金/敷金 |
礼金 |
入居可能日 |
|
|
6階 |
G 20.40坪 (67.44m2) |
|
6ヶ月 |
1.0ヶ月 |
相談 |
|
物件番号:007151
更新日:2026/5/22
中央区新川2-15-7
【竣工】1988/12(改修:2004)
【階建て】地上7F 、地下1F
|
【最寄駅】
|
【耐震】 |
新耐震 |
| 【基準階】 |
44.00坪 |
【エントランス】 |
全日開放(24h) |
| 【駐車場】 |
無し |
【エレベーター】 |
1基 |
坂田ビルは、東京都中央区新川2-15-7に位置する、利便性と機能性を兼ね備えたオフィスビルです。JR京葉線および東京メトロ日比谷線「八丁堀駅」から徒歩6分、東京メトロ東西線「茅場町駅」からも…

| 図面 |
階数 |
面積 |
賃料(共益費込) (坪単価) |
保証金/敷金 |
礼金 |
入居可能日 |
|
|
6階 |
G 34.00坪 (112.40m2) |
493,000 (14,500) |
6ヶ月 |
無 |
即日 |
|
物件番号:005240
更新日:2026/5/11
中央区日本橋2-9-5
【竣工】1988/6
【階建て】地上10F 、地下1F
|
【最寄駅】
|
【耐震】 |
新耐震 |
| 【基準階】 |
22.63坪 |
【エントランス】 |
全日開放(24h) |
| 【駐車場】 |
無し |
【エレベーター】 |
1基 |
複数路線が利用可能で交通アクセス良好です。大通りに面しているので視認性に優れています。ワンフロア・ワンテナントなので使い勝手の良い貸室です。

| 図面 |
階数 |
面積 |
賃料(共益費込) (坪単価) |
保証金/敷金 |
礼金 |
入居可能日 |
|
|
4階 |
G 22.63坪 (74.81m2) |
475,230 (21,000) |
8ヶ月 |
無 |
即日 |
|
物件番号:010643
更新日:2026/5/20
中央区日本橋蛎殻町1-6-9
【竣工】1988/2(改修:2019)
【階建て】地上7F 、地下1F
|
【最寄駅】
|
【耐震】 |
新耐震 |
| 【基準階】 |
35.31坪 |
【エントランス】 |
全日開放(24h) |
| 【駐車場】 |
無し |
【エレベーター】 |
1基 |
TQ蛎殻町は、中央区日本橋蛎殻町1-6-9に所在する貸事務所ビルです。東京メトロ半蔵門線「水天宮前駅」6番出口より徒歩3分圏内、東京メトロ東西線・日比谷線「茅場町駅」からも徒歩5分圏内、さら…

| 図面 |
階数 |
面積 |
賃料(共益費込) (坪単価) |
保証金/敷金 |
礼金 |
入居可能日 |
|
|
2階 |
G 35.31坪 (116.74m2) |
706,200 (20,000) |
6ヶ月 |
無 |
2026/8 中旬 |
|
非公開物件の賃料目安アイコン
8,000 円未満
8,000 円以上~1.0 万円未満
1.0 万以上~1.2 万円未満
1.2 万以上~1.4 万円未満
1.4 万以上~1.6 万円未満
1.6 万以上~2.0 万円未満
2.0 万以上~2.5 万円未満
2.5 万以上~3.0 万円未満
3.0 万円以上
未定
※取引態様:媒介
※フロア図面と現況が異なる場合は現況を優先いたします。
※貸室内部の写真・貸室からの景色に関しては、現在の募集フロアと異なる場合がございます。
※取引態様:媒介
その他、中央区の貸事務所をお探しの方はこちらをクリック

貸事務所|土日エントランス開放
中央区の貸事務所検索ページ