新耐震基準の貸事務所、賃貸オフィス |新宿区(60~80坪)
東京都新宿区の貸事務所、賃貸オフィスビルのうち、新耐震基準を満たす貸事務所を掲載しています。新耐震基準前の竣工物件でながら、補強や審査で基準値ををクリアした安心度の高いオフィスビルも調査して掲載しています。耐震性の高いもしくは補強済みの安心感があるオフィスビルです。
新耐震基準の貸事務所|新宿区
物件番号:082531
更新日:2025/10/17
新宿区西五軒町12-10
【竣工】2023/2
【階建て】地上5F
|
【最寄駅】
|
【耐震】 |
新耐震 |
| 【基準階】 |
20.11坪 |
【エントランス】 |
全日開放(24h) |
| 【駐車場】 |
無し |
【エレベーター】 |
1基 |
ESCALIER神楽坂は、東京都新宿区西五軒町に位置するオフィスビルです。2023年2月に竣工し、最新の新耐震基準をクリアしたRC(鉄筋コンクリート)造の5階建て構造となっています。この物件は、災…

| 図面 |
階数 |
面積 |
賃料(共益費込) (坪単価) |
保証金/敷金 |
礼金 |
入居可能日 |
|
|
1-4階 |
G 77.80坪 (257.20m2) |
2,900,000 (37,275) |
19,140,000 (246,015) |
1.0ヶ月 |
相談 |
|
|
1-5階 |
G 77.80坪 (257.20m2) |
3,260,000 (41,902) |
21,516,000 (276,555) |
1.0ヶ月 |
相談 |
|
物件番号:058239
更新日:2025/11/4
新宿区市谷本村町2-5
【竣工】2010/9
【階建て】地上11F 、地下1F
|
【最寄駅】
|
【耐震】 |
新耐震+制震 |
| 【基準階】 |
60.56坪 |
【エントランス】 |
平日・土開放 |
| 【駐車場】 |
有り |
【エレベーター】 |
2基 |
AD市ヶ谷ビルは、新宿区市谷本村町に位置する2010年竣工のスタイリッシュな賃貸オフィスビルです。鉄骨鉄筋コンクリート造・地下1階地上11階建ての構造で、新耐震基準を満たしているのはもちろん…

| 図面 |
階数 |
面積 |
賃料(共益費込) (坪単価) |
保証金/敷金 |
礼金 |
入居可能日 |
|
|
3階 |
G 60.56坪 (200.25m2) |
|
10ヶ月 |
無 |
即日 |
|
|
7階 |
G 60.56坪 (200.25m2) |
|
10ヶ月 |
無 |
即日 |
|
物件番号:032360
更新日:2025/11/12
新宿区西新宿6-12-1
【竣工】1996/6
【階建て】地上13F 、地下2F
|
【最寄駅】
|
【耐震】 |
新耐震 |
| 【基準階】 |
252.79坪 |
【エントランス】 |
全日開放(制限有) |
| 【駐車場】 |
有り |
【エレベーター】 |
4基 |
パークウエストビルは、新宿区西新宿6-12-1に位置する大型賃貸オフィスビルです。東京メトロ丸ノ内線「西新宿駅」まで徒歩4分、都営大江戸線「都庁前駅」へは徒歩6分、さらにJR各線・京王線など…

| 図面 |
階数 |
面積 |
賃料(共益費込) (坪単価) |
保証金/敷金 |
礼金 |
入居可能日 |
|
|
9階 |
N 63.58坪 (210.18m2) |
1,525,920 (24,000) |
12,716,000 (10ヶ月) |
1.0ヶ月 |
即日 |
|
物件番号:034574
更新日:2025/11/4
新宿区富久町13-15
【竣工】1995/9
【階建て】地上10F 、地下2F
|
【最寄駅】
|
【耐震】 |
新耐震 |
| 【基準階】 |
61.18坪 |
【エントランス】 |
全日開放(制限有) |
| 【駐車場】 |
無し |
【エレベーター】 |
1基 |
サウスタワーは、新宿区富久町13-15に位置する賃貸オフィスビルです。最寄り駅は東京メトロ丸ノ内線の新宿御苑前駅で徒歩6分と至近距離にあり、都営新宿線の曙橋駅へも徒歩9分、さらに東京メトロ…

| 図面 |
階数 |
面積 |
賃料(共益費込) (坪単価) |
保証金/敷金 |
礼金 |
入居可能日 |
|
|
1-2階 |
G 74.50坪 (246.28m2) |
1,564,500 (21,000) |
10,951,500 (7ヶ月) |
無 |
即日 |
|
|
3階 |
G 61.18坪 (202.25m2) |
917,700 (15,000) |
6,423,900 (7ヶ月) |
無 |
即日 |
|
|
6階 |
G 61.18坪 (202.25m2) |
917,700 (15,000) |
6,423,900 (7ヶ月) |
無 |
即日 |
|
物件番号:032276
更新日:2025/11/12
新宿区西新宿3-5-1
【竣工】1994/4(改修:2022)
【階建て】地上10F 、地下2F
|
【最寄駅】
|
【耐震】 |
新耐震 |
| 【基準階】 |
72.12坪 |
【エントランス】 |
全日開放(制限有) |
| 【駐車場】 |
無し |
【エレベーター】 |
2基 |
新宿区西新宿3-5-1にある、新宿セントランドビルです。最寄り駅は、都営大江戸線の都庁前駅です。徒歩3分圏内で、アクセス可能な好立地です。周辺には、東京都庁や新宿中央公園がございます。公…

| 図面 |
階数 |
面積 |
賃料(共益費込) (坪単価) |
保証金/敷金 |
礼金 |
入居可能日 |
|
|
7階 |
G 72.12坪 (238.41m2) |
|
(未公開) |
無 |
即日 |
|
物件番号:034628
更新日:2025/11/6
新宿区原町3-19
【竣工】1994/4
【階建て】地上7F 、地下1F
|
【最寄駅】
|
【耐震】 |
新耐震 |
| 【基準階】 |
113.71坪 |
【エントランス】 |
平日のみ開放 |
| 【駐車場】 |
有り |
【エレベーター】 |
2基 |
ラーズビルは、東京都新宿区原町3-19に位置する地上7階・地下1階建てのオフィスビルです。1994年4月に竣工し、RC造(鉄筋コンクリート造)を採用しています。新耐震基準に準拠して建設されている…

| 図面 |
階数 |
面積 |
賃料(共益費込) (坪単価) |
保証金/敷金 |
礼金 |
入居可能日 |
|
|
4階 |
G 60.96坪 (201.52m2) |
750,000 (12,303) |
6,000,000 (8ヶ月) |
無 |
2026/2 予定 |
|
物件番号:034568
更新日:2025/10/14
新宿区富久町16-5
【竣工】1992/5
【階建て】地上11F 、地下1F
|
【最寄駅】
|
【耐震】 |
新耐震 |
| 【基準階】 |
65.20坪 |
【エントランス】 |
平日・土開放 |
| 【駐車場】 |
有り |
【エレベーター】 |
2基 |
新宿高砂ビルは、新宿区富久町16-5に位置します。東京メトロ丸ノ内線の新宿御苑前駅から徒歩5分、東京メトロ副都心線および都営新宿線の新宿三丁目駅からも徒歩7分という絶好のロケーションにあ…

| 図面 |
階数 |
面積 |
賃料(共益費込) (坪単価) |
保証金/敷金 |
礼金 |
入居可能日 |
|
|
7階 |
G 65.20坪 (215.54m2) |
912,800 (14,000) |
3,000,000 (46,012) |
1.0ヶ月 |
即日 |
|
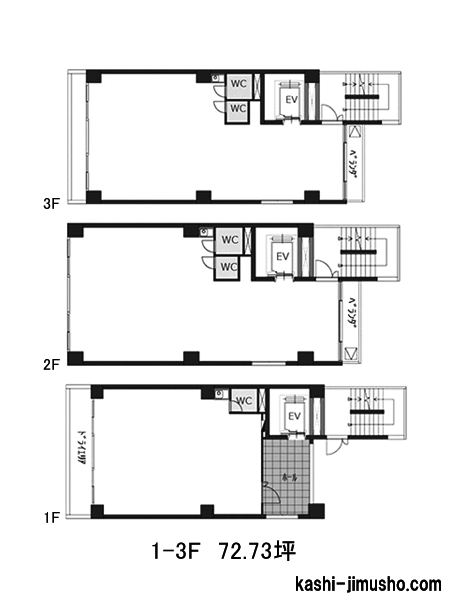
物件番号:083563
更新日:2025/11/10
新宿区新小川町8-7
【竣工】1992/2
【階建て】地上3F 、地下2F
|
【最寄駅】
|
【耐震】 |
新耐震 |
| 【基準階】 |
26.26坪 |
【エントランス】 |
全日開放(24h) |
| 【駐車場】 |
- |
【エレベーター】 |
1基 |
飯田橋駅のJR線、東西線、有楽町線、南北線、大江戸線が利用可能です。各階にトイレが新設しており、リニューアルしています。エントランスが広く使い勝手が良いです。

| 図面 |
階数 |
面積 |
賃料(共益費込) (坪単価) |
保証金/敷金 |
礼金 |
入居可能日 |
|
|
1-3階 |
G 72.73坪 (240.43m2) |
|
10ヶ月 |
無 |
2026/2/1 |
|
物件番号:032805
更新日:2025/10/28
新宿区新宿1-34-5
【竣工】1990/8
【階建て】地上6F
|
【最寄駅】
|
【耐震】 |
新耐震 |
| 【基準階】 |
75.08坪 |
【エントランス】 |
平日のみ開放 |
| 【駐車場】 |
無し |
【エレベーター】 |
1基 |
Verde Vista新宿御苑は、新宿区新宿1-34-5にある物件です。最寄駅は、東京メトロ丸ノ内線の新宿御苑前駅です。徒歩4分圏内でアクセス可能な好立地です。徒歩5分圏内で東京メトロ副都心線・都営新…

| 図面 |
階数 |
面積 |
賃料(共益費込) (坪単価) |
保証金/敷金 |
礼金 |
入居可能日 |
|
|
2階 |
N 75.08坪 (248.20m2) |
1,764,380 (23,500) |
6,006,400 (4ヶ月) |
無 |
2026/1 予定 |
|
物件番号:034157
更新日:2025/11/11
新宿区下宮比町2-26
【竣工】1990/2(改修:2008)
【階建て】地上8F
|
【最寄駅】
|
【耐震】 |
新耐震 |
| 【基準階】 |
181.79坪 |
【エントランス】 |
全日開放(制限有) |
| 【駐車場】 |
有り |
【エレベーター】 |
2基 |
KDX飯田橋ビルは、新宿区下宮比町2-26に位置する賃貸オフィスビルです。最寄り駅はJR総武線をはじめ、東京メトロ有楽町線・東西線・南北線、さらに都営大江戸線の飯田橋駅が利用可能で、各線の駅…

| 図面 |
階数 |
面積 |
賃料(共益費込) (坪単価) |
保証金/敷金 |
礼金 |
入居可能日 |
|
|
NEW1階 |
G 71.26坪 (235.57m2) |
|
12ヶ月 |
無 |
2026/2/1 |
|
|
6階 |
N 66.05坪 (218.38m2) |
|
(未公開) |
無 |
2026/2/1 |
|
物件番号:042948
更新日:2025/11/11
新宿区余丁町11-1
【竣工】1990/1
【階建て】地上5F 、地下1F
|
【最寄駅】
|
【耐震】 |
新耐震 |
| 【基準階】 |
67.56坪 |
【エントランス】 |
全日開放(24h) |
| 【駐車場】 |
有り |
【エレベーター】 |
1基 |
枝ビルは、東京都新宿区余丁町11-1に位置する地上5階・地下1階建てのオフィスビルです。1990年1月に竣工し、構造はRC造(鉄筋コンクリート造)を採用しています。新耐震基準に適合しているため、…

| 図面 |
階数 |
面積 |
賃料(共益費込) (坪単価) |
保証金/敷金 |
礼金 |
入居可能日 |
|
|
B1階 |
G 75.56坪 (249.79m2) |
680,040 (9,000) |
1,586,760 (3ヶ月) |
1.0ヶ月 |
即日 |
|
物件番号:033500
更新日:2025/10/15
新宿区下落合4-21-19
【竣工】1989/11
【階建て】地上8F
|
【最寄駅】
|
【耐震】 |
新耐震 |
| 【基準階】 |
63.06坪 |
【エントランス】 |
平日のみ開放 |
| 【駐車場】 |
有り |
【エレベーター】 |
1基 |
目白・下落合エリア。目白通りに面した賃貸オフィスビル。目白LKビルは、新宿区下落合4丁目、JR山手線の目白駅より徒歩12分圏内、目白通りに面した視認性抜群の立地です。西武新宿駅の下落合駅、…

| 図面 |
階数 |
面積 |
賃料(共益費込) (坪単価) |
保証金/敷金 |
礼金 |
入居可能日 |
|
|
5階 |
G 63.06坪 (208.46m2) |
945,900 (15,000) |
5,675,400 (6ヶ月) |
2.0ヶ月 |
2025/10 下旬 |
|
物件番号:032821
更新日:2025/11/5
新宿区新宿2-19-1
【竣工】1989/3(改修:2021)
【階建て】地上13F 、地下2F
|
【最寄駅】
|
【耐震】 |
新耐震 |
| 【基準階】 |
275.75坪 |
【エントランス】 |
全日開放(制限有) |
| 【駐車場】 |
有り |
【エレベーター】 |
5基 |
ビッグス新宿ビルは、東京都新宿区新宿2-19-1にある物件です。都営新宿線・東京メトロ丸ノ内線・東京メトロ副都心線の新宿三丁目駅に直結しています。雨に濡れずにビル内へアクセス可能な好立地…

| 図面 |
階数 |
面積 |
賃料(共益費込) (坪単価) |
保証金/敷金 |
礼金 |
入居可能日 |
|
|
9階 |
N 63.83坪 (211.01m2) |
|
(未公開) |
無 |
2025/12/1 |
|
物件番号:032780
更新日:2025/10/20
新宿区新宿5-6-1
【竣工】1989/3
【階建て】地上10F 、地下1F
|
【最寄駅】
|
【耐震】 |
新耐震 |
| 【基準階】 |
67.00坪 |
【エントランス】 |
平日・土開放 |
| 【駐車場】 |
無し |
【エレベーター】 |
1基 |
新宿やわらぎビルは、東京都新宿区新宿5丁目に位置する地上10階・地下1階建てのオフィスビルです。1989年3月に竣工し、構造は鉄骨鉄筋コンクリート造(SRC造)で建てられています。新耐震基準に…

| 図面 |
階数 |
面積 |
賃料(共益費込) (坪単価) |
保証金/敷金 |
礼金 |
入居可能日 |
|
|
4階 |
G 67.00坪 (221.49m2) |
1,340,000 (20,000) |
8,040,000 (6ヶ月) |
無 |
相談 |
|
物件番号:049630
更新日:2025/10/15
新宿区市谷左内町29-3
【竣工】1989/3(改修:2024)
【階建て】地上2F 、地下1F
|
【最寄駅】
|
【耐震】 |
新耐震 |
| 【基準階】 |
67.40坪 |
【エントランス】 |
オートロック |
| 【駐車場】 |
無し |
【エレベーター】 |
1基 |
TERRACE HILL ICHIGAYAは、東京都新宿区市谷左内町に位置するオフィスビルです。1989年3月に竣工したRC(鉄筋コンクリート)造の地上2階・地下1階建てで、新耐震基準を満たした設計となっており…

| 図面 |
階数 |
面積 |
賃料(共益費込) (坪単価) |
保証金/敷金 |
礼金 |
入居可能日 |
|
|
3-4階 |
G 76.30坪 (252.24m2) |
1,907,500 (25,000) |
無 |
無 |
即日 |
|
物件番号:032646
更新日:2025/11/6
新宿区新宿3-11-10
【竣工】1988/3
【階建て】地上10F 、地下1F
|
【最寄駅】
|
【耐震】 |
新耐震 |
| 【基準階】 |
71.34坪 |
【エントランス】 |
全日開放(制限有) |
| 【駐車場】 |
無し |
【エレベーター】 |
1基 |
新宿311ビルは、新宿区新宿3丁目に位置する賃貸オフィスビルです。住所は東京都新宿区新宿3-11-10で、東京メトロ丸ノ内線・副都心線、そして都営新宿線の「新宿三丁目駅」から徒歩1分圏内という…

| 図面 |
階数 |
面積 |
賃料(共益費込) (坪単価) |
保証金/敷金 |
礼金 |
入居可能日 |
|
|
8階 |
G 71.34坪 (235.84m2) |
|
無 |
無 |
即日 |
|
物件番号:041814
更新日:2025/11/11
新宿区四谷三栄町9-6
【竣工】1988/2(改修:2021)
【階建て】地上6F
|
【最寄駅】
|
【耐震】 |
新耐震 |
| 【基準階】 |
62.62坪 |
【エントランス】 |
|
| 【駐車場】 |
有り |
【エレベーター】 |
1基 |
四谷三丁目駅・四ツ谷駅利用。ワンフロア約62坪、男女別トイレ付の使いやすい貸事務所。四谷三栄町スクエアは新宿区新宿区四谷三栄町9-6の物件です。東京メトロ丸ノ内線 四谷三丁目駅より徒歩4分…

| 図面 |
階数 |
面積 |
賃料(共益費込) (坪単価) |
保証金/敷金 |
礼金 |
入居可能日 |
|
|
3階 |
G 62.62坪 (207.01m2) |
1,440,260 (23,000) |
8,641,560 (6ヶ月) |
無 |
2026/3/1 |
|
|
4階 |
G 62.62坪 (207.03m2) |
1,440,260 (23,000) |
8,641,560 (6ヶ月) |
無 |
2026/2/1 |
|
物件番号:033877
更新日:2025/10/24
新宿区愛住町22
【竣工】1987/10
【階建て】地上11F
|
【最寄駅】
|
【耐震】 |
新耐震 |
| 【基準階】 |
101.46坪 |
【エントランス】 |
平日のみ開放 |
| 【駐車場】 |
無し |
【エレベーター】 |
2基 |
第3山田ビルは、新宿区愛住町22に位置する賃貸オフィスビルで、最寄駅は都営新宿線の曙橋駅です。徒歩2分圏内にあり、非常にアクセスの良い立地です。また、徒歩6分圏内で東京メトロ丸ノ内線の四…

| 図面 |
階数 |
面積 |
賃料(共益費込) (坪単価) |
保証金/敷金 |
礼金 |
入居可能日 |
|
|
10-11階 |
G 66.83坪 (220.93m2) |
801,960 (12,000) |
8,019,600 (10ヶ月) |
無 |
即日 |
|
物件番号:073473
更新日:2025/10/15
新宿区荒木町22-42
【竣工】1987/9
【階建て】地上6F
|
【最寄駅】
|
【耐震】 |
新耐震 |
| 【基準階】 |
|
【エントランス】 |
オートロック |
| 【駐車場】 |
有り |
【エレベーター】 |
1基 |
複数路線が利用可能で交通アクセス良好です。管理の行き届いた清潔感のあるエントランスです。機械警備でセキュリティ面も安心です。

| 図面 |
階数 |
面積 |
賃料(共益費込) (坪単価) |
保証金/敷金 |
礼金 |
入居可能日 |
|
|
4-5階 |
G 63.10坪 (208.60m2) |
800,045 (12,679) |
4,000,225 (5ヶ月) |
1.0ヶ月 |
相談 |
|
物件番号:033617
更新日:2025/10/24
新宿区四谷4-1-1
【竣工】1987/4
【階建て】地上8F 、地下1F
|
【最寄駅】
|
【耐震】 |
新耐震 |
| 【基準階】 |
67.60坪 |
【エントランス】 |
平日・土開放 |
| 【駐車場】 |
無し |
【エレベーター】 |
1基 |
四谷エリアに位置する新宿通りに面した視認性に優れた賃貸オフィスビルです。この物件は新宿区四谷4-1-1に所在し、東京メトロ丸ノ内線の四谷三丁目駅から徒歩3分という好立地にあります。主要ビ…

| 図面 |
階数 |
面積 |
賃料(共益費込) (坪単価) |
保証金/敷金 |
礼金 |
入居可能日 |
|
|
2階 |
G 62.20坪 (205.62m2) |
995,200 (16,000) |
5,971,200 (6ヶ月) |
1.0ヶ月 |
即日 |
|
物件番号:033710
更新日:2025/11/12
新宿区四谷4-28-8
【竣工】1986/9(改修:2017)
【階建て】地上10F 、地下1F
|
【最寄駅】
|
【耐震】 |
新耐震 |
| 【基準階】 |
201.40坪 |
【エントランス】 |
全日開放(24h) |
| 【駐車場】 |
有り |
【エレベーター】 |
2基 |
PALTビルは東京都新宿区四谷4-28-8にある賃貸オフィスビルです。新宿御苑前駅から出て、外苑西通り沿いの角地に位置する分かりやすい立地です。落ち着いた色合いの重厚感のある外観です。石造り…

| 図面 |
階数 |
面積 |
賃料(共益費込) (坪単価) |
保証金/敷金 |
礼金 |
入居可能日 |
|
|
1階 |
N 69.03坪 (228.20m2) |
1,311,570 (19,000) |
11,044,800 (10ヶ月) |
1.0ヶ月 |
相談 |
|
物件番号:033817
更新日:2025/11/4
新宿区四谷坂町10-10
【竣工】1986/4(改修:2026)
【階建て】地上8F 、地下1F
|
【最寄駅】
|
【耐震】 |
新耐震 |
| 【基準階】 |
106.07坪 |
【エントランス】 |
|
| 【駐車場】 |
有り |
【エレベーター】 |
1基 |
「(仮称)四谷坂町PJ」は、東京都新宿区四谷坂町10-10に位置する地上8階・地下1階建て、SRC造(鉄骨鉄筋コンクリート造)のオフィスビルです。1986年4月に竣工し、新耐震基準を満たしているため…

| 図面 |
階数 |
面積 |
賃料(共益費込) (坪単価) |
保証金/敷金 |
礼金 |
入居可能日 |
|
|
7階 |
G 78.08坪 (258.14m2) |
|
無 |
無 |
2026/4/1 |
|
|
8階 |
G 78.08坪 (258.14m2) |
|
無 |
無 |
2026/4/1 |
|
物件番号:034305
更新日:2025/11/4
新宿区矢来町113-1
【竣工】1985/11
【階建て】地上5F 、地下1F
|
【最寄駅】
|
【耐震】 |
新耐震 |
| 【基準階】 |
115.79坪 |
【エントランス】 |
平日のみ開放 |
| 【駐車場】 |
無し |
【エレベーター】 |
1基 |
神楽坂升本ビルは東京都新宿区矢来町113-1に位置し、アクセスの良い環境と優れたオフィス機能を兼ね備えたビルです。最寄り駅である東京メトロ東西線の神楽坂駅からは徒歩わずか2分の距離にあり…

| 図面 |
階数 |
面積 |
賃料(共益費込) (坪単価) |
保証金/敷金 |
礼金 |
入居可能日 |
|
|
1階 |
G 62.55坪 (206.70m2) |
857,000 (13,701) |
2,752,000 (4ヶ月) |
1.0ヶ月 |
即日 |
|
物件番号:054160
更新日:2025/10/14
新宿区山吹町363-4
【竣工】1985/1
【階建て】地上6F
|
【最寄駅】
|
【耐震】 |
新耐震 |
| 【基準階】 |
72.69坪 |
【エントランス】 |
平日のみ開放 |
| 【駐車場】 |
有り |
【エレベーター】 |
2基 |
英明ビルは、東京都新宿区山吹町363-4に位置する地上6階建てのオフィスビルです。1985年1月に竣工し、構造はRC造(鉄筋コンクリート造)を採用しています。新耐震基準に適合して建設されているた…

| 図面 |
階数 |
面積 |
賃料(共益費込) (坪単価) |
保証金/敷金 |
礼金 |
入居可能日 |
|
|
3階 |
G 72.68坪 (240.29m2) |
726,000 (9,989) |
2,395,800 (32,964) |
2.0ヶ月 |
相談 |
|
物件番号:032891
更新日:2025/11/6
新宿区新宿1-3-12
【竣工】1984/9
【階建て】地上11F 、地下1F
|
【最寄駅】
|
【耐震】 |
新耐震 |
| 【基準階】 |
129.56坪 |
【エントランス】 |
全日開放(制限有) |
| 【駐車場】 |
有り |
【エレベーター】 |
2基 |
壱丁目参番館は、東京都新宿区新宿1丁目に位置する賃貸オフィスビルです。1984年9月に竣工した11階建てのSRC(鉄骨鉄筋コンクリート)造の建物で、新耐震基準に基づいて設計されています。交通ア…

| 図面 |
階数 |
面積 |
賃料(共益費込) (坪単価) |
保証金/敷金 |
礼金 |
入居可能日 |
|
|
8階 |
G 66.03坪 (218.28m2) |
1,650,750 (25,000) |
11,621,280 (8ヶ月) |
無 |
相談 |
|
物件番号:032283
更新日:2025/11/5
新宿区西新宿1-26-2
【竣工】1978/6(改修:2006)
【階建て】地上50F 、地下5F
|
【最寄駅】
|
【耐震】 |
旧耐震+補強済 or 基準OK |
| 【基準階】 |
381.86坪 |
【エントランス】 |
|
| 【駐車場】 |
有り |
【エレベーター】 |
26基 |
新宿野村ビルは、東京都新宿区西新宿1に位置する高層ビルで、日本を代表するオフィスビルの一つです。1978年に完成し、高さは約210メートル、地上48階、地下4階の構造を持っています。 特徴的な…

| 図面 |
階数 |
面積 |
賃料(共益費込) (坪単価) |
保証金/敷金 |
礼金 |
入居可能日 |
|
|
15階 |
N 72.57坪 (239.93m2) |
|
12ヶ月 |
無 |
2026/1/1 |
|
物件番号:054909
更新日:2025/11/5
新宿区市谷八幡町14
【竣工】1974/9(改修:2001)
【階建て】地上9F
|
【最寄駅】
|
【耐震】 |
旧耐震+補強済 or 基準OK |
| 【基準階】 |
139.23坪 |
【エントランス】 |
平日・土開放 |
| 【駐車場】 |
有り |
【エレベーター】 |
2基 |
市ヶ谷中央ビルは、東京都新宿区市谷八幡町に位置するオフィスビルです。1974年9月に竣工したS(鉄骨)造の地上9階建てです。最寄りの「市ヶ谷駅」には、JR総武線、東京メトロ有楽町線・南北線、…

| 図面 |
階数 |
面積 |
賃料(共益費込) (坪単価) |
保証金/敷金 |
礼金 |
入居可能日 |
|
|
6階 |
N 71.11坪 (235.08m2) |
924,430 (13,000) |
9,244,300 (10ヶ月) |
1.0ヶ月 |
即日 |
|
物件番号:032322
更新日:2025/10/15
新宿区西新宿7-21-1
【竣工】1971/4(改修:2020)
【階建て】地上9F 、地下1F
|
【最寄駅】
|
【耐震】 |
旧耐震+補強済 or 基準OK |
| 【基準階】 |
144.00坪 |
【エントランス】 |
全日開放(制限有) |
| 【駐車場】 |
無し |
【エレベーター】 |
2基 |
「新宿ロイヤルビル」は、東京都新宿区西新宿7丁目に位置する地上9階・地下1階建てのオフィスビルです。1971年4月に竣工し、SRC(鉄骨鉄筋コンクリート)造で建てられています。最寄りの丸ノ内線…

| 図面 |
階数 |
面積 |
賃料(共益費込) (坪単価) |
保証金/敷金 |
礼金 |
入居可能日 |
|
|
9階 |
G 67.96坪 (224.66m2) |
1,359,200 (20,000) |
5,572,720 (5ヶ月) |
無 |
即日 |
|
※取引態様:媒介
※フロア図面と現況が異なる場合は現況を優先いたします。
※貸室内部の写真・貸室からの景色に関しては、現在の募集フロアと異なる場合がございます。
※取引態様:媒介
新耐震基準の貸事務所|エリア別
耐震性高い貸事務所(制震構造・免震構造)
さらに耐震性が高い、制震構造、免震構造の事務所を賃貸したい方は下記からお探しいただくと便利です。
新宿区に関連する貸事務所検索ページ