東品川(品川区)の貸事務所・賃貸オフィス一覧
【2026/04/19更新】東品川(品川区)の貸事務所について
運河沿いの開放感が魅力の東品川エリア
東品川エリアは、品川区の臨海部に位置し、開放感のある環境が魅力のオフィスエリアです。りんかい線の天王洲アイル駅・京急本線の新馬場駅などが利用可能で、品川駅や羽田空港へのアクセスも良好です。周辺には天王洲アイルのオフィスビル群や倉庫街が広がり、IT企業や物流関連企業、クリエイティブ系企業の進出が進んでいます。運河沿いの景観や緑地も整備されており、快適な執務環境が整っています。飲食店やカフェも多く、打ち合わせやランチにも便利です。静かな環境で落ち着いて業務に集中できる東品川エリアは、多様な企業ニーズに対応できる立地です。
東品川(品川区)の物件は、11棟(40件) 掲載されています。
東品川周辺の貸事務所マップ
東品川周辺マップです。物件のある位置にビルが表示されていますので、クリックして詳細情報をご覧ください。
ビルアイコンについて
マップ上に表示されているビルアイコンは、そのビルの最小坪単価に応じて色分けされています。
- 8,000 円未満
- 8,000 円以上~1.0 万円未満
- 1.0 万以上~1.2 万円未満
- 1.2 万以上~1.4 万円未満
- 1.4 万以上~1.6 万円未満
- 1.6 万以上~2.0 万円未満
- 2.0 万以上~2.5 万円未満
- 2.5 万以上~3.0 万円未満
- 3.0 万円以上
- 未定
東品川周辺の地区を探す
東品川周辺の貸事務所一覧
総数:11棟(40件)
- 1
| 図面 | 階数 | 面積 | 賃料(共益費込) (坪単価) |
保証金/敷金 | 礼金 | 入居可能日 | |
|---|---|---|---|---|---|---|---|
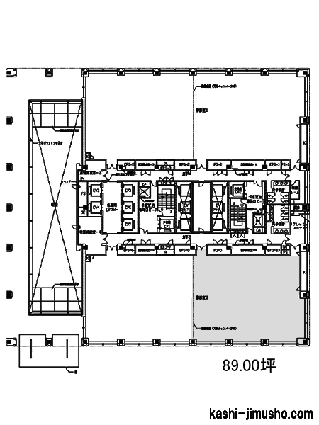
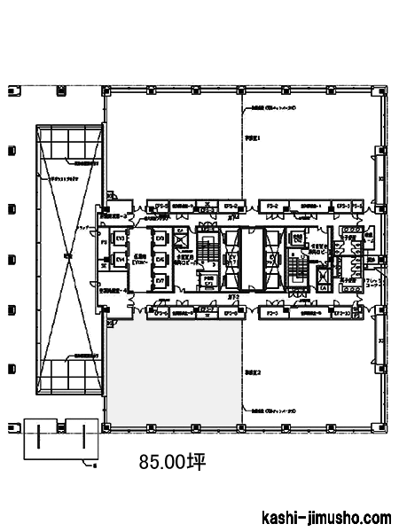
| 2階 | N 85.00坪 (280.99m2) |
(未公開)
|
12ヶ月 | 無 | 相談 |
|
|
| 2階 | N 89.00坪 (294.22m2) |
(未公開)
|
12ヶ月 | 無 | 相談 |
|
|
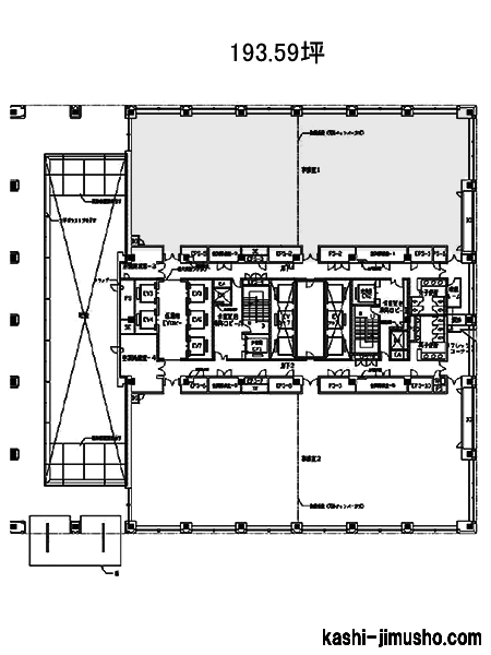
| 2階 | N 193.59坪 (639.97m2) |
(未公開)
|
12ヶ月 | 無 | 2026/5/1 |
|
|
| 2階 | N 193.59坪 (639.97m2) |
(未公開)
|
12ヶ月 | 無 | 即日 |
|
|
| 12階 | N 133.04坪 (439.81m2) |
(未公開)
|
12ヶ月 | 無 | 相談 |
|
|
| 12階 | N 363.36坪 (1201.20m2) |
(未公開)
|
12ヶ月 | 無 | 相談 |
|
|
| 12階 | N 496.40坪 (1641.00m2) |
(未公開)
|
12ヶ月 | 無 | 即日 |
|
全7件を確認する
表示フロアを閉じる
| 図面 | 階数 | 面積 | 賃料(共益費込) (坪単価) |
保証金/敷金 | 礼金 | 入居可能日 | |
|---|---|---|---|---|---|---|---|
| 3階 | N 129.82坪 (429.16m2) |
(未公開)
|
12ヶ月 | 無 | 2026/5/1 |
|
|
| 13階 | N 434.08坪 (1434.99m2) |
(未公開)
|
12ヶ月 | 無 | 2026/4 予定 |
|
|
| 14階 | N 434.08坪 (1434.99m2) |
(未公開)
|
12ヶ月 | 無 | 2026/4 予定 |
|
|
| 15階 | N 434.08坪 (1434.99m2) |
(未公開)
|
12ヶ月 | 無 | 2026/4 予定 |
|
|
| 16階 | N 434.08坪 (1434.99m2) |
(未公開)
|
12ヶ月 | 無 | 2026/4 |
|
|
| 17階 | N 434.08坪 (1434.99m2) |
(未公開)
|
12ヶ月 | 無 | 2026/4 予定 |
|
全6件を確認する
表示フロアを閉じる
| 図面 | 階数 | 面積 | 賃料(共益費込) (坪単価) |
保証金/敷金 | 礼金 | 入居可能日 | |
|---|---|---|---|---|---|---|---|
|
5階 | N 225.83坪 (746.55m2) |
(未公開)
|
12ヶ月 | 無 | 即日 |
|
| 12階 | N 446.49坪 (1476.00m2) |
(未公開)
|
12ヶ月 | 無 | 相談 |
|
|
| 17階 | N 468.64坪 (1549.20m2) |
(未公開)
|
12ヶ月 | 無 | 即日 |
|
|
| 18階 | N 468.64坪 (1549.20m2) |
(未公開)
|
12ヶ月 | 無 | 即日 |
|
全4件を確認する
表示フロアを閉じる
| 図面 | 階数 | 面積 | 賃料(共益費込) (坪単価) |
保証金/敷金 | 礼金 | 入居可能日 | |
|---|---|---|---|---|---|---|---|
| 3階 | N 505.40坪 (1670.75m2) |
(未公開)
|
12ヶ月 | 無 | 2027/1 |
|
|
| 4階 | N 505.40坪 (1670.75m2) |
(未公開)
|
12ヶ月 | 無 | 2026/10/1 |
|
|
| 5階 | N 505.40坪 (1670.75m2) |
(未公開)
|
12ヶ月 | 無 | 2026/10/1 |
|
|
| 6階 | N 505.40坪 (1670.75m2) |
(未公開)
|
12ヶ月 | 無 | 2027/1/1 |
|
全4件を確認する
表示フロアを閉じる
物件番号:022908
更新日:2026/3/23
品川区東品川2-2-8
【竣工】1993/4(改修:2015)
【階建て】地上28F 、地下2F
【最寄駅】
|
【耐震】 | 新耐震 | ||
|---|---|---|---|---|
| 【基準階】 | 312.75坪 | 【エントランス】 | 平日のみ開放 | |
| 【駐車場】 | 有り | 【エレベーター】 | 9基 |
スフィアタワー天王洲ビルは、品川区東品川2-2-8に位置する賃貸オフィスビルです。東京モノレール「天王洲アイル駅」に直結しており、徒歩1分でアクセス可能。さらに、りんかい線「天王洲アイル…

| 図面 | 階数 | 面積 | 賃料(共益費込) (坪単価) |
保証金/敷金 | 礼金 | 入居可能日 | |
|---|---|---|---|---|---|---|---|
| 1階 | N 40.25坪 (133.06m2) |
(未公開)
|
12ヶ月 | 無 | 即日 |
|
|
| 19階 | N 326.45坪 (1079.18m2) |
(未公開)
|
12ヶ月 | 無 | 即日 |
|
|
| 19-20階 | N 578.85坪 (1913.56m2) |
(未公開)
|
12ヶ月 | 無 | 即日 |
|
|
| 20階 | N 252.40坪 (834.38m2) |
(未公開)
|
12ヶ月 | 無 | 即日 |
|
全4件を確認する
表示フロアを閉じる
物件番号:022907
更新日:2026/4/15
品川区東品川2-3-12
【竣工】1992/6(改修:2025)
【階建て】地上25F 、地下1F
【最寄駅】
|
【耐震】 | 新耐震 | ||
|---|---|---|---|---|
| 【基準階】 | 284.64坪 | 【エントランス】 | 平日のみ開放 | |
| 【駐車場】 | 有り | 【エレベーター】 | 9基 |
TENNOZ Bay Tower(天王洲ベイタワー)は、品川区東品川2丁目に位置する、規模・機能ともに優れたハイグレードな賃貸オフィスビルです。東京湾の一角、京浜運河沿いに立地し、水辺ならではの開放…

| 図面 | 階数 | 面積 | 賃料(共益費込) (坪単価) |
保証金/敷金 | 礼金 | 入居可能日 | |
|---|---|---|---|---|---|---|---|
| 8階 | G 76.96坪 (254.41m2) |
(未公開)
|
12ヶ月 | 無 | 2026/7/14 |
|
|
| 10階 | G 130.91坪 (432.76m2) |
(未公開)
|
12ヶ月 | 無 | 即日 |
|
|
| 12階 | G 82.21坪 (271.77m2) |
(未公開)
|
12ヶ月 | 無 | 2026/10/1 |
|
|
| 15階 | G 131.93坪 (436.13m2) |
(未公開)
|
12ヶ月 | 無 | 2026/7/1 |
|
全4件を確認する
表示フロアを閉じる
※取引態様:媒介
※フロア図面と現況が異なる場合は現況を優先いたします。
※貸室内部の写真・貸室からの景色に関しては、現在の募集フロアと異なる場合がございます。
総数:11棟(40件)
- 1










