千駄ヶ谷(渋谷区)の貸事務所・賃貸オフィス一覧
【2026/05/13更新】
千駄ヶ谷(渋谷区)の貸事務所について
落ち着いた環境が魅力の千駄ヶ谷エリア
千駄ヶ谷エリアは、落ち着いた住環境とスポーツ・文化施設が共存する人気のビジネスエリアです。JR中央・総武線「千駄ヶ谷駅」や東京メトロ副都心線「北参道駅」、都営大江戸線「国立競技場駅」など複数路線が利用でき、交通アクセスも良好です。エリア内には「東京体育館」が立地し、緑豊かな環境が広がります。大型ビルは少なく、低層オフィスやデザイン性の高い物件が多く、IT企業、クリエイティブ系、コンサルタント、士業事務所など幅広い業種に適しています。静かな環境と利便性を兼ね備えた千駄ヶ谷エリアは、長期的な事業拠点として人気を集めています。
千駄ヶ谷(渋谷区)の物件は、23棟(26件) 掲載されています。
千駄ヶ谷周辺の貸事務所マップ
千駄ヶ谷周辺マップです。物件のある位置にビルが表示されていますので、クリックして詳細情報をご覧ください。
ビルアイコンについて
マップ上に表示されているビルアイコンは、そのビルの最小坪単価に応じて色分けされています。
8,000 円未満
8,000 円以上~1.0 万円未満
1.0 万以上~1.2 万円未満
1.2 万以上~1.4 万円未満
1.4 万以上~1.6 万円未満
1.6 万以上~2.0 万円未満
2.0 万以上~2.5 万円未満
2.5 万以上~3.0 万円未満
3.0 万円以上
未定
千駄ヶ谷周辺の地区を探す
千駄ヶ谷周辺の貸事務所一覧
物件番号:076131
更新日:2026/5/11
渋谷区千駄ヶ谷4-20-1
【竣工】2022/2
【階建て】地上8F
|
【最寄駅】
|
【耐震】 |
新耐震 |
| 【基準階】 |
63.84坪 |
【エントランス】 |
オートロック |
| 【駐車場】 |
無し |
【エレベーター】 |
2基 |
Verdex神宮北参道は、渋谷区千駄ヶ谷4丁目に位置する美築の賃貸オフィスビルで、2022年に竣工した新しい物件です。JR総武線「千駄ヶ谷駅」から徒歩5分圏内という好立地に加え、都営大江戸線「国…

| 図面 |
階数 |
面積 |
賃料(共益費込) (坪単価) |
保証金/敷金 |
礼金 |
入居可能日 |
|
|
2階 |
G 64.01坪 (211.63m2) |
2,200,000 (34,370) |
6ヶ月 |
無 |
2026/7 予定 |
|
|
3階 |
G 64.01坪 (211.63m2) |
2,250,000 (35,151) |
6ヶ月 |
無 |
2026/7 予定 |
|
|
6階 |
G 64.01坪 (211.63m2) |
2,500,000 (39,056) |
6ヶ月 |
無 |
2026/7 予定 |
|
物件番号:067569
更新日:2026/5/1
渋谷区千駄ヶ谷3-14-5
【竣工】2017/12
【階建て】地上9F
|
【最寄駅】
|
【耐震】 |
新耐震 |
| 【基準階】 |
48.82坪 |
【エントランス】 |
|
| 【駐車場】 |
有り |
【エレベーター】 |
1基 |
第16スカイビルは、東京都渋谷区千駄ヶ谷3丁目に位置するオフィスビルです。2017年12月に竣工した地上9階建ての鉄骨造(S造)で、新耐震基準に適合しており、高い耐震性と安全性を備えた設計が特…

| 図面 |
階数 |
面積 |
賃料(共益費込) (坪単価) |
保証金/敷金 |
礼金 |
入居可能日 |
|
|
3階 |
G 56.74坪 (187.57m2) |
|
6ヶ月 |
無 |
2026/9 上旬 |
|
物件番号:082496
更新日:2026/5/11
渋谷区千駄ヶ谷3-7-6
【竣工】2005/1
【階建て】地上4F 、地下1F
|
【最寄駅】
|
【耐震】 |
新耐震 |
| 【基準階】 |
35.58坪 |
【エントランス】 |
オートロック |
| 【駐車場】 |
- |
【エレベーター】 |
1基 |
TTビル(東京宅配)は、東京都渋谷区千駄ケ谷3-7-6に位置し、利便性の高い場所にあるオフィスビルです。副都心線「北参道駅」から徒歩4分という近さで、交通の利便性が非常に優れています。新宿…

| 図面 |
階数 |
面積 |
賃料(共益費込) (坪単価) |
保証金/敷金 |
礼金 |
入居可能日 |
|
|
4階 |
G 35.58坪 (117.63m2) |
600,000 (16,863) |
5ヶ月 |
1.0ヶ月 |
即日 |
|
物件番号:019368
更新日:2026/5/13
渋谷区千駄ヶ谷3-18-3
【竣工】1992/6
【階建て】地上4F 、地下1F
|
【最寄駅】
|
【耐震】 |
新耐震 |
| 【基準階】 |
28.64坪 |
【エントランス】 |
全日開放(24h) |
| 【駐車場】 |
無し |
【エレベーター】 |
1基 |
北参道駅から徒歩4分の好立地!フットワーク抜群!3面採光の明るく開放的な室内空間!ストレスフリーなワンフロア・ワンテナント!使いやすい環境!

| 図面 |
階数 |
面積 |
賃料(共益費込) (坪単価) |
保証金/敷金 |
礼金 |
入居可能日 |
|
|
3階 |
G 28.64坪 (94.68m2) |
487,280 (17,014) |
6ヶ月 |
2.0ヶ月 |
即日 |
|
物件番号:019618
更新日:2026/5/11
渋谷区千駄ヶ谷5-32-4
【竣工】1992/3
【階建て】地上8F
|
【最寄駅】
|
【耐震】 |
新耐震 |
| 【基準階】 |
25.15坪 |
【エントランス】 |
平日のみ開放 |
| 【駐車場】 |
無し |
【エレベーター】 |
1基 |
新宿パークサイドビルは、東京都渋谷区千駄ヶ谷5-32-4に所在する地上8階建てのオフィスビルです。1992年3月に竣工し、構造は鉄骨造(S造)で、新耐震基準に適合しています。災害対策の観点からも…

| 図面 |
階数 |
面積 |
賃料(共益費込) (坪単価) |
保証金/敷金 |
礼金 |
入居可能日 |
|
|
6階 |
G 25.15坪 (83.14m2) |
|
10ヶ月 |
(未公開) |
2026/7/1 |
|
物件番号:064191
更新日:2026/4/28
渋谷区千駄ヶ谷5-20-4
【竣工】1989/6
【階建て】地上3F 、地下1F
|
【最寄駅】
|
【耐震】 |
新耐震 |
| 【基準階】 |
50.00坪 |
【エントランス】 |
|
| 【駐車場】 |
無し |
【エレベーター】 |
無 |
代々木小佐野ビルは東京都渋谷区千駄ケ谷5-20-4に位置する、地上3階・地下1階の1989年6月に竣工したRC造のオフィスビルです。新耐震基準に適合しているため、安全性が高く長期間にわたって安定し…

| 図面 |
階数 |
面積 |
賃料(共益費込) (坪単価) |
保証金/敷金 |
礼金 |
入居可能日 |
|
|
B1-3階 |
G 175.15坪 (579.04m2) |
2,627,250 (15,000) |
10ヶ月 |
1.0ヶ月 |
即日 |
|
物件番号:047306
更新日:2026/5/13
渋谷区千駄ヶ谷3-3-32
【竣工】1989/1(改修:2022)
【階建て】地上4F 、地下1F
|
【最寄駅】
|
【耐震】 |
新耐震 |
| 【基準階】 |
|
【エントランス】 |
オートロック |
| 【駐車場】 |
有り |
【エレベーター】 |
1基 |
静かで落ち着いた街並みです!3駅3路線が利用可能で交通アクセス良好!閑静な立地です!マンションタイプですが、事務所としても利用可能です!

| 図面 |
階数 |
面積 |
賃料(共益費込) (坪単価) |
保証金/敷金 |
礼金 |
入居可能日 |
|
|
3階 |
G 29.68坪 (98.11m2) |
615,000 (20,721) |
4ヶ月 |
1.0ヶ月 |
即日 |
|
物件番号:019685
更新日:2026/5/13
渋谷区千駄ヶ谷3-7-4
【竣工】1988/1
【階建て】地上5F 、地下1F
|
【最寄駅】
|
【耐震】 |
新耐震 |
| 【基準階】 |
34.24坪 |
【エントランス】 |
全日開放(制限有) |
| 【駐車場】 |
無し |
【エレベーター】 |
1基 |
周辺は静かで落ち着いた街並みです!半円型のお洒落なエントランスが特徴的です!個別空調やOAフロアなどの設備が充実しています!

| 図面 |
階数 |
面積 |
賃料(共益費込) (坪単価) |
保証金/敷金 |
礼金 |
入居可能日 |
|
|
4階 |
G 29.07坪 (96.11m2) |
608,000 (20,915) |
6ヶ月 |
1.0ヶ月 |
即日 |
|
物件番号:019369
更新日:2026/4/17
渋谷区千駄ヶ谷1-7-8
【竣工】1988/1
【階建て】地上3F 、地下1F
|
【最寄駅】
|
【耐震】 |
新耐震 |
| 【基準階】 |
70.36坪 |
【エントランス】 |
オートロック |
| 【駐車場】 |
無し |
【エレベーター】 |
1基 |
千駄ヶ谷尾澤ビルは、東京都渋谷区千駄ヶ谷1-7-8に位置する地上3階・地下1階のオフィスビルです。1988年1月に竣工し、RC造で建てられています。新耐震基準に適合しており、安全性にも優れていま…

| 図面 |
階数 |
面積 |
賃料(共益費込) (坪単価) |
保証金/敷金 |
礼金 |
入居可能日 |
|
|
B1階 |
G 61.22坪 (202.40m2) |
1,150,000 (18,776) |
5ヶ月 |
1.0ヶ月 |
2026/6 予定 |
|
物件番号:019379
更新日:2026/4/6
渋谷区千駄ヶ谷4-30-3
【竣工】1986/10(改修:2018)
【階建て】地上7F 、地下1F
|
【最寄駅】
|
【耐震】 |
新耐震 |
| 【基準階】 |
113.38坪 |
【エントランス】 |
全日開放(制限有) |
| 【駐車場】 |
有り |
【エレベーター】 |
1基 |
「代々木TRビル」は、東京都渋谷区千駄ヶ谷4-30-3に位置する地上7階・地下1階建てのオフィスビルです。1986年10月に竣工された本物件は、鉄骨鉄筋コンクリート造(SRC造)で建てられており、新耐…

| 図面 |
階数 |
面積 |
賃料(共益費込) (坪単価) |
保証金/敷金 |
礼金 |
入居可能日 |
|
|
7階 |
G 78.10坪 (258.18m2) |
|
10ヶ月 |
1.0ヶ月 |
2026/10 |
|
物件番号:019679
更新日:2026/5/13
渋谷区千駄ヶ谷3-20-10
【竣工】1986/5(改修:2021)
【階建て】地上3F 、地下1F
|
【最寄駅】
|
【耐震】 |
新耐震 |
| 【基準階】 |
|
【エントランス】 |
全日開放(24h) |
| 【駐車場】 |
無し |
【エレベーター】 |
無 |
複数路線利用可能!交通アクセス良好な貸事務所!コンクリート打ちっぱなしの外観がおしゃれな物件!シンプルな形状でレイアウトのしやすい貸室!

| 図面 |
階数 |
面積 |
賃料(共益費込) (坪単価) |
保証金/敷金 |
礼金 |
入居可能日 |
|
|
NEW2-3階 |
G 34.73坪 (114.81m2) |
1,063,500 (30,622) |
4ヶ月 |
1.0ヶ月 |
相談 |
|
物件番号:019616
更新日:2026/5/12
渋谷区千駄ヶ谷5-32-7
【竣工】1986/3
【階建て】地上8F
|
【最寄駅】
|
【耐震】 |
新耐震 |
| 【基準階】 |
99.40坪 |
【エントランス】 |
平日・土開放 |
| 【駐車場】 |
有り |
【エレベーター】 |
2基 |
渋谷区千駄ケ谷5丁目にある、野村不動産南新宿ビルです。徒歩5分圏内で、JR山手線・JR中央線・JR埼京線・JR総武線等の新宿駅、JR山手線・都営大江戸線の代々木駅にアクセス可能な立地です。明治…

| 図面 |
階数 |
面積 |
賃料(共益費込) (坪単価) |
保証金/敷金 |
礼金 |
入居可能日 |
|
|
NEW1階 |
G 50.59坪 (167.24m2) |
|
12ヶ月 |
無 |
2026/10/1 |
|
物件番号:056776
更新日:2026/4/20
渋谷区千駄ヶ谷2-32-2
【竣工】1986/3
【階建て】地上5F 、地下1F
|
【最寄駅】
|
【耐震】 |
新耐震 |
| 【基準階】 |
29.61坪 |
【エントランス】 |
|
| 【駐車場】 |
無し |
【エレベーター】 |
1基 |
東京都渋谷区千駄ヶ谷2丁目に所在するリベルテ青山は、1986年3月に竣工した地上5階・地下1階建ての鉄筋コンクリート造(RC造)のオフィスビルです。新耐震基準に適合しており、地震に対して十分…

| 図面 |
階数 |
面積 |
賃料(共益費込) (坪単価) |
保証金/敷金 |
礼金 |
入居可能日 |
|
|
2階 |
G 29.61坪 (97.88m2) |
800,000 (27,018) |
無 |
無 |
即日 |
|
物件番号:078606
更新日:2026/5/8
渋谷区千駄ヶ谷3-32-5
【竣工】1985/11
【階建て】地上4F 、地下1F
|
【最寄駅】
|
【耐震】 |
新耐震 |
| 【基準階】 |
35.60坪 |
【エントランス】 |
|
| 【駐車場】 |
無し |
【エレベーター】 |
1基 |
角地に位置しているので視認性良好!ワンフロア・ワンテナントの使い勝手良好なオフィス空間!屋上には共用テラスもあるのでリフレッシュのしやすいオフィス!

| 図面 |
階数 |
面積 |
賃料(共益費込) (坪単価) |
保証金/敷金 |
礼金 |
入居可能日 |
|
|
B1階 |
G 44.90坪 (148.57m2) |
1,250,000 (27,840) |
4ヶ月 |
無 |
相談 |
|
|
NEW3階 |
G 35.62坪 (117.75m2) |
1,100,000 (30,882) |
4ヶ月 |
無 |
相談 |
|
物件番号:083930
更新日:2026/4/22
渋谷区千駄ヶ谷3-36-2
【竣工】1983/8
【階建て】地上3F 、地下1F
|
【最寄駅】
|
【耐震】 |
|
| 【基準階】 |
15.00坪 |
【エントランス】 |
|
| 【駐車場】 |
無し |
【エレベーター】 |
無 |
目の前は通り沿いのため日当たり良好です!新耐震基準で耐震性もあります!1階は物販が出来るような注文カウンターがありレイアウトに独自性を持たせられます!

| 図面 |
階数 |
面積 |
賃料(共益費込) (坪単価) |
保証金/敷金 |
礼金 |
入居可能日 |
|
|
B1-3階 |
G 46.78坪 (154.60m2) |
800,000 (17,101) |
6ヶ月 |
2.0ヶ月 |
即日 |
|
物件番号:019624
更新日:2026/4/23
渋谷区千駄ヶ谷4-29-12
【竣工】1983/3
【階建て】地上11F
|
【最寄駅】
|
【耐震】 |
|
| 【基準階】 |
|
【エントランス】 |
|
| 【駐車場】 |
無し |
【エレベーター】 |
1基 |
北参道駅から徒歩5分!JR代々木駅から徒歩6分程度の好立地!周辺は飲食店が多くお昼は困りません!管理人が常駐しておりセキュリティも安心!

| 図面 |
階数 |
面積 |
賃料(共益費込) (坪単価) |
保証金/敷金 |
礼金 |
入居可能日 |
|
|
6階 |
G 22.48坪 (74.31m2) |
318,182 (14,154) |
3ヶ月 |
1.0ヶ月 |
即日 |
|
物件番号:019527
更新日:2026/4/16
渋谷区千駄ヶ谷3-12-15
【竣工】1981/12
【階建て】地上4F
|
【最寄駅】
|
【耐震】 |
|
| 【基準階】 |
|
【エントランス】 |
|
| 【駐車場】 |
無し |
【エレベーター】 |
無 |
大通りから少し入った立地で比較的静かな環境です!複数路線が利用できるのでアクセス性抜群です!使い勝手良好な1フロア1テナントです!

| 図面 |
階数 |
面積 |
賃料(共益費込) (坪単価) |
保証金/敷金 |
礼金 |
入居可能日 |
|
|
1階 |
G 45.83坪 (151.50m2) |
1,055,000 (23,020) |
6ヶ月 |
2.0ヶ月 |
相談 |
|
物件番号:037212
更新日:2026/4/15
渋谷区千駄ヶ谷1-20-3
【竣工】1981/5(改修:2003)
【階建て】地上6F
|
【最寄駅】
|
【耐震】 |
旧耐震 |
| 【基準階】 |
98.00坪 |
【エントランス】 |
全日開放(制限有) |
| 【駐車場】 |
無し |
【エレベーター】 |
1基 |
角地に位置しているので視認性に優れています。白を基調としたスッキリと清潔感のある外観です。シンプルでレイアウトのしやすい貸室内です。

| 図面 |
階数 |
面積 |
賃料(共益費込) (坪単価) |
保証金/敷金 |
礼金 |
入居可能日 |
|
|
3階 |
G 33.42坪 (110.51m2) |
500,000 (14,962) |
(未公開) |
1.0ヶ月 |
2026/6 中旬 |
|
物件番号:067623
更新日:2026/5/8
渋谷区千駄ヶ谷1-7-4
【竣工】1978/4
【階建て】地上4F
|
【最寄駅】
|
【耐震】 |
旧耐震 |
| 【基準階】 |
25.00坪 |
【エントランス】 |
全日開放(24h) |
| 【駐車場】 |
無し |
【エレベーター】 |
無 |
複数路線が利用可能!交通アクセス抜群!お洒落なアパレルショップやカフェが並ぶエリア!1階部分は直接入口があり、荷物の搬入・搬出に便利!

| 図面 |
階数 |
面積 |
賃料(共益費込) (坪単価) |
保証金/敷金 |
礼金 |
入居可能日 |
|
|
1階 |
G 25.00坪 (82.64m2) |
460,000 (18,400) |
6ヶ月 |
2.0ヶ月 |
即日 |
|
物件番号:057598
更新日:2026/5/12
渋谷区千駄ヶ谷5-12-13
【竣工】1974/1
【階建て】地上5F
|
【最寄駅】
|
【耐震】 |
|
| 【基準階】 |
60.00坪 |
【エントランス】 |
|
| 【駐車場】 |
有り |
【エレベーター】 |
1基 |
代々木駅から徒歩5分です!新宿駅からも徒歩圏内で利便性も高いです!重厚感のある落ち着いた建物です!エントランスは明るく開放的な空間です!

| 図面 |
階数 |
面積 |
賃料(共益費込) (坪単価) |
保証金/敷金 |
礼金 |
入居可能日 |
|
|
1階 |
G 32.63坪 (107.90m2) |
750,000 (22,985) |
3ヶ月 |
無 |
2026/8 上旬 |
|
物件番号:019370
更新日:2026/4/30
渋谷区千駄ヶ谷1-7-9
【竣工】1971/12
【階建て】地上6F 、地下1F
|
【最寄駅】
|
【耐震】 |
旧耐震 |
| 【基準階】 |
27.47坪 |
【エントランス】 |
|
| 【駐車場】 |
無し |
【エレベーター】 |
1基 |
複数路線が利用可能!交通アクセス抜群です!ベージュを基調とした落ち着いた印象の外観です!機械警備でセキュリティも安心です!

| 図面 |
階数 |
面積 |
賃料(共益費込) (坪単価) |
保証金/敷金 |
礼金 |
入居可能日 |
|
|
3階 |
G 20.19坪 (66.74m2) |
270,600 (13,402) |
3ヶ月 |
2.0ヶ月 |
相談 |
|
物件番号:019423
更新日:2026/4/17
渋谷区千駄ヶ谷1-30-8
【竣工】1971/1(改修:2018)
【階建て】地上8F 、地下1F
|
【最寄駅】
|
【耐震】 |
旧耐震+補強済 or 基準OK |
| 【基準階】 |
123.43坪 |
【エントランス】 |
平日・土開放 |
| 【駐車場】 |
有り |
【エレベーター】 |
2基 |
ダヴィンチ千駄ヶ谷は、東京都渋谷区千駄ヶ谷1-30-8に位置する地上8階・地下1階のオフィスビルです。1971年1月に竣工し、SRC造で建てられています。交通アクセスは非常に良好で、JR総武線の千駄…

| 図面 |
階数 |
面積 |
賃料(共益費込) (坪単価) |
保証金/敷金 |
礼金 |
入居可能日 |
|
|
2階 |
N 100.64坪 (332.69m2) |
2,516,000 (25,000) |
8ヶ月 |
無 |
2026/4 下旬 |
|
物件番号:019447
更新日:2026/4/30
渋谷区千駄ヶ谷3-51-3
【竣工】未調査
【階建て】地上4F 、地下1F
|
【最寄駅】
|
【耐震】 |
|
| 【基準階】 |
13.00坪 |
【エントランス】 |
全日開放(24h) |
| 【駐車場】 |
有り |
【エレベーター】 |
無 |
JR・地下鉄の3駅が利用でき、交通アクセス良好です。大通りから少し入った立地で落ち着いた環境です。地下部分は駐車場となり、倉庫としてもご利用いただけます。

| 図面 |
階数 |
面積 |
賃料(共益費込) (坪単価) |
保証金/敷金 |
礼金 |
入居可能日 |
|
|
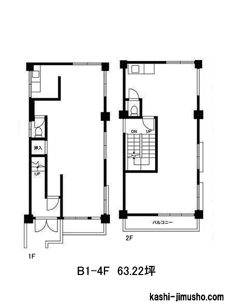
B1-4階 |
G 63.22坪 (209.00m2) |
990,000 (15,660) |
6ヶ月 |
2.0ヶ月 |
即日 |
|
非公開物件の賃料目安アイコン
8,000 円未満
8,000 円以上~1.0 万円未満
1.0 万以上~1.2 万円未満
1.2 万以上~1.4 万円未満
1.4 万以上~1.6 万円未満
1.6 万以上~2.0 万円未満
2.0 万以上~2.5 万円未満
2.5 万以上~3.0 万円未満
3.0 万円以上
未定
※取引態様:媒介
※フロア図面と現況が異なる場合は現況を優先いたします。
※貸室内部の写真・貸室からの景色に関しては、現在の募集フロアと異なる場合がございます。