神宮前5丁目(渋谷区)の貸事務所・賃貸オフィス一覧
【2026/04/15更新】神宮前5丁目(渋谷区)の貸事務所について
表参道交差点が近い神宮前5丁目エリア
神宮前5丁目エリアは、表参道駅から徒歩すぐの好立地に位置し、商業・ファッション・クリエイティブ文化が集まるビジネスエリアです。東京メトロ銀座線・千代田線・半蔵門線「表参道駅」、千代田線・副都心線「明治神宮前駅」が利用でき、都心各方面へのアクセスも良好です。エリア内には「表参道交差点」や有名ブランドの路面店が並び、アパレル・デザイン・美容・IT・スタートアップ企業に人気があります。低層オフィスやデザイナーズ物件が多く、クリエイティブ系、士業事務所、コンサルタントなど多様な業種に適応可能。洗練された街並みと利便性を兼ね備えた神宮前5丁目エリアは、事業拠点としても高い人気を誇ります。
神宮前5丁目(渋谷区)の物件は、1棟(1件) 掲載されています。
神宮前5丁目周辺の貸事務所マップ
神宮前5丁目周辺マップです。物件のある位置にビルが表示されていますので、クリックして詳細情報をご覧ください。
ビルアイコンについて
マップ上に表示されているビルアイコンは、そのビルの最小坪単価に応じて色分けされています。
- 8,000 円未満
- 8,000 円以上~1.0 万円未満
- 1.0 万以上~1.2 万円未満
- 1.2 万以上~1.4 万円未満
- 1.4 万以上~1.6 万円未満
- 1.6 万以上~2.0 万円未満
- 2.0 万以上~2.5 万円未満
- 2.5 万以上~3.0 万円未満
- 3.0 万円以上
- 未定
神宮前5丁目周辺の地区を探す
神宮前5丁目周辺の貸事務所一覧
総数:1棟(1件)
- 1
※取引態様:媒介
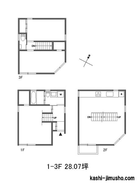
※フロア図面と現況が異なる場合は現況を優先いたします。
※貸室内部の写真・貸室からの景色に関しては、現在の募集フロアと異なる場合がございます。
総数:1棟(1件)
- 1

