西新宿4丁目(60~80坪 新宿区)の貸事務所・賃貸オフィス一覧
【2026/04/25更新】
西新宿4丁目(新宿区)の貸事務所について
静けさと利便性が共存する西新宿4丁目エリア
西新宿4丁目エリアは、都営大江戸線「西新宿五丁目駅」や京王新線「初台駅」からアクセス可能で、落ち着いた雰囲気が広がるエリアです。高層オフィスが立ち並ぶ西新宿の中心部から一歩離れた立地にあり、静かで集中しやすい執務環境を求める企業に適しています。中小規模のオフィスやリノベーション物件も多く、スタートアップや士業、クリエイティブ系など多様な業種に対応可能。新宿中央公園や生活利便施設も近く、働きやすさにも配慮されたロケーションです。西新宿4丁目エリアは、利便性と落ち着きを重視する企業におすすめのオフィスエリアです。
西新宿4丁目(新宿区)の物件は、4棟(5件) 掲載されています。
お探しの住所では現在、物件がございません。近隣エリアの物件を掲載しています。
西新宿4丁目周辺の貸事務所マップ
西新宿4丁目周辺マップです。物件のある位置にビルが表示されていますので、クリックして詳細情報をご覧ください。
ビルアイコンについて
マップ上に表示されているビルアイコンは、そのビルの最小坪単価に応じて色分けされています。
8,000 円未満
8,000 円以上~1.0 万円未満
1.0 万以上~1.2 万円未満
1.2 万以上~1.4 万円未満
1.4 万以上~1.6 万円未満
1.6 万以上~2.0 万円未満
2.0 万以上~2.5 万円未満
2.5 万以上~3.0 万円未満
3.0 万円以上
未定
西新宿4丁目周辺の地区を探す
西新宿4丁目周辺の貸事務所一覧
物件番号:056936
更新日:2026/4/7
新宿区西新宿8-4-2
【竣工】2010/3
【階建て】地上9F 、地下1F
|
【最寄駅】
|
【耐震】 |
新耐震+免震 |
| 【基準階】 |
145.54坪 |
【エントランス】 |
全日開放(制限有) |
| 【駐車場】 |
- |
【エレベーター】 |
4基 |
野村不動産西新宿ビルは、新宿区西新宿8-4-2に位置するスタイリッシュなハイグレードオフィスビルです。最寄り駅は東京メトロ丸ノ内線の西新宿駅で、地下通路で直結しており、アクセスが非常に便…

| 図面 |
階数 |
面積 |
賃料(共益費込) (坪単価) |
保証金/敷金 |
礼金 |
入居可能日 |
|
|
5階 |
N 68.23坪 (225.55m2) |
|
(未公開) |
無 |
2026/6/1 |
|
|
5階 |
N 77.31坪 (255.57m2) |
|
(未公開) |
無 |
2026/6/1 |
|
物件番号:043898
更新日:2026/4/24
渋谷区代々木2-11-17
【竣工】2005/11
【階建て】地上9F 、地下2F
|
【最寄駅】
|
【耐震】 |
新耐震 |
| 【基準階】 |
161.67坪 |
【エントランス】 |
全日開放(制限有) |
| 【駐車場】 |
- |
【エレベーター】 |
2基 |
ラウンドクロス新宿ビルは、東京都渋谷区代々木2-11-17に位置する、地上9階建て、地下2階のオフィスビルです。2005年11月に竣工したSRC造の建物で、新耐震基準に対応しており、地震対策の面でも…

| 図面 |
階数 |
面積 |
賃料(共益費込) (坪単価) |
保証金/敷金 |
礼金 |
入居可能日 |
|
|
NEW5階 |
N 80.48坪 (266.05m2) |
|
12ヶ月 |
無 |
2026/6/16 |
|
物件番号:032276
更新日:2026/4/13
新宿区西新宿3-5-1
【竣工】1994/4(改修:2022)
【階建て】地上10F 、地下2F
|
【最寄駅】
|
【耐震】 |
新耐震 |
| 【基準階】 |
72.12坪 |
【エントランス】 |
全日開放(制限有) |
| 【駐車場】 |
- |
【エレベーター】 |
2基 |
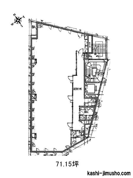
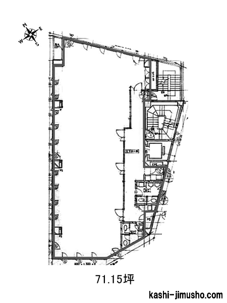
新宿区西新宿3-5-1にある、新宿セントランドビルです。最寄り駅は、都営大江戸線の都庁前駅です。徒歩3分圏内で、アクセス可能な好立地です。周辺には、東京都庁や新宿中央公園がございます。公…

| 図面 |
階数 |
面積 |
賃料(共益費込) (坪単価) |
保証金/敷金 |
礼金 |
入居可能日 |
|
|
7階 |
G 72.12坪 (238.41m2) |
|
(未公開) |
無 |
即日 |
|
物件番号:032237
更新日:2026/4/13
新宿区西新宿3-2-26
【竣工】1984/9(改修:2005)
【階建て】地上9F
|
【最寄駅】
|
【耐震】 |
新耐震 |
| 【基準階】 |
77.17坪 |
【エントランス】 |
全日開放(制限有) |
| 【駐車場】 |
- |
【エレベーター】 |
1基 |
立花新宿ビルは、新宿区西新宿3-2-26にある物件です。徒歩5分圏内で都営大江戸線の都庁前駅、徒歩7分圏内で都営新宿線の新宿駅、徒歩9分圏内でJR各線の新宿駅が利用可能となっています。複数路線…

| 図面 |
階数 |
面積 |
賃料(共益費込) (坪単価) |
保証金/敷金 |
礼金 |
入居可能日 |
|
|
9階 |
G 77.17坪 (255.13m2) |
|
(未公開) |
無 |
2026/8 中旬 |
|
物件番号:032283
更新日:2026/4/7
新宿区西新宿1-26-2
【竣工】1978/6(改修:2006)
【階建て】地上50F 、地下5F
|
【最寄駅】
|
【耐震】 |
旧耐震+補強済 or 基準OK |
| 【基準階】 |
381.86坪 |
【エントランス】 |
|
| 【駐車場】 |
- |
【エレベーター】 |
26基 |
新宿野村ビルは、東京都新宿区西新宿1に位置する高層ビルで、日本を代表するオフィスビルの一つです。1978年に完成し、高さは約210メートル、地上48階、地下4階の構造を持っています。 特徴的な…

| 図面 |
階数 |
面積 |
賃料(共益費込) (坪単価) |
保証金/敷金 |
礼金 |
入居可能日 |
|
|
9階 |
N 72.57坪 (239.90m2) |
|
12ヶ月 |
無 |
2027/9/1 |
|
非公開物件の賃料目安アイコン
8,000 円未満
8,000 円以上~1.0 万円未満
1.0 万以上~1.2 万円未満
1.2 万以上~1.4 万円未満
1.4 万以上~1.6 万円未満
1.6 万以上~2.0 万円未満
2.0 万以上~2.5 万円未満
2.5 万以上~3.0 万円未満
3.0 万円以上
未定
※取引態様:媒介
※フロア図面と現況が異なる場合は現況を優先いたします。
※貸室内部の写真・貸室からの景色に関しては、現在の募集フロアと異なる場合がございます。