代々木(渋谷区)の貸事務所・賃貸オフィス一覧
【2026/01/19更新】
代々木(渋谷区)の貸事務所について
交通利便性が高い代々木エリア
代々木エリアは、複数路線が利用可能な高い交通利便性が魅力のビジネスエリアです。JR山手線・中央線・総武線「代々木駅」、都営大江戸線「代々木駅」、東京メトロ副都心線「北参道駅」などが利用でき、新宿駅や渋谷駅へのアクセスもスムーズです。エリア内は大規模オフィスビルから中小規模の事務所まで幅広く揃い、IT企業、教育関連、コンサルタント、士業事務所、クリエイティブ系企業など様々な業種に適しています。駅周辺には飲食店や商業施設も点在し、利便性と落ち着きのバランスが取れた執務環境が整っています。代々木エリアは、アクセス重視の企業にとって安定したビジネス拠点として人気を集めています。
代々木(渋谷区)の物件は、27棟(37件) 掲載されています。
代々木周辺の貸事務所マップ
代々木周辺マップです。物件のある位置にビルが表示されていますので、クリックして詳細情報をご覧ください。
ビルアイコンについて
マップ上に表示されているビルアイコンは、そのビルの最小坪単価に応じて色分けされています。
- 8,000 円未満
- 8,000 円以上~1.0 万円未満
- 1.0 万以上~1.2 万円未満
- 1.2 万以上~1.4 万円未満
- 1.4 万以上~1.6 万円未満
- 1.6 万以上~2.0 万円未満
- 2.0 万以上~2.5 万円未満
- 2.5 万以上~3.0 万円未満
- 3.0 万円以上
- 未定
代々木周辺の地区を探す
代々木周辺の貸事務所一覧
物件番号:082497
更新日:2026/1/15
渋谷区代々木2-5-4
【竣工】2024/10
【階建て】地上10F 、地下1F
|
【最寄駅】
|
【耐震】 |
新耐震 |
| 【基準階】 |
162.60坪 |
【エントランス】 |
全日開放(制限有) |
| 【駐車場】 |
有り |
【エレベーター】 |
3基 |
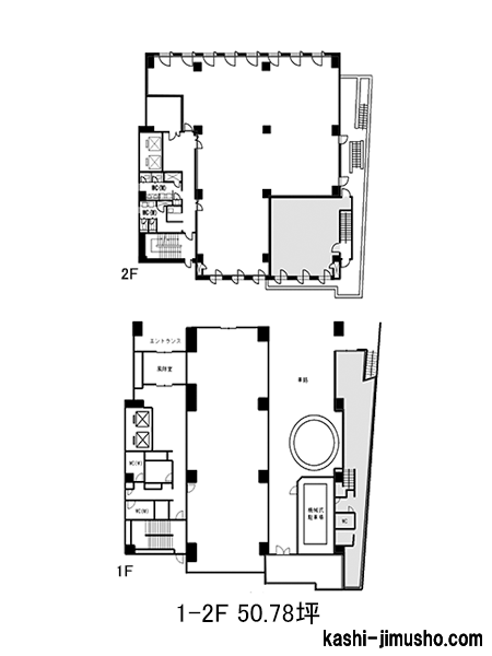
榊原記念ビルディングは、東京都渋谷区代々木2丁目に位置する最新鋭のオフィスビルです。2024年10月に竣工このビルは、京王線、小田急小田原線、東京メトロ丸ノ内線、都営大江戸線、都営新宿線「…

| 図面 |
階数 |
面積 |
賃料(共益費込) (坪単価) |
保証金/敷金 |
礼金 |
入居可能日 |
|
|
7階 |
N 86.52坪 (286.02m2) |
|
12ヶ月 |
無 |
即日 |
|
物件番号:076085
更新日:2025/12/22
渋谷区代々木1-51-7
【竣工】2021/4
【階建て】地上4F
|
【最寄駅】
|
【耐震】 |
新耐震 |
| 【基準階】 |
22.54坪 |
【エントランス】 |
全日開放(24h) |
| 【駐車場】 |
無し |
【エレベーター】 |
無 |
The Ceaser Place 代々木は、東京都渋谷区代々木1-51-7に位置する地上4階建てのRC造(鉄筋コンクリート造)オフィスビルです。2021年4月に竣工した物件で、新耐震基準に適合しており、安全性と耐…

| 図面 |
階数 |
面積 |
賃料(共益費込) (坪単価) |
保証金/敷金 |
礼金 |
入居可能日 |
|
|
3階 |
G 22.54坪 (74.50m2) |
599,500 (26,597) |
1,635,000 (3ヶ月) |
1.0ヶ月 |
即日 |
|
物件番号:053356
更新日:2026/1/19
渋谷区代々木3-23-4
【竣工】2007/11
【階建て】地上11F
|
【最寄駅】
|
【耐震】 |
新耐震 |
| 【基準階】 |
25.76坪 |
【エントランス】 |
全日開放(制限有) |
| 【駐車場】 |
無し |
【エレベーター】 |
1基 |
VORT西新宿Ⅱは、西新宿エリアに位置し、新宿駅や都庁前駅が利用可能な便利な場所にあります。住所は東京都渋谷区代々木3-23-4です。都営大江戸線の都庁前駅からは徒歩5分圏内、JR山手線や中央線…

| 図面 |
階数 |
面積 |
賃料(共益費込) (坪単価) |
保証金/敷金 |
礼金 |
入居可能日 |
|
|
NEW7階 |
G 25.76坪 (85.19m2) |
|
5ヶ月 |
1.0ヶ月 |
2026/8/1 |
|
|
9階 |
G 25.76坪 (85.16m2) |
|
5ヶ月 |
1.0ヶ月 |
2026/6 上旬 |
|
物件番号:043898
更新日:2026/1/8
渋谷区代々木2-11-17
【竣工】2005/11
【階建て】地上9F 、地下2F
|
【最寄駅】
|
【耐震】 |
新耐震 |
| 【基準階】 |
161.67坪 |
【エントランス】 |
全日開放(制限有) |
| 【駐車場】 |
有り |
【エレベーター】 |
2基 |
ラウンドクロス新宿ビルは、東京都渋谷区代々木2-11-17に位置する、地上9階建て、地下2階のオフィスビルです。2005年11月に竣工したSRC造の建物で、新耐震基準に対応しており、地震対策の面でも…

| 図面 |
階数 |
面積 |
賃料(共益費込) (坪単価) |
保証金/敷金 |
礼金 |
入居可能日 |
|
|
5階 |
N 161.68坪 (534.48m2) |
|
12ヶ月 |
無 |
2026/6/16 |
|
物件番号:077576
更新日:2026/1/19
渋谷区代々木1-44-4
【竣工】2004/4
【階建て】地上4F
|
【最寄駅】
|
【耐震】 |
新耐震 |
| 【基準階】 |
|
【エントランス】 |
|
| 【駐車場】 |
無し |
【エレベーター】 |
無 |
代々木1丁目1棟貸しビルは東京都渋谷区代々木1-44-4に位置する、地上4階建ての2004年4月に竣工したRC造のオフィスビルです。新耐震基準にも適合しているため、安全性の高い建物として安心して利…

| 図面 |
階数 |
面積 |
賃料(共益費込) (坪単価) |
保証金/敷金 |
礼金 |
入居可能日 |
|
|
1-4階 |
G 42.56坪 (140.72m2) |
800,000 (18,797) |
2,400,000 (3ヶ月) |
1.0ヶ月 |
相談 |
|
物件番号:019051
更新日:2026/1/13
渋谷区代々木2-9-5
【竣工】2000/1
【階建て】地上10F 、地下1F
|
【最寄駅】
|
【耐震】 |
新耐震 |
| 【基準階】 |
20.05坪 |
【エントランス】 |
全日開放(24h) |
| 【駐車場】 |
無し |
【エレベーター】 |
1基 |
FPG links SHINJUKU Terraceは、東京都渋谷区代々木2-9-5に位置する地上10階・地下1階建てのSRC造(鉄骨鉄筋コンクリート造)オフィスビルです。2000年1月に竣工し、新耐震基準に適合した安全性…

| 図面 |
階数 |
面積 |
賃料(共益費込) (坪単価) |
保証金/敷金 |
礼金 |
入居可能日 |
|
|
3階 |
G 20.05坪 (66.29m2) |
701,750 (35,000) |
7,017,500 (10ヶ月) |
1.0ヶ月 |
2026/3 上旬 |
|
|
6階 |
G 20.05坪 (66.29m2) |
701,750 (35,000) |
7,017,500 (10ヶ月) |
1.0ヶ月 |
即日 |
|
物件番号:064533
更新日:2026/1/19
渋谷区代々木1-30-7
【竣工】1998/1
【階建て】地上7F 、地下2F
|
【最寄駅】
|
【耐震】 |
新耐震 |
| 【基準階】 |
140.00坪 |
【エントランス】 |
全日開放(制限有) |
| 【駐車場】 |
無し |
【エレベーター】 |
1基 |
代々木駅至近の好立地に位置する「ヤマノ24ビル」は、渋谷区代々木1-30-7にある賃貸オフィスビルです。JR山手線・総武線・都営大江戸線の代々木駅から徒歩2分、小田急小田原線の南新宿駅や東京メ…

| 図面 |
階数 |
面積 |
賃料(共益費込) (坪単価) |
保証金/敷金 |
礼金 |
入居可能日 |
|
|
1階 |
G 55.58坪 (183.71m2) |
|
(未公開) |
1.0ヶ月 |
即日 |
|
物件番号:018987
更新日:2025/12/22
渋谷区代々木4-33-10
【竣工】1993/9
【階建て】地上6F 、地下3F
|
【最寄駅】
|
【耐震】 |
新耐震 |
| 【基準階】 |
331.96坪 |
【エントランス】 |
全日開放(制限有) |
| 【駐車場】 |
有り |
【エレベーター】 |
3基 |
西新宿初台エリア、初台駅から徒歩3分の賃貸オフィスビルです。トーシンビルは、東京都渋谷区代々木4-33-10に位置する賃貸オフィスビルです。1993年に竣工した地上6階、地下3階の骨鉄筋コンクリ…

| 図面 |
階数 |
面積 |
賃料(共益費込) (坪単価) |
保証金/敷金 |
礼金 |
入居可能日 |
|
|
3階 |
N 175.75坪 (581.00m2) |
|
6ヶ月 |
無 |
相談 |
|
|
3階 |
N 201.16坪 (665.00m2) |
|
6ヶ月 |
無 |
相談 |
|
|
3階 |
N 379.71坪 (1255.25m2) |
7,594,200 (20,000) |
45,565,200 (6ヶ月) |
無 |
即日 |
|
物件番号:019052
更新日:2025/12/10
渋谷区代々木2-10-8
【竣工】1992/8(改修:2011)
【階建て】地上9F 、地下1F
|
【最寄駅】
|
【耐震】 |
新耐震 |
| 【基準階】 |
97.02坪 |
【エントランス】 |
全日開放(制限有) |
| 【駐車場】 |
有り |
【エレベーター】 |
2基 |
新宿区代々木に位置する「ケイアイ新宿ビル」は、甲州街道沿いに立地する視認性の高い賃貸オフィスビルです。住所は渋谷区代々木2-10-8で、交通利便性に優れた好立地が魅力です。都営大江戸線・…

| 図面 |
階数 |
面積 |
賃料(共益費込) (坪単価) |
保証金/敷金 |
礼金 |
入居可能日 |
|
|
4階 |
G 97.02坪 (320.73m2) |
|
12ヶ月 |
無 |
2026/7 |
|
物件番号:019021
更新日:2026/1/19
渋谷区代々木1-6-12
【竣工】1992/2(改修:2015)
【階建て】地上5F 、地下1F
|
【最寄駅】
|
【耐震】 |
新耐震 |
| 【基準階】 |
91.20坪 |
【エントランス】 |
オートロック |
| 【駐車場】 |
有り |
【エレベーター】 |
1基 |
MFビルは、東京都渋谷区代々木1丁目に位置するオフィスビルです。1992年2月に竣工した地上5階・地下1階建ての鉄筋コンクリート造(RC造)で、新耐震基準に適合しており、耐震性に優れた安全な設…

| 図面 |
階数 |
面積 |
賃料(共益費込) (坪単価) |
保証金/敷金 |
礼金 |
入居可能日 |
|
|
2階 |
G 91.20坪 (301.49m2) |
2,280,000 (25,000) |
18,240,000 (8ヶ月) |
無 |
即日 |
|
|
3階 |
G 89.00坪 (294.21m2) |
2,225,000 (25,000) |
17,800,000 (8ヶ月) |
無 |
即日 |
|
物件番号:018989
更新日:2026/1/16
渋谷区代々木2-22-17
【竣工】1991/10
【階建て】地上5F
|
【最寄駅】
|
【耐震】 |
新耐震 |
| 【基準階】 |
34.00坪 |
【エントランス】 |
全日開放(制限有) |
| 【駐車場】 |
無し |
【エレベーター】 |
1基 |
大通りから1本奥に入っており、周辺は閑静な環境です!ワンフロア・ワンテナントの独立性が高い貸室です!この規模では希少な室内男女別トイレを完備しています!

| 図面 |
階数 |
面積 |
賃料(共益費込) (坪単価) |
保証金/敷金 |
礼金 |
入居可能日 |
|
|
NEW2階 |
G 34.00坪 (112.40m2) |
510,000 (15,000) |
2,448,000 (6ヶ月) |
無 |
2026/4/1 |
|
物件番号:019012
更新日:2025/12/24
渋谷区代々木1-21-10
【竣工】1991/9(改修:2008)
【階建て】地上9F
|
【最寄駅】
|
【耐震】 |
新耐震 |
| 【基準階】 |
70.84坪 |
【エントランス】 |
平日のみ開放 |
| 【駐車場】 |
無し |
【エレベーター】 |
1基 |
インターパーク代々木は、東京都渋谷区代々木1-21-10に位置する地上9階建てのオフィスビルです。1991年9月に竣工し、鉄骨鉄筋コンクリート造(SRC造)の堅固な構造を持ち、新耐震基準を満たして…

| 図面 |
階数 |
面積 |
賃料(共益費込) (坪単価) |
保証金/敷金 |
礼金 |
入居可能日 |
|
|
7階 |
G 70.84坪 (234.18m2) |
1,487,640 (21,000) |
9,917,600 (8ヶ月) |
無 |
2026/5/1 |
|
物件番号:019178
更新日:2026/1/13
渋谷区代々木1-32-11
【竣工】1989/12
【階建て】地上9F
|
【最寄駅】
|
【耐震】 |
新耐震 |
| 【基準階】 |
42.22坪 |
【エントランス】 |
全日開放(制限有) |
| 【駐車場】 |
無し |
【エレベーター】 |
1基 |
駅前ならではの利便性と、使い勝手の良いオフィス環境を兼ね備えた「Kビル」。JR山手線・総武線、都営大江戸線の代々木駅から徒歩1分という優れた立地が特長で、社員の通勤はもちろん、来訪者の…

| 図面 |
階数 |
面積 |
賃料(共益費込) (坪単価) |
保証金/敷金 |
礼金 |
入居可能日 |
|
|
8階 |
G 41.37坪 (136.76m2) |
|
(未公開) |
無 |
2026/4/22 |
|
物件番号:019020
更新日:2026/1/5
渋谷区代々木1-31-12
【竣工】1989/1
【階建て】地上6F 、地下1F
|
【最寄駅】
|
【耐震】 |
新耐震 |
| 【基準階】 |
30.34坪 |
【エントランス】 |
全日開放(24h) |
| 【駐車場】 |
無し |
【エレベーター】 |
1基 |
日綜代々木ビルは東京都渋谷区代々木1-31-12に位置する、地上6階・地下1階の1989年1月に竣工したSRC造のオフィスビルです。新耐震基準に適合している為、安全性・耐久性ともに優れた建物です。交…

| 図面 |
階数 |
面積 |
賃料(共益費込) (坪単価) |
保証金/敷金 |
礼金 |
入居可能日 |
|
|
2階 |
G 28.80坪 (95.21m2) |
700,000 (24,306) |
3,500,000 (5ヶ月) |
無 |
即日 |
|
物件番号:019041
更新日:2026/1/6
渋谷区代々木2-13-4
【竣工】1988/8
【階建て】地上9F
|
【最寄駅】
|
【耐震】 |
新耐震 |
| 【基準階】 |
71.29坪 |
【エントランス】 |
全日開放(制限有) |
| 【駐車場】 |
無し |
【エレベーター】 |
2基 |
都営新宿線・新宿駅地下鉄出口から徒歩1分圏内。甲州街道沿いの貸事務所。新中央ビルは渋谷区代々木2丁目。最寄り駅は新宿駅。都営新宿線 新宿駅、京王新線 新線新宿駅の地下鉄出口より徒歩1分圏…

| 図面 |
階数 |
面積 |
賃料(共益費込) (坪単価) |
保証金/敷金 |
礼金 |
入居可能日 |
|
|
4階 |
N 48.53坪 (160.43m2) |
|
12ヶ月 |
無 |
即日 |
|
物件番号:057161
更新日:2026/1/19
渋谷区代々木2-16-2
【竣工】1988/4
【階建て】地上6F
|
【最寄駅】
|
【耐震】 |
新耐震 |
| 【基準階】 |
43.32坪 |
【エントランス】 |
平日・土開放 |
| 【駐車場】 |
無し |
【エレベーター】 |
1基 |
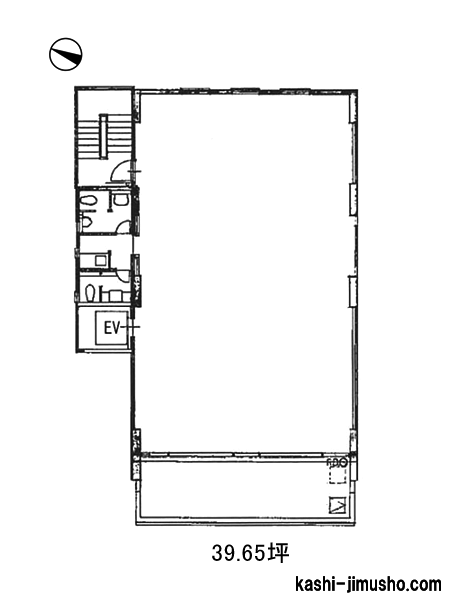
「甲田ビル」は、東京都渋谷区代々木2丁目に位置する、地上6階建てのオフィスビルです。1988年4月に竣工し、鉄骨鉄筋コンクリート造(SRC造)で建てられています。新耐震基準に適合しており、地…

| 図面 |
階数 |
面積 |
賃料(共益費込) (坪単価) |
保証金/敷金 |
礼金 |
入居可能日 |
|
|
3階 |
G 43.32坪 (143.21m2) |
953,040 (22,000) |
6,064,800 (7ヶ月) |
無 |
即日 |
|
|
4階 |
G 39.65坪 (131.07m2) |
872,300 (22,000) |
5,551,000 (7ヶ月) |
無 |
即日 |
|
物件番号:019040
更新日:2026/1/13
渋谷区代々木4-31-5
【竣工】1987/3
【階建て】地上9F 、地下1F
|
【最寄駅】
|
【耐震】 |
新耐震 |
| 【基準階】 |
125.46坪 |
【エントランス】 |
平日・土開放 |
| 【駐車場】 |
有り |
【エレベーター】 |
2基 |
甲州街道に面した視認性の高いオフィスビルです。西新宿松屋ビルは、東京都渋谷区代々木4-31-5に位置するオフィスビルです。建物は地上9階地下1階を含む鉄骨鉄筋コンクリート造で1987年に竣工さ…

| 図面 |
階数 |
面積 |
賃料(共益費込) (坪単価) |
保証金/敷金 |
礼金 |
入居可能日 |
|
|
1-2階 |
G 40.46坪 (133.75m2) |
|
12ヶ月 |
無 |
2026/1/17 |
|
|
2階 |
N 104.70坪 (346.12m2) |
|
12ヶ月 |
無 |
2026/1/17 |
|
物件番号:019036
更新日:2026/1/8
渋谷区代々木1-57-1
【竣工】1986
【階建て】地上8F
|
【最寄駅】
|
【耐震】 |
新耐震 |
| 【基準階】 |
83.92坪 |
【エントランス】 |
全日開放(24h) |
| 【駐車場】 |
有り |
【エレベーター】 |
2基 |
代々木センタービルは、東京都渋谷区代々木1-57-1に位置する地上8階建てのオフィスビルです。1986年に竣工し、鉄筋コンクリート造(RC造)によって建設されています。新耐震基準に適合した設計と…

| 図面 |
階数 |
面積 |
賃料(共益費込) (坪単価) |
保証金/敷金 |
礼金 |
入居可能日 |
|
|
1階 |
G 46.14坪 (152.53m2) |
1,291,920 (28,000) |
10,335,360 (8ヶ月) |
無 |
相談 |
|
|
7階 |
G 83.92坪 (277.42m2) |
2,098,000 (25,000) |
16,784,000 (8ヶ月) |
無 |
即日 |
|
|
8階 |
G 83.92坪 (277.42m2) |
2,098,000 (25,000) |
16,784,000 (8ヶ月) |
無 |
即日 |
|
物件番号:019119
更新日:2026/1/16
渋谷区代々木2-21-11
【竣工】1985/4
【階建て】地上5F 、地下1F
|
【最寄駅】
|
【耐震】 |
新耐震 |
| 【基準階】 |
71.00坪 |
【エントランス】 |
オートロック |
| 【駐車場】 |
無し |
【エレベーター】 |
1基 |
南新宿駅から徒歩5分!代々木駅からも徒歩圏内!緑の多い閑静な立地にある貸事務所!SOHOも相談可能な使い勝手良好な物件!

| 図面 |
階数 |
面積 |
賃料(共益費込) (坪単価) |
保証金/敷金 |
礼金 |
入居可能日 |
|
|
NEW5階 |
G 31.68坪 (104.74m2) |
540,000 (17,046) |
960,000 (2ヶ月) |
1.0ヶ月 |
即日 |
|
物件番号:044239
更新日:2026/1/19
渋谷区代々木1-21-12
【竣工】1984/12(改修:2012)
【階建て】地上5F
|
【最寄駅】
|
【耐震】 |
新耐震 |
| 【基準階】 |
47.49坪 |
【エントランス】 |
|
| 【駐車場】 |
無し |
【エレベーター】 |
2基 |
ヤマノ26ビルは、東京都渋谷区代々木1丁目に建つ地上5階建ての賃貸オフィスビルです。1984年12月に竣工し、鉄筋コンクリート造(RC造)による堅牢な構造で設計されています。新耐震基準に適合し…

| 図面 |
階数 |
面積 |
賃料(共益費込) (坪単価) |
保証金/敷金 |
礼金 |
入居可能日 |
|
|
2階 |
G 21.87坪 (72.29m2) |
|
6ヶ月 |
1.0ヶ月 |
即日 |
|
物件番号:019009
更新日:2026/1/19
渋谷区代々木3-26-2
【竣工】1984/10
【階建て】地上10F 、地下1F
|
【最寄駅】
|
【耐震】 |
新耐震 |
| 【基準階】 |
43.23坪 |
【エントランス】 |
全日開放(制限有) |
| 【駐車場】 |
無し |
【エレベーター】 |
1基 |
新宿カメヤビルは、東京都渋谷区代々木3丁目に位置するオフィスビルで、1984年10月に竣工しました。京王新線「初台駅」から徒歩7分、小田急小田原線「南新宿駅」から徒歩8分、都営大江戸線「都庁…

| 図面 |
階数 |
面積 |
賃料(共益費込) (坪単価) |
保証金/敷金 |
礼金 |
入居可能日 |
|
|
5階 |
G 43.23坪 (142.91m2) |
691,680 (16,000) |
3,371,940 (6ヶ月) |
無 |
即日 |
|
|
8階 |
G 43.23坪 (142.91m2) |
691,680 (16,000) |
3,371,940 (6ヶ月) |
無 |
即日 |
|
物件番号:019087
更新日:2026/1/15
渋谷区代々木1-55-14
【竣工】1982/10(改修:2011)
【階建て】地上13F 、地下1F
|
【最寄駅】
|
【耐震】 |
旧耐震 |
| 【基準階】 |
90.32坪 |
【エントランス】 |
オートロック |
| 【駐車場】 |
無し |
【エレベーター】 |
1基 |
セントヒルズ代々木ビルは東京都渋谷区代々木1-55-14に位置する、地上13階・地下1階の1982年10月に竣工したSRC造のオフィスビルです。鉄骨鉄筋コンクリート造ならではの耐震性を備え、長期にわた…

| 図面 |
階数 |
面積 |
賃料(共益費込) (坪単価) |
保証金/敷金 |
礼金 |
入居可能日 |
|
|
2階 |
G 87.65坪 (289.76m2) |
2,000,000 (22,818) |
18,000,000 (10ヶ月) |
1.0ヶ月 |
相談 |
|
物件番号:019197
更新日:2026/1/19
渋谷区代々木1-57-4
【竣工】1979/9
【階建て】地上10F
|
【最寄駅】
|
【耐震】 |
旧耐震 |
| 【基準階】 |
63.12坪 |
【エントランス】 |
全日開放(24h) |
| 【駐車場】 |
無し |
【エレベーター】 |
無 |
「ドルミ第2代々木」は、東京都渋谷区代々木1-57-4に位置する地上10階建てのオフィスビルです。1979年9月に竣工された本物件は、鉄骨鉄筋コンクリート造(SRC造)によって建てられています。JR山…

| 図面 |
階数 |
面積 |
賃料(共益費込) (坪単価) |
保証金/敷金 |
礼金 |
入居可能日 |
|
|
3階 |
G 56.40坪 (186.45m2) |
1,522,800 (27,000) |
10,659,600 (7ヶ月) |
無 |
即日 |
|
物件番号:019241
更新日:2026/1/14
渋谷区代々木2-21-10
【竣工】1978/10(改修:2009)
【階建て】地上7F
|
【最寄駅】
|
【耐震】 |
旧耐震 |
| 【基準階】 |
41.24坪 |
【エントランス】 |
全日開放(24h) |
| 【駐車場】 |
有り |
【エレベーター】 |
1基 |
「代々木パレス」は、東京都渋谷区代々木2丁目に位置する地上7階建てのオフィスビルです。1978年10月に竣工し、鉄筋コンクリート造(RC造)で建てられています。本物件の大きな魅力のひとつは、…

| 図面 |
階数 |
面積 |
賃料(共益費込) (坪単価) |
保証金/敷金 |
礼金 |
入居可能日 |
|
|
3階 |
G 41.24坪 (136.33m2) |
659,680 (15,997) |
3,463,320 (6ヶ月) |
無 |
即日 |
|
物件番号:019125
更新日:2026/1/6
渋谷区代々木1-40-12
【竣工】1977/7
【階建て】地上5F 、地下1F
|
【最寄駅】
|
【耐震】 |
旧耐震 |
| 【基準階】 |
|
【エントランス】 |
|
| 【駐車場】 |
- |
【エレベーター】 |
未調査 |
代々木駅・南新宿駅から徒歩3分の立地です!ターミナル駅の新宿駅からも徒歩10分で徒歩圏内です!近隣には飲食店なども多く利便性も高いです!

| 図面 |
階数 |
面積 |
賃料(共益費込) (坪単価) |
保証金/敷金 |
礼金 |
入居可能日 |
|
|
1階 |
G 59.19坪 (195.70m2) |
1,613,637 (27,262) |
4,090,911 (3ヶ月) |
2.0ヶ月 |
相談 |
|
物件番号:019102
更新日:2026/1/14
渋谷区代々木1-19-12
【竣工】1974/1
【階建て】地上5F
|
【最寄駅】
|
【耐震】 |
旧耐震 |
| 【基準階】 |
|
【エントランス】 |
全日開放(制限有) |
| 【駐車場】 |
有り |
【エレベーター】 |
1基 |
新代々木ビルは、東京都渋谷区代々木1丁目に位置するオフィスビルで、利便性と機能性を兼ね備えた物件です。交通アクセスに優れており、JR山手線、総武線、都営大江戸線の「代々木駅」から徒歩4…

| 図面 |
階数 |
面積 |
賃料(共益費込) (坪単価) |
保証金/敷金 |
礼金 |
入居可能日 |
|
|
4階 |
G 22.00坪 (72.72m2) |
429,000 (19,500) |
1,408,000 (4ヶ月) |
無 |
即日 |
|
物件番号:044821
更新日:2026/1/5
渋谷区代々木4-59-3
【竣工】1971/4
【階建て】地上11F 、地下1F
|
【最寄駅】
|
【耐震】 |
旧耐震 |
| 【基準階】 |
|
【エントランス】 |
|
| 【駐車場】 |
- |
【エレベーター】 |
2基 |
「大永初台マンション」は、東京都渋谷区代々木4丁目に位置する、地上11階・地下1階建てのビルです。1971年4月に竣工し、鉄筋コンクリート造(RC造)によって建てられています。最寄り駅は京王新…

| 図面 |
階数 |
面積 |
賃料(共益費込) (坪単価) |
保証金/敷金 |
礼金 |
入居可能日 |
|
|
4階 |
G 28.90坪 (95.55m2) |
350,000 (12,111) |
1,280,000 (4ヶ月) |
2.0ヶ月 |
即日 |
|
※取引態様:媒介
※フロア図面と現況が異なる場合は現況を優先いたします。
※貸室内部の写真・貸室からの景色に関しては、現在の募集フロアと異なる場合がございます。