新川(中央区)の貸事務所・賃貸オフィス一覧
【2026/04/29更新】
新川(中央区)の貸事務所について
ビジネスと利便性が両立する新川エリア
中央区新川エリアは、東京メトロ日比谷線・JR京葉線「八丁堀駅」や「茅場町駅」など複数駅が利用でき、都心主要エリアへのアクセスもスムーズな好立地です。オフィス街として発展しながらも、隅田川沿いの落ち着いた環境が働きやすさを支えます。中小企業や士業の事務所、IT系企業など多様な業種に適した物件が揃っており、コストを抑えつつ機能性の高いオフィスをお探しの方におすすめのエリアです。飲食店やコンビニも充実しており、快適なビジネス環境が整っています。
新川(中央区)の物件は、26棟(39件) 掲載されています。
新川周辺の貸事務所マップ
新川周辺マップです。物件のある位置にビルが表示されていますので、クリックして詳細情報をご覧ください。
ビルアイコンについて
マップ上に表示されているビルアイコンは、そのビルの最小坪単価に応じて色分けされています。
8,000 円未満
8,000 円以上~1.0 万円未満
1.0 万以上~1.2 万円未満
1.2 万以上~1.4 万円未満
1.4 万以上~1.6 万円未満
1.6 万以上~2.0 万円未満
2.0 万以上~2.5 万円未満
2.5 万以上~3.0 万円未満
3.0 万円以上
未定
新川周辺の地区を探す
新川周辺の貸事務所一覧
物件番号:007404
更新日:2026/4/7
中央区新川1-17-21
【竣工】2002/4
【階建て】地上12F
|
【最寄駅】
|
【耐震】 |
新耐震 |
| 【基準階】 |
513.21坪 |
【エントランス】 |
平日・土開放 |
| 【駐車場】 |
有り |
【エレベーター】 |
6基 |
茅場町ファーストは、中央区新川1丁目、永代通りに面した視認性の高い立地に建つ大型インテリジェントオフィスビルです。最寄駅は東京メトロ日比谷線・東西線の茅場町駅で、徒歩圏内にはJR京葉線…

| 図面 |
階数 |
面積 |
賃料(共益費込) (坪単価) |
保証金/敷金 |
礼金 |
入居可能日 |
|
|
2階 |
N 463.95坪 (1533.73m2) |
|
(未公開) |
無 |
即日 |
|
物件番号:007313
更新日:2026/4/6
中央区新川2-22-4
【竣工】1996/1
【階建て】地上5F
|
【最寄駅】
|
【耐震】 |
新耐震 |
| 【基準階】 |
65.30坪 |
【エントランス】 |
平日のみ開放 |
| 【駐車場】 |
無し |
【エレベーター】 |
1基 |
新共立ビルディングは、中央区新川2-22-4にある物件です。徒歩3分圏内でJR京葉線の八丁堀駅、徒歩6分圏内で東京メトロ日比谷線の八丁堀駅、徒歩9分圏内で東京メトロ東西線の茅場町駅が利用可能と…

| 図面 |
階数 |
面積 |
賃料(共益費込) (坪単価) |
保証金/敷金 |
礼金 |
入居可能日 |
|
|
4階 |
G 65.30坪 (215.86m2) |
|
12ヶ月 |
無 |
2026/9 予定 |
|
物件番号:007265
更新日:2026/4/27
中央区新川2-1-10
【竣工】1994/3
【階建て】地上8F
|
【最寄駅】
|
【耐震】 |
新耐震 |
| 【基準階】 |
30.02坪 |
【エントランス】 |
平日・土開放 |
| 【駐車場】 |
無し |
【エレベーター】 |
1基 |
八重洲早川第2ビルは、東京都中央区新川2-1-10に位置する地上8階建てのオフィスビルです。1994年3月に竣工し、SRC造で建てられています。新耐震基準に適合しており、安全性にも優れています。交…

| 図面 |
階数 |
面積 |
賃料(共益費込) (坪単価) |
保証金/敷金 |
礼金 |
入居可能日 |
|
|
3階 |
G 30.02坪 (99.24m2) |
450,300 (15,000) |
8ヶ月 |
無 |
2026/6 上旬 |
|
物件番号:007299
更新日:2026/4/7
中央区新川2-17-12
【竣工】1993/11
【階建て】地上10F
|
【最寄駅】
|
【耐震】 |
新耐震 |
| 【基準階】 |
21.10坪 |
【エントランス】 |
|
| 【駐車場】 |
無し |
【エレベーター】 |
1基 |
新川二丁目交差点の角にあるオフィスビルです!外壁がヨーロッパ調のオシャな物件!角ビルだから日当たり良く気持ち良い空間!

| 図面 |
階数 |
面積 |
賃料(共益費込) (坪単価) |
保証金/敷金 |
礼金 |
入居可能日 |
|
|
3階 |
G 21.10坪 (69.75m2) |
337,600 (16,000) |
10ヶ月 |
無 |
2026/9 |
|
物件番号:007240
更新日:2026/4/6
中央区新川1-17-18
【竣工】1993/11
【階建て】地上9F 、地下2F
|
【最寄駅】
|
【耐震】 |
新耐震 |
| 【基準階】 |
65.01坪 |
【エントランス】 |
平日・土開放 |
| 【駐車場】 |
有り |
【エレベーター】 |
1基 |
白鹿茅場町ビルは、中央区新川1-17-18にある物件です。徒歩5分圏内で東京メトロ東西線・東京メトロ日比谷線の茅場町駅、徒歩6分圏内で東京メトロ半蔵門線の水天宮前駅、徒歩9分圏内でJR京葉線の…

| 図面 |
階数 |
面積 |
賃料(共益費込) (坪単価) |
保証金/敷金 |
礼金 |
入居可能日 |
|
|
4階 |
N 65.02坪 (214.94m2) |
|
12ヶ月 |
無 |
2026/8 上旬 |
|
物件番号:007209
更新日:2026/4/10
中央区新川2-28-1
【竣工】1993/2
【階建て】地上7F
|
【最寄駅】
|
【耐震】 |
新耐震 |
| 【基準階】 |
63.97坪 |
【エントランス】 |
平日のみ開放 |
| 【駐車場】 |
無し |
【エレベーター】 |
1基 |
ザ・パークレックス新川ビルは、東京都中央区新川に位置するオフィスビルで、1993年2月に竣工しました。JR京葉線と東京メトロ日比谷線の八丁堀駅から徒歩4~6分、さらに東西線の茅場町駅からも徒…

| 図面 |
階数 |
面積 |
賃料(共益費込) (坪単価) |
保証金/敷金 |
礼金 |
入居可能日 |
|
|
3階 |
G 56.73坪 (187.54m2) |
|
8ヶ月 |
無 |
2026/10/1 |
|
|
6階 |
N 58.56坪 (193.61m2) |
|
8ヶ月 |
無 |
即日 |
|
物件番号:007177
更新日:2026/4/28
中央区新川1-23-5
【竣工】1990/8(改修:2023)
【階建て】地上14F 、地下1F
|
【最寄駅】
|
【耐震】 |
新耐震 |
| 【基準階】 |
174.23坪 |
【エントランス】 |
平日・土開放 |
| 【駐車場】 |
有り |
【エレベーター】 |
4基 |
ONE SHINKAWAは、中央区新川1-23-5に位置する賃貸オフィスビルです。最寄りの東京メトロ東西線・日比谷線「茅場町駅」からは徒歩7分、JR京葉線「八丁堀駅」および東京メトロ半蔵門線「水天宮前駅…

| 図面 |
階数 |
面積 |
賃料(共益費込) (坪単価) |
保証金/敷金 |
礼金 |
入居可能日 |
|
|
2階 |
N 38.12坪 (126.02m2) |
800,520 (21,000) |
(未公開) |
無 |
2026/7/16 |
|
|
2階 |
N 68.46坪 (226.31m2) |
1,437,660 (21,000) |
(未公開) |
無 |
2026/7/1 |
|
|
3階 |
N 173.47坪 (573.44m2) |
3,642,870 (21,000) |
(未公開) |
無 |
2026/7/1 |
|
|
12階 |
G 38.30坪 (126.60m2) |
842,600 (22,000) |
(未公開) |
無 |
即日 |
|
|
14階 |
G 41.41坪 (136.89m2) |
911,020 (22,000) |
(未公開) |
無 |
即日 |
|
物件番号:007406
更新日:2026/4/27
中央区新川1-3-2
【竣工】1990/1
【階建て】地上9F
|
【最寄駅】
|
【耐震】 |
新耐震 |
| 【基準階】 |
29.95坪 |
【エントランス】 |
オートロック |
| 【駐車場】 |
無し |
【エレベーター】 |
1基 |
茅場町駅から徒歩2分の好立地!フットワーク抜群です!永代通り至近のわかりやすい立地です!ワンフロア・ワンテナント!使い勝手良好です!

| 図面 |
階数 |
面積 |
賃料(共益費込) (坪単価) |
保証金/敷金 |
礼金 |
入居可能日 |
|
|
9階 |
G 29.95坪 (99.04m2) |
494,175 (16,500) |
6ヶ月 |
1.0ヶ月 |
2026/9 下旬 |
|
物件番号:007198
更新日:2026/4/17
中央区新川1-22-11
【竣工】1989/10(改修:2018)
【階建て】地上9F
|
【最寄駅】
|
【耐震】 |
新耐震 |
| 【基準階】 |
80.52坪 |
【エントランス】 |
平日・土開放 |
| 【駐車場】 |
有り |
【エレベーター】 |
2基 |
茅場町イーストスクエアは、中央区新川1丁目22番11号に位置する賃貸オフィスビルで、都心の利便性と快適なオフィス環境を兼ね備えた物件です。最寄り駅は東京メトロ東西線および東京メトロ日比谷…

| 図面 |
階数 |
面積 |
賃料(共益費込) (坪単価) |
保証金/敷金 |
礼金 |
入居可能日 |
|
|
2階 |
G 85.97坪 (284.20m2) |
2,063,280 (24,000) |
7ヶ月 |
無 |
2026/9 上旬 |
|
物件番号:007243
更新日:2026/4/10
中央区新川1-27-8
【竣工】1989/7
【階建て】地上9F
|
【最寄駅】
|
【耐震】 |
新耐震 |
| 【基準階】 |
41.24坪 |
【エントランス】 |
平日・土開放 |
| 【駐車場】 |
無し |
【エレベーター】 |
1基 |
落ち着いたイメージのエントランスは清潔感があります!2面採光で明るく開放的な貸室内です!ワンフロア・ワンテナントの使い勝手良好な物件です!

| 図面 |
階数 |
面積 |
賃料(共益費込) (坪単価) |
保証金/敷金 |
礼金 |
入居可能日 |
|
|
9階 |
G 43.24坪 (142.97m2) |
1,000,000 (23,127) |
3ヶ月 |
無 |
即日 |
|
物件番号:007151
更新日:2026/4/1
中央区新川2-15-7
【竣工】1988/12(改修:2004)
【階建て】地上7F 、地下1F
|
【最寄駅】
|
【耐震】 |
新耐震 |
| 【基準階】 |
44.00坪 |
【エントランス】 |
全日開放(24h) |
| 【駐車場】 |
無し |
【エレベーター】 |
1基 |
坂田ビルは、東京都中央区新川2-15-7に位置する、利便性と機能性を兼ね備えたオフィスビルです。JR京葉線および東京メトロ日比谷線「八丁堀駅」から徒歩6分、東京メトロ東西線「茅場町駅」からも…

| 図面 |
階数 |
面積 |
賃料(共益費込) (坪単価) |
保証金/敷金 |
礼金 |
入居可能日 |
|
|
6階 |
G 34.00坪 (112.40m2) |
493,000 (14,500) |
6ヶ月 |
無 |
即日 |
|
物件番号:007219
更新日:2026/4/28
中央区新川1-22-13
【竣工】1988/11(改修:2016)
【階建て】地上10F
|
【最寄駅】
|
【耐震】 |
新耐震 |
| 【基準階】 |
37.90坪 |
【エントランス】 |
平日のみ開放 |
| 【駐車場】 |
無し |
【エレベーター】 |
1基 |
新川I&Lビルは、東京都中央区新川1-22-13に位置する永代通り沿いの賃貸オフィスビルです。交通アクセスは、東京メトロ東西線・日比谷線「茅場町駅」徒歩6分、JR京葉線「八丁堀駅」徒歩9分、東京…

| 図面 |
階数 |
面積 |
賃料(共益費込) (坪単価) |
保証金/敷金 |
礼金 |
入居可能日 |
|
|
8階 |
G 37.95坪 (125.46m2) |
569,250 (15,000) |
6ヶ月 |
無 |
2026/7 上旬 |
|
|
9階 |
G 37.95坪 (125.46m2) |
569,250 (15,000) |
6ヶ月 |
無 |
2026/5 上旬 |
|
物件番号:007237
更新日:2026/4/14
中央区新川1-17-25
【竣工】1988/8(改修:2023)
【階建て】地上9F 、地下1F
|
【最寄駅】
|
【耐震】 |
新耐震 |
| 【基準階】 |
239.28坪 |
【エントランス】 |
平日のみ開放 |
| 【駐車場】 |
有り |
【エレベーター】 |
3基 |
KDX茅場町三洋ビルは、中央区新川1-17-25にある物件です。最寄駅は、東京メトロ東西線・東京メトロ日比谷線の茅場町駅です。徒歩3分圏内でアクセス可能です。徒歩6分圏内で東京メトロ半蔵門線の…

| 図面 |
階数 |
面積 |
賃料(共益費込) (坪単価) |
保証金/敷金 |
礼金 |
入居可能日 |
|
|
4階 |
N 168.18坪 (555.97m2) |
|
12ヶ月 |
無 |
2026/9/1 |
|
物件番号:007290
更新日:2026/4/1
中央区新川2-9-9
【竣工】1988/3
【階建て】地上7F 、地下1F
|
【最寄駅】
|
【耐震】 |
新耐震 |
| 【基準階】 |
68.25坪 |
【エントランス】 |
|
| 【駐車場】 |
有り |
【エレベーター】 |
1基 |
中央区新川2丁目に位置するSHビルは、落ち着いた環境と利便性を兼ね備えた賃貸オフィスビルです。交通アクセスは、JR京浜東北線「八丁堀駅」まで徒歩2分、東京メトロ日比谷線「八丁堀駅」まで徒…

| 図面 |
階数 |
面積 |
賃料(共益費込) (坪単価) |
保証金/敷金 |
礼金 |
入居可能日 |
|
|
2階 |
G 68.25坪 (225.62m2) |
887,250 (13,000) |
8ヶ月 |
無 |
2026/5/1 |
|
物件番号:007253
更新日:2026/4/21
中央区新川1-28-44
【竣工】1987/11(改修:2018)
【階建て】地上9F 、地下1F
|
【最寄駅】
|
【耐震】 |
新耐震 |
| 【基準階】 |
160.37坪 |
【エントランス】 |
平日・土開放 |
| 【駐車場】 |
有り |
【エレベーター】 |
2基 |
新川K・Tビルは、中央区新川1-28-44にある物件です。徒歩7分圏内でJR京葉線の八丁堀駅、徒歩8分圏内で東京メトロ日比谷線の八丁堀駅、徒歩9分圏内で東京メトロ東西線の茅場町駅、徒歩10分圏内で…

| 図面 |
階数 |
面積 |
賃料(共益費込) (坪単価) |
保証金/敷金 |
礼金 |
入居可能日 |
|
|
2階 |
N 160.37坪 (530.15m2) |
|
12ヶ月 |
無 |
2026/11/1 |
|
|
7階 |
N 160.37坪 (530.15m2) |
|
12ヶ月 |
無 |
2026/11/1 |
|
|
8階 |
N 155.58坪 (514.31m2) |
|
12ヶ月 |
無 |
2026/11/1 |
|
物件番号:007199
更新日:2026/4/6
中央区新川1-24-1
【竣工】1987/9
【階建て】地上8F 、地下1F
|
【最寄駅】
|
【耐震】 |
新耐震 |
| 【基準階】 |
155.81坪 |
【エントランス】 |
平日・土開放 |
| 【駐車場】 |
有り |
【エレベーター】 |
2基 |
大豊アネックスは、東京都中央区新川一丁目に位置する、視認性と開放感を兼ね備えたオフィスビルです。永代通り沿いに面しており、周囲は整然としたオフィス街が広がる落ち着いたビジネス環境と…

| 図面 |
階数 |
面積 |
賃料(共益費込) (坪単価) |
保証金/敷金 |
礼金 |
入居可能日 |
|
|
7階 |
N 155.81坪 (515.07m2) |
|
12ヶ月 |
無 |
即日 |
|
|
8階 |
N 155.81坪 (515.07m2) |
|
12ヶ月 |
無 |
2026/5/25 |
|
物件番号:007169
更新日:2026/4/1
中央区新川1-17-27
【竣工】1986/7
【階建て】地上11F
|
【最寄駅】
|
【耐震】 |
新耐震 |
| 【基準階】 |
39.57坪 |
【エントランス】 |
全日開放(制限有) |
| 【駐車場】 |
無し |
【エレベーター】 |
1基 |
横川ビルは、東京都中央区新川1丁目に位置する永代通り沿いの賃貸オフィスビルです。交通アクセスは、東京メトロ東西線・日比谷線「茅場町駅」徒歩3分をはじめ、東京メトロ半蔵門線「水天宮前駅…

| 図面 |
階数 |
面積 |
賃料(共益費込) (坪単価) |
保証金/敷金 |
礼金 |
入居可能日 |
|
|
2階 |
G 36.21坪 (119.70m2) |
658,366 (18,182) |
10ヶ月 |
無 |
2026/5 下旬 |
|
物件番号:007204
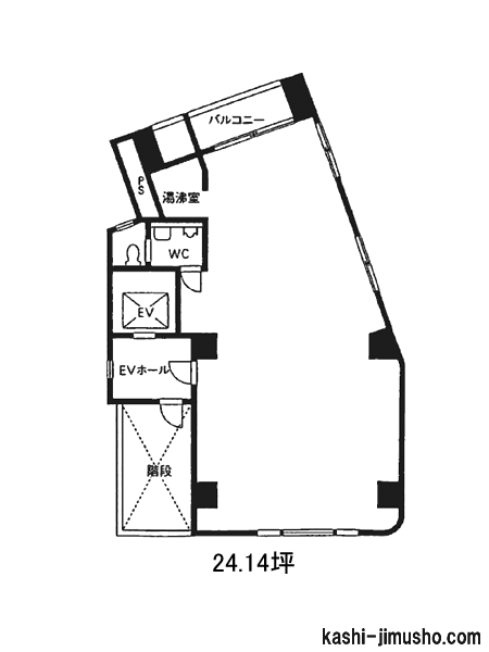
更新日:2026/4/6
中央区新川2-17-14
【竣工】1986/2
【階建て】地上7F 、地下1F
|
【最寄駅】
|
【耐震】 |
新耐震 |
| 【基準階】 |
24.14坪 |
【エントランス】 |
|
| 【駐車場】 |
無し |
【エレベーター】 |
1基 |
複数路線が利用可能!交通アクセス抜群!シックでお洒落なデザインのエントランス!ワンフロア・ワンテナントの使い勝手良好なオフィス空間!

| 図面 |
階数 |
面積 |
賃料(共益費込) (坪単価) |
保証金/敷金 |
礼金 |
入居可能日 |
|
|
2階 |
G 24.14坪 (79.80m2) |
300,000 (12,428) |
2,000,000 (82,850) |
無 |
2026/5 上旬 |
|
物件番号:007175
更新日:2026/4/9
中央区新川1-2-8
【竣工】1982/5
【階建て】地上10F
|
【最寄駅】
|
【耐震】 |
旧耐震 |
| 【基準階】 |
21.25坪 |
【エントランス】 |
全日開放(24h) |
| 【駐車場】 |
無し |
【エレベーター】 |
1基 |
東京都中央区新川一丁目に位置する「第五山京ビル」は、永代通り沿いの新川一丁目交差点という視認性の高い角地に建つ、利便性と快適さを兼ね備えたオフィスビルです。1982年5月に竣工した地上10…

| 図面 |
階数 |
面積 |
賃料(共益費込) (坪単価) |
保証金/敷金 |
礼金 |
入居可能日 |
|
|
6階 |
G 22.10坪 (73.07m2) |
363,000 (16,425) |
3ヶ月 |
無 |
即日 |
|
|
10階 |
G 21.25坪 (70.24m2) |
363,000 (17,082) |
3ヶ月 |
無 |
即日 |
|
物件番号:007223
更新日:2026/4/10
中央区新川1-20-1
【竣工】1981/6
【階建て】地上9F
|
【最寄駅】
|
【耐震】 |
旧耐震 |
| 【基準階】 |
40.50坪 |
【エントランス】 |
全日開放(24h) |
| 【駐車場】 |
無し |
【エレベーター】 |
1基 |
三和商事ビルは、東京都中央区新川1丁目に位置する利便性の高いオフィスビルで、複数の主要交通機関が利用可能な優れた立地を誇ります。最寄り駅は東京メトロ半蔵門線の水天宮前駅で、徒歩わずか…

| 図面 |
階数 |
面積 |
賃料(共益費込) (坪単価) |
保証金/敷金 |
礼金 |
入居可能日 |
|
|
6階 |
G 40.50坪 (133.88m2) |
526,500 (13,000) |
10ヶ月 |
無 |
即日 |
|
物件番号:007190
更新日:2026/4/22
中央区新川2-8-4
【竣工】1979/5
【階建て】地上8F
|
【最寄駅】
|
【耐震】 |
旧耐震 |
| 【基準階】 |
25.00坪 |
【エントランス】 |
平日・土開放 |
| 【駐車場】 |
無し |
【エレベーター】 |
1基 |
八丁堀駅から徒歩3分とアクセス抜群!落ち着いた色合いで清潔感のあるビル!ワンフロア・ワンテナントの使い勝手良好なオフィス空間!

| 図面 |
階数 |
面積 |
賃料(共益費込) (坪単価) |
保証金/敷金 |
礼金 |
入居可能日 |
|
|
2階 |
G 21.84坪 (72.21m2) |
349,440 (16,000) |
10ヶ月 |
無 |
2026/6 上旬 |
|
|
6階 |
G 21.84坪 (72.21m2) |
327,600 (15,000) |
10ヶ月 |
無 |
即日 |
|
物件番号:007309
更新日:2026/4/10
中央区新川1-28-25
【竣工】1976/3(改修:2005)
【階建て】地上11F 、地下1F
|
【最寄駅】
|
【耐震】 |
旧耐震+補強済 or 基準OK |
| 【基準階】 |
363.00坪 |
【エントランス】 |
平日のみ開放 |
| 【駐車場】 |
有り |
【エレベーター】 |
7基 |
東京ダイヤビルディング3号館は、東京都中央区新川1-28-25に位置し、広大な基準階面積と充実した設備を誇る大型オフィスビルです。JR京葉線と東京メトロ日比谷線の八丁堀駅から徒歩6分、東西線茅…

| 図面 |
階数 |
面積 |
賃料(共益費込) (坪単価) |
保証金/敷金 |
礼金 |
入居可能日 |
|
|
11階 |
N 153.63坪 (507.87m2) |
|
12ヶ月 |
無 |
2027/10 |
|
物件番号:041884
更新日:2026/4/20
中央区新川2-12-15
【竣工】1975/12(改修:2024)
【階建て】地上8F 、地下1F
|
【最寄駅】
|
【耐震】 |
旧耐震+補強済 or 基準OK |
| 【基準階】 |
106.55坪 |
【エントランス】 |
オートロック |
| 【駐車場】 |
有り |
【エレベーター】 |
2基 |
R-TERRACE八丁堀ビルは、東京都中央区新川2-12-15に位置する、広い基準階面積と交通利便性を備えたオフィスビルです。最寄りのJR京葉線八丁堀駅から徒歩3分、東京メトロ日比谷線八丁堀駅から徒歩…

| 図面 |
階数 |
面積 |
賃料(共益費込) (坪単価) |
保証金/敷金 |
礼金 |
入居可能日 |
|
|
2階 |
G 106.55坪 (352.24m2) |
|
10ヶ月 |
無 |
即日 |
|
|
5階 |
G 106.55坪 (352.24m2) |
|
10ヶ月 |
無 |
即日 |
|
物件番号:007324
更新日:2026/4/6
中央区新川2-18-10
【竣工】1974/9(改修:2018)
【階建て】地上10F
|
【最寄駅】
|
【耐震】 |
旧耐震 |
| 【基準階】 |
20.82坪 |
【エントランス】 |
|
| 【駐車場】 |
無し |
【エレベーター】 |
1基 |
AUBE新川ビルは、東京都中央区新川2丁目に位置するオフィスビルです。1974年9月に竣工した地上10階建ての鉄骨鉄筋コンクリート造(SRC造)で、長年にわたり多くの企業に利用されてきた実績があり…

| 図面 |
階数 |
面積 |
賃料(共益費込) (坪単価) |
保証金/敷金 |
礼金 |
入居可能日 |
|
|
3階 |
G 20.82坪 (68.83m2) |
353,940 (17,000) |
6ヶ月 |
無 |
即日 |
|
|
8階 |
G 20.82坪 (68.83m2) |
353,940 (17,000) |
6ヶ月 |
無 |
即日 |
|
物件番号:037477
更新日:2026/4/16
中央区新川1-28-38
【竣工】1974(改修:2005)
【階建て】地上11F 、地下1F
|
【最寄駅】
|
【耐震】 |
旧耐震+補強済 or 基準OK |
| 【基準階】 |
277.98坪 |
【エントランス】 |
|
| 【駐車場】 |
有り |
【エレベーター】 |
2基 |
東京ダイヤビルディング2号館は、中央区新川一丁目に位置する大型オフィスビルで、情報・通信関連企業をはじめとした幅広い業種の方々におすすめの物件です。最寄り駅のJR京葉線・東京メトロ日比…

| 図面 |
階数 |
面積 |
賃料(共益費込) (坪単価) |
保証金/敷金 |
礼金 |
入居可能日 |
|
|
9階 |
N 265.44坪 (877.49m2) |
|
12ヶ月 |
無 |
2027/1 予定 |
|
物件番号:007264
更新日:2026/3/31
中央区新川1-14-5
【竣工】1973/4(改修:2014)
【階建て】地上10F 、地下1F
|
【最寄駅】
|
【耐震】 |
旧耐震+補強済 or 基準OK |
| 【基準階】 |
115.28坪 |
【エントランス】 |
平日のみ開放 |
| 【駐車場】 |
有り |
【エレベーター】 |
2基 |
金盃第三ビルは、東京都中央区新川1-14-5に位置する地上10階建て地下1階のオフィスビルです。1973年4月に竣工し、SRC造で建てられています。交通アクセスについては、東京メトロ東西線および日比…

| 図面 |
階数 |
面積 |
賃料(共益費込) (坪単価) |
保証金/敷金 |
礼金 |
入居可能日 |
|
|
2階 |
G 80.46坪 (266.00m2) |
764,370 (9,500) |
8ヶ月 |
無 |
2026/5 上旬 |
|
非公開物件の賃料目安アイコン
8,000 円未満
8,000 円以上~1.0 万円未満
1.0 万以上~1.2 万円未満
1.2 万以上~1.4 万円未満
1.4 万以上~1.6 万円未満
1.6 万以上~2.0 万円未満
2.0 万以上~2.5 万円未満
2.5 万以上~3.0 万円未満
3.0 万円以上
未定
※取引態様:媒介
※フロア図面と現況が異なる場合は現況を優先いたします。
※貸室内部の写真・貸室からの景色に関しては、現在の募集フロアと異なる場合がございます。