日本橋箱崎町(中央区)の貸事務所・賃貸オフィス一覧
【2026/04/29更新】
日本橋箱崎町(中央区)の貸事務所について
水辺と利便性が共存する日本橋箱崎町エリア
日本橋箱崎町エリアは、東京メトロ半蔵門線「水天宮前駅」や日比谷線「人形町駅」が利用可能で、都心へのアクセスに優れた立地です。また、首都高速の「箱崎JCT」至近で車移動にも便利なため、営業拠点や物流系企業にも適しています。周辺には隅田川や浜町公園といった水辺や緑があり、働きながらリフレッシュしやすい環境も魅力です。比較的落ち着いた街並みで、スタートアップから中堅企業まで幅広いニーズに応える賃貸オフィスが揃っています。
日本橋箱崎町(中央区)の物件は、8棟(9件) 掲載されています。
日本橋箱崎町周辺の貸事務所マップ
日本橋箱崎町周辺マップです。物件のある位置にビルが表示されていますので、クリックして詳細情報をご覧ください。
ビルアイコンについて
マップ上に表示されているビルアイコンは、そのビルの最小坪単価に応じて色分けされています。
8,000 円未満
8,000 円以上~1.0 万円未満
1.0 万以上~1.2 万円未満
1.2 万以上~1.4 万円未満
1.4 万以上~1.6 万円未満
1.6 万以上~2.0 万円未満
2.0 万以上~2.5 万円未満
2.5 万以上~3.0 万円未満
3.0 万円以上
未定
日本橋箱崎町周辺の地区を探す
日本橋箱崎町周辺の貸事務所一覧
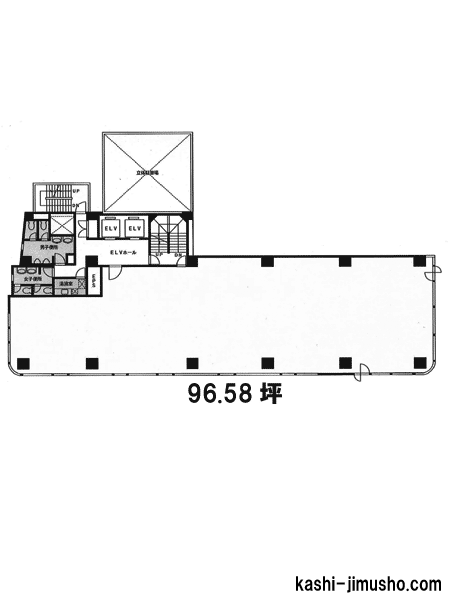
物件番号:010723
更新日:2026/4/13
中央区日本橋箱崎町17-1
【竣工】1993/8
【階建て】地上9F
|
【最寄駅】
|
【耐震】 |
新耐震 |
| 【基準階】 |
96.58坪 |
【エントランス】 |
平日・土開放 |
| 【駐車場】 |
有り |
【エレベーター】 |
2基 |
箱崎リージェントビルは、東京都中央区日本橋箱崎町に位置するオフィスビルで、広いオフィススペースと優れた利便性が特徴の物件です。東京メトロ半蔵門線「水天宮前駅」から徒歩3分と、抜群の立…

| 図面 |
階数 |
面積 |
賃料(共益費込) (坪単価) |
保証金/敷金 |
礼金 |
入居可能日 |
|
|
5階 |
G 96.58坪 (319.27m2) |
|
(未公開) |
無 |
相談 |
|
物件番号:010685
更新日:2026/4/10
中央区日本橋箱崎町8-1
【竣工】1992/10
【階建て】地上7F 、地下1F
|
【最寄駅】
|
【耐震】 |
新耐震 |
| 【基準階】 |
129.89坪 |
【エントランス】 |
|
| 【駐車場】 |
有り |
【エレベーター】 |
2基 |
東京都中央区日本橋箱崎町に位置する「ヤマタネ箱崎ビル」は、ビジネスの拠点として非常に使いやすいオフィスビルです。1992年10月に竣工した地上7階・地下1階建てのSRC造で、新耐震基準を満たし…

| 図面 |
階数 |
面積 |
賃料(共益費込) (坪単価) |
保証金/敷金 |
礼金 |
入居可能日 |
|
|
4階 |
N 129.89坪 (429.42m2) |
|
12ヶ月 |
無 |
即日 |
|
物件番号:010737
更新日:2026/4/28
中央区日本橋箱崎町10-2
【竣工】1992/9(改修:2017)
【階建て】地上7F 、地下1F
|
【最寄駅】
|
【耐震】 |
新耐震 |
| 【基準階】 |
49.39坪 |
【エントランス】 |
全日開放(制限有) |
| 【駐車場】 |
有り |
【エレベーター】 |
1基 |
日本橋箱崎町エリア。2017年リニューアルのモダンなオフィスビル。ACN日本橋ビルは中央区日本橋箱崎町、最寄駅は東京メトロ半蔵門線 水天宮前駅です。地下鉄出口より徒歩5分圏内でアクセスです。…

| 図面 |
階数 |
面積 |
賃料(共益費込) (坪単価) |
保証金/敷金 |
礼金 |
入居可能日 |
|
|
NEW3階 |
G 49.39坪 (163.27m2) |
|
8ヶ月 |
無 |
2026/7 下旬 |
|
物件番号:010721
更新日:2026/4/6
中央区日本橋箱崎町44-7
【竣工】1990/10(改修:2022)
【階建て】地上7F
|
【最寄駅】
|
【耐震】 |
新耐震 |
| 【基準階】 |
27.51坪 |
【エントランス】 |
全日開放(24h) |
| 【駐車場】 |
無し |
【エレベーター】 |
1基 |
箱崎YMビルは、東京都中央区日本橋箱崎町に所在するオフィスビルです。竣工は1990年10月、構造は鉄骨造、地上7階建てで構成されています。新耐震基準に適合しており、耐震性に配慮された設計がな…

| 図面 |
階数 |
面積 |
賃料(共益費込) (坪単価) |
保証金/敷金 |
礼金 |
入居可能日 |
|
|
1-3階 |
G 81.76坪 (270.28m2) |
1,400,000 (17,123) |
6ヶ月 |
無 |
即日 |
|
|
5階 |
G 27.51坪 (90.95m2) |
280,000 (10,178) |
6ヶ月 |
無 |
即日 |
|
物件番号:010691
更新日:2026/4/1
中央区日本橋箱崎町5-4
【竣工】1988/4(改修:2002)
【階建て】地上7F
|
【最寄駅】
|
【耐震】 |
新耐震 |
| 【基準階】 |
52.80坪 |
【エントランス】 |
平日・土開放 |
| 【駐車場】 |
有り |
【エレベーター】 |
1基 |
アライズ第2ビルは、東京都中央区日本橋箱崎町に位置する賃貸オフィスビルです。隅田川に近いリバーサイドエリアに立地しており、落ち着いた環境の中で業務に集中できるオフィス環境が整っていま…

| 図面 |
階数 |
面積 |
賃料(共益費込) (坪単価) |
保証金/敷金 |
礼金 |
入居可能日 |
|
|
3階 |
G 52.80坪 (174.55m2) |
739,200 (14,000) |
7ヶ月 |
1.0ヶ月 |
即日 |
|
物件番号:010717
更新日:2026/4/27
中央区日本橋箱崎町27-9
【竣工】1982/8
【階建て】地上12F
|
【最寄駅】
|
【耐震】 |
旧耐震 |
| 【基準階】 |
110.06坪 |
【エントランス】 |
全日開放(24h) |
| 【駐車場】 |
有り |
【エレベーター】 |
2基 |
ヴェラハイツ日本橋箱崎は、東京都中央区日本橋箱崎町27-9に位置する地上12階建てのビルです。1982年8月に竣工し、SRC造(鉄骨鉄筋コンクリート造)で建てられています。交通アクセスの利便性は…

| 図面 |
階数 |
面積 |
賃料(共益費込) (坪単価) |
保証金/敷金 |
礼金 |
入居可能日 |
|
|
2階 |
G 110.65坪 (365.79m2) |
1,650,000 (14,912) |
6ヶ月 |
1.0ヶ月 |
相談 |
|
物件番号:035246
更新日:2026/4/24
中央区日本橋箱崎町34-4
【竣工】1982/3(改修:2007)
【階建て】地上7F
|
【最寄駅】
|
【耐震】 |
旧耐震 |
| 【基準階】 |
67.90坪 |
【エントランス】 |
|
| 【駐車場】 |
無し |
【エレベーター】 |
2基 |
日本橋ウッドフィールドビルは、東京都中央区日本橋箱崎町に位置するオフィスビルで、アクセスの良さと広々としたオフィス空間が特徴の物件です。最寄り駅の東京メトロ半蔵門線「水天宮前駅」か…

| 図面 |
階数 |
面積 |
賃料(共益費込) (坪単価) |
保証金/敷金 |
礼金 |
入居可能日 |
|
|
5階 |
G 67.89坪 (224.46m2) |
611,100 (9,001) |
4,600,000 (67,757) |
1.0ヶ月 |
即日 |
|
物件番号:010718
更新日:2026/4/15
中央区日本橋箱崎町25-7
【竣工】1981/1
【階建て】地上9F 、地下1F
|
【最寄駅】
|
【耐震】 |
旧耐震 |
| 【基準階】 |
49.91坪 |
【エントランス】 |
全日開放(24h) |
| 【駐車場】 |
有り |
【エレベーター】 |
1基 |
東京都中央区日本橋箱崎町に位置する「ヤマキビル」は、最寄り駅の東京メトロ半蔵門線「水天宮前駅」から徒歩わずか1分という絶好のロケーションにあり、さらに日比谷線・東西線「茅場町駅」や都…

| 図面 |
階数 |
面積 |
賃料(共益費込) (坪単価) |
保証金/敷金 |
礼金 |
入居可能日 |
|
|
7階 |
G 49.91坪 (164.99m2) |
625,000 (12,523) |
6ヶ月 |
無 |
即日 |
|
非公開物件の賃料目安アイコン
8,000 円未満
8,000 円以上~1.0 万円未満
1.0 万以上~1.2 万円未満
1.2 万以上~1.4 万円未満
1.4 万以上~1.6 万円未満
1.6 万以上~2.0 万円未満
2.0 万以上~2.5 万円未満
2.5 万以上~3.0 万円未満
3.0 万円以上
未定
※取引態様:媒介
※フロア図面と現況が異なる場合は現況を優先いたします。
※貸室内部の写真・貸室からの景色に関しては、現在の募集フロアと異なる場合がございます。