
新川K・Tビル築地・八丁堀・茅場町 中央区の賃貸情報
物件番号:07253
新川K・Tビルの募集中物件リスト
| 図面 | 階数 | 面積 | 賃料(共益費込) (坪単価) |
保証金/敷金 | 礼金 | 入居可能日 |
|---|---|---|---|---|---|---|
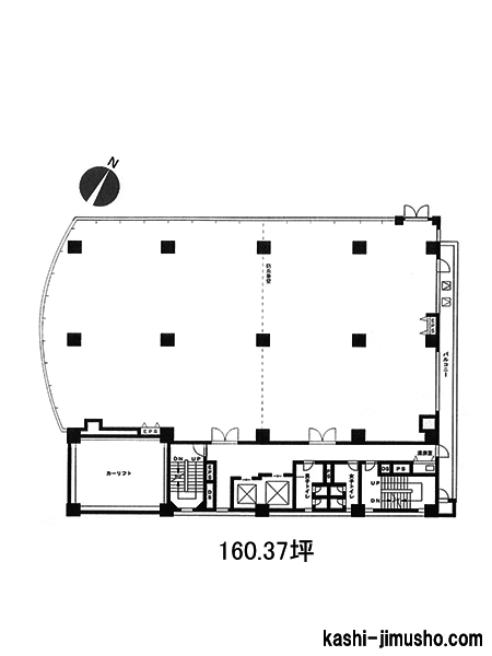
| 2階 |
N 160.37坪 (530.15m2) |
(未公開)
|
12ヶ月 | 無 | 2026/11/1 | |
| 7階 |
N 160.37坪 (530.15m2) |
(未公開)
|
12ヶ月 | 無 | 2026/11/1 | |
| 8階 |
N 155.58坪 (514.31m2) |
(未公開)
|
12ヶ月 | 無 | 2026/11/1 |
- ※取引態様:媒介
- ※フロア図面と現況が異なる場合は現況を優先いたします。
- ※貸室内部の写真・貸室からの景色に関しては、現在の募集フロアと異なる場合がございます。
- ※保証金/敷金以外の費用については別途消費税が必要になります。
- ※各物件により、別途費用が必要な場合には、物件紹介時又は重要事項説明においてご説明いたします。
- ※面積の箇所に表示している N はネット契約(契約面積はオフィス専用部分のみ)、G はグロス契約(契約面積は共用部分を加えた面積)を表しています。
新川K・Tビルの設備概要※-は確認中の表記になります。
| 竣工 | 1987年 (改修:2018年) | 構造・階建て | SRC造 地上9階 地下1階 |
|---|---|---|---|
| 耐震 | 新耐震 | 基準階面積 | 160.37坪 |
| エレベーター | 2基、13人乗り以上 | 駐車場 | 有 |
| ビル使用時間 | 24時間使用可 | エントランス | 平日・土開放 |
| セキュリティ | 機+有人 | 光ファイバー | MDF |
| 契約種別 | 普通借家契約 | 建替え予定 | - |
| 保証契約 | - |
新川エリア!鍛冶橋通り沿いに建つハイグレードな賃貸オフィスビル!

山田 睦月
新川K・Tビルは、中央区新川1-28-44にある物件です。徒歩7分圏内でJR京葉線の八丁堀駅、徒歩8分圏内で東京メトロ日比谷線の八丁堀駅、徒歩9分圏内で東京メトロ東西線の茅場町駅、徒歩10分圏内で東京メトロ半蔵門線の水天宮前駅が利用可能となっています。複数路線が利用可能でアクセス良好です。鍛冶橋通り沿いの角地に位置しているので、視認性が高く来訪者の方にも説明のしやすい立地です。採光性が期待できます。車通りの多い周辺環境となっています。車でのアクセスも良好です。新川K・Tビルは、1987年竣工の新耐震基準を満たした物件です。構造は、鉄骨鉄筋コンクリート造・地上9階建て(地下1階)、基準階は約160坪の賃貸オフィスビルです。エントランスは、平日・土曜8:00~19:00の間、開放されています。ビル内には、エレベーターが2基設置されています。駐車場が35台、光ファイバーが完備されています。機械警備と有人警備の併用警備です。24時間使用可能で、使用時間の制限はありません。貸室内は、ワンフロア・ワンテナントで使い勝手良好です。個別空調・OAフロアが完備されています。トイレは室外で男女別になっています。
【周辺ガイド】
新川K・Tビルは、東京都中央区新川1-28-44にあるオフィスビルです。鍛冶橋通り沿いの角地に位置する視認性抜群の立地です。最寄り駅は八丁堀駅で徒歩7分圏内でアクセス可能です。また、茅場町駅・水天宮前駅も徒歩圏内で利用可能です。複数路線が利用できる利便性の高い立地です。徒歩圏内にはバス停があるので、バスでのアクセスも良好です。主要ビジネスエリアへのアクセスもスムーズに可能となっています。周辺はオフィスビルや住居が多くあります。公園も多くあり、緑豊かな落ち着いたエリアです。駅周辺には飲食店が豊富にあるので、ランチ時や夕食時のお店選びに困りません。日本橋方面にはショッピングモールなどが多数あるので、ちょっとしたお買い物や終業後のショッピングも楽しめる環境です。
・みずほ銀行 八丁堀出張所 約700メートル(徒歩約9分)
・三菱UFJ銀行 第二リテールアカウント支店 約300メートル(徒歩約4分)
・中央新川郵便局 約290メートル(徒歩約4分)
・新川大神宮 約300メートル(徒歩約4分)
・永代橋(バス停) 約200メートル(徒歩約3分)
【評価】4.1
| 駅からの距離 | 設備 | 耐震性 | エントランス |
|---|
新川K・Tビルの周辺地図
「新川K・Tビル」に関するお問合せ
![]() |
|
| このページのURL | https://tokyo.kashi-jimusho.com/detail/7253/ |
|---|---|
株式会社サンエスコーポレーション |
|
| 〒103-0027 東京都中央区日本橋2-2-21 日本橋二丁目ビル5階 | |





























