銀座7丁目(中央区)の貸事務所・賃貸オフィス一覧
【2026/05/27更新】
銀座7丁目(中央区)の貸事務所について
高級感と利便性が共存する銀座7丁目エリア
銀座7丁目エリアは、高級ブランドショップや老舗飲食店が立ち並び、銀座の中でも特に洗練された印象を持つエリアです。外堀通りや昭和通りに面し、交通アクセスに優れ、銀座駅・新橋駅・東銀座駅が徒歩圏内で複数路線が利用可能。ビジネスと商業のバランスが取れた立地は、企業イメージを高めたい法人に最適です。来客対応の多い士業やコンサル系企業、ショールームを兼ねたオフィス利用にも向いており、上質なビジネス拠点を求める企業におすすめのエリアです。
銀座7丁目(中央区)の物件は、12棟(17件) 掲載されています。
銀座7丁目周辺の貸事務所マップ
銀座7丁目周辺マップです。物件のある位置にビルが表示されていますので、クリックして詳細情報をご覧ください。
ビルアイコンについて
マップ上に表示されているビルアイコンは、そのビルの最小坪単価に応じて色分けされています。
8,000 円未満
8,000 円以上~1.0 万円未満
1.0 万以上~1.2 万円未満
1.2 万以上~1.4 万円未満
1.4 万以上~1.6 万円未満
1.6 万以上~2.0 万円未満
2.0 万以上~2.5 万円未満
2.5 万以上~3.0 万円未満
3.0 万円以上
未定
銀座7丁目周辺の地区を探す
銀座7丁目周辺の貸事務所一覧
物件番号:075204
更新日:2026/5/15
中央区銀座7-4-15
【竣工】2021/11
【階建て】地上11F 、地下1F
|
【最寄駅】
|
【耐震】 |
新耐震 |
| 【基準階】 |
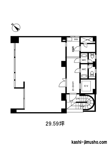
64.34坪 |
【エントランス】 |
平日のみ開放 |
| 【駐車場】 |
無し |
【エレベーター】 |
2基 |
RBM銀座ビルは、中央区銀座7-4-4にある物件です。徒歩4分圏内で東京メトロ銀座線・東京メトロ丸ノ内線・東京メトロ日比谷線の銀座駅、徒歩5分圏内でJR山手線・JR京浜東北線・都営浅草線等の新橋…

| 図面 |
階数 |
面積 |
賃料(共益費込) (坪単価) |
保証金/敷金 |
礼金 |
入居可能日 |
|
|
6階 |
G 64.34坪 (212.70m2) |
|
(未公開) |
無 |
2026/8 |
|
物件番号:065185
更新日:2026/5/7
中央区銀座7-13-2
【竣工】2015/3
【階建て】地上11F
|
【最寄駅】
|
【耐震】 |
新耐震 |
| 【基準階】 |
29.97坪 |
【エントランス】 |
全日開放(制限有) |
| 【駐車場】 |
無し |
【エレベーター】 |
1基 |
ティアラグレイス銀座タワーは、東京都中央区銀座7-13-2に位置する地上11階建てのオフィスビルです。2015年3月に竣工し、RC造で建てられています。新耐震基準に適合しており、安全性の高い建物で…

| 図面 |
階数 |
面積 |
賃料(共益費込) (坪単価) |
保証金/敷金 |
礼金 |
入居可能日 |
|
|
10階 |
G 30.00坪 (99.17m2) |
1,185,000 (39,500) |
10ヶ月 |
1.0ヶ月 |
2026/6 上旬 |
|
物件番号:057633
更新日:2026/5/26
中央区銀座7-14-13
【竣工】2010/1
【階建て】地上12F 、地下1F
|
【最寄駅】
|
【耐震】 |
新耐震 |
| 【基準階】 |
242.73坪 |
【エントランス】 |
平日のみ開放 |
| 【駐車場】 |
有り |
【エレベーター】 |
5基 |
日土地銀座ビルは、東京都中央区銀座7丁目に位置するハイグレードオフィスビルです。銀座エリアの中でも利便性と視認性を兼ね備えた立地にあり、大規模オフィスをお探しの企業におすすめの物件で…

| 図面 |
階数 |
面積 |
賃料(共益費込) (坪単価) |
保証金/敷金 |
礼金 |
入居可能日 |
|
|
10階 |
N 242.73坪 (802.42m2) |
|
12ヶ月 |
無 |
2028/3 |
|
物件番号:006622
更新日:2026/5/27
中央区銀座7-13-5
【竣工】1990/6
【階建て】地上8F 、地下1F
|
【最寄駅】
|
【耐震】 |
新耐震 |
| 【基準階】 |
44.80坪 |
【エントランス】 |
平日・土開放 |
| 【駐車場】 |
無し |
【エレベーター】 |
1基 |
NREG銀座ビルは、中央区銀座7-13-5にある物件です。最寄駅は、東京メトロ日比谷線・都営浅草線の東銀座駅です。徒歩3分圏内でアクセス可能です。徒歩5分圏内で東京メトロ銀座線・東京メトロ丸ノ…

| 図面 |
階数 |
面積 |
賃料(共益費込) (坪単価) |
保証金/敷金 |
礼金 |
入居可能日 |
|
|
4階 |
G 51.33坪 (169.69m2) |
|
(未公開) |
無 |
2026/9 |
|
|
5階 |
G 51.33坪 (169.69m2) |
|
(未公開) |
無 |
2026/10 |
|
|
6階 |
G 51.33坪 (169.69m2) |
|
(未公開) |
無 |
2026/10 |
|
|
7階 |
G 51.33坪 (169.69m2) |
|
(未公開) |
無 |
2026/10 |
|
物件番号:058691
更新日:2026/5/1
中央区銀座7-17-2
【竣工】1983/11
【階建て】地上8F 、地下1F
|
【最寄駅】
|
【耐震】 |
新耐震 |
| 【基準階】 |
153.18坪 |
【エントランス】 |
平日のみ開放 |
| 【駐車場】 |
有り |
【エレベーター】 |
2基 |
アーク銀座ビルディングは、東京都中央区銀座7-17-2に位置する賃貸オフィスビルです。新橋演舞場の向かいに建つ視認性の高い立地で、落ち着いた街並みの中にあるオフィス物件です。交通アクセス…

| 図面 |
階数 |
面積 |
賃料(共益費込) (坪単価) |
保証金/敷金 |
礼金 |
入居可能日 |
|
|
7階 |
G 41.77坪 (138.08m2) |
793,630 (19,000) |
10ヶ月 |
1.0ヶ月 |
即日 |
|
物件番号:005945
更新日:2026/5/11
中央区銀座7-16-15
【竣工】1978/4(改修:2005)
【階建て】地上9F
|
【最寄駅】
|
【耐震】 |
旧耐震 |
| 【基準階】 |
65.16坪 |
【エントランス】 |
平日・土開放 |
| 【駐車場】 |
無し |
【エレベーター】 |
1基 |
清月堂本店ビルは、東京都中央区銀座7丁目に位置するオフィスビルで、銀座エリアならではの利便性と快適性を兼ね備えた物件です。1978年4月に竣工したこのビルは、地上9階建てのSRC(鉄骨鉄筋コ…

| 図面 |
階数 |
面積 |
賃料(共益費込) (坪単価) |
保証金/敷金 |
礼金 |
入居可能日 |
|
|
9階 |
G 42.58坪 (140.78m2) |
|
10ヶ月 |
無 |
2026/10/1 |
|
物件番号:006326
更新日:2026/4/27
中央区銀座7-18-14
【竣工】1974/9(改修:2015)
【階建て】地上7F
|
【最寄駅】
|
【耐震】 |
旧耐震+補強済 or 基準OK |
| 【基準階】 |
35.10坪 |
【エントランス】 |
全日開放(24h) |
| 【駐車場】 |
無し |
【エレベーター】 |
1基 |
東都銀座ビルは、東京都中央区銀座7丁目に位置する地上7階建てのオフィスビルで、1974年に竣工後、2015年に大規模リニューアルと耐震補強工事が施されており、SRC造による堅牢な構造を備えていま…

| 図面 |
階数 |
面積 |
賃料(共益費込) (坪単価) |
保証金/敷金 |
礼金 |
入居可能日 |
|
|
5階 |
G 28.54坪 (94.35m2) |
428,100 (15,000) |
10ヶ月 |
無 |
即日 |
|
|
6階 |
G 21.97坪 (72.63m2) |
329,550 (15,000) |
10ヶ月 |
無 |
即日 |
|
物件番号:037662
更新日:2026/5/15
中央区銀座7-15-3
【竣工】1973/2(改修:1992)
【階建て】地上8F
|
【最寄駅】
|
【耐震】 |
旧耐震 |
| 【基準階】 |
41.70坪 |
【エントランス】 |
平日・土開放 |
| 【駐車場】 |
無し |
【エレベーター】 |
1基 |
第5安田ビルは、東京都中央区銀座7-15-3に位置する、機能性と利便性を兼ね備えたオフィスビルです。1973年2月に竣工したこのビルは、地上8階建ての鉄骨鉄筋コンクリート造(SRC造)です。東京メ…

| 図面 |
階数 |
面積 |
賃料(共益費込) (坪単価) |
保証金/敷金 |
礼金 |
入居可能日 |
|
|
5階 |
G 41.70坪 (137.88m2) |
583,800 (14,000) |
6ヶ月 |
無 |
即日 |
|
物件番号:006459
更新日:2026/5/12
中央区銀座7-3-13
【竣工】1970/1
【階建て】地上12F 、地下1F
|
【最寄駅】
|
【耐震】 |
旧耐震 |
| 【基準階】 |
|
【エントランス】 |
全日開放(24h) |
| 【駐車場】 |
無し |
【エレベーター】 |
2基 |
ニューギンザビル1号館は、東京都中央区銀座7-3-13に位置する、利便性と機能性を兼ね備えたオフィスビルです。1970年1月に竣工したこのビルは、地上12階・地下1階建ての鉄骨鉄筋コンクリート造(…

| 図面 |
階数 |
面積 |
賃料(共益費込) (坪単価) |
保証金/敷金 |
礼金 |
入居可能日 |
|
|
6階 |
G 36.00坪 (119.01m2) |
864,000 (24,000) |
8,740,000 (242,778) |
無 |
即日 |
|
|
7階 |
G 60.00坪 (198.34m2) |
1,440,000 (24,000) |
14,500,000 (241,667) |
無 |
即日 |
|
物件番号:006198
更新日:2026/5/11
中央区銀座7-8-5
【竣工】1964/6(改修:1998)
【階建て】地上10F 、地下1F
|
【最寄駅】
|
【耐震】 |
旧耐震+補強済 or 基準OK |
| 【基準階】 |
50.00坪 |
【エントランス】 |
平日・土開放 |
| 【駐車場】 |
無し |
【エレベーター】 |
1基 |
植松ビルは、東京都中央区銀座7丁目に位置するオフィスビルで、銀座エリアならではの利便性とステータスを兼ね備えています。このビルは1964年6月に竣工し、1998年にリニューアルを実施したこと…

| 図面 |
階数 |
面積 |
賃料(共益費込) (坪単価) |
保証金/敷金 |
礼金 |
入居可能日 |
|
|
6階 |
G 50.00坪 (165.29m2) |
1,425,000 (28,500) |
12ヶ月 |
無 |
即日 |
|
物件番号:006193
更新日:2026/5/18
中央区銀座7-2-4
【竣工】1960/6
【階建て】地上7F 、地下1F
|
【最寄駅】
|
【耐震】 |
旧耐震 |
| 【基準階】 |
24.00坪 |
【エントランス】 |
全日開放(制限有) |
| 【駐車場】 |
無し |
【エレベーター】 |
1基 |
複数路線が利用可能で交通アクセス良好です。管理の行き届いた清潔感のあるエントランスです。ワンフロア・ワンテナントなので使い勝手の良い貸室です。

| 図面 |
階数 |
面積 |
賃料(共益費込) (坪単価) |
保証金/敷金 |
礼金 |
入居可能日 |
|
|
5階 |
N 24.00坪 (79.34m2) |
552,000 (23,000) |
(未公開) |
無 |
2026/6 予定 |
|
物件番号:006134
更新日:2026/5/13
中央区銀座7-12-14
【竣工】1954/8(改修:2001)
【階建て】地上7F 、地下1F
|
【最寄駅】
|
【耐震】 |
旧耐震 |
| 【基準階】 |
75.00坪 |
【エントランス】 |
平日のみ開放 |
| 【駐車場】 |
無し |
【エレベーター】 |
1基 |
大栄会館は、東京都中央区銀座7丁目に位置する商業ビルで、利便性の高い交通アクセスと銀座エリアの中心に立地している点が特徴です。1954年8月に竣工したこの建物は、鉄筋コンクリート造(RC造…

| 図面 |
階数 |
面積 |
賃料(共益費込) (坪単価) |
保証金/敷金 |
礼金 |
入居可能日 |
|
|
4階 |
G 75.00坪 (247.93m2) |
1,575,000 (21,000) |
6ヶ月 |
無 |
即日 |
|
非公開物件の賃料目安アイコン
8,000 円未満
8,000 円以上~1.0 万円未満
1.0 万以上~1.2 万円未満
1.2 万以上~1.4 万円未満
1.4 万以上~1.6 万円未満
1.6 万以上~2.0 万円未満
2.0 万以上~2.5 万円未満
2.5 万以上~3.0 万円未満
3.0 万円以上
未定
※取引態様:媒介
※フロア図面と現況が異なる場合は現況を優先いたします。
※貸室内部の写真・貸室からの景色に関しては、現在の募集フロアと異なる場合がございます。