
アーク銀座ビルディング銀座 中央区の賃貸情報
物件番号:58691
アーク銀座ビルディングの募集中物件リスト
| 図面 | 階数 | 面積 | 賃料(共益費込) (坪単価) |
保証金/敷金 | 礼金 | 入居可能日 |
|---|---|---|---|---|---|---|
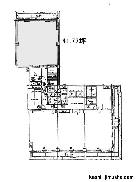
| 7階 |
G 41.77坪 (138.08m2) |
793,630 (19,000) |
10ヶ月 | 1.0ヶ月 | 即日 |
- ※取引態様:媒介
- ※フロア図面と現況が異なる場合は現況を優先いたします。
- ※貸室内部の写真・貸室からの景色に関しては、現在の募集フロアと異なる場合がございます。
- ※保証金/敷金以外の費用については別途消費税が必要になります。
- ※各物件により、別途費用が必要な場合には、物件紹介時又は重要事項説明においてご説明いたします。
- ※面積の箇所に表示している N はネット契約(契約面積はオフィス専用部分のみ)、G はグロス契約(契約面積は共用部分を加えた面積)を表しています。
アーク銀座ビルディングの設備概要※-は確認中の表記になります。
| 竣工 | 1983年 | 構造・階建て | SRC造 地上8階 地下1階 |
|---|---|---|---|
| 耐震 | 新耐震 | 基準階面積 | 153.18坪 |
| エレベーター | 2基、13人乗り以上 | 駐車場 | 有 |
| ビル使用時間 | 24時間使用可 | エントランス | 平日のみ開放 |
| セキュリティ | 機械 | 光ファイバー | 有 |
| 契約種別 | 普通借家契約 | 建替え予定 | - |
| 保証契約 | 有 |
銀座エリア!新橋演舞場の向かいに建つ賃貸オフィスビル!

齋藤 若菜
アーク銀座ビルディングは、東京都中央区銀座7-17-2に位置する賃貸オフィスビルです。新橋演舞場の向かいに建つ視認性の高い立地で、落ち着いた街並みの中にあるオフィス物件です。交通アクセスは、都営大江戸線「築地市場駅」徒歩3分、東京メトロ日比谷線・都営浅草線「東銀座駅」徒歩4分、東京メトロ銀座線・丸ノ内線・日比谷線「銀座駅」徒歩9分と、複数路線が利用可能です。銀座エリア内はもちろん、都内主要エリアへの移動にも対応しやすい環境が整っています。1983年竣工の本物件は、新耐震基準を満たした鉄骨鉄筋コンクリート造・地上8階建(地下1階)。基準階面積は約153坪で、中規模から大規模まで幅広いニーズに対応可能な広さを確保しています。角地に位置しているため、室内は採光を確保しやすい点も特徴です。外観は落ち着いた色合いで、清潔感のある印象を与えます。エントランスも整えられており、来訪者を迎える空間として配慮されています。エレベーター2基を設置し、駐車場、機械警備、光ファイバー、貸倉庫を完備。24時間利用可能で、時間制限なく業務を行えます。貸室内には個別空調とOAフロアを備え、トイレは室外男女別仕様。天井高は2,450mmで、機能性と実用性を重視した銀座エリアの賃貸オフィスビルです。
【周辺ガイド】
アーク銀座ビルディングは、中央区銀座7丁目の落ち着いたエリアに位置する賃貸オフィスビルです。大通りから少し入った角地に建ち、周辺はオフィスビルと商業施設がバランスよく集まる環境です。銀座エリアの中でも比較的落ち着いた街並みが広がり、日中は人通りがありながらも、業務に集中しやすい立地といえます。近隣には新橋演舞場があり、歴史ある劇場を身近に感じられる点も特徴です。さらに築地場外市場方面にも近く、老舗飲食店や専門店が集まるエリアが徒歩圏内に広がっています。銀座の洗練された雰囲気と、築地エリアの活気ある街並みの両方を日常的に感じられる立地です。周辺には飲食店やカフェも豊富にあり、ランチや会食、来客対応の場として利用しやすい環境が整っています。大型商業施設も利用圏内にあり、日常的な買い物や終業後の時間にも便利です。また、大手銀行支店など金融機関や中央区役所も徒歩圏内にあり、各種手続きに対応しやすい点も実務面でのメリットです。銀座7丁目は、商業・文化・ビジネスが共存するエリアです。企業イメージを意識しながら、周辺環境の充実度や業務効率を重視してオフィスを探している企業担当者にとって、検討しやすい立地条件を備えたエリアといえるでしょう。
【評価】4.0
| 駅からの距離 | 設備 | 耐震性 | エントランス |
|---|
アーク銀座ビルディングの周辺地図
「アーク銀座ビルディング」に関するお問合せ
![]() |
|
| このページのURL | https://tokyo.kashi-jimusho.com/detail/58691/ |
|---|---|
株式会社サンエスコーポレーション |
|
| 〒103-0027 東京都中央区日本橋2-2-21 日本橋二丁目ビル5階 | |

















