新橋2丁目(港区)の貸事務所・賃貸オフィス一覧
【2026/05/11更新】
新橋2丁目(港区)の貸事務所について
多彩な業種が集まる新橋2丁目エリア
新橋2丁目エリアは、JR新橋駅の西側に位置し、第一京浜や外堀通り沿いにオフィスビルや店舗が立ち並ぶ利便性の高いビジネス街です。中小企業から大手企業まで、幅広い業種の企業が集まっており、ビジネスチャンスにも恵まれたエリアです。また、飲食店のバリエーションが豊富で、ランチや商談後の会食にも困りません。駅近の立地に加え、比較的リーズナブルな賃料の物件も多いため、コストパフォーマンスを重視したい企業にも適しています。交通利便と快適なオフィス環境を兼ね備えたエリアとして、幅広いニーズに応えられる立地です。
新橋2丁目(港区)の物件は、7棟(12件) 掲載されています。
新橋2丁目周辺の貸事務所マップ
新橋2丁目周辺マップです。物件のある位置にビルが表示されていますので、クリックして詳細情報をご覧ください。
ビルアイコンについて
マップ上に表示されているビルアイコンは、そのビルの最小坪単価に応じて色分けされています。
8,000 円未満
8,000 円以上~1.0 万円未満
1.0 万以上~1.2 万円未満
1.2 万以上~1.4 万円未満
1.4 万以上~1.6 万円未満
1.6 万以上~2.0 万円未満
2.0 万以上~2.5 万円未満
2.5 万以上~3.0 万円未満
3.0 万円以上
未定
新橋2丁目周辺の地区を探す
新橋2丁目周辺の貸事務所一覧
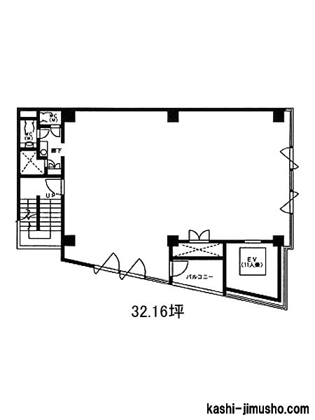
物件番号:052380
更新日:2026/5/11
港区新橋2-19-4
【竣工】2007/12
【階建て】地上12F
|
【最寄駅】
|
【耐震】 |
新耐震 |
| 【基準階】 |
32.16坪 |
【エントランス】 |
全日開放(制限有) |
| 【駐車場】 |
無し |
【エレベーター】 |
1基 |
銀座線「新橋」駅の出口が目の前の好立地です!個別空調やOAフロアなどの設備が充実しています!機械警備でセキュリティも安心です!

| 図面 |
階数 |
面積 |
賃料(共益費込) (坪単価) |
保証金/敷金 |
礼金 |
入居可能日 |
|
|
7階 |
G 32.16坪 (106.31m2) |
|
8ヶ月 |
無 |
相談 |
|
|
9階 |
G 32.16坪 (106.31m2) |
|
8ヶ月 |
無 |
相談 |
|
|
11階 |
G 32.16坪 (106.31m2) |
|
8ヶ月 |
無 |
相談 |
|
物件番号:045294
更新日:2026/5/1
港区新橋2-9-16
【竣工】2005/2
【階建て】地上9F 、地下1F
|
【最寄駅】
|
【耐震】 |
新耐震 |
| 【基準階】 |
30.84坪 |
【エントランス】 |
|
| 【駐車場】 |
無し |
【エレベーター】 |
1基 |
新橋駅から徒歩3分の賃貸オフィスビルです。新橋赤レンガ通りビルは、東京都港区新橋2-9-16に位置する、優れたアクセス性を誇るオフィスビルです。都営三田線内幸町駅から徒歩2分、JR山手線、京…

| 図面 |
階数 |
面積 |
賃料(共益費込) (坪単価) |
保証金/敷金 |
礼金 |
入居可能日 |
|
|
5階 |
G 30.84坪 (101.95m2) |
771,000 (25,000) |
6ヶ月 |
無 |
2026/6 |
|
|
6階 |
G 30.84坪 (101.95m2) |
771,000 (25,000) |
6ヶ月 |
無 |
2026/8 |
|
|
8階 |
G 30.84坪 (101.95m2) |
771,000 (25,000) |
6ヶ月 |
無 |
2026/6 |
|
物件番号:013867
更新日:2026/5/7
港区新橋2-15-11
【竣工】1989/11
【階建て】地上9F 、地下1F
|
【最寄駅】
|
【耐震】 |
新耐震 |
| 【基準階】 |
26.00坪 |
【エントランス】 |
平日・土開放 |
| 【駐車場】 |
無し |
【エレベーター】 |
1基 |
橘ビルは、東京都港区新橋2丁目に位置する、利便性に優れたオフィスビルです。最寄りの新橋駅から徒歩わずか2分と非常に近く、JR山手線、京浜東北線、横須賀線、東海道本線、東京メトロ銀座線、…

| 図面 |
階数 |
面積 |
賃料(共益費込) (坪単価) |
保証金/敷金 |
礼金 |
入居可能日 |
|
|
3階 |
G 20.58坪 (68.03m2) |
628,338 (30,532) |
8ヶ月 |
無 |
即日 |
|
物件番号:013666
更新日:2026/5/1
港区新橋2-3-7
【竣工】1989/11
【階建て】地上7F 、地下2F
|
【最寄駅】
|
【耐震】 |
新耐震 |
| 【基準階】 |
58.48坪 |
【エントランス】 |
|
| 【駐車場】 |
無し |
【エレベーター】 |
1基 |
新橋第二中ビルは、港区新橋二丁目に位置する1989年竣工のオフィスビルで、耐震新耐震基準に適合したSRC造の堅牢な建物です。内幸町駅から徒歩1分、新橋駅からも徒歩3分と、都心の中心地に近接し…

| 図面 |
階数 |
面積 |
賃料(共益費込) (坪単価) |
保証金/敷金 |
礼金 |
入居可能日 |
|
|
4階 |
G 58.48坪 (193.32m2) |
1,189,600 (20,342) |
6ヶ月 |
無 |
即日 |
|
物件番号:013732
更新日:2026/5/8
港区新橋2-4-2
【竣工】1983/11
【階建て】地上9F
|
【最寄駅】
|
【耐震】 |
新耐震 |
| 【基準階】 |
17.34坪 |
【エントランス】 |
|
| 【駐車場】 |
無し |
【エレベーター】 |
1基 |
複数路線が利用可能な便利な物件。大通りに面した分かりやすい立地。落ち着いた色合いで清潔感のあるビル。

| 図面 |
階数 |
面積 |
賃料(共益費込) (坪単価) |
保証金/敷金 |
礼金 |
入居可能日 |
|
|
1階 |
G 20.18坪 (66.72m2) |
1,400,000 (69,376) |
10ヶ月 |
2.0ヶ月 |
相談 |
|
物件番号:013639
更新日:2026/5/7
港区新橋2-16-1
【竣工】1971/2
【階建て】地上11F 、地下4F
|
【最寄駅】
|
【耐震】 |
旧耐震 |
| 【基準階】 |
345.00坪 |
【エントランス】 |
全日開放(制限有) |
| 【駐車場】 |
有り |
【エレベーター】 |
8基 |
新橋SL広場前の賃貸オフィスビルです。ニュー新橋ビルは、東京都港区新橋に位置し、新橋駅から徒歩1分という抜群のアクセスを誇ります。JR山手線、京浜東北線、東海道本線をはじめ、東京メトロ銀…

| 図面 |
階数 |
面積 |
賃料(共益費込) (坪単価) |
保証金/敷金 |
礼金 |
入居可能日 |
|
|
10階 |
G 20.25坪 (66.95m2) |
394,520 (19,483) |
2ヶ月 |
1.0ヶ月 |
相談 |
|
|
NEW11階 |
G 20.07坪 (66.35m2) |
454,508 (22,646) |
6ヶ月 |
無 |
相談 |
|
物件番号:013700
更新日:2026/5/1
港区新橋2-20-15
【竣工】1966/8(改修:2018)
【階建て】地上9F 、地下5F
|
【最寄駅】
|
【耐震】 |
旧耐震+補強済 or 基準OK |
| 【基準階】 |
400.00坪 |
【エントランス】 |
全日開放(制限有) |
| 【駐車場】 |
有り |
【エレベーター】 |
5基 |
港区新橋2丁目にある、新橋駅前ビル1号館です。新橋駅と直結しているので、雨に濡れずにアクセス可能な便利な立地です。JR山手線・JR京浜東北線・JR東海道本線・ゆりかもめ線・東京メトロ銀座線…

| 図面 |
階数 |
面積 |
賃料(共益費込) (坪単価) |
保証金/敷金 |
礼金 |
入居可能日 |
|
|
8階 |
N 69.71坪 (230.45m2) |
1,324,490 (19,000) |
10ヶ月 |
無 |
即日 |
|
非公開物件の賃料目安アイコン
8,000 円未満
8,000 円以上~1.0 万円未満
1.0 万以上~1.2 万円未満
1.2 万以上~1.4 万円未満
1.4 万以上~1.6 万円未満
1.6 万以上~2.0 万円未満
2.0 万以上~2.5 万円未満
2.5 万以上~3.0 万円未満
3.0 万円以上
未定
※取引態様:媒介
※フロア図面と現況が異なる場合は現況を優先いたします。
※貸室内部の写真・貸室からの景色に関しては、現在の募集フロアと異なる場合がございます。