千代田区の貸事務所、賃貸オフィス|90坪(80~100坪)
90坪の貸事務所を掲載しています。90坪前後の貸事務所を探す方に参考になるように80坪から100坪の範囲でオフィス物件を抽出しています。このページでは中でも千代田区のオフィスビルに限定して掲載しています。80坪~100坪とは、約40名~50名程度で利用する広さのオフィスになります。平米で換算すると約260㎡から330㎡程度の広さです。是非、オフィス移転のご参考にしてください。
貸事務所90坪|千代田区一覧
物件番号:041063
更新日:2026/5/1
千代田区九段南2-1-30
【竣工】2005/9
【階建て】地上12F 、地下2F
|
【最寄駅】
|
【耐震】 |
新耐震 |
| 【基準階】 |
254.16坪 |
【エントランス】 |
平日のみ開放 |
| 【駐車場】 |
有り |
【エレベーター】 |
3基 |
イタリア文化会館ビルは、千代田区九段南2丁目に位置する大型賃貸オフィスビルです。皇居の北側に位置し、春には桜の名所として知られる千鳥ヶ淵を望む立地で、四季折々の景観を楽しむことができ…

| 図面 |
階数 |
面積 |
賃料(共益費込) (坪単価) |
保証金/敷金 |
礼金 |
入居可能日 |
|
|
3階 |
N 84.45坪 (279.17m2) |
|
10ヶ月 |
無 |
即日 |
|
物件番号:003569
更新日:2026/4/17
千代田区神田須田町1-14-1
【竣工】2004/5
【階建て】地上10F 、地下1F
|
【最寄駅】
|
【耐震】 |
新耐震 |
| 【基準階】 |
80.73坪 |
【エントランス】 |
平日のみ開放 |
| 【駐車場】 |
有り |
【エレベーター】 |
2基 |
ヒューリック神田須田町ビルは、東京都千代田区神田須田町1-14-1に位置する、優れた立地条件を誇る貸事務所物件です。靖国通りに面した角地に建つこのビルは、視認性が高く、アクセスの良さが特…

| 図面 |
階数 |
面積 |
賃料(共益費込) (坪単価) |
保証金/敷金 |
礼金 |
入居可能日 |
|
|
7階 |
G 80.73坪 (266.88m2) |
2,018,250 (25,000) |
6ヶ月 |
無 |
即日 |
|
物件番号:083880
更新日:2026/5/1
千代田区神田駿河台2-9-13
【竣工】1995/7
【階建て】地上8F 、地下1F
|
【最寄駅】
|
【耐震】 |
新耐震 |
| 【基準階】 |
96.12坪 |
【エントランス】 |
|
| 【駐車場】 |
- |
【エレベーター】 |
3基 |
3駅5路線利用可能な立地!利便性良好です。整然とした街並みが美しい落ち着いた環境です。開放的な1フロア1テナント、窓面が多く明るい室内です。

| 図面 |
階数 |
面積 |
賃料(共益費込) (坪単価) |
保証金/敷金 |
礼金 |
入居可能日 |
|
|
3階 |
G 96.12坪 (317.75m2) |
|
10ヶ月 |
無 |
即日 |
|
物件番号:002165
更新日:2026/4/13
千代田区神田錦町3-3
【竣工】1994/3
【階建て】地上8F
|
【最寄駅】
|
【耐震】 |
新耐震 |
| 【基準階】 |
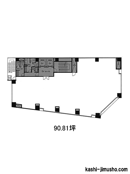
90.81坪 |
【エントランス】 |
平日・土開放 |
| 【駐車場】 |
有り |
【エレベーター】 |
2基 |
竹橋3-3ビルは、東京都千代田区神田錦町3-3に位置する地上8階建てのオフィスビルです。1994年3月に竣工し、SRC造で建てられています。また、新耐震基準に適合しているので安全性に優れています。…

| 図面 |
階数 |
面積 |
賃料(共益費込) (坪単価) |
保証金/敷金 |
礼金 |
入居可能日 |
|
|
2階 |
N 90.81坪 (300.20m2) |
|
12ヶ月 |
無 |
2026/8/1 |
|
|
4階 |
N 90.81坪 (300.20m2) |
|
12ヶ月 |
無 |
2026/6/1 |
|
物件番号:004266
更新日:2026/4/20
千代田区東神田2-5-12
【竣工】1991/11
【階建て】地上9F 、地下1F
|
【最寄駅】
|
【耐震】 |
新耐震 |
| 【基準階】 |
216.81坪 |
【エントランス】 |
|
| 【駐車場】 |
有り |
【エレベーター】 |
4基 |
龍角散ビルは、東京都千代田区東神田に位置するハイグレードなオフィスビルです。最寄り駅のJR総武線馬喰町駅や都営新宿線の馬喰横山駅、岩本町駅など、徒歩5分圏内に複数の路線が利用できる駅が…

| 図面 |
階数 |
面積 |
賃料(共益費込) (坪単価) |
保証金/敷金 |
礼金 |
入居可能日 |
|
|
7階 |
N 85.99坪 (284.26m2) |
|
(未公開) |
無 |
2026/10/1 |
|
物件番号:000769
更新日:2026/4/21
千代田区隼町2-19
【竣工】1991/1
【階建て】地上8F 、地下1F
|
【最寄駅】
|
【耐震】 |
新耐震 |
| 【基準階】 |
96.14坪 |
【エントランス】 |
全日開放(24h) |
| 【駐車場】 |
有り |
【エレベーター】 |
1基 |
いちご半蔵門ビルは東京都千代田区隼町2-19にある賃貸オフィスビルです。半蔵門駅から出て、新宿通りから一本入った角地に位置する物件です。落ち着いた印象の重厚感がある外観です。エントラン…

| 図面 |
階数 |
面積 |
賃料(共益費込) (坪単価) |
保証金/敷金 |
礼金 |
入居可能日 |
|
|
4階 |
G 82.55坪 (272.89m2) |
|
(未公開) |
無 |
即日 |
|
物件番号:056141
更新日:2026/4/8
千代田区内神田1-6-6
【竣工】1991/1(改修:2009)
【階建て】地上9F 、地下1F
|
【最寄駅】
|
【耐震】 |
新耐震 |
| 【基準階】 |
82.79坪 |
【エントランス】 |
平日・土開放 |
| 【駐車場】 |
有り |
【エレベーター】 |
1基 |
大手町駅・神田駅利用で徒歩6分圏内。大通り沿いの角地に位置する貸事務所。MIFビルは千代田区内神田1-6-6の物件です。最寄駅は東京メトロ丸ノ内線・半蔵門線・東西線・千代田線の大手町駅。地下…

| 図面 |
階数 |
面積 |
賃料(共益費込) (坪単価) |
保証金/敷金 |
礼金 |
入居可能日 |
|
|
5階 |
N 82.79坪 (273.69m2) |
|
(未公開) |
無 |
2026/10/1 |
|
物件番号:000602
更新日:2026/5/1
千代田区紀尾井町4-9
【竣工】1990/12
【階建て】地上8F 、地下1F
|
【最寄駅】
|
【耐震】 |
新耐震 |
| 【基準階】 |
159.31坪 |
【エントランス】 |
平日・土開放 |
| 【駐車場】 |
有り |
【エレベーター】 |
2基 |
緑豊かな風格ある街並み、紀尾井町通りに面したオフィスビルです。泉館紀尾井町ビルは、東京都千代田区千代田区紀尾井町4-9に位置します。交通アクセスも便利で、東京メトロ有楽町線の麹町駅から…

| 図面 |
階数 |
面積 |
賃料(共益費込) (坪単価) |
保証金/敷金 |
礼金 |
入居可能日 |
|
|
5階 |
N 91.02坪 (300.90m2) |
|
12ヶ月 |
無 |
即日 |
|
物件番号:004629
更新日:2026/4/30
千代田区岩本町2-1-18
【竣工】1990/12
【階建て】地上9F
|
【最寄駅】
|
【耐震】 |
新耐震 |
| 【基準階】 |
93.50坪 |
【エントランス】 |
平日のみ開放 |
| 【駐車場】 |
有り |
【エレベーター】 |
2基 |
神田エリア。駐車場完備の重厚感あるオフィスビル。フォロ・エムビルは、千代田区岩本町2丁目、JR山手線・中央線・京浜東北線の神田駅より徒歩6分圏愛の場所に位置します。神田金物通りに面した視…

| 図面 |
階数 |
面積 |
賃料(共益費込) (坪単価) |
保証金/敷金 |
礼金 |
入居可能日 |
|
|
8階 |
G 93.50坪 (309.09m2) |
|
(未公開) |
無 |
2026/7/27 |
|
物件番号:036251
更新日:2026/4/17
千代田区神田淡路町2-1-7
【竣工】1990/12
【階建て】地上7F 、地下1F
|
【最寄駅】
|
【耐震】 |
新耐震 |
| 【基準階】 |
96.61坪 |
【エントランス】 |
平日・土開放 |
| 【駐車場】 |
有り |
【エレベーター】 |
1基 |
東京都千代田区神田淡路町に位置する「NCO神田淡路町」は、丸ノ内線「淡路町駅」から徒歩2分という優れた立地条件に加え、都営新宿線「小川町駅」や千代田線「新御茶ノ水駅」、さらにはJR中央線…

| 図面 |
階数 |
面積 |
賃料(共益費込) (坪単価) |
保証金/敷金 |
礼金 |
入居可能日 |
|
|
4階 |
G 96.61坪 (319.37m2) |
|
10ヶ月 |
無 |
即日 |
|
物件番号:081050
更新日:2026/4/14
千代田区神田神保町3-6-12
【竣工】1990/7
【階建て】地上5F 、地下1F
|
【最寄駅】
|
【耐震】 |
新耐震 |
| 【基準階】 |
|
【エントランス】 |
|
| 【駐車場】 |
有り |
【エレベーター】 |
1基 |
(仮称)神田神保町3丁目ビルは、東京都千代田区神田神保町3丁目に位置する希少な一棟貸し物件です。1990年1月に竣工した鉄筋コンクリート造(RC造)のビルで、新耐震基準に適合しており、安全性が…

| 図面 |
階数 |
面積 |
賃料(共益費込) (坪単価) |
保証金/敷金 |
礼金 |
入居可能日 |
|
|
B2-5階 |
G 90.27坪 (298.42m2) |
2,000,000 (22,156) |
4ヶ月 |
無 |
未定 |
|
物件番号:000465
更新日:2026/4/23
千代田区麹町1-7-25
【竣工】1990/4
【階建て】地上9F 、地下2F
|
【最寄駅】
|
【耐震】 |
新耐震 |
| 【基準階】 |
111.44坪 |
【エントランス】 |
|
| 【駐車場】 |
有り |
【エレベーター】 |
2基 |
フェルテ麹町ビルは、東京都千代田区麹町1-7-25に位置する地上9階建て地下2階のオフィスビルです。1990年4月に竣工し、SRC造で建てられています。新耐震基準に適合しており、安定したオフィス利…

| 図面 |
階数 |
面積 |
賃料(共益費込) (坪単価) |
保証金/敷金 |
礼金 |
入居可能日 |
|
|
6階 |
G 97.24坪 (321.47m2) |
2,917,200 (30,000) |
6ヶ月 |
無 |
即日 |
|
物件番号:000592
更新日:2026/4/22
千代田区紀尾井町3-12
【竣工】1989/11
【階建て】地上26F 、地下4F
|
【最寄駅】
|
【耐震】 |
新耐震 |
| 【基準階】 |
382.03坪 |
【エントランス】 |
全日開放(制限有) |
| 【駐車場】 |
有り |
【エレベーター】 |
12基 |
千代田区紀尾井町3-12にある、紀尾井町ビルです。最寄駅は、東京メトロ有楽町線の麹町駅です。また、東京メトロ銀座線・丸ノ内線の赤坂見附駅、東京メトロ南北線・半蔵門線の永田町駅も徒歩10分…

| 図面 |
階数 |
面積 |
賃料(共益費込) (坪単価) |
保証金/敷金 |
礼金 |
入居可能日 |
|
|
5階 |
N 81.98坪 (271.01m2) |
|
12ヶ月 |
無 |
即日 |
|
物件番号:004312
更新日:2026/4/27
千代田区東神田2-4-5
【竣工】1989/6
【階建て】地上7F
|
【最寄駅】
|
【耐震】 |
新耐震 |
| 【基準階】 |
81.28坪 |
【エントランス】 |
平日・土開放 |
| 【駐車場】 |
有り |
【エレベーター】 |
1基 |
東神田堀商ビルは、千代田区東神田に位置する地上7階建てのオフィスビルです。1989年竣工のS造で、新耐震基準に適合しており、安全性と安心感を兼ね備えています。角地に建つ二面採光の構造によ…

| 図面 |
階数 |
面積 |
賃料(共益費込) (坪単価) |
保証金/敷金 |
礼金 |
入居可能日 |
|
|
3階 |
G 81.28坪 (268.70m2) |
|
12ヶ月 |
無 |
即日 |
|
物件番号:001091
更新日:2026/4/28
千代田区九段南3-3-6
【竣工】1988/7(改修:2013)
【階建て】地上7F
|
【最寄駅】
|
【耐震】 |
新耐震 |
| 【基準階】 |
241.05坪 |
【エントランス】 |
平日・土開放 |
| 【駐車場】 |
無し |
【エレベーター】 |
2基 |
麹町ビルは、千代田区九段南に位置する賃貸オフィスビルです。角地に立地しており、周囲からの視認性が高く、室内への自然光の取り込みにも優れた明るい空間が魅力です。周辺はオフィスビルや教…

| 図面 |
階数 |
面積 |
賃料(共益費込) (坪単価) |
保証金/敷金 |
礼金 |
入居可能日 |
|
|
NEW1階 |
N 83.73坪 (276.79m2) |
|
12ヶ月 |
無 |
2026/11 |
|
物件番号:000657
更新日:2026/4/21
千代田区平河町1-6-8
【竣工】1988/3(改修:2024)
【階建て】地上6F 、地下1F
|
【最寄駅】
|
【耐震】 |
新耐震 |
| 【基準階】 |
85.43坪 |
【エントランス】 |
平日・土開放 |
| 【駐車場】 |
無し |
【エレベーター】 |
1基 |
JP-BASE平河町は、千代田区平河町1-6-8に位置する賃貸オフィスビルです。半蔵門駅(東京メトロ半蔵門線)まで徒歩5分、麹町駅(東京メトロ有楽町線)まで徒歩4分、永田町駅(東京メトロ南北線)…

| 図面 |
階数 |
面積 |
賃料(共益費込) (坪単価) |
保証金/敷金 |
礼金 |
入居可能日 |
|
|
3階 |
G 100.66坪 (332.76m2) |
4,200,000 (41,725) |
6ヶ月 |
無 |
2026/5 予定 |
|
|
4階 |
G 93.48坪 (309.03m2) |
3,900,000 (41,720) |
6ヶ月 |
無 |
2026/5 予定 |
|
物件番号:073003
更新日:2026/5/1
千代田区四番町2-12
【竣工】1972/3(改修:2020)
【階建て】地上8F 、地下1F
|
【最寄駅】
|
【耐震】 |
旧耐震+補強済 or 基準OK |
| 【基準階】 |
224.35坪 |
【エントランス】 |
平日のみ開放 |
| 【駐車場】 |
有り |
【エレベーター】 |
2基 |
四番町THビルは、東京都千代田区四番町2丁目に位置する賃貸オフィスビルです。最寄り駅は市ヶ谷駅で、JR総武線・都営新宿線・東京メトロ有楽町線・南北線が利用可能です。また、徒歩9分の四ツ谷…

| 図面 |
階数 |
面積 |
賃料(共益費込) (坪単価) |
保証金/敷金 |
礼金 |
入居可能日 |
|
|
7-8階 |
G 84.76坪 (280.21m2) |
|
12ヶ月 |
無 |
即日 |
|
物件番号:003658
更新日:2026/4/21
千代田区外神田6-5-4
【竣工】1969/10(改修:1999)
【階建て】地上8F
|
【最寄駅】
|
【耐震】 |
旧耐震 |
| 【基準階】 |
96.90坪 |
【エントランス】 |
平日のみ開放 |
| 【駐車場】 |
無し |
【エレベーター】 |
2基 |
偕楽ビル外神田は、千代田区外神田6丁目に位置し、銀座線の末広町駅から徒歩3分、千代田線の湯島駅からも徒歩4分という非常にアクセス性の高い立地にあります。さらに、JR山手線や京浜東北線が利…

| 図面 |
階数 |
面積 |
賃料(共益費込) (坪単価) |
保証金/敷金 |
礼金 |
入居可能日 |
|
|
4階 |
G 97.00坪 (320.66m2) |
|
(未公開) |
(未公開) |
未定 |
|
物件番号:001331
更新日:2026/4/23
千代田区飯田橋1-7-10
【竣工】1969/9
【階建て】地上10F 、地下1F
|
【最寄駅】
|
【耐震】 |
旧耐震 |
| 【基準階】 |
46.55坪 |
【エントランス】 |
平日・土開放 |
| 【駐車場】 |
無し |
【エレベーター】 |
1基 |
飯田橋駅と九段下駅が利用可能な立地!交通アクセス良好です!目白通りに面した開放的な環境!視認性抜群です!白とダークブラウンでシックな外観のビルです!

| 図面 |
階数 |
面積 |
賃料(共益費込) (坪単価) |
保証金/敷金 |
礼金 |
入居可能日 |
|
|
B1-1階 |
G 99.71坪 (329.62m2) |
1,695,070 (17,000) |
6ヶ月 |
無 |
2026/8 下旬 |
|
物件番号:000789
更新日:2026/4/15
千代田区永田町2-14-2
【竣工】1966/9
【階建て】地上9F 、地下3F
|
【最寄駅】
|
【耐震】 |
旧耐震+補強済 or 基準OK |
| 【基準階】 |
699.00坪 |
【エントランス】 |
平日・土開放 |
| 【駐車場】 |
有り |
【エレベーター】 |
7基 |
千代田区永田町2-14-2にある、山王グランドビルです。東京メトロ銀座線の赤坂見附駅からすぐの立地にある賃貸オフィスビルです。その他に、東京メトロ有楽町線・半蔵門線・南北線の永田町駅、東…

| 図面 |
階数 |
面積 |
賃料(共益費込) (坪単価) |
保証金/敷金 |
礼金 |
入居可能日 |
|
|
3階 |
N 81.04坪 (267.90m2) |
|
(未公開) |
無 |
即日 |
|
物件番号:083893
更新日:2026/4/13
千代田区平河町2-14-3
【竣工】2027/4
【階建て】地上9F
|
【最寄駅】
|
【耐震】 |
新耐震 |
| 【基準階】 |
100.43坪 |
【エントランス】 |
平日のみ開放 |
| 【駐車場】 |
有り |
【エレベーター】 |
2基 |
長年親しまれたJC会館の建て替え新築ビルです!3駅5路線利用可能な利便性の高い立地です!基準階面積100坪超の開放的な室内空間です!

| 図面 |
階数 |
面積 |
賃料(共益費込) (坪単価) |
保証金/敷金 |
礼金 |
入居可能日 |
|
|
5階 |
G 100.43坪 (332.00m2) |
|
12ヶ月 |
無 |
2027/6 中旬 |
|
|
6階 |
G 100.43坪 (332.00m2) |
|
12ヶ月 |
無 |
2027/6 中旬 |
|
|
7階 |
G 100.43坪 (332.00m2) |
|
12ヶ月 |
無 |
2027/6 中旬 |
|
|
8階 |
G 100.43坪 (332.00m2) |
|
12ヶ月 |
無 |
2027/6 中旬 |
|
|
9階 |
G 100.43坪 (332.00m2) |
|
12ヶ月 |
無 |
2027/6 中旬 |
|
物件番号:083559
更新日:2026/4/21
千代田区神田錦町3-14
【竣工】2026/5
【階建て】地上9F
|
【最寄駅】
|
【耐震】 |
新耐震 |
| 【基準階】 |
89.00坪 |
【エントランス】 |
|
| 【駐車場】 |
- |
【エレベーター】 |
2基 |
2026年5月竣工予定!神保町エリアの新築ハイグレードオフィスビル!

| 図面 |
階数 |
面積 |
賃料(共益費込) (坪単価) |
保証金/敷金 |
礼金 |
入居可能日 |
|
|
6階 |
G 89.00坪 (294.22m2) |
|
(未公開) |
無 |
2026/6/1 |
|
|
7階 |
G 89.00坪 (294.22m2) |
|
(未公開) |
無 |
2026/6/1 |
|
|
8階 |
G 89.00坪 (294.22m2) |
|
(未公開) |
無 |
2026/6/1 |
|
|
9階 |
G 89.00坪 (294.22m2) |
|
(未公開) |
無 |
2026/6/1 |
|
非公開物件の賃料目安アイコン
8,000 円未満
8,000 円以上~1.0 万円未満
1.0 万以上~1.2 万円未満
1.2 万以上~1.4 万円未満
1.4 万以上~1.6 万円未満
1.6 万以上~2.0 万円未満
2.0 万以上~2.5 万円未満
2.5 万以上~3.0 万円未満
3.0 万円以上
未定
※取引態様:媒介
※フロア図面と現況が異なる場合は現況を優先いたします。
※貸室内部の写真・貸室からの景色に関しては、現在の募集フロアと異なる場合がございます。
※取引態様:媒介
その他、千代田区の貸事務所をお探しの方はこちらをクリック

90坪貸事務所|千代田区エリア
90坪(80坪~100坪)の千代田区貸事務所
東京都内の90坪(80坪~100坪)の貸事務所
千代田区の坪数特集
千代田区に関連する貸事務所検索ページ